Figuur 370.1 - Tanden tussen de mootvoegen in de wanden van de HSL tunnel onder de Oude Maas.
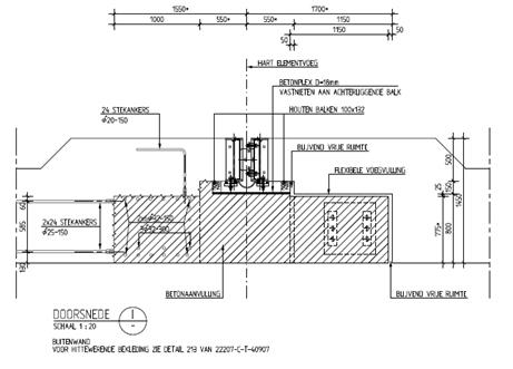
Figuur 370.2 - Zijaanzicht tand tussen de zinkvoegen in de buitenwand van de HSL tunnel onder de Oude Maas
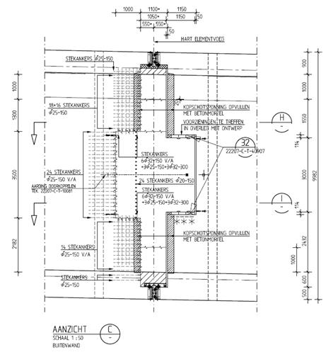
Figuur 370.3 - Horizontale doorsnede over de tand tussen de zinkvoegen in de buitenwand van de HSL tunnel onder de Oude Maas
Figuur 370.4 - Wapening in de tand tussen de zinkvoegen in de buitenwand van de HSL tunnel onder de Oude Maas
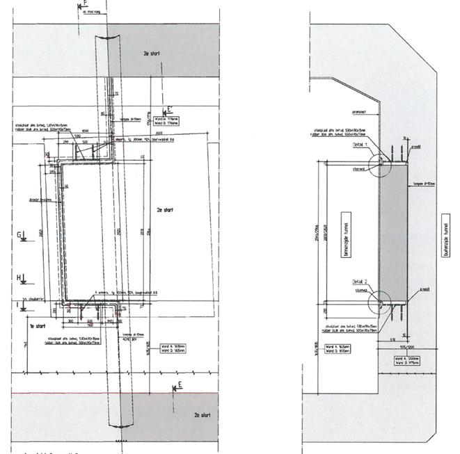
Figuur 370.5 - Aanzicht en doorsnede tandconstructie buitenwand 2e Coentunnel t.p.v. mootvoeg; ‘vrouwtje’
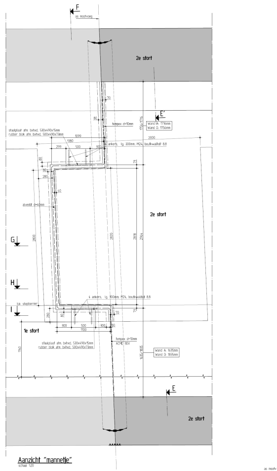
Figuur 370.6 - Aanzicht en doorsnede tandconstructie buitenwand 2e Coentunnel t.p.v. mootvoeg; ‘mannetje’

Figuur 370.7 - Horizontale stalen verdeuveling bij de zinkvoeg in de vloer van de HSL-tunnels
Figuur 370.8 - Tandconstructie t.p.v. een zinkvoeg (HSL tunnel Oude Maas)
Figuur 370.9 - Wapening tandconstructie t.p.v. een mootvoeg bij de 2e Coentunnel
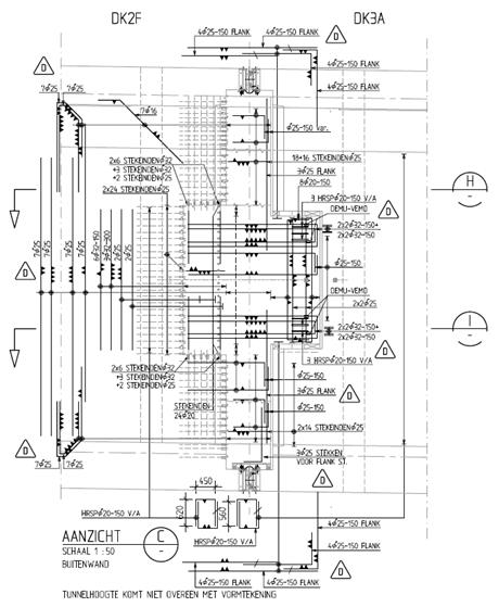
Figuur 370.10 - Doorsnede tandconstructie t.p.v. de buitenwand bij de 2e Coentunnel
Figuur 370.11 - Aanzicht tandconstructie binnenwand bij mootvoeg 2e Coentunnel
Figuur 370.12 - Aanzicht tandconstructie binnenwand bij zinkvoeg 2e Coentunnel
Opgemerkt wordt dat de voegen verticaal staan in de eindsituatie. Het onder- en bovenvlak van de tand liggen onder een helling. Het gemiddelde van deze twee is gelijk aan het gemiddelde van de hellingen van de vloer aan weerszijden van de voeg, om te voorkomen dat een voegopenstand in de winter leidt tot het optillen van een element. De hellingen van onder- en bovenvlak van de tand zijn echter niet gelijk. De tand is iets taps, om er (met bouwtoleranties) voor te zorgen dat de tand altijd ‘lossend’ is. De tapsheid is in de grootte orde van millimeters.
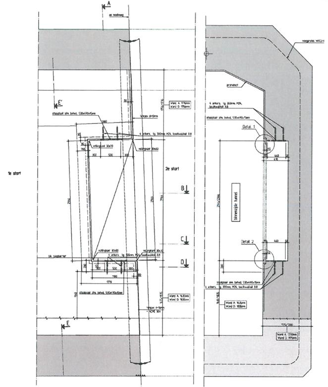
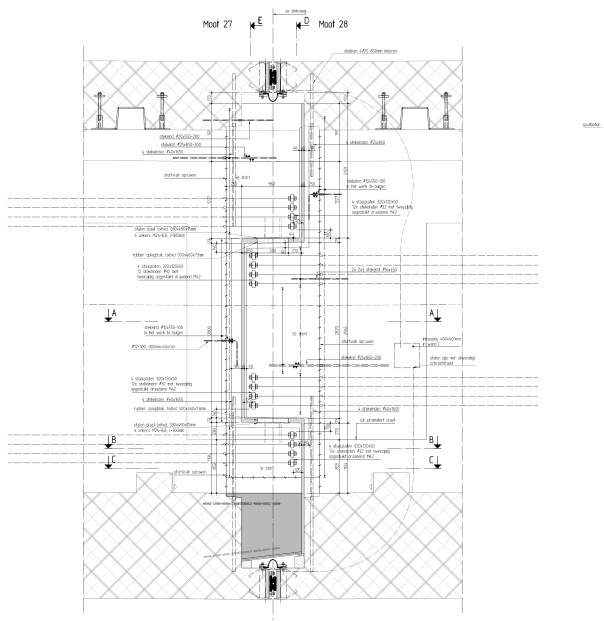
Zie verder de detailtekeningen van de 2e Coentunnel:
Kennisbank










