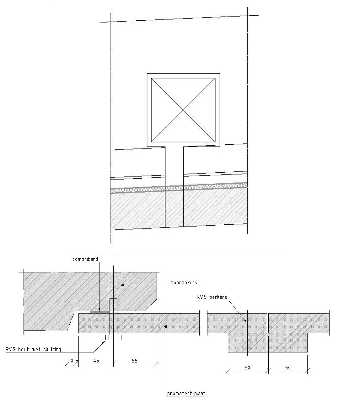
Klik hier om de afbeelding te vergroten (in een nieuw tabblad)
Figuur 464.1 – Details achterzijde hulppost en nis brandblusleiding