Klik hier om de afbeelding te vergroten (in een nieuw tabblad)
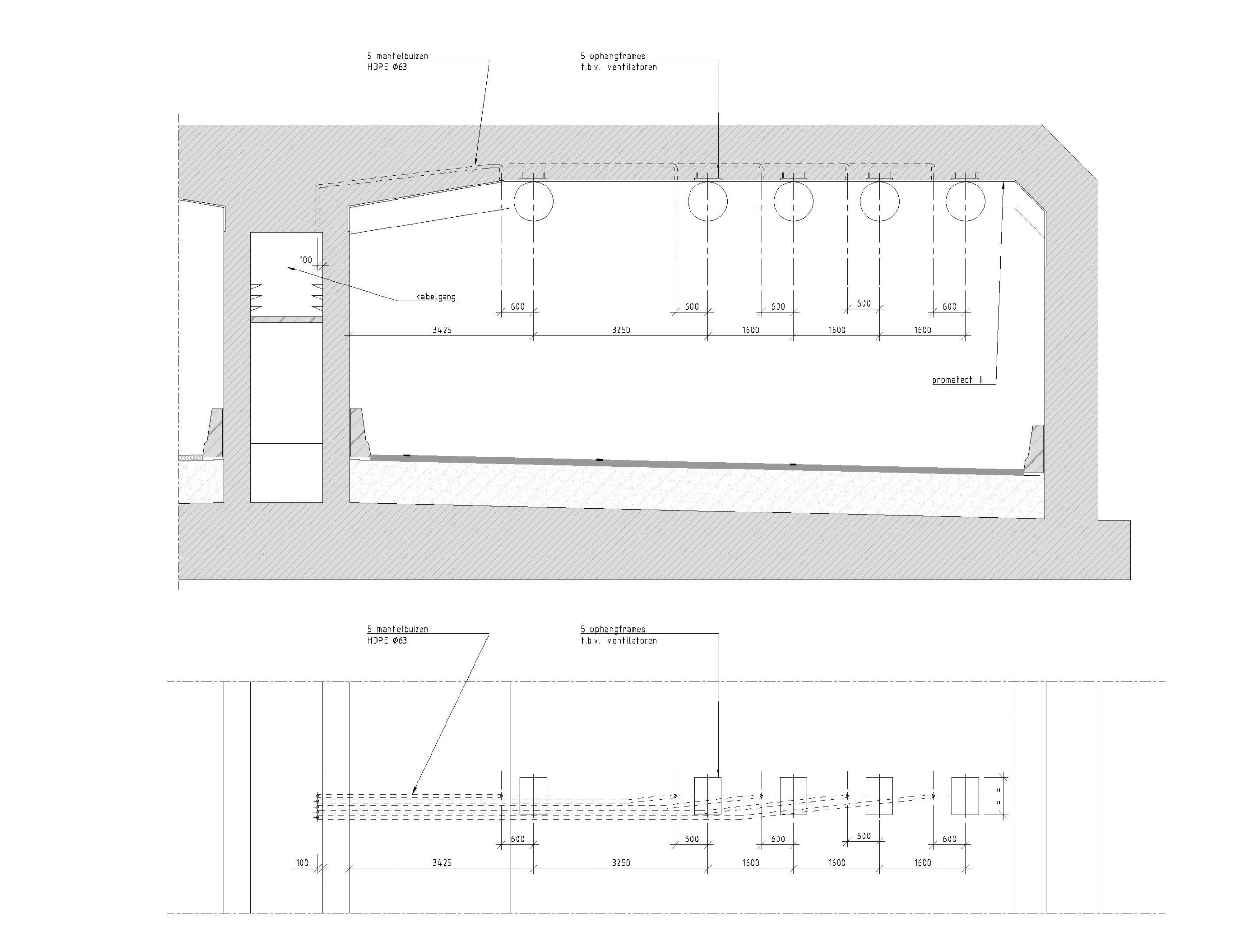
Figuur 295.1 – Doorsnede en bovenaanzicht tunnel ter plaatse van ophangframes ventilator