Klik hier om de afbeelding te vergroten (in een nieuw tabblad)
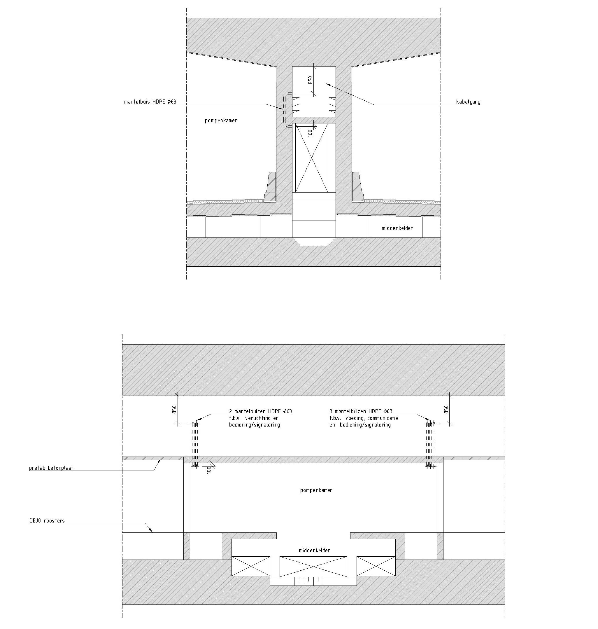
Figuur 299.1 – Dwars- en langsdoorsnede ter plaatse van middenpompkamer