Klik hier om de afbeelding te vergroten (in een nieuw tabblad)
Download het Adobe Illustrator bestand
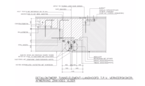
Figuur 323.1 – Detailontwerp tunnelelement – t.p.v. verkeerskoker: afwerking zinkvoeg vloer