Klik hier om de afbeelding te vergroten (in een nieuw tabblad)
Download het Autocad bestand
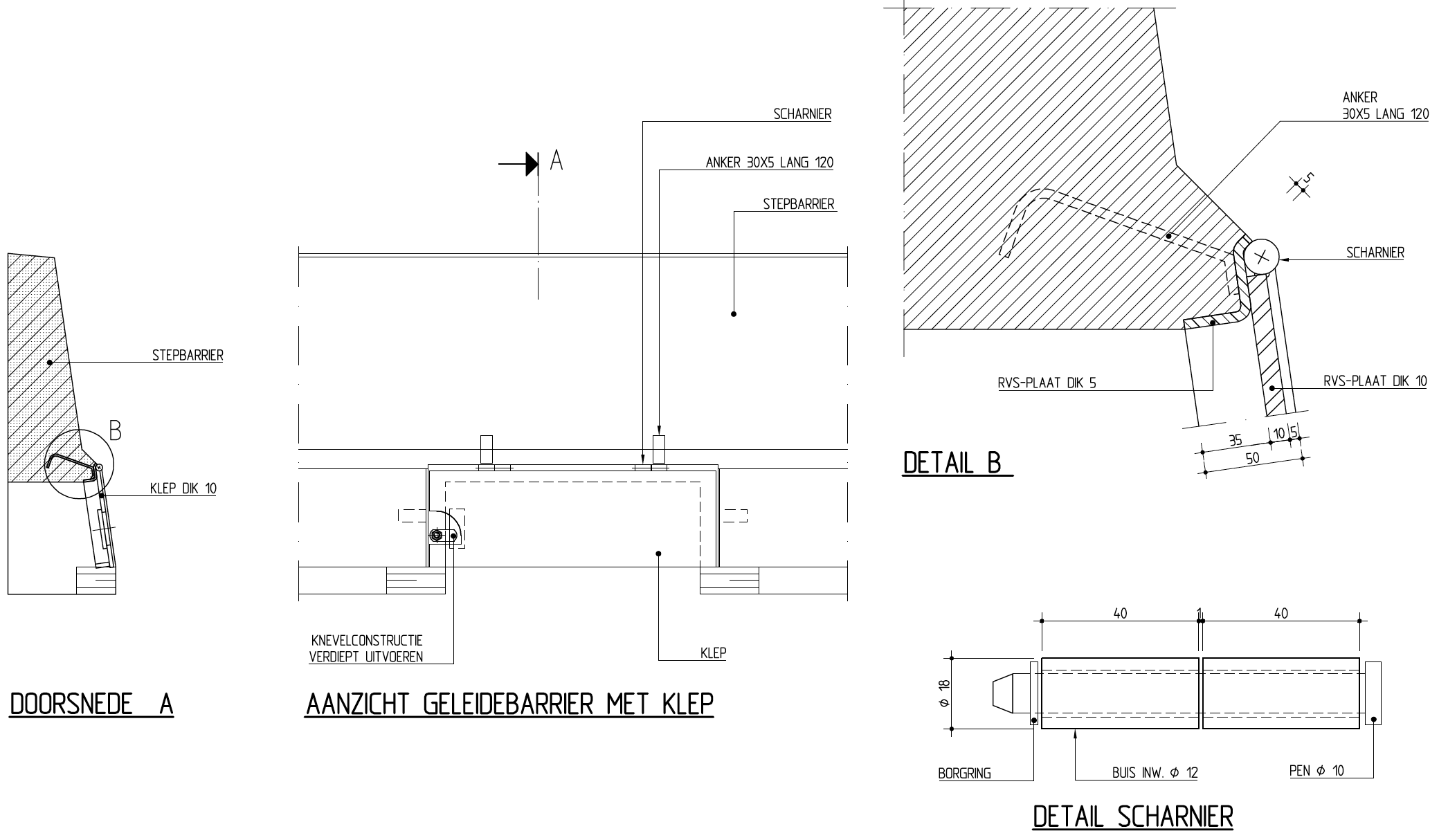
Figuur 457.1 – Aanzicht en details geleidebarrier t.p.v. inlaatput