Klik hier om de afbeelding te vergroten (in een nieuw tabblad)
Download het Autocad bestand
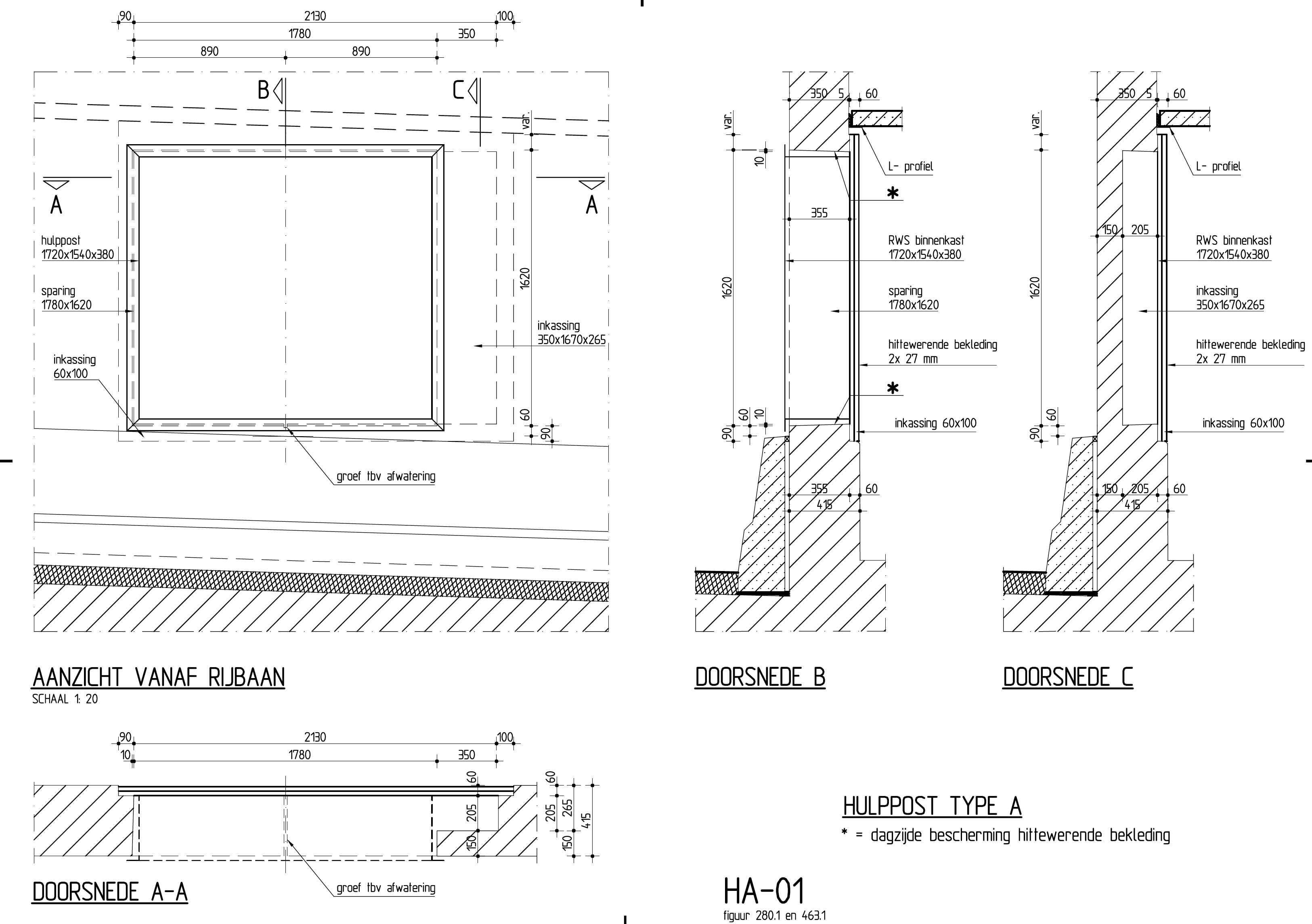
Figuur 463.1 – Afdichting achterzijde hulppost type A en nis brandblusleiding