Klik hier om de afbeelding te vergroten (in een nieuw tabblad)
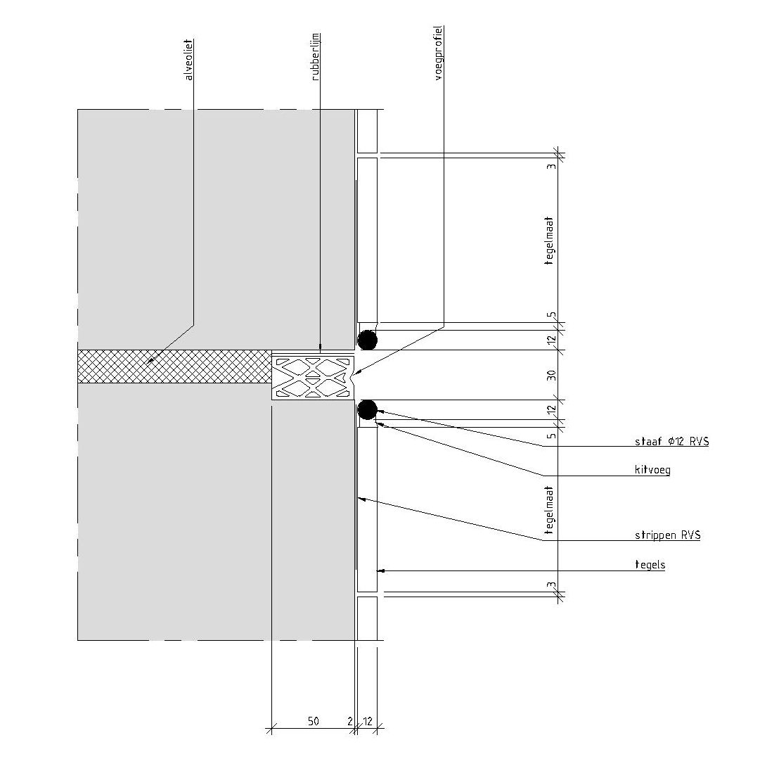
Figuur 507.2 – Principedetails wandafwerking tegels t.p.v. dilatatievoeg