Klik hier om de afbeelding te vergroten (in een nieuw tabblad)
Download het Autocad bestand
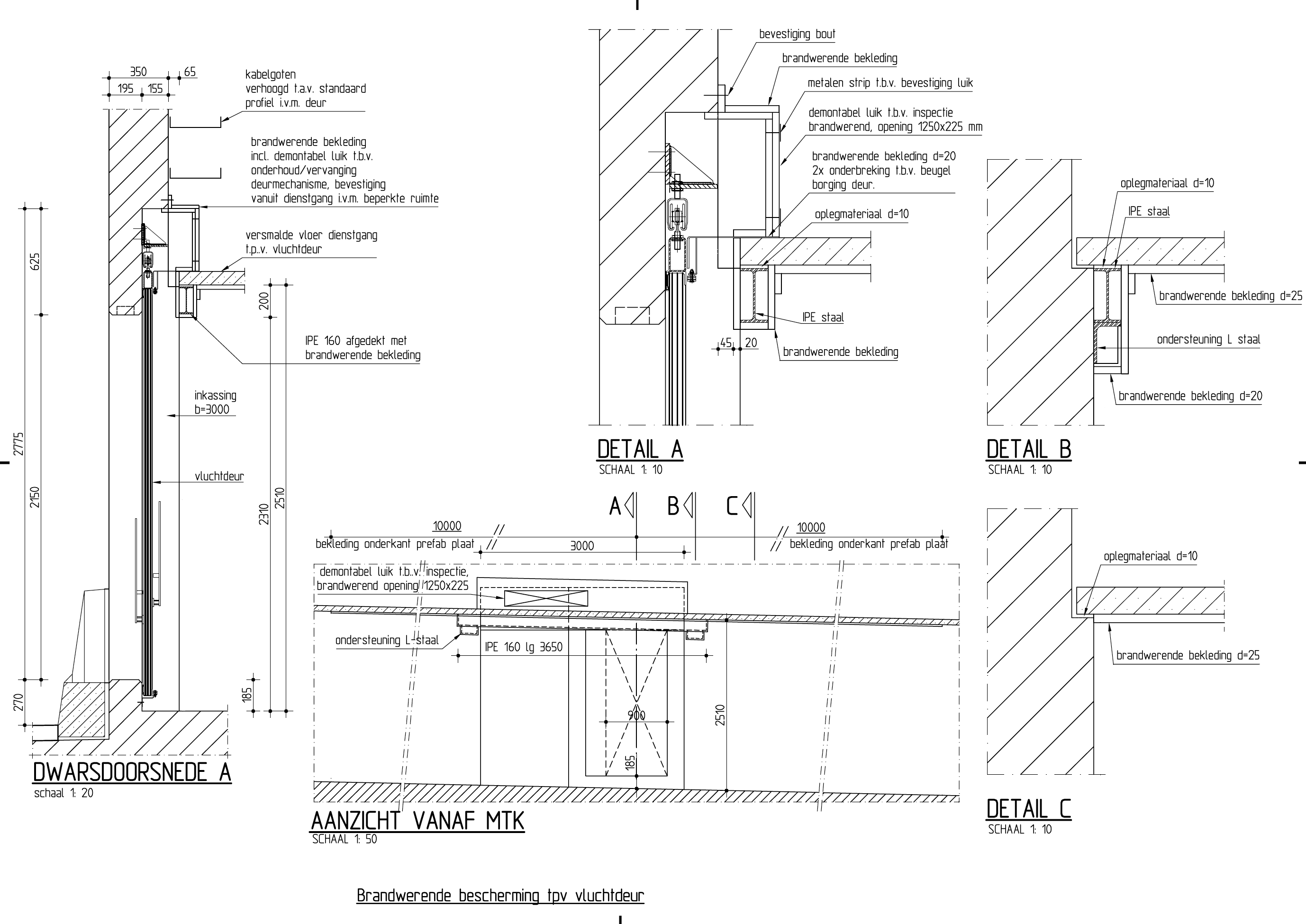
Figuur 684.1 Brandwerende bescherming t.p.v. vluchtdeur