Klik hier om de afbeelding te vergroten (in een nieuw tabblad)
Download het Autocad bestand
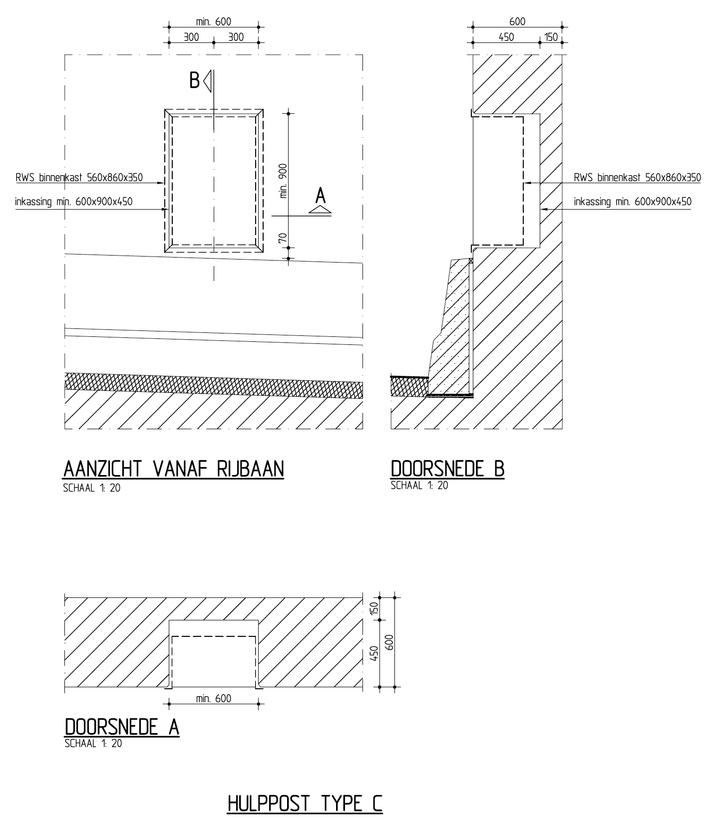
Figuur 462.1 Hulppost type C