Klik hier om de afbeelding te vergroten (in een nieuw tabblad)
Download het Autocad bestand
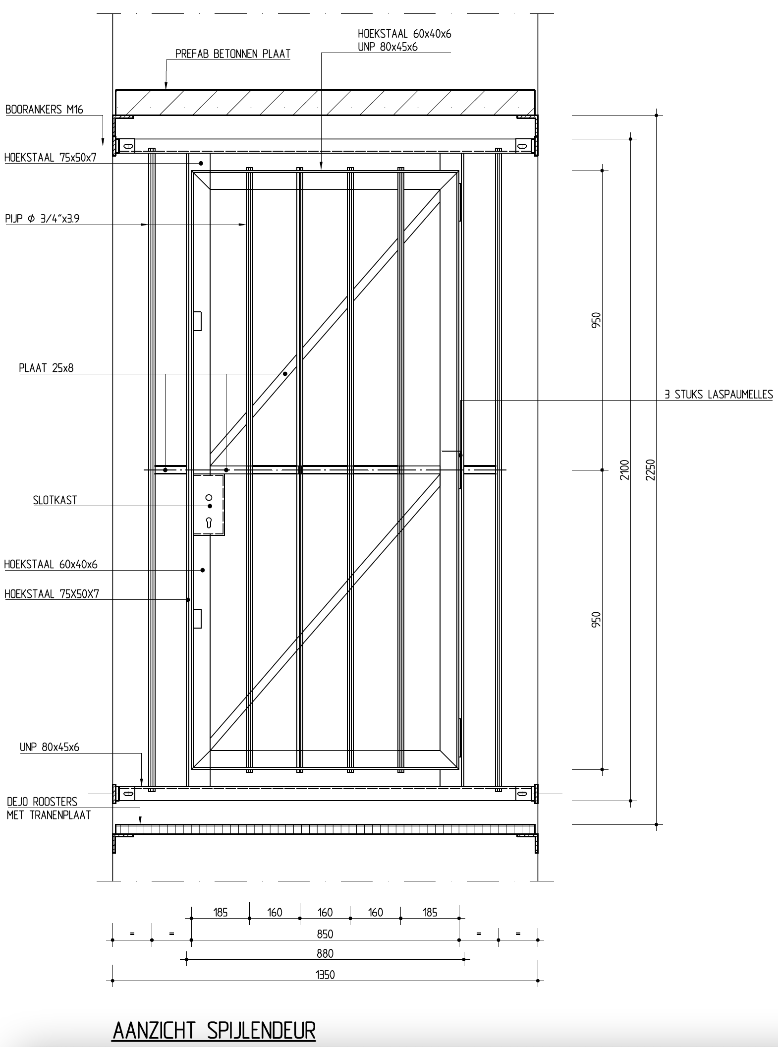
Figuur 487.1 – Aanzicht spijlendeur