Functies
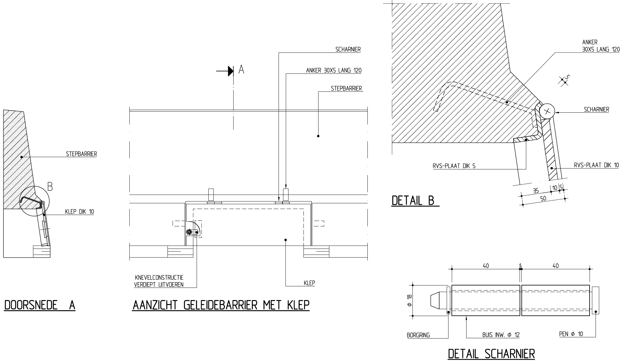
Onderbreking in de geleidebarrier t.b.v. de bereikbaarheid van de inlaatputten.
Toepassingen
De inlaatputten onder de Stepbarriers bij toepassing van ZOAB in verkeerstunnels, onderdoorgangen en aquaducten.
Detailontwerp
Er wordt een sparing in de onderzijde van de Stepbarrier gemaakt. Deze sparing wordt afgedekt met een scharnierende roestvast stalen klep met een dikte van 10 mm.
De roestvast stalen klep wordt m.b.v. een knevelconstructie geborgd aan de ingestorte roestvast stalen omranding van de geleidebarrier.
Motivering
Een goede bereikbaarheid van de inlaatputten met behoud van de verkeersgeleiding.
Conservering
De klep, knevelconstructie en omranding uitvoeren in roestvast staal.
Kennisbank
