Navigatie in het document kan op de volgende manieren geschieden:

  • Door in het linker deelvenster door te klikken van hoofdonderwerp naar subonderwerpen, totdat het gewenste subonderwerp is bereikt.
  • Door het invoeren van een zoekterm.
  • Door binnen een eenmaal geopend artikel door te klikken op hyperlinks in de tekst.

Het handboek is ingedeeld in een vijftal hoofdonderwerpen:

  • In ‘Introductie’ worden definities en terminologie vastgelegd, wordt ingegaan op de geometrie van tunnels voor verschillende doeleinden en worden bouwmethoden beschreven.
  • In ‘Ontwerpaspecten’ worden allereerst de algemene eisen en beoordelingscriteria omschreven en wordt onderscheid gemaakt tussen de ontwerpaspecten voor de uitvoering en de uiteindelijk te bouwen constructie. Hierbij komen zowel aspecten waarmee rekening moet worden gehouden, als ontwerpmethoden aan bod.
  • In ‘Ontwerpaspecten Definitieve constructie’ en ‘Ontwerpaspecten Uitvoering’ komen de best practices aan bod, waarbij voor zover mogelijk onderscheid is gemaakt tussen tijdelijke en permanente constructies. Met tijdelijke constructies wordt hier vooral verwezen naar constructies die spelen in de bouwfase, dus onder dit hoofdonderwerp zijn de verschillende uitvoeringsprincipes ook uitgebreid terug te vinden.
  • In ‘Uitvoering’ tenslotte worden het uitvoeringsproces en verschillende uitvoeringsmethoden beschreven.

Bij toepassing ZOAB

Artikel nr. 388

Doel

Het naar één of meer verzamelpunten afvoeren van hemel- en wandenwaswater.

Toepassingen

In de toeritten en in een gedeelte van de overgangsgedeelten van tunnels waar ZOAB wordt toegepast.

Detailontwerp

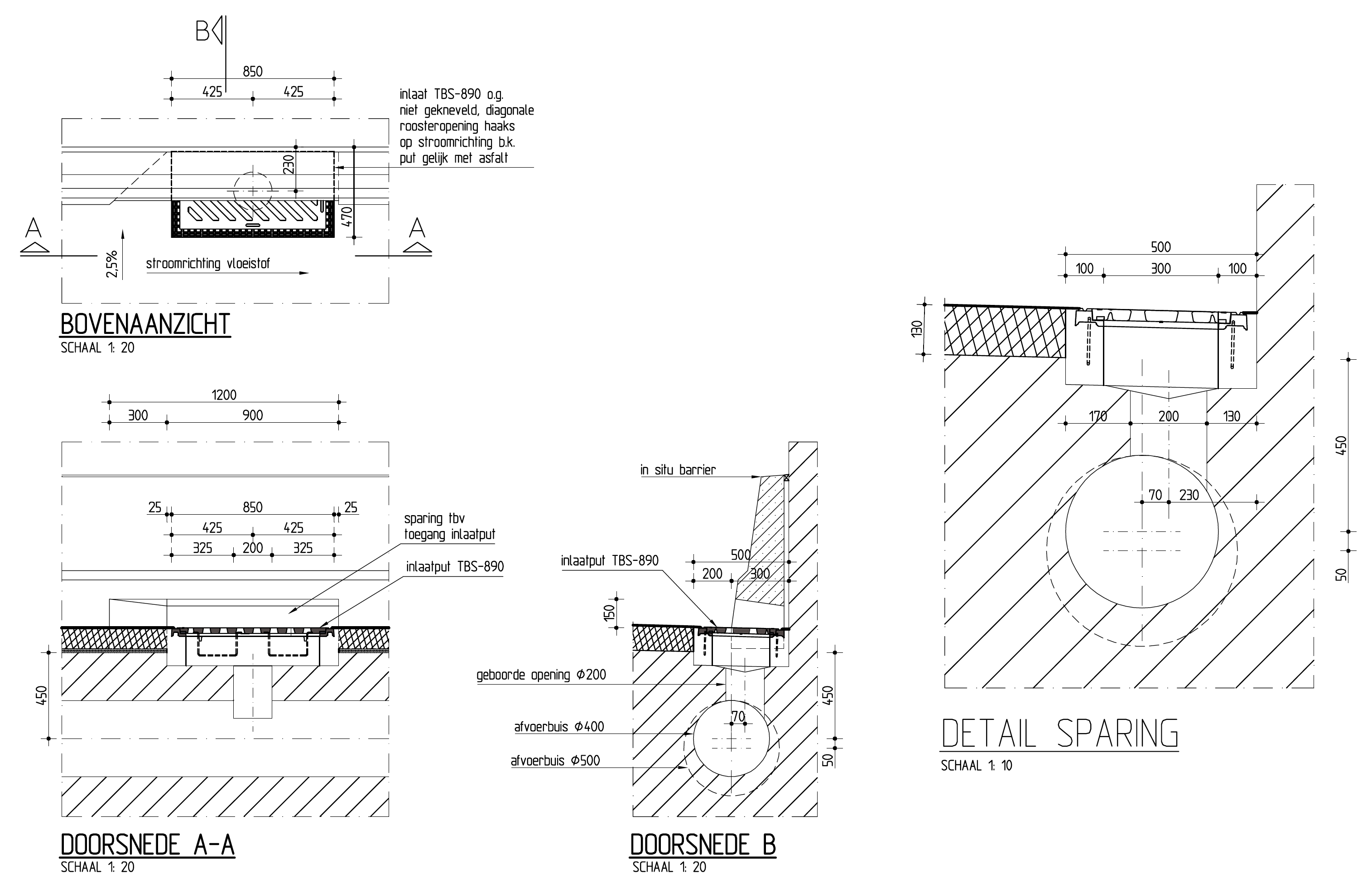
Op de rioleringsbuis wordt een bekisting aangebracht t.b.v. de sparing van het inlaatstuk. Na het storten van het beton wordt het inlaatstuk geplaatst en aangestort met krimparme cementgebonden mortel. De inlaatput wordt 20 mm onder bovenkant DAB gesteld; 1 per stortmoot, echter max. h.o.h. afstand 20 m en op opgaande hellingen niet groter dan 10 m conform de landelijke tunnelstandaard.

Aangezien de put voor het grootste gedeelte onder de geleidebarrier zit wordt de geleidebarrier voorzien van een R.V.S. klepje (zie hoofdstuk Prefabconstructies). Vanwege de bereikbaarheid wordt het scharnier van de put aan de wandzijde geplaatst.

Bij de positionering van de buis rekening houden met krachtswerking in de constructie. De hoogte van de betondrukzone dient gecontroleerd te worden alsook de dwarskrachtcapaciteit. Zo nodig de buis dieper leggen.

Figuur 388.1 - Inlaatputten bij toepassing ZOAB

Motivering

Het type straatkolkinlaat (TBS STR 838/839) wordt toegepast vanwege de afmetingen en de vlakscharnierendheid.

Berekening van de afvoer volgens de Landelijke Tunnel Standaard [90].

Conservering

Alkydhars Primer met zinkfosfaat

Aspecten ten aanzien van de RAMS-score

Tabel 388.1 - Aandachtspunten RAMS-criteria Inlaatputten (bij toepassing ZOAB).

Variant

Inlaatputten onder barrier

R

Reliability
(Betrouwbaarheid)

Goed, geen aanvullende maatregelen benodigd.

A

Availability
(Beschikbaarheid)

Goed, mits schoongehouden.

M

Maintainability
(Onderhoudbaarheid)

Goed, de inlaatrooster kunnen goed bereikt worden.

S

Safety
(Veiligheid)

Goed, geen bijzonderheden.