Klik hier om de afbeelding te vergroten (in een nieuw tabblad)
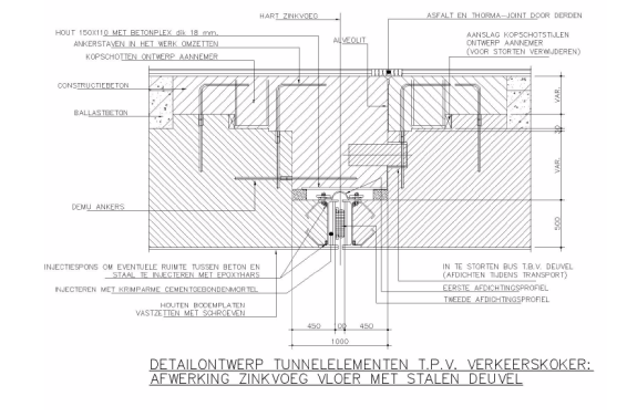
Figuur 322.1 – Detailontwerp tunnelelementen t.p.v. verkeerskoker afwerking zinkvoeg vloer met stalen deuvel