Klik hier om de afbeelding te vergroten (in een nieuw tabblad)
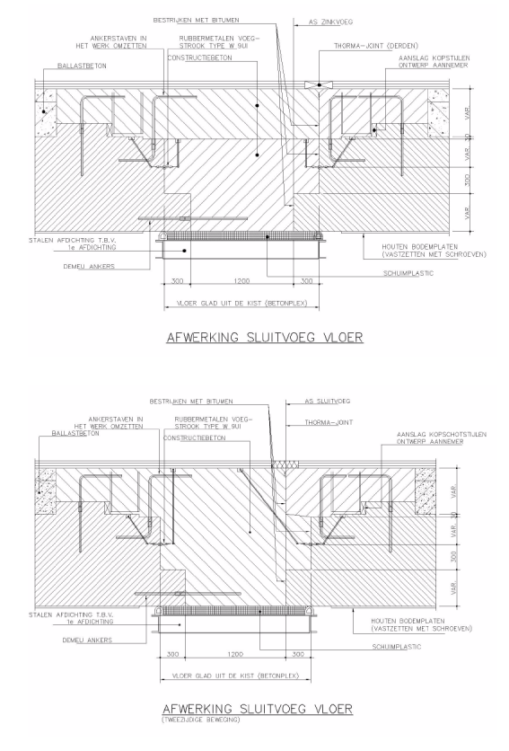
Figuur 337.1 – Afwerking sluitvoeg vloer