Klik hier om de afbeelding te vergroten (in een nieuw tabblad)
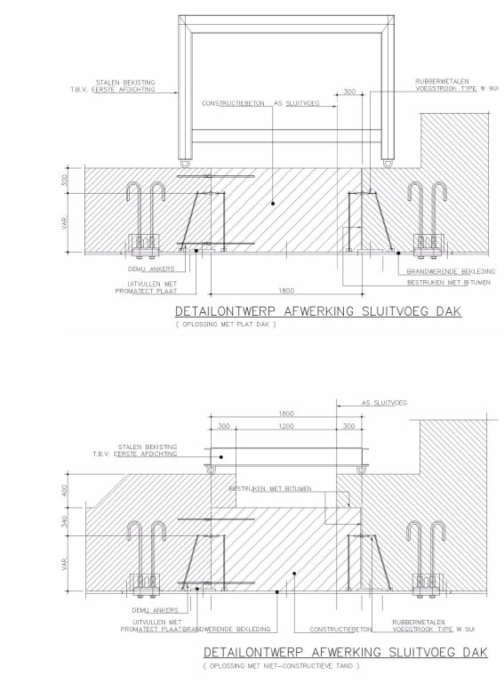
Figuur 347.1 – Detailontwerp afwerking sluitvoeg dak