Klik hier om de afbeelding te vergroten (in een nieuw tabblad)
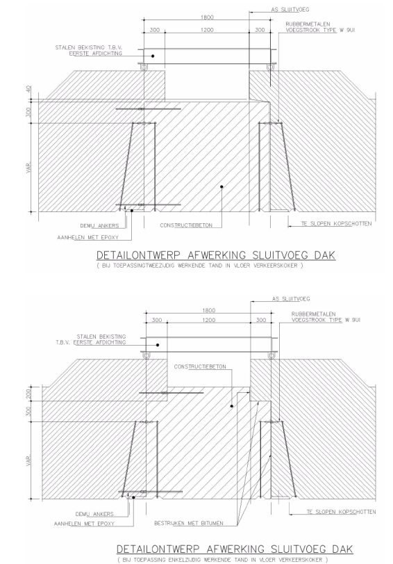
Figuur 348.1 – Detailontwerp afwerking sluitvoeg dak