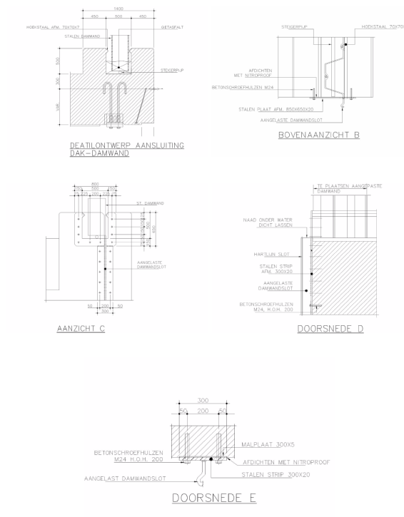
Klik hier om de afbeelding te vergroten (in een nieuw tabblad)
Figuur 354.1