Klik hier om de afbeelding te vergroten (in een nieuw tabblad)
Download het Autocad bestand
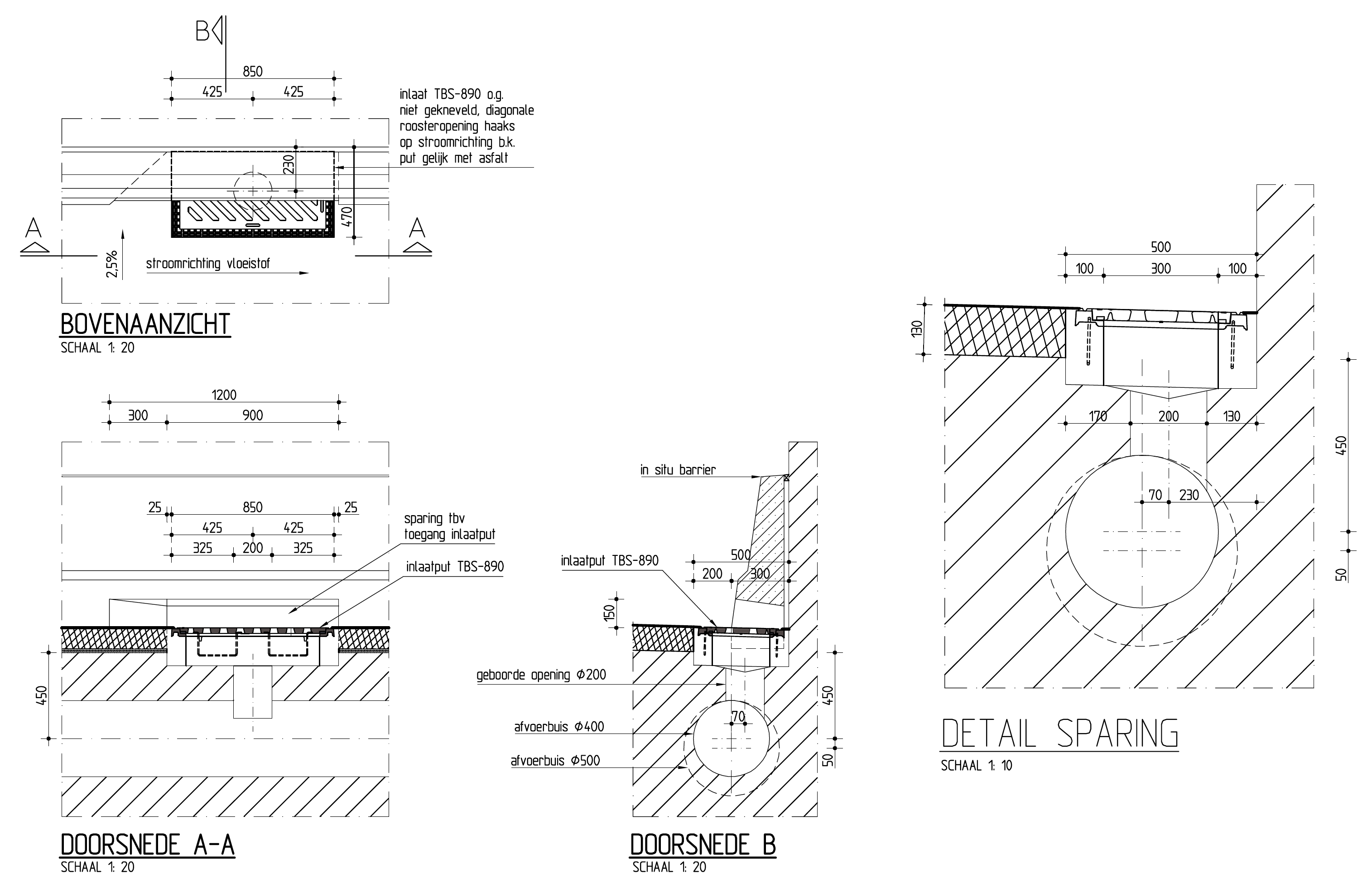
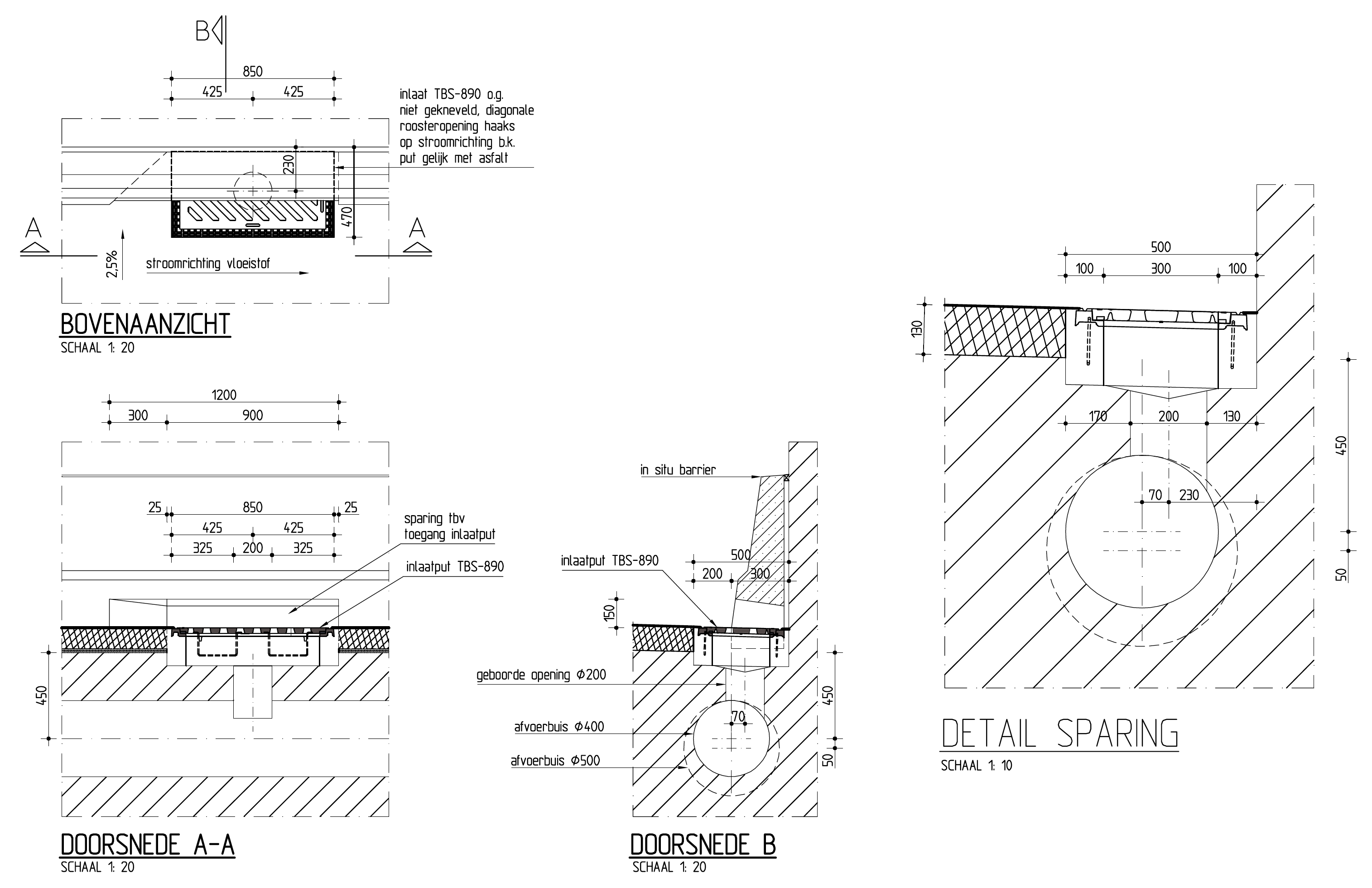
Figuur 388.1 – Inlaatputten bij toepassing ZOAB