Klik hier om de afbeelding te vergroten (in een nieuw tabblad)
Download het Autocad bestand
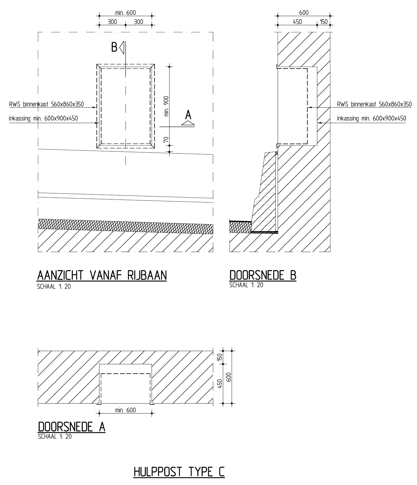
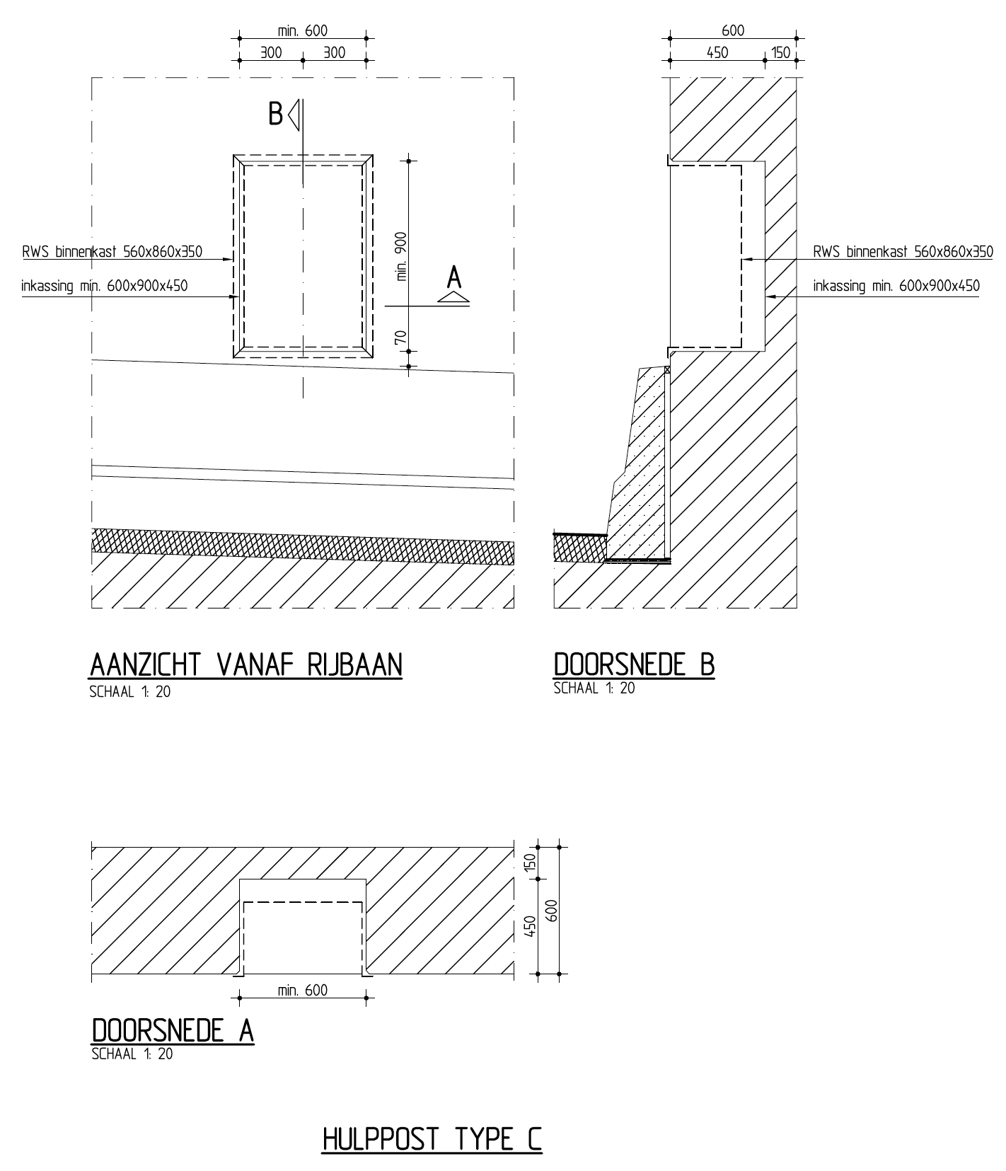
Figuur 462.1 Hulppost type C