Klik hier om de afbeelding te vergroten (in een nieuw tabblad)
Download het Autocad bestand
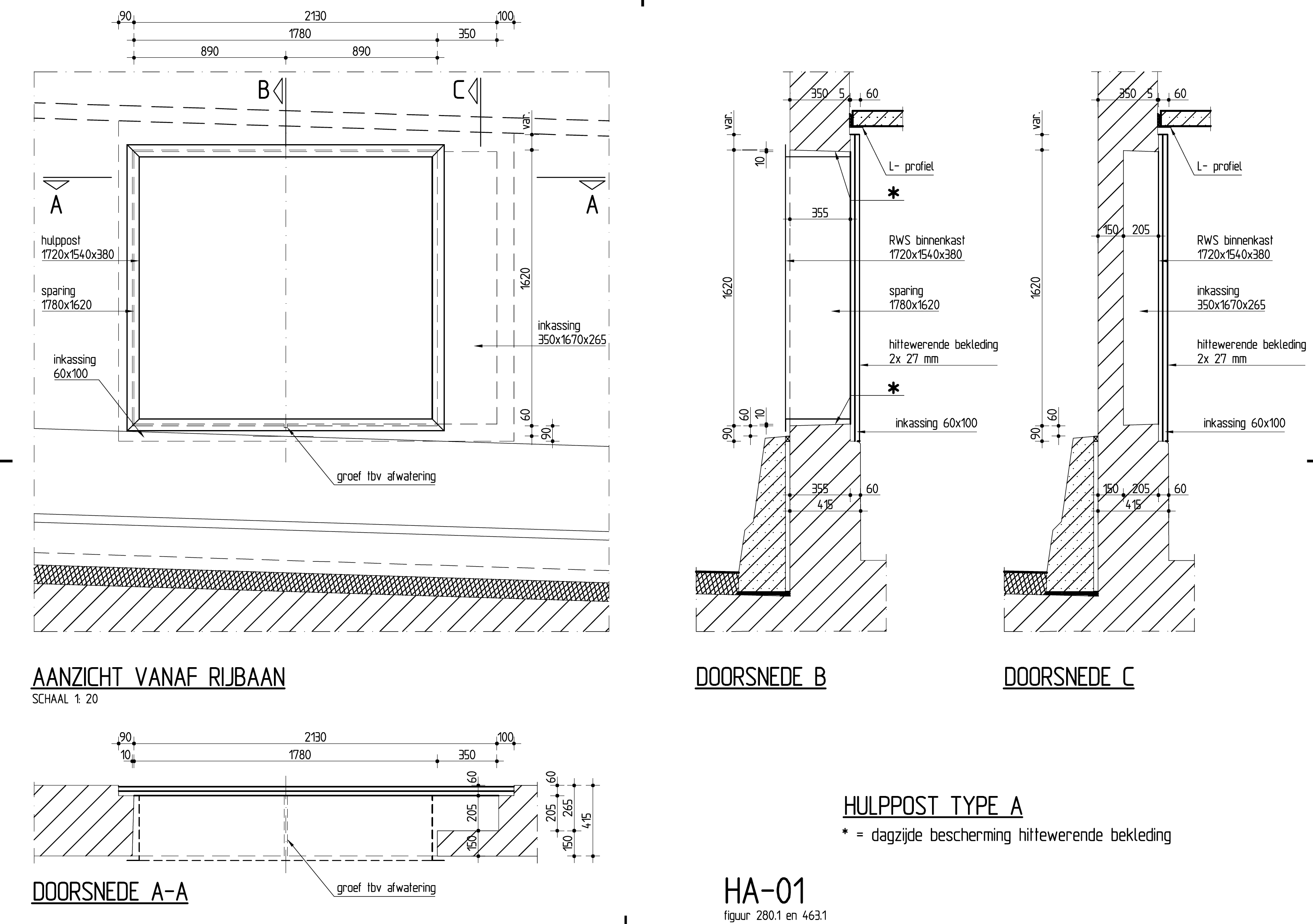
Figuur 464.1 – Details achterzijde hulppost en nis brandblusleiding