Klik hier om de afbeelding te vergroten (in een nieuw tabblad)
Download het Autocad bestand
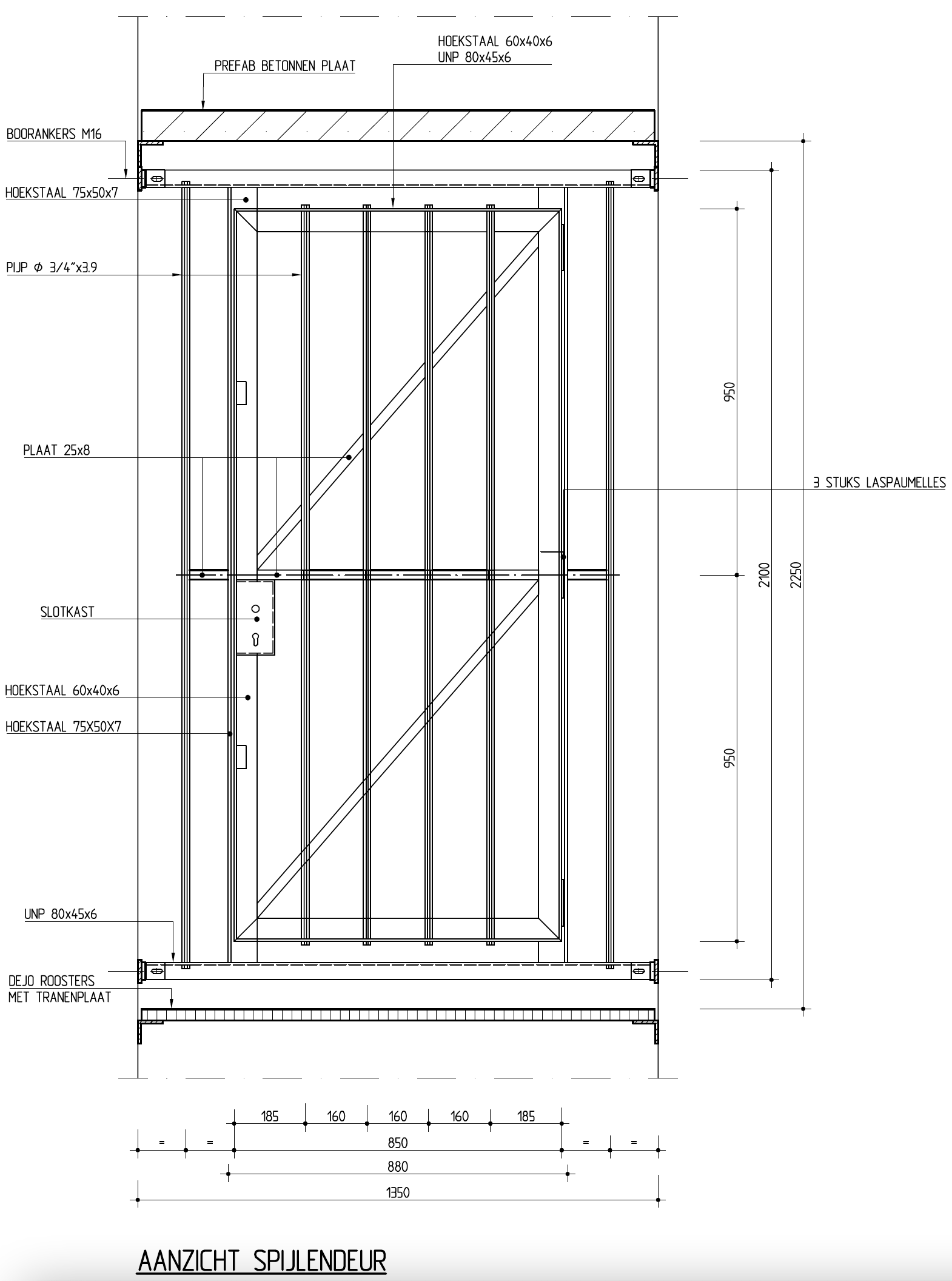
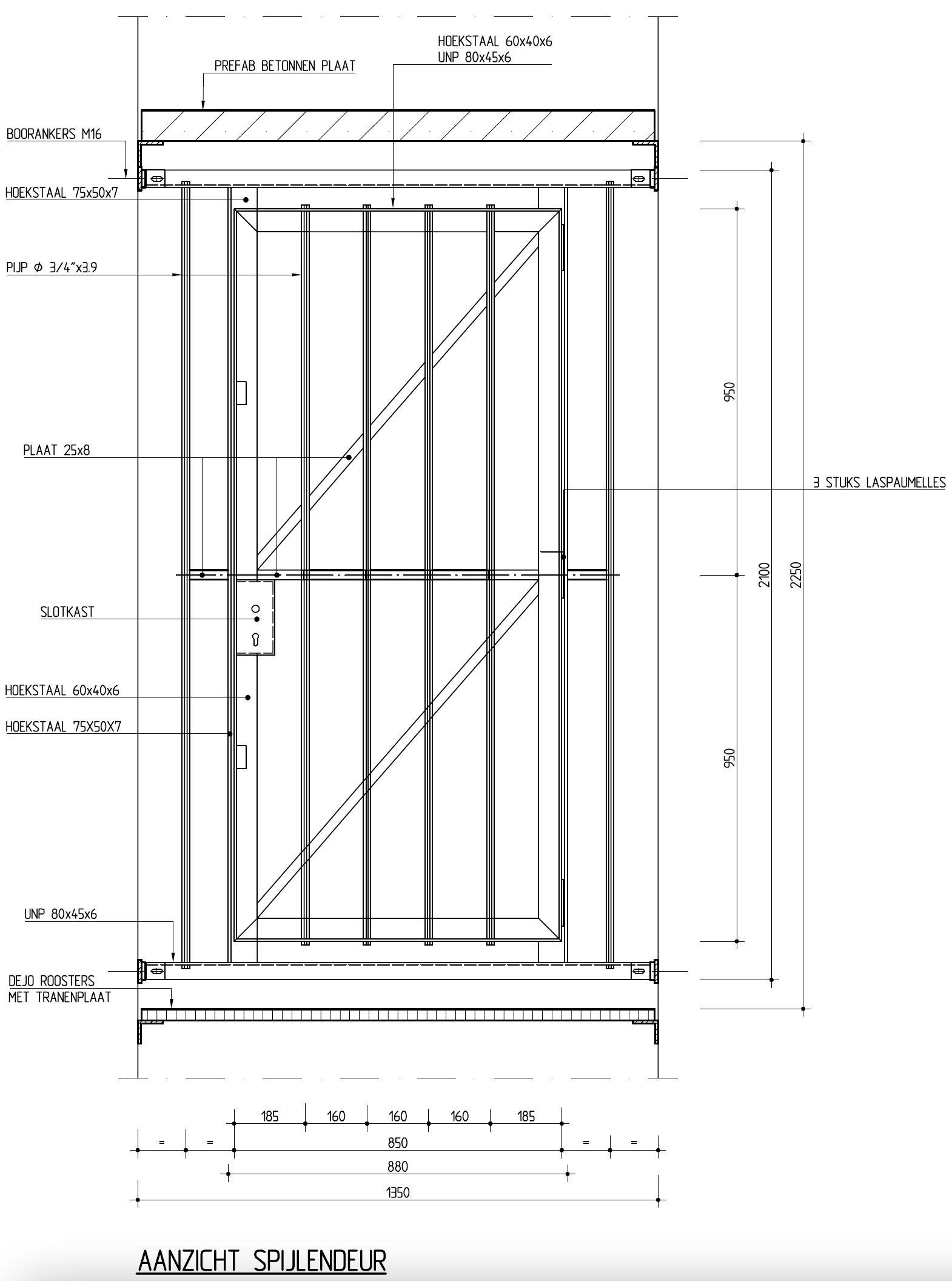
Figuur 487.1 – Aanzicht spijlendeur