Klik hier om de afbeelding te vergroten (in een nieuw tabblad)
Download het Autocad bestand
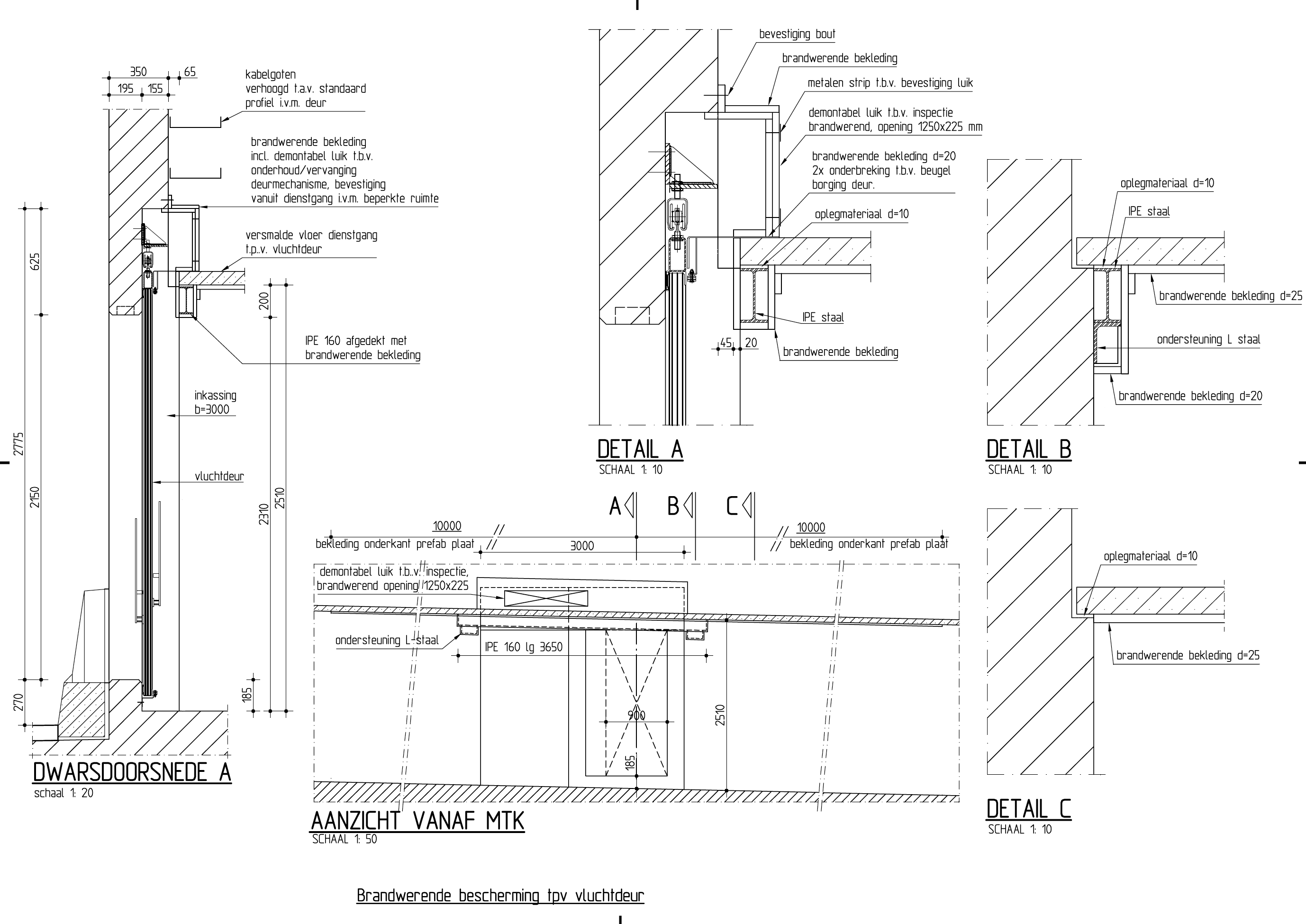
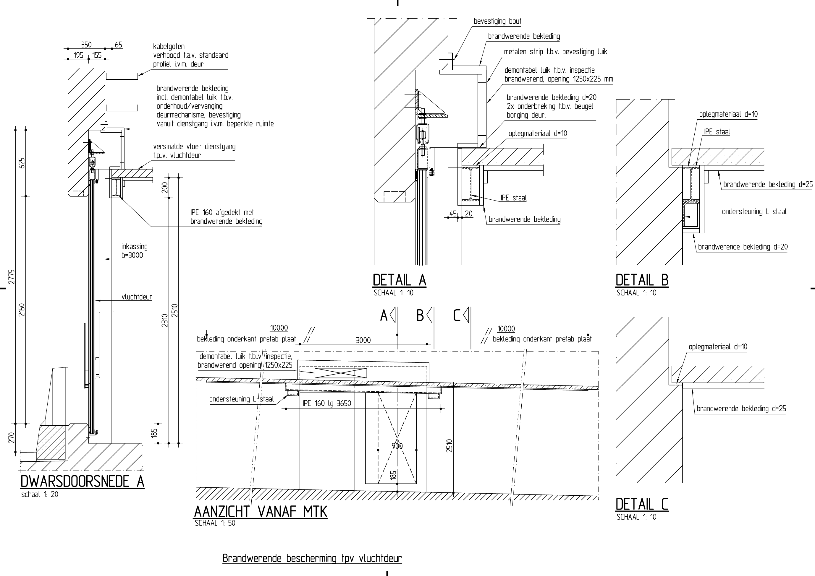
Figuur 684.1 Brandwerende bescherming t.p.v. vluchtdeur