Functie
Het verzorgen van een zuiver vlakke en maatvaste ondergrond voor de bevestiging en aansluiting van de afdichtingsprofielen (eerste en tweede afdichtingsprofielen).
Het voorzien van een bevestiging voor deze afdichtingsprofielen.
Detailontwerp
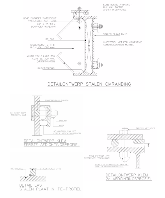
Gekozen is een standaard IPE 500 profiel. Tussen de flenzen van het IPE profiel wordt een staalplaat, dik 15 mm gelast voor bevestiging c.q. aanslag van het eerste afdichtingsprofiel.
Bevestiging rubber profiel t.b.v. eerste afdichting met een stalen U-profiel en een staalplaat. Afmetingen afhankelijk van het type rubber profiel.
Bevestiging rubber profiel t.b.v. tweede afdichting met een staalplaat met een stalen staaf voor de krachtverdeling. Afmetingen afhankelijk van het type rubber profiel.
Op de flenzen van het IPE profiel twee injectiesponzen, over de volledige omtrek opnemen, om te kunnen injecteren voor een waterdichte aansluiting. Het buitenste sponsrubber in de vloer injecteren voordat stalen plaat in IPE-profiel wordt gelast.
In dak en wanden erna.
De ruimte tussen het IPE profiel en de staalplaat moet worden geïnjecteerd met krimparme, cementgebonden mortel.
IPE-profielen voorzien van verstijvingsschotten, dik 8 mm aan de in te storten zijde t.b.v. de vormvastheid en de achterwaartse verankering in de beton. Hiertoe haarspelden door de verstijvingsschotten voeren.
De berekening en dimensionering voor de klemconstructie van het eerste afdichtingsprofiel zal door de aannemer gemaakt worden.
Alle draadeinden/moeren moeten berekend worden.
Conservering
Conservering volgens RAW.
Kennisbank
