Functies
Het verzorgen van een water- en gronddichting in de eindfase.
Toestaan van bewegingen loodrecht op het voegvlak.
Verhinderen van verschilbewegingen evenwijdig aan het voegvlak (geldt alleen bij tandconstructie).
Toepassingen
Sluitvoeg van afgezonken tunnels, die op staal gefundeerd zijn.
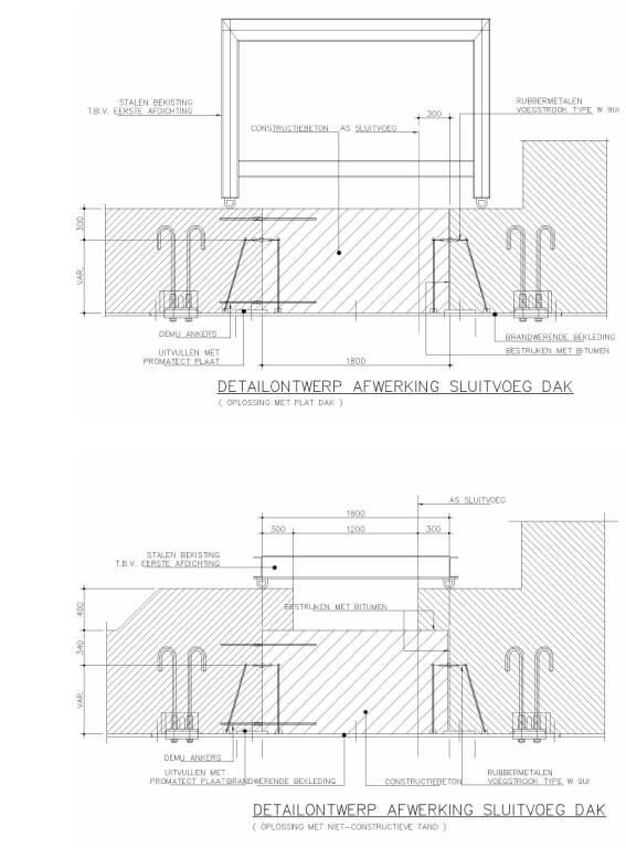
Detailontwerp
In principe hoeft in het dak geen (constructieve) tand gemaakt te worden en kan er een “plat” dak gemaakt worden.
Kan i.v.m. scheepvaart niet met een stortkoker worden gewerkt, dan een verdikking met een (niet constructieve) tand toepassen. In ieder geval de volledige betondoorsnede doorzetten.
De rubbermetalen voegstrook zo hoog mogelijk plaatsen i.v.m. spankrachten t.g.v. voorspanning.
De laag zandasfaltbitumen wordt aangebracht om indringing van vuil in de voeg tegen te gaan.
- In de stortnaad en dilatatievoeg zijn rubbermetalen voegstroken opgenomen.
- Afstand en de diameter van de ankers volgt uit berekening.
Motivering
De sluitvoeg tussen tunnelelement en landhoofd kan (meestal) m.b.v. een stortkoker worden gemaakt. Er hoeft daarom geen verdikking op het dak te worden aangebracht. Ter bescherming van de rubbermetalen voegstrook bij het transporteren van de tunnelelementen, kan worden overwogen een verdikking met een (niet constructieve) tand te maken.
Als de wiggen niet gesloopt worden maar alleen gefixeerd, dan geen Alveolit toepassen op de kopvlakken. De wiggen staan dan nl. geen uitzetting toe.
Kennisbank
