Functies
Het verzorgen van een water- en gronddichting in de eindfase.
Toestaan van bewegingen loodrecht op het voegvlak.
Verhinderen van verschilbewegingen evenwijdig aan het voegvlak.
Toepassingen
Voeg tussen tunnelelement en landhoofd bij afgezonken tunnels.
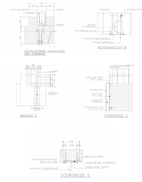
Detailontwerp
Het (laatste) element wordt uit de toerit verhaald en op zijn plaats afgezonken. Dan worden de damwanden op het dak geplaatst en de lange sluitvoegplanken langs de wanden geheid. Om beschadiging van het beton te voorkomen worden de damwanden op het dak op een steigerpijp gezet. Gietasfalt verzekert een waterdichte afsluiting. De aansluiting van de wand met de damwand wordt gemaakt via een aangelast damwandslot. Daarna wordt het element door een wigconstructie van onderwaterbeton gefixeerd tegen de onderwaterbetonvloer van de naastliggende bouwkuip. Deze bouwkuip kan nu worden drooggezet en de naastliggende moten kunnen worden gemaakt. De sluitvoeg wordt verder in den droge afgemaakt.
Motivering
Een dergelijke oplossing kan worden toegepast wanneer een tunnelelement in de toerit gebouwd wordt.
Het voordeel is dat de sluitvoegconstructie in den droge gemaakt kan worden.
Bijbehorende details
Geen
Kennisbank
