Functies
Het verzorgen van een water- en gronddichting in de eindfase. Toestaan van geringe bewegingen loodrecht op het voegvlak.
Verhinderen van verschilbewegingen, translaties en rotaties evenwijdig aan het voegvlak.
Toepassingen
Zinkvoegen van afgezonken tunnels, die op staal gefundeerd zijn.
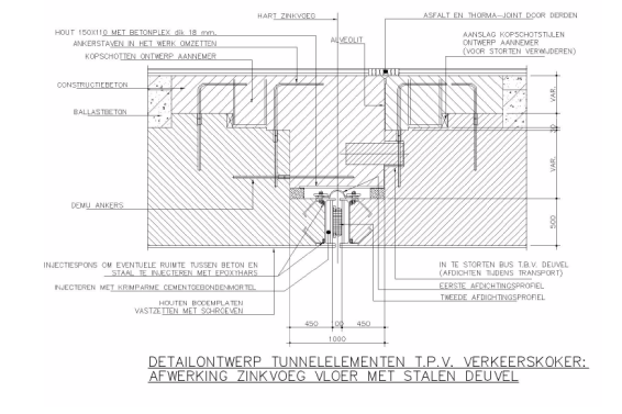
Detailontwerp
Primaire- en secundaire einde van de elementen voorzien van een stalen omranding (bv. IPE-profiel met ingelaste plaat).
Eerste afdichtingsprofiel aan primaire einde. Tweede afdichtingsprofiel (Omega-profiel). Er wordt bekisting over het Omega-profiel aangebracht ter bescherming tijdens:
- het slopen van het kopschot;
- het plaatsen en vlechten van wapening;
- het storten van beton.
Deze bekisting dient tevens om het Omega-profiel ruimte te bieden om vrij te kunnen vervormen bij initiële verschilzettingen.
Indien er voldoende hoogte is om de dwarskracht over te brengen dan wordt in de voeg van de vloer een dubbele gewapend betonnen tand gemaakt. Is deze hoogte te gering dan worden of in vloer en dak een betonnen tanden gemaakt, of er worden stalen deuvels toegepast (in secundaire einde).
Van belang is dat de tand- (of deuvel)werking in twee richtingen werkt en roteren voorkomt.
De breedte van het oplegvlak wordt bepaald d.m.v. berekening.
In het voegvlak wordt alveolit aangebracht. De dikte hiervan wordt ook d.m.v. een berekening bepaald.
De voeg wordt in het asfalt doorgezet door ook daar een voegprofiel toe te passen, zoals eventueel een Thorma Joint.

Bijbehorende details
Detail 1 Stalen omranding zinkvoeg
Detail 4 Voegovergang t.p.v. asfalt
Detail 9 Stalen aanslag in de vloer
Kennisbank