Functies
Onderbreking in de geleidebarrier t.b.v. de toegang naar de middenkelder/hoofdwaterkelder.
Toepassingen
De toegang naar de zandvang van de middenkelder/hoofdwaterkelder in verkeerstunnels, onderdoorgangen en aquaducten.
Detailontwerp
De lengte van de onderbreking wordt bepaald door de afmeting van het inlaatrooster/afdekplaat.
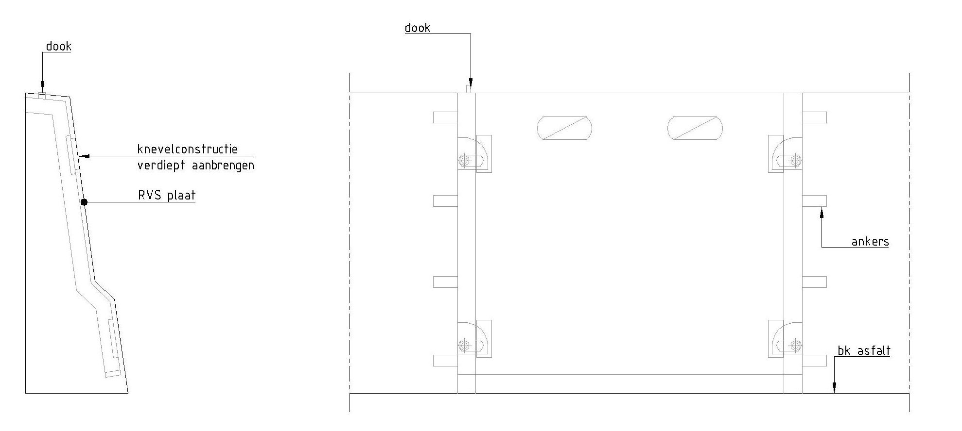
De onderbreking tussen de geleidebarriers wordt overbrugd met een 10 mm dikke RVS plaat in de buitenvorm van de geleidebarrier.
De roestvast stalen plaat wordt m.b.v. knevels bevestigd aan de ingestorte roestvast stalen omranding van de geleidebarrier.
Motivering
Een goede bereikbaarheid van de zandvang van de kelders met behoud van de verkeersgeleiding.
Conservering
De plaat, knevelconstructie en omranding uitvoeren in roestvast staal.
Kennisbank

