Navigatie in het document kan op de volgende manieren geschieden:

  • Door in het linker deelvenster door te klikken van hoofdonderwerp naar subonderwerpen, totdat het gewenste subonderwerp is bereikt.
  • Door het invoeren van een zoekterm.
  • Door binnen een eenmaal geopend artikel door te klikken op hyperlinks in de tekst.

Het handboek is ingedeeld in een vijftal hoofdonderwerpen:

  • In ‘Introductie’ worden definities en terminologie vastgelegd, wordt ingegaan op de geometrie van tunnels voor verschillende doeleinden en worden bouwmethoden beschreven.
  • In ‘Ontwerpaspecten’ worden allereerst de algemene eisen en beoordelingscriteria omschreven en wordt onderscheid gemaakt tussen de ontwerpaspecten voor de uitvoering en de uiteindelijk te bouwen constructie. Hierbij komen zowel aspecten waarmee rekening moet worden gehouden, als ontwerpmethoden aan bod.
  • In ‘Ontwerpaspecten Definitieve constructie’ en ‘Ontwerpaspecten Uitvoering’ komen de best practices aan bod, waarbij voor zover mogelijk onderscheid is gemaakt tussen tijdelijke en permanente constructies. Met tijdelijke constructies wordt hier vooral verwezen naar constructies die spelen in de bouwfase, dus onder dit hoofdonderwerp zijn de verschillende uitvoeringsprincipes ook uitgebreid terug te vinden.
  • In ‘Uitvoering’ tenslotte worden het uitvoeringsproces en verschillende uitvoeringsmethoden beschreven.

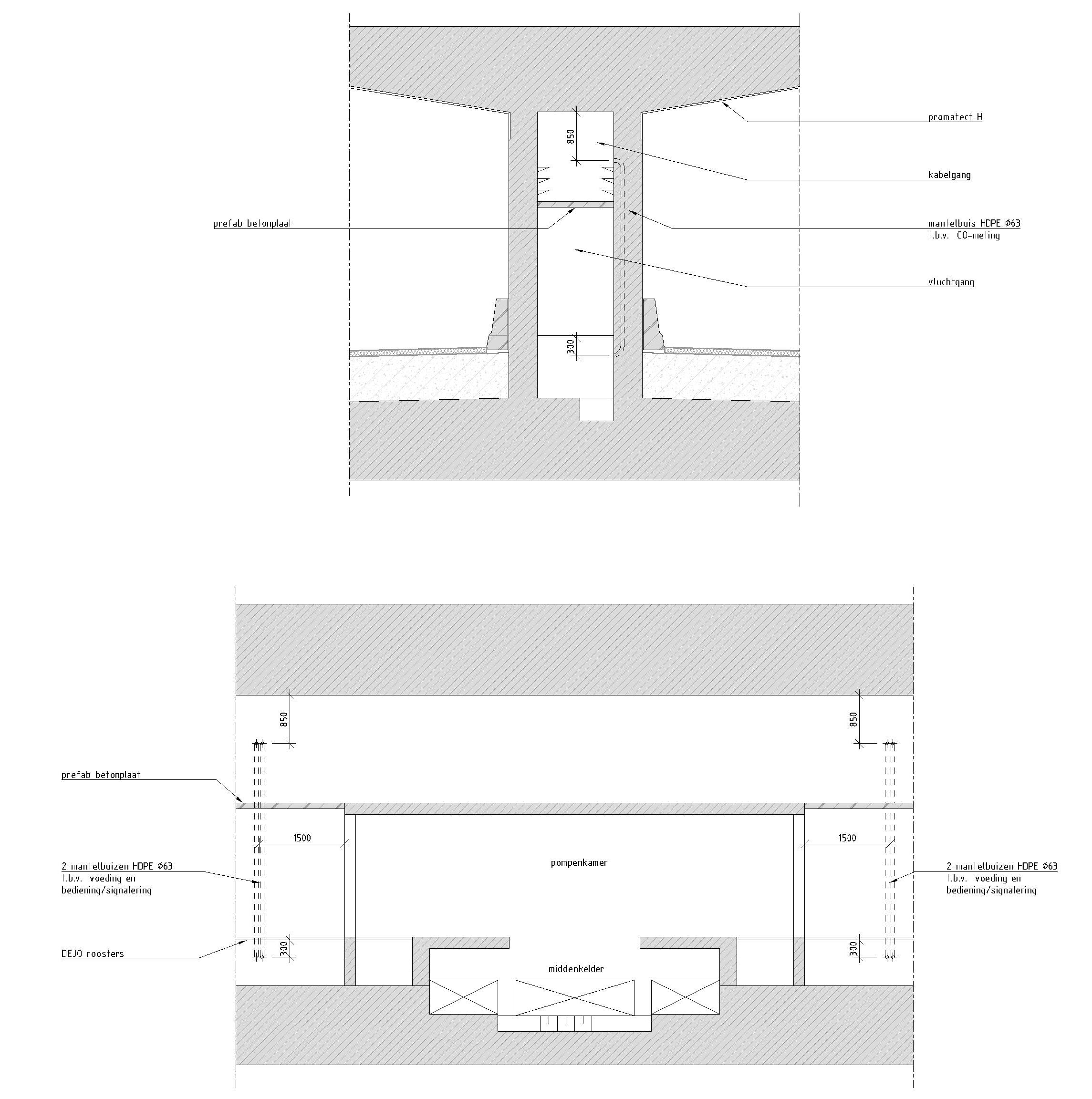
Functie

Mantelbuis ten behoeve van het doorvoeren van bekabeling.

Doel

Elektrische bekabeling ten behoeve van voeding voor lenspomp en bediening/signalering.

Detailontwerp

Zie figuur 300.1.

 

De doorvoeren lopen van de lenspomp naar de kabelgang.

De doorvoeren worden gemaakt met PE-HD- buizen Ø 63×55,8 mm.

 

Bijbehorende details en gegevens

Zie ‘Principe indeling middenpompenkamer’ in Middenpompkamer.

Figuur 300.1 - Dwars- en langsdoorsnede ter plaatse van middenpompkamer - pompput in de vloer