Navigatie in het document kan op de volgende manieren geschieden:

  • Door in het linker deelvenster door te klikken van hoofdonderwerp naar subonderwerpen, totdat het gewenste subonderwerp is bereikt.
  • Door het invoeren van een zoekterm.
  • Door binnen een eenmaal geopend artikel door te klikken op hyperlinks in de tekst.

Het handboek is ingedeeld in een vijftal hoofdonderwerpen:

  • In ‘Introductie’ worden definities en terminologie vastgelegd, wordt ingegaan op de geometrie van tunnels voor verschillende doeleinden en worden bouwmethoden beschreven.
  • In ‘Ontwerpaspecten’ worden allereerst de algemene eisen en beoordelingscriteria omschreven en wordt onderscheid gemaakt tussen de ontwerpaspecten voor de uitvoering en de uiteindelijk te bouwen constructie. Hierbij komen zowel aspecten waarmee rekening moet worden gehouden, als ontwerpmethoden aan bod.
  • In ‘Ontwerpaspecten Definitieve constructie’ en ‘Ontwerpaspecten Uitvoering’ komen de best practices aan bod, waarbij voor zover mogelijk onderscheid is gemaakt tussen tijdelijke en permanente constructies. Met tijdelijke constructies wordt hier vooral verwezen naar constructies die spelen in de bouwfase, dus onder dit hoofdonderwerp zijn de verschillende uitvoeringsprincipes ook uitgebreid terug te vinden.
  • In ‘Uitvoering’ tenslotte worden het uitvoeringsproces en verschillende uitvoeringsmethoden beschreven.

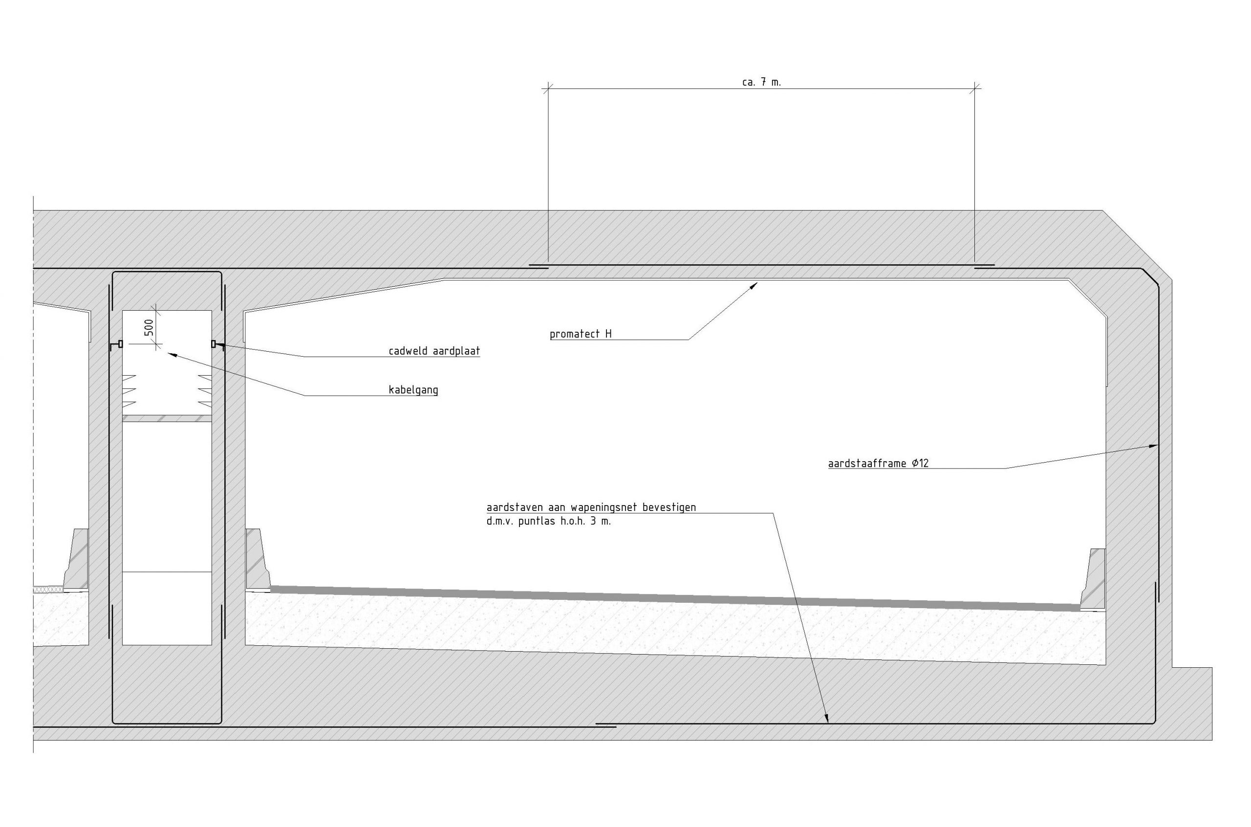
Ten behoeve van de aardingsinstallatie bij spoortunnels

Artikel nr. 288

Bij spoortunnels is de aarding en het elektrisch doorverbinden van verschillende tunnelmoten nodig om stap- en aanrakingsspanningen aanvaarbaar laag te houden en om zwerfstroomproblematiek te beheersen. Hiervoor wordt verwezen naar de regelgeving van ProRail, namelijk OVS00053-9 [21] en 5.10 van OVS00201 [24]. Voorbeelden zijn gegeven op de bijlagen 1 en 2.

Figuur 288.1 - Doorsnede aardstaaf dwarsframe Ø 12 mm

Figuur 288.2 - Aanzicht middenwandkanaal

Figuur 288.3 - Bovenaanzicht middemtunnelkanaal (C = aardplaat)

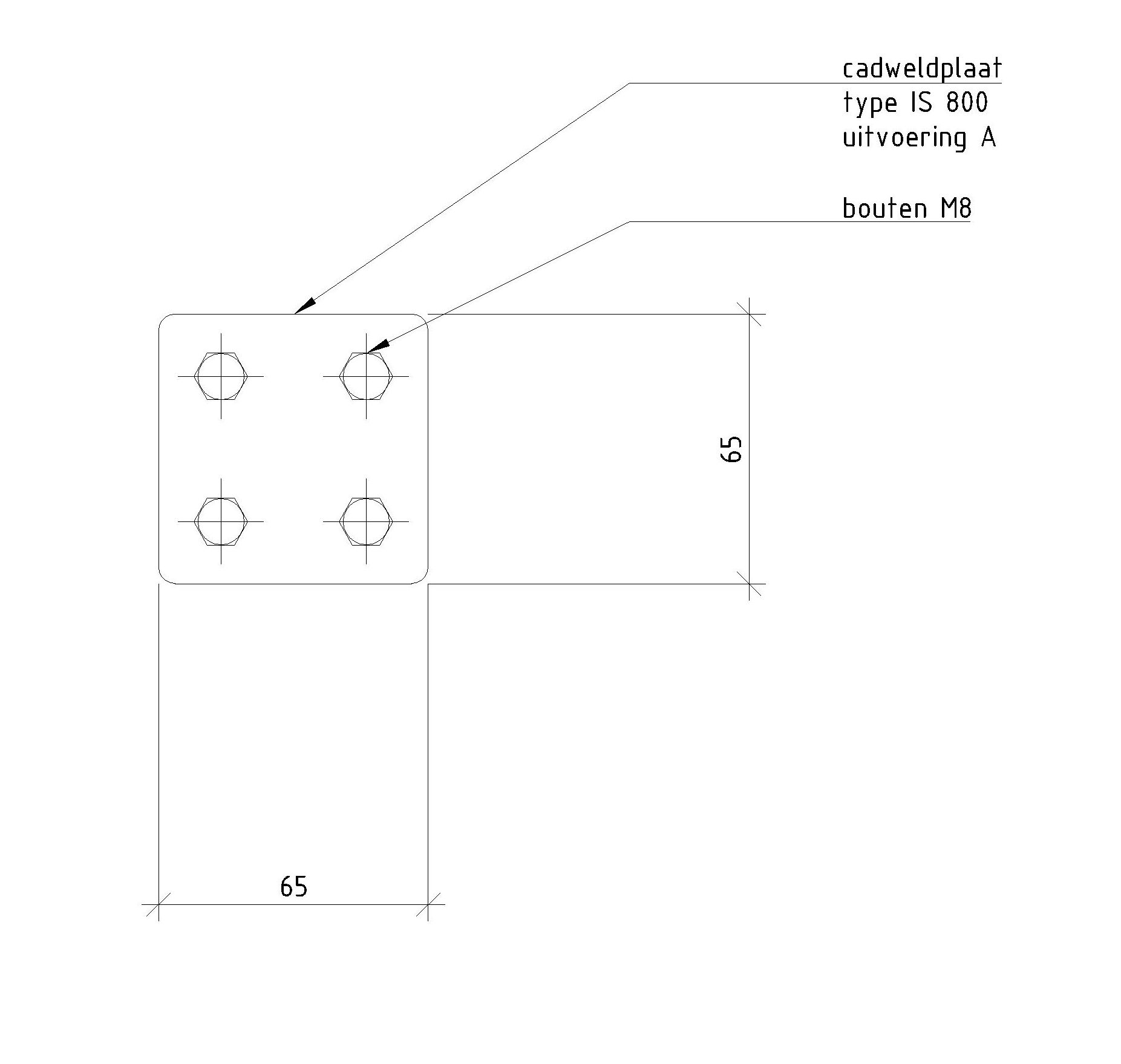
Figuur 288.4 - Detail aardplaat (anker is niet getekend)