Naast de bestaande Coentunnel in de rondweg van Amsterdam, die het Noordzeekanaal kruist, is de 2e Coentunnel gebouwd. Onder het kanaal is de tunnel als afgezonken tunnel gerealiseerd. De toeritten zijn in een bouwkuip van stalen damwanden en een onderwaterbetonvloer gebouwd met een betonnen constructievloer en voorzetwanden voor de damwanden. Bij de ondiepe delen van de toerit kon de onderwaterbetonvloer achterwege blijven. Het cut & cover deel van de tunnel is binnen de bouwkuip als een monoliete betonnen koker gebouwd. Het vloeistofafvoersysteem is gerealiseerd met ingestorte leidingen en inlaatputten. Het water wordt verzameld in hoofdkelders voor de toeritten en een middenkelder op het diepste punt.
HWA-leidingen en inlaatkolken
De kolken zijn in de toerit met een zijaansluiting aangesloten op de afvoerleiding die in het beton is gestort op enige afstand van de wand. Dit is gedaan om de krachtswerking in de vloer bij de aansluiting met de wand niet te verstoren. In de toeritten is ZOAB toegepast. Het inlaatrooster zit dan diep ten opzichte van het wegdek. Om te voorkomen dat een wiel deze verdieping inrijdt wordt het inlaatrooster verholen onder de barrier geplaatst. Voor het openen van het inlaatrooster is de barrier voorzien van een stalen klep die scharnierend kan worden geopend.
Ten behoeve van de opvang en afvoer van lekwater door- of langs de damwand is elke 20 meter een afvoerbuis Ø80 mm voorzien naar de inlaatput vanuit de goot die is gerealiseerd in de koppelbalk met de damwand.
HWA-leiding in dilatatievoeg
Om enige beweging in de dilatatievoeg mogelijk te maken wordt een mofverbinding toegepast om de langsbeweging te accommoderen. Om verticale vervorming door verkeersbelasting of zettingsverschillen op te vangen wordt de HWA-buis over een meter omwikkeld met Airex, 20 mm dik. Aan de andere zijde van de voeg wordt de HWA-buis vast ingestort. De toerit is op palen gefundeerd waardoor verschilvervormingen over de voeg beperkt zullen zijn, kleiner dan 10 mm, waardoor de vervormingscapaciteit van de Airex omwikkeling voldoende is.
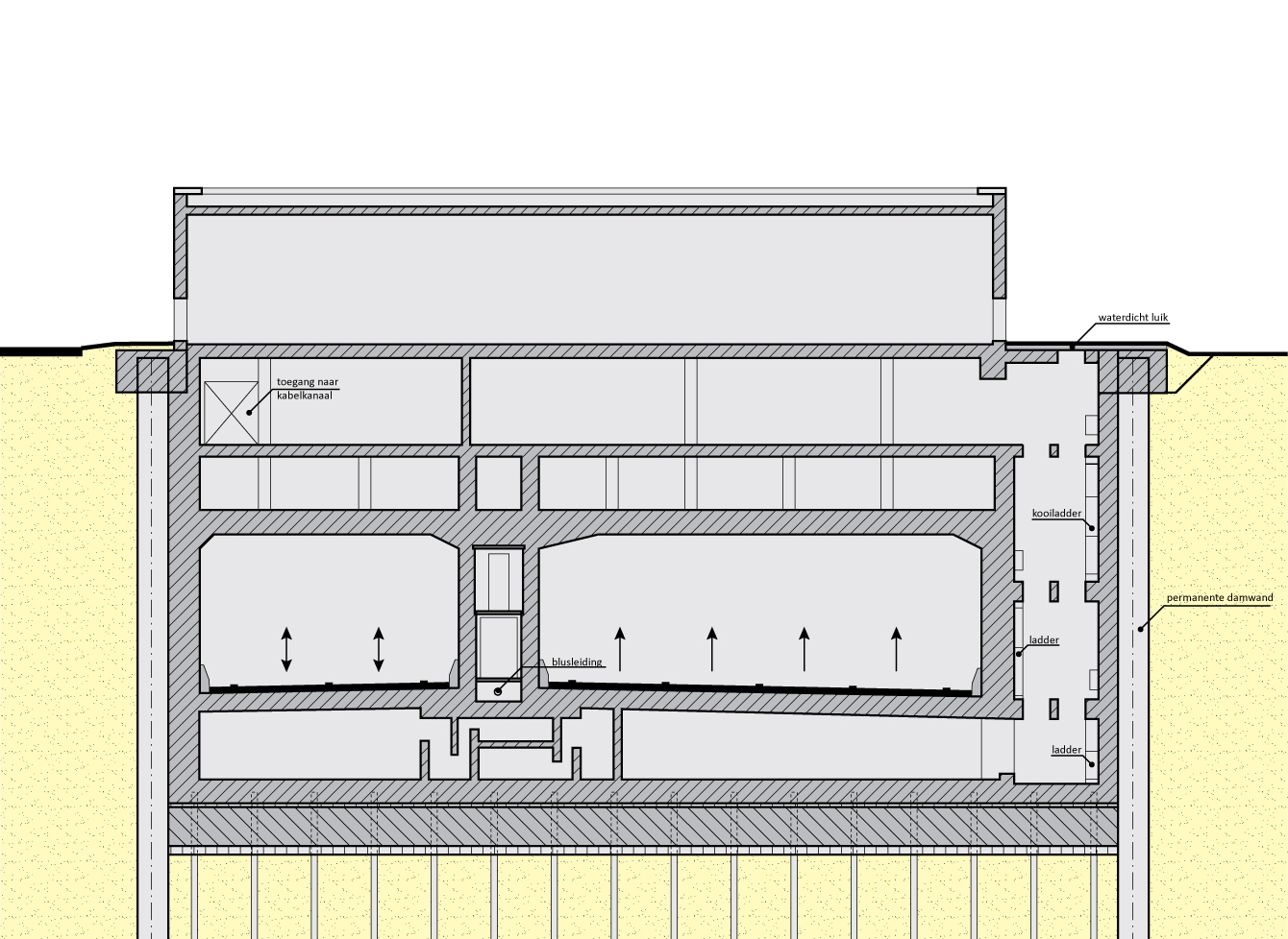
Waterkelders
Bij beide tunnelportalen zijn hoofdkelders gepositioneerd onder de dienstgebouwen. Via het kelderniveau is een schacht bereikbaar naar de pompenruimte, die naast de verkeerskoker gelegen is. De kelders zijn uitgevoerd conform het verbeterd gescheiden stelsel. De kelder is voorzien van een scheiding van het schone water (schoonwaterberging) en het vuile water (vuilwaterberging). Het volume is gebaseerd op de hoeveelheid neerslag op de verharde weg van de toerit volgens de Extreme-neerslagcurven voor de 21e eeuw van Meteoconsult met een herhalingsfrequentie van 1/250 jaar. De capaciteit van de vuilwaterberging is groter dan 30 m³, het volume vloeistof dat bij een calamiteit kan vrijkomen. Er is dan ook geen risico dat het vlottersysteem, dat het verbeterd gescheiden systeem stuurt, in actie komt en aldus vervuilde vloeistoffen in de schoonwaterberging leidt.
Onderstaand in schema de werking van het afvoersysteem. Het water dat afgevoerd wordt van de open toerit van de westbuis en de middenkelder loost op de zandvang van de westbuis en stroom vervolgens uit in de vuilwaterkelder. Het water van de oostbuis komt uit in een aparte zandvang en waterslot. Dit om te voorkomen dat er kortsluiting ontstaat tussen de tunnelbuizen. Vanuit de vuilwaterkelder wordt met een tweetal pompen het vuile water afgevoerd naar de gemeentelijke riolering. Nadat de vuilwaterkelder gevuld sluiten de vlotterkleppen en stroomt het water via een zandvang en waterslot naar de schoonwaterkelder. Vanuit de schoonwaterkelder pompen drie alternerend geschakelde pompen het water naar het Noordzeekanaal. De pompenruimte is aan de oostzijde van de tunnel gesitueerd en is via een trappenhuis bereikbaar vanuit de benedenverdieping van het dienstgebouw. Vanaf maaiveld kunnen via een waterdicht luik op dezelfde schacht zware materialen naar beneden worden gehesen.
De zandvangen zijn gesitueerd naast het middentunnelkanaal. Deze zijn bereikbaar via een toegangsluik van 800 mm en kunnen worden leeggepompt met zuigleidingen DN65 van verzinkt staal. De HWA-leidingen steken in de waterkelder over van hun positie bij de buitenwand naar de zandvangen. In de verzamelruimte zijn per tunnelbuis twee vlotterkleppen voorzien met een diameter van 450 mm. Als de vuilwaterkelder gevuld is, sluiten deze vlotterkleppen en stroom het overige water in de schoonwaterkelder.
Kennisbank






