Introductie

Artikel nr. 1 (bevat geen inhoud, zie onderliggende artikelen)

Inleiding

Artikel nr. 2

Dit handboek gaat in op algemene aspecten betreffende ontwerp en uitvoering van rail- en wegtunnels (inclusief langzaam verkeer tunnels).

 

Doel van dit boek is ontwerpers en bouwers van tunnels te ondersteunen, door inzicht te bieden in alle aspecten die komen kijken bij ontwerp en realisatie en tevens bestaande potentiële oplossingen in de vorm van ‘best practices’ te tonen. Het is daarmee bedoeld als een naslagwerk voor professionals en niet zozeer als leerboek.

 

De inhoud is gebaseerd op het handboek Specifieke Aspecten TunnelOntwerp: (SATO) 2006 [86], aangevuld met specifieke kennis van railtunnels. Daarnaast zijn ervaringen uit de periode 2006 tot heden verwerkt. Op basis van kennis van deskundigen is zoveel mogelijk de ‘State of the art’ van de tunnelbouw vastgelegd, waarbij herhaling van tekst uit andere beschikbare documenten is vermeden, tenzij het om niet openbaar verkrijgbare documenten gaat. Waar nodig en relevant wordt wel naar andere documenten verwezen.

 

Het handboek behandelt primair de civiele constructie van de tunnels inclusief het wegontwerp in tunnels. Expliciet wordt er in dit handboek niet gerefereerd aan verkeers- en tunneltechnische installaties; de relevante ontwerpeisen van deze installaties zijn in separate richtlijnen vanuit de eigenaren van de verschillende modaliteiten (Rijkswaterstaat, ProRail, Gemeentelijke vervoerbedrijven) vastgelegd. Verder zijn alle ontwerpuitgangspunten die expliciet betrekking hebben op het afzinkproces (OTAO) van afzinktunnels (het ‘oude’ SATO hoofdstuk 8) niet uitputtend opgenomen in dit handboek.

 

Boortunnels komen in de huidige uitgave van dit handboek nog niet voor. Het document beperkt zich vooralsnog tot cut-and-covertunnels en in beperkte mate afzinktunnels.

 

Het handboek is gemaakt door en voor de participanten van het COB en zal tevens door een permanente COB-commissie worden beheerd. Gebruikers kunnen input leveren aan deze commissie via het gebruikersforum. Het is de uitdrukkelijke wens van de samenstellers dat dit handboek een levend document zal zijn, dat op elk moment een zo goed mogelijke afspiegeling van de ‘State of the art’ laat zien.

 

 

Integraliteit: Geen tunnelvisie in de visie op tunnels

Artikel nr. 678

Dit handboek bevat ’best practices’ die beschrijven hoe de tunnel er ‘onder de motorkap’ uit moet zien om effectief en veilig te kunnen worden gebruikt. Maar dat is niet genoeg!
In deze paragraaf vragen we u om, met het oog op de toekomst, een tunnel te zien als meer dan een technische constructie met een beperkte functie.

Een integrale visie maakt meer haalbaar en betaalbaar

Met het oog op de betaalbaarheid zal in de toekomst steeds vaker het toevoegen van extra functies van doorslaggevend belang zijn in de haalbaarheid van ondergrondse constructies zoals tunnels. Alleen zo zal waarde creatie op langere termijn kunnen plaatsvinden, denk aan duurzame energievoorziening, koppeling met recreatie, gebiedsontwikkeling e.d. De discussie over de haalbaarheid strekt zich inmiddels ook verder uit dan alleen de nieuwbouwfase. Onder andere door gebruik te maken van levensduurbenaderingen, (zoals LCC) en contractvormen (zoals DBFM) wordt (een deel van) de levenscyclus van een tunnel in de afweging meegenomen. Aandachtspunt daarbij is dat deze benadering voldoende rekening moet houden met toekomstige onzekerheden en hierop kan inspelen. Opdrachtgevers zullen actief vragen om voorzieningen die aanpasbaar zijn bij wijzigende omstandigheden, nieuwe inzichten of nieuwe technieken. Kortom, het is in het belang van het realiseren van de huidige primaire functie (mobiliteit, transport, opvang/opslag), dat nut en noodzaak van een tunnel vanuit een integrale visie worden aangevlogen. De renovaties van de ca. 60 tunnels die we komende decennia voorzien, kan hiertoe kansen geven.

Dat neemt niet weg dat dit handboek in de huidige samenstelling primair bedoeld is voor de aanleg van nieuwe tunnels. Voor de renovatie van bestaande tunnels kan uiteraard uit dit document worden geput, er zullen echter vaak concessies moeten worden gedaan jegens de richtlijnen (en de wettelijke bepalingen) van deze tijd. Gezien de geschetste toenemende aandacht voor renovaties is het echter niet ondenkbaar dat daar in de toekomst een deel van dit handboek aan gewijd gaat worden.

Een integrale visie heeft oog voor uitdagingen van de toekomst

Naast de problemen die we met de aanleg van een tunnel willen oplossen (bereikbaarheid, mobiliteit, meervoudig ruimtegebruik, kwaliteit op maaiveldniveau), ontstaan er ook potentiële nieuwe uitdagingen. De aanleg van nieuwe tunnels en de renovatie en/of aanpassing van bestaande tunnels hebben invloed op het landschap, de ondergrond, de waterhuishouding, de luchtkwaliteit en veroorzaken hinder en tijdelijke beperking van de bereikbaarheid. Ook die uitdaging vraagt om een integrale visie, omdat belangrijke maatschappelijke opgaven in hun geheel moeten worden beschouwd. Denk daarbij aan zaken zoals het ondergronds ruimtegebruik in de stad, de verbinding van ondergrond/bovengrond, minder hinder en sneller bouwen. Hetzelfde geldt voor de technische uitdagingen die nog voor ons liggen, zoals ondieper bouwen en gebruik van de bodem als bouwplaats (smart soils, versterkte bodem, werken in dik water).

Een integrale visie = een duurzame visie

Een integrale visie op tunnels is gebaseerd op de uitgangspunten voor duurzame ontwikkeling, omdat daarin alle aspecten aan de orde komen waar het in bovengenoemde maatschappelijke vragen en uitdagingen om gaat. De reikwijdte van het begrip duurzaamheid is voor dit handboek bepaald op basis van de negen duurzaamheidsaspecten zoals benoemd in het Inspiratiedocument Duurzaamheid [87] (gratis te downloaden via cob.nl). Dit document is in 2014 samengesteld door het experteam dat duurzaamheidscriteria voor aanleg en beheer van de Rotterdamsebaan heeft ontwikkeld. Deze criteria zijn:
1. functiecombinaties en flexibiliteit;
2. landmark;
3. maatschappelijke participatie en kennisborging;
4. social fairness;
5. geluid;
6. luchtkwaliteit;
7. natuurlijke inpassing;
8. grondstoffengebruik;
9. energie.

Een integrale visie vraagt om durvers, denkers en doeners

Voor het ontwikkelen van een integrale visie op tunnels binnen uw organisatie kunt u niet vroeg genoeg beginnen en niet breed genoeg kijken. Organiseer eens een sessie met de kinderen van uw medewerkers, haal een kunstenaar, historicus, stedenbouwkundige of gamer bij uw team. Investeer in durvers (mensen die innovatief naar oplossingen zoeken), denkers (mensen die problemen zien maar ze ook willen oplossen) en doeners (mensen die in de praktijk weten wat werkt en wat niet). Zoek nieuwe samenwerkingsvormen, nieuwe oplossingen en durf over uw eigen horizon heen te kijken en de discussie aan te gaan als u denkt dat het beter of anders kan. Wij wensen u veel succes, inspiratie en een integrale visie toe!

Afbakening en definities

Artikel nr. 4 (bevat geen inhoud, zie onderliggende artikelen)

Tunnel en Tunnelconstructie

Artikel nr. 5

In de Richtlijn Ontwerp Kunstwerken [27] is een definitie van het begrip tunnel opgenomen die betrekking heeft op wegtunnels. Als deze definitie wordt uitgebreid tot railtunnels ontstaat de volgende omschrijving:

‘Een tunnel is een civiel-technische constructie die onderdeel is van een weg of railverbinding bij kruising met een andere weg, spoorweg, waterweg of een terreinverdieping, waarbij grond en/of (grond)water moet worden gekeerd en/of een overdekt gedeelte van meer dan 80 m ontstaat voor de onderdoorgaande weg of railverbinding.’

Opgemerkt wordt dat de lengte van 80 m in de ROK arbitrair is gekozen. Vermoedelijk komt deze grens voort uit het criterium voor het al dan niet moeten maken van een afweging op basis van: [LIT]  ‘Beslismodel brandbare stoffen door tunnels of via omleidingen’ van TNO uit 1986.  Bij een maximale gesloten lengte van 80 m draagt het risico door het transport van gevaarlijke stoffen namelijk slechts marginaal bij aan het groepsrisico voor overige weggebruikers.

Aan een tunnel waarvan het langst omsloten gedeelte langer is dan 250 m worden aanvullende eisen gesteld (bron: Wet Aanvullende Regels Veiligheid Wegtunnels [88]). Voor Rijkswegtunnels zijn deze regels nader gespecificeerd en aangevuld in de Landelijke Standaard RWS Tunnelsysteem [90]. Voor spoortunnels wordt verwezen naar de OVS 00030 richtlijnen.

Met het begrip ‘tunnelconstructie’ wordt in dit handboek het geheel van tunnel en toeritten bedoeld.

Het handboek is van toepassing op de volgende typen, naar vorm ingedeelde constructies:

Op basis van indeling naar bouwwijze komen in Nederland de volgende typen tunnels voor:

De eerstgenoemde 3 categorieën worden in dit handboek afgedekt; boortunnels (vooralsnog) niet.

Voor de bouw van een cut and cover tunnels en toeritten bestaan verschillende uitvoeringsvarianten. De volgende worden in dit handboek behandeld (zie voor een beschrijving met toelichting Uitvoeringsprincipes):

In het handboek zijn ook de bij het ontwerp van een constructie behorende beschouwing van de uitvoeringsaspecten en tijdelijke constructies meegenomen., Voor zover die essentieel zijn voor de veilige maakbaarheid van de constructie dienen deze een integraal onderdeel van het ontwerp te zijn. De gangbare uitzondering hierop is de bekistingsconstructie, die in het algemeen geen direct onderdeel uitmaakt van het civiele ontwerpproces. De reden hiervoor is dat het ontwerp van een bekisting meestal zonder directe afhankelijkheid van de gekozen constructievariant ontworpen en gemaakt kan worden, waardoor het ontwerp van de bekisting doorgaans geen knelpunt vormt.

Definities

Artikel nr. 6

In dit artikel worden veel voorkomende begrippen binnen de tunnelbouw verklaard, evenals typen wegconstructies. De weergave van de definities sluit zo dicht mogelijk aan op de officiële weergave volgens de Van Dale. De bijbehorende tekeningen geven schematisch aan hoe de constructie eruit kan zien.

De tunnels die in dit handboek worden behandeld kunnen naar type gebruik worden ingedeeld in railtunnels en wegtunnels.

(Gedeeltelijk) omsloten wegconstructies zijn naar geometrie in groepen onder te verdelen. Elke groep heeft zijn eigen specifieke veiligheidsaspecten met de daarbij behorende inrichting. De groepen wegconstructies zijn:

 

 

 

Lange gesloten constructies – Tunnels

Artikel nr. 7

Tunnels zijn lange gesloten kunstwerken ten behoeve van lijninfrastructuur. De doorsnede kan zowel rechthoekig (cut & cover tunnel, afgezonken tunnel) als rond (boortunnel) zijn, zoals aangegeven in figuur 7.4. Afhankelijk van wat zich boven de tunnel bevindt kunnen deze worden ingedeeld in de volgende typen:

Tunnels ten behoeve van andere modaliteiten dan weg- en spoorverkeer, zoals bijvoorbeeld fiets- en leidingentunnels, worden in dit handboek niet expliciet behandeld. Uiteraard neemt dat niet weg, dat diverse hier beschreven uitvoeringsprincipes en detailleringen wel degelijk toepasbaar kunnen zijn voor dat soort tunnels.

Figuur 7.1 - Tunnel onder een watergang

Figuur 7.2 - Tunnel onder maaiveld

Figuur 7.3 - Tunnel boven maaiveld

Figuur 7.4 - Rechthoekige en ronde tunneldoorsnede

 

Korte gesloten constructies

Artikel nr. 8

Dit zijn korte gesloten kunstwerken ten behoeve van een weg of spoorweg. figuur 8.1 t/m figuur 8.2 tonen achtereenvolgens:

Figuur 8.1 - Aquaduct

Figuur 8.2 - Onderdoorgang

Voor de veiligheidsvoorzieningen in korte gesloten constructies in (Rijks-)wegen zijn door Rijkswaterstaat ‘Richtlijnen Veiligheidsvoorzieningen verdiepte wegen, korte overkappingen en gedeeltelijk gesloten Constructies’ (RVC) opgesteld. Dit document is nog niet openbaar vrijgegeven maar wordt wel al in projecten gebruikt t.b.v. het opstellen van eisen. Voor spoortunnels wordt verwezen naar de OVS 00030 -3.

Gedeeltelijk gesloten constructies

Artikel nr. 9

Dit zijn deels gesloten rechthoekige kunstwerken ten behoeve van een weg of spoorweg. figuur 9.1 en figuur 9.2 tonen achtereenvolgens:

 

Figuur 9.1 - Doorsnede overkapte bakconstructie

 

Figuur 9.2 - Doorsnede luifelconstructie


 Voor de veiligheidsvoorzieningen in korte gesloten constructies in (Rijks-)wegen worden door Rijkswaterstaat ‘Richtlijnen Veiligheidsvoorzieningen verdiepte wegen, korte overkappingen en gedeeltelijk gesloten Constructies’ (RVC) opgesteld. Volgens de huidige planning is dat document medio 2017 beschikbaar.

Open bak constructies

Artikel nr. 10

Deze constructies, die ook wel ‘zijwaarts afgesloten constructies’ worden genoemd, zijn open rechthoekige kunstwerken ten behoeve van een weg of spoorweg. figuur 10.1 t/m figuur 10.3 tonen achtereenvolgens:

Figuur 10.1 - Verdiepte weg- langsdoorsnede

Figuur 10.2 - Verdiepte weg - dwarsdoorsnede

Figuur 10.3 - Weg voorzien van geluidsschermen (valt buiten de scope van dit handboek)

Terminologie

Artikel nr. 11 (bevat geen inhoud, zie onderliggende artikelen)

Veel voorkomende termenien

Artikel nr. 12

Algemeen

Tabel 12.1 - Veel voorkomende termen algemeen

Referentieperiode:
De periode die wordt gebruikt ter bepaling van de karakteristieke belastingen op het bouwwerk.
Ontwerplevensduur:
De periode waarbinnen de constructie kan worden behouden met behoud van het geëiste veiligheidsniveau, uitgaande van normaal onderhoud.
Bakconstructie:
Een U-vormige constructie, al dan niet verdiept gelegen, ten behoeve van een weg of spoorweg.
Toerit:
Het constructieonderdeel dat de aansluiting verzorgt van de weg op maaiveld naar de tunnel, het aquaduct, de onderdoorgang of verdiepte weg.
Dienstengebouw:
Een gebouw, op of naast een kunstwerk, waarin de elektro-mechanische installaties van het kunstwerk zijn opgesteld.
Bedieningsgebouw:
Een gebouw waarin alle functies van de elektromechanische installaties bestuurd en bewaakt worden.
Centrale bediening:
Een combinatie van bediening van meerdere objecten, soms verkeerscentrale genoemd.
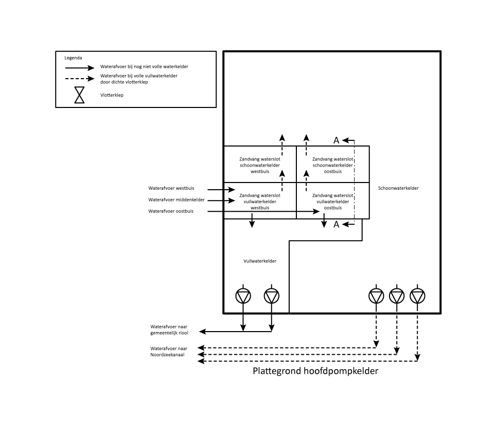
Waterkelder:
Een ruimte waarin hemelwater, in de tunnel gelekt grondwater en al dan niet tijdens calamiteiten door voertuigen verloren vloeistoffen, tijdelijk opgeslagen worden.
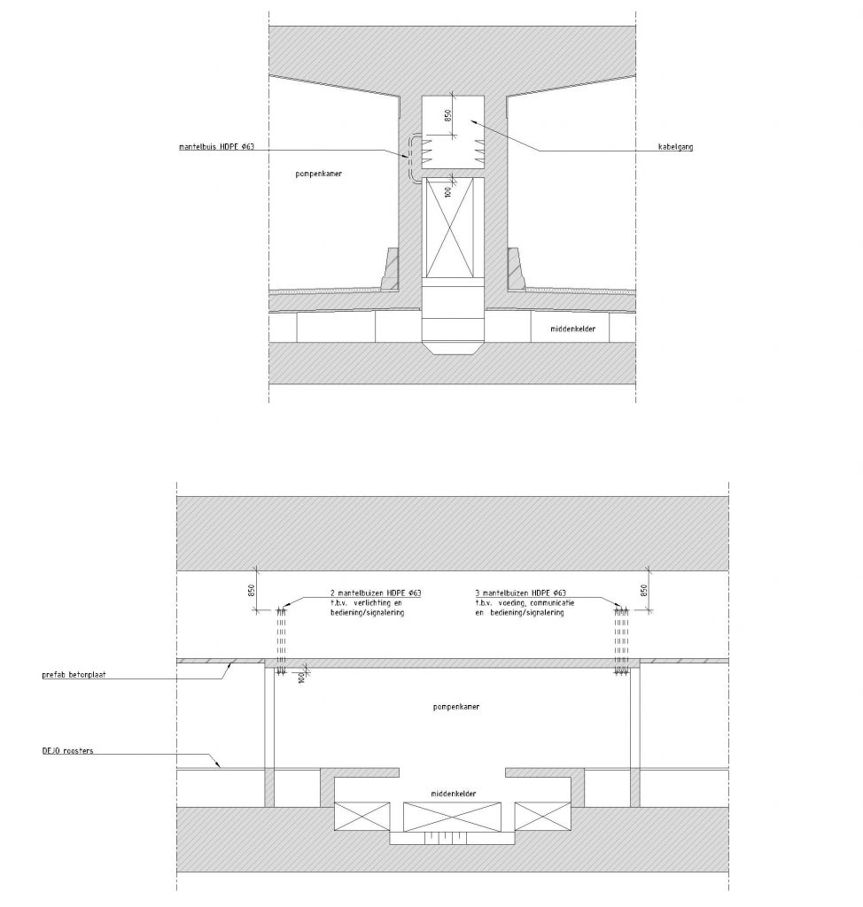
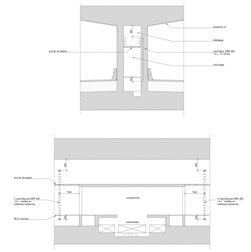
Pompenkamer:
Een droge ruimte, meestal boven de waterkelder, waarin de voorzieningen voor de pompinstallatie zijn opgenomen.
Ingangs- en uitgangsportaal:
Locatie waar de tunneltoerit overgaat in het gesloten deel.
Tunnelmond:
Einde van het gesloten tunneldeel.
Middentunnelkanaal:
Kanaal tussen twee tunnelbuizen in, meestal in gebruik als vluchtweg en als kabelkanaal.
Middenpompkelder:
Waterkelder gecombineerd met pompenkamer, die zich meestal in het gesloten deel van de tunnel bevindt.
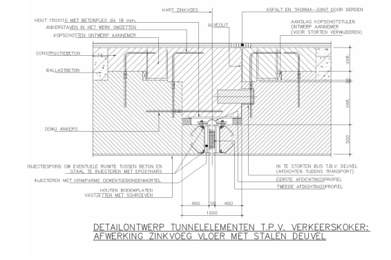
Mootvoeg: Voeg, bedoeld om uitzetting en krimp en rotatie door zettingsverschillen van aansluitende moten op te vangen. Een rubbermetalen voegstrook zorgt voor de waterdichtheid van deze voeg.
Verdeuveling: Voorziening om dwarskrachtverschillen t.p.v. de voegen op te nemen, door middel van het overdragen van dwarskrachten.

In relatie tot afgezonken tunnels

Tabel 12.2 - Veel voorkomende termen, specifiek in relatie tot afgezonken tunnels

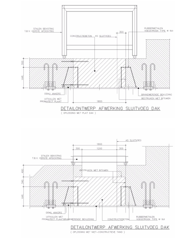
Tunnelelement:
Een af te zinken tunneldeel, dat d.m.v. transport over water naar de plaats van afzinken wordt getransporteerd en na afzinken waterdicht wordt aangesloten op het landhoofd of een eerder afgezonken tunneldeel. Een afgezonken tunnel kan uit één of meerdere tunnelelementen bestaan.
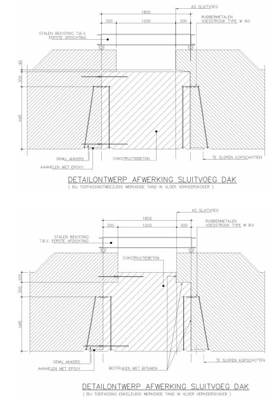
Zinkvoegen:
Voeg, cq. aansluitvlak tussen tunnelelementen onderling of tussen tunnelelement en landhoofd. De combinatie van gina- en omegaprofiel zorgt voor de waterdichtheid tussen de tunnelelementen.
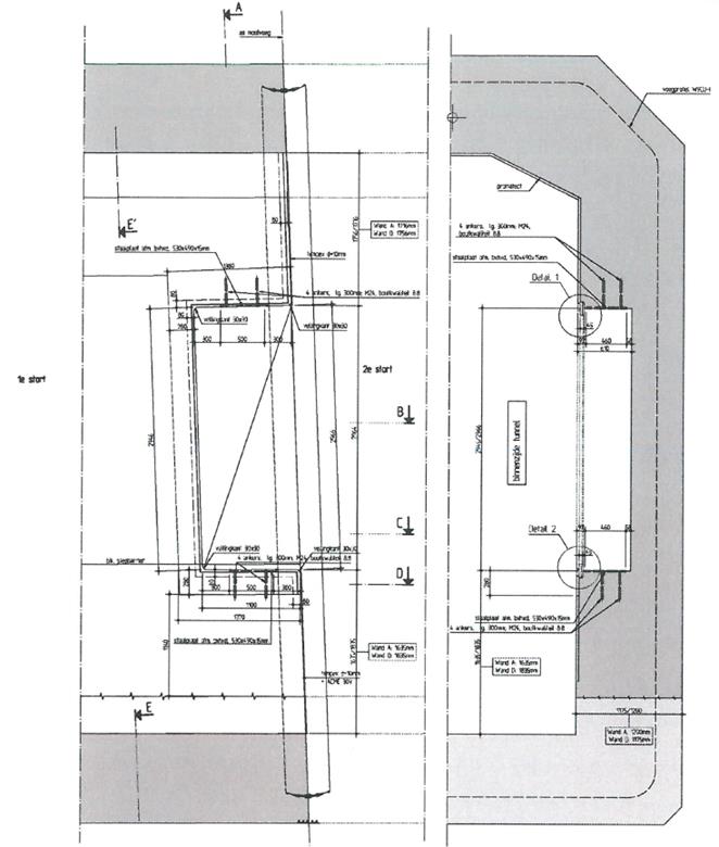
Sluitvoeg:
Laatste zinkvoeg, met extra ruimte t.b.v. de manoeuvreerbaarheid van het laatst af te zinken tunnelelement.
Tunnelmoten:
Aparte delen waaruit een tunnelelement is opgebouwd. Tussen de verschillende tunnelmoten van één tunnelelement bevinden zich mootvoegen.
Kraagconstructie:
Spie-mof verdeuveling langs de omtrek van de doorsnede.
Tandconstructie:
Gelokaliseerde verdeuveling t.p.v. de wanden van de doorsnede.
Onderstroomlaag:
Funderingsbed van een afgezonken tunnel, aangebracht d.m.v. het onderstromen met zand.
Onderspoellaag:
Funderingsbed van afgezonken tunnel, aangebracht d.m.v. onderspoelen met zand (wordt heden ten dage niet meer toegepast).
Grindbed:
Fundering van afgezonken tunnel op grindruggen.
Bouwdok:
Inrichting,waar in den droge tunnelelementen gebouwd worden en die vervolgens onder water te zetten is, zodat de tunnelelementen drijvend naar de afzinksleuf kunnen worden getransporteerd.
Afzinksleuf:
Verdieping in de bodem van de waterweg waarin de tunnelelementen worden afgezonken.
Ballastbeton:
Laag beton op de vloer van de tunnel, die er in de gebruiksfase mede voor zorgt dat het verticale evenwicht verzekerd is.
Vulbeton:
Na het afzinken aangebrachte betonnen bescherming van de waterafdichtende rubberen profielen bij zink- en sluitvoegen.

 

Begrippen ten aanzien van veiligheid

Artikel nr. 13

Geometrische profielen

Artikel nr. 14

Een tunnel maakt deel uit van lijnvormige infrastructuur zoals een weg of een railverbinding. Het geometrische profiel van deze lijnvormige infrastructuur bepaalt daarmee in belangrijke mate de vorm en afmetingen van de tunnel. Onderstaande artikelen beschrijven het geometrische profiel waarbij onderscheid is gemaakt naar:

 

 

Wegen

Artikel nr. 15

Bij het ontwerp van een weg spelen vele aspecten een rol. Steeds meer wordt gevraagd om een integraal ontwerp van de weg met de omgeving. Vanzelfsprekend spelen hierbij zowel economische, verkeerskundige, planologische als milieutechnische aspecten een rol. Al deze aspecten maken deel uit van het overkoepelende proces van het tot stand komen van wegen. Het planningsproces bij het tot stand komen van (hoofd)wegen is ontleend aan het Meerjarenprogramma Infrastructuur Ruimte & Transport (MIRT) [91].

 

In het MIRT zijn de verkenning-, planstudie- en realisatiefasen onderscheiden, waarbinnen zich zowel bestuurlijke als technische processen afspelen.

 

Belangrijk om te beseffen is dat tijdens het totstandkomingsproces van (hoofd)wegen in het bestuurlijke proces verschillende keuzes worden gemaakt die leidend (en bindend) zijn voor het technische proces. Binnen het technische proces vindt onder meer het wegontwerpproces plaats.

 

In de volgende artikelen wordt nader ingegaan op de ontwerprichtlijnen van autosnelwegen en niet-autosnelwegen.

 

 

Ontwerprichtlijnen autosnelwegen

Artikel nr. 16

Richtlijnen voor het ontwerp van autosnelwegen worden hier niet uitgebreid omschreven omdat deze zijn gegeven in de ROA 2014 (Richtlijn Ontwerp Autosnelwegen) [54]. Deze richtlijn is de opvolger van de NOA uit 2007 [53].

In de ROA2014 is een apart hoofdstuk opgenomen met specifieke aspecten ten aanzien van verkeerstunnels. In uitzondering hierop zijn er bijvoorbeeld bij A2Maastricht (Koning Willem Alexander tunnel) enkele bijzonderheden met betrekking tot het wegontwerp in tunnels aan het licht gekomen. Deze zijn:

1.    Verkantingsovergangen

2.    Hoe om te gaan met zichtbreedte i.r.t. PvR

3.    Afstand tot de tunnelwand

Ad 1).   Doordat er bij de tunnel A2 Maastricht verkantingsovergangen in de tunnel aanwezig zijn, is over een bepaalde lengte de minimale dwarshelling niet aanwezig. Dit heeft invloed op het afstromen van eventueel gevaarlijke vloeistoffen op het wegdek in het geval van een calamiteit met een tankauto. Er moet derhalve in dergelijke gevallen een berekening van de plasgrootte bij de maximale gatgrootte worden gemaakt, om vooraf te kunnen voorzien in maatregelen voor het afvoeren van gevaarlijke stoffen. Voorts moet in de testfase een uitstroomproef worden uitgevoerd om te controleren of de plasgrootte daadwerkelijk binnen de grenzen van het toelaatbare valt en om de berekening te verifiëren.

Ad 2).   Vanwege de relatief krappe bochtstralen in de Koning Willem Alexander tunnel is er zichtverbreding toegepast in de A2-tunnelbuizen. Om er nu voor te zorgen dat deze aanvullende rijstrookbreedte niet wordt bereden, is er sergeantmarkering aangebracht, gecombineerd met een akoestische kantstreep (blokjes markering), waardoor voertuigen ontmoedigd worden om deze strook te berijden. Belangrijke reden om deze strook niet te berijden, is dat boven deze strook booster-ventilatoren hangen, die zich enkele centimeters in het PvR van 4,7 m hoogte bevinden. Een overweging zou kunnen zijn om opnieuw een ‘getrapt’ PvR in te voeren, zoals dit in de jaren ’70 en ’80 ook werd toegepast in tunnels.

Ad 3).   In de A2-tunnel (onderste buizen, 100 km/h) is vanwege de krappe boogstralen in het tracé een bochtverbreding nodig die oploopt tot 2,65 m (bovenop de objectafstand). Deze verbreding is omwille van economische gronden en vanwege het ruimtebeslag) slechts ter plaatse van de bochten toegepast. Dit is in tegenspraak met de ROA2014, omdat deze een continue afstand van de tunnelwand t.o.v. de rijstrook voorschrijft. Omdat dit in het geval van de Koning Willem Alexandertunnel tot een onacceptabel duur ontwerp zou hebben geleid is dit toch geaccepteerd.

Naast de beschrijving van het geometrische ontwerp in de genoemde ROA dient ook nog gebruik gemaakt te worden van ‘Wegontwerp in tunnels – Convergentie- en divergentiepunten in en nabij tunnels’ [59].

Veiligheidseisen voor tunnels in autosnelwegen zijn gegeven in Basisspecificatie TTI RWS Tunnelsystemen [80]. Opgemerkt wordt dat per oktober 2012 de VRC voor tunnels langer dan 250 meter is komen te vervallen.

Voor gesloten constructies, korter dan 250 meter, zal Rijkswaterstaat naar verwachting in 2017 een separate Richtlijn Veiligheidsvoorzieningen voor verdiepte liggingen en korte overkappingen uitbrengen.

Niet-autosnelwegen

Artikel nr. 17

Voor het ontwerp van niet-autosnelwegen wordt verwezen naar het uit 4 delen bestaande CROW Handboek wegontwerp [55]:

CROW-publicatie 328 Handboek wegontwerp 2013 – Basiscriteria

CROW-publicatie 329 Handboek wegontwerp 2013 –  Erftoegangswegen

CROW-publicatie 330 Handboek wegontwerp 2013 – Gebiedsontsluitingswegen

CROW-publicatie 331 Handboek wegontwerp 2013 –  Regionale stroomwegen

 

Voor wegen binnen de bebouwde kom is er de ASVV 2012 ‘Aanbevelingen voor ‘verkeersvoorzieningen binnen de bebouwde kom’ [56]. Tevens kan gebruik gemaakt worden van de basisuitgangspunten uit ‘Wegontwerp in tunnels – Convergentie- en divergentiepunten in en nabij tunnels’ [59].

 

Met betrekking tot de hoogte van de tunnelbuis is in de onderliggende artikelen aanvullende informatie opgenomen t.o.v. de CROW publicaties.

 

 

 

Ruimtelijk alignement

Artikel nr. 18

Ten aanzien van het ruimtelijk alignement komen onderstaand achtereenvolgens aan de orde:

 

Wegcategorie

De wegcategorie bepaalt in principe de ontwerp­snelheid, zie tabel 18.1. De ontwerpsnelheid hangt niet alleen af van de wegcategorie maar ook van de omgevingsfactoren en het alignement van de voorafgaande wegvakken.

 

Tabel 18.1 - Categorie-indeling voor wegen buiten de bebouwde kom

Benaming Autoweg Weg met geheel of gedeel­te­lijk ge­slo­ten­verklaring voor langzaam ver­keer (in elk geval gesloten voor (brom)fiet­sers)
Hoofdcategorie B Hoofdcategorie C
Tegemoetkomend verkeer aanwezig.

Kruisend verkeer aanwezig.

Ongelijkvloerse kruispunten kunnen in bepaalde omstandigheden voorkomen.

Tegemoetkomend verkeer aanwezig.

Kruisend verkeer aanwezig.

Hoofdwegennet Niet-hoofdwegennet Niet-hoofdwegennet
Categorie III IV III IV V VI
Wegomgeving Alle situaties Urbaan Alle situaties Alle situaties Alle situaties Alle situa­ties
Ontwerpsnelheid 100 km/h 80 km/h 100 km/h 100 km/h 80 km/h 60 km/h
Dwarsprofiel Enkelbaans Dubbelbaans Enkelbaans Dubbelbaans Enkel­baans Enkel­baans
Kruispuntvorm Gelijk­vloers * Gelijkvloers Gelijkvloers * Gelijkvloers Gelijkvloers Gelijk­vloers
Kruisingsvorm Ongelijkvloers Ongelijkvloers Ongelijk­vloers Ongelijkvloers Gelijkvloers Gelijkvloers
Indicatie net­werk­func­tie Weg met een func­tie voor het langeafstandsverkeer Weg met een belangrijke ontsluitings­functie voor een stad of agglomeratie Wegverbinding tussen belang­rijke kernen in een regio Een belangrijke verbinding tussen kernen in een regio Weg met een functie voor het middellange afstandsverkeer of ontsluitings­weg voor een regio Weg van over­we­gend lokaal belang met een beperkte ver­keers­functie

Opgemerkt wordt dat bij een lagere wegcategorie bij inpassing meer rekening moet worden gehouden met de omgevings­kenmerken van de weg.

Aansluitende wegen

Indien in- en uitvoegingen van aanslui­tende wegen op voldoende afstand van elkaar en van de tunnel zijn gelegen, zullen deze de capaciteit en afwikke­lingsintensiteit van de tunnel niet nadelig beïnvloeden. Juist in stedelijke gebieden kunnen de aansluitende wegen van belang zijn voor het ruimtelijk alignement.

 

Wegverkeerssysteem

Tussen de mens, de weg en het voertuig bestaat een relatie:

 

Horizontaal en verticaal alignement

Het horizontaal en ver­ticaal alignement die­nen, ter voorkoming van knelpun­ten bij la­tere stappen, reeds vanaf het begin in on­derlinge samenhang te worden ont­worpen. Regels voor de combinatie van het horizontale en verticale alignement zijn samengevat in tabel 18.2.

 

Tabel 18.2 - Vijf regels voor de combinatie van het horizontale en verticale alignement

1 Verticale holle boogstralen in combinatie met kleine horizontale boogstra­len (kleiner dan 500 m) kunnen ertoe leiden dat de horizontale straal groter wordt ingeschat dan dat hij in werkelijkheid is.
2 Er moet extra aandacht worden besteed aan de ruimtelijke vorm indien combinaties van minima in horizontale en verticale zin worden toegepast.
3 De aanpassing aan de verticale vormen van het landschap moet niet te ver worden doorgevoerd.
4 Voor een vloeiend verloop is het noodzakelijk de tangentpunten van de horizontale en verticale bogen te laten samenval­len, waarbij de beide bogen eveneens gelijktijdig optreden.
5
Voor het bewerkstelligen van een rustiger wegbeeld verdient het aanbeve­ling te streven naar een beperking van het aantal ruimtelijke elementen.

 

Horizontale/vertica­le bogen en rechtstan­den

Iedere combinatie van bogen en recht­standen heeft voor- en nade­len en tevens specifieke toepassingsgebieden. De volgende grondvormen worden onderscheiden:

 

Zichtafstanden

Het wegontwerp dient te resulteren in dusdanige zichtafstanden dat veilig gereageerd kan worden op gebeurtenissen en situaties achter, opzij en voor het voertuig. De aard van de handeling (inhalen, remmen) bepaalt welk soort zicht­afstand in het ontwerp moet worden gehanteerd. Hierbij bestaat onderscheid in de volgende typen zicht:

 

Het wegverloop bij tunnels is in ver­band met zichtlengte van groot be­lang.

Continuïteit en uniformiteit

In het geheel van weg en wegomge­ving moet gestreefd worden naar een continue en vol­doend afwisselende informatiestroom. Aangezien in het wegontwerp behoort te worden uitgegaan van continuïteit, dienen veranderingen tijdig te worden ingeleid. Binnen één wegcategorie dienen over de gehele lengte van een weggedeel­te dezelfde kenmerken aanwezig te zijn.

 

De herkenbaarheid voor de weggebruiker moet worden vergemak­kelijkt door binnen de voorkomende kenmerken zo min mo­gelijk variatie aan te brengen. Hierbij zo min mogelijk afwij­ken van het normale patroon binnen één wegcate­gorie (denk aan bebake­ning en marke­ring).

 

Ruimtelijke helling

De ruimtelijke helling moet gelimiteerd worden om afglijden van het voertuig te verhinderen. Onder normale omstandigheden is het gewenst dat de ruimtelijke helling niet groter is dan 7 %.

De ruimtelijke helling wordt berekend met be­hulp van de volgende formule:

 

 

waarin:

pr = het ruimtelijk hellingspercentage onder hoek

pl = het langshellingpercentage

pd = het dwarshellingpercentage

 

Verkeersvei­ligheid

De volgende aspecten van het wegontwerp bepalen de verkeersveiligheid:

 

Onder de kwaliteit van het weg­dek wordt ver­staan de stroefheid, vlakheid en wateraf­voerbaarheid. Verkeersmaatregelen moeten als zinvol wor­den ervaren. Te veel incidentele maatregelen leiden tot te veel bor­den, devaluatie van de desbetref­fende borden en devaluatie van de alge­meen geldende gedrags­regels. Om de lichtovergang positief te beïnvloeden, wordt bij de ingang van de tunnel vaak een daglichtrooster toege­past. Bij lange tunnels moet gezorgd worden voor een behoud van het attentieniveau.

 

Consistentie en het wegbeeld

Binnen één wegcategorie zorgen voor consistentie door dezelfde eisen te stellen ten aanzien van veilig­heid, vlotheid en comfort.

Het wegbeeld kan worden opgevat als de inter­pretatie van het feite­lijk verloop van de weg door de weggebruiker die naar deze interpre­tatie handelt en niet direct naar het feite­lijke alignement. Daarbij is een goede accentuering van de tunnelingang gewenst. De herkenbaarheid van een tunnelingang wordt sterk verhoogd door deze in een (royale) boog te situeren.

 

De aan het wegbeeld gestelde kwali­teitsei­sen zijn:

 

Het wegbeeld wordt in het algemeen gebruikt als toetsingscri­te­rium nadat het ontwerp tot stand is gekomen op basis van bouwtech­ni­sche, archi­tecto­nische en ove­rige ver­keerskundige as­pec­ten.

Horizontaal alignement

Artikel nr. 19

Ten aanzien van het horizontaal alignement komen achtereenvolgens aan de orde:

Horizontale boogstraal

De grootte van de toelaatbare horizontale boogstraal wordt be­paald door:

 

Bij het bepalen van de horizontale boogstraal speelt de ontwerpsnel­heid vo een belangrij­ke rol. De berijdbaarheid stelt eisen aan de boogstraal, waarvoor onderstaande formule geldt:

 

 

waarin:

Rh = horizontale boogstraal [m]

vo = ontwerpsnel­heid [m/s]

fz = wrij­vingscoëfficiënt [-]

i = verkanting [%]

g = versnelling van de zwaartekracht (g = 9,81 m/s2)

 

Tunnels in enkelbaanswegen dienen bij voorkeur van een recht alignement te zijn voorzien, dus geen boogstraal te hebben.

Bochtverbreding

Indien de horizontale boog­straal kleiner is dan 300 m dient bochtverbreding te worden toegepast.

Positieve verkanting

In verband met compensatie van de middel­puntvliedende kracht is een positieve verkanting gewenst. De minimale positieve verkanting is 2 % (in verband met afvoer van hemelwater). De maximale positieve verkanting is 5 %. In uitzonderingsgevallen kan de ver­kan­ting vergroot worden tot 7 % (om de boog beter zichtbaar te maken).

 

De positieve verkanting van 5% be­paalt in relatie met vo de ondergrens van de horizontale boogstraal, zie tabel 19.1.

 

Tabel 19.1 - Minimum boogstraal bij een maximum verkanting van 5% (Rv = 0)

vo (km/h)

Rh minimum (m)

100

80

60

450

260

130

 

Negatieve verkanting

De grootte van de negatieve verkan­ting is onafhankelijk van de grootte van de horizontale boogstraal en moet 2,5% zijn. Deze waarde bepaalt in relatie met vo de onder­grens van de horizonta­le boogstraal, zie tabel 19.2. De waarden in de tabel zijn vooral gebaseerd op rijcomfort.

 

Tabel 19.2 - Minimum boogstraal bij een negatieve verkanting van 2,5 %

vo (km/h) Rh minimum (m)
gewenst minimum
100 2500 780
80 1700 420
60 900 190

 

Gelijkgerichte verkantingsovergang/wentelende verkantingsovergang

Bij het vaststellen van de verkantings­overgang zijn de volgende aspec­ten van belang:

 

De verkantingsverandering per lengte-eenheid (DS/a) is bepalend voor de stabiliteit van hoge voertuigen. Bij een gelijkgerichte verkantingsover­gang wordt de reeds aanwezige dwarshelling (verkanting) in dezelf­de zin ver­groot of verkleind. Bij een wentelende verkantingsover­gang vindt er een richtingsverande­ring van de verkanting plaats.

Bij wentelende verkantingsovergangen dient in verband met de afvoer van het hemelwater in elk geval een mini­mumhellingspercentage van 0,5 % in langsrichting te worden aangehouden, daar waar geen dwarshelling aanwe­zig is.

 

Er zijn twee typen verkantingsfiguren:

 

Plaats van de wentelingsas is bij tunnels van invloed op de benodigde hoogte van de tunnelbuis. Derhalve wordt bij tunnels de rijbaanas als wentelingsas toegepast.

 

Clothoïde

De functies van de clothoïde in het wegontwerp zijn:

De algemene formule voor de clothoïde is (zie ook figuur 19.1):

 

 

waarin:
R = straal

L = lengte van de overgangsboog

A = parameter van de clothoïde, die wordt bepaald door optische eisen, comforteis, esthetische eis, dynamische even­wichtseis en de lengte eis.

 

De lengte van de clothoïde moet zodanig zijn dat een eventuele verkan­tingsovergang binnen de clothoïde kan plaatsvinden. Ten behoeve van het berekenen van clotho­ïden zijn computerpro­gramma’s beschikbaar.

 

Afhankelijk van de ont­werpsnelheid vo, dienen bij de volgende cirkelbogen overgangsbogen te wor­den toege­past met de volgende straal R:

 

Figuur 19.1 - Clothoïde

 

Horizontale rechtstand

Lange rechtstanden moeten worden vermeden in ver­band met eentonigheid. Indien mogelijk moeten lange rechtstanden worden vervan­gen door zeer ruime bogen. Bij toepassing van zowel langere als kortere recht­standen kunnen, afhankelijk van aan­sluitende wegelementen, wegbeeldfou­ten optreden. Voor de lengte van de rechtstand geldt:

 

 

waarin:

vo = snelheid (km/h)

L = lengte van de rechtstand (m)

 

Zichtafstand

Bij horizontale bogen zijn bepalend:

 

 

 

Verticaal alignement

Artikel nr. 20

Ten aanzien van het verticaal alignement komen achtereenvolgens aan de orde:

Hoogteverschil

Het hoogteverschil heeft de grootste invloed op het snelheidsverval van vrachtauto’s. Bij brede vaarroutes kan worden over­wogen een min of meer hori­zontaal gedeelte in het dieper gelegen deel van de tunnel aan te brengen, waar­door het hoog­teverschil afneemt.


Zichtafstand

Bij verticale bogen zijn de volgende aspecten bepalend voor de zichtafstand:

De zichtafstand wordt be­paald door de ooghoogte van de bestuurder en de positie van het waar te nemen object.

Rechtstand

Bij grote hoogtever­schillen wordt tus­sen een holle en een bolle boog een recht­stand aangebracht. Het toepassen van een rechtstand is mede afhankelijk van het hellingsper­centage.

Bolle boog

Bij bolle bogen zal de benodigde zichtafstand bepalend zijn. De minimale boogstraal volgt uit de volgende formule:

waarin:

Rbol minimaal = minimale boog­straal (m)

LZ = maatgevende zich­tafstand (m)

ho = ooghoogte be­stuurder (m)

hh = hoogte waar te ne­men object (m)

Voor minimale boogstra­len van de bolle boog: zie tabel 20.1. Voor de ooghoogte is hier meestal 1,10 m (bestuurder personenauto) bepalend.

Tabel 20.1 - Ondergrenzen voor boogstralen bolle bogen indien zichtlengte kleiner dan booglengte

vo (km/h)

zichtafstand (m)

Rbol minimaal (m)

op grond van zicht opwegverloop in continue situatie

100

80

60

161

105

64

5800

2450

900

Holle boog

Bij holle bogen zal de duidelijkheid van het wegbeeld meestal bepa­lend zijn. In mindere mate speelt het rijcom­fort een rol. Voor de minimale boogstra­len van de holle boog, zie tabel 20.2. Voor de ooghoogte is hier juist 2,50 m (bestuurder vrachtauto) bepalend.

Tabel 20.2 - Minimale boogstraal voor holle bogen bij verschillende ontwerpsnelheden

vo (km/h)

Rhol minimaal (m)

op grond van com­fort

Rhol minimaal (m)

op grond van duidelijkheid wegbeeld

100

80

60

1500

1000

550

20000

14000

8000

Onder duidelijkheid van het wegbeeld wordt ver­staan:

De afmeting van de holle boog in tunnels dient zodanig te zijn dat vol­doende zicht op eventueel aanwezige informatiedragers is gegarandeerd. In het algemeen zijn waarden uit tabel 20.2 maatgevend.

Langshellingspercentage

Artikel nr. 21

Ten aanzien van het langshellingspercentage komen achtereenvolgens aan de orde:

 

Wegcategorie

Het langshellingspercentage als functie van de wegcate­gorie bedraagt:

 

In heuvelachtig gebied kunnen hogere percentages voorkomen (maximaal 12 %).

 

Relatie tussen hoogte­verschil en som van de holle en bolle boog

Het hellingspercentage dat maximaal mogelijk is, kan worden berekend met behulp van onder­staande formule:

 

 

waarin:

p = het maxi­maal mo­ge­lijke hel­lings­per­cen­tage (%)

Rh + Rb = de som der boogstra­len van de hol­le en bolle ­boog (m)

D H = te overwin­nen hoog­te­ver­schil (m)

 

Relatie holle boog en bodembreedte vaarweg

Bij brede vaarroutes, waarbij aanpas­sing van het bodemprofiel bezwaarlijk is, zou eventueel als alternatief ont­werp een min of meer horizontaal gedeelte in het dieper gelegen deel van de tunnel kunnen worden overwo­gen.

 

Vervoer gevaarlijke stoffen

Bij vervoer gevaarlijke stoffen door tunnels wordt aanbevolen om aan te houden:

 

 

waarin:

l = het langshel­li­ngs­per­centage

d = het dwars­hellings­percentage

b = de breedte tus­sen de geleideprofielen (m)

 

Deze formule wordt pas relevant bij zeer grote breedte tussen de geleide­profielen.

 

Wijze van aangeven van het hellings­percentage

Voor de mini­mumsnel­heid in de op­gaande helling is niet het maximale hellingspercentage be­palend maar het gemiddelde hellingspercentage. Er geldt:

 

 

waarin:

p = hellingspercentage

h = hoogteverschil (m)

L = lengte van de helling (m)

 

Kosten

Een gunstig effect op de kosten is het ver­groten van het gebrui­kelijke hel­lingspercen­tage van 4,5 % tot het maximaal mo­gelijke per­centage op basis van ruimtelijke mogelijkhe­den en zicht­criteria. Bij hellingspercentages > 6 % neemt de ver­keersveiligheid af. Bij het vergroten van het gebruikelijke hellingspercentage van 4,5 % zal wel bij ontwerpsnelheden van 100 en 80 km/h een extra verlaging van de rijsnel­heid optreden van circa 3 tot 8 km/h.

 

Snelheidsverval – Verkeersveiligheid

Voor de toename van pae’s (per­sonen-au­to equivalen­ten) voor vracht­au­to’s zie tabel 21.1

Op vlak terrein wordt voor een vracht­auto maximaal 2,5 pae gerekend. SIMVRA is een computerprogramma dat het snelheidsverval van vrachtau­to’s berekent. Het snelheidsverval heeft consequenties voor ca­paciteit wegvak en is bepalend voor al dan niet toepassen van kruip- respectievelijk inhaalstrook.

 

Tabel 21.1 - Pae-waarden vrachtverkeer op enkelbaanswegen bij verschillende hellingspercentages

Lengte van de helling

(m)

Hellingspercentage

3%

4%

5%

6%

0 – 500

500 – 750

750 – 1000

1000 – 1500

2

2

3

4

2

2,5

4

5

2

3

5

8

2

4

8

8

 

 

 

Dwarshellingpercentage

Artikel nr. 22

Het dwarshellingspercentage heeft invloed op de afwatering. Voor de afwatering bedraagt de mini­mum dwarshel­ling 2,0 %. In het gesloten tunneldeel moet de dwarshelling conform de Landelijke Tunnelstandaard [90] (LTS) echter minimaal 2,5 % bedragen.

 

 

Aantal rijstroken

Artikel nr. 23

Ten aanzien van het aantal rijstroken komen achtereenvolgens aan de orde:

 

Prognose verkeersaanbod

De prognose van het verkeersaanbod volgt uit:

 

Capaciteit

De capaciteit van de weg is het maximumaantal voer­tui­gen dat de weg kan ver­wer­ken (per uur, per et­maal). De capaciteit van ont­moe­tings-­ en uitwis­se­lingspunten staan in relatie tot de capaciteit van de weg zelf.

 

Normaal gesproken wordt voor de tunnel dezelfde benodigde capaciteit aan­gehou­den als voor de toeleidende weg. Op hellingen moet rekening worden gehouden met toena­me van pae’s voor vrachtauto’s, zie onder andere tabel 21.1. Voor de capaciteit worden de volgende waarden aangehouden:

 

Verkeersafwikkeling

De kwaliteit van de verkeersafwikkeling komt tot uitdrukking in een aantal aspecten zoals snelheid (gemiddelde en spreiding), veiligheid en comfort/hinder. De verkeersafwikkeling wordt bepaald door weg- en verkeerskenmerken, zoals:

 

Afhankelijk van de soort aanpassing van be­staande tunnels zal soms een min­der goed afwik­kelings­niveau moeten worden geac­cepteerd.

 

 

 

Strookbreedte

Artikel nr. 24

Ten aanzien van de strookbreedte wordt onderscheid gemaakt in:

 

Rijstrookbreedte

De rijstrookbreedte, gemeten tussen de deelstrepen respectievelijk kant- en deelstreep, is afhankelijk van de ontwerpsnelheid en bedraagt:

De bepaling wijkt af van het gestelde bij (stads)autosnelwegen. Hier wordt de rijstrookbreedte gemeten hart op hart deelstrepen res­pec­tievelijk hart deel­streep en binnenkant kantstreep.

Wellicht zal in de toekomst ook bij niet-autosnelwegen op deze wijze de rijstrookbreedte worden vastgelegd.

 

Inhaalstrook­breedte

De inhaalstrookbreedte is gelijk aan de rij­strookbreedte. In­haalstroken zullen hoofdzakelijk door per­sonenauto’s wor­den be­re­den.


Kru­ipstrook­breedte

De kruipstrookbreedte is gelijk aan de rij­strookbreedte. Kruipstroken zul­len hoofdzakelijk door vrachtauto’s worden be­reden.

 

Kantstrookbreedte

De kantstrookbreedte is afhankelijk van de ontwerpsnelheid en bedraagt:

 

De kantstrookbreedte is inclusief kant­streepbreedte.

 

 

 

Inhaal- en kruipstrook

Artikel nr. 25

Ten aanzien van de inhaal- en kruipstrook komen achtereenvolgens aan de orde:

 

Snelheidsverval

Het snelheidsverval is afhankelijk van:

 

Zie ook Langshellingspercentage en Dwarshellingpercentage. Uit het berekende snelheidsverval kunnen onder meer conclu­sies worden getrokken ten aanzien van de noodzaak van het toepassen van inhaal­stroken.

 

Kosten

Een kosten-baten-analyse moet worden opgesteld over de kosten van de inhaal­strook in relatie tot de in­vloed op de verkeersafwikke­ling en de verkeersveiligheid. Bij toepassing van een inhaalstrook of een  kruipstrook zal deze uit kostenover­wegingen altijd na het gesloten deel be­ginnen.

 

Verkeersafwikkeling/verkeersveiligheid

Het invoegen van perso­nen­auto’s aan het einde van de inhaalstrook heeft een ge­ringe invloed op de ver­keersafwikkeling en de ver­keersvei­ligheid. Het invoegen van het vrachtverkeer aan het einde van de kruipstrook heeft een negatieve invloed op de verkeersafwikkeling en de ver­keersveiligheid. Het verloop verdient extra aandacht. Voorkeur wordt gegeven aan een inhaal­strook.

 

 

 

Kantstrook

Artikel nr. 26

De kantstrook is een doorgaande verhardings­strook met een beperkte breedte. Bij categorie III t/m V-wegen is de kantstrook door middel van een kantstreep van de rij­strook gescheiden. Bij categorie VI-wegen dient de kantstrook vooral om de kant van de verharding aan te geven.

 

 

 

 

Hoogte profiel van vrije ruimte

Artikel nr. 28

Buiten tunnels wordt bij lichte constructies (porta­len, voetgan­gersbruggen en dergelijke) standaard een vrije door­rij­hoog­te van 5,00 m aange­hou­den. Het realiseren van een vrije door­rijhoogte van 5,00 m in tunnels brengt echter in geval van zware constructies zoals tunnels onevenre­dig hoge in­veste­ringskosten met zich mee, zodat meer in detail moet worden bekeken welke hoogte daadwerkelijk nodig is.

 

Ten aanzien van de hoogte van het profiel van vrije ruimte komen achtereenvolgens aan de orde:

 

Nieuwbouw of renova­tie

De hoogte van het profiel van vrije ruimte in tunnels ge­bouwd na 1967 en voor nieuw te ont­werpen tun­nels is 4,50 m. Dit is tevens de minimumeis volgens de LTS (Landelijke Tunnelstandaard) [90].

 

De hoogte van het profiel van vrije ruimte in oude­re tun­nels is 4,20 m. De hoogte is opgebouwd uit:


Hoogte ontwerpvoertuig

Een ‘ontwerp’ vrachtauto heeft een hoogte van 4,00 m. Een ‘ontwerp’ personenauto heeft een hoogte van 2,06 m. Uiteraard speelt dat in dit geval geen rol.

 

Veiligheidsmar­ge­

Voor de veiligheidsmarge wordt 0,30 m aan­gehou­den. Deze marge is onafhanke­lijk van de ont­werp­snel­heid.

 

Verticale bewe­ging tijdens het rijden

Voor de verticale beweging tijden het rijden wordt 0,20 m aan­gehou­den.

 

Spoorvorming

In tunnels wordt in verband met de harde ondergrond in principe geen rekening ge­houden met spoorvor­ming.

 

Overlagen

In verband met toekomstig overla­gen kan de vrije doorrijhoogte met 0,10 m worden ver­meerderd, alhoewel overlagen in het geval van ZOAB niet mogelijk is. In het algemeen wordt dit bij tunnels echter niet in rekening gebracht, zodat altijd zal moeten wor­den gefreesd. De minimale dikte van een nieuwe asfaltlaag bedraagt circa 70 mm.

 

Wijze van bepa­ling van de vrije hoogte

De vrije hoogte moet zowel in de langs- als in de dwarsrich­ting lood­recht op de ver­har­ding wor­den gemeten, dus roteert mee met de verkanting. Vanuit het wegontwerp wordt in langsrich­ting de hoogte vaak ver­ticaal aan­gehouden.

 

Hoogtedetectie

Bij niet-bewaakte tunnels is geen hoogtede­tectie aan­wezig en wordt het risico van scha­de geaccep­teerd. Het criterium voor het al dan niet toepassen van een hoogtedetec­tie moet in overleg met de (toe­komsti­ge) beheerder worden opge­steld, doch een gebruikelijke grenshoogte hiervoor is 4,70m. Conform de LTS [90] geldt een minimum hoogte van 4,70 m, indien geen hoogtedetectie wordt toegepast.

 

Sprongen in het profiel

Per geval zal moeten worden bepaald in hoeverre rekening moet worden gehouden met onderdelen van de tunneluitrusting die van invloed zijn op het profiel van vrije ruimte (inclusief de daarin noodzakelijke sprongen). De plaats van de sprongen moet in samen­hang met de ontwerp­snelheid genuan­ceerd bekeken worden.

 

 

 

Zone voor tunnelinrichting

Artikel nr. 29

Ten aanzien van de zone voor tunnelinrichting komen achtereenvolgens aan de orde:

 

Informatiedra­gers

Tussen de bo­ven­kant van het pro­fiel van vrije ruimte en de on­der­kant van het dak van de tun­nel kunnen zich informatiedragers bevinden. Daarvan bestaan verschillende typen, een en ander afhan­ke­lijk van de lengte van de onder­door­gang. Zichtlengte speelt een belangrijke rol. Het is te adviseren om aan de informatie­dragers in tunnels extra eisen te stellen ten aanzien van robuustheid en bevestiging. Een mogelijke oplossing is om kwets­bare delen in het plafond op te nemen.

 

Voor tunnels bestaan spe­ciale matrixborden. Toepassing van verkeersborden in tun­nels moet zoveel mogelijk worden vermeden.

 

Technische instal­laties

De plaats van de diverse onderdelen van de technische installatie moet in onderlinge samenhang worden ge­zien. Toepassing van rijstrooksignalering, ver­keersob­servatie en perma­nente beman­ning hebben ge­leid tot het uit­groeien van verkeersobservatie naar een verkeersbewaking.

 

 

Spoorwegen

Artikel nr. 30 (bevat geen inhoud, zie onderliggende artikelen)

Algemeen

Artikel nr. 31

Voor het ontwerp van spoortunnels zijn door ProRail de Ontwerpvoorschriften – Spoortunnels, OVS00201 [24] en OVS00202 [25] opgesteld, voor respectievelijk tunnels met een lengte van meer dan 250 m en voor tunnels met een lengte tot en met 250 m.

 

Het spoorwegtracé bestaat uit de vol­gende geometrische elementen:

 

Gestreefd moet worden naar een tracering, die zo weinig mogelijk beper­kingen veroorzaakt.

 

De baanvaksnelheid is afhankelijk van:

 

Voor de door NS gehanteerde klassenindeling van sporen zie tabel 31.1.

 

Tabel 31.1 - Klassenindeling van sporen

Spoorklasse

Maximum snelheid

(km/h)

A

B

C

D

125

100

80

40

 

Daar waar de baanvaksnelheid sterk bepa­lend is voor het ontwerp en de detail­lering van een spoorweg, dient deze snelheid in een vroeg stadium te worden vastgesteld. De huidige richtlijnen hebben uitslui­tend be­trekking op spoorlijnen met een baan­vaksnelheid van maximaal 200 km/h. Voor de HSL (hogesnel­heidslijn) is een afzonderlijke richtlijn in voorberei­ding.

 

Tot de infrastructuur behoort alles wat met het terrein vast verbon­den is, zoals:

 

Bij de constructie van spoorwegen wordt onderscheid gemaakt tussen:

 

Bovenbouw

Tot de klassieke bovenbouw behoren de volgende componenten:

 

Bij de constructie van de boven­bouw worden de snelheids­trappen volgens tabel 31.2 gehanteerd.

 

Tabel 31.2 - Snelheidstrappen

Trap

Snelheid V (km/h)

I

II

III

IV

130 t/m 160

100 t/m 130

40 t/m 100

40

 

Onderbouw

Voor de onderbouw moet een keuze worden gemaakt tussen een aardebaan en/of doorgaan­de viaduct- of plaatcon­structie. De keuze wordt gebaseerd op voor- en nadelen van beide constructies bij aanleg en spoorwegexploitatie. De keuzeaspecten zijn:

 

Voor de aansluiting van de aardebaan op kunstwerken bestaan diverse voorschriften van ProRail. Er moet voor ieder geval afzonderlijk een oplossing gevonden worden, zodat een goede afwatering/ontwatering van het aansluitende baanli­chaam en stabiliteit van de talud­kegels verze­kerd zijn.

Bij ProRail bestaat een typetekening, waarop de toe te passen overgangs­platen en drainage zijn aangegeven. Deze typetekening geldt voor alle kunstwerken.

 

 

 

Kunstwerken - perrons en ondergrondse stations

Artikel nr. 32

Dit artikel gaat uitsluitend in op perrons en het geluidshinder in ondergrondse stations. Voor overige kunstwerken wordt verwezen naar de andere artikelen in dit handboek.

 

Perrons

Voor het ontwerp van perrons is het Ontwerpvoorschrift – Perrons OVS00067 [23] van toepassing.


Ondergrondse stations en geluidshinder

In de tunnelcompartimenten zijn geen bijzondere voorzieningen nodig met betrekking tot de beperking van het geluidsniveau. De ruwbouw van ondergrondse stations moet in overleg met de archi­tect zodanig worden afgestemd, dat onder meer een afwerking met geluidsabsorberende materialen mogelijk is.

 

 

 

Horizontaal en verticaal alignement spoorwegen

Artikel nr. 33

Voor het horizontaal en verticaal alignement is het Ontwerpvoorschrift – Alignement OVS00056-4.1 [22] van toepassing.

 

 

 

Profiel van vrije ruimte spoorwegen

Artikel nr. 34

Voor het profiel van vrije ruimte geldt Ontwerpvoorschrift – Profiel van vrije ruimte OVS00026 [20].

 

 

Tram- en metrolijnen

Artikel nr. 35

 

Algemeen

Artikel nr. 36

Iedere stad met t­ram/me­tro-vervoer heeft eigen typen rijtuigen en stelt daarop eigen speci­fieke eisen. Bij het ontwerpen van een tunnel voor t­ram/me­tro-vervoer zul­len de betrokken instanties geraad­pleegd moeten worden voor de van toepassing zijnde voorschriften in de betreffende gemeente. Als voorbeeld kan worden genoemd het voorschrift van de gemeente Den Haag HTM INFRA – Ontwerp Spoor Stadsnet [58]. In dit artikel komen aan de orde:

 

De gegeven waarden in deze en de hierna volgende artikelen zijn ter indicatie.

 

Rijsnelheid

De maximumsnelheid van de metro is 80 km/h. De wet laat evenwel een maximumsnelheid van 90 km/h toe. Mogelijk wordt dit in de toekomst 100 km/h.

 

Bij de tram wordt meestal gesproken over een gemiddelde in plaats van een maximumsnelheid. De aangehouden gemiddelde snelheid is 20-25 km/h. De maximum­snel­heid voor een tram is veelal lager dan bij de metro, bijvoorbeeld 70 km/h.

 

Ondergrondse stations en halteafstanden

De gemiddelde stationsafstand voor de metro bedraagt 800 tot 1500 m. Het aanleggen van stations boven de verbindende tunnelstukken geeft in de exploitatie voordelen met betrek­king tot het energieverbruik. Bovendien zijn dan de verbindingen met het maaiveld beperkt, hetgeen voor de reizigers plezierig is.

 

Bij de metro liggen de halten op een gemiddelde onderlinge afstand van 800 à 1000 m. In het kernge­bied is de halteaf­stand beperkt tot circa 500 m, daarbui­ten komen veelal halteafstanden van 1000 tot 1200 m voor.

 

Bij de tram is de halteafstand gemid­deld 400 à 500 m. In de periferie zijn grotere afstanden van toepassing.

 

Perronafmetingen metro

De perronafmetingen van de metro bedragen:

 

Perronafmetingen tram

De perronafmetingen van de tram bedragen:


Opmerking:

De perronlengte wordt bepaald door de maximale treinlengte. De breedte is afhankelijk van de reizi­gersbelasting van het station en de situering (zij- en/of middenlig­ging) en het al of niet voorhanden zijn van treinen met ver­schillende bestem­mingen (wachtende reizigers).

De genoemde perronbreedte moet obstakelvrij zijn. Met name bij ondergrondse stations moet de breedte ruim beme­ten zijn; een netto maat van 4,00 m heeft bij zij­perrons de voorkeur. Bij voorkeur rechte perrons aanleggen.

 

Voedingssecties metrolijn

Een traject is verdeeld in voedingssec­ties. Elke sectie wordt aan beide uitein­den door een gelijkrichterstation ge­voed. De maximumlengte van een sectie is circa 1800 m. De voeding geschiedt via een stroom­rail of via een bovenleiding.

 

 

 

Alignement tram- en metrolijnen

Artikel nr. 37

In de onderliggende artikelen wordt ten aanzien van het alignement onderscheid gemaakt in:

 

 

 

 

Horizontaal alignement

Artikel nr. 38

Horizontale Boogstraal

Voor horizontale bogen dient een zo groot mogelijke straal te worden gekozen. Krappe boogstralen vragen een vergroting van de tunneldiameter, die over de gehele tunnellengte moet worden toegepast. De boogstraal wordt samen met de ver­kanting in een iteratief proces bepaald, afhankelijk van de snelheid.

 

Metro

Voor de minimum boogstralen bij de metro, zie tabel 38.1. Vanwege een verschil­lend toelaatbaar verkantings­tekort zijn de boogstralen bij directe bevestiging anders dan bij toepassing van een ballastbed. Voor de mini­male boogstraal bij de metro wordt bij hoofdsporen doorgaans 240 m aangehouden.

 

Ten aanzien van de afzonderlijke elementen geldt in het algemeen:

 

Boogstralen kleiner dan 180 m veroor­zaken abnor­maal grote slijtage aan de spoorstaaf en radkrans en moeten dientengevolge zoveel mogelijk worden ver­meden.

 

Tabel 38.1 - Relatie maximumsnelheden en minimum boogstralen bij maximale verkanting, metro

Maximumsnel­hei­d vmax (km/h)

Minimum boogstraal Rh (m)

Directe bevestiging op beton

Op ballast­bed

50

123

141

70

241

276

90

398

455

 

Tram

Horizontale boogstralen bij de tram liggen tussen de 20 en 200 m. Voor de maximale snelheden van de tram in een bocht bij de gegeven ver­kanting, boogstraal en maximale zijde­lingse versnelling, zie tabel 38.2.

 

Tabel 38.2 - Relatie snelheid - boogstraal - verkanting - zijdelingse versnelling, tram

Boog­straal (m)

Ontwerpsnelheid v (km/h) bij a = 0,65 m/s2 en verkanting D

D = 0 mm

D = 30 mm

D = 75 mm

D = 150 mm

25

14,5

16,5

*

*

35

17,1

19,6

*

*

50

20,5

23,4

27,1

*

75

25,1

28,7

33,3

39,8

100

29,0

33,1

38,5

46,0

150

35,5

40,5

47,2

56,4

200

41,0

46,8

54,4

65,0

*: niet mogelijk in verband met verkantingsnormen voor lengte en overgangshelling

 

Bij boortunnels geldt in verband met boortechniek als minimale boogstraal R = 20 d waarbij d de diameter van de tunneldoor­sne­de is.

 

Verkanting

De verkanting is het hoogteverschil tussen de buiten- en bin­nenspoorstaaf, ter compensatie van zijdelingse krachten die tijdens het berijden van de boog ontstaan. Geen verkanting toepassen in de openbare weg, wisselbo­gen en krui­singen.

 

Voor de berekening van de verkanting wordt soms onderstaande formule gebruikt:

 

 

waarin:

Dth = theoretische verkanting (mm)

v = snelheid (km/h)

R = boogstraal (m)

 

De formule is afgeleid met als uit­gangspunt dat de zijdelingse versnel­ling gelijk is aan 0 m/s2. De maximale verkanting voor zowel de metro als de tram bedraagt 150 mm.

 

Verkantingstekort (-aftrek)

Alle bogen worden met een bepaal­de verkantings­tekort I, ook aangeduid als verkantingsaftrek, aangelegd.

 

Bij de metro wordt de theore­tische verkanting nor­maal verminderd met ten minste 30 mm. Als bovengrens voor de aftrek geldt:

 

Bij een bepaald verkantingstekort ontstaat een ongecompenseerde zijdelingse versnelling a van:

 

 

waarin:

a = zijdelingse versnelling (m/s2)

I = verkantingstekort (mm)

 

Bij de metro wordt in verband met comfort aange­houden:

 

Voor de tram in Den Haag geldt:

 

Een negatieve zijdelingse versnelling is niet toegestaan.

 

Verkantingsoverschot

Is de werkelijke verkanting van het spoor groter dan de theoretische ver­kanting, dan is er sprake van verkan­tingsoverschot. Hiervoor gelden geen specifieke eisen.

 

Overgangsboog

De overgangsboog heeft zowel voor de tram als voor de metro de vorm van een clothoïde, uitgezet op hart spoor. De volgende formu­le geldt:

 

 

waarin:

A = parameter

R = aansluitende boogstraal (m)

L = lengte, gemeten langs de kromme (m)

 

Overgangshelling

In een overgangsboog wordt de ver­kanting opgebouwd vanaf het begin tot het einde van de overgangshel­ling. Dit verloop is lineair. Voor de overgangshelling wordt een bepaalde verkantingstoename aange­houden:

 

Metro:

Tram:

 waarin v = snelheid in de bocht [km/h[

 

Horizontale rechtstand

In verband met de rijtuiglengte dient tussen de overgangsbogen een recht­stand aanwezig te zijn van ten minste 30 m bij de me­tro en 20 m bij de tram. De lengte van de rechtstand be­draagt bij voorkeur v / 2 m (met v in km/h). Is dit niet mogelijk, dan worden speci­fieke eisen met betrekking tot het verloop van de ver­kanting tussen twee bogen gesteld.

 

 

 

Verticaal alignement

Artikel nr. 39

De minimale boogstralen bij de metro zijn gegeven in tabel 39.1. De minimum lengte van de verticale boog bedraagt 25 m. In verband met de veeraanslag van de rijtuigen en het reizigerscomfort wordt een maxi­male verticale versnelling aangehou­den van:

waarin g = gravitatieversnelling.

 

Tabel 39.1 - Minimum verticale boogstralen bij metro

Plaats en snelheid

R (m) in holle boog

R (m) in bolle boog

beton­bed

ballast­bed

beton­bed

ballast­bed

in hoofdbaan vmax = 90 km/h

1600

2500

2500

3600

direct bij sta­ti­ons vmax = 70 km/h

1000

1500

1500

2300

op emplace­ment vmax = 70 km/h

500

750

750

1200

in wissels

3000

3000

5000

5000

algemeen

0,2 × v2

0,3 × v2

0,3 × v2

0,45 × v2

 

Bij de tram is de minimale verticale boog­straal afhankelijk van het type tram. De minimale waarde varieert tussen 300 en 1500 m.

Verticale overgangsbogen worden bij de metro en de tram niet toegepast.

 

Twee tegengesteld draaiende bogen mogen niet op elkaar aansluiten. Hiertussen moet een rechtstand aan­wezig zijn. De lengte hiervan is afhankelijk van de snelheid. Hoe hoger de snelheid, hoe langer de rechtstand.

 

 

 

Hellingen tram- en metrolijnen

Artikel nr. 40

De maximale hellingen bij de metro en tram zijn gegeven in tabel 40.1 en tabel 40.2. In tijdelijke situaties bedraagt de maximale helling bij de tram 5 % en bij halten 1 %. In bogen worden flauwere hellingen toegepast.

Omlaag gaande trajecten direct voor en omhoog gaande trajecten direct na een station moeten zo veel mogelijk worden vermeden. Het omgekeerde geval is zeer gunstig.

 

Tabel 40.1 - Maximale helling metro

Locatie

Helling

tunnel

rechtstand

4,0 %

1 : 25

R = 400 m

3,9 %

1 : 25,6

R = 240 m

3,8 %

1 : 26

open lucht

3,3 %

1 : 30

stations

0,25 %

1 : 400

opstelsporen

0,25 %

1 : 400

 

Tabel 40.2 - Maximale helling tram

Locatie

Helling

tunnel

gewenst

3,3 %

1 : 30

maximaal

4,5 %

1 : 22

 

 

 

Dwarsprofiel tram- en metrolijnen

Artikel nr. 41

Ten aanzien van het dwarsprofiel wordt onderscheid gemaakt in:

 

 

 

 

Breedte

Artikel nr. 42

Aantal sporen en spoorafstanden (tussenspoor)

Meestal worden 2 sporen naast elkaar geplaatst en bij een eindstation 3 sporen. Met betrekking tot spoorafstanden zijn er geen standaardregels (onder andere door ver­schillen­de breedtes van het materieel). In Rotterdam worden de volgende spoorafstanden in rechtstand aange­houden:

 

 

In Den Haag worden de volgende minimale spoorafstanden in rechtstand aange­houden (Trams):

 

Profiel van vrije ruimte

Hiervoor bestaan geen standaardregels. In het PVR kunnen de volgen­de elemen­ten zijn opgenomen:

 

Het PVR wordt gevormd door het omgren­zingsprofiel te vermeerderen met een speling aan beide zijden en aan de bovenkant. Binnen dit profiel mogen zich geen obstakels bevinden.

Het PVR vermeerderd met ruimten voor geleidingen, looppad, veiligheidsnis­sen en apparatuur vormt het bouw­profiel.

 

Breedte materieel

Er bestaat geen standaard breedte voor het materieel.

 

Voorbeelden tram:

 

Voorbeelden metro:

 

Spoorwijdte

De spoorwijdte is de afstand tussen binnenzijden van de spoorstaaf­koppen, gemeten op 14 of 9 mm (verschilt per gemeente) bene­den BS. De spoorwijdte spoor bedraagt 1434 à 1438 mm.

 

Tussenwanden

Voor tussenwanden gelden geen specifieke eisen.

 

Loop-, vlucht- en inspectiepad

De minimale breedte voor deze paden bedraagt 700 mm.

 

 

 

Hoogte

Artikel nr. 43

Hoogte directe bevestiging

Voor de benodigde hoogte voor direc­te bevestiging wordt 300 à 350 mm aan­gehouden.

 

Hoogte ballastbed

Voor de benodigde hoogte van het ballastbed wordt een dikte van 0,55 m aangehouden. Bij de tram wordt soms gewerkt met een minimale dikte van het ballastbed van 0,30 m. Naast de ballastdikte moet nog reke­ning worden gehouden met de dikte van de dwarsligger en de hoogte van de rail zelf.

 

Hoogte materieel

De hoogte van het materieel verschilt per gemeente. Een eventuele bovenleiding vergt meer ruimte in de tunnel.

 

Hoogte boven looppad

Minimale hoogte boven het looppad bedraagt 2,00 m. Voor het ontwerp wordt vaak uitge­gaan van 2,10 m. Het loopvlak bevindt zich op 0,20 m boven BS. Bij de tram is dit meestal 0,10 m.

 

 

Calamiteiten tram- en metrolijnen

Artikel nr. 44

Brandbeveiliging

Het uitgangspunt is het gebruik van onbrandbare materialen. De kabelgo­ten van beton worden bij voorkeur zo laag mogelijk onder de voetpaden gelegd.

In de personeelsruimtes worden enige brandblussers geplaatst. Er worden geen bluswateraansluitingen aange­bracht in het station en in de tunnel zelf.

 

Nooduitgangen

De tunnel moet zijn voorzien van vol­doende nooduitgangen op maximaal 300 m loopafstand, noodverlichting, beweg­wij­zering en looppaden.

Elk perron moet twee onafhankelijke uitgangen hebben, op voldoende afstand van elkaar. Er moet ten­minste één vluchtweg zijn die onaf­hankelijk is van andere syste­men, bijvoorbeeld een vluchtpad in de tunnel.

 

Ventilatie

Bij minder diep gelegen metrotunnels bevinden zich voor en achter de stati­ons ventilatieschachten met een direc­te verbinding met de buitenlucht. Bij diepgelegen tunnels zijn de kosten voor het realiseren van ventilatie­schachten dermate hoog, dat eerder aan geforceerde ventilatie moet wor­den gedacht.

 

Sociale veiligheid

In verband met sociale veiligheid moe­ten alle loopverbindingen zo kort mo­gelijk gehouden worden en hoeken/nissen waar mogelijk worden vermeden. Te­vens moet het station zo dicht mo­ge­lijk tegen het maaiveld aangelegd worden.

 

 

 

Toleranties - deformaties

Artikel nr. 45

Ten aanzien van het, in de artikelen hiervoor beschreven, profiel van vrije ruimte dient in het ontwerp van tunnels voldoende aandacht aan toleranties te worden besteed. Zo moet rekening worden gehouden met  maatafwijkingen door plaatsings- en meetonnauwkeurigheden. Met name in het geval van afgezonken tunnels is de plaatsingstolerantie van belang, vooral nabij de sluitvoeg. Ook kunnen er zettingsverschillen zijn, in geval van een afgezonken tunnel worden deze veelal veroorzaakt door verschillen in  het onderstroomzand.

Naast deze aspecten moet ook rekening worden gehouden met:

Specifieke uitvoeringstoleranties per uitvoeringswijze zijn nader vermeld in de artikelen over uitvoering.

In hoofdstuk 10 van ROK [27] is opgenomen dat in verband met de vereiste breedte van het profiel van vrije ruimte, voor grondkerende wanden plaatsings- en hellingtoleranties in rekening dienen te worden gebracht. Hiermee moet tevens de vervorming na belasting  worden opgevangen. Ook in OVS00026 [20] worden de in rekening te brengen toleranties duidelijk beschreven, zie ook Profiel van vrije ruimte spoorwegen van dit handboek.

Bij de bouw van de toeritten van de Tweede Beneluxtunnel was destijds geen rekening gehouden met de doorbuiging van de bouwputwanden. Als gevolg daarvan was er geen ruimte meer beschikbaar binnen de combiwanden voor de geplande betonnen wanden. Gelukkig was er nog de terugvaloptie: het beton in de inkassingen van de combiwand te storten (en te wapenen).

Uitvoeringsprincipes

Artikel nr. 46

De verschillende uitvoeringsprincipes die in dit handboek aan de orde komen zijn als volgt in te delen:

figuur 46.1 t/m figuur 46.5 geven een schematisch overzicht van de uitvoeringsvarianten.

De te kiezen wijze van uitvoeren wordt met name bepaald door de grondgesteldheid en geohydrologische omstandigheden ter plaatse, in relatie tot de diepteligging van de tunnel. Bij het ontwerp van een tunnel is het zeer belangrijk om deze variaties in kaart te brengen en ook gebruik te maken van de omstandigheden ter plaatse. Zo kan het gebruik van een natuurlijke waterdichte laag, of het bemalen een onderwaterbetonvloer besparen en kan het variëren in hoogteligging de kosten van de funderingsconstructie significant reduceren.

Figuur 46.1 - Bouwkuip met onderwaterbeton (OWB)

CSM = Cutter Soil Mix

MIP = Mixed In Place

Figuur 46.2 - Bouwkuip met een natuurlijke waterremmende laag

Figuur 46.3 - Bouwkuip met een kunstmatig aangebrachte waterremmende laag

Figuur 46.4 - Polderconstructie met bouwkuip en folie

Figuur 46.5 - Polderconstructie met taluds en folie (schematische weergave)

Figuur 46.6 - Polderconstructie met cement-betonietwand (cb-wand)

Specifieke opties uitvoeringswijze

Artikel nr. 47

Tunnels kunnen op palen of op staal gefundeerd zijn. Bij een op palen gefundeerde tunnel is meestal sprake van op trek belaste palen, die opdrijven van de tunnel verhinderen. Een recent voorbeeld van een op staal gefundeerde gewichtsconstructie is de verkeerstunnel (met toeritten) met twee rijniveaus in de A2 te Maastricht, gebouwd in den droge (bemaling) en uitgevoerd als constructie zonder onderwaterbeton en (trek)palen.

 

Kuip- en polderconstructies die gebruik maken van verticale wanden worden in sommige gevallen uitgevoerd als wanden-dakconstructie, waarbij een betonplaat op de wanden wordt opgelegd vóór de start van het ontgraven. Hiermee kan ruimte op maaiveldniveau, boven de bouwput, in gebruik worden genomen voor de bouw is afgerond.

 

 

 

Ontwerpaspecten

Artikel nr. 48 (bevat geen inhoud, zie onderliggende artikelen)

Eisen en beoordelingsaspecten

Artikel nr. 49 (bevat geen inhoud, zie onderliggende artikelen)

Normen en richtlijnen voor het constructieve ontwerp

Artikel nr. 50

De beschrijving in dit artikel beperkt zich tot algemene constructieve normen en richtlijnen en richtlijnen op het gebied van de veiligheid van de gebruiker. Er is voor gekozen overige normen en richtlijnen, zoals bijvoorbeeld op het gebied van brandwerendheid, te behandelen in de context van het betreffende onderwerp.

 

Naast de algemene normen en richtlijnen die zijn vastgelegd in Bouwbesluit en Eurocodes (zie Bouwbesluit en Eurocodes) bestaat er een tweetal specifieke richtlijnen, namelijk:

 

Voor lightrail tunnels zijn in Nederland geen specifieke algemene richtlijnen bekend.

 

Bouwbesluit en Eurocodes

Artikel nr. 51

Met het in werking treden van het Bouwbesluit 2012 zijn de Eurocodes ofwel NEN-EN-1990-1997’s aangewezen. Om een goede aansluiting op het in Nederland gebruikelijke veiligheidsniveau te waarborgen, zijn nationale bijlagen opgesteld. Bepaalde onderdelen die in de NEN-EN als informatief (adviserend) zijn aangemerkt kunnen in de nationale bijlage normatief (bindend) zijn verklaard.

Het bouwbesluit heeft betrekking op alle bouwwerken of gedeeltes van bouwwerken.

Tijdens de uitvoering moet het bouwwerk dus ook aan het Bouwbesluit voldoen. Tijdelijke constructies, bijvoorbeeld steigers of damwanden, vallen ook onder het Bouwbesluit. Dit betekent dat deze ook volgens de Eurocodes moeten worden ontworpen. Vanwege de tijdelijke aard van de constructie kunnen de eisen wel minder zwaar zijn dan voor definitieve constructies, een en ander afhankelijk van de gevolgen van eventueel falen van de constructie.

 

In de Eurocode-grondslagen van het constructief ontwerp [NEN-EN-1990, 2007] zijn de beginselen van eisen van veiligheid, bruikbaarheid en duurzaamheid van constructies vastgelegd. Deze Eurocode omschrijft de grondslagen voor het ontwerp, berekening en toetsing.

In de Eurocode 1 worden de belastingen op constructies behandeld. Deel 6 van Eurocode 1 [NEN-EN 1991-1-6, 2008] is van toepassing tijdens de bouwfase van bouwwerken. Daarnaast geeft het regels voor de bepaling van optredende belastingen op tijdelijke ondersteuningsconstructies, zoals steigers.

De norm NEN-EN 1991-1-6 is niet aangewezen door het Bouwbesluit. De norm is een middel om aan te tonen dat de veiligheid van de constructie voldoet aan het Bouwbesluit.

In de Richtlijn Ontwerp Kunstwerken [27] zijn aanvullingen op de conceptversie van deel 6 van Eurocode 1 gegeven.

Overigens zijn de normen voor buitengewone belastingen, bijvoorbeeld brand en explosies in tunnels of NEN-EN 1998 (Aardbevingen), nog niet via het Bouwbesluit aangewezen.

 

 

 

Eurocode NEN-EN-1990 -grondslagen van het constructief ontwerp

Artikel nr. 52

Met behulp van de Eurocode NEN-EN-1990 en de nationale bijlage kan in Nederland het niveau van constructieve veiligheid worden bereikt zoals vereist in het Bouwbesluit.

Specifiek voor de uitvoering is dat de ontwerplevensduur van de tijdelijke constructies kort is. In de nationale bijlage bij het constructief ontwerp [NEN-EN 1990+A1+A1/C2; 2011] is het volgende vermeld:

Tabel 52.1 - Ontwerplevensduurklassen

Ontwerplevensduurklasse Richtwaarde ontwerplevensduur (jaren) Voorbeelden
1 10 Tijdelijke constructies (1)
2 10 tot 25 Vervangbare constructieve onderdelen
3 15 tot 30 Landbouwkundige en soortgelijke constructies
4 50 Gebouwen en andere gewone constructies
5 100 Monumentale gebouwen, bruggen en andere civieltechnische werken

(1) Constructies of delen van constructies die kunnen worden ontmanteld met de bedoeling om te worden hergebruikt horen niet als tijdelijk te zijn aangemerkt. Deze dienen dus minimaal in ontwerplevensduurklasse 2 te worden ingedeeld.

Voor de tunnel is de ontwerplevensduur 100 jaar. De bij de uitvoering gebruikte hulpconstructies, zoals steigers of damwanden, hebben een tijdelijke functie. Indien deze constructies worden hergebruikt, mogen deze niet als tijdelijk zijn aangemerkt en vallen deze dus niet in ontwerplevensduurklasse 1. Deze moeten dan minimaal een klasse hoger geplaatst worden. Dit betekent dat deze constructies moeten worden ontworpen op een levensduur van 10 tot 25 jaar.

Damwandconstructies worden meestal ontworpen volgens het handboek damwandconstructies CUR 166 [7]. Deze gaat uit van een referentieperiode van 50 jaar. Tijdens de uitvoeringsfase, die meestal niet veel langer dan een jaar duurt, is de kans op een extreme belastingsituatie natuurlijk kleiner dan in de gebruiksfase die meestal tenminste 50 jaar duurt. Desondanks beveelt CUR 166 [7] aan om, bij het ontwerp, de belastingsituaties tijdens de uitvoering even zwaar te laten wegen als belastingsituaties die zich tijdens de gebruiksduur voordoen.

Indien de damwanden onderdeel vormen van de definitieve tunnelconstructie is de ontwerplevensduur van de damwanden 100 jaar. Dit is meer dan de levensduur van 50 jaar, die in CUR 166 [7] is aangehouden. Voor een ontwerplevensduur van 100 jaar moeten de partiële materiaalfactoren daarom verhoogd worden CUR166 [7] , deel 2, paragraaf 2.4.7.

De nationale bijlage bij het constructief ontwerp [NEN-EN 1990+A1+A1/C2; 2011] kent de volgende bijlagen:

Bijlage A1 Toepassing op gebouwen

Bijlage A2 Toepassing op bruggen

Bijlage B Regeling van de constructieve betrouwbaarheid van bouwwerken

Bijlage C Grondslagen van de methode van partiële factoren en de betrouwbaarheidsberekening

Bijlage D Door proeven ondersteund ontwerp

Voor bruggen is vermeld dat voor (hulp)constructies tijdens de bouwfase tenminste een ontwerplevensduur gelijk aan de bouwtijd is aangehouden met een minimum van 15 jaar. Voor tunnels kan dit ook worden toegepast. Een uitzondering op de ontwerplevensduur van 15 jaar kan gemaakt worden voor (hulp)constructies in gevolgklasse 1 indien aannemelijk kan worden gemaakt dat de bouwtijd aanmerkelijk korter is, waarbij 1 jaar als ondergrens geldt. Naast de levensduur wordt in de Eurocode gewerkt met een referentieperiode voor de bepaling van de karakteristieke waarde van belastingen. De referentieperiode moet minimaal gelijk zijn aan de ontwerplevensduur.

De referentieperiode kan dus langer zijn dan de ontwerplevensduur. Zo beveelt CUR 166 [7] een minimale referentieperiode van 50 jaar aan, ook voor damwandconstructies die alleen tijdens de uitvoering nodig zijn.

Een ander voorbeeld waarbij de referentieperiode langer kan zijn dan de levensduur kan optreden als de veiligheid van mensen in het geding is. De referentieperiode mag dan niet korter zijn genomen dan 15 jaar, ook niet als de constructie maar tijdelijk is (bijvoorbeeld 2 jaar).

Als een brug over verkeerswegen of spoorwegen wordt gebouwd dient, voor de (hulp)constructies tijdens de bouwfase, een gevolgklasse te worden aangehouden die tenminste gelijk is aan de gevolgklasse van de brug voor de gebruiksfase. Als de brug niet over een gevoelig object, zoals bijvoorbeeld een verkeers- of spoorweg of een leidingstrook gebouwd wordt, mag gevolgklasse 1 zijn toegepast.

Bij tunnels zal de gevolgklasse tijdens de bouwfase ook afhankelijk zijn van de risico’s bij de uitvoering. Hierbij kan gedacht worden aan:

In bijlage B van de nationale bijlage zijn de gevolgklassen (CC1, CC2 en CC3) gedefinieerd.

Voor tunnels is geen aparte bijlage beschikbaar. In de lijn met de bijlage A2 en B kunnen, voor (hulp)constructies tijdens de uitvoering van de tunnel, de volgende gevolgklassen worden aangehouden:

Tabel 52.2 - Omschrijving Gevolgklassen

Gevolgklasse Omschrijving
CC3 Grote gevolgen ten aanzien van het verlies van mensenlevens en/of zeer grote economische of sociale gevolgen voor de omgeving
CC2 Middelmatige gevolgen ten aanzien van het verlies van mensenlevens en/of aanzienlijke economische of sociale gevolgen voor de omgeving
CC1 Geringe gevolgen ten aanzien van het verlies van mensenlevens en/of kleine of verwaarloosbare economische of sociale gevolgen voor de omgeving

Een tunnelproject zoals bedoeld in deze publicatie zal al snel in CC3 vallen.

Indien verwacht mag worden dat de gevolgen van bezwijken van de constructies tijdens de uitvoeringsfase van een geringere orde zijn dan in de gebruiksfase mogen ze zijn ingedeeld in een lagere gevolgklasse. Omgekeerd geldt dat, als verwacht mag worden dat de gevolgen groter zijn, de (hulp)constructies moeten zijn ingedeeld in een hogere klasse.

Richtlijn Ontwerp Kunstwerken Rijkswaterstaat

Artikel nr. 53 (bevat geen inhoud, zie onderliggende artikelen)

Algemeen

Artikel nr. 54

De Richtlijn Ontwerp Kunstwerken [27] geldt voor alle, in opdracht van Rijkswaterstaat, nieuw te ontwerpen en bouwen kunstwerken. De richtlijn bevat eisen betreffende de constructieve veiligheid en duurzaamheid.

Voor specifieke ontwerpaspecten in verband met tunnelveiligheid wordt verwezen naar de Veiligheidsrichtlijnen deel C [89]. De VRC is een uitwerking van de veiligheidsfilosofie zoals gehanteerd door het Steunpunt Tunnelveiligheid van RWS. Primair dient aan de tunnelwet te worden voldaan.

Aanvulling: per oktober 2012 is de VRC voor tunnels langer dan 250 meter komen te vervallen. De relevante eisen uit de VRC zijn overgeheveld naar de Basisspecificatie TTI van de RWS-tunnelstandaard versie 1.2 [80].

Het is toegelaten om gebruik te maken van alternatieve ontwerp- en berekeningsregels, verschillend van de regels zoals in deze ROK [27] gegeven zijn, onder de voorwaarde dat is aangetoond dat de alternatieve regels overeenstemmen met de van belang zijnde beginselen en tenminste gelijkwaardig zijn wat betreft de constructieve veiligheid, bruikbaarheid en duurzaamheid, die zou mogen worden verwacht bij gebruikmaking van de ROK [27].


Toelichting: Het hier geformuleerde gelijkwaardigheidsbeginsel is analoog aan hetgeen voor de Eurocodes is vermeld in NEN-EN 1990, 1.4 (5). Het is hier expliciet aangehaald, omdat bepalingen in de ROK voor tunnels grotendeels niet als zodanig zijn opgenomen in de Eurocodes.

Ontwerplevensduur

Artikel nr. 55

De ROK [27] schrijft voor tunnels ten minste de volgende ontwerplevensduren voor:

 

Conform de ROK [27] worden met ”essentiële onderdelen” die onderdelen bedoeld waardoor bij falen de constructieve veiligheid, gebruiksveiligheid of beschikbaarheid van de tunnel in gevaar kan komen. Een voorbeeld is een OMEGA-profiel bij afgezonken tunnels.

De eis voor vervangbare onderdelen van beton is hoger gesteld dan onderdelen anders dan van beton, omdat, ten opzichte van bijvoorbeeld staal, de eis van 50 jaar tegen relatief geringe kosten gerealiseerd kan worden. Hitte werende en akoestische bekleding, inclusief bevestiging, wordt geacht een ontwerplevensduur van minimaal 25 jaar te bezitten.

 

Betreffende bevestigingsmiddelen wordt in de ROK [27] gewezen op artikel 4.1 van de norm over ontwerp en berekening van betonconstructies [NEN-EN 1992-1-1;2011]. Hier staat dat direct of indirect aan de lucht blootgestelde bevestigingsmiddelen moeten bestaan uit een corrosiebestendig materiaal, tenzij ze kunnen worden geïnspecteerd en vervangbaar zijn. In dat geval mogen ook corrosiegevoelige materialen worden gebruikt, mits voorzien van een beschermende bekleding.

 

Indien de ROK niet van toepassing is, zijn de genoemde eisen voor vervangbare onderdelen ook niet van toepassing. De keuze van de ontwerplevensduur voor deze onderdelen zal in die gevallen bepaald worden door andere argumenten. Voor een in gebruik zijnde tunnel is de duur van de niet-beschikbaarheid het belangrijkst.

 

 

Partiële factoren en correlatiefactoren

Artikel nr. 56

Voor de γ- en ξ-waarden voor tunnels moeten de waarden voor gebouwen worden aangehouden, zoals opgenomen in de nationale bijlage van het constructief ontwerp [NEN-EN 1990+A1+A1/C2:2011/NB:2011, A.1.3.1]. Hierna zijn de waarden voor gevolgklassen 2 en 3 overgenomen met aanvullende voetnoot voor de belasting door (grond)water. Voor de belastingsfactoren voor verkeersbelasting wordt verwezen naar [NEN-EN 1990+A1+A1/C2:2011/NB:2011, A.2.3.1 ].

Figuur 56.1 - Belastingsfactoren voor gevolgklasse 2 (STR/GEO), overdruk uit NEN-EN 1990+A1+A1/C2:2011/NB:2011, A.2.3.1

 

De belasting door (grond)water moet in principe als blijvende belasting worden beschouwd. Voor vergelijking 6.10b (figuur 56.1) geldt echter dat het variabele deel van de (grond)waterdruk, d.w.z. het verschil tussen de hoogste en de laagste waterstand, moet worden beschouwd als:

  1. veranderlijke belasting in het geval dat de variatie in (grond)waterstanden relatief goed bekend is, bijvoorbeeld uit historische peildata, en goed beheerst kan worden. Dat kan bijvoorbeeld het geval zijn bij kanalen en polders. De laagste (grond)waterstand moet worden beschouwd als een blijvende belasting.
  2. blijvende belasting in overige gevallen, bijvoorbeeld in het geval dat grote variaties kunnen optreden en waarbij de (grond)waterstanden moeilijk beheerst kunnen worden. In dat geval moet worden uitgegaan van een extreme (grond)waterstand welke een overschrijdingskans heeft van 1/25000 of 1/75000 op jaarbasis voor respectievelijk de gevolgklassen 2 en 3. Dit komt overeen met overschrijdingskansen van 1/250 resp. 1/750 over de ontwerplevensduur van 100 jaar. De belasting door het (grond)water wordt in dit geval dus volledig als blijvende belasting beschouwd. Indien de waterstand fysiek wordt beperkt, bijvoorbeeld doordat het water de tunnel instroomt of over een dijk loopt, hoeft niet met de berekende hoogste waterstand te worden gerekend, maar kan worden uitgegaan van de fysiek maximale waterstand. In het geval van de genoemde voorbeelden is dit dan de hoogte van het punt waar het water de tunnel instroomt of de hoogte van de dijk.

 

Omdat in de situatie onder punt 2 door middel van een statistische analyse extreme (grond)waterstanden vastgesteld worden met een zeer kleine overschrijdingskans, kan een lagere belastingsfactor volstaan t.o.v. de situatie onder punt 1, waarbij de (grond)waterstanden bijvoorbeeld alleen worden ontleend aan een beperkte reeks historische peildata.

Voor het bepalen van de overschrijdingskansen is gebruik gemaakt van de grondslag voor het constructief ontwerp [NEN-EN 1990; 2007; bijlage C, C.7(3)].

Bij de bepaling van de hoogste (grond)waterstand dient rekening gehouden te worden met mogelijke trendwijzigingen gedurende de ontwerplevensduur van de constructie (bijvoorbeeld waterwinning, peilwijziging, wijziging peilbeheer van rivier/beek, wijziging waterstanden als gevolg van klimaatveranderingen). Hieraan dient, indien noodzakelijk, een hydrologisch en/of geohydrologisch model ten grondslag te liggen.

 

Toelichting:

Welke trendwijzigingen in rekening dienen te worden gebracht, is afhankelijk van de lokale omstandigheden en dient in overleg met de opdrachtgever en bijvoorbeeld waterschappen te worden vastgesteld. Opgemerkt wordt dat trendwijzigingen voor de bouwfase over het algemeen niet van belang zijn.

 

 

Gevolgklasse voor tunnels onder hoofdwegen en hoofdvaarwegen

Artikel nr. 57

Tunnels in en onder hoofdwegen en onder hoofdvaarwegen moeten worden ingedeeld in gevolgklasse 3.

 

Toelichting:

Gevolgklasse 3 is een verzwaring t.o.v. de in het verleden volgens NEN 6700 toegepaste veiligheidsklasse 3. Globaal komt het er op neer dat de belastingfactoren ca. 10% groter moeten worden genomen. Bij het toepassen van bestaande voorschriften, richtlijnen, CUR aanbevelingen, CUR rapporten e.d. dient hiermee rekening te worden gehouden.

 


 

Ontwerpvoorschriften Prorail (OVS)

Artikel nr. 58

Voor het ontwerp van een spoortunnel van ProRail zijn in aanvulling op de NEN-EN normen de volgende normen van toepassing:

 

 

 

Normen en richtlijnen veiligheid tunnelgebruikers

Artikel nr. 59

Naast het Bouwbesluit 2012 en de Regeling Bouwbesluit 2012 [75], die is gewijzigd ter implementatie van de bouwtechnische voorschriften die voortvloeien uit de Europese richtlijn 2004/54/EG, zijn per 1 juli 2013 de veiligheidseisen voor tunnels vastgelegd in de nieuwe tunnelwet.

In de onderstaande tabel is het overzicht omtrent de huidige veiligheidsregelgeving samengevat. In de navolgende artikelen wordt nader op de specifieke regelgeving ingegaan.

Tabel 59.1 - Huidige veiligheidsregelgeving tunnels

Wegtunnels

Spoortunnels

> 250 m

≤ 250 m

Heavy Rail

Light Rail

 

 

 

(o.a. tram en metro)

Wegenverkeerswet

Wegenverkeerswet

Spoorwegwet (hoofdspoorwegen)

Spoorwegwet 1875
(overig spoor)
Lokaalspoor- en tramwegwet

Bouwbesluit 2012
(wegtunnel)

Bouwbesluit 2012
(bouwwerk geen gebouw zijnde)

Bouwbesluit 2012
(bouwwerk geen gebouw zijnde)

Bouwbesluit 2012
(bouwwerk geen gebouw zijnde)

Regeling Bouwbesluit 2012

Regeling Bouwbesluit 2012

Regeling Bouwbesluit 2012

Regeling Bouwbesluit 2012

Europese richtlijn 2004/54/EG
(> 500 m)

 

TSI SRT
(> 1000 m)

Lokaalspoor- en tramwegwet

Richtlijn Ontwerp Kunstwerken (ROK)

 

Richtlijn Ontwerp Kunstwerken (ROK)

 

 

 

WARVW 2013

 

Vanuit de WARVW geen verplichting meer inzake spoortunnels

Vanuit de WARVW geen verplichting meer inzake spoortunnels

RARVW 2013

 

Veiligheidseisen spoortunnels (VEST), versie 14, oktober 2010

Veiligheidseisen voor Tram- en Metrotunnels (VEMT), november 2010

Landelijke Tunnelstandaard
(LTS1.2 + SP1, Batch 1)

 

Ontwerpvoorschriften (OVS)

Normdocument veiligheid lightrail, versie 5.0

Voor nieuwe rijkstunnels is dat de (RWS) Landelijke Tunnelstandaard

 

OVS00030-3-V001 Korte spoortunnels en verdiepte bakken (in ontwikkeling)

 

Voor bestaande rijkstunnels is toepassing van de standaard niet verplicht, maar wel aanbevolen

 

OVS00201-V001 Spoortunnels
> 250 m

 

Voor overige tunnels moet de standaard nog bepaald worden

 

OVS00202-V001 Spoortunnels
250 m (in ontwikkeling)

 

 

VRC

 

 

 

 

 

 

 

 

 

 

wetgeving

 

 

 

 

 

richtlijnen

 

 

 

 

 

informatie

 

 

 

 

Veiligheidsregelgeving wegtunnels

Artikel nr. 60

Voor de veiligheid in wegtunnels is de algemene wet- en regelgeving voor de weg van belang. Deze bestaat uit de Wegenwet (1930) [105] en diverse besluiten en regelgeving.

 

De Warvw en Rarvw

Vanaf mei 2006 is in Nederland een wet- en regelgeving van kracht geworden voor tunnels langer dan 250m, met name de Wet aanvullende regels veiligheid wegtunnels (Warvw) [88] en de Regeling aanvullende regels veiligheid wegtunnels (Rarvw) [106]. Omdat deze regelgeving niet eenduidig definieerde aan welke veiligheidseisen een tunnel moet voldoen, zijn de Warvw [88] en Rarvw [106] herzien. De herziene Warvw [88] en Rarvw [106] zijn per 1 juli 2013 van kracht geworden. De belangrijkste wijzigingen zijn dat er een eenduidige wettelijke veiligheidsnorm is gedefinieerd, waar alle tunnels, bestaand en nieuw, aan zullen moeten voldoen en dat er een gestandaardiseerde uitrusting is voorgeschreven voor nieuw te bouwen rijkswegtunnels. De gestandaardiseerde uitrusting bestaat uit een limitatieve lijst van aan te brengen voorzieningen, inclusief de prestatie-eisen waar deze voorzieningen aan moeten voldoen. Als een nieuw te bouwen rijkswegtunnel met de gestandaardiseerde uitrusting aan de veiligheidsnorm voldoet, is deze aantoonbaar veilig genoeg en kunnen er in het kader van de omgevingsvergunning en de openstellingsvergunning door het bevoegde gezag geen aanvullende technische voorzieningen meer worden vereist.

 

Voor bestaande wegtunnels (rijks- en niet rijks-) en nieuw te bouwen niet-rijkswegtunnels is de gestandaardiseerde uitrusting niet wettelijk verplicht. Deze tunnels moeten wel aan de veiligheidsnorm voldoen, alsmede aan de bouwregelgeving (Bouwbesluit en Regeling Bouwbesluit). De integrale veiligheidsfilosofie van het Steunpunt Tunnelveiligheid van Rijkswaterstaat is in hoofdlijn verwerkt in de Warvw [88] en Rarvw [106]. Bovendien is de voorgeschreven gestandaardiseerde uitrusting rechtstreeks ontleend aan de belangrijkste eisen uit de Basisspecificatie Tunneltechnische Installaties (BSTTI) [80] van de Landelijke Tunnelstandaard (LTS) [90].

 

De Landelijke Tunnelstandaard (LTS) [90]

In de Landelijke Tunnelstandaard (LTS) [90] is de standaarduitrusting voor rijkstunnels vastgelegd. Hiermee behoeven geen keuzes per project meer gemaakt te worden over voorzieningen als ventilatoren, camera’s en verlichting. Met de wet wordt het bestaande veiligheidsniveau van Nederlandse tunnels gehandhaafd.

 

Veiligheidsrichtlijnen deel C (VRC) [89]

Voor het bepalen van de te nemen (technische) basisveiligheidsmaatregelen in tunnels, die onder het beheer van Rijkswaterstaat vallen, zijn in het verleden de Veiligheidsrichtlijnen deel C (VRC) [89] vastgesteld.

 

Voor Rijkstunnels langer dan 250 meter, die onder het regime van de Wet aanvullende regels veiligheid wegtunnels (Warvw) vallen, zijn de toenmalige eisen en richtlijnen van de VRC opgenomen in de LTS. Voor deze tunnels is de VRC daarom vervallen.

 

De richtlijnen in de VRC voor andere objecten, zoals verdiepte liggingen, gedeeltelijk gesloten constructies en korte onderdoorgangen worden opgenomen in een aparte leidraad, waarna de VRC volledig vervalt (de verschijningsdatum van deze leidraad is nog niet bekend).

 

 

 

Veiligheidsregelgeving railtunnels

Artikel nr. 61

Dit artikel geeft een overzicht van de wet- en regelgeving voor de veiligheid in railtunnels. De term rail wordt hier gebruikt voor alles wat zich voortbeweegt over ijzeren staven. Daarbinnen wordt onderscheid gemaakt in twee groepen:

 

Spoortunnels

In de tunnels op het reguliere reizigersspoor wordt het veilig en soepel verloop van het spoorverkeer en dagelijks beheer verzorgd door de betreffende tunnelbeheerder (bijvoorbeeld ProRail, Keyrail of Infraspeed). Algemene veiligheidsprincipes die vooral ingaan op preventie (het voorkomen van een incident) zijn onderdeel van het dagelijkse beheer van een spoortunnel. Daarnaast wordt een spoortunnel zodanig ontworpen dat de gevolgen van een incident zo klein mogelijk zijn.

 

Belangrijke aspecten zijn bijvoorbeeld het scheiden van reizigers- en goederenverkeer, het aanbrengen van hittewerende constructies en brandbestrijdingsinstallaties. Een spoortunnel is erop ingericht dat de reiziger bij een incident zoveel mogelijk zichzelf in veiligheid kan brengen. Dit is met name van belang omdat het over het algemeen moeilijker is voor de hulpverlening om een plek in een tunnel te bereiken dan daarbuiten. Onder andere goede verlichting en duidelijke markering van vluchtdeuren en wegen moeten de zelfredzaamheid van de reizigers vergroten.

 

ProRail heeft samen met diverse partijen zoals hulpverleningsorganisaties afspraken gemaakt over de veiligheid in spoortunnels. In gemeenten waar een spoortunnel ligt is voor elke tunnel een draaiboek beschikbaar waarin staat op welke wijze de diverse partijen moeten handelen bij een incident. De gemaakte afspraken worden regelmatig geoefend met alle partijen, waaronder de regionale en lokale brandweerkorpsen.

 

Voor de veiligheid in spoortunnels is de algemene wet- en regelgeving voor het spoor van belang. Deze bestaat uit de Spoorwegwet (2003) en diverse besluiten en regelgeving.

 

Lightrail

Voor metro- en tramtunnels zijn specifieke richtlijnen van toepassing, die bovendien per openbaar vervoerbedrijf verschillen. Ook het wettelijke kader wijkt af van spoortunnels.

 

Overzicht

In tabel 61.1 zijn een aantal, specifiek voor de veiligheid in railtunnels van belang zijnde, wettelijke en niet-wettelijke regelingen aangegeven. Voor een compleet overzicht, inclusief wegtunnels, wordt verwezen naar tabel 59.1.

 

 

Tabel 61.1 - Veiligheidsrichtlijnen railtunnels

Heavy rail

Light rail

Wettelijke regelingen

Bouwbesluit 2012 en de Regeling Bouwbesluit 2012 [75].

Technische specificatie voor interoperabiliteit – Veiligheid in spoorwegtunnels (TSI-SRT)

Niet wettelijke regelingen

Ontwerpvoorschriften Spoor (OVS), ProRail, 1 april 2010.

Bedrijfsinterne voorschriften van de stedelijke OV-bedrijven (RET, HTM, GVB)

De Derde Kadernota Railveiligheid, Ministerie V&W, juni 2010.

Normdocument veiligheid lightrail, versie 5.0

De concept Veiligheidseisen voor treintunnels (VEST), van V&W, BZK, NVBR en ProRail.

Veiligheidseisen tram- en metrotunnels (VEMT)

De veiligheidseisen voor Brandonderzoek Metrostations (BOM) en het Normdocument Light Rail (NLR)

 

Bovengenoemde documenten worden hier niet verder toegelicht. Meer hierover kan worden teruggevonden in “Wet- en regelgeving voor veiligheid in railtunnels”, DHV, d.d. 31 oktober 2011.

 

 

RAMS aspecten

Artikel nr. 62

De term RAMS (Reliability, Availability, Maintainability and Safety) staat voor de samenhang tussen de aspecten: betrouwbaarheid, beschikbaarheid, onderhoudbaarheid en veiligheid. Aan de hand van deze vier aspecten is voor elk product of systeem de gewenste kwaliteit van de primaire prestatie te beschrijven, te bepalen en te monitoren. Rijkswaterstaat voorziet dat RAMS aspecten de komende jaren in steeds belangrijkere mate zullen worden meegewogen bij de beoordeling van inschrijvingen. Zie ook de door RWS opgestelde leidraad RAMS [49] en de Prorail hand-out RAMS [154].

De vier onderdelen van RAMS

Artikel nr. 63

De term RAMS is opgebouwd uit de volgende onderdelen:


Reliability (Betrouwbaarheid)

De waarschijnlijkheid dat een item een vereiste functie kan uitvoeren onder gegeven omstandigheden gedurende een bepaald tijdsinterval.


Availability (Beschikbaarheid)

Het vermogen van een product in een toestand te zijn om de vereiste functie onder bepaalde omstandigheden op een bepaald moment of gedurende een bepaald tijdsinterval uit te voeren, ervan uitgaande dat de vereiste externe hulpbronnen zijn verschaft.


Maintainability (Onderhoudbaarheid)

De waarschijnlijkheid dat een bepaalde activiteit voor actief onderhoud voor een item onder gegeven gebruiksomstandigheden kan worden uitgevoerd binnen een vastgestelde tijd wanneer het onderhoud wordt uitgevoerd volgens vastgestelde voorwaarden en aan de hand van vastgestelde procedures en hulpbronnen.


Safety (Veiligheid)

Vrij van onaanvaardbare risico’s of letsels.

 

 

 

Gebruik van RAMS criteria

Artikel nr. 64

Het uiteindelijke doel is dat gekozen oplossingen in het ontwerp voor elk van de 4 genoemde termen van RAMS dusdanig worden beschreven dat deze ook objectief en rechtstreeks met elkaar vergelijkbaar worden. Hiermee kan bij de afweging tussen verschillende oplossingen rekening worden gehouden met aspecten als benodigde inspectie- en onderhoudsintervallen en de impact die deze hebben voor zowel kosten, gebruik van de constructie etc..

 

In dit handboek is een eerste aanzet gemaakt met het in termen van RAMS beschrijven van de verschillende ‘best practices’. Kwalitatieve overwegingen vanuit het RAMS kader zijn opgenomen, zodat ontwerpers binnen projecten alternatieven kunnen vergelijken en tot verstandige keuzes komen. Dit is gedaan in de vorm van een standaardtabel bij elke gepresenteerde ‘best practice’. De tabel moet voor ontwerpers die het handboek gebruiken de aandachtspunten oproepen die kunnen helpen in het ontwerp de volgende vragen te beantwoorden:

 

 

 

 

Ontwerpaspecten Definitieve constructie

Artikel nr. 65

Dit artikel geeft een beschrijving van aandachtspunten die belangrijk zijn voor het constructief ontwerp van een gesloten en/of open tunnelconstructie.

 

Ontwerpberekeningen moeten voldoen aan de bepalingen in de Eurocodes. De belangrijkste zijn:

 

Daarnaast zijn van toepassing:

 

Belastingen

Artikel nr. 66 (bevat geen inhoud, zie onderliggende artikelen)

Bovenbelasting

Artikel nr. 67

De volgende typen bovenbelasting worden onderscheiden:

Met betrekking tot het laatstgenoemde type bovenbelasting wordt opgemerkt dat grootschalige bebouwing op, of boven een verkeerstunnel, door Rijkswaterstaat (nog) niet wordt toegestaan. De reden daarvan is dat moeilijk aan te tonen valt dat wordt voldaan aan de eisen m.b.t. het externe (groeps-)risico. Door niet op de tunnel te bouwen is er geen gevaar voor extra doden als gevolg van een falende tunnel bij een explosie. Pas wanneer de tunnel explosiebestendig kan worden gebouwd, zou verdergaande bebouwing op de tunnel mogelijk kunnen zijn. Een uitzondering kan worden gemaakt voor functies die een zeer beperkt groepsrisico opleveren, zoals een park, parkeerplaats of beperkte laagbouw, waarbij moet worden gedacht aan een infocentrum of winkeltje.

Verkeersbelasting

Naast de verkeersbelasting in de tunnel kan verkeersbelasting ook bovenop tunnels aanwezig zijn. Verwezen wordt naar NEN-EN 1991-3 [108] .

Voor spoortunnels gelden daarnaast de eisen vermeld in OVS00201 [24]. De eisen 3.1.1.14 t/m 3.1.1.17 gaan in op de drukbestendigheid, de drukbelasting Dp en de stuwdruk q als gevolg van treinpassages. Verdere eisen hieromtrent zijn gegeven in 4.2 van OVS00201 [24].

Uniforme bovenbelasting naast constructies als damwanden

Ook als geen specifieke uniforme bovenbelasting aanwezig is, kan het in de vraagspecificatie zinvol zijn een uniforme (variabele) bovenbelasting te eisen van bijvoorbeeld 20 kN/m2, waarmee maaiveldafwijkingen en/of “vergeten” items kunnen worden afgedekt (zie ook §10.1 van ROK [27]). Ook de belasting tijdens bouwactiviteiten kan onder de categorie uniforme bovenbelasting vallen.

Toekomstige bovenbelasting

Zowel op als naast de tunnel kan sprake zijn van een toekomstige bovenbelasting. In het kader van een toekomstige bovenbelasting direct op de tunnel (bijvoorbeeld een park met bomen en een mensenmenigte, een parkeerplaats of een onderhoudsvoertuig) is het verstandig dit in rekening te brengen door een gelijkmatig verdeelde veranderlijke bovenbelasting van bijvoorbeeld 30 kN/m2. Deze geadviseerde minimum waarde geeft de nodige vrijheid voor de inrichting van het tunneldak en toekomstige wijzigingen daarin, zonder daarin extreem te zijn.

Behalve de grootte van de belasting zelf kan ook sprake zijn van specifieke, daarmee verband houdende eisen. Als naast of op de tunnel in de toekomst een bouwwerk wordt gerealiseerd kunnen in de vraagspecificatie eventuele eisen worden opgenomen over belastingen op de tunnel door ontgravingen, waterstandsverlagingen, bouwkuipaansluitingen, afstempelingen.

Specifieke bovenbelasting

Als op de tunnel een gebouw wordt gerealiseerd moet naast de directe belasting van dat gebouw ook rekening worden gehouden met belastingen tijdens de bouw.

Eis 3.3.1.2 van OVS00201 [24] vermeldt dat eventuele overbouwing van de tunnel geen invloed mag hebben op de tunnelconstructie. Hierbij dient ook rekening te worden gehouden met mogelijkheden van latere ontgravingen boven of naast de tunnel. Ook zettingsgedrag van grondlagen onder het funderingsniveau van bouwblokken kunnen invloed hebben op de tunnel.

Zoals eerder opgemerkt wordt grootschalige bebouwing op of boven een verkeerstunnel momenteel door Rijkswaterstaat niet toegestaan.

Belasting door grondwater

Artikel nr. 68

In verband met mogelijke toekomstige lokale bemalingen kan door de opdrachtgever geëist worden dat bij het ontwerp van de tunnel rekening moet zijn gehouden met eenzijdige waterdruk.

 

Vaak stellen gemeenten aanvullende eisen. Zo wordt in Den Haag het volgende voorgeschreven:

 

Daarnaast wordt vaak een eis gesteld dat een tunnel slechts een beperkte wateropstuwing mag veroorzaken ten opzichte van de oorspronkelijke grondwaterstand. Dit kan problematisch worden als de constructie min of meer loodrecht op de grondwaterstromingsrichting georiënteerd is en daarbij de watervoerende lagen voor een belangrijk deel blokkeert. Om deze reden wordt de A2 tunnel in Maastricht voorzien van een grondwaternivelleersysteem in de vorm van sifons, dit om de opstuwing binnen de grenzen te houden.

 

Opgemerkt wordt dat kritisch dient te worden omgegaan met informatie betreffende grondwaterstanden die waterschappen zouden moeten beheren.

 

 

 

Belasting door vermoeiing

Artikel nr. 69

Als gevolg van variabele belastingen kan het nodig zijn rekening te houden met vermoeiing. De tunnelconstructie dient hierop te zijn ontworpen. Dit speelt onder andere een rol bij tussenvloeren en wanden met aangrenzende constructies. Bij verkeerstunnels is de problematiek van vermoeiing in het algemeen van tamelijk beperkt belang.

Voor betonconstructies is de NEN-EN 1992 [31] van kracht. Voor staalconstructies is ten aanzien van vermoeiing specifiek NEN-EN 1993-1-9 [32]  van kracht.

 

Spoortunnels

Voor spoortunnels wordt in OVS00201 [24] als eis 3.1.1.13 vermeld dat alle constructies, constructieonderdelen en installaties in de tunnel moeten worden ontworpen op de (vermoeiings)belastingen, bepaald volgens NEN-EN 14067 “Railtoepassingen – Aerodynamica” [41].

 

 

 

Verschilvervormingen

Artikel nr. 70

ROK [27] vermeldt in hoofdstuk 10 dat tussen uitkragende betonwanden de verschilvervorming over de voegen aan de bovenzijde in horizontale richting maximaal 5 mm mag zijn. Deze eis heeft een achtergrond vanuit de esthetica. Het betreft toelaatbare afwijkingen ten opzichte van de geplande stand van de damwand of betonnen wand. De eis is daarom ook geldig voor hellende wanden.

Zo nodig dienen deuvels of consoles te worden toegepast om aan de toelaatbare verschilvervorming over een voeg te kunnen voldoen. Voor voorzieningen in voegen van op staal gefundeerde tunnels zie Fundering op staal.

Tevens is het van belang een eis te formuleren ten aanzien van het maximale verschil in doorbuiging tussen de tunneldaken van de verschillende moten. Indien wegen direct op het tunneldak zijn voorzien levert dat veelal een duidelijke eis op.

Verticaal en horizontaal evenwicht

Artikel nr. 71

Verticaal

ROK [27] vermeldt in hoofdstuk 10 bij de controle van het verticaal evenwicht tegen opdrijven (UPL) het volgende:

 

De evenwichtsberekening dient te geschieden conform hoofdstuk 10 van NEN 9997-1 [30]. Hierin wordt voor het veranderlijke deel van de belasting door (opwaartse) waterdruk een belastingfactor van 1,5 genoemd. In hoofdstuk 10.2 van ROK [27] zijn hierbij kanttekeningen gemaakt ten aanzien van de grondwaterstand die fysiek maximaal kan optreden.

 

Voor Spoortunnels is in OVS00030-6 [104] de volgende tekst opgenomen ten aanzien van het verticaal evenwicht:

 

Bij het bepalen van (grond)waterstanden moeten lange termijn waarnemingen van de (grond)waterstanden in de onmiddellijke omgeving beschouwd worden. Indien de gegevens naar het oordeel van de geotechnisch adviseur onvoldoende zijn, geldt een toeslag op de stijghoogte van de hoogst bekende (grond)waterstand van ten minste 0,50 m.

 

Toelichting:

Indien de variatie in (grond)waterstanden relatief goed bekend is en goed beheerst kan worden, moet de minimale stijghoogte als permanent worden beschouwd, en het verschil tussen de maximale en minimale stijghoogte als variabele belasting worden beschouwd (met bijbehorende belastingfactoren).

 

De verticale stabiliteit van onderdoorgangen/tunnels is door de lage belastingfactoren laag. Door de waterstandsverschillen als variabele belasting te beschouwen wordt het veiligheidsniveau ten aanzien van de verticale stabiliteit verhoogd. De veel gehanteerde factor van 1,10 voor de verticale stabiliteit (geotechnisch) is te gering om aan het vereiste veiligheidsniveau te voldoen. Dit is de reden om voor het variabele deel (de waterstandsverschillen) een factor 1,5 aan te houden.

 

Tot de permanente belastingen van tunnels behoren ook bijvoorbeeld ballastbeton, de zandaanvulling tussen de onderwaterbetonvloer en de constructievloer, het gewicht van de onderwaterbetonvloer en verankerd vulbeton in graafkamers van caissons, zie bijvoorbeeld hoofdstuk 5 van ROK [27]. Dit geldt uiteraard alleen als deze onderdelen constructief verbonden zijn met de tunnelconstructie. Een owb-vloer doet alleen maar mee in het verticale evenwicht als de palen zowel verankerd zitten in de onderwaterbetonvloer als de constructieve vloer van de tunnel.

 

Horizontaal

In verband met onderhoud aan voegen, wanden of andere tunneldelen moet het in principe mogelijk zijn een wand van de tunnel vrij te graven. De tunnel dient dan zijn horizontaal evenwicht te bewaren.

 

 

 

Horizontale gronddruk

Artikel nr. 72

Opspaneffect door fluctuerende temperaturen en waterstanden

In hoofdstuk 10 van ROK [27] is aangegeven, dat het oplopen van de gronddruk als gevolg van fluctuerende temperaturen en eventueel fluctuerende waterstanden in rekening moet zijn gebracht.

In het verleden is bij ten minste twee tunnels de bovenzijde van de betonnen wanden in de toeritten significant verplaatst. Daarom zijn bij de Vlaketunnel de wanden ontlast en verankerd door middel van een verankerde juk-constructie en deels door het wegnemen van een significant deel van de grondbelasting (‘grachtvariant’). Dat kon helaas maar over een beperkte lengte en diepte gerealiseerd worden, daar anders de kanteldijk instabiel zou worden. De ‘grachtvariant’ is natuurlijk veel goedkoper dan een verankeringsconstructie. Bij het ontwerp is destijds geen rekening gehouden met het opspaneffect en met de verschoven momentenlijn.

 

 

 

Stempeling van wanden

Artikel nr. 73

Stempels waarborgen de constructieve integriteit. Stempels kunnen ten gevolge van uitzetting door opwarming worden overbelast waardoor ze kunnen bezwijken (uitknikken). Bij het ontwerp van de stempels moeten de gevolgen van temperatuurbelasting daarom worden beschouwd. Belangrijk aandachtspunt is de stabiliteit van de aansluiting stempel-gording-wand.

Om temperatuurspanningen te reduceren worden zon beschenen stempels ook wel wit geschilderd.

 

Permanente stempels en de aansluitingen op de wanden dienen tevens op een brandbelasting te worden gedimensioneerd.

 

Stempels dienen naast de genoemde typen temperatuurbelasting, ook berekend te worden op een toevallige puntlast. Bij een gestempelde bouwkuip moet ook gerekend worden met stempeluitval. In de gording mogen hierbij plastische scharnieren geschematiseerd worden. Bij stempeluitval behoeft de temperatuurbelasting niet in rekening te worden gebracht.

 

Voor permanente stempels behoeft stempeluitval niet altijd in rekening te worden gebracht mits sprake is van een robuust ontwerp. Zo is bij de verdiepte ligging/aquaduct A4 Leiderdorp (relatief diepe ligging en tijdens een deel van de bouwfase vlak naast de in gebruik blijvende A4) gebruik gemaakt van zware betonnen stempels, die zowel een functie in de bouwfase, als in de gebruiksfase hebben. Deze zware betonnen stempels hebben een hart-op-hart-afstand van 12 m (breedte circa 2,5 m). Er is toen geoordeeld dat de kans dat zo’n zware en daardoor robuuste stempel zou uitvallen voldoende klein is zodat daarmee geen rekening behoefde te worden gehouden. Een extra maatregel is dat het stempel via de kopbalk direct is vast gestort aan de combiwand, zie figuur 73.1.

 

http://farm8.staticflickr.com/7187/6897227711_0e4aee2f1d_b.jpg

 

Figuur 73.1 - Permanente stempels bij verdiepte ligging A4 te Leiderdorp (bouwfase)

 

Thermische belasting

Artikel nr. 74

De thermische belasting op constructies komt aan de orde in NEN-EN 1991-1-5/NB [108].

 

In aanvulling daarop geeft ROK [27] aanvullende bepalingen voor tunnels. Hierbij wordt onderscheid gemaakt tussen het open en het gesloten gedeelte van de tunnel. Het in rekening te brengen temperatuurverschil tussen de grondzijde en de binnenzijde van de wand in de zomer- en winterperiode is in ROK [27] vastgelegd. Ook bestaat onderscheid tussen jaarlijkse en dagelijkse temperatuurverschillen.

 

Aanvullende bepalingen over de te beschouwen klimatologische temperatuurinvloeden bij spoortunnels zijn gegeven in OVS 00030-6 [104].

 

 

 

Belasting door brand

Artikel nr. 75

Voor een uitgebreide beschrijving van het onderwerp brandwerendheid, inclusief de daartoe te treffen voorzieningen, wordt verwezen naar Brandwerendheid.

Achtergrond

Er zijn 2 belangrijke overwegingen om rekening te houden met belasting door brand:

Belasting door brand komt aan de orde in NEN-EN 1991-1-2 [108] en de bijbehorende Nationale Bijlage. Deze regelgeving is uitsluitend gebaseerd op de eerstgenoemde veiligheidsoverweging. Bezwijken na een brand wordt dus wel toegestaan, als het maar lang genoeg duurt tot dit gebeurt. De hiervoor in acht te nemen tijdsduur volgt uit het bouwbesluit (zie het Bouwbesluit 2012 [75], Artikel 2.10. lid 8 en 2.14 lid 6). De op basis van het bouwbesluit aan te houden tijdsduur varieert, afhankelijk van de situatie, van 30 tot 120 minuten. Opmerkelijk is dat, naast een onderscheid in bestaande en nieuwe tunnels, tevens ondercheid gemaakt wordt naar tunnels onder open water en niet onder open water. Afhankelijk van het type constructie kan worden bepaald of de toepassing van hittewerende bekleding wel of niet noodzakelijk is om de geëiste tijdsduur te halen.

In de historische context werd, voor de constructieve integriteit, bij de eerste verkeerstunnels geen rekening gehouden met de calamiteitsbelasting brand. Naar aanleiding van een brand in de Velsertunnel in 1978 zijn brandproeven uitgevoerd bij TNO. Dit leidde tot de geboorte van de RWS-brandkromme. Deze brandkromme symboliseert het leegbranden van een grote tankwagen (200 á 300 MW) in 2 uur. Na 2 uur brand dient de temperatuur achter de hittewerende bekleding kleiner of gelijk aan 380 ºC te zijn en ter plaatse van het wapeningsstaal 250 ºC. Deze temperatuureisen zijn er op gebaseerd dat de constructie na 2 uur RWS-brandkromme nog repareerbaar is; dit is dus een economische afweging.

Eisen

Voor het omsloten deel van een tunnel geldt de tunnelbrandkromme (de vroegere RWS-brandkromme) volgens art. 3.2.4 van NEN-EN 1991-1-2/NB [108]. Voor niet-gesloten delen (toeritten en verdiepte ligging) geldt de koolwaterstofkromme (hydrocarbon) volgens art. 3.2.3 van NEN-EN 1991-1-2 [108]. Toepassing van de laatstgenoemde koolwaterstofkromme is in die gevallen gerechtvaardigd omdat de temperatuur in niet gesloten delen minder hoog zal oplopen.

De tweede variabele is de in rekening te brengen tijdsduur. Tenzij anders voorgeschreven in de vraagspecificatie wordt hiervoor 120 minuten aangehouden.

Tunnels voor autowegen

In ROK [27] wordt verwezen naar de aanvullende toelichtingen voor tunnels voor autoverkeer:

Volgens 5.2 van ROK [27] wordt de opgelegde vervorming als gevolg van de temperatuurbelasting tijdens de brand geacht geen invloed te hebben op de sterkte van de constructie tijdens de brand. Daarom hoeft de brandbelasting niet in rekening te worden gebracht bij het bepalen van de krachtswerking. Dit geldt niet voor constructiedelen die de constructieve integriteit waarborgen en waarvan de werking verloren kan gaan bij temperatuurbelasting, zoals stempels in toeritten (knik, pons etc.). In deze gevallen dienen de gevolgen van temperatuurbelasting wel te worden beschouwd.

Het te kiezen betonmengsel moet daarnaast ongevoelig zijn voor doorgaand afspatten onder invloed van brandbelasting. Het gaat er hierbij om dat na de eerste afspatting, geen voortgaand proces ontstaat waarbij het beton laagje na laagje verdwijnt. Dit dient aan de hand van testen te worden aangetoond.

Voor de overkapping Leidsche Rijn was de brandduur in de vraagspecificatie verkort tot 1 uur (behalve bij dienstgebouw en middenkanalen met kabels); dit omdat de gevolgen van het falen van deze overkapping, gebouwd op het maaiveld en 100% boven de grondwaterstand, aanzienlijk minder zullen zijn dan bij een tunnel gelegen onder een vaarweg.

Voor de verdiepte ligging in de A4 nabij Leiderdorp is het deel naast het aquaduct voorzien van een horizontaal geluidscherm (de luifel). Voor deze luifel is een bestendigheid tegen een Hydrocarbon brand van 1 uur geëist; voor de hoofdconstructie echter 2 uur. Dit verschil heeft ook weer als achtergrond het verschil in gevolgen van het falen voor deze 2 constructiedelen.

Een ander voorbeeld is een kerend wandje waar, bij falen, alleen wat grond op de vluchtstrook terecht komt en kan worden overwogen geen enkele brandwerendheidseis te stellen.

Spoortunnels

Voor spoortunnels wordt in OVS00201 [24] onder eis 3.1.1.12 vermeld dat de brandwerendheid met betrekking tot bezwijken ten minste 120 minuten moet bedragen op basis van de standaard temperatuur volgens de bovengenoemde RWS-brandkromme. De eisen 3.1.1.19 en 20 geven verdere details betreffende de brandwerendheid.

Belasting door explosie

Artikel nr. 76

Buitengewone belastingen komen aan de orde in artikel 5.1(1)P van NEN-EN 1991-1- [108], waarin onder andere wordt verwezen naar bijlage D. Bijlage D.3, die informatief is, gaat specifiek in op explosies in auto- en spoortunnels.

 

Bij tunnelontwerpen voor RWS geldt daarnaast ROK [27]. In §5.7 van ROK [27] staat dat bij tunnels volgens de categorieën B, C, D of E, in relatie tot het interne risico, geen rekening behoeft te worden gehouden met explosies. Voor tunnels volgens categorie A dient alleen met de effecten van een explosie rekening te worden gehouden als de specifieke omstandigheden, in relatie tot het externe risico, daar aanleiding toe geven.

Voor de indeling in categorieën zie ADR 2013 Europees Verdrag betreffende het internationaal vervoer van gevaarlijke goederen over de weg [47]. In 5.7 van ROK [27] is bovenstaande toegelicht. De kans op een gasexplosie is bij alle tunnelcategorieën klein door allerlei maatregelen die voorgeschreven worden vanuit de Basisspecificatie TTI RWS Tunnelsystemen versie 1.2 (BSTTI) [80].

Bovendien wordt getwijfeld aan het realiteitsgehalte van de in (informatieve) bijlage D.3 van NEN-EN 1991-1-7 [108] gegeven extreem hoge waarde van de explosiedruk (detonatie), namelijk een piekdruk van 2000 kN/m2 (20 bar). Geen enkele bestaande tunnel is hier ook maar in de verste verte tegen bestand tenzij het een zeer diep liggende tunnel of een bergtunnel is. Voor nieuwe tunnels werkt deze eis uiterst kostenverhogend en voor bijvoorbeeld een ondiep liggende landtunnel is het desastreus, terwijl de kans van optreden zeer beperkt is.

 

Voor spoorwegen wordt voor bepalingen ten aanzien van het vervoer van gevaarlijke stoffen verwezen naar RID 2013 Regulations Concerning the International Carriage of Dangerous Goods by Rail [48].

 

Bij spoortunnelontwerpen voor ProRail wordt wel rekening gehouden met explosiebelasting in tunnels. In OVS00201 [24] eis 3.1.1.10 wordt vooralsnog verwezen naar NEN-EN-1991-1-7 [108], maar gezien bovenstaande zal dat waarschijnlijk op korte termijn worden herzien door ProRail.

 

Achtergrond en motivatie

Bijlage B van NEN-EN 1991-1-7 Informatie voor risicobeoordeling [108] geeft een beschrijving van een risicoanalyse, met als mogelijke uitkomst risicoaanvaarding. Als dit de uitkomst van een risicoanalyse is, behoeft de tunnel niet meer in deterministische zin op 2000 kN/m2 piekdruk te worden berekend. Deze ontsnapping wordt door RWS gehanteerd omdat tunnelbouw anders vrijwel onmogelijk is.

 

In het verleden werd door RWS, en tot voor kort ook door Prorail, een statische inwendige overdruk van 100 kN/m2 gehanteerd. De meeste afgezonken tunnels zijn hier tegen bestand. Deze pragmatische eis kostte dus niets. Bij ondiepere landtunnels ligt dat anders, daar kost deze eis ook al behoorlijk veel extra wapening, zonder dat deze belasting van 100 kN/m2 de tunnel bestand maakt tegen een mogelijk optredende grote gasexplosie of een BLEVE (Boiling Liquid Expanding Vapour Explosion, dat wil zeggen een tankwagen die in het vuur ligt en na enige tijd met geweld openbarst). Daarom is bij RWS al jaren geleden de oude eis van 100 kN/m2 vervallen. Dit heeft bijvoorbeeld bij de Combitunnel Nijverdal tot gevolg gehad dat het weggedeelte niet op een explosiedruk van 100 kN/m2 is ontworpen en het spoordeel wel.

 

Ter vergelijking kan de piekdruk bij een detonatie van 2000 kN/m2 uit NEN-EN-1991-1-7 [108] worden omgerekend naar een equivalente statische belasting. De hiervoor benodigde dynamische belastingfactor kan worden ontleend aan De Jong [50] en heeft voor de buitenwaarts gerichte belasting een waarde van 2. De statisch equivalente belasting van de piekwaarde wordt daarmee gelijk aan 4000 kN/m2. Dit is 40 maal zo groot als de in het verleden gehanteerde eis van 100 kN/m2. Daar valt in realistische zin niet op te ontwerpen/construeren (ook niet bij spoortunnels).

 

Bij de A2 tunnel te Maastricht worden, in het kader van de Integrale GebiedsOntwikkeling, aanvullende eisen gesteld aan de bebouwing in de directe nabijheid van de tunnel. Mocht er een zware explosie plaatsvinden in de vorm van een BLEVE, dan zullen maximaal 2 moten bezwijken waarbij het naastliggende vastgoed mogelijk schade oploopt. Het aanbrengen van ankers in de kerende wand, als de ondersteuning van de constructie wegvalt, kan dan een oplossing zijn met relatief beperkte kosten. De kans van optreden van een gasexplosie wordt ook bij dit project voldoende klein geacht om daar niet op te construeren.

 

In NEN-EN 1997-1-7 [108] is het type explosie BLEVE niet opgenomen. Uit redelijk recent onderzoek door TNO/TUD [50] is gebleken dat bij dit type explosie piekdrukken van circa 1000 kN/m2 kunnen optreden. Mogelijk is de kans van optreden van een BLEVE groter dan die van een gasexplosie, omdat de BLEVE gerelateerd is (vervolggebeurtenis) aan het verschijnsel brand. Brand heeft in het algemeen een zodanige kans van voorkomen dat de tunnel hierop ontworpen moet worden.

Het verschil met een gasexplosie, waartoe NEN-EN 1997-1-7 [108] zich beperkt, is dat het effect van een BLEVE meer lokaal is (over een lengte van 30 á 40 m). Bij een gasexplosie kan onder ongunstige omstandigheden de tunnel over de gehele lengte bezwijken.

De in NEN-EN 1991-1-7 [108] genoemde piekdruk van 100 kN/m2 bij een deflagratie (explosieve verbranding) is volgens de huidige inzichten echter te laag. Deze piekdruk kan het vijfvoudige bedragen.

Samenvattend wordt gesteld dat de informatieve bijlage D.3 uit NEN-EN 1997-1-7 [108] met het nodige engineering judgement beschouwd dient te worden.

 

Anderzijds kan ook gekozen worden voor bv. een watermist systeem om een BLEVE te voorkomen.

 

 

 

Seismische belastingen

Artikel nr. 77

In hoofdstuk 11 van ROK [27] wordt verwezen naar NEN-EN 1998 [110]. In het algemeen zijn monoliete ondergrondse constructies, zoals tunnels, of onderdelen daarvan niet bijzonder aardbevingsgevoelig als:

Te allen tijde dient lokale kennis te worden vergaard.

In de ROK [27] is aangegeven voor welke delen van Nederland geen aardbevingsbelasting in beschouwing behoeft te worden genomen.

 

 

Fundering

Artikel nr. 78

In dit artikel komen aan de orde:

 

 

 

Grondonderzoek

Artikel nr. 79

Het verdient aanbeveling om voor het uitvoeren van geotechnisch onderzoek een risicogestuurde aanpak te volgen. De onzekerheden in de ondergrond zijn doorgaans groot en de oorzaak van veel faalkosten.

In het kader van het programma Geo-Impuls is hiervoor een werkwijze ontwikkeld onder de naam Geotechnisch Risicomanagement (GeoRM), wat in feite een expliciete geotechnische verdieping is van het gangbare RISMAN-proces voor het risicomanagement in projecten. Met GeoRM worden de risico’s die gerelateerd zijn aan de ondergrond, op een transparante en expliciete manier onderdeel van projecten. Geotechnische risico’s kunnen zo tijdig en afdoende worden beheerst, wat resulteert in een efficiënt en succesvol project.

Door RWS is een Handreiking opgesteld, waarin de toepassing van GeoRM in iedere projectfase nader wordt toegelicht. Voor projecten van RWS is het gebruik van GeoRM verplicht.

Voor een nadere toelichting op Geo-impuls en GeoRM: zie www.geoimpuls.org

Bij het opstellen van een concreet grondonderzoek moeten verder de volgende normen en richtlijnen worden voorgeschreven (in volgorde van prioriteit):

Het is noodzakelijk om in het grondonderzoek tevens de geologische en geohydrologische condities in kaart te brengen, omdat deze een sterk bepalende invloed hebben op de mogelijke risico’s tijdens de bouw- en gebruiksfase van de tunnel.

Zwel bouwputbodem

Als een significatie zwel van de grondlagen beneden de ontgraven bouwputbodem wordt verwacht, is het zinvol ongedraineerde triaxiaalontlastproeven (TA-CU proeven) op ongeroerde grondmonsters uit te voeren. Dit zijn ongedraineerde proeven waarbij de axiale en radiale totaalspanningen worden verlaagd. Hieruit wordt niet alleen informatie gekregen over het zwelgedrag maar ook over de veranderingen in de waterspanningen in de ondergrond bij het ontgraven van de bouwput. Met name als een groutstempel is toegepast, is deze informatie nuttig. Voor achtergrondinformatie over TA-CU proeven wordt verwezen naar de rapportage van het in opdracht van het COB door Geodelft uitgevoerde onderzoek bij de Sophia Spoortunnel [83].

Voor het bepalen van de zwelbelasting moet worden uitgegaan van de

publicatie 661.14 van SBRCURnet [110].

Fundering op staal

Artikel nr. 80

Bij het ontwerp van een op staal gefundeerde tunnel komen de volgende aspecten aan de orde:

Voor verdere details wordt verwezen naar §10.1 van ROK [27].

 

In Dilatatievoegen en stortnaden komen de voegconstructie en de daarbij behorende ontwerpaspecten nader aan de orde.

 

Variatie beddingsstijfheden

In hoofdstuk 10 van ROK [27] wordt ingegaan op de in rekening te brengen variatie in de stijfheid van de ondergrond.

 

Trekken van damwanden nabij een fundering op staal

Als nabij de op staal gefundeerde tunnel een damwand wordt toegepast, mag deze alleen worden getrokken als in het ontwerp een voldoend grote afstand tussen de damwand en de tunnel aanwezig is. In §10.1 van ROK [27] wordt hiervoor een eis gesteld.

 

Tand- of deuvelconstructie

Bij een fundering op staal is de kans op optreden van verschilverplaatsingen relatief groot, waardoor een verdeuveling vaak noodzakelijk is.

 

Er zijn echter altijd uitzonderingen. Bij de A2 tunnel te Maastricht heeft de aannemer ervoor gekozen de voegen tussen de op staal gefundeerde stortmoten niet te verdeuvelen. De argumentatie hierbij is dat zeer weinig verschilzetting over de voegen wordt verwacht en zeker geen doorgaande zetting in de loop der tijd. De uit kalksteen bestaande ondergrond is namelijk zeer stijf. Daarnaast wordt in den droge gebouwd waardoor de uitvullaag tussen beton en kalksteen zeer goed verdicht kan worden, terwijl bovendien de korrelspanningen onder de vloer van de tunnel in de gebruiksfase relatief laag zijn vanwege de opwaartse waterdruk. Wel wordt tussen de vloerdelen van de tussenvloer (de vloer tussen bovenste en onderste verdieping van de gestapelde tunnel) een verdeuveling toegepast in de vorm van een roestvast stalen penconstructie die in langsrichting beweegbaar is. Deze verdeuveling dient niet om de tunneldelen onderling te koppelen, maar uitsluitend om elastische doorbuigingsverschillen die het gevolg zijn van de verkeersbelasting te voorkomen. Zonder deze pennen zou de voeg(vullings)constructie van de tussenvloer maar een zeer beperkte levensduur hebben. Ook het rijcomfort speelt hierbij een rol.

 

 

 

Fundering op palen

Artikel nr. 81

In het ontwerprapport van een fundering op palen moeten naast de vigerende normen de volgende uitgangspunten in het document zijn aangegeven of verwerkt:

In §10.1 van ROK [27] komen de volgende aspecten aan de orde die een rol spelen bij het ontwerp van een op palen gefundeerde tunnel:

Verder vermeldt ROK [27] dat bij de toepassing van relatief slappe trekelementen (zoals bijvoorbeeld Gewi-ankers) onder ongewapende owb-vloeren de puntvormige opleggingen geschematiseerd moeten worden overeenkomstig de stijfheid van deze relatief slappe trekelementen. Het schematiseren als starre steunpunten van dit type trekelementen is onjuist en daarom niet toegestaan. De verticale veerstijfheid van palen, ankers en damwanden moet worden bepaald volgens de in CUR-aanbeveling 77 [4] gegeven rekenregels.

Trekken van damwanden nabij een fundering op palen

Het trekken van damwanden kan een nadelig effect hebben op een naburige paalfundering. Bij tunnels zal het meestal gaan om trekpalen. In §10.1 van ROK [27] worden eisen gesteld aan de afstand tussen de damwand en de trekpalen.

Verbinding funderingselement met de onderwaterbeton- en de constructievloer

Bij trekpalen en ankers moet gecontroleerd worden of de trek- en de eventuele drukkracht niet leidt tot ontoelaatbare spanningen in het funderingselement. Deze spanningscontrole betreft zowel de spanning op de overgang tussen de owb-vloer en de ondergrond, als op de overgang tussen owb-vloer en constructievloer. Vanwege de duurzaamheid is ook de scheurvorming op deze niveaus van groot belang, aangezien het funderingselement nooit meer bereikbaar is voor herstel. Vooral in veenlagen is er risico op aantasting van het staal door anaerobe corrosie.

Als in het trekelement een drukkracht kan optreden moet zo nodig de knikstabiliteit worden gecontroleerd, namelijk als een deel van de paalschacht omringd is door slappe grondlagen. Aandachtspunt hierbij is dat de beton- of groutomhulling bij in de grond gevormde ankers (meestal) niet tot de onderzijde van de owb-vloer wordt aangebracht.

Tand- of deuvelconstructie

Een tand- of deuvelconstructie, zoals toegepast bij een fundering op staal, is bij op palen gefundeerde tunnelmoten meestal niet noodzakelijk. Bij een relatief starre paalfundering (ten opzichte van een fundatie op staal) zijn geen tanden of deuvels noodzakelijk, omdat de verschilverplaatsingen over een voeg meestal klein zullen blijven.

Soms worden echter wel nokken toegepast. Als bijvoorbeeld een tunnelmoot ongelijke gronddrukken heeft, waardoor deze moot de neiging heeft om in het horizontale vlak te gaan draaien, worden nokken in de vloer toegepast die de horizontale krachten overdragen naar de naastgelegen moot of moten. Dit is bijvoorbeeld het geval bij stationsonderdoorgang Leidschenveen.

Horizontaal belaste palen

Niet-axiale belastingen op palen moeten bij voorkeur worden voorkomen door het toepassen van schoorpalen. Wanneer dit niet mogelijk is, moeten de buigende momenten in de palen door de horizontale belastingen worden bepaald met behulp van een computerprogramma gebaseerd op de theorie van de verend ondersteunde ligger (zie ROK [27], hoofdstuk 10, eis 7.7) .

Indien sprake is van een niet symmetrische situatie aan weerszijden van de tunnelbuis, neigt deze in dat geval te roteren om een verticale as. Er ontstaat dan een verschil in verticale belasting op de paalrijen over de doorsnede en er werkt een horizontale belastingcomponent op de fundering. Een dergelijke situatie kan het gevolg zijn van een niet symmetrische maaiveldbelasting aan weerskanten van de tunnel, bijvoorbeeld door een scheve wegkruising, een ongelijk maaiveld, verschillende grondwaterstanden of grondcondities. Zeker bij palen met een lage buigstijfheid zoals ankerpalen kan dit tot een maatgevend mechanisme leiden.  De berekening van de paalkrachten in dit soort gevallen mag geschieden met behulp van de stijve plaattheorie, waarbij uitgegaan wordt van een rechtlijnig verband tussen de paalstijfheid, de afstand tot het zwaartepunt en de paalkracht ten gevolge van het rotatiemoment, waarbij echter ook rekening dient te worden gehouden met het horizontaal evenwicht.

Ook in geval van niet horizontaal verlopende constructies, ontstaan horizontale reactiekrachten. Dit was een niet onderkend probleem bij de Wijkertunnel. Bij de overgang van de op palen gefundeerde open toerit bak naar de folieconstructie is om die reden ongewenste horizontale verplaatsing opgetreden.

Detaillering

Aandachtpunten bij de uitvoering zijn:

  1. De wapening van de paal ten behoeve van transport en heien wordt door de paalleverancier bepaald. Wapening ten gevolge van overige belastingen (zoals horizontale belasting) moet apart aan de paalleverancier worden doorgegeven.
  2. Minimale wapening van voorgespannen beton palen, zie artikel (9) in hoofdstuk 6.4 van ROK [27].
  3. Bij koppensnellen de steklengte niet ombuigen maar doorzetten tot aan het bovennet en daarna pas ombuigen, zie artikel (9) in hoofdstuk 6.4 van ROK [27].
  4. Blijvende voorspanning in de prefab palen, zie artikel (9) in hoofdstuk 6.4 van ROK [27].
  5. Indien rekening gehouden moet worden met zwerfstromen, de paalwapening los houden van de vloerwapening;
  6. Ter controle van de berekening bij elke sondering de volledige kalender opnemen van de dichtstbijzijnde paal.

Zettingsproblematiek aansluiting gedilateerde constructiedelen

Artikel nr. 82 (bevat geen inhoud, zie onderliggende artikelen)

Algemeen

Artikel nr. 83

Overmatige zetting en zettingsverschillen kunnen bij op staal gefundeerde constructies leiden tot problemen. Bij op palen gefundeerde constructies treedt ook zetting op maar deze is doorgaans dermate beperkt dat daarbij geen problemen zijn te verwachten.

 

Bijzondere aandacht ten aanzien van de zettingsproblematiek is nodig bij de aansluiting van op palen aan op staal gefundeerde constructies. Dit kan bijvoorbeeld het geval zijn bij de aansluiting van de tunnel op de toerit. Ook kan hier sprake zijn van een overgang van een op druk belaste fundering naar een op trek belaste fundering. Voor de toerit kunnen, vanwege het beperkte gewicht, trekpalen zijn toegepast terwijl de tunnel zelf een op druk belaste fundering heeft.

Voor de bouw van de tunnel wordt grond ontgraven. Als de tunnelbuis niet zwaarder is dan de ontgraven grond treedt (vrijwel) geen zetting op. Bovendien is meestal sprake van een opwaartse waterdruk tegen de tunnelbuis, waardoor het effectief gewicht afneemt.

 

De grootte van de zetting is afhankelijk van de grondopbouw (aanwezigheid en dikte van de samendrukbare lagen) en de belastingtoename op de ondergrond. Een deel van de zetting treedt gedurende de bouw op. Bij slecht waterdoorlatende grond kunnen echter ook na de bouw nog niet-verwaarloosbare zettingen optreden.

 

Ook door naburige bouwactiviteiten na voltooiing van de tunnel kan nog (extra) zetting ontstaan, bijvoorbeeld door bemaling van een bouwput en/of terreinophogingen.

 

In het algemeen kan worden gesteld dat schade en problemen door (verschil)zettingen vooral ontstaan bij afgezonken, op staal gefundeerde tunnels.

 

 

Verschilzetting

Artikel nr. 84

Als tussen twee aansluitende tunnelelementen verschil in zetting kan ontstaan, moet het constructief ontwerp zodanig zijn dat geen schade kan optreden. figuur 84.1 geeft het geval weer dat door zetting van tunnelsegment A schade ontstaat aan tunnelsegment B. De tandoplegging van het segment wordt extra belast waardoor deze kan afscheuren, zie figuur 84.2.

Figuur 84.1 - Verhindering vervorming bij verschilzakking tussen tunnelsegmenten

 

Figuur 84.2 - Gescheurde tandoplegging door verschilzetting

 

 

De eerste maatregel om dit te voorkomen is het voldoende wapenen van de tanden/kragen opdat bij eventuele scheurvorming de scheurwijdte beperkt blijft. Hierdoor wordt het risico op lekkage, waarbij zand uit de ondergrond meegevoerd wordt, kleiner.

Door de constructie op palen te zetten is geen verdeuveling meer noodzakelijk. De tanden kunnen dan ook niet meer afbreken (koude haakse voeg).

 

 

Open voegen

Artikel nr. 85

Door verschil in zetting tussen de verschillende tunnelsegmenten kan rotatie ontstaan, zie figuur 85.1. Het doel van de aanwezige voegen is de tunnelbuis flexibel te maken, waardoor het in de figuur getoonde vervormingsbeeld kan ontstaan. Zolang de aanwezige rubber-metalen voegstrook de rek kan meemaken en de tand/kraag niet scheurt is er geen lekkage als gevolg van de optredende vervormingen.

 

Om te beoordelen of te grote voegopeningen ontstaan, kan een langsberekening van de tunnel worden gemaakt, waarbij het niet-lineaire gedrag van de voegen wordt meegenomen, samen met de variabiliteit van de grondslag en de belastingssituatie.

 

In Dilatatievoegen en stortnaden van dit handboek wordt nader ingegaan op voegconstructies en de detaillering ervan. De praktijkervaring in Nederland is evenwel dat de ideale voegconstructie nog niet gevonden is. Lekkende dilatatievoegen komen regelmatig voor, zowel in de bouwfase als in de gebruiksfase. Derhalve is het zaak de deformatieverschillen tijdens de gebruiksfase zoveel mogelijk te beperken.

 

 

 

Figuur 85.1 - Rotatie van moten

 

Als zeer duidelijk voorbeeld van openstaande voegen kan de noordelijke toerit van de eerste Coentunnel worden genoemd. Deze toerit is sinds de bouw in de jaren 60 van de vorige eeuw aan het uiteinde bijna 0,15 m in noordelijke richting verplaatst. Een eenduidige verklaring hiervoor ontbreekt. De meest gangbare hypothese is dat in de winter de voegen door krimp wat verder open komen te staan en in de zomer niet geheel weer terugkomen (hysteresis). Waarschijnlijk komt in de winter zand/grond in de voegen, waardoor in de loop der tijd de voegen steeds verder open zijn komen te staan. De verplaatsingen correleren met deze grotere voegbreedtes.

Bij de bouw zijn bij zeven moten van de toerit trekpalen toegepast. Onlangs is extra ballast aangebracht om de deformatie en de verdere schade te stoppen. De primaire reden om de ballast aan te brengen was de grote twijfel over de constructieve integriteit van de aanwezige trekpalen (bezwijken wapening in overgang trekpaal/vloer en daarmee het gevaar van opdrijven). Of daarmee ook de toename van de voegbreedtes gestopt is, is zeer de vraag.

 

 

Dilatatievoegen en stortnaden

Artikel nr. 86

In dit artikel wordt ingegaan op de ontwerpaspecten van voegen en voegprofielen, inclusief specifieke regelgeving. ‘Best Practices’ voor de uitvoering van dilatatievoegen komt aan de orde in Dilatatievoegen best practice van dit handboek. Daarin is ook de motivering voor de beschreven oplossingen gegeven. Separaat worden een aantal specifieke aspecten van voegen in afgezonken tunnels behandeld.

Probleemstelling

Artikel nr. 87

Beton heeft een beperkte treksterkte. Als de trekspanning deze sterkte overschrijdt, leidt dat in een betonnen tunnel tot scheurvorming. Bij aanwezigheid van waterdruk aan de buitenzijde van de tunnel is een gevolg daarvan lekkage. Behalve dat lekkage ongemak voor de gebruikers veroorzaakt, kan de wapening op den duur ook worden aangetast en de constructie worden beschadigd. Water dat op het wegdek komt geeft gevaar voor het auto- en motorverkeer en in de winter kan door bevriezing schade aan de constructie ontstaan. Daarnaast kan lekkage door de vloer ook leiden tot opdrukken van asfalt, waardoor de beschikbaarheid van de tunnel in het gedrang komt. De volgende 2 mechanismen zijn verantwoordelijk voor de genoemde trekspanningen:

  1. Temperatuurveranderingen veroorzaken het langer of korter worden van beton. Indien het langer of korter worden wordt belemmerd, ontstaan respectievelijk druk- en trekspanningen in het beton. Opgemerkt wordt dat de drukspanning door het beton in het algemeen gemakkelijk kan worden opgenomen, waarbij eventuele reeds aanwezige scheuren zelfs kunnen worden dichtgedrukt.

  2. Indien sprake is van ongelijkmatige zettingen ontstaan druk- en trekspanningen spanningen in de constructies. In lange constructies kunnen grote trekspanningen en dus ook scheuren ontstaan.

 

Voor beide oorzaken geldt dat de grootte van de trekspanningen toeneemt met de lengte van de tunnelmoten. De grootte van de optredende trekspanningen kan dus worden beperkt door de lengte van de moten te limiteren. Betonmoten in de tunnelbouw hebben om die reden veelal een lengte van circa 25 m.

Dilatatievoegen

Artikel nr. 88

Om de grootte van de spanningen door de hierboven genoemde oorzaken te beperken, wordt een tunnel in moten verdeeld. Hierbij wordt de wapening telkens onderbroken op de overgang van 2 moten. Hierdoor ontstaan tussen de moten zogenaamde dilatatievoegen. Veelal worden deze voegen dusdanig uitgevoerd dat deze geen enkele kracht kunnen overbrengen. Een dergelijke constructieve onderbreking tussen de moten aan weerszijden maakt deformatieverschillen mogelijk zonder dat dat leidt tot spanningen in de constructie.

In afwijking van het bovenstaande worden dilatatievoegen soms van kraag- of tandconstructies voorzien, waarmee wél dwarskracht, maar geen moment of normaalkracht kan worden overgebracht. Doel hiervan is om deformatieverschillen tussen tunnelmoten te voorkomen. Daarnaast worden in sommige gevallen tunnelmoten koud tegen elkaar gestort, waardoor de doorsnede wel normaalspanningen (uitsluitend druk) kan overbrengen.

Dilatatievoegen dienen te worden voorzien van een voorziening, bijvoorbeeld een rubberen voegstrook, om ze waterdicht te maken. De noodzaak tot waterdichtheid geldt uiteraard onder, maar ook boven de grondwaterstand, omdat er tijdens perioden van regenval altijd sprake kan zijn van door de bovenlagen passerend grondwater.

Afstanden tussen de dilatatievoegen kunnen verschillen van project tot project. Belangrijke overwegingen die deze afstand bepalen zijn:

In de praktijk leiden deze overwegingen veelal tot afstanden van circa 25 m.

Samengevat wordt met een dilatatievoeg het volgende beoogd om grote spanningen in het beton ten gevolge van temperatuurvariaties en ongelijkmatige zettingen te voorkomen. Aandachtspunten hierbij zijn:

  1. Het mogelijk maken van enige verschilverplaatsing in lengterichting en enige verschilrotatie om de as van de tunnel, op de overgang tussen twee aanliggende moten.
  2. Het garanderen van de waterdichtheid en gronddichtheid van de voeg aan de buitenzijde en het vuildicht en brandwerend maken aan de binnenzijde.
  3. In sommige gevallen het garanderen van de luchtdichtheid, bijvoorbeeld bij de afscheiding tussen verkeersbuis en het vluchtkanaal.

Stubeco heeft in 2007 een rapport over ontwerp en de uitvoering van dilatatievoegen uitgebracht: [155].

Stortnaden

Artikel nr. 89

Stortnaden zijn naden op de aansluiting tussen 2 separaat te storten delen, bijvoorbeeld de aansluiting van een wand op een reeds gestorte vloer. Onderscheid tussen een stortnaad en een dilatatievoeg is dat de wapening in het geval van een stortnaad doorloopt.

 

Aandachtspunt voor een stortnaad is dat hier een lekweg voor water kan ontstaan. De kans hierop kan sterk worden beperkt door met een aantal aspecten rekening te houden:

 

  1. Opschoning

    Het toepassen van een goede voorbehandeling van het reeds aanwezige verharde beton alvorens de nieuwe stort plaatsvindt.

    Hierbij wordt vertrager aangebracht direct na het storten en afwerken van de eerste stort. Binnen 24 uur (de volgende dag) wordt vervolgens de cementhuid van het reeds aanwezige beton verwijderd met een hogedrukreiniger, waarna de volgende stort kan plaatsvinden.

     

  2. Invloed krachtswerking

    De waterdichtheid van een stortnaad wordt sterk beïnvloed door de krachtswerking in de gebruiksfase. Zo is bijvoorbeeld een horizontaal verlopende voeg, ter plaatse van bijvoorbeeld de aansluiting wand aan dak van een tunnel, veelal aanmerkelijk gunstiger dan een verticale voeg, omdat de voeg in het eerste geval zal worden dichtgedrukt door de over te brengen normaalkracht.

     

  3. Koeling beton

    Door krimp van het beton tijdens verharding kan, zelfs in geval van een perfecte aansluiting, scheurvorming ontstaan. Bij de bouw van de Vlaketunnel (1972-1975) werd voor het eerst geëxperimenteerd met het koelen van de buitenwanden. Daaruit bleek dat het mogelijk was om waterdicht beton te maken. Inmiddels is deze methode gebruikelijke techniek in Nederland.

    De koeling beperkt de temperatuurverschillen tijdens het verhardingsproces en verkleint daarmee de rekverschillen tussen reeds verhard (koude) beton en vers gestorte beton. Koeling kan plaatsvinden door koelbuizen op te nemen in de constructie of een koelkist toe te passen.

     

  4. Zwelband

    Het toepassen van zwelbanden op bentonietbasis in tunnels voor het waterdicht maken van stortnaden van tunnels is in Nederland nog niet toegepast. Bij de A4 in verdiepte ligging bij Leiderdorp is wel zwelband toegepast, echter ook niet in stortnaden maar tussen de damwand en de constructievloer. Het gebruik van zwelbanden en zwelkit bij ondergrondse parkeergarages is inmiddels wel een geaccepteerde toepassing. Van groot belang is dat de keuze voor het juiste zwelband/zwelrubber met de juiste afmetingen wordt gemaakt. Ook moet er gekozen worden tussen verlijmen of mechanisch bevestigen. Als het zwelband enkele weken voor het storten moet worden gemonteerd, bijvoorbeeld door dat er veel tijd nodig is om de wapening te plaatsen, is het raadzaam een vertrager toe te passen om voortijdige zwelling te voorkomen. Opgemerkt wordt dat bij toepassing van zwelband de kwaliteit van het aansluitende beton rond de zwelband erg bepalend is voor de te realiseren waterdichtheid.

     

  5. Kimblik

    Een kimblik is een stalen voegband die dient als lekweg verlenger. Een dergelijke band is voorzien van een uit speciaal materiaal gemaakte ruwe zijde, waarmee een zeer goede aansluiting met beton wordt verkregen. Deze wordt soms tevens voorzien van een zwelband voor de aansluiting aan de andere zijde. Dit is een in het verleden veel toegepaste techniek, die tegenwoordig vrijwel nooit meer wordt toegepast omdat aangetoond is dat een correct uitgevoerde stortnaad de beste oplossing is. Zie ook [156].

  6. Injectieslang

    In sommige gevallen wordt op de overgang van 2 storten een injectieslang toegepast. Het idee is dat via deze slang op verschillende posities achteraf kunsthars kan worden geïnjecteerd om waterdichtheid te bereiken. Hoewel dit theoretisch een goede oplossing lijkt, wordt deze niet aanbevolen vanwege minder positieve ervaringen.

     

  7. Verwijderen stremstaal/haringgraatstaal

    Op verticale overgangen tussen 2 storten wordt veelal strem- of haringgraatstaal toegepast. Teneinde een goede aansluiting tussen de 2 storten te verkrijgen, moet dit worden verwijderd voor het aanliggende deel wordt gestort.

     

     

De ervaring leert, dat het toepassen van hulpmiddelen t.b.v. het verbeteren van de waterdichtheid van de constructie ter plaatse van (stort-)voegen over het algemeen niet automatisch leidt tot goede resultaten. De reden hiervoor is dat de kwaliteit van de werkzaamheden op een lager plan kan komen, omdat men verwacht dat het hulpmiddel de waterdichtheid verzorgt. Echter de zorgvuldigheid van de uitvoering is altijd van groot belang, juist ook in het geval er hulpmiddelen worden toegepast.

 

 

Afdichtingsprofielen

Artikel nr. 90

In dilatatievoegen worden afdichtingsprofielen toegepast, teneinde de vereiste waterdichtheid, gronddichtheid en eventueel luchtdichtheid te bereiken. In onderliggende artikelen wordt in algemene zin op deze profielen ingegaan.

 

 

Achtergronden en regelgeving

Artikel nr. 91

Veelal wordt een rubbermetalen voegstrook in de dilatatievoeg van tunnelmoten toegepast. De volgende documenten, aanwezig in de COB Databank, geven achtergronden hierover:

Waterdichtheid

In hoofdstuk 13.14 van ROK [27] wordt ten aanzien van de waterdichtheid ingegaan op rubberen voegafdichtingen voor tunnels. Hierin wordt doorverwezen naar NEN 7030 Waterkerende dilatatievoegstroken en al of niet waterkerende oplegstroken van rubber [124].

De zettingseisen voor op staal gefundeerde tunnels zijn primair bedoeld om het rijcomfort te garanderen. Waterdichtheid van het type rubbermetaalvoegstrook zijn afhankelijk van de heersende waterdruk en de grootte van alle te verwachten verplaatsingen in de voeg. Grond- en vuildichting worden veelal door andere profielen of voorzieningen verzorgd.

Gronddichtheid

Onvoldoende gronddichtheid kan leidden tot schade aan de constructie door het indringen van grond in dilatatievoegen en het daardoor belemmeren van de bewegingsruimte. Bij open toeritten is dit verschijnsel een probleem, aangezien het tot paalbreuk kan leiden. Het mechanisme is als volgt: ’s Winters staan voegen open en er treedt grond in de voeg. In de zomer wordt het uitzetten van de constructie en dus het verkleinen van de voeg, verhinderd doordat de voeg vol zit met grond. De constructie gaat als geheel verplaatsen. De volgende winter wordt de constructie weer korter, voeg gaat open, meer grond erin etc..

De gronddichtheid speelt ook een rol bij de (tijdelijke) bouwputbegrenzing. Bij onvoldoende gronddichtheid van een damwand, boorpalenwand of diepwand bestaat het risico voor ontoelaatbare beïnvloeding (waaronder deformatie) van belendende constructies.

Luchtdichtheid

Eisen ten aanzien van de luchtdichtheid hebben onder andere betrekking op de (vlucht)deuren en de doorvoeringen van het vluchtkanaal van de tunnel. Voor bepalingen over (vlucht)deuren wordt verwezen naar de Basisspecificatie TTI RWS Tunnelsystemen versie 1.2 (BSTTI) [80].

Overzicht normen

Producenten van dilatatievoegenbanden kunnen deze zelf controleren, testen op vorm en materiaaleigenschappen. In dit geval spreekt men over WN werk norm of fabrieksnorm voegenbanden. Daarnaast kan de producent er voor kiezen deze werk norm voegenbanden extern te laten controleren door bijvoorbeeld: TNO, MPA, INTRON, enz.

De producent kan er ook voor kiezen voegenbanden volgens een nationale en/of internationale voegenband-norm te laten vervaardigen. In deze voegenband-normen zijn vaak minimale en/of maximale waardes voor breuk-rek verhoudingen, treksterkte enz. opgenomen. Ook kunnen profiel geometrieën nader omschreven zijn. Voorbeelden van deze normen zijn:

  1. ASTM D412-75 (American Standerd Test Method)
  2. BS 2571 (British Standard)
  3. NEN 7030 (Nederlandse Eenheids Norm)
  4. DIN 7865 (Deutsche Industrie Norm)
  5. DIN 18541 (Deutsche Industrie Norm)
  6. DIN 18197 (Deutsche Industrie Norm)

De voor Nederland belangrijkste normen worden hieronder uitvoerig besproken.

NEN 7030: Nederlandse norm speciaal bedoeld voor Rubber voegprofielen. In deze norm worden de eisen en testen voor materiaal samenstelling en mechanische eigenschappen vastgesteld. De producent is niet verplicht tot een externe controle.

Tabel 91.1 - NEN 7030 rubber voegprofielen

NEN 7030
Rubber SBR
Hardheid (shore A) 60 +/- 5
Shore A (de waarde 60 is een door de fabrikant op te geven waarde)
conditionering 72 uur bij 0 gr C < 5 Shore A verandering beginwaarde
conditionering 72 uur bij -10 gr C < 8 Shore A verandering beginwaarde
Treksterkte > 17,1 N/mm2
Rek bij breuk > 375 %
Scheursterkte (N) > 31,1 N of bij een 8 mm2 proefstrook is dat
3,89 N/mm2
Duurzaamheid na 14 dagen 70 C volgens Geer-Evans opgehangen in een luchtthermostaat
verandering treksterkte < 25 %
Rek bij breuk < 30 %
Hardheid < 8 Shore A verandering beginwaarde
Compressie set 72 uur 20 gr C < 10 % , geen barsten of scheuren
Wateropname < 30 gr/m2
Bestendigheid tegen ozon 120 uur geen barsten
/ 25 pphm/23 gr C/ 20 %
 

Bestendigheid tegen koude

Hardheidsverandering bij 0 gr C < 5 Shore A verandering beginwaarde
Hardheidsverandering bij -10 gr C < 8 Shore A verandering beginwaarde
 

DIN 18541: Duitse norm speciaal bedoeld voor voegprofielen uit tricomeren. In deze norm worden de eisen en testen voor materiaal samenstelling, vorm en afmetingen en mechanische eigenschappen vastgesteld. De producent is verplicht tot een externe controle. Op het voegenband moeten type aanduiding, DIN-codering, chargenummer en markering van de externe controle-instantie duidelijk zichtbaar zijn!

Tabel 91.2 - DIN 18541 voegprofielen

Materiaaleigenschappen (uittreksel uit DIN 18541 deel 2)
Nr.
Eigenschap
Test volgens DIN
NB
BV
1 treksterkte in N/mm2 53455 10 10
2 53455 350 350
3 53505 67 ± 5 67 ± 5
4 53507 12 12
5 53455 200 200
6 verandering bij bewaring
in bitumen
(28 dagen, 70 graden in %)
– treksterkte 53455 ± 20
– rek bij breuk in % 53455 ± 20
– E-module 53457 ± 50
 

 

DIN 7865: Duitse norm speciaal bedoeld voor rubber voegprofielen. In deze norm worden de eisen en testen voor materiaal samenstelling, vorm afmetingen en mechanische eigenschappen vastgesteld. De producent is verplicht tot een externe controle. Op het voegenband moeten type aanduiding, DIN-codering, chargenummer en markering van de externe controle-instantie duidelijk zichtbaar zijn.

Tabel 91.3 - DIN 7856 rubber voegprofielen

DIN 7856
Shore-A-Harte 62 +/- 5
Zugfestigkeit min. 10 N/mm2
Reissdehnung min 380 %
Druckverformingsrest
168 h/23 gr C max 20 %
24 h/ 70 gr C max 35 %
Weiterreissfestigkeit min 8 N/mm
Kalteverhalten max 90 Shore A
Verhalten Ozon Ozon Rissstufe 0
Zugformungsrest max 20 %
Metallhaftung Bruch im Elastomer
Formbestandigkeit Heissbitumen Kein
 

DIN 18197: Is een Duitse toepassingsnorm waarbij de keuze van het toe te passen type voegenband in relatie met werking en waterdruk gebracht wordt. Zo kan de ontwerper op basis van zijn parameters een verantwoorde keuze voor het toe te passen dilatatievoegenband maken.

De meest voorkomende dilatatievoegenbanden in tunnels en onderdoorgangen zijn de W9U/W9U injectie (NEN norm) en de FMS-350/400/500, eventueel met injectie (DIN norm).

Tabel 91.4 - vergelijking DIN/NEN

Vergelijk DIN/NEN NEN DIN 7856

Materiaal W9U

FMS 350

Hardheid (shore A) 60 +/- 5 60 +/- 5 62 +/- 5

61

Trekvastheid N/mm2 17,1 17,1 17,1

17,1

Rek-/Breuk % 375 375 > 380 %

454

Treksterkte gevulkaniseerd voegenband kN 21,1 21,1

Treksterkte verbinding staal/rubber kN 21,1 21,1

 

De meest kritische eisen zijn de treksterkte, rek bij breuk en de scheursterkte.

Als de hardheid (shore A) toeneemt neemt de scheursterkte af.

Materialen

Artikel nr. 92

Naast de traditioneel voor afdichtingsprofielen veel toegepaste rubbersoorten zoals Styrene butadiene rubber (SBR), Chloroprene rubber (CR), Nitril rubber (NBR) en Natural rubber (NR), zijn ook profielen beschikbaar uit PVC, TPE-compound, Ethylene Propylene Diene Monomer (EPDM) en PVC/NBR.

 

Een belangrijke, nog onbeantwoorde, vraag is in hoeverre deze materialen geschikt zijn voor civiele constructies met een ontwerplevensduur van 100 jaar, rekening houdend met het feit dat het meestal gaat om essentiële details die niet inspecteerbaar zijn.

 

RWS is voornemens een oriënterend onderzoek te laten verrichten in hoeverre PVC/NBR gelijkwaardig is aan SBR. De resultaten hiervan waren op het moment van schrijven nog niet bekend.

 

Voor ACME profielen zijn door de leverancier diverse eigenschappen aangegeven:

Tabel 92.2 - Properties of different rubber types

Natural-rubber/
Isoprene
NR/IR
Styren-butadien rubber SBR Butadi-ene rubber BR Etylene propylene rubber EPM/EPDM Butyl rubber IR Chloro-prene rubber CR Nitrile rubber NBR Silicone rubber PMQ*
PROPERTY
Max temp (F) 176 194 176 248 194 185 194 392
Min temp (F) -58 -40 -103 -31 -49 -31 -22 -112
Tear strength 4 3 3 3 3 3 3 1
Abrasion resistance 4-5 4-5 5 3 3 3-4 3 1-2
Oil/fuel
resistance
1 1 1 1 1 2-3 3-4 2-3
Weather/
ozone
resistance
1-2 1-2 1-2 5 4 3 1-2 5
Water
swelling
4 4 4 5 4 2-3 3-4 2
Fire resistance 1 1 1 1 1 3 1 2
Rebound low temp. 5 3 5 3 1 3 3 5
Rebound
high temp.
5 3 5 3 3 4 3 5
Fatigue 4 4 4 4 3 4 2 1-2
Bonding to
metal
4-5 4-5 4-5 3 2 4 4 2
Bonding to
textile
4-5 4-5 4-5 3 2 4-5 3-4 2

Grading of properties: 5 excellent, 4 very good, 3 good, 2 satisfactory and 1 poor.

* To show the large variation between the varius types we have included silicone rubber as an exemple.

 

Bron:website van Trellenborg

 

 

Verbindingen in profielen

Artikel nr. 93

Om een aaneengesloten voegenbandsysteem te verkrijgen, zal er bijna altijd in het voegenband gelast of gevulkaniseerd moeten worden. In SBR-rubber voegenbanden kunnen in de praktijk op de bouwplaats alleen maar stuiklassen gevulkaniseerd worden, hetgeen betekent dat men in geval van dat materiaal alleen rechte delen aan elkaar kan lassen. Vormstukken zullen in de fabriek als prefab systeem gemaakt moeten worden. Overigens is dat laatste ook in geval van toepassing van andere materialen zeer aanbevelenswaardig om vertraging tijdens de uitvoering op de bouwplaats te voorkomen.

 

Vormstukken

Figuur 93.1 - Vormstukken

 

Voor de bestelling van de hierboven afgebeelde standaard vormstukken kan worden volstaan met de afbeeldingen uit de standaard catalogus, echter voor complexere vormstukken moeten zoveel mogelijk vooraf detailtekeningen worden gemaakt.

 

PVC en Tricomere voegenbanden hebben het voordeel dat deze zowel in de fabriek als op het werk gelast kunnen worden. Als dan zou blijken dat de maatvoering niet volledig overeenkomt met de realiteit in het werk, is het nog mogelijk op de bouwplaats correcties aan te brengen.

 

Goede maatvoering en planning blijven echter zeer belangrijk, eenmaal geleverd is het veelal niet eenvoudig om wijzigingen aan te brengen en als het vanwege de materiaalkeuze al mogelijk is, leidt dat al gauw tot vertragingen!

 

Figuur 93.2 - Voorbeeld van een detailtekening vormstuk

 

Vulkaniseren van rubber voegenbanden

Rubber voegenbanden worden onder druk en hitte met toevoeging van half gevulkaniseerd rubber met elkaar verbonden. Voor een goede drukverdeling is het gebruik van de juiste voegenbandmatrijzen (figuur 93.3) essentieel.

Het maken van deze verbindingen kan alleen door geschoold personeel en of door de leverancier zelf uitgevoerd worden.

 

Figuur 93.3 - Voorbeeld van vulcanisatie met matrijs en vulcanisatie-apparaat

 

Bepaalde leveranciers hebben ook ‘koude’ vulkanisatie in de aanbieding. Echter onbekend is de levensduur van de daarmee bereikte verbinding.

 

Lassen van PVC en Tricomere voegenbanden

PVC en PVC/NBR mengcompounds zoals het Tricomere, worden met behulp van hitte met elkaar verbonden. Dit hoeft niet met matrijzen te gebeuren, een lasbijl en hete lucht föhn is voldoende om het materiaal vloeibaar te maken zodat het in elkaar kan overlopen.

Ook hier is het raadzaam deze verbindingen door geschoold personeel uit te laten voeren.

Figuur 93.4 - Voorbeeld van lassen van een PVC voegenband met een hete lucht föhn

 

Vonkentest

Door middel van een vonkentestapparaat kan de PVC/Tricomere verbinding op dichtheid getest worden. Bij onvoldoende dichtheid slaat de vonk door het voegenband heen. Ook deze controle kan alleen door geschoold personeel uitgevoerd worden.

Figuur 93.5 - Voorbeeld van vonkentest bij een PVC-voegenband

 

 

Checklist profielen

Artikel nr. 94

Om een waterdichte dilatatie met toepassing van dilatatievoegenbanden te kunnen verkrijgen is het van belang dat het voegenband goed ingestort is en op de juiste manier toegepast. Onderstaand volgen een aantal controlepunten voor ontwerper, werkvoorbereider, inkoper, projectleider en uitvoerder.

 

Ontwerper

Werkvoorbereider

 

Inkoper en/of projectleider

 

Uitvoerder

Zie lijstje werkvoorbereider, alsmede:

 

Zink-, sluit- en mootvoegen afgezonken tunnels

Artikel nr. 95

Dit artikel heeft betrekking op de moot-, zink- en sluitvoegen in de vloer, de wanden en het dak van de tunnelelementen. In de volgende artikelen wordt achtereenvolgens ingegaan op de probleemstelling en de functies die verschillende onderdelen hebben.

 

 

.Probleemstelling

Artikel nr. 96

Een zinktunnel wordt niet gebouwd op de locatie waar deze moet liggen. De af te zinken tunnel wordt gebouwd in een bouwdok, dat soms naast het tracé ligt (Heinenoordtunnel) maar soms ook heel ver weg (Wijkertunnel, die zelfs over zee werd getransporteerd). Ook kan de zinktunnel ter plaatse worden gebouwd door een deel van het tracé tijdelijk als een bouwdok in te richten (Zeeburgertunnel) of in de toerit. Voorbeelden van het laatste zijn de aquaducten Margriettunnel, Alphen a/d rijn en Walcheren. Afhankelijk van de lengte van het afgezonken deel van de tunnel wordt deze, op economische en bouwtechnische gronden, verdeeld in een aantal tunnelelementen die later één voor één worden afgezonken en waterdicht aan moeten sluiten. De aansluitvlakken worden de zinkvoegen genoemd.

 

Voor het afzinken van het laatste tunnelelement is extra ruimte nodig voor de manoeuvreerbaarheid (toleranties) om veilig te kunnen afzinken tussen twee elementen (of element en landhoofd). Hierdoor ontstaat, na het aansluiten van dat tunnelelement op het voorgaande, aan de andere zijde van het tunnelelement, een opening van circa 1,20 m die de sluitvoeg wordt genoemd. Deze sluitvoeg ligt tussen twee tunnelelementen of tussen een tunnelelement en het landhoofd (of overgangsgedeelte). Dit laatste is meestal niet het geval omdat er voldoende waterdiepte of ruimte naast het element moet zijn om het laatste element op zijn plaats te leggen. De sluitvoeg wordt bij voorkeur zoveel mogelijk buiten de vaargeul gepositioneerd. Enerzijds ter voorkoming van stremmingen voor de scheepvaart, anderzijds ter voorkoming van belemmering van de werkzaamheden aan de sluitvoeg door wervelingen van de stuwstraalstromen van schepen.

 

Zink- en sluitvoegen van afgezonken tunnels moeten de volgende functies vervullen:

  1. de tunnelelementen moeten op elkaar aan kunnen sluiten;

  2. er dient een waterdichte constructie gemaakt te worden;

  3. er moeten geringe bewegingen loodrecht op het voegvlak mogelijk zijn;

  4. er moeten geringe rotaties loodrecht op as tunnel mogelijk zijn;

  5. de verschilverplaatsing en -rotatie in de voegen moeten worden voorkomen.

 

Op deze manier vormen de moten van de tunnelelementen een waterdichte ”kettinglijn” waarbij de zink- en sluitvoegen samen met de mootvoegen de schakels vormen. In opvolgende artikelen worden deze verschillende voegtypen achtereenvolgens beschreven.

Nadere informatie over zinkvoegdetaillering kan tevens worden gevonden in het COB rapport Instandhouding zinkvoegen [157].

 

 

Zinkvoeg

Artikel nr. 97

Bij de eerste zinktunnel, de Maastunnel, werden de tunnelelementen op een meter afstand van elkaar afgezonken. Tussen de tunnelelementen werden wiggen geplaatst om te voorkomen dat bij het leegpompen van de zinkvoegen de tunnelelementen, door de waterdruk, naar elkaar toe worden gedrukt. Rondom de tunneldoorsnede werden stalen schotten geplaatst die waterdicht werden gelast tegen de stalen bekleding van de tunnel. Na het leegpompen van de zinkvoeg, werd de volledige betonnen tunneldoorsnede gestort. Om het dak van de voeg in den droge te kunnen storten stak het stalen dakschot als een caisson 2,0 m boven het dak uit. Het dakschot werd voorzien van een schacht die boven het waterniveau uitstak. Na het storten van het dak werd deze voorzien van een stalen bekleding die waterdicht werd gelast aan de tunnelbekleding. Het stalen dakschot en de schacht werden later verwijderd.

 

Voor het aansluiten van de tunnelelementen wordt tegenwoordig het Gina-profiel gebruikt. Het profiel werd eind jaren vijftig door Gemeentewerken Rotterdam ontwikkeld en begin jaren zestig voor het eerst toegepast voor het afzinken van de tweede zinktunnel in Nederland, de Metrotunnel onder de Maas te Rotterdam. Het verschil met de zinkvoeg van deze Metrotunnel is, dat tegenwoordig in de droge zinkvoeg:

Het in de zinkvoeg te storten tunneldeel wordt aan de ene zijde constructief verbonden met een van de tunnelelementen en aan de andere zijde voorzien van een dilatatievoeg met tand- of deuvelconstructie om zettings- en rotatieverschillen tussen de tunnelelementen te voorkomen en dwarskracht over te brengen. Vanaf de Wijkertunnel is steeds een dubbele tand in de vloer gemaakt i.p.v. een stalen deuvel of constructieve tand in het dak. Hiervoor dient er wel voldoende hoogte in de vloer aanwezig te zijn.

 

Voor meer achtergrondinformatie over zinkvoegdetaillering wordt verwezen naar [het COB rapport Instandhouding zinkvoegen].

Sluitvoeg

Artikel nr. 98

In de jaren 1970 t/m 1988 werd als afdichting in de sluitvoeg, in de resterende ruimte van deze voeg, een dubbel omega-profiel toegepast, terwijl de vloer en de wanden constructief met beton met elkaar werden verbonden. Ter plaatse van het dak werden toen de zogenaamde No- Brandaplaten toegepast.

 

Bij het maken van de Botlek (G.W.R.) en later de Tunnel onder de Noord is men weer overgegaan op de “ouderwetse, maar in een nieuw jasje gestoken” constructieve voeg, zoals eerder toegepast bij de Maastunnel, zie het voorgaande artikel.

 

In de sluitvoeg worden t.p.v. de wanden betonnen wiggen geplaatst en rondom de aangepaste rechthoekige tunneldoorsnede afgedicht met stalen schotten. Daar de tunnel tegenwoordig geen stalen bekleding meer heeft kunnen de schotten niet waterdicht worden aangelast. De schotten worden met behulp van rubberen fenderprofielen waterdicht op de tunnelelementen aangesloten m.b.v. knevelverbindingen. Na het leegpompen van de sluitvoeg wordt de volledige betonnen tunneldoorsnede gestort. De tunneldoorsnede in de sluitvoeg wordt aan de ene zijde constructief verbonden met een van de tunnelelementen en aan de andere zijde voorzien van een dilatatievoeg met tand- of deuvelconstructie om zettingsverschillen tussen de tunnelelementen te voorkomen en dwarskracht over te brengen. Als waterdichting wordt de voeg aan beide zijden voorzien van een injecteerbare rubbermetalen voegstrook.

 

De zinkvoeg van de Noordtunnel is uitgevoerd met een enkel omega-profiel. In de verticale stortnaad van deze aanstorting zit echter wel een W9U-I. Deze is vooraf aangestort (in het bouwdok).

 

Op zich zouden de tunnelelementen aan beide zijden van de sluitvoeg ook voorzien kunnen worden van een stalen omranding, waarop de sluitvoegschotten of stalen afdekplaten waterdicht op gelast kunnen worden.

Afgezien van het lastige en moeilijk op kwaliteit te controleren waterdichte laswerk (deels onder water) past dit niet meer in het huidige overall concept t.a.v. waterdichtheid voor tunnelelementen dat in Nederland algemeen gehanteerd wordt. 

 

Mootvoeg

Artikel nr. 99

De dilaterende moten van een afgezonken tunnelelement worden koud tegen elkaar aangestort. Dit wordt gedaan om de volgende redenen:

  1. Tijdens het transport en afzinken moet het tunnelelement als één geheel werken. De tunnelelementen worden om deze reden voorzien van een (tijdelijke) langsvoorspanning waarbij het element als een voorgespannen ligger wordt berekend. De waterdruk wordt tijdens het transport en afzinken meegerekend als voorspankracht.
  2. In de voegen mogen tijdens het afzinken geen gapingen optreden. Verplaatsing van de kopvlakken betekent spanningsverlies.
  3. De horizontale waterdruk op elke moot van het tunnelelement moet via de voeg direct worden overgebracht naar de volgende stortmoot, zonder enige verplaatsing.

Aan het eind van de tunnel bevindt zich een overgangsgedeelte, dat de horizontale waterdruk naar de fundering moet overbrengen. Daarvoor is een bepaalde lengte nodig. Indien het overgangsgedeelte te lang wordt, kunnen scheuren optreden en wordt het overgangsgedeelte verdeeld in twee of meerdere stortmoten. Elk van deze moten brengt dan een deel van de totale horizontale kracht over naar de fundering en brengt de rest over naar de volgende moot c.q. moten. Ter voorkoming van aanhechting tussen de stortmoten dient het voegvlak van het eerst gestorte deel glad uit de kist te komen en met bitumen te worden bestreken.

Dit geldt ook voor het voegvlak van het later aan te brengen ballastbeton in de tunnelelementen

Wanneer de tunnelelementen op staal worden gefundeerd, wordt een tand-, visbek of deuvelconstructie toegepast om ongelijke translatie en rotatie van twee opeenvolgende moten te voorkomen. Door de tand in de vloer door te zetten in de buitenwanden en dak, ontstaat er een tandkrans of deuvelconstructie die dwarskracht en torsie kunnen overbrengen. Om een verticale verplaatsing te voorkomen dient het oplegvlak van de tand niet schuin maar horizontaal te worden uitgevoerd. De breedte van het oplegvlak moet niet meer dan 0,30 m zijn om rotatie van de moten nog mogelijk te maken. De toepasing van de visbekconstructie wordt gekozen in gevallen, waarbij de bovenbelasting te groot wordt om de krachten te kunnen op nemen. Voorbeeld is de dilatatievoeg bij de Willemspoortunnel (1987-1992).

Bij de spoortunnels Dortsche Kil en Oude Maas (2003/2004) is i.p.v. een tandoplegging d.m.v. een krans, gekozen voor een console oplegging in de buitenwanden. Hierbij is de aansluiting van de moten vlak. Omdat verkeerstunnels veelal breder zijn, staat niet op voorhand vast dat deze oplossing ook in die gevallen afdoende zou zijn. Dit zou voor die gevallen nader onderzocht moeten worden.

Wanneer de tunnelelementen en het overgangsgedeelte op palen worden gefundeerd, is een tand- of deuvelconstructie niet gewenst. Door verschil in zetting van de palen worden grote krachten in de tand geïntroduceerd. Bovendien moet de tand in twee richtingen kunnen werken waardoor een verdikking van de vloer noodzakelijk is.

Tand- en kraagconstructies

Artikel nr. 100

Teneinde de moot-, zink- en sluitvoegen van afgezonken tunnels te verdeuvelen kunnen tand- of kraagconstructies worden toegepast. Klassiek is de kraagconstructie, echter de laatste jaren wordt in Nederland (en al eerder in het buitenland) veelal een tandconstructie toegepast. Tanddeuvels hebben vooral het grote voordeel, dat de waterdichtheid en de dwarskrachtoverdracht via een aparte constructie geregeld zijn, dit in tegenstelling tot de kraagconstructie. De kraagconstructie heeft als nadeel, dat eigenlijk alleen de kraag ter plaatse van de wanden aan de dwarskrachtoverdracht meewerkt wanneer er een drukpunt ontstaat. De wanden zijn namelijk zeer stijf en zullen hierdoor vrijwel alle dwarskrachtoverdracht op die snede naar zich toe trekken. Hierdoor bestaat het gevaar dat de kraag (indien onvoldoende gewapend) scheurt en dat er dan een lekweg ontstaat doordat de rubbermetalen voegstrook dan achterloops wordt.

Een nadeel van tandconstructies is, dat de oplegblokken t.b.v. het inleiden van de deuvelkracht inspectie en onderhoud behoeven en dat deze tegen brand moeten worden beschermd (zie detaillering 2e Coentunnel).

Figuur 100.1 - Tandconstructie in de 3 wanden van een afgezonken spoortunnel

 

Aan de basis aan het ontwerp van de verdeuveling ligt de bepaling van de op te nemen dwarskracht. De grootte van deze dwarskracht is afhankelijk van het verschil in belasting op naastliggende tunnelmoten in combinatie met variaties in de beddingstijfheden van de fundatie van de afgezonken tunnel. Het belastinggeval ‘gezonken schip’ kan hier maatgevend bij zijn.

 

In de ROK [27] staat aangegeven welke stijfheidsverschillen, bij het ontbreken van werkelijke waarden voor de stijfheid van de grondslag, aan gehouden dienen te worden:

 

Figuur 100.2 - Aan te houden variaties in beddingstijfheid

 

Voor de factor moet worden aangehouden:

= 0,9 grindbed

= 0,75 zandbed bij een niet-afgezonken tunnel

= 0,5 door onderstroming verkregen zandbed (afgezonken tunnel)

 

Voor de bepaling van de effecten in langs- en dwarsrichting van de variatie in beddingsstijfheden, moet een berekening worden uitgevoerd waarbij de tunnelconstructie samen met de verende werking van de ondergrond wordt geschematiseerd (b.v. verenmodel en/of EEM). Indien een kraagconstructie rondom wordt toegepast, moet rekening worden gehouden met het feit dat de krachten in de kraag nabij stijve hoeken en tussenwanden het grootst zijn.

 

Bij een meer geconcentreerde tandconstructie speelt dit effect niet; bij een tandconstructie is dus de verdeling van de krachten in de tunneldoorsnede eenvoudiger te bepalen dan bij een kraagconstructie rondom.

 

Omdat de tunnelmoten relatief gedrongen zijn, liggen bij verschilzakkingen de drukpunten afwisselend onder en boven in de doorsnede. Een additionele normaalkracht ten gevolge van temperatuuruitzetting tilt de slapper ondersteunde moot op, met hogere dwarskrachten tot gevolg; zie ook pag. 58 van  Cement 5 [125].

 

Figuur 100.3 - Verloop druklijn als gevolg van verschilzakking.

 

In sommige gevallen dienen de tanden in de mootvoegen vastgezet worden tijdens het transport, om ervoor te zorgen dat er geen ongecontroleerde vervormingen in het tunnelelement optreden. Middels een rekenkundige analyse moet worden bepaald wat de spanningen in de voegvlakken van de moot- en elementvoegen zijn tijdens de transportfase. In SATO hoofdstuk 8 (SAATU) staan richtlijnen aangegeven voor de benodigde minimale spanning. Wanneer het risico bestaat op het ontstaan van een gaping (de drukspanning in de mootvoeg wordt kleiner dan de grenswaarde of 0), dan moeten de tandconstructies worden vastgezet. Bij transport over zee zal dit veelal het geval zijn.

 

Na het afzinken worden de tandconstructies in de zinkvoegen in het algemeen pas vastgezet als alle aanvulbelastingen aangebracht zijn en de daarmee gepaard gaande verplaatsingen grotendeels zijn opgetreden. Dit voorkomt dat de krachten in de tandconstructies zeer groot worden als gevolg van een éénmalig optredende zware belasting in de bouwfase. Bij het vrij onderling laten verplaatsingen van de tunnelmoten dient hiermee dan wel rekening te worden gehouden qua toleranties in de inwendige hoogte van het tunnelprofiel. Dit alles is vooral van belang als de aanvulbelasting op het dak nogal varieert. Deze problematiek heeft gespeeld bij de 2 afgezonken tunnels in de HSL (tunnels onder de Oude Maas en de Dordtsche Kil). Als gevolg van het definitief vastzetten van de tandconstructies in het bouwdok zijn zeer zwaar gewapende tanden vervaardigd, waardoor de tandconstructies relatief kostbaar waren.

 

Een belangrijk punt van aandacht is de afdracht van de geconcentreerde tandkracht naar de tunneldoorsnede toe; zowel in lengte- als dwarsrichting. Hiertoe kan een 3D-modellering behulpzaam zijn. Voor de lokale berekening van de wapening kan gebruik worden gemaakt van een vakwerkanalogie (een druk- en trekstavensysteem); zie ook art. 6.5. in NEN-EN 1992-1-1 [31].

Als de splijtkrachten in het contactvlak zeer groot zijn kan het noodzakelijk zijn een wapeningsnet dicht bij het oppervlak toe te passen. Dit moet dan wegens de duurzaamheid wel van roestvast staal zijn.

 

Wegens de zeer zware trekband kan er opsluitwapening en zelfs spekhaken om splijten van de drukdiagonaal te voorkomen noodzakelijk zijn. Rekening dient er mee gehouden te worden dat de tanden in de buitenwanden lokaal excentrisch liggen, waardoor een extra moment in de wand ontstaat.

 

Naast het opnemen van verschilkrachten in verticale richting over de voegen d.m.v. een tandconstructie dienen de verschilkrachten in horizontale zin ook te worden opgenomen. Dit kan m.b.v. een horizontale betonnen tand of, omdat de op te nemen krachten in horizontale richting in het algemeen veel lager zijn dan in verticale richting, met behulp van een stalen verdeuveling in de vloer.

Ook hier kan het belastinggeval van een zinkend schip naast de tunnel maatgevend zijn.

 

Folieconstructies

Artikel nr. 101

Wanneer er voor de toeritconstructie voldoende ruimte (breedte) voorhanden is en de geohydrologische omstandigheden het toelaten, kan worden overwogen om een folieconstructie toe te passen. Afhankelijk van de mogelijkheden qua bemaling etc., kan worden gekozen voor aanleg van een folieconstructie in den natte of in den droge. Een folieconstructie levert veelal een groene en ruim ogende constructie op, die over het algemeen prijstechnisch interessant is en – indien goed uitgevoerd – qua LCC en RAMS aspecten goed scoort. Er is echter ook sprake van nadelen. Reparatie van een lekgeraakte folieconstructie kan erg moeilijk zijn, terwijl bij voorbeeld één te diep uitgevoerde sondering in de aanvulling boven de folie deze schade al kan veroorzaken. Daarnaast is het verbreden van een bestaande folieconstructie een moeilijke zaak.

 

In artikel Kunstmatige polder met in den droge aangebrachte folie en Kunstmatige polder met in de natte aangebrachte folie wordt uitgebreid ingegaan op diverse aspecten van folieconstructies die respectievelijk in den droge of de natte worden aangebracht. Berekeningsmethoden zijn te vinden in Berekeningsmethoden.

 

Verdere ontwerpaspecten van folieconstructies en de bij folieconstructies horende detailleringen worden behandeld in het [handboek folieconstructies van SBRCUR].

 

Scheurvorming in verhardend beton

Artikel nr. 102

Een ‘klassiek’ probleem bij civiele constructies is het optreden van doorgaande watervoerende scheuren als gevolg van verhinderde vervormingen, ontstaan tijdens het verhardingsproces. De mate van scheurvorming wordt de laatste jaren zeker niet minder. Een element hierin zou kunnen zijn dat hoogovencementbeton veel grotere autogene krimp vertoont dan portlandcementbeton van gelijke sterkte. Scheurbeheersing is een belangrijk aspect met betrekking tot de waterdichtheid. Het uitvoeren van verhardingssimulaties is complex en voorbehouden aan specialisten welke beschikken over specialistische numerieke berekeningsmodellen. Wel is het handig inzicht te hebben in de materie om de specialist te kunnen volgen voor de praktische uitvoering.

 

Scheurvorming kan worden verhinderd, bijvoorbeeld door koeling, of worden beperkt door extra wapening. Met betrekking tot het koelen van beton worden dimensionering en uitvoeringsaspecten beschreven in Betonkoeling. De methode van koeling wordt vanaf begin jaren ’70 in de tunnelbouw toegepast, de Vlaketunnel is daarvan het vroegste voorbeeld.

 

Bij de eerste tunnels die gebouwd werden in Nederland is de waterdichtheid van de constructie verzorgd door het aanbrengen van een waterdicht membraam rond de tunnel (bitumineuze laag of staalplaat bekleding). 

 

In hoofdstuk 6 van ROK [27] wordt bij eis 7.3 uitgebreid ingegaan op deze materie.

 

Nadere ontwerpregels ter voorkoming van scheurvorming van de constructievloer op de owb-vloer zijn ook te vinden in CUR publicatie 2007-3 Scheurgedrag en berekening van constructievloeren van gewapend beton op onderwaterbetonvloeren [14].

 

 

In te storten onderdelen of ITSO’s

Artikel nr. 103

Dit artikel heeft betrekking op de in te storten onderdelen of ITSO’s in de vloer, wanden en dak van de tunnel.

 

Bij het ontwerp van de tunnel is eerst een uitspraak nodig over de systemen waarvoor instortvoorzieningen nodig zijn. Hierbij wordt onderscheid gemaakt in:

 

De wens voor instortvoorzieningen moet vroegtijdig in het ontwerpproces beschikbaar zijn om meegenomen te kunnen worden in het civiele ontwerp.

 

Voor het ontwerp van veel ingestorte voorzieningen is allereerst een ontwerp nodig, waarin integraal de systemen en inrichting van de tunnel is uitgewerkt. Pas dan kan de definitieve plaatsing van alle benodigde mantelbuizen, in te storten frames, sparingen en inkassingen worden bepaald. Wel zijn er een aantal standaard mantelbuizen en inkassingen/sparingen per systeemonderdeel in de tunnel nodig. Denk aan verlichting, ventilatie, signalering, vluchtdeuren en hulpposten. Deze benodige mantelbuizen en inkassingen/sparingen zijn in de objectdetailleringen opgenomen. 

Na het doorvoeren van kabels en leidingen moeten de buizen in de middenwanden over circa 50 mm vlamdicht worden dichtgezet met brandbestendig materiaal. Naast de reden van verhindering van vlamdoorslag, is dit noodzakelijk vanwege:

 

Schroefhulzen ten behoeve van bijvoorbeeld trappen en bordessen worden niet ingestort. Hiervoor worden later ankers ingeboord.

 

Een uitgebreide beschrijving van alle benodigde typen ITSO’s is opgenomen in Tandconstructies.

 

Brandwerendheid

Artikel nr. 104

In Inleiding is een algemene inleiding op brandwerendheid opgenomen, in Normen en richtlijnen voor brandwerendheid wordt specifiek op normen en richtlijnen ingegaan.

Een bondige beschrijving van de aan te houden brandbelasting is terug te vinden in Belasting door brand.

Inleiding

Artikel nr. 105

Brandwerendheid (ook wel brandbestendigheid of hitte isolerend vermogen) is een maat voor de tijdsduur, dat een constructie (bijvoorbeeld een wand, dak, damwand of stempel) een brand kan doorstaan zonder te bezwijken.

De term brandwerendheid wordt overigens vaak verward met het begrip WBDBO, de weerstand tegen branddoorslag en brandoverslag. De WBDBO betreft de eis die de Nederlandse regelgeving (het Bouwbesluit) stelt, de brandwerendheid is de constructie-eigenschap waarmee aan de WBDBO-eis kan worden voldaan.

 

De brandwerendheid met betrekking tot het bezwijken heeft betrekking op constructie-onderdelen en niet op de constructie als geheel. Hier is dus sprake van een constructieve componentbenadering en niet van een systeembenadering. Met de rekenkundige bepaling volgens de Eurocodes is het in beginsel ook mogelijk het gedrag van een gehele constructie bij brand te analyseren en bijvoorbeeld het positieve effect van een tweede draagweg mee te nemen, al zal component-falen bij tunnels meestal leiden tot systeemfalen.

 

In het bouwbesluit is sprake van compartimentering. Bij tunnels is compartimentering om branddoorslag te voorkomen in langsrichting niet eenvoudig mogelijk vanwege de verkeersfunctie. Alhoewel daar in principe middels bijvoorbeeld een watergordijn wel mogelijkheden voor te bedenken zijn, is dit in Nederland nog nooit toegepast. In dwarsrichting is deze brand- en rookwerende compartimentering er wel, voor een veilige vluchtmogelijkheid en ten behoeve van hulpverlening.

Hoewel eisen in artikel 2.10 lid 1 en 9 van het Bouwbesluit [75] worden gesteld aan de te beschermen bouwconstructies buiten het compartiment waar de brand is, wordt de eis impliciet gesteld aan de bouwconstructies van het brandende compartiment zelf. De te beschermen bouwconstructie zelf wordt namelijk niet belast door brand.

 

In de praktijk wordt daarom de sterkte bij brand van de bouwconstructies van het brandende compartiment berekend. Als aangetoond is dat deze bouwconstructies gedurende de geëiste tijdsduur niet bezwijken, dan is daarmee ook aangetoond dat te beschermen bouwconstructies buiten het compartiment niet (voortschrijdend) bezwijken.

 

Of constructies moeten worden beschermd tegen de mogelijke gevolgen van brand is vooral afhankelijk van de vraag wat de economische gevolgen zijn van het (gedeeltelijk) verloren gaan van de constructie. De kans op het (gedeeltelijk) verloren gaan is vooral afhankelijk van:

 

Het kan economisch verantwoord zijn om hitte werende bekleding aan te brengen in onderwatertunnels (en aquaducten) voor autosnelwegen ook al wordt het transport van (brand)gevaarlijke goederen door de betreffende tunnel niet toegestaan.

Een voorbeeld hiervan is het viaduct over de A5 ten behoeve van de taxibaan van vliegtuigen van de Polderbaan naar Schiphol. Hier is gezien het grote economische belang van het viaduct ervoor gekozen om het viaduct aan de onderzijde te voorzien van een hitte werende bekleding.

 

Het uitgangspunt van Rijkswaterstaat en ProRail hierbij is dat een tunnel na het optreden van een grote brand repareerbaar is en niet als verloren mag worden beschouwd.

 

 

Normen en richtlijnen voor brandwerendheid

Artikel nr. 106

Indien wordt ontworpen op de eisen in de LTS [90] dan voldoet men daarmee ook aan alle overige eisen. Dit houdt verband met het feit dat RWS uit het oogpunt van kosteneffectiviteit voor een hogere bescherming van de tunnel-assets kiest dan wettelijk vereist.

 

Voor de volledigheid en voor gevallen waar de LTS [90] niet van toepassing is, geeft dit artikel echter een globaal overzicht van de normen, eisen en richtlijnen (Eurocode, ROK [27] en OVS) die van toepassing zijn met betrekking tot brandwerendheid.


Het verloop van de brandtemperatuur bepaalt de grootte van de thermische belasting. Hiervoor wordt voor gebouwen vaak de standaardbrandkromme aangehouden, maar voor tunnels en toeritten gelden veelal andere brandkrommen die van toepassing kunnen zijn, zoals o.a. in de Nationale Bijlage van de Eurocode NEN-EN 1991-1-2 [108] is aangegeven. De standaardbrand is een internationale afspraak voor de beoordeling en classificatie van constructies. De werkelijke situatie bij brand kan behoorlijk afwijken van een standaardbrand. Het werkelijke gedrag wordt nauwkeuriger beschreven met een natuurlijke brand. De Eurocode NEN-EN 1991-1-2 [108] biedt de mogelijkheid hiermee te rekenen.

 

Samen met diverse marktpartijen heeft Rijkswaterstaat de Landelijke Tunnelstandaard (LTS) [90] ontwikkeld. De Tunnelstandaard is de standaard voor alle toekomstige rijkstunnels in Nederland. Een belangrijk onderdeel van de LTS [90] is de technische standaard. Hiermee worden de functionele eisen, processen, het ontwerp en de inrichting van rijkstunnels gelijkgetrokken.

 

Europese richtlijnen

Artikel nr. 107

Conform de Richtlijn 2004/54/EG (Europese Unie) dient de hoofdconstructie van alle tunnels waar een plaatselijke instorting van de constructie catastrofale gevolgen kan hebben, te voorzien in een hoog niveau van brandbestendigheid. Hierbij wordt gedoeld op bijvoorbeeld afgezonken tunnels of tunnels die de instorting van belangrijke aangrenzende constructies kunnen veroorzaken.

 

De Richtlijn Bouwproducten (BPR) 89/106/EEG [126] geeft voorschriften ten aanzien van de voor de bouw bestemde producten. Ten aanzien van brandveiligheid dient het bouwwerk zodanig te worden ontworpen en uitgevoerd dat bij brand:


Bouwbesluit

Artikel nr. 108

Conform het Bouwbesluit [75] §2.2.1 Nieuwbouw artikel 2.10 lid 8 mag de constructie van een nieuw te bouwen wegtunnel met een tunnellengte van meer dan 250 m niet binnen 60 minuten bezwijken bij brand in de tunnel. Indien de tunnel zich onder open water bevindt, dient deze periode tenminste 120 minuten te zijn. In geval van bestaande bouw bedragen deze perioden conform het bouwbesluit §2.2.2 [75] resp. 30 en 60 minuten.

Voor andere tunnels (een ander bouwwerk, geen gebouw zijnde) geldt artikel 2.10 lid 9, respectievelijk 2.14 lid 7 [75] dat een bouwconstructie bij brand in een brandcompartiment waarin de bouwconstructie niet ligt, niet mag bezwijken binnen een tijdsduur die afhankelijk van de bestemming en inrichting van het bouwwerk redelijkerwijs nodig is om het bouwwerk bij brand te kunnen verlaten en te doorzoeken, door het bezwijken van een bouwconstructie binnen of grenzend aan het brandcompartiment.

Conform het Bouwbesluit mag er geen of slechts beperkte voortschrijdende instorting plaatsvinden als gevolg van brand, bijvoorbeeld een constructie die afhankelijk is van de draagkracht van een andere bouwconstructie. De constructie dient zodanig te zijn dat het bouwwerk bij brand gedurende redelijke tijd kan worden verlaten en doorzocht, zonder dat er gevaar voor instorting is.

 

Eurocode (NEN-EN)

Artikel nr. 109

De Lidstaten van de Europese Unie (EU) en Europese Vrijhandelsassociatie (EVA) erkennen dat de Eurocodes in de hoedanigheid van verwijzingsdocumenten dienen als middel om aan te tonen dat gebouwen en civieltechnische werken voldoen aan de fundamentele eisen van de Richtlijn van de Raad 89/106/EEG [126], in het bijzonder aan de fundamentele eis nr. 1 – Mechanische weerstand en stabiliteit – en de fundamentele eis nr. 2 – Veiligheid in geval van brand.

In het geval van brand moet de constructieve weerstand voldoende zijn gedurende de voorgeschreven tijdsperiode.

In NEN-EN-1990 [107] en NEN-EN-1991 [108] zijn respectievelijk de grondslagen en de aan te houden belastingen vastgelegd, die de constructie tijdens brand moet kunnen dragen. Voor de rekenkundige bepalingsmethoden zijn er aparte normen per constructiemateriaal.

Voor beton-, staal-, staalbeton- en houtconstructies zijn dit respectievelijk de Eurocodes NEN-EN 1992-1-2 [31], NEN-EN 1993-1-2 [32], NEN-EN 1994-1-2 [127] en NEN-EN 1995-1-2 [128].

 

NEN-EN 1990+A1+A1/C2:2011/NB:2011 [107]

Brand wordt gezien als een buitengewone belastingcombinatie. Hierbij worden de belastingfactoren gelijkgesteld aan 1. De buitengewone belasting (bijv. aardbeving) is gelijk aan 0. De mechanische belasting wordt bepaald volgens NEN-EN 1990 [107] artikel 6.4.3.3, al dan niet bepaald aan de hand van een scenario-analyse. De constructieve weerstand van de tunnel dient voldoende te zijn gedurende de voorgeschreven tijdsperiode. De tunnel mag als verloren worden beschouwd.

In artikel 3.2.1.1 is ook sprake van de economische gevolgen en mag de tunnel niet als verloren worden beschouwd (bijvoorbeeld bij tunnels van Rijkswaterstaat en ProRail). In dit geval dient na de brand de tunnel de belastingen in de uiterste en bruikbaarheidsgrenstoestand kunnen blijven opnemen.

 

NEN-EN 1991-1-2+C1:2011/NB:2011 [108]

Bij het omsloten deel van een tunnel in of onder hoofdwegen, hoofdvaarwegen of spoorwegen moet conform §3.2.4 de tunnelbrandkromme (ook RWS-brandkromme genoemd) volgens figuur NB.1 worden toegepast. De duur van tunnelbrandkromme is 120 min. Voor alle andere tunnels dient conform §2.3 de standaardbrandkromme volgens §3.2.1 te worden gehanteerd met de tijdsduur zoals is aangegeven in het bouwbesluit.

 

Nederlandse normen (NEN)

Artikel nr. 110

Conform NEN 9997-1 (nl) Geotechnisch ontwerp van constructies – Deel 1: Algemene regels, artikel 9.3.1.8 Temperatuureffecten [130]:

 

Richtlijnen Ontwerpen Kunstwerken (ROK)

Artikel nr. 111

In de ROK [27] zijn temperatuureisen opgenomen voor rijkstunnels gelegen onder open water en voor overige rijkstunnels (anders dan onder open water). Er zijn tevens temperatuureisen opgenomen voor stalen damwanden bij rijkstunnels, die een blijvende constructieve functie vervullen. Alle gegeven maximale waarden voor de temperaturen gelden zowel tijdens de duur van de brand als na het tijdstip van beëindiging van de brand.

Volgens ROK [27] paragraaf 5.2 geldt voor rijkstunnels, tenzij anders is voorgeschreven in de betreffende vraagspecificatie, gedurende 120 minuten de RWS-brandkromme (NEN-EN 1991-1-2/NB, artikel 3.2.4 [106]) voor het gesloten deel en de koolwaterstofkromme (Hydrocarbon) (NEN-EN 1991-1-2, artikel 3.2.3 [106]) voor het niet-gesloten deel (toeritten).

 

Als gevolg van het na-ijleffect zal de temperatuur in de constructie nog oplopen na beëindiging van de brand en pas daarna daadwerkelijk afkoelen.

 

Voor een verdere toelichting wordt ook verwezen naar de Landelijke Tunnel Standaard v1.2 [75]. De opdrachtgever kan, op basis van een beschouwing van het aanwezige risico in relatie tot de kosten, beslissen om andere brandkrommen te hanteren en/of de tijdsduur van de brandkrommen te beperken. De mate van repareerbaarheid is altijd een belangrijk aspect bij de keuze van de voor te schrijven brandkromme, omdat het uitgangspunt is dat tunnels na het optreden van een grote brand repareerbaar moeten zijn. In dit kader is ook de situering van de tunnel van belang (bijvoorbeeld wel of niet onder open water). Verondersteld kan worden dat het extra temperatuureffect dat ontstaat wanneer tevens het asfaltwegdek in brand staat is opgenomen in de RWS-brandkromme. De opgelegde vervorming als gevolg van de temperatuurbelasting tijdens de brand wordt geacht geen invloed te hebben op de sterkte van de constructie tijdens de brand. Daarom hoeft de brandbelasting niet te worden meegenomen bij het bepalen van de krachtswerking. Dit geldt niet voor constructiedelen die de constructieve integriteit waarborgen waarvan de werking verloren kan gaan bij temperatuurbelasting, zoals stempels in toeritten (knik, pons etc.). In deze gevallen moeten de gevolgen van temperatuurbelasting, bijvoorbeeld stempeluitval, wél worden beschouwd.

 

 

Ontwerpvoorschriften voor spoortunnels (OVS)

Artikel nr. 112

Volgens OVS00201 –V001 Spoortunnels >250 m [24] dient conform eis 3.1.1.12 de hittewerendheid van alle constructies, met uitzondering van de tussendeuren, met betrekking tot bezwijken ten minste 60 minuten te bedragen op basis van de standaard tunnelbrandkromme. De integriteit van de volgende constructies/constructieonderdelen dient ten gevolge van een brand ten minste de temperatuursbelasting conform de tunnelbrandkromme te kunnen weerstaan gedurende 120 minuten volgens eis 3.1.1.19 [124]:

Onder integriteit wordt verstaan dat de tunnel na het optreden van een grote brand repareerbaar is en niet als verloren mag worden beschouwd.

 

In eis 3.1.1.20 [124] staat aangegeven dat de in een tunnel toegepaste constructieonderdelen, toegepaste materialen of installaties, uitgezonderd kabels, brandveilig dienen te worden uitgevoerd. Aan deze eis is voldaan indien aan één van de volgende eisen wordt voldaan:

 

Voor “Korte spoortunnels en verdiepte bakken” is momenteel OVS 00030-3-V002 [104] in ontwikkeling bij ProRail. Voor spoortunnels < 250 m is OVS00202-V001 [25] in ontwikkeling .

 

 

Normen brand- en rookwerendheid tussen ruimten

Artikel nr. 113

In Nederland wordt de weerstand tegen branddoorslag en brandoverslag (WBDBO) tussen ruimten bepaald aan de hand van NEN 6068. Bepaling van de brandwerendheid van scheidingsconstructies gebeurt volgens NEN 6069. Deze norm stuurt via de classificatienorm NEN-EN 13501-2 diverse Europese normen aan. Voor de brandwerendheid van gevels en binnenpuien zijn dit NEN-EN 1363-1, NEN-EN 1364-1 en NEN-EN 1634-1.

 

Een totaaloverzicht van relevante normen:

 

 

Invloed op de omgeving

Artikel nr. 114

Omgevingsbeïnvloeding door een definitieve constructie komt in veel gevallen overeen met die door een tijdelijke constructie. Voor aspecten die zowel in geval van een tijdelijke als een definitieve constructie gelden wordt verwezen naar Invloed op de omgeving en Geotechnische risico’s. Concreet wordt verwezen naar de volgende artikelen:

Een aspect dat uitsluitend in geval van een definitieve constructie speelt, namelijk de invloed van laagfrequent geluid in de gebruiksfase, is onderstaand beschreven.

 

Laagfrequent geluid

Artikel nr. 115

Wat soms, vooral bij treintunnels, een aspect is, is hinder in de gebruiksfase van de tunnel voor omwonenden als gevolg van laagfrequent geluid. De Wet Geluidhinder stelt wettelijke grenzen, maar die zijn niet specifiek bedoeld voor laagfrequent geluid.

Laagfrequent geluid is geluid in het voor mensen laagst hoorbare frequentiegebied. Laagfrequent geluid is geluid met frequenties in tertsbanden tussen 4 Hz en 100 Hz (ietwat subjectieve grenzen).

Laagfrequent geluid plant zich zeer goed voort door de lucht. Het wordt door de atmosfeer veel minder geabsorbeerd dan hogere frequenties en het wordt ook via de bodem goed doorgegeven. Ook ramen en muren van woningen houden het laagfrequent geluid veel minder goed tegen dan de hogere frequenties. Dat betekent dat laagfrequent geluid op zeer grote afstand van de geluidsbron waargenomen kan worden. En dat betekent ook dat de bron van het waargenomen geluid soms uitermate moeilijk gevonden kan worden.

Als een trein door een tunnel rijdt, worden de hoge frequenties door de bodem tegengehouden, maar de lage frequenties planten zich voort en kunnen bijvoorbeeld doordringen tot in gebouwen naast de tunnel.

 

Methodiek van De Ruiter

Voor railinfra is door Bob de Ruiter van Gemeentewerken Rotterdam een methodiek opgesteld voor laagfrequent geluid die octaafbandspectra en A-gewogen geluiddrukniveaus voor kantoren en woningen aanwijst die bij geen enkele band mag worden overschreden. Deze werd voorheen in TNO-rapporten ook wel de ’GWRrichtlijn’ genoemd.

Deze richtlijn is specifiek bedoeld voor geluidhinder van (ondergrondse) railinfra. Na het project waarvoor het oorspronkelijk is ontwikkeld (bebouwing langs de Willemsspoortunnel), is deze richtlijn door o.a. TNO Bouw geadopteerd, in tal van andere soortgelijke projecten gebruikt en zodoende uitgegroeid tot een TNO-standaard. tabel 115.1 toont de grenswaarden van deze methodiek. Deze grenswaarden worden opgelegd aan het passageniveau.

 

Tabel 115.1 - Bovengrenzen voor geluiddrukniveaus tijdens de passage volgens de methodiek van de Ruiter

Octaafband Woningen Kantoren
10-250 Hz 35 dB (A) 40 dB (A)
16 Hz 80 dB 85 dB
31.5 Hz 68 dB 73 dB
63 Hz 55 dB 60 dB
125 Hz 45 dB 50 dB

 

NSG-richtlijn

Van de Stichting Geluidhinder is een richtlijn voor laagfrequent geluid verschenen, (NSG-richtlijn [81]), met daarin een tertsbandspectrum als grenswaarde. In deze richtlijn wordt geen rekening gehouden met niet-continue bronnen zoals railinfra. De richtlijn is voor zo’n bron daarom wellicht te conservatief. Wegverkeer kan, zeker overdag, wel worden beschouwd als een continue bron.

De richtlijn is vrij streng: de grenswaarde betreft een geluidniveau welke 10% van de bevolking kan horen. Wel is het zo dat, in tegenstelling tot ’gewoon’ geluid, laagfrequent geluid zodra hoorbaar, vaak na korte tijd als hinderlijk wordt ervaren. Er treedt een omgekeerd leereffect op: in tegenstelling tot bijvoorbeeld verkeerslawaai wordt laagfrequent geluid naarmate men er langer aan blootgesteld hinderlijker en moeilijker te negeren.

Er dient te worden aangetekend dat de richtlijn is bedoeld voor klachtbehandeling, waarbij met name industriële bronnen een rol spelen.

 

Tabel 115.2 - Toetsingswaarden volgens [NSG-richtlijn; 1999]

Frequentie [Hz] 20 25 31,5 40 50 60 80 100
Referentiecurve [dB] 74 62 55 46 39 33 27 22

 

Voor laagfrequent geluid zijn geen officiële normen beschikbaar; anders dan bovenstaande niet officiële grenswaarden.

 

 

Ontwerpaspecten Uitvoering

Artikel nr. 116 (bevat geen inhoud, zie onderliggende artikelen)

Belastingen tijdens de uitvoering

Artikel nr. 117

Tijdens de uitvoering kunnen belastingen optreden die specifiek voor de uitvoeringsfase zijn. Deze belastingen zijn vaak van tijdelijke aard.

 

Anker of stempeluitval

Artikel nr. 118

Voor permanente damwandconstructies in veiligheidsklasse RC1 en alle damwandconstructies in RC2 en RC3 (zie voor een beschrijving van deze klassen Eurocode NEN-EN-1990 -grondslagen van het constructief ontwerp) moet geverifieerd worden of bij het uitvallen van een enkel anker voldoende herverdelingscapaciteit aanwezig is.

Bij toepassing van stempels dient deze toets voor alle damwandconstructies in RC1, RC2 of RC3 plaats te vinden volgens het handboek damwandconstructies CUR166 [7] en ontwerp en berekening staalconstructies NEN-EN 1993 [32]. Alleen voor tijdelijke damwandconstructies in RC1 hoeft dus niet met ankeruitval te worden gerekend. Voor alle constructies in CUR klasse 1 zijn in CUR 166 [7] geen eisen m.b.t. stempel of ankeruitval opgenomen.

 

Indien de kans op uitval van een stempel zeer klein is kan van de verificatie van stempeluitval worden afgezien. Bij de A4 Leiderdorp zijn zeer robuuste zware betonnen stempels toegepast (h.o.h. 12 m, ca. 2,5 m breed), die bovendien via de kopbalk direct vast zijn gestort aan de combiwand. Hier is geen rekening gehouden met stempeluitval. Zie voor een nadere omschrijving van deze situatie Stempeling van wanden.

Het rekening moeten houden met stempeluitval zou hier wel erg kostbaar zijn geworden. De keuze voor een grote stempelafstand staat in relatie tot het voorkomen van een storend stroboscopisch effect (flikkereffect als gevolg van licht-donker afwisseling bij een bepaalde stand van de zon)

 

Toelichting veiligheidsklasse/gevolgklasse en ontwerplevensduur: De damwandconstructies worden op basis van CUR 166 [7] ingedeeld in een veiligheidsklasse. De termen veiligheidsklasse en gevolgklasse worden door elkaar gebruikt. Veiligheidsklasse RC1 is hetzelfde als gevolgklasse CC1. Naast de indeling in veiligheidsklassen moet er een ontwerplevensduur gekozen worden (zie paragraaf 2.4.2.1). De partiële factoren in de damwandberekeningen zijn gebaseerd op een referentieperiode van 50 jaar.

 

 

Zwelbelasting

Artikel nr. 119

Bij het ontgraven neemt de belasting op de ondergrond af, waardoor deze gaat zwellen. Indien de ondergrond slecht doorlatend is leidt een ontlasting tot een even grote verlaging van de waterspanningen. Hierdoor blijven de korrelspanningen in eerste instantie ongewijzigd. Door de onderdruk in het poriënwater wordt water en/of lucht uit de omgeving aangezogen. Daardoor treedt een omgekeerd consolidatieproces op. Grond reageert bij ontlasten stijver dan bij belasten. Daarom gaat het zwelproces sneller dan het consolidatieproces.

Door de zwel kunnen trekspanningen in funderingspalen en opwaartse drukken tegen de tunnelvloer ontstaan.

De grootte van de trek in de palen hangt ook af van de laag waarin de palen zijn gefundeerd. Ligt deze laag onder de zwellende laag, dan zijn de trekkrachten hoog. Als de palen gefundeerd zijn in de laag boven de zwellende laag dan zullen de krachten kleiner zijn omdat ook de funderingslaag omhoog gaat.

 

Indien de palen vóór het ontgraven van de bouwkuip worden ingebracht belemmeren ze de zwel. Het gevolg is dat de palen al aan trekkrachten worden onderworpen. Daarnaast zullen zij meevervormen met de zwelvervorming. Als de fundering al gebruikt wordt, bijvoorbeeld bij de wanden-dak methode, moet voor de betreffende constructieonderdelen (bijvoorbeeld het dak) daarmee rekening worden gehouden, dan wel compenserende maatregelen worden genomen.

Als de palen na het ontgraven worden ingebracht zal de zwel al voor een deel zijn opgetreden en zijn de trekkrachten in de palen minder.

De onderwaterbetonvloer wordt na het ontgraven gestort. Indien de grond dan nog zwelt wordt de zwel door de onderwaterbetonvloer verhinderd. Het gevolg is dat de grond een opwaartse belasting op de vloer uitoefent. Door deze druk vervormt de vloer, waardoor de druk afneemt.

 

De grootte van de zwelbelasting op de palen hangt dus van meerdere factoren af:

 

De grootte van de zwelkracht die de grond maximaal op de paal kan uitoefenen wordt berekend volgens artikel 7.3.2.3 van de norm voor het geotechnisch ontwerp van constructies NEN 9997 [30]. Deze berekeningswijze gaat uit van de maximale schachtwrijving die de grond op een alleenstaande paal kan uitoefenen. De berekening levert een bovengrens die vaak tot aanzienlijke trekkrachten leidt.

In 2012 is de CUR commissie C202 “zwelbelastingen op funderingen” gestart. Deze commissie heeft tot doel een praktische richtlijn te ontwikkelen voor het berekenen van zwelbelastingen op funderingen.

 

 

Belastingen tegen bouwputwanden vanuit stempels en in het vlak belast

Artikel nr. 120

De gronddrukken tegen de grondkerende wand moeten worden overgebracht naar stempels of op trek belaste verankeringen.

Vaak wordt een gording toegepast om de gronddrukken over te brengen.

Als de wand gestempeld is worden de gronddrukken via de stempels naar de tegenoverliggende wand overgedragen. Het kan zijn dat de wanden niet op gelijke manier worden belast. Dit is bijvoorbeeld het geval als achter één wand een bovenbelasting aanwezig is. De aandrijvende druk op deze wand is dan groter. Om evenwicht te krijgen moet de druk op de tegenoverliggende wand vergelijkbaar zijn. Hiervoor moet deze wand vaak tegen de grond in bewegen.

 

Ook een belangrijk aandachtspunt voor belastingen door stempels is de invloed van zonbestraling, zie Temperatuurbelasting.

 

Naast de belasting loodrecht op het vlak van de wand komt het vaak voor dat de wanden ook in het vlak worden belast. Hierbij is onderscheid te maken in:

 

De berekeningsmethode voor wanden die in langsrichting worden belast is opgenomen in het handboek damwandconstructies CUR 166 [7] deel 2 paragraaf 4.10. In paragraaf 5.5.10 van CUR 166 [7] zijn praktijkoplossingen voor gordingen en hoeken gegeven.

 

 

Kraanbelasting

Artikel nr. 121

Bij kranen moet rekening worden gehouden met het dynamisch effect van de belasting.

In de norm voor hijskranen, belastingen, en belastingcombinaties (NEN 2018 [129])wordt een dynamische factor (stootfactor) gegeven die als belastingfactor bij belastingen door kranen wordt gebruikt. Deze factor geldt zowel voor de permanente als de veranderlijke belasting. Voor de exacte berekening van wordt verwezen naar NEN 2018 [129]. Uit de daarin gegeven toelichting blijkt dat 1,15 < ψ < 1,9.

 

 

Temperatuurbelasting

Artikel nr. 122

De invloed van temperatuurwisselingen moeten in beschouwing worden genomen. Dit speelt zowel door bijvoorbeeld temperatuurswisselingen van beton tijdens het verhardingsproces als door externe oorzaken.

 

Een voorbeeld van een externe oorzaak is blootstelling van stempels aan directe zonbestraling. De invloed hiervan kan groot zijn, bij stijgende temperatuur kunnen de stempelkrachten sterk toenemen met gevaar voor uitknikken. De benodigde parameters zijn de extreme temperatuur Te;max en de aanvangstemperatuur T0, zie NEN-EN 1991-1-5 [108].

 

 

Bovenbelasting en verkeersbelasting

Artikel nr. 123

Grondkerende constructies kunnen worden belast door belastingen op het maaiveld. Rekening moet worden gehouden met terreinbelastingen als gevolg van opslag van bouwmateriaal en ontgraven grond uit de bouwput en de aanwezigheid van bouwmaterieel. Indien de grondkering dicht bij wegen of spoorwegen staat moet rekening worden gehouden met verkeersbelasting.

CUR 166 [7] geeft een in deel 2, paragraaf 3.2.2 meer informatie over bovenbelasting en verkeersbelasting.

Verdichten van aanvullingen

Artikel nr. 124

Door het laagsgewijs verdichten van grond achter een grondkerende constructie wordt de grond achter de constructie opgespannen. De horizontale gronddruk op de grondkerende constructie neemt toe. In NEN 9997-1+C1 [30] is beschreven hoe de toename van de gronddruk kan worden berekend.

Zakkende grond op ankerstangen

Artikel nr. 125

De verankering van wanden kan ongunstig beïnvloed worden wanneer de grondslag waarin het anker zich bevindt zakt. Dit kan tot een aanzienlijke toename van de ankerkrachten leiden. Door de hogere ankerkracht kunnen er ook hogere spanningen in de wand ontstaan. In de CUR 166 [7] paragraaf 4.9.13 van deel 2, is een berekeningsmethode gegeven.

Heien palen in de bouwput

Artikel nr. 126

Bij het heien van palen in de bouwput is een aantal keren geconstateerd dat de horizontale verplaatsing van de damwand toeneemt. Tevens zijn er gevallen bekend waarbij de damwand is gezakt. Vervormingen in de orde van 0,3 meter zijn bekend. Door deze vervormingen ontstaan deformaties in de omgeving. De vervormingen leiden ook tot een toename van de ankerkrachten.

 

Het heien van de palen in de bouwput heeft drie effecten.

Het eerste effect is dat grondverdringing optreedt. Hierdoor zal de bouwputbodem omhoogkomen. De grond wordt mogelijk dichter. Door de verdringing worden de horizontale spanningen groter; dit geeft een grotere horizontale druk op de wand. Dit is in principe positief voor de wand voor de stabiliteit van de wand. In de wand zelf kunnen door de grotere horizontale spanningen hogere spanningen ontstaan.

Het tweede effect is het ontstaan van wateroverspanningen. Hierdoor neemt de passieve weerstand af. Het gevolg is een afname van de stabiliteit en een toename van de wandverplaatsing.. De gevoeligheid van de grondkerende constructie voor dit fenomeen kan worden geschat door bijvoorbeeld een wateroverspanning aan te nemen die 10 à 30 % van de verticale korrelspanning is.

Het derde effect is het verdichten van los gepakt zand. De verdichting kan leiden tot zakking van de bouwputbodem en van de wand. Door de zakking van de wand kan het teken van de wandwrijving omkeren, waardoor de actieve korreldruk op de wand toeneemt. Zie CUR 166 [7] paragraaf 4.10.7.

 

Bij de Calandtunnel (nu Thomassentunnel geheten) trad een curieus fenomeen op ter plaatse van de toeritten:

de combinatie van zeer zwaar heiwerk (veel prefab betonnen palen zijn toen kapot geslagen, er moesten veel palen bijgeslagen worden), terwijl de gehele bouwput een translatie naar beneden onderging; zelfs de combiwanden werden mee naar beneden getrokken. De verklaring van deze gebeurtenis is niet bekend.

 

 

Figuur 126.1 - Bouwput Thomassentunnel

 

Bij het heien van palen in overgeconsolideerd zand kunnen grotere vervormingen optreden dan aanvankelijk werd gedacht. In overgeconsolideerd zand is de horizontale spanning groter dan neutraal. Door het heien van de palen kan deze spanning sterk verminderen waardoor het zand verliest aan sterkte en stijfheid. Indien de palen geheid worden in de zone waar een grondkerende wand haar passieve weerstand aan ontleend kunnen hierdoor onverwachte vervormingen van de grondkerende wand ontstaan.

 

De effecten voor de bouwkuipwand van het heien van de palen in een ontgraven put kunnen worden beperkt door:

 

 

Sterkte van de grond tijdens de bouwfase

Artikel nr. 127

Grondkerende constructies worden vaak ontworpen met effectieve grondparameters (c` en φ`). Voor de waterspanningen wordt vaak uitgegaan van de waarden die op lange termijn ontstaan.

In het geval van een ontgraving is dit een veilige benadering. Het kan lonend zijn om de grondkerende grondconstructie niet op de eindsituatie maar op de tijdelijke situatie te dimensioneren. Dit is bijvoorbeeld het geval als de grondslag slecht doorlatend is en de ontgravingduur relatief kort is.

Direct na het ontgraven ontstaat in de slecht doorlatende lagen een ongedraineerde situatie. Dit betekent dat deze lagen in eerste instantie de initiële schuifsterkte behouden.

Deze situatie kan op twee manieren worden berekend:

  1. Door te rekenen met effectieve grondparameters; In de waterspanningen moet rekening worden gehouden met het nog niet aangepaste gedeelte van de waterdruk

  2. Door te rekenen met de ongedraineerde schuifsterkte (c`u;d)

In het handboek damwandconstructies CUR 166 [7] deel 2 paragraaf 4.4.6 en 4.8 staan deze werkwijzen beschreven.

 

In de praktijk levert het in rekening brengen van de ongedraineerde situatie vaak maar een beperkt voordeel op. Daarnaast is er vaak een stevige discussie over de mate van drainage en welke maatregelen nodig zijn als de waterspanningen tegenvallen.

 

Invloed op de omgeving en Geotechnische risico’s

Artikel nr. 128

Met de CUR Richtlijn C223 “Meten en Monitoren bij Bouwputten” [10] en COB-DC F531 “Aanbevelingen voor het ontwerp van bouwkuipen in stedelijke omgeving” [13] is er een gedegen basis hoe om te gaan met beïnvloeding van de omgeving. Ook geven deze richtlijnen vele verwijzingen naar achtergrondliteratuur.

 

Als eerste zal in onderstaande artikelen algemeen worden ingegaan op de omgeving beïnvloeding risico’s, hierbij wordt de beschrijving uit C223 [10] als basis genomen aangevuld met de complementaire beschrijving uit F531 [13]. Hierna wordt ingegaan op de stappen welke genomen kunnen worden om te komen tot een bepaling van de te verwachten omgeving beïnvloeding, ook hierbij zijn C223 [10] en F531 [13]  als basis genomen. Een nadere beschrijving van tijdens de uitvoering gehanteerde monitoringssystemen is opgenomen in Monitoring.

 

Voor veel projecten waarbij een bouwput wordt aangelegd zijn de omstandigheden vooraf eenvoudig in te schatten. Er bestaan echter veel manieren om een bouwput te ontwerpen, waarbij de (on)mogelijkheden door de project specifieke randvoorwaarden (afstand en aard belendingen, grondslag, etc.) uit de omgeving worden gevormd. Om snel een kwalitatieve inschatting te kunnen maken van mogelijke risico’s die bij een specifiek project spelen, zijn in bijlage 2 van C223 [10] stroomschema’s opgenomen. In onderstaande artikelen wordt dit stroomschema als leidraad gehanteerd.

 

 

Schades door te grote deformatie van de grond en/of belendingen

Artikel nr. 129

Zie voor dit risico ook [10] bijlage 2, code O1.

 

Door diverse oorzaken kan horizontale en / of verticale deformatie van de ondergrond optreden tijdens het aanleggen van een bouwput. Belendingen nabij de bouwput en boven- en/of ondergrondse infrastructuur kunnen deze nadelige gevolgen van de gronddeformatie ondervinden. Wegen, spoorwegen en ondergrondse infra kunnen verzakken, nutsvoorzieningen of riolering kunnen mogelijk niet meer naar behoren functioneren, of huizen kunnen schade oplopen door ongelijkmatige zakking van de fundering. Voor het indelen van schade aan gebouwen zijn in de literatuur diverse classificatiesystemen terug te vinden [BRE Digest 251; 1995] [1] en [Boscardin and Cording; 1989] [62].

 

Eisen voor zettingen, rotatie en horizontale verplaatsingen moeten door of in samenwerking met een constructeur bepaald worden. Alhoewel enkele normen maximale waarden opgeven gelden deze niet voor alle typen belendende objecten. Deze zijn bovendien vaak bedoeld voor ontwerpsituaties en niet toepasbaar voor de beoordeling van de toplaag, die vaak puin bevat, met een avegaar los gewoeld, waarbij eventueel een bentoniet spoeling wordt bijgemengd. Door het voorboren kan de omringende grond ontspannen, waardoor de draagkracht van de belendende fundering kan afnemen. Bij fluïderen wordt aan de punt van de funderingselementen door een daar aan vast gelaste buis onder hoge druk water geïnjecteerd. Door het kortstondig opwekken van wateroverspanningen wordt de grondweerstand tijdelijk verminderd en kan het funderingselement gemakkelijker op diepte worden gebracht. Wanneer er teveel water wordt ingebracht kan dit, eventueel in combinatie met trillen, leiden tot uitspoeling of verweking met als gevolg een verlaagde draagkracht van funderingen. Bij belendende panden in het invloedsgebied kan dit tot verzakking leiden. Daarnaast kan boren of fluïderen van palen in een ontgraven bouwput leiden tot het bezwijken of overmatig vervormen van de damwand.

 

Met een goede voorbereiding, ontwerp en uitvoering is het mogelijk om direct naast oude gevoelige constructies diepe bouwputten te maken. In figuur 129.1 toont een foto van een 39 meter diepe bouwput naast de Big Ben in Londen. De Big Ben is schadevrij gebleven.

Figuur 129.1 - 39 m diepe bouwput naast een schadevrije BigBen [R. Mair; 2010]

 

 

Voorboren en/of fluïderen van een damwand of palen

Artikel nr. 130

Zie ook [10] bijlage 2, code O1.1.

 

Om het inbrengen van damwand of palen te vergemakkelijken en de trillingshinder te verminderen kan worden gekozen om de funderingselementen voor te boren of te fluïderen. Bij voorboren wordt de toplaag, die vaak puin bevat, met een avegaar los gewoeld, waarbij eventueel een bentonietspoeling wordt bijgemengd. Door het voorboren kan de omringende grond ontspannen, waardoor de draagkracht van de belendende fundering kan afnemen. Bij fluïderen wordt aan de punt van de funderingselementen door een daar aan vast gelaste buis onder hoge druk water geïnjecteerd. Door het kortstondig opwekken van wateroverspanningen wordt de grondweerstand tijdelijk verminderd en kan het funderingselement gemakkelijker op diepte worden gebracht. Wanneer er teveel water wordt ingebracht kan dit, eventueel in combinatie met trillen, leiden tot uitspoeling of verweking met als gevolg een verlaagde draagkracht van funderingen. Bij belendende panden in het invloedsgebied kan dit tot verzakking leiden. Daarnaast kan boren of fluïderen van palen in een ontgraven bouwput leiden tot het bezwijken of overmatig vervormen van de damwand.

 

 

Deformatie of schade door heien of trillen van damwanden of funderingspalen

Artikel nr. 131

Zie ook [10] bijlage 2, code O1.2.

 

Heien en trillen van damwanden en funderingspalen kan leiden tot ongewenste deformatie van en/of schade aan belendingen. Trillingen kunnen in combinatie met losgepakte zandlagen leiden tot verdichting van het zandmassief. Deze verdichting betekent een volumeverkleining van het grondmassief en dus maaiveldzakkingen. Belendingen in het invloedsgebied van deze verdichting ondervinden eveneens een zakking. Dit verschijnsel treedt zowel bij het inbrengen van palen en damwanden op als bij het uittrekken daarvan.

Trillingen kunnen tevens direct leiden tot schade aan gebouwen, zonder dat daarbij noemenswaardige grondvervorming of vervorming van de fundering is opgetreden. De mate waarin en tot op welke afstand schade kan optreden is afhankelijk van de bodemopbouw, de grootte van de trillingsbron, de afstand van de belendingen tot de trillingsbron en eigenschappen van de gebouwen. Voor achtergronden over bouwtrillingen wordt verwezen naar de SBR-richtlijn [28]. Naast de directe schade aan belendende bouwwerken kan er ook sprake zijn van functionele schade binnen de bouwwerken. Hierbij moet gedacht worden aan schade aan gevoelige computerapparatuur en trillingshinder voor daarvoor gevoelige functionaliteiten als scholen en ziekenhuizen.

 

Het graven van een diepwand zal weinig invloed hebben op de waterspanningen in de omgeving. Het heien of trillen van een damwand of combiwand kan daarentegen vrij grote wateroverspanningen creëren, waarbij vooral in gelaagd fijn zand de wateroverspanning over relatief grote afstand (tot 10 – 15 m) meetbaar is, maar van korte duur (minuten) is. Voor een kritisch talud of funderingen kan dit wel schadelijk zijn. In klei- en veenlagen is de wateroverspanning alleen op korte afstand meetbaar (minder dan 5 m). Daarbij kan het wel enige dagen duren voordat deze zich weer op het oorspronkelijke peil heeft ingesteld. Dit werd onder andere gemeten tijdens de heiproef bij Gevelco aan de Brittanniehaven in het Botlekgebied [63]. Ook trillingen zelf veroorzaken fluctuaties in de waterdruk. Het effect daarvan is meestal echter gering (enige kPa’s).

 

 

Beïnvloeding van belendende funderingen tijdens de uitvoering van wanden

Artikel nr. 132

Zie voor dit risico ook [10] bijlage 2, code O1.3.

 

Tijdens het maken van diepwanden, cement-bentonietwanden, palenwanden, jetgroutkolommen, bodeminjecties en vrieswanden kan, afhankelijk van de grondslag, het productieproces en het type wand, ontspanning of opspanning van de ondergrond optreden. Door het ontspannen of opspannen van de ondergrond kan het draagvermogen van een belendende fundering worden beïnvloed, waardoor deze verticaal of horizontaal gaat vervormen.

 

 

Beïnvloeding van belendende funderingen door het maken van ankers

Artikel nr. 133

Zie ook [10] bijlage 2, code O1.4.

 

Het komt regelmatig voor dat belendingen zo dicht op een bouwput staan, dat de verankering juist onder of langs de fundering moet worden aangebracht. Bij een verkeerd ontwerp, verkeerde keuze van het ankertype dan wel verkeerde plaatsing van ankers tijdens de uitvoering bestaat er een risico op het beïnvloeden van belendende funderingen.

 

Hierbij kan worden gedacht aan boren van ankers juist onder een staalfundering, of het boren van ankers in de nabijheid van een belendende paalfundering. In sommige gevallen worden ankers zelfs tussen palen van belendingen door geboord. Hierbij is er, naast het risico van beïnvloeding van de draagkracht, ook risico op het raken of beschadigen van een paal. Bij het toepassen van verbuisde groutankers is de beïnvloeding het minst aanwezig. In [7] staan richtlijnen voor de aan te houden afstand tussen ankers en funderingspalen.

 

 

Te grote vervormingen of (lokaal) bezwijken van de bouwputwand tijdens ontgraven

Artikel nr. 134

Zie ook [10] bijlage 2, code O1.5.

 

Bij (te) grote vervormingen van de bouwputwand of het (lokaal) bezwijken daarvan, treden grote vervormingen op van het grondmassief achter de bouwputwand. Indien binnen het invloedsgebied belendingen of andere constructies aanwezig zijn, kan dit leiden tot zakkingen. Dit geldt niet alleen voor belendingen die op staal zijn gefundeerd, maar ook op palen gefundeerde panden. Door de beweging of ontspanning van het grondmassief kan bij paalfunderingen een deel van de positieve wrijving wegvallen of zelfs tijdelijk in een negatieve kleefbelasting veranderen, kan de puntweerstand afnemen of kan een horizontale belasting op de paal ontstaan. Voor meer informatie over omgevingsbeïnvloeding door het maken van een bouwkuip met damwanden wordt verwezen naar deel 2 van CUR-publicatie 166 [7].

 

Er zijn verschillende factoren die kunnen leiden tot te grote vervorming of (lokaal) bezwijken van de bouwputwand:

 

Voor een compleet overzicht van mogelijke faalmechanismen wordt verwezen naar Building response to excavation induced settlement [62]. Enkele achterliggende mechanismen worden hieronder belicht.

Figuur 134.1 - Bezwijken van de passieve zijde tijdens de ontgraving van de bouwput voor de bouw van het Gaag-aquaduct [https://beeldbank.rws.nl, Rijkswaterstaat / Rens Jacobs]

 

 

Te grote vervorming of bezwijken van een stempel of anker

Artikel nr. 135

Zie ook [10] bijlage 2, code O1.5.1.

 

Dit risico kan zowel bij tijdelijke constructies als bij definitieve constructies een rol spelen.

Om de buigende momenten in en de vervormingen van de kerende wand te beperken, is het gebruikelijk om de wand te voorzien van één of meer steunpunten. Dit kan gedaan worden door de bouwput te voorzien van een of meerdere stempelramen, of door het aanbrengen van een externe verankering. Deze steunpunten dienen voldoende sterkte te bezitten. Indien deze sterkte in werkelijkheid niet wordt gehaald en/of de belasting op het steunpunt groter is dan voorzien, kan dit leiden tot het bezwijken van anker of stempel. Dit heeft directe gevolgen voor de naburige steunpunten en als geen rekening is gehouden met anker- of stempeluitval kan dit tot bezwijken van de kerende wand leiden. Zelfs wanneer met stempeluitval rekening is gehouden kan dit leiden tot ontoelaatbare vervorming van de damwand.

 

Als één of meer stempels niet goed aansluiten op de gording zal op de desbetreffende plaatsen een extra wandvervorming optreden totdat de stempels ook belast worden. Dit kan ook voorkomen als de gording niet overal goed aansluit op de kerende wand. In beide gevallen kan dit leiden tot een extra zakking van eventuele belendingen. Maatregelen zijn het goed uitvullen van de ruimte tussen stempel, gording en wand met bijvoorbeeld groutzakken of stalen platen. Daarnaast kunnen stempels en ankers worden voorgespannen.

 

In geval van een asymmetrische bouwput en/of stempelbelasting treedt vervorming op in de richting van de zijde met de laagste stempelbelasting. In combinatie met temperatuurswisselingen leidt dit tot een cyclisch proces. Dit resulteert in grote(re) vervormingen aan de zijde met de hoge stempelbelasting. Bij toepassing van hoekstempels moet rekening worden gehouden met de krachtsafdracht in de langsrichting van de gording. De momenten en spanningen in de kerende wand worden hoofdzakelijk bepaald door de belastingen op de wand. De optredende vervormingen worden beïnvloed door de stijfheid van de steunpunten (ankers en/of stempels). Als de stijfheid van de steunpunten lager is dan waarmee is gerekend, kan dit leiden tot meer vervorming van de wand en een verandering in de krachtenverdeling. Bij een hogere stempel- of ankerstijfheid dan is aangenomen, kunnen de steunpuntkrachten in werkelijkheid hoger zijn dan berekend.

 

Sommige ankers gedragen zich slapper dan andere. Bij de gangbare typen groutankers wordt de houdkracht ontleend aan dieper gelegen zandlagen, doordat het groutlichaam zich alleen in de dieper gelegen laag bevindt. Om de vrije ankerlengte wordt een gladde kunststof buis aangebracht, waardoor er over die lengte geen kracht naar de ondergrond wordt afgedragen.

Bij zogenoemde zelfborende ankers (of groutinjectieankers) bevindt zich over de volledige lengte van het anker grout. Deze zullen, wanneer ze worden belast, eerst kracht afdragen in ondiepere, vaak minder draagkrachtige, lagen alvorens draagkracht te ontlenen aan de diepere zandlaag. Het anker gedraagt zich daardoor tijdens het proefbelasten stijf, maar na ontgraven slapper, wat leidt tot extra vervorming van anker en daarmee de wand. Hiermee dient bij het ontwerp en afspannen van de ankers rekening worden gehouden.

 

 

Te grote vervorming of bezwijken van de gording

Artikel nr. 136

Zie ook [10] bijlage 2, code O1.5.2.

 

Dit risico kan zowel bij tijdelijke constructies als bij definitieve constructies een rol spelen.

Om een gelijkmatige ondersteuning van de wand mogelijk te maken, wordt over het algemeen een gording toegepast. Deze bestaat meestal uit een stalen profiel of een betonsloof, waarmee de reactiekracht uit het anker of stempel gelijkmatig over de wand wordt verdeeld. Indien de belasting op de gording groter is dan de maximaal opneembare belasting, kan dit leiden tot het bezwijken van de gording waardoor de gehele ondersteunende functie komt te vervallen. Vooral plooi van de gording, bij de aansluiting van de stempels kan een zeer ernstig falen tot gevolg hebben. In 2004 was het bezwijken van de verbinding van het stempel met de gording een primaire oorzaak van het instorten van een bouwkuip in Singapore.

 

Figuur 136.1 - Het instorten van een bouwput in Singapore

 

 

Verplaatsing van de wand door het inbrengen van palen in de bouwput

Artikel nr. 137

Zie ook [10] bijlage 2, code O1.5.3.

 

In veel gevallen worden palen pas geheid nadat de bouwput is ontgraven. Het inbrengen van grondverdringende palen in slecht doorlatende grondlagen in de passieve zone nabij de wand kan leiden tot wateroverspanningen, waardoor de passieve weerstand van de grond afneemt. Hetzelfde risico bestaat bij het fluïderend inbrengen van grondverdringende palen. Dit leidt tot extra vervormingen van de grondkering en als mogelijk gevolg tot verzakking van belendingen. Bij dichte palenvelden kan bij een grondverdringend systeem tevens opheien van de damwand optreden.

 

Het inbrengen van een gedeeltelijk of geheel grondverwijderend paalsysteem op korte afstand van de damwand kan ook leiden tot vervorming van de damwand door ontspanning van de grond in de passieve wig. Bij alleenstaande palen met een grote onderlinge afstand bestaat dit risico meestal niet. Bij een rij palen met korte onderlinge afstand of dichte paalgroepen op korte afstand van de damwand moet rekening worden gehouden met de heivolgorde.

 

 

Intrillen nieuwe damwand naast bestaande damwand

Artikel nr. 138

Zie ook [10] bijlage 2, code O1.6.

 

Wat ook geregeld voorkomt is, bij een damwand die door corrosie het eind van zijn levensduur heeft bereikt, dat een nieuwe damwand aan de diepe zijde van de oude damwand wordt ingebracht.

Door het intrillen van de nieuwe damwand voor de oude kan het geheel onderuitgaan. Door het intrillen kan de sterkte van de passieve wig (tijdelijk) worden verstoort.

Figuur 138.1 - Voorbeeld van het rehabiliteren van een oude door corrosie verzwakte damwand (kadeconstructie Harlingen)

 

Bij het intrillen van nieuwe afmeer buispalen en een nieuwe damwand vlak voor de bestaande damwand ontstond door verweking van de passieve wig (aanwezigheid van relatief fijne, siltige, slechter doorlatende zand in een tussenlaag) een cirkelvormig glijvlak (grote vervormingen; nog net niet tot bezwijken).

 

 

Lekkages en ontgrondingen

Artikel nr. 139

Zie ook [10] bijlage 2, code O1.7.

Via de wand

Een bouwputwand heeft in de Nederlandse situatie meestal zowel een grond- als een waterkerende functie. Door het niet goed op elkaar aansluiten of overlappen van de elementen van een kerende wand, kan er lekkage ontstaan. Ook de aansluiting tussen de wandelementen en de vloer kan aanleiding geven tot lekkage.

 

Door lekkage kan meer water de put instromen dan voorzien en kan bovendien een (extra) grondwaterstandverlaging buiten de bouwput optreden (zie figuur 139.1). Lekkage door een wand kan leiden tot hogere waterspanningen in de passieve zone, waardoor de wand verplaatst. Daarnaast zijn stalen damwanden gevoelig voor corrosie. In extreme gevallen kunnen hierdoor in de gebruiksfase gaten in de wand ontstaan, wat tot grondwaterstandsdaling in de omgeving kan leiden.

 

Als het gat in de kerende wand én het waterdrukverschil groot genoeg zijn, kan dit (naast lekkage) ook leiden tot ontgronding, waarbij zandvoerende lekken ontstaan. Dit kan leiden tot gaten achter de wand en, indien aanwezig, tot zakking van wegen, ondergrondse infra, belendingen etc. Ontgronding treedt in sommige gevallen al direct in ernstige mate op en de gevolgen kunnen na korte tijd desastreus zijn voor achter de wand gelegen belendingen. Anderzijds kan het kan soms ook lang duren voordat ontgrondingsschade zichtbaar wordt, doch dit mag nooit een reden zijn om ingrijpen bij zandmeevoerende lekkages uit te stellen.

 

Risico op lekkage en ontgronding kan een rol spelen bij alle typen wand. Bij damwanden zijn de heisloten een kritiek punt, bij diepwanden de voegen en bij palenwanden de overlap tussen primaire en secundaire palen.

 

Het is met de huidige monitoringtechnieken bijna niet mogelijk om gaten in de wand tijdig te signaleren. Door monitoring van de grondwaterstand bij verdachte plekken kan, in combinatie met geboortebewijzen (QC uitvoeringsparameters) van de wand, misschien een lek worden opgespoord. Elektrische en geo-elektrische technieken kunnen in sommige gevallen uitkomst bieden. Veelal wordt teruggevallen op visuele inspectie tijdens ontgraven, waarbij een injectiemachine stand by staat om bij te springen bij een lek in de wand.

 

Opgemerkt wordt dat dit risico kan ook bij een definitieve constructie een rol kan spelen, als bijvoorbeeld een voeg in de tijd lek raakt of ernstige corrosieschade aan damwanden ontstaat.

 

Figuur 139.1 - Grondwaterdaling door lekkage bouwkuipwand

 

Via de vloer

Lekkage en/of ontgronding door het opbarsten van de bouwput of opdrijven van de vloer kan zowel bij tijdelijke constructies als bij definitieve constructies een rol spelen.

Bij gebruik van een van nature aanwezige waterremmende laag als afsluiting van de bouwputbodem kan een spanningsbemaling nodig zijn om opbarsten van deze laag te voorkomen. Dit is noodzakelijk in de gevallen waar het gewicht van de lagen vanaf het ontgravingsniveau tot aan de onderkant van de waterremmende laag onvoldoende weerstand kan bieden aan de heersende opwaartse waterdruk. Indien deze spanningsbemaling door welke reden dan ook uitvalt of niet optimaal functioneert, leidt dit tot een verhoging van de opwaartse waterdruk, die opbarsten van de bouwputbodem tot gevolg kan hebben.

 

Bij de bouw van de kelder van het Naviduct (bij Enkhuizen) bleek de voor de kelder benodigde lokaal diepere ligging in één dimensionale zin het verticale evenwicht van de laag Eemklei tijdens de bouwfase te verstoren. Berekeningen m.b.v. Plaxis gaven aan dat via boogvorming de totale stabiliteit toch zou voldoen. De rekken c.q. vervormingen van de kleilaag waren lokaal echter significant. Deze kleilaag is de afsluitende bodem van het gehele kunstwerk. De conclusie was dat, ondanks het aanwezig zijn van ruimtelijk verticaal evenwicht, door de optredende rekvervormingen in de kleilaag deze qua waterkerende functie mogelijk onaanvaardbaar aangetast zou kunnen worden. De bouw van de kelder is toen na gunning alsnog niet doorgegaan. Er werd gekozen voor het alternatief met ondiepere grote betonnen rioleringsbuizen.

 

Bij een gesloten bakconstructie moet de vloer met het eigen gewicht van de constructie en eventuele trekelementen ervoor zorgen dat de heersende waterdruk tegen de onderkant van de vloer opneembaar is. Als deze componenten onvoldoende weerstand kunnen bieden tegen deze opwaartse waterdruk, zal dit leiden tot opdrijven van de vloer. De vloer verliest daardoor mogelijk zijn waterdichte functie. Als de bouwputbodem opbarst of ernstig lekt, kan dit leiden tot de onder O1.8 vermelde gevolgen.

De trekelementen dienen voldoende levensduur te hebben; zie casus Vlaketunnel. Ofwel welke mate van corrosiebescherming is noodzakelijk voor de trekelementen? Altijd dubbele corrosiebescherming noodzakelijk voor systemen welke een lange levensduur dienen te hebben.

 

Voor bouwkuipen in polders, waarbij het maaiveld aanmerkelijk lager ligt dan de stijghoogte in de watervoerende pakketten, direct onder de waterremmende lagen, is er het gevaar van opbarsten.

Het gevolg van doorbreken/opbarsten van de bouwkuipbodem kan eenvoudig voorkomen worden door de bovenkant van de damwand minimaal net zo hoog te zetten als de stijghoogte. Zo kan men bij een twijfelgeval (wel/geen onderwaterbetonvloer nodig) veelal bij kleinere bouwkuipen, een ‘beheerst risico’ nemen.

 

 

 

Verstoring grondwaterstroming

Artikel nr. 141

Zie ook [10] bijlage 2, code O1.9.

 

Dit risico kan zowel bij tijdelijke constructies als bij definitieve constructies een rol spelen.

Indien de bouwkuip grondlagen doorsnijdt waarin normaliter horizontale stroming plaatsvindt, kan deze door de aanwezigheid van de bouwkuip worden verhinderd, met als gevolg verlaging van de grondwaterstand of stijghoogte stroomafwaarts en verhoging stroomopwaarts. Dit speelt vooral een rol bij grote permanente bouwkuipen in gebieden met een duidelijke grondwaterstroming (zie figuur 141.1).

Bij de A2 tunnel Maastricht wordt dit opstuwingsverschijnsel gemitigeerd door het aanbrengen van een sifons.

 

Figuur 141.1 - Resultaat verstoring grondwaterstroming

 

 

 

Verlaging van de stijghoogte door bemalen tijdens ontgraving

Artikel nr. 140

Zie ook [10] bijlage 2, code O1.8.

 

Als een verlaging van de stijghoogte door bemaling in één van de watervoerende pakketten noodzakelijk is om het verticale evenwicht van de bouwput te garanderen, kan die verlaging ook tot (ver) buiten de bouwput reiken. Dit is onder andere afhankelijk van de grondslag, de lengte van de wand en de grootte en benodigde duur van de verlaging. Deze verlaging leidt tot een verhoging van de effectieve spanningen in de grond. Als de freatische grondwaterstand wordt verlaagd bij op staal gefundeerde panden kan dit leiden tot zakkingen als er slappe lagen in de bodem voorkomen.

Andere mogelijke gevolgen zijn droogstand van houten palen. Dit kan bij een langdurige situatie kan leiden tot paalrot en verdroging van gewassen.

Daarnaast kan grondwaterstroming leiden tot het (ongewenst) verplaatsen van reeds aanwezige verontreinigingen. Dit kan ingrijpende gevolgen hebben voor het ontwerp.

 

 

Voorbereidende werkzaamheden

Artikel nr. 142

Zie ook [10] bijlage 2, code O1.10.

 

Alvorens gestart kan worden met de uitvoering van werkzaamheden (plaatsen keerwanden, ontgraven bouwput, installeren van palen, bouwen van constructie) moet de ondergrond “functievrij” of “bouwrijp” worden gemaakt. Dat betekent dat zowel de bovengrondse als ondergrondse objecten moeten worden verwijderd of verplaatst. In dit geval zijn de ondergrondse objecten van belang, namelijk het verwijderen van dergelijke obstakels kan ook invloed hebben op de omgeving. Denk hierbij dan vooral aan een “kleine bemaling” om een oude riolering te verwijderen, zware werkzaamheden zoals het stukboren van bijvoorbeeld oude kademuren, of het verleggen van kabels en leidingen dicht bij bebouwing. De impact van juist deze activiteiten wordt vaak onderschat en geeft soms toch (te) grote vervormingen en brengt daarmee ook schade aan de omgeving toe. Ook kan het verleggen van kabels en leidingen grote invloed hebben op de planning, onder meer door vertragingen en beperkte tijdsvensters (seizoenen) waarbinnen werkzaamheden mogen plaatsvinden.

Soms kunnen de obstakels de vorm hebben van bommen en granaten vanuit de 2e wereldoorlog (blindgangers). Uit een historisch onderzoek kan snel blijken of dit gevaar aanwezig is (de omgeving bij een brug, spooremplacementen e.d. zijn in principe op voorhand verdachte plaatsen). Als daar aanleiding toe is kunnen de volgende detectietechnieken worden gebruikt:

 

Bij aanwezigheid van explosieven dienen deze natuurlijk voor de bouw van het nieuwe kunstwerk geruimd te worden.

Een complicatie kan zijn dat andere achtergebleven obstakels, b.v. heipalen in de ondergrond achtergebleven als restonderdeel van het gebombardeerde, de detectiemetingen ernstig kunnen verstoren, met vele valse alarmen tot gevolg. De Noordtunnel is toentertijd b.v. in gebombardeerd gebied aangelegd. De nu in aanbouw zijnde Combitunnel Nijverdal ligt ook in gebombardeerd gebied.

 

Tot slot kan het grondonderzoek (boringen en sonderingen) leiden tot schade aan kabels en leidingen, en kan het kortsluiting tussen watervoerende pakketten veroorzaken.

 

 

Overlast door trillen of heien

Artikel nr. 143

Zie voor dit hoofdrisico ook [10] bijlage 2, code O2.

 

Het inbrengen van kerende wanden en/of funderingspalen kan onder andere geschieden door de elementen te trillen of door te heien. Deze werkwijze leidt tot het genereren van trillingen in de ondergrond en geluid en kan bijgevolg leiden tot overlast c.q. hinder in de omgeving.

Tevens kunnen trillingen technische processen in of buiten gebouwen verstoren die daarvoor gevoelig zijn. Geluidsoverlast kan vooral een rol spelen als de daarvoor gestelde geluidsnormen worden overschreden of door de aanwezigheid van geluidsgevoelige objecten in de omgeving, zoals scholen en ziekenhuizen.

De eerste circulaire waar (strenge) richtlijnen worden gegeven voor de beoordeling van het bouw- en slooplawaai dateert uit 1981, de laatste uit 2010. In het Bouwbesluit 2012 [75] is nu een formeel juridisch kader gecreëerd dat uitstijgt boven het niveau van een circulaire.

Het bevoegd gezag, meestal de gemeente, kan ontheffing verlenen.

Bij de Combitunnel Nijverdal is, in overeenstemming met de gemeente, een eis van maximaal 98 db(A) gedurende 30 werkdagen van 12 uur gehanteerd (niet in het weekend). De gemeente Hellendoorn had bij de bouw van de Combitunnel Nijverdal de voorkeur boven ‘kort en zeer lawaaiig’ t.o.v. ‘langdurig en minder lawaaiig. Dat is een afweging door het betreffende locale bevoegde gezag.

 

Trillings- en geluidsoverlast kan niet alleen bij heien en trillen worden ervaren, maar ook bij overige bouwactiviteiten. Over het algemeen veroorzaken ze dan minder overlast dan heien en trillen. Voor achtergronden over bouwtrillingen wordt verwezen naar (SBR Richtlijnen A t/m C [28]).

 

 

Figuur 143.1 - Mobiel geluidscherm bij bouw Combitunnel Nijverdal

 

Vooronderzoek

Artikel nr. 144

Een vooronderzoek is essentieel voor het kunnen beheersen van omgeving beïnvloeding. Hierbij kan onderscheid worden gemaakt tussen het historisch vooronderzoek en de vooropname. Het historisch vooronderzoek moet uitwijzen welke objecten zoals panden, afhankelijk van een gekozen ontwerp, vooral gevoelig zijn voor omgevingsbeïnvloeding en hoe daarop afgestemd kan worden. Uit het historisch vooronderzoek kunnen vervolgens objecten zoals panden worden geselecteerd die binnen de invloedssfeer van de bouwput liggen. Hier wordt dan vaak een vooropname uitgevoerd, waarmee de nulsituatie wordt vastgelegd door de belendingen te fotograferen en eventueel aanwezige schades te rapporteren. Dit is beschreven in de richtlijn voorbouwkundige vooropnames van het Nederlands Instituut Van Register Experts [73]. Zodoende kan achteraf onderscheid worden gemaakt tussen reeds aanwezige schade en schade ontstaan door de bouwactiviteiten.

Vooropnames worden meestal uitgevoerd door gespecialiseerde bouwtechnische bureaus of schade-experts. Onderwerpen die aandacht behoeven bij het opstellen van vooropnames en richtlijnen voor het opstellen van een historisch onderzoek worden behandeld in bijlage 4 van de DC-COB [13].

Zie ook In kaart brengen van de situatie.

Voorspellen van omgevingsbeïnvloeding en grenswaarden

Artikel nr. 145 (bevat geen inhoud, zie onderliggende artikelen)

Grenswaarden voor vervorming van belendingen

Artikel nr. 146

Er zijn verschillende soorten grenswaarden die gehanteerd kunnen worden voor het beoordelen en toetsen van vervormingen van belendingen. Hoewel de methoden inhoudelijk veelal verschillen, zijn in vrijwel alle gehanteerde richtlijnen min of meer dezelfde uitgangspunten gehanteerd. Voor het classificeren van schade worden de volgende gradaties aangehouden:

 

Het voorspellen van gebouwschade gebeurt in algemene zin op basis van de volgende

drie punten:

  1. Aard van de bebouwing (funderingswijze en aanlegniveau).
  2. Staat van de bebouwing (opgebouwde spanningen in het verleden komen vaak tot uiting in bestaande scheurvorming en scheefstand: verlaging incasseringsvermogen.
  3. Vervormingtoenamen of bijdragen vanuit het bouwproces.

 

Figuur 146.1 - Een voorbeeld van gebouwschade

 

Op basis van de staat van de bebouwing en de aard van de bebouwing wordt de respons van de bebouwing voorspeld aan de hand van de verwachte grondvervormingen. Hierbij wordt onderscheid gemaakt tussen:

 

Ten aanzien van toelaatbare grond- en gebouwdeformaties wordt in NEN 9997-1 [30] onderscheid gemaakt tussen relatieve rotaties (βx), zakkingen (wx) en scheefstanden(ω). In de onderstaande figuur 146.2 zijn deze begrippen weergegeven.

 

Figuur 146.2 - Relatieve rotaties( x), zakkingen (wx) en scheefstanden ( ) [NEN 9997; 2012]

 

De betreffende normen zijn bedoeld voor het ontwerp van nieuwbouw en zijn via doorverwijzingen onderdeel van het bouwbesluit. De volgende eisen worden gesteld aan vervormingen bij nieuwbouw van constructies: 

 

Voor een fundering op staal geldt dat door een mogelijke heterogeniteit van de ondergrond en uitvoeringsonvolkomenheden gerekend moet worden met een zakkingsverschil tussen twee afzonderlijke op staal gefundeerde elementen van 50% van de zakking van de funderingselementen. Bij op palen gefundeerde elementen die ‘niet stijve’ bouwwerken ondersteunen, moet voor de bepaling van de relatieve rotatie rekening worden gehouden met een scheefstand en zakkingsverschil tussen nabije palen. Het zakkingsverschil moet op tenminste een derde van de gemiddelde berekende zakking zijn gesteld.

 

In de norm NEN9997 is een bijlage toegevoegd waarin grenswaarden worden gegeven voor constructieve vervorming en verplaatsing van een fundering. Hierin worden voor constructies in open skeletbouw, skeletbouw met wanden, dragende wanden of doorgaande metselwerkwanden voor de bruikbaarheidsgrenstoestand een relatieve rotatie aangehouden tussen de 1:200 – 1:300. Voor veel constructies is een maximum relatieve rotatie van 1:500 toelaatbaar, waarbij veelal al enige scheurvorming optreedt. Voor de uiterste grenstoestand wordt een uiterste waarde van de relatieve rotatie voor bovenstaande bebouwing opgegeven van 1/150. Voor opwaartse vervorming dienen deze waarden te worden gehalveerd. Gezien het privaatrechtelijke karakter van schade aan belendingen t.g.v. bouwwerkzaamheden, hebben bovenstaande criteria voor het beheersen/beperken van de schade geen normstellend karakter. Het criterium van 1/150 daarentegen wel: deze dient als grenswaarde ter voorkoming constructieve schade. Zoals hierboven beschreven hebben de eisen uit de NEN9997 alleen betrekking op nieuwbouw, en tevens alleen op de aspecten bruikbaarheid en veiligheid. Deze eisen hebben geen betrekking op trillingshinder of schade aan trillingsgevoelige processen (storing aan apparatuur). Voor bestaande bebouwing in de nabijheid van een bouwkuip zijn deze eisen niet geschikt. Zij staan los van de door eigenaren toelaatbaar geachte schade, welke per project kan verschillen, en binnen een project ook sterk kan variëren. Voor bestaande bouw moeten de hierboven aangehaalde nieuwbouwnormen gelezen worden zoals aangegeven in de nederlandse norm beoordeling bestaande bouwconstructies [NEN8700; 2011]. Deze norm is in de Regeling Bouwbesluit [75] aangewezen.

 

 

Schadeklassen

Artikel nr. 147

Op basis van diverse bronnen uit de literatuur, verzameld in [69] is een overzicht gemaakt van verschillende schadeklassen, hun karakteristieke schadebeeld, een indicatie van de verwachte scheurwijdte en de bandbreedte van de relatieve hoekverdraaiing waarbij deze kan optreden. De tabel 147.1 geldt voornamelijk voor metselwerk gevels.

Tabel 147.1 - Schadeklassen en bandbreedtes voor metselwerk.

Schadecategorie Schadeklasse Omschrijving Scheurwijdte Karakterisering schadebeeld Indicatie relatieve hoekverdraaiing. Zie figuur 3.5 in [69].
 Esthetisch  0  Verwaarloosbaar  < 0,1 mm  Haarscheurtjes  <1:1600 tot 1:500
 1  Zeer licht  0,1 tot 1 mm  Enige scheurvorming in metselwerk. Kleine scheuren, meestal beperkt tot pleisterwerk, die eenvoudig kunnen worden weggewerkt.  1:1600 tot 1:300
 2  Licht  tot 5 mm  Scheuren kunnen aan de buitenzijde zichtbaar zijn en kunnen tot vochtdoorslag leiden. Deuren en ramen klemmen licht. Geringe scheurvorming kan eenvoudig hersteld worden.  1:1600 tot 1:300
 Functioneel  3  Matig  5 tot 15 mm of meerdere scheuren > 3 mm  Deuren en ramen klemmen. Mogelijke schade aan nuts-aansluitingen. Vochtdoorslag mogelijk. Scheuren zijn zodanig dat metselwerk dient te worden hersteld.  1:600 tot 1:100
 4  Ernstig  15-25 mm, ook afhankelijk van het aantal scheuren  Bruikbaarheid en toegankelijkheid ernstig aangetast. Voelbare scheefstand. Herstel vergt vervanging van muurdelen en andere constructieve elementen.  1:600 tot 1:100
 Constructief  5  Zeer ernstig  > 25 mm, hangt van aantal af  Instortingsgevaar. Volledige renovatie noodzakelijk.  >1:300

Opmerkingen bij tabel 147.1:

 

 

Grenswaarden voor infrastructuur

Artikel nr. 148

Op en vlak onder maaiveld zijn vaak voorzieningen als kabels en leidingen, alsook tramrails en wegverharding aanwezig, waarvan de vervormingen tijdens het ontwerp en de uitvoering beheerst dienen te worden. Voor kabels en leidingen zijn hiervoor door Attewell en Yeates [78] grenswaarden bepaald. Hierbij wordt onderscheid gemaakt tussen taaie leidingen, brosse leidingen en kabels met ieder hun eigen vervormingscapaciteit (toelaatbare rek). In algemene zin stellen Attewell, Yeates en Selby [78] dat brosse leidingen 10 mm zakking moeten kunnen ondergaan, en taaie (ductiele) leidingen 50 mm. Voor kabels worden door Attewell en Yeates geen grenswaarden genoemd. Voor kabels, leidingen, tramrails, wegverhardingen, rioleringen et cetera dienen grenswaarden in overleg met de eigenaren/beheerders te worden bepaald.

 

 

Empirische methoden voor bepalen grondvervormingen

Artikel nr. 149

Deze zijn primair bedoeld als eerste inschatting voor planfase en voorontwerp, maar

zijn zeker ook nuttig als referentie voor de definitieve berekeningen. Empirische methoden zijn in essentie een fit van een verzameling ervaringen. Voor nauwkeuriger berekeningen wordt verwezen naar analytische en numerieke methoden.

 

Een bekende grafiek voor het bepalen van een bovengrens van de maaiveldzakking naast een bouwkuip is die van Peck [74] zie figuur 149.1. Het voordeel van deze grafiek is dat alleen de ontgravingsdiepte, grondsoort, vakmanschap van de uitvoerende partij en veiligheid van de passieve grondwig van belang zijn. Dit zijn factoren die ook in een vroeg stadium bekend zijn of aangenomen kunnen worden.

 

In [13] en [70] wordt nader ingegaan op empirische methoden.

 

Figuur 149.1 - Zettingen naast een bouwkuip volgens Peck [74]

 

 

 

 

 

 

Grondvervormingen ten gevolge van beïnvloeding grondwater

Artikel nr. 150

Op de beïnvloeding van het grondwater door opstuwing, wandlekkage en bouwputbodem lekkage en de daaruit vloeiende grondvervormingen wordt ingegaan in [13]. Ook kan, op basis van de voorspelde beïnvloeding van het grondwater, bepaalt worden hoe groot het risico op het droogvallen van houten palen is.

 

 

 

Grondvervormingen als gevolg van trillingen

Artikel nr. 151

Verticale vervormingen zijn vooral gerelateerd aan het in- of uit- trillen of heien van damwanden in zand. Voor het schatten van de hoeveelheid zakking als functie van de afstand tot de damwand zijn de trillingsintensiteit en de in-situ dichtheid van het zand de uitgangspunten. De (maaiveld-)zakking is een gevolg van het nazakken van de grond om het volumeverlies door verdichting te compenseren, zie figuur 151.1.

 

Meestal is de zone met verdichting bij intrillen van damwanden beperkt tot ongeveer 0,5 a 1 m vanaf de wand, maar in het geval van los zand kan deze zone significant verder reiken. De breedte waarover verzakkingen optreden is aanzienlijk breder dan waar verdichting optreedt, en wordt mede bepaald door het teenniveau ten opzichte van het maaiveld. De mate van verdichting wordt bepaald door de aanvangsdichtheid en de trilling amplitude. Welke eenheid voor de trilling amplitude gebruikt moet worden hangt af van het verdichtingsmodel dat men gebruikt. Sommige rekenmodellen gebruiken de versnelling amplitude als maat, anderen de snelheidsamplitude of de schuifrekamplitude (de laatste is overigens evenredig met de snelheidsamplitude).

Figuur 151.1 - Vertaling lokale verdichting naar maaiveldzakking

 

 

In [70] wordt ingegaan op methoden om deze zakkingen te voorspellen. Door Meijers en van Tol [2009] is een uitgebreid model ontwikkeld om de zakkingen te voorspellen. Dit model is opgenomen in het programma D-sheetpiling.

 

 

Grondvervormingen door vervormingen van de bouwputbegrenzingen

Artikel nr. 152

Ten gevolge van de ontgraving van de bouwput zullen in de omgeving van de bouwput vervormingen optreden. In [4] wordt ingegaan op methoden waar mee dit kan worden berekend voor damwanden. Voor het dimensioneren van damwanden wordt in Nederland veelal het verenmodel gebruikt, echter de daaruit volgende vervormingen geven geen nauwkeurige voorspelling voor de te verwachten vervormingen in de omgeving. Dit kan nauwkeuriger worden bepaald met de Eindige Elementen Methode (EEM). Voor de bepaling van de vervormingen in de omgeving bij horizontale bouwput begrenzingen met een talud kunnen de vervormingen eveneens het nauwkeurigst met EEM worden bepaald.

Bepaling van schade belendingen door grondvervormingen

Artikel nr. 153

Er zijn diverse rekenmodellen voor het bepalen van de invloed van grondvervormingen op belendingen beschikbaar. De keuze van het rekenmodel hangt af van vele aspecten, waaronder de praktische beschikbaarheid ervan en het kennisniveau van de ontwerper. Belangrijk is echter vooral in welke mate het model geschikt is voor het beoordelen van de specifiek verwachte risico’s. In [13] wordt ingegaan de geschiktheid, nauwkeurigheid en toepassingsgebied van modellen.

De meest toegepaste methode is Limiting Tensile Strain Method (LTSM). Dit is een analytische methode, gefit op waarnemingen, om potentiele schade aan belendingen door grondvervormingen te voorspellen [69], [62] en [72]. De methodiek is vooral geschikt voor metselwerkconstructies en in iets mindere mate voor raamwerken. De LTSM is onderverdeeld in een aantal opeenvolgende stappen, (zie 153.2). In de methode worden de vervormingen door verplaatsingen door grondvervormingen gecombineerd met de verplaatsingen door eigen gewicht en de belastingen in het gebouw. Hierbij is er geen interaktie tussen de vervormingen van het gebouw en de grondvervorming. De LTSM methode gaat ervan uit dat het gebouw en zijn fundering de grondvervorming volledig volgt.

Met de methode worden hoekverdraaiingen en horizontale rekken in het gebouw berekend. Op basis hiervan is de schade te classificeren.

Figuur 153.1 - Schematisering van de LTSM benadering voor bouwkuip waarbij greenfield (en) staat voor maaiveldvervorming zonder gebouw

Figuur 153.2 - op de horizontale as Hoekverdraaiing in ‰, en op de verticale as horizontale rek in ‰ verticale as horizontale rek in ‰ en schadebeeld, gebaseerd op Son et al [72]

Met in onderstaande tabel 153.1 de Nederlandse beschrijving en klasse indeling.

Tabel 153.1 - Schadeklassen en bandbreedtes voor metselwerk

beschrijving schadeklasse
negl. = negligible = verwaarloosbaar 0
v.s. = Very slight damage = zeer lichte schade 1
slight = lichte schade 2
moderate = matige schade 3
severe = ernstige schade 4
very severe = zeer ernstige schade 5

Voor een aantal gevallen zal het nodig zijn de interactie tussen gebouw en grondvervorming wel mee te nemen. De aanwezigheid van het gebouw zelf heeft echter ook weer invloed op de grondvervorming. Een stijf gebouw (in axiale of buig richting) zal gelijkmatiger zakken en horizontaal gelijkmatiger vervormen dan een slap gebouw. De interactie tussen het gebouw en ondergrond kan echter leiden tot een aangepaste reactie van het pand. De interactie kan worden bepaald aan de hand van literatuur, die echter voor Nederlandse situaties nog niet is gevalideerd. Vooral wanneer de LTSM methode in eerste instantie tot een te hoge schadeklasse leidt, kan met een extra berekeningsstap voorafgaand aan stap 3 een reductie op de in rekening te brengen grondvervorming worden bereikt. In uitzonderingsgevallen pakt deze interactie ongunstiger uit dan indien er vanuit gegaan wordt dat het pand de volledige vervorming volgt. Goh & Mair [71] hebben hiervoor wel interactiefactoren afgeleid. Een gebouw met lage axiale en buigstijfheid zal de grondvervormingen volgen alsof er geen gebouw aanwezig is (greenfield). Een zeer stijf gebouw (zowel axiaal als buigstijf) zal vooral roteren en als een geheel verplaatsen. Vooral de horizontale rek die wordt overgedragen hangt sterk af van de axiale stijfheid, terwijl de aanpassing van de buiging in het gebouw (deflectie) bij gangbare axiale stijfheid vooral wordt bepaald door de buigstijfheid. De interactie wordt uitgedrukt in modificatiefactoren, bepaald door de verhouding van de buiging en horizontale rek van de grond ten opzichte van die in het gebouw hierop wordt in detail ingegaan in [13].

Figuur 153.3 - Modificatiefactoren voor axiale stijfheid volgens Goh&Mair; [71]. Let op: deze geldt alleen voor funderingen op staal met een continue fundering (dus geen poeren of palen).

Op basis van de in [71] (Let op: deze geldt alleen voor funderingen op staal met een continue fundering (dus geen poeren of palen).”) figuur 153.3 gepresenteerde resultaten van Goh & Mair [71] kan worden geconcludeerd dat voor de realistische range van gebouw- en grondstijfheidratio slechts een fractie van maximaal ~6% van de horizontale grondvervormingen aan het gebouw kan worden overgedragen.

In bijzondere gevallen zal een volledig gekoppelde berekening nodig zijn waar in een berekening met EEM zowel de grond als het gebouw vervormingen worden bepaald.

Trillingen ter plaatse van belendingen

Artikel nr. 154

Dit artikel is verdeeld in 2 onderdelen:

 

Normen en richtlijnen

Artikel nr. 155

In Nederland bestaat tot op heden geen wetgeving voor het voorkomen van hinder of schade door trillingen, zoals die wel bestaat voor geluidhinder (Wet geluidhinder). Wel worden in het bouwbesluit onder artikel 8.4 grenzen gesteld aan hinder door trillingen, grenzen aan schade door trillingen.

Dit betekent dat bij het opstellen van ruimtelijke plannen het aspect trillingen een aandachtspunt is in de afwegingen. De beoordeling van het aspect trillingen vindt zijn grondslag in artikel 3.1 Wet ruimtelijke ordening, waarin de zorg voor een goede ruimtelijke ordening is voorgeschreven. Daarvoor is het nodig om mogelijke trillingshinder in kaart te brengen en deze te betrekken in de beoordeling.

Er zijn een aantal richtlijnen en beleidsregels die worden gebruikt:

 

SBR-richtlijn [28]

Een belangrijk en voor veel situaties te gebruiken hulpmiddel is de SBR-richtlijn “Meet- en beoordelingsrichtlijnen voor trillingen”. Deze richtlijn bestaat uit drie delen:

 

Deze richtlijn sluit grotendeels aan bij internationale richtlijnen (Duitse norm DIN 4150, ISO 2631/2 [131]). Er wordt in deze richtlijn veel aandacht besteed aan het meten van trillingen. Over het algemeen wordt dan ook verwezen naar deze richtlijn wanneer een trillingsonderzoek is voorgeschreven en uitgevoerd. Naast aandacht voor de meting van trilling bevat de richtlijn ook een beoordelingssystematiek.

De richtlijnen hebben uitsluitend betrekking op trillingen die van buiten het te beoordelen gebouw komen. Dat houdt in dat het gaat om trillingen die uitsluitend via de ondergrond en de funderingen het gebouw bereiken. Dat is tevens het beoordelingscriterium voor deel A (Schade aan gebouwen). Hierbij worden verschillende categorieën voor de kwaliteit van de bebouwing onderscheiden. De richtlijn maakt onderscheid in de constructiewijze en de staat van het bouwwerk. Hierbij wordt de volgende verdeling van bouwwerken aangehouden:

 

Categorie 1:

In goede staat verkerende onderdelen van de draagconstructie, indien deze bestaan uit gewapend beton of hout. Onderdelen van een bouwwerk, die geen deel uitmaken van de draagconstructie (bijv. scheidingsconstructies), indien deze bestaan uit gewapend beton of hout. Draagconstructies van bouwwerken, geen gebouw zijnde, die bestaan uit metselwerk, zoals pijlers van viaducten, kademuren en dergelijke. Onderdelen bestaande uit staal of voorgespannen beton kunnen ook in deze categorie worden ingedeeld.

 

Categorie 2:

In goede staat verkerende onderdelen van de draagconstructie van een gebouw, indien deze bestaan uit metselwerk. In goede staat verkerende onderdelen van een gebouw, die niet tot de draagconstructie behoren, zoals bijvoorbeeld scheidingsconstructies, die bestaan uit niet gewapend beton, metselwerk of uit brosse steenachtige materialen.

 

Categorie 3:

Onderdelen van oude en monumentale gebouwen met grote cultuurhistorische waarde. In slechte staat verkerende gebouwen uit metselwerk of in slechte staat verkerende onderdelen van gebouwen.

Voor de toetsingswaarden is verder het type meting en het type trillingsbron van belang. Onderscheid wordt tevens gemaakt tussen trillingsgevoelige funderingen en niet trillingsgevoelige funderingen.

Het bouwwerk kan ook in een slechte bouwkundige staat verkeren, hiervan is sprake indien de sterkte van de draagconstructie in belangrijke mate is verminderd door reeds aanwezige schade en/of de onderlinge samenhang tussen de onderdelen zodanig zwak is dat deze door trillingen kan bezwijken of in belangrijke mate kan verzwakken.

 

Het vaststellen van de juiste categorie dient zorgvuldig te gebeuren. Zo kan het zijn dat een kantoorgebouw op het eerste gezicht in cat. 1 zou vallen, omdat het een betonconstructie is die in zeer goede conditie verkeert, maar dat er veel glaspanelen in de gevel zijn toegepast of natuurstenen gevelelementen, waardoor het toch raadzaam is het gebouw in cat. 2 in te delen.

Bij deel B (hinder voor personen in gebouwen) worden de trillingen gemeten op vloeren, omdat daar de hinder optreedt.

Overigens komt het nogal eens voor dat wat door bewoners als trilling wordt ervaren in werkelijkheid laagfrequent geluid is (en dus overdracht via de lucht). Hiervoor gelden de richtlijnen niet.

 

 

Voorspellingsmethoden

Artikel nr. 156

Er zijn op dit moment nog geen voorspelmodellen waarin alle factoren zijn opgenomen die van invloed zijn op de trillingen van gebouwen, en waarbij dan ook nog de mogelijke spreiding hierin afdoende wordt afgedekt (zonder altijd ‘schade’ als antwoord te geven). De belangrijkste invloedsfactoren zijn:

 

Aanbevolen wordt om gebruik te maken van eenvoudige voorspelmodellen voor trillingen in combinatie met (zelf te vergaren) gebiedservaring op basis van metingen in projecten. In voorspelmodellen wordt uitgegaan van een driedeling:

 

  1. Modellering van de bron.

  2. Modellering van de golfvoortplanting in de bodem.

  3. Modellering van de reactie van het gebouw.

 

De voordelen van deze modellering zijn vooral het snelle rekenen en de inzichtelijkheid van de modellering. Het belangrijkste nadeel is de volledige ontkoppeling van de onderdelen. Dit is fysisch vaak onjuist, omdat de interactie tussen de bron en de bodem en de bodem en het gebouw vaak erg belangrijk zijn.

 

In figuur 156.1 uit eurocode 3 NEN-EN 1993 [32] wordt een voorbeeld gegeven van trillingsniveaus als afstand tot de bron.

Figuur 156.1 - Trillingen als functie van de afstand tot het werk [NEN-EN 1993]

 

De bijbehorende formule is

 

Ppv = C √ W / r

 

Waarin:

PPV = de piek deeltjes snelheid in mm/s;

C = empirische parameter gerelateerd aan grondsoort en heihamer tussen 0,5 en 1,0;

W = energie van de heihamer per slag in J/klap of de vibrator per cyclus in J/cyclus;

r = afstand tot de bron van de trilling in m.

 

Daarnaast wordt een ervaringsgrafiek (zie figuur 156.2) gepresenteerd met een indicatie van trillingen voor een aantal soorten equipement als functie van de afstand. Het trillingsniveau op een zekere afstand wordt bepaald door de sterkte van de trillingsbron.

Figuur 156.2 - Indicatie van door materieel veroorzaakte trillingen [NEN-EN 1993]

 

Met het in CUR 166 [7] beschreven rekenmodel kan snel een indicatie van de bovengrens van de te verwachten trillingen in een gebouw worden verkregen. Hiervoor kan ook het programma VP damwand (via BRIS.nl) worden gebruikt. Daarnaast is er in DelftCluster verband een rekenmodel ontwikkeld voor het voorspellen van trillingen. Dit model is op een aantal cases gevalideerd. Het theoretische model is echter nog niet omgezet naar een werkend rekenpakket. Op basis van eerdere metingen bij soortgelijke projecten (in combinatie met gebiedservaring) kan ook een goede verwachte waarde van de trillingen worden bepaald.

 

Gebiedservaring kan worden verkregen door bij verschillende projecten metingen uit te voeren. Extra kennis kan worden opgedaan door naast de project meetvereisten (meestal de bewaking van de trillingen in een gebouw) ook de trilling in de bodem als functie van de afstand tot de trillingsbron te meten. Dit kan door aanvullend sensoren op bijvoorbeeld 5, 10, 20 en 40 m van de trillingsbron op het maaiveld te plaatsen. Vaak is het ook nuttig om de overdrachtsfunctie van de grond naar gebouwen vast te stellen door een sensor op de fundering en direct voor de fundering op het maaiveld te plaatsen. Bij kleine tot middelgrote gebouwen (woonhuizen) is de demping van grond naar gebouw in de meeste gevallen te verwaarlozen.

 

Indien geen directe gebiedservaring voor handen is, kan gebruik worden gemaakt van de DeltaBrain website [www.deltabrain.nl] voor bouwtrillingen. DeltaBrain Bouwtrillingen maakt gebruik van referentieprojecten en een voorspellingsmodel.

 

 

Geluid

Artikel nr. 157

Sinds het einde van de jaren zeventig vormt de Wet geluidhinder [66] een belangrijk juridisch kader voor het Nederlandse geluidsbeleid. De Wet geluidhinder biedt onder andere geluidsgevoelige bestemmingen (zoals woningen) bescherming tegen geluidhinder van wegverkeerlawaai, spoorweglawaai en industrielawaai door middel van zonering. De Wet geluidhinder is daarom sterk gelinkt aan de Wet ruimtelijke ordening Wet Ruimtelijke Ordening [67] en de Wet algemene bepalingen omgevingsrecht.

 

Bouwlawaai is vaak niet te voorkomen. Hierbij is er een belangrijk onderscheid tussen geluid voor personeel op de bouwplaats en voor de omgeving. Betreffende het eerste is de ARBO-wet [65] van belang, die bij geluidssterktes boven 80 dBa beschermingsmaatregelen verplicht stelt in de werksituatie.

 

In relatie tot de omgeving verdient het onderwerp uitgebreid aandacht in de voorbereiding van bouwprojecten, net als de communicatie en voorlichting rond het bouwproject. De meest in het oog springende eigenschap van bouwlawaai is dat het een tijdelijk verschijnsel is. Er is geen bouwlawaai meer als het werk is gerealiseerd. Hierdoor is de acceptatie van hoge geluidniveaus groter dan bijvoorbeeld industrielawaai. Daarnaast wijkt het geluid vaak af van omgevingseigen bronnen en is daardoor goed herkenbaar. Dit wordt vooral veroorzaakt door het wisselend karakter in tijd en in plaats.

Figuur 157.1 - Nachtelijk heiwerk van damwandplanken [https://beeldbank.rws.nl, Rijkswaterstaat / Rens Jacobs]

 

Om de mate van hinder voor de omgeving in te schatten kan de onderstaande figuur 157.2 worden toegepast. Als uit de tabel volgt dat de werkelijke afstanden kleiner zijn dan de gegeven afstanden bij 60 dB(A), dan is de kans groot dat bouwlawaai voor hinder zorgt.

Figuur 157.2 - Afstandtabel bouwwerkzaamheden [Circulaire Bouwlawaai; 2011]

 

In deel 2 van de CUR 166 [7] wordt aandacht besteed aan de geluidsaspecten van het inbrengen van damwand elementen. De geluidsbelasting, vigerende regelgeving en reductie mogelijkheden worden besproken. Hierbij moet onderscheid gemaakt worden tussen de geluidsbelasting van de werknemers, die onder de Arbo- wetgeving vallen, en de geluidhinder van omwonenden, waarvoor de wet Geluidhinder van toepassing is.

 

Een benaderende modellering geeft aan dat de geluidsbelasting van een pand beschreven

kan worden door de formule:

 

Lpand = Lbron + Lafstand + Lbedrijfsduur + Lreductie

 

Waarin:

Lbron de geluidsbelasting van de bron op referentie afstand;

Lafstand de afname van de geluidsbelasting met de afstand;

Lbedrijfsduur een correctiefactor voor de bedrijfsduur;

Lreductie de reductie van een mitigerende maatregel, bijvoorbeeld het toepassen van een heimantel.

 

Indien er verschillende tegelijk bronnen actief zijn, bestaan er rekenregels die de gemeenschappelijke invloed in rekening brengen.

 

 

Bouwbesluit bouw en slooplawaai

Artikel nr. 158

In het Bouwbesluit van 2012 [75] is een formeel juridisch kader gecreëerd waaraan bouw en slooplawaai moet voldoen. Het Bouwbesluit hanteert hiertoe een dagwaarde, die wordt bepaald op de gevel van woningen en andere geluidsgevoelige gebouwen en op de grens van geluidsgevoelige terreinen. Deze dagwaarde is de waarde van het equivalente geluidsniveau bepaald over de periode lopend van 7.00 tot 19.00 uur vermeerderd met een straftoeslag voor geluid met een impulsachtig karakter.

 

Deze dagwaarde wordt vastgesteld overeenkomstig de Handleiding Meten en Rekenen Industrielawaai uit 2004. 

 

Toelichting bij het gestelde in deze handleiding:

De dagwaarde komt overeen met de dagwaarde van het langtijdgemiddeld beoordelingsniveau (LAr,LT,dag), waarbij alleen de impulstoeslag wordt toegepast. Volgens de Handleiding is het langtijdgemiddeld beoordelingsniveau namelijk reeds inclusief de toeslag voor geluid met impulskarakter. Met langtijdgemiddeld beoordelingsniveau wordt derhalve het equivalente geluidsniveau bedoeld.

 

Blootstellingsduur

De dagwaarde is maximaal 80 dB(A). De dagwaarde mag niet meer bedragen en niet langer duren dan de in deze tabel aangegeven waarden.

 

Tabel 158.1 - blootstellingsduur dagwaarden

Dagwaarde Max. blootstellingsduur
Onder of gelijk aan 60 dB(A) Onbeperkt
Boven de 60 dB(A) Ten hoogste 50 dagen
Boven de 65 dB(A) Ten hoogste 30 dagen
Boven de 70 dB(A) Ten hoogste 15 dagen
Boven de 75 dB(A) Ten hoogste 5 dagen
Boven de 80 dB(A) 0 dagen

 

Deze tabel is als volgt te lezen. Voor activiteiten die een dagwaarde veroorzaken van meer dan 60 dB(A) zijn ten hoogste 50 dagen beschikbaar, waarvan maximaal 30 dagen de dagwaarde meer dan 65 dB(A) mag zijn. Van deze 30 dagen mag de dagwaarde maximaal 15 dagen hoger dan 70 dB(A) zijn. De dagwaarde bij gevels van woningen mag maximaal 5 dagen tussen de 75 en de 80 dB(A) bedragen. Een dagwaarde boven de 80 dB(A) is niet toegestaan.

 

Het bevoegd gezag (de gemeente) kan voor situaties die niet in deze tabel passen een ontheffing verlenen.

 

Observatiemethode

Artikel nr. 159

Naast de gangbare ontwerpmethoden voor geotechnische constructies noemt Eurocode 7 [30] (§2.7 van NEN-EN 1997-1) ook de observatiemethode. Deze methode komt in aanmerking indien het moeilijk is om het geotechnisch gedrag te voorspellen. Bij deze methode wordt het ontwerp gedurende de bouw beoordeeld en zo nodig bijgestuurd op basis van in de ontwerpfase bedachte scenario’s. De observatiemethode gaat gepaard met uitgebreide en intensieve monitoring waarbij vooraf grenswaarden moeten zijn vastgesteld voor de diverse te meten grootheden. Er moet een plan voor mitigerende maatregelen zijn opgesteld, dat in werking moet treden indien uit de monitoring blijkt dat de aanvaardbare grenzen van het gedrag van de constructie worden overschreden.

 

Bij de observatiemethode kan gebruik worden gemaakt van de ‘verborgen’, extra sterkte van de grond, waarbij door metingen gecontroleerd wordt of daadwerkelijk deze extra sterkte aanwezig is. Ondanks de beperkingen kan in het algemeen gesteld worden dat de methode kan leiden tot besparingen in kosten en tijd zonder dat concessies worden gedaan aan de veiligheid. Met name tijdens de bouwfase biedt de methode mogelijkheden voor kostenbesparingen op hulpconstructies en uitvoeringsvolgorde. In de gebruiksfase kan echter ook sprake zijn van substantiële besparingen, in het bijzonder als omvangrijke beschermingsconstructies voor belendende funderingen op basis van de resultaten van (deformatie)metingen achterwege kunnen blijven.

 

Bij damwandconstructies kan de observatiemethode bijvoorbeeld gebruikt worden om het aantal rijen stempels te beperken. In §2.5 van CUR 166 Deel 2 [7] is een dergelijk geval beschreven, waarbij een 12,5 m diepe ontgraving in sterk overgeconsolideerde klei gemaakt moest worden. In het oorspronkelijke ontwerp waren 3 rijen stempels voorzien, zie figuur 159.1. Op verzoek van de aannemer is onderzocht of de hoeveelheid stempels kon worden beperkt.

 

Door gebruik te maken van de hogere korte termijn sterkte van de klei, resulterend in een lagere actieve en een hogere passieve gronddruk, en uitvoering van deformatiemetingen en krachtmetingen in de stempels kon uiteindelijk het onderste stempelraam komen te vervallen. Hierdoor werd 20% bespaard op de omvang van de stalen hulpconstructie.

Figuur 159.1 - Toepassing observatiemethode bij ontwerp gestempelde bouwputwand (Kanaaltunnel, zie [7])

 

Bij de A2 tunnel te Maastricht ([82]) figuur 159.2 is de observatiemethode ook toegepast. Daar bestond onzekerheid over de ondergrond ten aanzien van de sterkte van de kalksteen en de doorlatendheid van de ondergrond. Met behulp van boringen en laboratoriumonderzoek is de sterkte van de kalksteen onderzocht. De spreiding bleek echter groot. Om de sterkte van de kalksteen beter in beeld te krijgen zijn extra sonderingen uitgevoerd naast de eerdere boorlocaties. Hiermee was het mogelijk de kalksteen beter in te delen in kwaliteitsklassen. De onzekerheid over de sterkte bleef echter grotendeels bestaan. Daarnaast bestond onzekerheid over de verhouding tussen de vertikale en horizontale waterdoorlatendheid van de ondergrond en daarmee over het waterdrukverloop over de damwand in de passieve zone.

Bij de bouw zijn de waterspanningen in de passieve zone, de krachten in het onderste stempel en de vervorming van de damwandvoet met behulp van inclinometers gemeten. Aan de hand van de meetresultaten kon besloten worden tot beheersmaatregelen, zie figuur 159.3. De mogelijke beheersmaatregelen zijn:

 

De observatiemethode kan gezien worden als een procedure voor risicobeheersing. Bij de toedeling van risico’s spelen altijd contractuele aspecten. Belangrijk is het besef dat zowel opdrachtgever als opdrachtnemer voordeel hebben van de observatiemethode. Er moet acceptatie zijn van de kant van de opdrachtgever, reeds in de tenderfase.

Toepassing is vooral kansrijk in geval van een bouwteam of alliantie, maar mogelijk ook in geval van een Design & Construct contract.

 

Figuur 159.2 - Bouwput A2 tunnel te Maastricht met gestempelde damwanden in cement-bentoniet schermen (zie [82])

Figuur 159.3 - Toepassing observatiemethode bij bouwput A2 tunnel te Maastricht

 

 

 

 

 

 

Objectdetaillering bouwfase

Artikel nr. 160

In de onderliggende artikelen worden de ‘best practices’ beschreven voor objecten die een functie vervullen tijdens de bouwfase. In sommige gevallen vervullen deze objecten tevens een functie in de gebruiksfase.

Objecten die uitsluitend een functie vervullen tijdens de gebruiksfase worden beschreven in artikel Objectdetaillering permanente constructies. Uitzondering zijn de voegen van zinktunnels, deze worden behandeld in Specifieke detaillering voegen afgezonken tunnels.

 

 

 

Uitvoeringsprincipes

Artikel nr. 161

Dit onderdeel uit het handboek bevat een algemene omschrijving van een aantal principe mogelijkheden om een bouwput tot stand te brengen. In praktijkgevallen worden veelal verschillende van deze principemogelijkheden in combinatie met elkaar toegepast, om te komen tot een optimaal ontwerp. Voorbeeld hiervan is het combineren van een bouwput met een onderwaterbetonvloer met een beperkte bemaling van het ondergelegen spanningswater om de opwaartse belasting in de bouwfase te verminderen.

 

 

 

Afgezonken tunnel

Artikel nr. 162

Bij het bouwen van een tunnel door middel van afzinken wordt het gesloten gedeelte van de tunnel in één of meerdere elementen geprefabriceerd. Het prefabriceren van de elementen gebeurt op een andere, dan de definitieve locatie. De elementen worden geplaatst, door deze drijvend van de bouwlocatie naar de bestemming te transporteren en deze vervolgens af te zinken en aan elkaar te koppelen. Globaal kan men de aanleg van een afgezonken tunnel verdelen in de volgende onderdelen:

 

De bouwplaats:

 

Op de eindbestemming:

 

De ruwbouw is hiermee voltooid. Hierna volgt nog de afbouw. Dit houdt in:

  

Keuze om de tunnel te bouwen in één of meerdere elementen:

Redenen om het gesloten gedeelte van een tunnel te bouwen met meerdere afgezonken tunnelelementen kunnen zijn:

Om meerdere elementen te kunnen toepassen moet uiteraard kunnen worden beschikt over een bouwdok van voldoende grootte en moet de route tussen bouwdok en tunnellocatie ook bevaarbaar zijn (of wordt gemaakt) voor de tunnelelementen.

 

Bouwlocatie

Artikel nr. 163

Voor de bouw van de tunnelelementen gaat de voorkeur uit naar een bouwdok met open bemaling waarin voldoende ruimte is voor alle tunnelelementen van de tunnel. Andere mogelijkheden zijn: een bouwdok met folieconstructie, een scheepsdok of een toeritdok.

 

Bouwdok

Dit bouwdok is te vergelijken met een normale bouwput voorzien van een bemalingssysteem.

De plaats van het bouwdok wordt bij voorkeur gekozen in de nabijheid van de tunnellocatie op één van de oevers van de te ondertunnelen waterweg.

De oppervlaktematen van het bouwdok worden bepaald door de lengte en breedte van de tunnelelementen en de benodigde werkruimte rondom de elementen.

 

Scheepsdok of toeritdok

Met enige aanpassingen kan de bouwkuip of bouwput van de toerit of de afgebouwde toerit worden ingericht als tijdelijk bouwdok. In een dergelijk bouwdok is doorgaans slechts plaats voor het bouwen van één, relatief kort, tunnelelement tegelijk. De hierbij toegepaste fasering en werkmethode is ook mogelijk bij het gebruik van een scheepsdok.

Welke mogelijkheid wordt toegepast, hangt sterk af van de omstandigheden en locatie van de tunnel en de beschikbaarheid van een bruikbaar scheepsdok.

 

 

Bouw van de elementen

Artikel nr. 164

Op de bodem van het bouwdok wordt een uitvullaag van grind of gedraineerd zand aangebracht met hierop een bekistingplaat. De bovenkant van de uitvullaag wordt in het gewenste profiel afgewerkt. De uitvullaag voorkomt tevens dat het element bij opdrijven aan de bodem blijft ‘kleven’. Om dit ‘kleven’ te voorkomen wordt de voorkeur aan grind gegeven.

 

Elk element wordt vervolgens gebouwd in een aantal stortmoten van ca. 20 meter lengte.

 

Op de bekistingplaat wordt eerst de tunnelvloer gestort. Na verharding van de vloer worden de wanden en het dak gestort. Hiervoor zijn twee methoden beschikbaar:

 

Met het koelen van vers gestort beton wordt voorkomen dat ontoelaatbare (watervoerende) krimpscheuren ontstaan in een constructiedeel, dat tegen of op een reeds verhard constructiedeel wordt gestort. Bij het tegelijkertijd storten van wanden en dak wordt gebruik gemaakt van een z.g. tunnelkist.

 

Voegvlakken

Aan de kopeinden van de elementen worden voorzieningen getroffen om de elementen in de definitieve situatie waterdicht met elkaar te verbinden. Deze voorzieningen bestaan o.a. uit in te storten stalen omrandingen, bevestigingsmogelijkheden voor afdichtingsprofielen en voegsponningen. In de voegsponningen zijn deuvels en ankerbussen opgenomen voor het doorkoppelen van de voegwapening.

 

De tunnelelementen dienen na afzinken nauwkeurig op elkaar aan te sluiten en het theoretisch lengteprofiel binnen kleine toleranties te volgen. Hiervoor worden, als de tunnelelementen nog in het bouwdok liggen, instelbare stalen kopplaten in de omrandingen opgenomen. De kopplaten worden na inmeten van de tunnelelementen gesteld en vastgelast. De ruimte tussen kopplaat en omranding wordt geïnjecteerd. Maatafwijkingen in het lengteprofiel van het tunnelelement en in de voegvlakken c.q. omrandingen worden zodoende zo goed mogelijk gecorrigeerd.

 

Eén voegvlak (primaire eind) wordt voorzien van een tijdelijk afdichtingsprofiel van rubber, het zogenaamde Gina-profiel. Het andere voegvlak (secundaire eind) is door middel van de kopplaat glad afgewerkt zodat het tijdelijke afdichtingsprofiel bij afzinken waterdicht zal aansluiten.

 

Na afzinken wordt de zinkvoeg verder afgewerkt. Dit houdt o.m. in:

 

Tijdelijke voorzieningen

Ten behoeve van het opdrijven, transporteren, afzinken en funderen van de tunnelelementen worden een aantal tijdelijke constructies aangebracht die na dit proces geheel of gedeeltelijk worden verwijderd. Dit zijn:

 

Kritische aspecten:

 

 

Betonconstructie in bouwput met open bemaling

Artikel nr. 165

Op de bouwlocatie wordt de bema­lingsinstallatie ingericht, zie figuur 166.1. Intussen wordt begon­nen met de ontgraving van de bouwput. Bij het vorderen van de ontgraving wordt de bemaling opgevoerd. Als de bouwput op diepte is, wordt, afhankelijk van de grootte van het oppervlak, meestal nog een oppervlaktedrainage aangelegd voor de afvoer van hemelwater.

 

Ter plaatse van veen en kleilagen, waar de bodem niet draagkrachtig genoeg is om de versgestorte betonvloer te dragen, wordt een grondverbetering van zand aangebracht. Ten behoeve van de ontgraving van eventuele diepere gedeelten ter plaatse van kelders en dergelijke, wordt vaak een damwandkuip gemaakt. Hierdoor worden zowel het ruimtebeslag van de bouwput, als de hoeveelheid te ontgra­ven grond en eventueel de bemalingsdiepte beperkt.

 

Na gereedkomen van de ruwbouw wordt de bouwput weer aangevuld en de bemaling uitgeschakeld en verwijderd.

 

 

Bemaling

Artikel nr. 166

De keuze van het bemalingssysteem wordt bepaald door de gewenste grondwaterstandsverlaging en de doorlatendheid van de te bemalen grondlagen.

In principe zijn er twee bemalingssystemen, zie figuur 166.1 en figuur 166.2:

Figuur 166.1 - Bouwput met open bemaling

 

Naast bovengenoemde bemalingen bestaan ook de volgende bemalingen:

Indien ook de bouwruimte beperkt is, wordt de bouwput geheel of gedeeltelijk voorzien van bouwputwanden, zie figuur 166.4.

Een belangrijk aandachtspunt in geval van toepassing van bemaling is de hiervoor veelal benodigde vergunning. Of deze nodig is dient in verband met de doorlooptijd vroegtijdig in het proces te worden nagegaan.. Zie ook Vergunningen en Omgevingsmanagement.

Figuur 166.2 - Typen bemaling

Figuur 166.3 - Gecombineerde spannings- en strengbemaling

Figuur 166.4 - Bouwkuip met spanningsbemaling

Figuur 166.5 - Retourbemaling

 

 

 

 

 

 

Fundering

Artikel nr. 167

Er bestaan twee typen funderingen:

 

Een fundering op staal kan worden toegepast indien een voldoende draag­krachtige laag aanwezig is op het aanlegniveau van de constructie. Zo nodig kan de bodem door middel van verdichten geschikt worden gemaakt. Bij aanlegdiepten waar de opdrijvende kracht groter is dan het gewicht van de beton­constructie kan de constructie worden voorzien van oren om opdrijving te voorkomen. Ook kan in dat geval gekozen worden voor het aanbrengen van op trek belaste ankerpalen.

 

 

Betonconstructie

Artikel nr. 168

Voordat de eigenlijke betonconstructie kan worden gebouwd, wordt eerst een werk­vloer aangebracht. De gehele constructie is opgebouwd uit een aantal stortmoten van circa 20 à 25 m. Bij dergelijke lengtes kunnen krimpscheuren beperkt gehouden worden zonder al te veel bijzondere voorzieningen. Indien nodig, worden de (buiten)wanden gekoeld tijdens het verhardingsproces. Zie ook Afdichtingsprofielen van dit handboek. In de voegen tussen de moten worden voeg- en afdichtingsprofielen opgenomen.

 

Betonconstructie overgangsgedeelte tunnel en toerit

Het overgangsgedeelte wordt gebouwd in meerdere te storten onderdelen. Deze zijn achtereenvolgens:

 

Het keldergedeelte wordt vaak in een kleine bouwkuip, al dan niet voorzien van onderwaterbeton, gebouwd om de ontgraving te beperken.

 

In het geval van zinktunnels zijn de tunnelbuizen van het overgangsgedeelte qua vorm meestal gelijk aan die van het aansluitende (zink)tunnelelement. Het overgangsgedeelte wordt echter in het algemeen traditioneel uitgekist.

Toepasbaarheid

Artikel nr. 169

In een bouwput met bemaling kunnen worden gebouwd:

 

Kritische aspecten:

 

Voorwaarden

Een kunstwerk wordt in een bouwput met bemaling gebouwd als:

 

Referenties

 

 

Betonconstructie in bouwkuip met damwanden en onderwaterbeton

Artikel nr. 170

De gehele constructie bestaat uit twee gedeelten:

 

De bouwputdamwanden, de stempeling/verankering en het onder­waterbeton worden in dit geval beschouwd als tijdelijke constructieonderdelen. Dit houdt in dat er lagere eisen gesteld kunnen worden voor wat betreft duurzaamheid, waterdichtheid en veiligheidsfac­toren. Binnen deze bouwmethode bestaat echter ook een variant, waarbij de damwanden wel een permanente functie hebben, namelijk als trekelement (zie Betonconstructie, methode 1). De palen hebben zowel in de bouwfase als in de definitieve situatie een functie.

 

 

Bouwkuip

Artikel nr. 171

De bouwkuip, zie figuur 172.1 t/m figuur 172.6, bestaat uit stalen damwan­den en een vloer van onderwaterbeton als horizontaal element voorzien van trekpalen. De damwand wordt aan de bovenzijde gezekerd door middel van een stempelconstructie of een verankeringsconstructie. Welke constructie wordt gekozen hangt af van fac­toren zoals:

 

 

Uitvoeringsfasering

Artikel nr. 172

Zonder een stringente volgorde aan te geven kan het bouwen van de bouwkuip worden verdeeld in de volgende onderdelen:

 

Na verharding van het onderwaterbeton wordt de kuip leeggepompt. Eventuele lekkages in de damwand worden door volschuimen of injecteren van de sloten verholpen. Deze lekkages ontstaan door het verwerken van kromme damwandplanken of uit het slot lopen van de planken. Lekkages van de beton­vloer, die ontstaan tussen de vloer en de damwand en in hoeken van de bouwkuip, kunnen ook worden geïnjecteerd. Het dichten van lekkages blijft echter een moeilijke, tijdrovende en daardoor vaak dure oplossing. Het is beter om met een zorgvuldige uitvoering lekkages te voorkomen.

 

In onderstaande figuren wordt ter illustratie een veel voorkomende fasering weergegeven.

Figuur 172.1 - Bouwkuip met damwanden, onderwaterbeton (OWB) en trekpalen - fase 1

Figuur 172.2 - Bouwkuip met damwanden, onderwaterbeton (OWB) en trekpalen - fase 2

Figuur 172.3 - Bouwkuip met damwanden, onderwaterbeton (OWB) en trekpalen - fase 3

Figuur 172.4 - Bouwkuip met damwanden, onderwaterbeton (OWB) en trekpalen - fase 4

Figuur 172.5 - Bouwkuip met damwanden, onderwaterbeton (OWB) en trekpalen - fase 5

Figuur 172.6 - Bouwkuip met damwanden, onderwaterbeton (OWB) en trekpalen - fase 6

 

 

 

 

 

 

 

 

 

 

 

 

 

 

Fundering

Artikel nr. 173

De fundering bestaat uit palen en moet voldoen aan de volgende diverse eisen:

 

 

Betonconstructie

Artikel nr. 174

Binnen de droge bouwkuip wordt de definitieve betonconstructie gebouwd. Soms wordt op de vloer van onderwaterbeton eerst een uitvullaag van grind, draineerzand of een betonnen werkvloer aangebracht. Via deze eventuele uitvullaag kan het water, dat eventueel via scheuren in de vloer naar boven komt, worden afgevoerd. Op de uitvullaag wordt de werkvloer gestort. De verdere werkwijze is verder vrijwel gelijk aan het bouwen in een bemalen bouwput. Een uitzondering is nog de zijkist van de construc­tievloer en de buitenbekisting van de buitenwanden. Hierbij zijn drie mogelijkheden.

  1. Het constructiebeton wordt direct tegen de stalen damwand gestort.

  2. Tegen de damwand wordt eerst een (verloren) bekisting geplaatst. De damwandkassen worden opgevuld met zand. Hierbij moet men zorgen voor een volledige vulling en voldoende verdichting om nazakking van het zand te beperken.

  3. Tussen de damwand en de te maken betonnen wand wordt een ruimte gehouden van 1 á 1,5 meter. In deze ruimte wordt een normale bekisting opgebouwd en na het storten van de wand weer verwijderd. Hierna wordt de ruimte gevuld met grond.

 

De voordelen van methode 1 zijn:

 

De nadelen van methode 1 zijn:

 

Het voordeel van methode 2 is dat bij lekkage van de dam­wandsloten geen uitspoeling van het verse beton kan plaatsvinden. De betonkwaliteit kan hierdoor dus nooit worden beïnvloed.

 

De nadelen van methode 2 zijn:

 

De voordelen van methode 3 zijn:

 

Het nadeel van methode 3 is dat de bouwtijd langer is.

 

Hoe zwaar de voor- en nadelen van elke methode wegen is afhankelijk van de aard van het bouwwerk. Gezien de voordelen van methode 3 (terugwinnen van de damwand) gaat de voorkeur vaak uit naar deze methode.

 

 

Toepasbaarheid

Artikel nr. 175

In een bouwkuip met damwanden en onderwaterbeton kunnen worden gebouwd:

 

Kritische aspecten:

 

Voorwaarden

Een kunstwerk wordt in een bouwkuip met damwanden en onderwaterbeton gebouwd als:

 

Referenties:

 

 

Bouwkuip met permanente damwanden en permanent onderwaterbeton

Artikel nr. 176

Hier wordt de oplossing besproken waarin zowel de damwanden als de onderwaterbetonvloer in de gebruiksfase een functie vervullen. Doel hiervan is de detaillering van beide als definitief gebruikte constructies te behandelen. Bedacht dient echter te worden dat toepassing van definitieve wanden veel gebruikt is en definitief onderwaterbeton niet.

 

Bij een bouwkuip met (dam)wanden fungeren de verticale elementen tijdens de bouwfase als bouwputwand terwijl ze in de gebruiksfase onderdeel zijn van de tunnelwand. figuur 177.1 t/m figuur 177.6 geven het principe schetsmatig weer.

 

Opgemerkt wordt dat de hier besproken combinatie van permanente wanden en een permanente onderwaterbetonvloer ongebruikelijk is.

 

Bouwkuip

Artikel nr. 177

De aanleg van dit type bouwkuip is in prin­cipe gelijk aan de bouwmethode zoals beschreven in Betonconstructie in bouwkuip met damwanden en onderwaterbeton voor een tijdelijke bouwkuip waarbinnen een betonconstructie wordt gebouwd.

Indien stempels worden toegepast moeten deze geïntegreerd worden in de eindsituatie. Als dit niet mogelijk is moet een verankering worden toegepast.

 

Voor de vloerconstructie zijn in principe tweee oplossingen mogelijk:

  1. Ongewapend onderwaterbeton. Dit is bij deze bouwmethode de meest voor de hand liggende oplossing. De dikte van de vloer in samenhang met de h.o.h. afstand van de palen wordt zodanig gekozen dat de hydrostatische druk in de bouw- en eindsituatie kan worden opgenomen. In de eindsituatie dient tevens de verkeersbelasting en nuttige belasting te kunnen worden opgenomen.
  2. Gewapend onderwaterbeton. Indien een ongewapende vloer constructief gezien niet in aanmerking komt, kan worden overwogen de vloer te wapenen. Het onder water aanbrengen van wapening is echter een zeer dure oplossing. Mogelijk geniet de volgende oplossing dan de voorkeur.

 

Omdat de damwand en eventueel ook de vloer van onder­waterbeton een definitieve functie hebben, zullen bij de dimensionering van deze construc­tiedelen hogere veiligheden worden aangehouden dan bij een tijdelijke toepassing. Wel dient het grensvlak tussen de twee betonvloeren als aangrijpingsvlak van de opwaartse waterdruk genomen te worden en niet onderkant onder­waterbeton vloer. Een uitvullaag wordt niet altijd toegepast.

 

Verder moet bij de keuze van het damwandprofiel rekening worden gehouden met een afname van profieldikten ten gevolge van corrosie op de lange duur.

Ook zal tijdens de uitvoering zorgvuldiger gewerkt moeten worden om lekkages en dergelijke te vermijden.

 

In figuur 177.1 t/m figuur 177.6 is een relatief diep gelegen constructie getekend. Deze constructie wordt ook vaak toegepast bij een half verdiepte ligging. Achtergrond is dan veelal de wenselijke landschappelijke inpassing van autowegen bij een economische uitvoeringswijze. figuur 177.7 geeft een voorbeeld van een relatief ondiepe ligging, waarbij niet bemalen mag worden. In de eindtoestand is een gewichtsconstructie met ballastzand toegepast met als voordeel dat geen palen nodig zijn, noch in de bouwfase noch in de eindfase.

 

Figuur 177.1 - Bouwkuip met permanente damwanden en onderwaterbeton - fase 1

Figuur 177.2 - Bouwkuip met permanente damwanden en onderwaterbeton - fase 2

Figuur 177.3 - Bouwkuip met permanente damwanden en onderwaterbeton - fase 3

Figuur 177.4 - Bouwkuip met permanente damwanden en onderwaterbeton - fase 4

Figuur 177.5 - Bouwkuip permanente met damwanden en onderwaterbeton - fase 5

Figuur 177.6 - Bouwkuip met permanente damwanden en onderwaterbeton - fase 6

Figuur 177.7 - Half verdiepte ligging in bouwkuip met onderwaterbeton (figuur via Wolsink)

 

 

 

 

 

 

 

 

 

 

 

 

 

 

Fundering

Artikel nr. 178

In principe kan dezelfde fundering toegepast worden als bij de indirecte bouwmethode, zie ook Fundering. Uiteraard steken de palen in dit geval niet boven de vloer van onderwaterbeton uit.

Eindafwerking bouwkuip

Artikel nr. 179

Op de vloer van onderwaterbeton wordt een laag zand of grind met een dikte van minimaal 0,5 m aangebracht. Hierin worden een aantal drainage- en rioleringsbuizen opgenomen om lek- en hemelwater af te voeren. Op de draina­gelaag wordt de wegverharding aangebracht.

 

Voor de stalen damwand moeten afdekpanelen worden aan­gebracht. Deze panelen hebben de volgende func­ties:

 

Tussenwanden worden in het werk gestort en moeten constructief worden verbonden met de vloer van onderwater­beton. De vloer moet hierop worden gedimensioneerd. Eventueel door het (plaatselijk) opnemen van wapening in de vloer.

 

 

Toepasbaarheid

Artikel nr. 180

Een bouwkuip met permanente damwanden en onderwaterbeton kan dienen als bouwkuip bij:

 

Kritisch aspecten:

 

De ervaring met ongewapende onderwaterbetonvloeren voor permanent gebruik zijn slecht. In meerdere gevallen is achteraf alsnog een gewapende constructievloer aangebracht. Een voorbeeld is de onderdoorgang Pella in Kollumerland.

 

Voorwaarden

Een kunstwerk wordt als bouwkuip met damwanden en onderwaterbeton gebouwd als:

 

Referenties:

 

Bouwkuip met diepwand en onderwaterbeton

Artikel nr. 181

De constructie, die hier wordt bedoeld, is gebaseerd op het principe van constructief koppelen van een diepwand en een constructieve vloer. Wanden en vloer vormen tezamen een homogene bakconstructie. Hierbij is in de eindsituatie geen stempeling of verankering van de wanden vereist. figuur 181.1 t/m figuur 181.6 geven het principe schetsmatig weer.

 

Voor die gevallen waarbij diepwand uitsluitend als vervanging van damwand wordt gezien, wordt verwezen naar de bouwmethoden in de voorgaande artikelen.

 

 

Figuur 181.1 - Bouwkuip met diepwanden en onderwaterbeton - fase 1/2

Figuur 181.2 - Bouwkuip met diepwanden en onderwaterbeton - fase 3

Figuur 181.3 - Bouwkuip met diepwanden en onderwaterbeton - fase 4

Figuur 181.4 - Bouwkuip met diepwanden en onderwaterbeton - fase 5

Figuur 181.5 - Bouwkuip met diepwanden en onderwaterbeton - fase 6

Figuur 181.6 - Bouwkuip met diepwanden en onderwaterbeton - fase 7

 

 

 

 

 

 

 

 

 

 

Bouwkuip

Artikel nr. 182

De bouwkuip bestaat uit:

 

Voor het maken van de diepwanden is een vrij omvangrijke bentoniet-installatie nodig. Deze installatie bestaat uit pompen, spoelbakken etc. Hiervoor moet op het bouwterrein ruimte worden gereser­veerd.

 

Bij grote bouwkuipen is een compartimentering en fasering nodig zoals bij de bouwmethode met damwandkuip beschreven is. Ook de verdere werkwijze is min of meer gelijk. Na gereedkomen van (een deel van) de diepwanden volgen:

 

Na het leegpompen van de bouwkuip wordt de vloer van constructiebeton aangebracht. Ten behoeve van de constructieve verbinding tussen vloer en wand is, tijdens het vervaardigen van de diepwand, in de wandwapeningkorven prefab stekwapening aangebracht. Hiervoor kan gebruik worden gemaakt van busankers, stekkenbakken of uit te buigen wapeningstaven. Ook dient een voorziening te worden aangebracht om de verticale lekweg tussen de wandpanelen ter hoogte van de vloer af te sluiten.

De voegen in de vloer, h.o.h. circa 20 m, moeten samenvallen met één van de voegen in de diepwand, afhankelijk van de paneelbreedte, h.o.h­. 2,5 à 3,0 m. De paalkoppen worden ook hier opgenomen in de constructieve vloer. De constructieve ruwbouw is nu voltooid en na verharding van de constructieve vloer kan de stempeling worden verwijderd.

 

 

Fundering

Artikel nr. 183

Als de keuze voor een bouwmethode met diepwanden gedaan wordt ter beperking van geluids- en/of tril­lingsoverlast moet, ook voor de installatie van de palen, gekozen worden voor een trillingsvrije methode. In dat geval zijn de volgende paalsystemen toepasbaar:

 

 

Eindafwerking bouwkuip

Artikel nr. 184

De voornaamste afbouw bestaat uit het plaatsen van prefab afdekpanelen voor de diepwand. De func­tie van deze panelen is:

 

Ten behoeve van het afvoeren van het lekwater via de wanden wordt achter de afdekpanelen een gootconstructie met afvoerleidingen naar de riolering aangebracht. Tussenwanden worden, zoals gebruikelijk, in het werk gestort op de constructievloer.

 

 

Toepasbaarheid

Artikel nr. 185

Een bouwkuip met diepwanden en constructievloer is toepasbaar voor:

 

Kritische aspecten:

 

Voorwaarden

Een kunstwerk wordt met diepwanden en constructievloer gebouwd als:

 

Referenties:

 

Kunstmatige polder met in den droge aangebrachte folie

Artikel nr. 186

Om een kunstmatige polder te verkrijgen wordt bij deze bouwmethode een waterdichte kunststof folie toegepast om de afsluitende laag te creëren, zie figuur 188.1. Door het verschil in (grond)waterstand buiten en binnen de polder ontstaat een waterdrukverschil aan weerskanten van de folie. Om het druk­verschil op de folie te compenseren wordt de folieconstructie geballast met zand. Veiligheidshalve moet in de gebruikstoestand het gewicht van het zand en  het water op de folie 1,1 maal zo groot zijn als de waterdrukbelasting onder de folie. Hierbij wordt het gewicht van de verharding en wegfundering niet in rekening gebracht.

 

Voor een uitgebreide omschrijving van ontwerp en uitvoering wordt verwezen naar het handboek folieconstructies (CUR 221) [9].

 

 

Graven cunet en bemaling

Artikel nr. 187

Na installatie van het bemalingssysteem wordt in den droge het cunet gegraven. Afhankelijk van de bodemgesteldheid wordt een taludhelling aangehouden van maximaal 1:1,5 (v:h).

Om beschadiging van de folie te voorkomen moeten de bodem en de taluds van het cunet vrij zijn van scherpe voorwerpen en stenen. Het is aanbevolen om zekerheidshalve op de bodem een laag schoon zand aan te brengen.

 

Aanbrengen folieconstructie

Artikel nr. 188

Het foliepakket wordt in opgevouwen toestand op de bodem van het cunet neergelegd op een van te voren gemarkeerde plek. Speciale aandacht is hierbij vereist voor de juiste positiebepaling van die plek, in relatie tot de wijze van opvouwen. Vervolgens wordt de folieconstructie uitgevouwen en uitgelegd over de bodem en taluds.

Bij grotere afmetingen worden de foliepakketten stuk voor stuk uitgelegd en ter plekke aan elkaar gelast, zie figuur 188.2.

 

Lassen in de folie dienen loodrecht op de weg-as te worden aangebracht. Hiermee wordt voorkomen dat lassen op taluds door schuifbelasting t.g.v. aanvulzand en/of grond op trek worden belast.

Na het uitleggen wordt de gehele folieconstructie geïnspecteerd op beschadigingen en zo nodig gerepareerd.

 

De folie dient vanuit het midden te worden aangevuld, mede in verband met de rek in de folie en de stabiliteit van de aanvulling ter plaatse van de taluds. De folie wordt bovenaan de taluds verzekerd door middel van een kielspit. Indien de folieconstructie op andere constructiedelen, bijvoorbeeld een waterkelder of een betonnen bakconstructie, moet worden aangesloten, wordt een klemconstructie toegepast.

Direct op de folie wordt weer een laag zand aangebracht, zie figuur 188.3. Dit zand mag geen stenen of andere scherpe delen zoals schelpen bevatten en slechts een beperkte hoeveelheid fijne delen.

Als alternatief kan onder en op de folie een geokunststof (non-woven) worden toegepast. Penetratie van de folie door schelpen of houtresten in veen worden dan voorkomen.

 

Vervolgens wordt verder aangevuld tot ca. 1,0 m onder de wegverharding. Ook voor deze ophoging geldt dat het aanvullen van het midden uit dient te geschieden, zodat wordt voorkomen dat zand op het talud gaat afglijden en hierbij de folie meeneemt.

Figuur 188.1 - Kunststoffolie in den droge aangebracht - langs- en dwarsdoorsnede

Figuur 188.2 - Eerste foliebaan in den droge gelegd

Figuur 188.3 - Afdekken folieconstructie

 

 

 

De laatste 1,0 à 1,5 m wordt aangevuld met zand voor het zandbed. Op dit zandbed wordt de wegverharding aangebracht. De taluds van de verdiepte weg worden afgewerkt onder een helling van maximaal 1:2. Op de taluds wordt een bekleding van teelaarde aangebracht en vervolgens ingezaaid met gras. In bepaalde gevallen, bijvoorbeeld ter plaatse van landhoofden van viaducten, kan het talud worden vervangen door een gewapende grondconstructie. Taluds kunnen eventueel ook in klei worden uitgevoerd. Dan moet wel het verticaal evenwicht op de taluds geanalyseerd worden vanwege het relatief geringe gewicht.

 

figuur 188.4 en figuur 188.5 geven een toepassing van een in den droge aangelegde folie. De folie kon hier droog worden aangelegd, omdat een tijdelijke bemaling (in combinatie met een retourbemaling) was toegestaan. Het betreft de omlegging van circa 2,5 km in de A50 te Son voor de half verdiepte ligging.

Figuur 188.4 - Half verdiepte ligging omlegging A 50 te Son - dwarsprofiel met folie aangebracht in den droge

 

Figuur 188.5 - Half verdiepte ligging omlegging A 50 te Son - principe van de bemaling en de retourbemaling

 

 

 

 

Drainage en riolering

Artikel nr. 189

Om het polderpeil binnen de folieconstructie te kunnen handhaven wordt een drainagesysteem aan­gelegd, bestaande uit ribbeldrainbuizen en inspectieputten. Voor het opvangen en afvoeren van hemelwater wordt een rioleringssysteem aan­gebracht, bestaande uit straat­kolken, inspectieputten en afvoerbuizen.

 

 

Toepasbaarheid

Artikel nr. 190

Een folieconstructie kan worden toegepast voor de bouw van:

 

Bedacht dient te worden dat een folieconstructie later (vrijwel) niet uitbreidbaar is.

 

Kritische aspecten:

 

Voorwaarden

Een folieconstructie in den droge kan worden toegepast als:

 

Referenties:

 

 

Kunstmatige polder met in den natte aangebrachte folie

Artikel nr. 191

De fabricage van de folie gaat op ongeveer dezelfde manier als bij de droge bouwmethode. De geprefabriceerde foliegedeelten moeten op een speciale manier worden opgevouwen in verband met het afzinkproces.

 

figuur 191.1 geeft een voorbeeld van een relatief ondiepe ligging, waarbij niet bemalen mag worden. Voor de bouwfase is een folieconstructie met onderwaterbeton toegepast. In de eindtoestand is een gewichtsconstructie met ballastzand aanwezig met als voordeel dat geen palen nodig zijn, noch in de bouwfase noch in de eindfase.

 

 

Figuur 191.1 - Half verdiepte ligging in bouwkuip met folie en onderwaterbeton (via Wolsink)

 

 

 

Ontgraven cunet

Artikel nr. 192

Het eerste gedeelte wordt met behulp van graafmachines in den natte ontgraven totdat de put groot genoeg is om er een cutterzuiger in te leggen. Vervolgens wordt het cunet verder uitgebaggerd en op diepte ge­bracht. In verband met de stabiliteit van het onderwatertalud wordt een maximale helling van 1:3 aangehouden. Ook hier wordt eerst een laag schoon zand op de bodem aangebracht. Het komt voor dat op de zandlaag weer een sliblaag wordt gevormd. Deze sliblaag dient verwijderd te worden alvorens de folie wordt af­gezonken. De zandlaag dient in dit geval niet alleen voor de bescherming maar ook als drainagelaag tijdens het afzinken. Water dat eventueel ingesloten wordt onder de folie kan dan sneller wegvloeien.

 

 

Afzinken folieconstructie

Artikel nr. 193

De folieconstructie werd in het verleden op een speciale wijze afgezonken vanaf een ponton­constructie die de gehele cunetbreedte besloeg. Het afzinkponton had de vorm van het bodempro­fiel om plooien in de folie te vermijden tijdens het afzinkproces. Verder zijn op het ponton remrollen aangebracht om de folie geleidelijk en gecontroleerd af te kunnen zinken. Door het tegelijkertijd verhalen van het ponton en het verpompen van water van voor/onder de folie naar achter/boven de folie daalt de folie op de bodem neer. Als de folieconstructie niet gelijkmatig van vorm is, bijvoorbeeld schuine beëindigingen of hoekstukken ter plaatse van de aansluiting met een bakconstructie, dan wordt gebruik gemaakt van extra drijvers.

 

Tegenwoordig wordt veelal een methode zonder speciale pontonconstructie gebruikt. De folie wordt drijvend gehouden met behulp van drijvers en over het water naar de andere oever getrokken. Door vervolgens voorzichtig water van onder de folie op de folie te pompen zakt de folie naar beneden richting het gegraven cunet, zie figuur 193.1. Voor verdere details wordt verwezen naar de het handboek folieconstructies (CUR 221) [9].

 

 

Figuur 193.1 - Afzinken folieconstructie met behulp van drijvers

 

 

Grondaanvulling boven de folie

Artikel nr. 194

Het eerste gedeelte van de aanvulling wordt in den natte aangebracht. Hierbij wordt gebruik gemaakt van een diffusor om ontmenging van de zandspecie te voorkomen. Door ontmenging kunnen sliblagen in de aanvulling ontstaan. Het zand dient vanuit de weg-as in lagen te worden aangebracht. Hiermee wordt voorkomen dat het zand op de taluds gaat glijden en de folie meeneemt. Nadat bal­lastzand met voldoende overhoogte op de folie is aangebracht, wordt het water binnen de folieconstructie weggepompt tot het gewenste polderpeil. Vervolgens wordt de bovenste laag ter plaatse van toekomstige rijbanen (zand voor zandbed) weer verwijderd. Hierbij dient het evenwicht van de folie te blijven gewaarborgd. Tenslotte wordt het zand voor zandbed aangebracht en verdicht.

 

 

Drainage en riolering

Artikel nr. 195

Om het polderpeil binnen de folieconstructie te kunnen handhaven wordt een drainagesysteem aan­gelegd, bestaande uit ribbeldrainbuizen en inspectieputten. Voor het opvangen en afvoeren van hemelwater wordt een rioleringssysteem aan­gebracht, bestaande uit straat­kolken, inspectieputten en afvoerbuizen.

Toepasbaarheid

Artikel nr. 196

Een folieconstructie kan worden toegepast voor de bouw van:

 

Bedacht dient te worden dat een folieconstructie later (vrijwel) niet uitbreidbaar is.

 

Kritische aspecten:

 

Voorwaarden

Een folieconstructie in den natte kan worden toegepast als:

 

Referenties:

 

Kunstmatige polder in de vorm van een U-polder

Artikel nr. 197

Hoewel nog niet op uitgebreide schaal bewezen, is de U-polder (figuur 198.1) ook een mogelijkheid voor het bouwen van een tunneldeel of bakconstructie. De U-polder is een constructie waarin zowel horizontaal als verticaal folie is aangebracht.

 

 

Bouwkuip en ontgraving in de natte

Artikel nr. 198

Eerst wordt een tijdelijke bouwkuip aangebracht met verankerde stalen damwanden. De bouwput wordt in den natte ontgraven waarna in de bouwput voorzetwanden worden geplaatst, bestaande uit lichte damwandprofielen. Na het aanbrengen van een spreidlaag en een waterafsluitende, plastisch blijvende cement-bentoniet afdichting tussen de voorzetwand en de bouwputwand, wordt het geprefabriceerde foliepakket afgezonken. Het nog opgevouwen verticale deel van de folie wordt met behulp van stuurdraden langs de voorzetwand opgetrokken. Ingesloten water en eventueel lekwater tussen folie en voorzetwand wordt via een drainagesysteem afgevoerd. Na aanbrengen van een ballastlaag op de folie wordt het waterpeil binnen de bouwput verlaagd tot de bovenzijde van de ballastlaag. Binnen de nu droge foliekuip worden steunbermen tegen de folie aangebracht. Tegelijkertijd wordt de ruimte tussen de voorzetwand en de bouwputwand aangevuld. De steunbermen dienen voor het waarborgen van de horizontale stabiliteit van de foliewand en kunnen bijvoorbeeld bestaan uit keerwanden of een massief van gewapende grond. Na het lossen van de ankers kunnen de bouwputwanden worden getrokken.

 

De U-polder kan ook van een dak worden voorzien.

Figuur 198.1 - Dwarsdoorsnede U-polder met gewapende grond (links) of L-wand (rechts)

 

 

Drainage en riolering

Artikel nr. 199

Als bij constructies met folie aangebracht in den droge.

Toepasbaarheid

Artikel nr. 200

Een folieconstructie kan worden toegepast voor de bouw van:

 

Kritische aspecten: 

 

Voorwaarden

Een U-polder kan worden toegepast als:

 

Referenties:

 

Kunstmatige polder met cement-bentonietwand of stalen damwanden

Artikel nr. 201

Met een wand, doorgezet tot in een van nature aanwezige of kunstmatig aangebrachte bodemafsluiting, kan een kunstmatige polder gerealiseerd worden. figuur 201.1 geeft een voorbeeld van een dergelijke constructie, waarbij als fundering van de kruisende infrastructuur (brug) diepwandpanelen zijn gebruikt.

 

 

Figuur 201.1 - Kunstmatige polder met cement-bentoniet wand (voorbeeld)

Cement-bentoniet wand

Artikel nr. 202

Het aanbrengen van de cement-bentoniet wand is beschreven in de onderliggende artikelen van het artikel Uitvoering. De cement-bentoniet wand kan ter verbetering van de waterdichtheid worden voorzien van een kunststof of stalen damwandprofiel.

 

Ook kunnen in plaats van cement-bentoniet wanden stalen damwand worden toegepast. De zwaarte van de stalen damwand wordt in deze toepassing hoofdzakelijk bepaald door de heibaarheid omdat in de eindsituatie de wand volledig is ingesloten in de grond. Aangezien de damwand een permanente functie heeft moet de duurzaamheid gewaarborgd zijn.

 

 

Natuurlijke bodemafdichting

Artikel nr. 203

In grote delen van Nederland komt klei voor. Voor deze bouwmethode kan gebruik worden gemaakt van een enkele ononderbroken dikke laag of meerdere, eventueel onderbroken, dunne lagen. Ook als er slechts een aantal dunne kleilaagjes aanwezig zijn, kan deze constructie worden toegepast. De cement-bentoniet wand doorsnijdt in dit geval een aantal laagjes zodat toch voldoende afdichting wordt verkregen. Een zorgvuldig vooronderzoek is nodig om vast te stellen of de kleilaag/lagen geschikt is/zijn.

 

Dit onderzoek moet gegevens opleveren over de doorlatendheid van de laag, de dikte van de laag en de diepteligging van de laag. Voor de diepteligging van de kleilaag geldt:

 

Als geen geschikte natuurlijke laag aanwezig is, kan kunstmatig een bodemafdichting worden aangebracht.

 

 

Kunstmatige afdichting

Artikel nr. 204

Toepassing van een kunstmatige bodemafdichting is in principe mogelijk indien in de bodem een injecteerbare grondlaag aanwezig is. Voor een kwalitatief goede constructie zijn een uitgebreid bodemonderzoek, een deskundige analyse van het injectiemateriaal en de injectiemethode en een zorgvuldige uitvoering vereist. Mede hierdoor en vanwege de relatief hoge kosten is deze techniek nog niet eerder toegepast voor de beoogde bouwmethode.

 

 

Ontgraven

Artikel nr. 205

Als de cement-bentoniet wand rondom is voltooid, wordt de waterstand binnen de kunstmatige polder verlaagd. Het cunet ten behoeve van de wegaanleg wordt in den droge ontgraven.

Voor de cement-bentoniet wanden blijft een steunberm gehandhaafd. Dit is nodig omdat de wand geen noemenswaardige sterkte heeft. De wand alleen kan de belasting ten gevolge van het verschil in waterstand aan weerszijden van de wand niet opnemen. Slappe bodemlagen, zoals veenlagen, zijn hierbij ongunstig omdat ze als horizontale glijlaag kunnen functioneren. In dat geval is een grotere steunberm vereist. In het cunet wordt vervolgens het zandbed en de wegverharding aangebracht.

 

 

Riolering en drainage

Artikel nr. 206

Voor het regelen van de waterhuishouding binnen de kunstmatige polder wordt een riolerings- en drainagesysteem aangebracht, zoals bij de folieconstructies.

 

 

Toepasbaarheid

Artikel nr. 207

De hier beschreven polderconstructie kan worden toegepast voor de bouw van:

Kritische aspecten:

 

Voorwaarden

De hier beschreven polderconstructie kan worden toegepast als:

 

Referenties:

 

 

Fasering en compartimentering

Artikel nr. 208

Redenen om te compartimenteren

Artikel nr. 209

De bouwput kan door middel van loodrecht op de lengterichting geplaatste damwandschermen worden opgedeeld in een aantal compartimenten. In elk compartiment kan onafhankelijk van de andere compartimenten worden gebouwd.

 

Een veel voorkomende reden om tot compartimentering over te gaan is het beperken van de risico’s. Een duidelijk voorbeeld hiervan is dat in geval van een calamiteit, bijvoorbeeld het vollopen van de bouwput, niet de gehele bouw stagneert en de totale schade be­perkt blijft. In geval van doorsnijding van een waterkering is compartimentering om deze reden zelfs vaak een eis van de opdrachtgever of het waterschap. Naast het bovengenoemde risico worden ook de volgende risico’s beperkt door te compartimenteren:

 

Overige redenen voor compartimentering kunnen zijn:

 

 

Fasering bij kruisingen

Artikel nr. 210

Bij het kiezen van een bouwmethode spelen de beschikbare ruimte en de mogelijkheden ten aanzien van de te kruisen waterweg of verkeersweg een belangrijke rol. Zoals in figuur 210.1 t/m figuur 210.4 is aangegeven bestaan de volgende mogelijkheden:

 

Bij variant B is sprake van ‘Gefaseerd bouwen in situ’. Deze wordt nader beschreven in de hierna volgende artikelen.

 

De hier gemaakte keuze bepaalt voor een belangrijk deel de overblijvende potentiële bouwmethoden voor het gesloten gedeelte van een tunnel of aquaduct.

 

Bij het kiezen van een bouwmethode voor de toeritten en de overgangsgedeelten spelen de opties A, B en C een minder belangrijke rol. Het is echter gebruikelijk om hiervoor een bouwmethode te kiezen die goed aansluit bij de bouwmethode van het gesloten gedeelte. Voor de bouw van het gesloten gedeelte kan bijvoorbeeld een bepaalde bouwmethode van het overgangsgedeelten vereist zijn. De definitieve keuze wordt gemaakt op basis van:

 

 

Figuur 210.1 - Principe fasering - variant A

Figuur 210.2 - Principe fasering - variant B1

Figuur 210.3 - Principe fasering - variant B2

Figuur 210.4 - Principe fasering - variant C

 

 

 

 

 

 

 

 

Gefaseerd bouwen in situ

Artikel nr. 211

Onder de noemer ´gefaseerd bouwen in situ´ wordt in deze context geschaard:

 ‘Het in twee hoofdfasen bouwen van het gesloten gedeelte van een tunnel, aquaduct of onderdoorgang, waarbij in beide bouwfasen de te kruisen verbinding gedeeltelijk wordt afgesloten en/of omgelegd, zoals in figuur 210.2 en figuur 210.3 is weergegeven.’

 

Dit principe is de basis voor de beschrijving van de volgende bouwmethoden:

 

Het bouwen van de aansluitende toeritten wordt in de fasering geheel of gedeeltelijk meegenomen, dat wil zeggen: in één bouwput of bouwkuip wordt tegelijkertijd (een deel van) de toerit en een deel van het gesloten gedeelte gebouwd. Dit faseringsprincipe kan worden toegepast voor het ondertunnelen van waterwegen, verkeerswegen en spoorwegen.

 

Daarnaast bestaan de volgende gefaseerde bouwmethoden:

 

Zonder extra voorzieningen zijn deze methoden niet geschikt voor het ondertunnelen van waterwegen. Het pneumatisch afzinken van caissonelementen wordt in dit handboek niet verder beschreven aangezien het bij tunnelbouw vrijwel nooit wordt toegepast. Pneumatische caissons zijn in het verleden wel eens toegepast voor kelders. De faseringen bij de overige drie methoden zijn in de hierna volgende artikelen nader beschreven.

 

Fasering betonconstructie in bouwput met bemaling

Artikel nr. 212

De hier beschreven werkwijze is gebaseerd op de gelijktijdige aanleg van een van elkaar gescheiden autotunnel (destijds A9, nu A22) en een spoortunnel onder het Noordzeekanaal nabij Velsen. De keuze voor deze uitvoeringsmethode werd beïnvloed door de in de grond aanwezige kleilaag die een scheiding vormt tussen het onderliggende zoete grondwater en het bovenliggende zoute grondwater. Deze scheiding moest na de aanleg van de tunnels weer worden hersteld. Hierdoor viel bijvoorbeeld de afzinkmethode af. Verder viel de aanleg min of meer samen met een verbreding van het Noordzeekanaal.


De fasering is schematisch weergegeven in figuur 212.1 en kan als volgt worden beschreven:

 

Kritische aspecten:

 

Toepassing

Een gefaseerde bouw in bouwputten kan worden toegepast bij de bouw van het gesloten gedeelte van tunnels met bijbehorende overgangsgedeelten en toeritten.

 

Voorwaarden

Een gefaseerde bouw in bouwputten kan worden toegepast als:

 

Voor de bouw van de toeritten dient tevens voldoende bouwruimte beschikbaar te zijn.

 

 

Figuur 212.1 - Fasering betonconstructie in bouwput met bemaling (tunnel Velsen)

 

 

Fasering betonconstructie in bouwkuip met onderwaterbeton

Artikel nr. 213

Deze bouwmethode is gebaseerd op het in twee fasen dan wel twee delen bouwen van het gesloten gedeelte. Hiervoor wordt in elke fase een deel van de vaarweg afgesloten. Het andere deel blijft beschikbaar voor het scheepvaartverkeer. Om de bouwkuipen in de vaarweg te beschermen tegen aanvaringen dienen scheepvaartsignalering en geleidewerken te worden aangebracht.

Voor het op elkaar aansluiten van de tunneldelen zijn twee varianten (I en II) beschikbaar. Bij variant I wordt voor de aansluiting gebruik gemaakt van een korte tussenmoot met hierin opgenomen de damwand tussen fase 1 en 2. Deze variant is toegepast bij de aanleg van het Gouwe-aquaduct. Variant II is gebaseerd op een oud ontwerp voor de Zeeburgertunnel. Hierbij wordt de aansluiting gerealiseerd door middel van een overgangsbouwkuip.

De fasering van variant I is schematisch weergegeven in figuur 213.1 en figuur 213.2 en kan als volgt worden beschreven:

De fasering van variant II is schematisch weergegeven in figuur 213.1, figuur 213.2 en figuur 213.3 en kan als volgt worden beschreven:

Kritische aspecten:

Toepassing

De gefaseerde bouw in bouwkuipen kan worden toegepast voor de bouw van de gesloten gedeelten van tunnels en aquaducten met de bijbehorende overgangsgedeelten en toeritten.

Voorwaarden

De gefaseerde bouw in bouwkuipen kan worden toegepast als:

Referenties:

 

Figuur 213.1 - Fasering betonconstructie in bouwkuip - fase 1 t/m 3

Figuur 213.2 - Fasering betonconstructie in bouwkuip - aansluitdetails variant I

Figuur 213.3 - Fasering betonconstructie in bouwkuip - aansluitdetails variant II

Figuur 213.4 - Bouw van Gouweaquaduct

 

 

 

 

Fasering betonconstructie met wanden-dak methode

Artikel nr. 214

De wanden-dak methode, ook wel aangeduid als de cut-and-cover methode, kan op vele manieren worden uitgevoerd. De overeenkomst die alle manieren hebben, is het feit dat eerst de wanden en het dak van de tunnelconstructie worden gebouwd. Vervolgens wordt boven de wanden en het dak de grond weer aangevuld en de oorspronkelijke functie (zoals wegverharding) hersteld. Zonder enige hinder voor het verkeer wordt daarna de ruimte onder het dak en tussen de wanden ontgraven en wordt de tunnel verder afgebouwd. Het voordeel van deze fasering is de korte tijdsduur van bovengrondse bouwactiviteiten.

Omdat vrijwel alle aspecten van deze bouwmethode ook bij andere bouwmethoden voorkomen, wordt bij de behandeling van de wanden-dak methode volstaan met een globale beschrijving en wordt, waar mogelijk, verwezen naar elders.

 

Bovengrondse werkzaamheden

De bovengrondse werkzaamheden bestaan voornamelijk uit het maken van de wanden en het dak van de tunnelconstructie.

 

Wandconstructie

Voor het aanbrengen van de wanden zijn diverse uitvoeringsmethoden beschikbaar (zie ook Bouwputwanden van dit handboek):

 

Tussensteunpunten

Tussensteunpunten kunnen, behalve met de voorgaande manieren ook uitgevoerd worden als palenrij. De palen kunnen op twee manieren worden aangebracht:

 

Dakconstructie

Afhankelijk van de diepteligging van het dak wordt de grond tussen de wanden tot een zekere diepte ontgraven. Eventueel wordt tussen de wanden een tijdelijke stempeling aangebracht. Indien tussensteunpunten in de vorm van een palenrij worden toegepast, worden in deze fase de palen geïnstalleerd.

Vervolgens wordt het dak gestort. Indien nodig, worden voorzieningen aangebracht om naderhand toegang te verkrijgen onder het dak. Na gereedkomen van de dakconstructie wordt de grond boven het dak aangevuld en wordt de bestrating hersteld.

 

Ondergrondse werkzaamheden

Ook het ontgraven onder het dak en het aanbrengen van de vloer kan op verschillende manieren worden uitgevoerd. Welke methode wordt gekozen, hangt af van plaatselijke omstandigheden en randvoorwaarden van het ontwerp.

 

In den droge

Een droge werkruimte kan op twee manieren worden verkregen:

 

Beginnend vanuit een bouwput ter plaatse van de tunnelingang wordt met een graafmachine de grond onder het dak ontgraven. Het transport van de ontgraven grond geschiedt door middel van rijdend materieel. Vervolgens wordt de vloer (inclusief de eventuele wanden) gestort zoals gebruikelijk is in een bemalen bouwput. Al het bouwmateriaal en materieel wordt aan- en afgevoerd via de tunnelingangen. Hierdoor kan de transportafstand groot worden.

 

Natte methode (figuur 214.1)

Beginnend vanuit een bouwkuip ter plaatse van de tunnelingang wordt de grond onder het dak in den natte verwijderd met behulp van een cutterzuiger. Hierna wordt achtereenvolgens:

 

Deze methode is goed bruikbaar indien het dak hoger ligt dan de (grond)waterstand of als een beperkte bemaling is toegestaan. De afstand tussen onderkant dak en wateroppervlak moet voldoende groot zijn om de cutterzuiger onder het dak te laten varen.

Figuur 214.1 - Fasering wanden/dak methode bij natte methode

 

 

Werken onder verhoogde luchtdruk (figuur 214.2)

Het water in de werkruimte wordt door middel van perslucht verdreven. Ontgraving en transport van de grond geschiedt op dezelfde wijze als bij pneumatisch afgezonken caissons. De werkruimte onder het dak wordt toegankelijk gemaakt via toegangskokers op het dak en/of via de einden van de toekomstige tunnelbuizen. In beide gevallen worden luchtsluizen aangebracht om materieel en bouwmaterialen te kunnen aanvoeren zonder dat de luchtdruk in de werkruimte wegvalt.

Door de luchtdruk ontstaan grote belastingen op de wanden en dak. Ook dienen de wanden berekend te zijn op een trekkracht ten gevolge van de luchtdruk. De diepte van de wanden in de grond dient mede gebaseerd te zijn op deze trekkracht.

De werkwijze met verhoogde luchtdruk is alleen mogelijk indien de bodem voldoende doorlatend is om het water door de bodem weg te persen.

Bij werken onder verhoogde luchtdruk gelden beperkingen ten aanzien van de inzet van mensen.

 

Met behulp van een bodemafsluiting

Afhankelijk van de bodemgesteldheid kan een waterremmende bodemlaag worden benut om de werkruimte af te sluiten van het grondwater. Deze bodemlaag kan de volgende gedaanten hebben:

 

In alle gevallen moet de waterdruk onder de bodemlaag door een bovenbelasting op de laag worden opgenomen. Het is daarom noodzakelijk dat de waterremmende laag diep genoeg ligt zodat boven deze laag voldoende grondballast aanwezig is.

 

De bak, gevormd door wanden en waterremmende laag, wordt bemalen. Het ontgraven en alle verdere werkzaamheden wordt op dezelfde manier uitgevoerd als de methode ‘in den droge’.

 

Kritische aspecten:

 

 

Figuur 214.2 - Fasering wanden/dak methode bij methode met verhoogde luchtdruk

Toepassing

De wanden/dak methode kan worden toegepast voor de bouw van het gesloten gedeelte en de overgangsgedeelten van een tunnel of onderdoorgang onder het maaiveld.

 

Voorwaarden

De wanden-dak methode wordt toegepast als de bouwtijd in de open bouwput moet worden beperkt.

 

Referenties:

 

 

Bouwputwanden

Artikel nr. 215 (bevat geen inhoud, zie onderliggende artikelen)

Keuze wandtype

Artikel nr. 216

Het meest toegepaste type kerende wand bij cut-and-cover tunnels is de stalen damwand. Meestal dient deze als tijdelijke kuipwand, maar steeds meer krijgen ze ook de functie van een permanente tunnelwand. Een beperking is het maximaal opneembare buigende moment, hetgeen ze ongeschikt maakt in situaties met een grote kerende hoogte en weinig stempelniveau’s. Ook kan de meest gebruikte aanbrengmethode, namelijk trillen of heien, veel geluids- en trillingsoverlast met zich mee brengen. Om dit laatste te voorkomen zijn er de volgende alternatieven voor het aanbrengen:

 

Met combiwanden kunnen grotere hoogtes worden gekeerd dan met damwanden. Soms worden combiwanden ook gekozen vanwege de geringere doorbuiging. Dit kan van belang zijn in verband met benodigde kuipbreedte of toegestane deformaties en zettingen direct naast de kuip. Ook de heibaarheid is een uitvoeringstechnisch voordeel van combiwanden t.o.v. damwanden. Het nadeel van combiwanden is dat deze vaak niet getrokken kunnen of mogen worden, omdat de grond te veel wordt verstoord, waardoor de pas gebouwde tunnel wordt beschadigd. Doorgaans worden ze 2,5 m onder maaiveld afgebrand. Het aanbrengen van combiwanden is bewerkelijker en de tolerantie eisen zijn strenger omdat de damwandplanken tussen de buizen moeten passen. De voordelen ten opzichte van bijvoorbeeld een diepwand zijn het uitvoeringsgemak, de terugwinbaarheid en de snelheid waarmee gebouwd kan worden (weinig activiteiten en geen verhardingstijd). Daarentegen geeft het inbrengen van dam- en combiwanden veel geluids- en trillingsoverlast. Intrillen van damwanden en combiwanden is een zware opgave in rotsachtige bodems en bodems met obstakels (zwerfkeien etc.). Als permanente constructie dient in het ontwerp meer dan bij diepwanden terdege aandacht te worden besteed aan corrosie (vooral bij projecten in de nabijheid van een spoor i.v.m. zwerfstromen) en lekkage (met name door de sloten).

 

Diepwanden zijn doorgaans duurder en bewerkelijker dan combiwanden. Een ander nadeel is dat diepwanden niet herwinbaar zijn. Duidelijk voordeel is de geluids- en trillingsvrije realisatie. Ook is de heibaarheid bij diepwanden geen probleem. Ontwerptechnisch zijn diepwanden beter qua duurzaamheid en het vermogen om drukbelastingen over te brengen. Bovendien zijn diepwanden in het algemener stijver dan dam- en combiwanden. Dit maakt het dat diepwanden het bij permanente constructies vaker winnen van combiwanden dan bij tijdelijke bouwkuipconstructies.

 

 

Ontwerpberekeningen

Artikel nr. 217

Een belangrijk onderwerp is de dimensionering van de kerende wand. In het handboek damwandconstructies CUR 166 [7] wordt dit uitgebreid omschreven.

 

In geval van diepwanden zijn een aantal specifieke aspecten van belang en daarvoor wordt verwezen naar het door CUR en COB gezamenlijk uitgebrachte Handboek Diepwanden (CUR 231) [11]. Voor het ontwerp van de wapening wordt verwezen naar CUR aanbeveling 76 [3].

 

Stalen damwanden

Artikel nr. 218 (bevat geen inhoud, zie onderliggende artikelen)

Geschiktheid en toepasbaarheid

Artikel nr. 219

Stalen damwanden zijn geschikt als grondkerende- en waterkerende constructie. Ze zijn opgebouwd uit planken die door middel van sloten een dicht scherm vormen. Meestal worden de wanden verankerd of gestempeld.

 

In het handboek damwandconstructies (CUR 166) [7] wordt een overzicht gegeven van de methoden die in Nederland van toepassing zijn bij het ontwerp, de uitvoering en het beheer en onderhoud van damwandconstructies.

 

 

RAMS Criteria

Artikel nr. 220

RAMS staat voor de aspecten Reliability, Availability, Maintainability en Safety.

Voor stalen damwand constructies hangen deze aspecten vaak af van de corrosie en corrosiebescherming. Daarom zijn drie varianten beschouwd.

 

Tabel 220.1 - Rams aspecten stalen damwanden

Coating Kathodische bescherming Opofferingsdikte
R Goed, mits:

  • Voldoende inspectie van de wand wordt toegepast om na te gaan of de coating nog functioneert.
  • Tijdige vervanging van de coating.
Goed, mits:

  • Voldoende monitoring van kathodes en elektrische verbindingen.
  • Tijdige vervanging opofferings- blokken.
Goed, mits:

  • Voldoende overdikte toegepast.
  • Er zijn geen tegenvallers in de afroestsnelheid.
A Gelimiteerd, ivm benodigde inspecties en vervanging. Afhankelijk van locaties geleidingskabels en opofferingsblokken al dan niet gelimiteerd. Beperkt gelimiteerd ivm benodigde inspecties:

Sterk gelimiteerd, ivm risico onzekerheid afroestsnelheid en de onmogelijkheid de wand te vervangen.

M Ja, mits de onderdoorgang op voldoende momenten kan worden afgesloten. Ja, mits geleidingskabels en opofferings- blokken goed gekozen. Geen onderhoud nodig (ook niet mogelijk) dus zeer goed indien geen tegen vallende afroestsnelheid.
S Goed, mits voldaan aan het voorgaande. Goed, mits voldaan aan het voorgaande. Goed, mits voldaan aan het voorgaande.

 

Combiwanden

Artikel nr. 221

Bij de keuze voor het toepassen van combiwanden hangen de uitvoerings- en ontwerpaspecten nauw met elkaar samen. Combiwanden zijn opgebouwd uit primaire elementen (meestal stalen buispalen of H-profielen) en tussenplanken. De primaire elementen geven een grote sterkte en stijfheid aan de wand. De wanden zijn daarom toepasbaar bij diepe tunnels. Combiwanden zijn een interessante optie als deze ook in de definitieve situatie een functie hebben. Als de combiwanden alleen een tijdelijke functie hebben, wordt de optie minder interessant. Het terugwinnen van combiwanden is namelijk veelal niet mogelijk, zie ook het artikel Trekken van lange combiwanden [85]

 

De RAMS criteria wijken niet af van die in het geval van stalen damwanden (zie RAMS Criteria). Combiwanden kennen net als damwanden het probleem van corrosie.

 

Diepwanden

Artikel nr. 222 (bevat geen inhoud, zie onderliggende artikelen)

Ontwerp en uitvoering

Artikel nr. 223

Diepwanden worden vaak toegepast bij de bouw van tunnels. De diepwand heeft verschillende voordelen. De wand wordt trillingsarm aangebracht en kan zonder een grote invloed op de omgeving uit te oefenen op een zeer korte afstand tot de belendingen worden geplaatst. Bovendien kan de wand tot een grote diepte, en eventueel door harde bodemlagen of kleine obstakels, aangebracht worden.

 

Ook kan de wand als definitieve constructie fungeren en is het mogelijk een relatief groot verticaal draagvermogen te mobiliseren. Hierdoor kan de diepwand tevens als funderingselement dienst doen voor een boven de tunnel te plaatsen constructie. Een voorbeeld daarvan is de Spoortunnel te Delft met het bovengelegen stadskantoor.

 

Als nadelen kunnen worden genoemd dat een grote werkruimte nodig is voor een bentoniet installatie en scheidingscentrifuge en de uitkomende grond moet worden afgevoerd.

 

Tot voor enkele jaren werd de toepassing van diepwanden beschouwd als een beproefde techniek met een laag risico. Ervaringen met enkele projecten hebben dit beeld genuanceerd. Bij diepwanden kunnen lekkages optreden die in zandige grond grote gevolgen kunnen hebben. Door de lekkages kan zand worden meegevoerd en uiteindelijk kan dit leiden tot verzakkingen.

 

In dit kader is door CUR Bouw&Infra en het Centrum Ondergronds bouwen (COB) het handboek Diepwanden (CUR 231) [11] uitgebracht. In dit handboek worden zowel het ontwerp als de uitvoering uitgebreid beschreven. Als de aanbevelingen uit dit handboek voor ontwerp en uitvoering worden gevolgd en de uitvoering bovendien zorgvuldig geschiedt, zijn de risico’s beheersbaar. Minimum eisen voor de uitvoering van diepwanden zijn geformuleerd in NEN-EN 1538:2010 [35].

 

Voor de toets op de constructieve sterkte van de diepwand moet de norm NEN-EN 1992 [31] betreffende het ontwerp en de berekening van betonconstructies worden gehanteerd. In aanvulling op deze norm dient  CUR-aanbeveling 76, Rekenregels voor diepwanden [3] te worden gehanteerd. Deze CUR aanbeveling omvat een toelichting op de interpretatie van bepalingen in de NEN-EN 1992 [31] ten behoeve van het ontwerp van diepwanden die hierop een aanvulling vormen.

 

Om aan esthetische eisen te voldoen wordt soms een voorzetwand geplaatst. In veel gevallen, bijvoorbeeld bij de stations van de Haagse Tramtunnel, zijn de ruw gelaten diepwanden nog te zien.

 

 

 

RAMS aspecten diepwanden

Artikel nr. 224

RAMS staat voor de aspecten Reliability, Availability, Maintainability en Safety.

Voor diepwandconstructies is de volgende invulling gegeven:

 

Tabel 224.1 - RAMS criteria Diepwanden

R Goed, mits:

  • de aanbevelingen uit het handboek diepwanden CUR231 zijn gevolgd;
  • de uitvoering geschiedt zorgvuldig;
  • de uitvoering is volgens NEN-EN 1538:2010 [35];
  • de wand is ontworpen volgens CUR 76 [4].
A Sterk gelimiteerd; het vervangen van de wand is onmogelijk, zo niet zeer kostbaar.
M Matig; als de constructie wordt aangetast door bijvoorbeeld corrosie of betonrot is de bereikbaarheid zeer moeilijk, zo niet onmogelijk.
S Goed, mits ontworpen en uitgevoerd volgens de beschikbare richtlijnen en normen.

 

Horizontale bouwputbegrenzing

Artikel nr. 225 (bevat geen inhoud, zie onderliggende artikelen)

Ongewapende onderwater betonvloer

Artikel nr. 226

Voor de berekening van ongewapende onderwaterbetonvloeren wordt verwezen naar CUR-Aanbeveling 77 uit 2014 [4].

 

Opgemerkt wordt dat de Bouwdienst van Rijkswaterstaat twijfels had met betrekking tot enkele artikelen uit de eerdere versie van deze aanbeveling uit 2001. Het belangrijkste kritiekpunt kwam er op neer, dat het niet zonder meer juist was om ook relatief slappe trekelementen (b.v. Gewi-ankers) als starre steunpunten te schematiseren. Met name bij ondiepe bouwputten met slappe trekelementen heeft deze stijfheid veel invloed. In dat geval is de waterdruk namelijk veelal net te groot om de vloer ongescheurd te houden, én de stempeldruk te klein om de gescheurde vloer toch te kunnen laten voldoen. Om deze en enkele andere redenen is in de Richtlijn Ontwerp Kunstwerken [27] een aantal aanvullende bepalingen opgenomen.

 

Met het verschijnen van de nieuwe CUR 77 is echter een groot deel van deze aanvullende bepalingen geadresseerd en daarmee overbodig geworden. Wel signaleert Rijkswaterstaat een nieuw probleem in de nieuwe CUR 77, namelijk dat de specifieke controle op de waterdichtheid in de vorm van bruikbaarheidsgrens-toetsen voor de korte richting, zijn komen te vervallen. Zolang de onderwaterbetonvloer slechts een tijdelijke functie heeft, is een lekkende onderwaterbetonvloer een uitvoeringsprobleem. Het niet meer toetsen op waterdichtheid mag echter niet als consequentie hebben dat het gevaar groter wordt dat de onderwaterbetonvloer extra scheurt bij het storten van de constructievloer. Hiermee heeft Rijkswaterstaat negatieve ervaringen. Extra lekkages in de onderwaterbetonvloer werken namelijk zeer negatief in op de kwaliteit van de constructievloer.

 

Omdat, zoals genoemd, in CUR-Aanbeveling 77 uit 2014 een aantal van de eerdere kritiekpunten is geadresseerd, is het aannemelijk dat de ROK zal worden aangepast. Aanvullende eisen op CUR 77 uit 2014, die mogelijk in de nieuw uit te brengen ROK zullen worden opgenomen zijn:

 

 

Folieconstructies

Artikel nr. 227

In artikel Kunstmatige polder met in den droge aangebrachte folie en Kunstmatige polder met in de natte aangebrachte folie is uitgebreid ingegaan op diverse aspecten van folieconstructies. In de Constructievarianten en RAMS criteria worden resp. constructievarianten en RAMS aspecten behandeld. Berekeningsmethoden zijn te vinden in Berekeningsmethoden.

 

Constructievarianten

Artikel nr. 228

Onderscheid is te maken naar de wijze van het aanbrengen van de folie:

In figuur 228.1 is het principe van de oplossing met taluds getoond.

Figuur 228.1 - Oplossing met taluds

 

In de praktijk worden veelal de volgende gemiddelde waarden voor de helling van het folie- en boventalud aangehouden:

Helling ter plaatse van de folie:

Boventalud:

De genoemde waarden zijn gebaseerd op ervaringen in verschillende Nederlandse grondslagen.

In het geval de oplossing met taluds teveel ruimtebeslag vergen zijn andere constructies mogelijk, zoals de U- polder en damwandpolder.

Figuur 228.2 - U-Polder

Figuur 228.3 - Smalle constructievarianten

 

 

Een folieconstructie kan ook worden toegepast voor het gesloten gedeelte van de tunnel.

Figuur 228.4 - Folieconstructie bij gesloten tunnel

 

Wanneer de polder overgaat in een zijwaarts gesloten constructie moet de folieconstructie worden aangesloten op een betonconstructie. Een voorbeeld is gegeven in figuur 228.5.

Figuur 228.5 - Aansluiting folie op betonconstructie

 

RAMS criteria

Artikel nr. 229

Tabel 3-3 RAMS criteria folieconstructies

R

Goed, mits de juiste folies en diktes zijn gehanteerd.

A

Sterk gelimiteerd; het vervangen van de folie en aansluitconstructie is technisch niet mogelijk of zeer kostbaar.

M

Drainage, ballast en taluds zijn te onderhouden. Folie en aansluitconstructie niet.

S

Goed, mits goed ontworpen en uitgevoerd.

 

 

 

Berekeningsmethoden

Artikel nr. 233 (bevat geen inhoud, zie onderliggende artikelen)

Verticaal evenwicht

Artikel nr. 234

Het verticale evenwicht van de folie kan een-dimensioniaal worden berekend. Bij lokale afwijkingen kan de situatie twee- of drie- dimensionaal worden beschouwd.

 

 

Hierin is:

G;std = belastingfactor gerelateerd aan ongunstig werkende freatische grondwaterstand

G;stb = belastingfactor voor gunstige werking van het aanvulmateriaal boven de folie

overdruk = belastingfactor voor de ongunstige werking van eventueel overspannen grondwater

 

Voor de gebruiksfase gelden overeenkomstig met de NEN –EN 1997-1 [30] de volgende partiële factoren:

 

In aanvulling op NEN –EN-1997-1 [30] zijn in het handboek folieconstructies de volgende eisen geformuleerd:

 

Opmerking: Het handboek folieconstructies geeft in de bouwfase een partiële factor op het gunstig werkende volumegewicht van het aanvulzand G;stb = 0,95 in plaats van 0,90. Dit is een afwijking van NEN 9997. Het handboek foliecontructies [9] is van een vroegere datum dan NEN 9997, maar de NEN 9997 is leidend. Daarom moet ook in de bouwfase met G;stb = 0,90 worden gerekend.

 

De Richtlijn Ontwerp Kunstwerken [27] geeft als aanvullende eisen voor de grondwaterdrukken uit de freatische grondwaterstand:

 

In het geval van een smalle ingraving mag voor de beoordeling van de veiligheid tegen opbarsten zijn gerekend met het effect van spanningsspreiding door de ter weerszijden van de ontgraving aanwezige hogere grondbelasting. De berekeningswijze is beschreven in paragraaf 10.2 van NEN9997_1_NL_2012.

Figuur 234.1 - verticaal evenwicht

 

 

Evenwicht folieconstructie

Artikel nr. 235

Het niveau van de folieconstructie moet zo gekozen worden dat deze in evenwicht is. Anders zal het grondlichaam niet stabiel zijn. De stabiliteit van het grondlichaam en de mogelijkheid van afglijden over de folie dient, zowel voor de tijdelijke als definitieve situatie te worden gecontroleerd.

 

De stabiliteit dient bij voorkeur te worden gecontroleerd met een Eindige Elementen Methode berekening. Deze methode heeft ten opzichte van traditionele stabiliteitsanalyses, zoals de methode Bishop of Spencer, de volgende voordelen:

 

Bij het berekenen met EEM is het mogelijk dat in de berekening boogwerking ontstaat. Indien er twijfels zijn of deze boogwerking in de praktijk optreedt of verstoord kan worden is de berekening met EEM te gunstig. In zo’n geval kan controle met traditionele stabiliteitsanalyses de voorkeur hebben.

Figuur 235.1 - Mechanisme evenwicht folieconstructie

 

 

Stabiliteit hoog gelegen aansluitconstructie

Artikel nr. 236

Het evenwicht van de aansluiting van de folieconstructie aan andere onderdelen van het kunstwerk, zoals aan een betonnen bakconstructie van de tunnel, dient te worden gecontroleerd. Het is kwalitatief de beste oplossing om deze aansluit constructie in den droge aan te brengen. Dit kan door een bouwput met onderwaterbeton, of beperkte bemaling toe te passen.

 

Vanuit economische overwegingen kan het aantrekkelijk zijn de constructie zo hoog mogelijk aan te leggen. Bij toepassing van een dergelijk hoog gelegen aansluitconstructie dient specifieke aandacht uit te gaan naar zowel het verticale als het horizontale evenwicht.

 

Het verticale evenwicht kan bepaald worden volgens de eerder in het voorgaande artikel vermelde formules. Voor het horizontale evenwicht moet de passieve druk van de grond aan de polderzijde evenwicht maken met het horizontale verschil in waterdruk dat volgt uit de buitenwaterstand en het polderpeil. Het horizontale evenwicht is bepalend voor de maximale hoogte van de aansluitconstructie.

 

De minimale diepte van het aansluitpunt onder de buitenwaterstand is als volgt te berekenen:

 

 

Hierin is m =1,35.

 

 

Figuur 236.1 - Waterdrukverschillen tegen de folie

 

 

 

Foliedikte

Artikel nr. 237

De kracht in de folie is te berekenen met de ketelformule:

 

 

In de praktijk worden vooral PVC-P folie en PE- folie (met name LLDPE) toegepast (zie paragraaf 3.1.2.6).

 

De ROK schrijft voor dat de folie, voor folieconstructies die in den natte worden uitgevoerd, moet worden samengesteld uit niet-gelamineerde PVC-P met een dikte van minimaal 1,0 mm. Folie voor folieconstructies uitgevoerd in den droge dienen te worden samengesteld uit LLDPE met een minimale dikte van 1,5 mm. Folies van deze dikte heeft een grote robuustheid tegen beschadigingen tijdens de uitvoerings- en beheersfase.

 

 

 

 

Funderingen

Artikel nr. 238 (bevat geen inhoud, zie onderliggende artikelen)

Ankerpalen in geval van onderwaterbeton

Artikel nr. 239

De onderwaterbetonvloer van bouwputten wordt in toenemende mate verankerd met slanke, in de grond gevormde ankerpalen. Er is ruime ervaring met de toepassing van deze funderingselementen in de vorm van schuin ingeboorde gegroute ankers. Bij het verticaal toepassen van deze elementen zijn er enkele belangrijke verschillen. In 2006 is de CUR commissie C152 ‘Ontwerprichtlijn voor niet-geheide verankeringssystemen onder onderwaterbetonvloeren’ ingesteld. Deze commissie heeft de richtlijn ankerpalen CUR 236 [12] tot stand gebracht.

 

Het ontwerp van ankerpalen wijkt wezenlijk af van het ontwerp van schuin ingeboorde ankers volgens het handboek damwandconstructies CUR 166 [7]. Een schuin ingeboord anker wordt na installatie in beginsel altijd getest. Hierdoor kan, ondanks de sterke uitvoeringsgevoeligheid, met een relatief lage overall veiligheidsfactor worden volstaan. Bij de verticale ankerpaal is het testen meestal beperkt tot een klein percentage van het aantal ankers. De methode in CUR 166 [7] kan dus niet gevolgd worden.

De ankerpalen kunnen volgens de norm voor het geotechnisch ontwerp van constructies NEN 9997 [30] worden ontworpen. NEN 9997 [30] geeft voor de verschillende paalsystemen verschillende waarden voor de te hanteren paalklasse factoren. NEN 9997 [30] geeft de mogelijkheid om in het ontwerp van hogere paalklasse factoren uit te gaan. Deze moeten dan met paalbelastingproeven worden bevestigd.

 

Ankerpalen zijn uitvoeringsgevoelig. De gevoeligheid wordt veroorzaakt door het uitvoeringsproces en de aard en gesteldheid van de draagkrachtige laag waarin de paal wordt geformeerd.

Vanwege de uitvoeringsgevoeligheid is het bij iedere bouwlocatie noodzakelijk om palen te beproeven. Vaak wordt gestart met het maken van een aantal testpalen. Op deze palen worden bezwijkproeven uitgevoerd om de trekcapaciteit en eventuele wrijvingsverliezen vast te stellen. De palen zijn na het uitvoeren van de bezwijkproeven niet meer te gebruiken. Vervolgens worden de productiepalen gemaakt. Op een aantal van deze palen worden geschiktheid- en controleproeven uitgevoerd. Bij alle test- en productiepalen worden de relevante uitvoeringsgegevens geregistreerd. De beproevingen en uitvoeringscontrole zijn nodig om met hogere dan in de NEN 9997 [30] vermelde veilige ondergrenswaarden te rekenen.

 

Ankerpalen zijn slank en hebben daardoor, vooral onder de trekbelasting, een naar verhouding lage axiale veerstijfheid. Deze lage stijfheid kan een significante invloed op de krachtsverdeling en vervormingen van de constructie hebben.

 

Voor de berekening en detaillering van ongewapende onderwaterbetonvloeren is de CUR aanbeveling 77 [4] opgesteld. Voor onderwaterbetonvloeren voor ondiepe bouwputten met beperkte stempelkrachten en relatief slappe ankers geeft de huidige CUR aanbeveling 77 [4] oneconomische diktes voor de onderwaterbetonvloer. Een goed alternatief voor deze ontwerpmethode is op dit moment echter niet voorhanden.

 

Voor de Combitunnel in Nijverdal is ontworpen met de traditionele PSO (puntvormig star ondersteunde plaat) methode. Deze methode heeft zich in de praktijk bewezen maar is te optimistisch voor een onderwaterbetonvloer met relatief slappe ankers. Bij de PSO methode worden de momenten in dwarsrichting onderschat en kan de vloer scheuren. Het opbollend effect wordt wel in de CUR 77 [4] methode meegenomen. In Nijverdal zijn buigscheuren als hiervoor bedoeld overigens maar beperkt waargenomen en deze hebben niet tot lekkage geleid. Weliswaar is bij dit project scheurvorming met lekkage opgetreden, maar deze was vermoedelijk het gevolg van verhinderde vervormingen en momenten in langsrichting, veroorzaakt door het stortgewicht. Deze mechanismen worden niet in de CUR 77 [4] en de PSO methode beschouwd. De ervaringen opgedaan in Nijverdal zijn gebruikt bij het herzien van een oudere versie van CUR aanbeveling 77 naar de huidige [4]

 

De stijfheid van de ankerpalen kan worden verhoogd door de palen voor te spannen. In de richtlijn ankerpalen CUR 236 [12] zijn rekenregels gegeven waarmee de axiale veerstijfheid op een veilige wijze kan worden benaderd. Omdat de ankerpalen een permanente functie hebben is een dubbele corrosiebescherming vereist.

 

 

Fundering afgezonken tunnels

Artikel nr. 240 (bevat geen inhoud, zie onderliggende artikelen)

Onderstroming tunnelelementen

Artikel nr. 241

Functie:

Het verwezenlijken van de fundatie op staal van tunnelelementen.

 

Toepassingen:

Als de ondergrond van dusdanige kwaliteit is dat een fundering op staal verantwoord is.

 

Detailontwerp

De bodem van de zinksleuf dient voldoende breed, diep en vlak te zijn (onregelmatigheden +/- 250 mm). Nadat het tunnelelement op de tijdelijke opleggingen is geplaatst, op hoogte gesteld en voldoende belast kan met het onderstromen begonnen worden. Dit gebeurt op de in deel ‘Hulpconstructies t.b.v. afzinken’ omschreven wijze. De minimale dikte van het onderstroomzand bedraagt 500 mm.

 

Kort voor het plaatsen van de tunnelelementen dient de zinksleuf geïnspecteerd te worden, zodat eventueel nog aanwezig slib verwijderd kan worden.

 

Figuur 241.1 - Fundering afgezonken tunnel op op onderspoelzand

 

 

 

Tunnelelementen gefundeerd op grind

Artikel nr. 242

Functie:

Het verwezenlijken van de fundatie op staal van tunnelelementen.

 

Toepassingen:

Als de ondergrond van dusdanige kwaliteit is dat een fundering op staal verantwoord is.

 

Detailontwerp

De bodem van de zinksleuf dient voldoende vlak te zijn (onregelmatigheden +/- 250 mm). Het grind wordt, vanaf een ponton, in banen loodrecht op de tunnelas gelegd. Nadat één rug gelegd is, verplaatst het ponton waarna een volgende rug eveneens loodrecht op de tunnelas gelegd wordt. Tussen de grindruggen wordt zodoende een goot gevormd die een zekere bergingcapaciteit voor het sediment vormt. Om het sediment in de goten te kunnen persen dient de funderingsdruk groter te zijn dan bij het onderstromen van het tunnelelement.

 

De afmetingen en de hoeveelheid grindruggen dienen door de constructeur bepaald te worden. Kort voor het plaatsen van de tunnelelementen dient de zinksleuf geïnspecteerd te worden en eventueel nog aanwezig slib verwijderd te worden.

 

 

Figuur 242.1 - Fundering afgezonken tunnel op grindruggen

 

 

Objectdetaillering permanente constructies

Artikel nr. 243

In de onderliggende artikelen worden de ‘best practices’ beschreven voor objecten die uitsluitend een functie vervullen tijdens de gebruiksfase. Objecten die een functie vervullen tijdens de bouwfase of zowel tijdens de bouw- als de gebruiksfase, worden beschreven in onderliggende artikelen van artikel Objectdetaillering bouwfase.

 

Uitzondering zijn de voegen van zinktunnels, deze worden behandeld in Specifieke detaillering voegen afgezonken tunnels.

 

Detaillering open en gesloten constructies

Artikel nr. 244 (bevat geen inhoud, zie onderliggende artikelen)

Dilatatievoegen best practice

Artikel nr. 245 (bevat geen inhoud, zie onderliggende artikelen)

Vloer rijbaan

Artikel nr. 246

Een dilatatievoeg heeft als doel doorgaande (watervoerende) scheuren in een betonnen constructie zoveel mogelijk te voorkomen. Deze scheuren kunnen het gevolg zijn van trekspanningen in de constructie door onder andere ongelijke zettingen, krimp, kruip en temperatuurverschillen. Hiertoe moet de voeg loodrecht op en evenwijdig aan het voegvlak flexibel zijn. Tegelijkertijd heeft de voeg een grond-, vuil- en/of waterkerende functie.

 

De functies van een dilatatievoeg betreffen:

 

Detailontwerp

De kerende functies van het profiel zijn in de volgende 3 onderdelen te scheiden:

 

Onderstaand wordt ingegaan op:

Figuur 246.1 - Detailontwerp voeg vloeren.

 


 

 

Voegvulling

Artikel nr. 247

De gehele voeg tussen beide moten wordt veelal voorzien van voegvulling om ruimte voor uitzetting in de voeg te verwezenlijken. Mogelijkheden zijn:

 

Bij de A2 tunnel te Maastricht is 20 mm beloopbare steenwol toegepast. De genoemde voegbreedte van 20 mm is een ervaringsgetal dat voldoende vervormingsvrijheid biedt, mits moten met een maximale lengte van 25 m worden toegepast.

 

 

 

Waterkerend profiel

Artikel nr. 248

Ter verkrijging van een waterdichte voeg wordt als voegprofiel een rubbermetalen profiel Trelleborg-Bakker W9U of vergelijkbaar in het hart van de voeg toegepast (figuur 246.1, onderdeel B). Dit rubbermetalen profiel is een kritisch onderdeel in het ontwerp. Het goed functioneren van de waterafdichting hangt in grote mate af van het degelijk aanbrengen, en het op de juiste wijze instorten hiervan.

 

Uit praktijkervaring is gebleken dat luchtinsluiting onder de horizontale dilatatieprofielen bij zorgvuldige uitvoering wordt voorkomen door de profielen aan weerszijden schuin op te buigen en zo ruimte aan het beton te bieden om onder het profiel te vloeien. Dit opbuigen geschiedt onder een hoek van circa 15°. Ondanks dat dit minder praktisch is voor de wapening, is dit noodzakelijk gebleken, zie ook figuur 248.1.

Figuur 248.1 - W9U profiel met luchtinsluitingen doordat de zijden niet waren opgebogen

 

 

De rubbermetalen voegstrook moet minimaal 0,30 m van de buitenzijde van de constructie worden geplaatst. Op deze manier kan de wapening nog op een redelijke manier worden aangebracht.

 

In sommige gevallen wordt een verdeuvelde voeg toegepast. Veelal is dit een kraagconstructie, die dwarskrachten overbrengt om zettingsverschillen tussen de tunneldelen te voorkomen. In die gevallen dient de rubbermetalen voegstrook altijd aan het buitenste tanddeel te worden aangebracht, om te voorkomen dat water zich zou kunnen ophopen in het horizontale deel van de voeg. Bij bevriezing zou dit tot scheurvorming kunnen leiden.

 

Het beton onder het profiel is echter moeilijk te verdichten. Vandaar dat injectie kan worden toegepast om eventuele leemten door het niet-verdichten op te vullen ter verkrijging van een gevraagde waterdichtheid. Een profiel met een injectiemogelijkheid bevat een sponsje op het metalen deel dat als transportleiding voor de injectievloeistof fungeert.

 

Opgemerkt wordt dat er slechte ervaring is met de variant waarbij de injectieslangen aan de metalenvoegband worden bevestigd in plaats van het sponsje. De slang kan loskomen tijdens het storten, waardoor niet juist geïnjecteerd kan worden.

 

De (rubbermetalen) voegstrook heeft, in de loop der jaren, diverse kleine aanpassingen ondergaan omdat er zich o.a. problemen voordeden met betrekking tot het injecteren van het sponsrubber, hechting van de staalplaat aan het beton en roestvorming in de bouwfase. Na het samengaan van twee leveranciers zijn de goede eigenschappen van beide producten overgenomen en is het huidige W9UI-profiel op de markt gebracht. Dit profiel heeft als sponsrubber EPDM/CR waardoor dit sponsje makkelijk loslaat van het beton, zodat het injecteren soepel verloopt. Bij een waterdruk op de dilatatievoeg van meer dan 60 kPa (0,6 bar) is toepassing van een injecteerbare rubbermetalen dilatatievoegprofiel, dat preventief wordt geïnjecteerd, verplicht conform 13.14 van ROK [27]. Zoals vermeld verdient het in gevallen met een lagere waterdruk ook zeker aanbeveling, mede vanwege de moeilijke verdichtbaarheid van het beton onder het profiel. De huidige praktijk is echter dat in de markt veelal wordt volstaan met het gebruik van een voegprofiel zonder preventieve injectiemogelijkheden; er wordt ervan uit gegaan dat het wel goed gaat, met als terugvaloptie injectie achteraf.

 

Het injectiesponsje moet aan de ‘waterzijde’ worden geplaatst om het water zo ver mogelijk van de binnenzijde te houden. De h.o.h. afstand van de injectiebuizen (figuur 248.2) mag niet groter zijn dan 3 à 4 m en moet worden geïnjecteerd met epoxyhars, met een druk van ca. 0,6 MPa (= 6 bar). Bij grotere h.o.h. afstanden van de injectiebuizen neemt de benodigde injectiedruk toe en daarmee de kans op scheuren van het beton, waardoor de injectie een averechts effect heeft. De drukken moeten in verband hiermee begrensd worden op maximaal 20 bar.

 

Figuur 248.2 - Voegprofiel met preventie injectiemogelijkheid

 

 

De wapening rond een dilatatieprofiel moet in staat zijn de trekspanningen door de injectie bij het rubbermetalen profiel en de op dit profiel uitgeoefende trekkracht op te nemen. Om die reden dient de wapening maximaal 50 mm van het profiel te worden aangebracht. De wapening kan het beste loodrecht op de verwachte scheur worden geplaatst, dus verticaal. Vandaar dat een X-vorm (of visbek) met diagonale staven geen solaas biedt.

 

Indien een T-vormige verbinding tussen de dilatatievoegen van een (midden)wand en vloer gemaakt moet worden, dient deze verbinding fabrieksmatig te zijn gelast en gevulkaniseerd.

 

Bij de aansluiting van de vloer met de buitenwanden wordt het dilatatieprofiel in één stuk, dus zonder lassen, doorgezet vanuit de vloer de wanden in. Dit omdat het aantal lassen (mogelijke lekwegen) in het profiel zo veel mogelijk wordt beperkt. De minimale buigstraal van het rubbermetalen voegprofiel bedraagt 100 mm, of conform opgave fabrikant.

 

 

Binnenzijde tunnel

Artikel nr. 249

Aan de binnenzijde van de voeg wordt een rubber voegprofiel (ACME) aangebracht ter plaatse van de vloer als aangegeven in figuur 246.1 , onderdeel C. Dit geldt overigens ook voor de wanden van alle kokers en ter plaatse van het dak daar waar geen hittewerende bekleding wordt toegepast. De functie van dit profiel is te voorkomen dat er vuil in de voeg komt. Ook dient het te voorkomen dat gevaarlijke stoffen in de voeg terecht kunnen komen en de enige waterdichting van de constructie, de rubbermetalen voegstrook, wordt aangetast. Het voegprofiel zelf mag bij een calamiteit worden aangetast waarna het vervangen dient te worden. Door het omzetten van het voegprofiel van de vloer naar de wanden ontstaat een waterdichte afsluiting. Het is niet toegestaan om het voegprofiel in de hoeken in te knippen. Bij tunnels waarbij ballastbeton is aangebracht wordt het voegprofiel in de voeg van het ballastbeton aangebracht. Bij de A2 tunnel te Maastricht is een Schrumpf FA profiel met 1 dam toegepast als calamiteitenprofiel ter bescherming van het rubbermetalen voegprofiel.

 

Voor een nadere omschrijving van de afwerking van de voeg wordt verwezen naar Voegafdichting onder asfalt en Voegafdichting onder spoor in ballast.

 

Ondanks de flexibiliteit van het voegprofiel wordt deze gecomprimeerd en aan weerskanten verlijmd in de sponning aangebracht. Eventueel lekwater wordt afgevoerd via een goot (verdiepte sponning ter plaatse van een dilatatievoeg van de vloer in het constructiebeton), onder het voegprofiel. Door vanuit de goot een gat Ø 40 mm naar de riolering te boren kan het water via de riolering worden afgevoerd.

 

Het lekwater wordt naar het diepste punt van de tunnel afgevoerd via de riolering. Omdat de riolering in het middentunnelkanaal ontbreekt is het raadzaam daar een langsgoot te introduceren. Hiermee wordt voorkomen dat lekwater uit een hoger gelegen voeg vrijelijk over de vloer van het middenkanaal stroomt en in een lagergelegen voeg zou stromen. De onderzijde van de langsgoot moet gelijk zijn aan de bovenzijde van het voegprofiel.

 

Bij de 2e Beneluxtunnel was dit niet mogelijk omdat ter plaatse van de middenkoker de constructiehoogte van de vloer 300 mm meer was dan het overige gedeelte van de vloer. Daar is dan ook een sparing gemaakt van 300 mm diep. Door een regelmatige schouwing is het wel mogelijk om de lekkende voeg te ontdekken en zo nodig te herstellen.

 

In het verleden werd de goot in de toerit en de tunnelelementen afgedekt door een verzinkte stalen plaat. Deze plaat ligt op de vloer en sluit, vanwege de ruwe vloeroppervlak, niet vlak aan waardoor vuil alsnog in de goot terecht kan komen. Afgezien dat de verzinkte platen duur en moeilijk aan te brengen zijn, vormden zij in de bouwfase een obstakel en werden zij door het zware bouwverkeer vaak beschadigd.

 

Buitenzijde tunnel

Artikel nr. 250

Als aangegeven in figuur 246.1 , onderdeel A wordt aan de buitenzijde van de tunnel geadviseerd een ‘Dubbeldam’ profiel toe te passen. Als goed alternatief kan ook een verankerde stalen voetplaat worden gebruikt.

In diverse recente praktijkprojecten is aan de buitenzijde in plaats hiervan een ACME profiel toegepast. Een ACME profiel is ook in overeenstemming met de eerdere SATO. Recente praktijkervaringen bij RWS leren echter dat verkorting en verlenging van de constructie als gevolg van temperatuurwisselingen over de seizoenen, niet altijd gelijkmatig over het aantal aanwezige dilatatievoegen wordt verdeeld. Hierdoor kunnen lokaal voegen relatief ver open gaan staan, zelfs tot buiten het veertraject van het ACME profiel. In dat geval kan grond de voeg indringen. Dit zal vervolgens veroorzaken dat de voeg in de loop der jaren steeds wijder wordt, omdat de ingedrongen grond het ’s zomers terugkomen in de oude toestand zal belemmeren.

Detaillering afvoerbuis

Artikel nr. 251

Nabij een afvoerbuis in de betonnen constructie ten behoeve van hemelwaterafvoer of riolering wordt het dilatatievoegprofiel onder de buis door aangebracht als weergegeven in figuur 251.1.

Figuur 251.1 - Dilatatievoegprofiel nabij hemelwaterafvoerbuis in vloer

 

Afvoerbuizen ten behoeve van hemelwaterafvoer (vervuild met straatvuil) of riolering worden aan de binnenkant van het dilatatievoegprofiel aangebracht opdat zij bij eventuele verstopping vanuit de binnenzijde van de tunnel kunnen worden uitgehakt en zo bereikbaar zijn voor herstelwerkzaam­he­den.

 

 

RAMS aspecten

Artikel nr. 252

Tabel 252.1 - RAMS aspecten dilatatievoeg vloer rijbaan

RAMS Score Toelichting
R matig lekkage van dilatatievoegen komt regelmatig voor
A slecht langdurige rijstrookafsluiting nodig bij reparatie / vervanging
M matig onderhoud vraagt ingrijpende werkzaamheden
S matig lekkende dilatatievoeg kan leiden tot een onveilige situatie voor het wegverkeer

 

 

Vloer kabelkoker

Artikel nr. 253

Verwezen wordt naar de hiervoor behandelde vloer rijbaan. De buitenzijde van de voeg en het centrale deel kunnen identiek worden uitgevoerd. De binnenzijde van de voeg kan, vanwege het ontbreken van een rijbaan, eenvoudiger worden uitgevoerd, als in figuur 253.1:

 

Figuur 253.1 - binnenzijde voeg vloer kabelkoker

 

 

Niet-waterkerende middenwand

Artikel nr. 254

Een dilatatievoeg in een middenwand heeft als doel doorgaande scheuren in een betonnen constructie zoveel mogelijk te voorkomen. Deze scheuren kunnen het gevolg zijn van trekspanningen in de constructie door onder andere ongelijke zettingen, krimp, kruip en temperatuurwisselingen. Hiertoe moet de voeg loodrecht op en evenwijdig aan het voegvlak flexibel zijn. Tegelijkertijd kan de voeg een afdichtende functie hebben, bijvoorbeeld bij een wand die een ophoging voor een fietspad keert.

 

Functies:

 

Detailontwerp

Zie figuur 254.1.

De gehele voeg tussen de beide moten wordt voorzien van alveolit of een polystyreenplaat, zie Vloer rijbaan. Bij een grondkerende binnenwand wordt de verbinding van het voegprofiel in de binnenwand met de vloer en/of het dek door middel van een fabrieksmatige las uitgevoerd. De betondekking op het rubberen dilatatieprofiel bedraagt 50 mm.

Tevens moet aan de binnen- of buitenzijde een hitte werende voorziening worden aangebracht.

Figuur 254.1 - Voeg in middenwand zonder tegelwerk *)

Figuur 254.2 - Voeg in middenwand met tegelwerk *)

 

* Opgemerkt wordt dat zich in de figuur slechts aan één zijde een sponning bevindt voor het voegprofiel. Indien aan beide zijden een sponning is voorzien heeft dit de voorkeur; dat geeft een beter houvast bij het inlijmen.

 

Motivering

Er wordt een voegvulling toegepast om ervoor te zorgen dat de moten apart kunnen uitzetten en krimpen.

 

Een voegvulling voorkomt het vervuilen van de voeg en verzorgt zo een relatief vrije beweging in de voeg. De polystyreenplaat wordt van de laagste sterkte genomen, omdat deze plaat de minste weerstand biedt tegen vervormingen in de voeg. Een voegbreedte van 20 mm is een ervaringsgetal dat voldoende vervormingsvrijheid biedt mits moten met een maximale lengte van 25 m worden toegepast.

 

Omdat er geen waterdruk en hooguit een beperkte gronddruk hoeft te worden gekeerd kan het gebruik van een rubbermetalen profiel achterwege blijven. Een tunnel kan echter ook een verhoogd fietspad bevatten. Als dat fietspad met zand is opgehoogd, zal de binnenwand wel een grondkerende functie hebben. Indien het verhoogde fietspad tevens doorloopt tot in de onoverdekte toerit, kan hemelwater in de zandophoging terechtkomen en is ook een (beperkte) waterscheidende functionaliteit vereist. De waterdrukken hierdoor blijven echter beperkt. Vandaar dat bij binnenwanden kan worden volstaan met een rubberen dilatatieprofiel (bv W2U).

 

Als het beton aan weerszijden van het dilatatievoegprofiel van bovenaf goed te verdichten is, kan injectie van de ruimte rond het profiel achterwege blijven. Dit is van toepassing bij een relatief dikke wand. Bij een dunne wand is de wapening rond het profiel vaak zeer geconcentreerd, waardoor verdichten moeilijk is. Zodoende is in dit geval de mogelijkheid om te kunnen injecteren wel zinvol.

 

Langs het rubberen profiel ontstaat theoretisch een lekweg. Zodoende is voor de wapening rond dit profiel dezelfde betondekking nodig als op de overige wapening, waarvoor een waarde van 50 mm kan worden gehanteerd.

 

Luchtdichtheid van de voeg is nodig als de vluchtbuis bij brand onder druk gezet wordt om te verhinderen dat er rookgassen in de vluchtgang komen.

 

Een hitte werende voorziening aan binnen- of buitenzijde voorkomt branddoorslag door de voeg. Zonder deze voorziening bestaat het risico op onderbreking van het kabeltracé, met als gevolg een groot verlies aan functionaliteit van de tunnel.

Bijbehorende details (zie Bijbehorende details)

Voegprofiel
Tegelwerk

 

 

 

Buitenwand of waterkerende binnenwand

Artikel nr. 255

Verwezen wordt naar de hiervoor behandelde vloer rijbaan (zie Vloer rijbaan). De buitenzijde van de voeg en het centrale deel kunnen vrijwel identiek worden uitgevoerd. De binnenzijde van de voeg kan eenvoudiger worden uitgevoerd, met uitsluitend een ACME profiel, als aangegeven in figuur 255.1. Toepassing van dit profiel is in deze situatie acceptabel omdat het profiel inspecteerbaar, en zo nodig vervangbaar is. Weglaten is echter geen optie omdat eventueel lekwater vanuit het dak naar de vloer moet worden geleid.

 

Omdat het centrale profiel in deze situatie in de verticale richting in plaats van in horizontale richting verloopt, behoeven de uiteinden niet te worden opgebogen, zoals in vloeren gebruikelijk is (zie Vloer rijbaan).

Figuur 255.1 - Detaillering wand

 

 

De gehele voeg tussen de beide moten wordt voorzien van alveolit of een polystyreenplaat, zie Vloer rijbaan.

 

Het profiel dat in de vloer wordt toegepast (met mogelijkheid voor injectie) dient in één stuk, dus zonder lassen, door te worden getrokken in de wand. Er wordt in één lijn niet van profieltype gewijzigd, omdat lassen tussen verschillende profielen lekkages tot gevolg kunnen hebben. Vanuit de wand wordt het profiel eveneens zonder las doorgetrokken in het dek, indien dit aanwezig is.

 

Indien een injecteerbaar voegprofiel is toegepast, dient er altijd geïnjecteerd te worden. Als dat achterwege zou worden gelaten, ontstaat er namelijk een lekweg die rondom de gehele tunnel loopt. Het wordt dan in geval van lekkage onmogelijk om de oorzaak op te sporen.

 

Het rubbermetalen profiel wordt in toeritwanden minimaal tot 1,0 m boven maaiveld doorgetrokken of, indien minder hoog, tot aan bovenkant wand. Een veel gemaakte fout is dat de de rubber- metalen voegstroken worden beëindigd boven de bekende hoogste grondwaterstand. Dit heeft in diverse gevallen al tot lekkage in de tunnel geleid, zie ook figuur 255.2. Ook hemelwater moet gekeerd worden. Indien injectie vereist is, wordt dit gedaan tot het hoogst gemeten grondwaterpeil.

Figuur 255.2 - IJspilaren in de Schipholtunnel; bevroren lekwater, veroorzaakt door te laag beëindigde waterkerende profielen.

 

 

 

 

 

Aansluiting buitenwand/vloer

Artikel nr. 256

Functies

Het afvoeren van lekwater van U-vormige goot naar riolering.

Detailontwerp

Zie figuur 256.1.

Het voegprofiel dat in de wand is opgenomen loopt door over de barrier aan de voorkant. Het voegprofiel dat is aangebracht in de vloer, loopt door in de wand (achterzijde step barrier) tot aan het voegprofiel van de wand (min. 150 mm boven het hoogste niveau van het wegdek). Veelal wordt het doorlopend ACME profiel aan de voorzijde van de barrier echter weg gelaten, omdat het lastig is deze aan te brengen en bovendien gemakkelijk kan losraken. Beter is een detaillering zonder profiel en een iets grotere tussenafstand tussen de barriers van ca. 100 mm, zodat inspectie en reiniging goed mogelijk is.

 

Het lekwater dat van buitenaf in de voeg komt wordt afgevoerd via de goot tussen asfalt en constructiebeton en een gat ø 40 mm naar de riolering. Het voegprofiel dient in de bouwfase zo snel mogelijk te worden aangebracht om indringing van vuil tegen te gaan.

Om beschadiging van het voegprofiel bij het asfalteren te voorkomen wordt het afgedekt met carifalt. Om aanhechting van het carifalt aan het voegprofiel te voorkomen wordt eerst een laagje zand op het voegprofiel aangebracht.

 

Motivering

Geen

 

Bijbehorende details (zie Bijbehorende details)

Overgang constructiebeton/asfalt
Voegprofiel
Leidingen

Figuur 256.1 - Voeg in aansluiting buitenwand – vloer; aan de voorzijde van de barrier is een doorlopend ACME profiel weergegeven; veelal wordt deze echter weg gelaten, in combinatie met een ruimere voeg tussen de barriers

 

 

 

 

Dak

Artikel nr. 257

Het centrale deel van de voeg kan identiek worden uitgevoerd aan de vloer van de rijbaan (zie Vloer rijbaan) met een W9u profiel of gelijkwaardig, met omhoog opgebogen uiteinden. Aan de binnenzijde kan, conform de situatie in geval van wanden worden volstaan met een ACME-profiel. Aan de buitenzijde wordt veelal volstaan met een ACME-profiel, afgedekt met een bitumineuze voegvulling op een laagje zand, als aangegeven in onderstaande figuur 257.1.

 

Voor voegvulling en voegprofiel zie Vloer rijbaan.

Figuur 257.1 - Voeg buitenzijde dak

 

 

De laatste inzichten bij RWS hebben geleid tot een aanbeveling voor een verbeterd detail voor de buitenzijde als aangegeven in figuur 257.2. Vanuit overwegingen als beschreven in Buitenzijde tunnel zou dit eigenlijk een ‘dubbeldam’ profiel moeten zijn, echter vooralsnog is er geen oplossing voorhanden voor het realiseren van de verbinding tussen de profielen aan de buitenzijde van de tunnel tussen dak en wand. Bovendien geeft een in het dak opgenomen dubbeldamprofiel een grote kans op luchtinsluitingen tussen de ribben.

Figuur 257.2 - Buitenafdichting met epoxylaag

 

 

Opgemerkt wordt dat bij A4 Delft Schiedam de in de figuur aangegeven epoxylaag is vervangen door een elastisch blijvende zwelpasta. Het voegprofiel is in dat geval aan beide zijden verankerd met stalen strippen, die met ankers aan het dek verbonden zijn. Door vulkanisatie is het rubberprofiel met het dubbeldam profiel in de wanden verbonden.

 

Injectie van de voeg (in combinatie met een injecteerbaar voegprofiel) is niet vereist als het dak niet onder het grondwaterpeil is gepositioneerd. Indien dit wel het geval is wordt verwezen naar het artikel voor dilatatievoegen in de tunnelvloer voor de specifieke best practices rond injectie.

 

Indien een T-vormige verbinding tussen de dilatatievoegen van een wand en dak gemaakt moet worden dient deze verbinding in de fabriek gelast en gevulkaniseerd te zijn.

Bij de aansluiting van de buitenwanden met het dak wordt het dilatatieprofiel in één stuk, dus zonder lassen, doorgezet vanuit de wanden het dak in. Dit opdat het aantal lassen, mogelijke lekwegen, in het profiel zo veel mogelijk wordt beperkt.

 

Indien zich een horizontale (afvoer-)buis in de dakconstructie bevindt, wordt het dilatatievoegprofiel onder de buis door aangebracht als de bovenkant van het dak bereikbaar is. Dit is weergegeven in figuur 257.3.

Figuur 257.3 - Dilatatievoegprofiel nabij buisleiding in dak

 

 

 

Buitenwand step barrier

Artikel nr. 258

Functies:

 

Detailontwerp

Zie figuur 258.1 t/m figuur 258.4.

 

Tussen de beide step barriers wordt een voeg opengehouden van 30 mm. De voorkant van deze voeg wordt afgedicht met een voegprofiel. Ter plaatse van het asfalt wordt het voegprofiel beschermd d.m.v. een laag schrale mortel.

Aan de achterzijde wordt aan weerszijden van de voeg een strook compriband aangebracht om er voor te zorgen dat de achtervulling met zand-cement specie niet in de voeg verdwijnt. Aan de onderzijde loopt de krimparme cementgebonden mortel door over de voeg.

 

Motivering

Geen

 

Bijbehorende details (zie Bijbehorende details)

Geen.

Figuur 258.1 - Aanzicht voegprofiel step barrier buitenwand; aandachtspunt is dat de dilatatievoegen moeten samenvallen met de voegen in de barrier

Figuur 258.2 - Voegprofiel step barrier buitenwand doorsnede A

 

Figuur 258.3 - Voegprofiel step barrier buitenwand doorsnede B

Figuur 258.4 - Voegprofiel step barrier buitenwand doorsnede C

 

 

 

 

 

 

 

 

 

 

Middenberm step barrier

Artikel nr. 259

Functies:

 

Detailontwerp

Zie figuur 259.1 t/m figuur 259.4.

 

De step barrier wordt verankerd aan de betonnen opstort. De ankers worden met densoband omwikkeld om bewegingen (uitzettingen) van de step barrier ongehinderd mogelijk te maken.

Tussen de beide step barriers wordt een voeg opengehouden van 30 mm. Het voegprofiel loopt in één keer door over de totale constructie.

Ter plaatse van het asfalt wordt het voegprofiel beschermd d.m.v. een laag schrale mortel.

Bij het storten van de betonnen opstort wordt de voeg tussen de beide step barrier dichtgezet met compriband om ervoor te zorgen dat de beton niet in de voeg verdwijnt.

Aan de onderzijde loopt de laag krimparme cementgebonden mortel door over de voeg.

 

Motivering

Geen.

 

Bijbehorende details (zie Bijbehorende details)

Geen.

Figuur 259.1 - Aanzicht voegprofiel step barrier middenberm

Figuur 259.2 - Voegprofiel step barrier middenberm doorsnede A

Figuur 259.3 - Voegprofiel step barrier middenberm doorsnede B

Figuur 259.4 - Voegprofiel step barrier middenberm doorsnede C

 

 

 

 

 

 

 

 

 

 

 

Bijbehorende details

Artikel nr. 260 (bevat geen inhoud, zie onderliggende artikelen)

Overgang constructiebeton/asfalt

Artikel nr. 261

Functie:

 

Detailontwerp

Zie figuur 248.12.

 

Eventueel lekwater, dat van buitenaf langs het rubbermetalen voegprofiel danwel tussen constructiebeton en verhardingsconstructie in de voeg komt, kan via een gecreëerd gootje tussen asfalt en constructiebeton en een gat ø 40 mm, naar de riolering of het middentunnelkanaal worden afgevoerd.

 

Boven de goot wordt een voegprofiel aangebracht. Om beschadiging van het voegprofiel bij het asfalteren te voorkomen wordt het afgedekt met carifalt. Om aanhechting van het carifalt aan het voegprofiel te voorkomen wordt eerst een laagje zand op het voegprofiel aangebracht.

In de ingezaagde asfaltvoeg wordt poly­urethaan­koord aan­gebracht. Het resterende gedeelte van de sponning wordt voorbehandeld met hechtprimer carifalt CP en gevuld met cari­falt JS.

  

Motivering

Geen.

 

Conservering

Niet van toepassing.

 

Juiste figuur?

 figuur 248.12 Detailontwerp voegovergang constructiebeton – asfalt 

 

 

Onderkant vloer

Artikel nr. 262

Functie

Verzorgen van gronddichting.

Detailontwerp

Zie figuur 262.1.

Het rubber voegband (type Schrumpf AF-350 of gelijkwaardig) wordt onder in de kist gelegd, waarna zowel de eerste moot als aansluitende moot gestort kunnen worden.

Figuur 262.1 - Detailontwerp onderkant vloer overgangsgedeelte

 

Motivering

Bij het krimpen en uitzetten van het beton t.g.v. temperatuursinvloeden dringt op deze manier geen grond de dilatatievoeg binnen. Door het flexibele profiel blijft de voeg gronddicht omdat dit profiel bewegingen van de voeg zonder problemen kan volgen.

De kwaliteit van het rubber dient voor de levensduur van het kunstwerk gegarandeerd te worden.

Als goed alternatief kan ook een verankerde stalen voetplaat worden gebruikt.

 

 

 

 

Voegprofiel

Artikel nr. 263

Functie

Verzorgen van stof- en/of gronddichting.

Detailontwerp

Zie figuur 263.1.

Om zichtbaarheid van de voegvulling in de voeg en vervuiling van de voeg tegen te gaan wordt de voeg aan de binnenkant van de tunnel afgedicht met een eenvoudig flexibel profiel, zoals Illmod 600. Dit profiel volstaat als de bovenkant van het dek zich boven de grondwaterspiegel bevindt.

 

De in het beton gecreëerde sponning breed 30 mm wordt voorbewerkt met rubberlijm, waarna het voegprofiel aangebracht wordt.

 

Figuur 263.1 - Detailontwerp voegprofiel

 

Motivering

Het dilatatiebereik van een voegprofiel is ongeveer 20 mm. Aangezien t.b.v. het aanbrengen van het ACME 20A-profiel een minimale sponningbreedte van 20 mm vereist is en de maximale spon­ningbreed­te 40 mm bedraagt kan i.p.v. 30 mm ook een breedte van 25 mm worden aangehouden. Het dilatatiebereik is dan 5 mm groter.

Bij zeer extreme omstandigheden m.b.t. de mootlengte en tempera­tuur dient de toepas­baarheid van het voegprofiel i.v.m. het dilatatiebereik gecontro­leerd te worden.

 

Materiaal kwaliteit

Het ACME-profiel wordt op vele plaatsen toegepast, bv. onder het wegdek of in wanden binnen de tunnel of wanden buiten de tunnel, zowel aan open zijde als aan grondzijde, als ook bij de middenberm. Al deze locaties hebben verschillende eisen, wat er toe kan leiden dat er verschillende kwaliteiten gebruikt moeten worden. De belangrijkste keuze is die of het profiel bestand moet zijn tegen chemische stoffen of tegen daglicht. In het eerste geval is een NBR type aan te bevelen en in het tweede geval een EPDM. Recent is gebleken dat het NBR type slecht tegen daglicht kan. Al na 1 jaar kan er in de buitenhuid craquelé optreden, dat echter niet doordringt en de functie afdichting niet teniet doet. Esthetisch is het echter niet. De NBR kan met een coating worden beschermd.

 

In Materialen is een tabel opgenomen met materiaal eigenschappen van ACME-profielen.

 

Conservering

Niet van toepassing.

 

Tegelwerk

Artikel nr. 264

Functie

Verzorgen van stofdichting.

Detailontwerp

Zie figuur 264.1 en figuur 264.2.

 

Opgemerkt wordt dat de toepassing van tegels in verkeerstunnels de laatste jaren niet meer gebruikelijk is, vanwege de kosten gemoeid met het regelmatig schoonhouden. De reflectie van het licht via het tegelwerk draagt namelijk slechts enkele procenten bij aan het verlichtingsniveau, zodat het economischer is hetzelfde doel te bereiken door een iets sterkere verlichting.

 

Over een dilatatievoeg wordt tegelwerk niet doorgetrokken. Het tegelwerk op de wand van iedere individuele moot wordt beëindigd.

Na het aanbrengen van de tegels wordt de in het beton gecreëerde sponning voor­bewerkt met rubberlijm, waarna het voegprofiel aangebracht wordt. De voorzijde van het daar toe te passen profiel (ACME) gelijk gehouden met het voorvlak van de tegels, als aangegeven in figuur 254.2 of de tegelrand te detailleren als aangegeven in figuur 264.1 of figuur 264.2.

 

Indien na het ontkisten 5 mm of meer van de scherpe betonrand afbrokkelt, moet deze gerepareerd worden met kunstharsmortel.

Door de scherpe randen van de tegels kan het voegprofiel beschadigd raken bij het inbrengen. Dit wordt voorkomen door de tegels iets terug te houden en dan de rand vol te zetten met kunstharsmortel.

 

Motivering

Geen.

 

Conservering

Niet van toepassing.

Figuur 264.1 - Detailontwerp tegelwerk - toepassing kunstharsmortel

Figuur 264.2 - Detailontwerp tegelwerk - toepassing RVS staaf

 

 

 

 

Voegafdichting onder asfalt

Artikel nr. 265

Als calamiteitenafdichting en om hechting van de overlaging aan de flexibele afdichting te voorkomen wordt de ruimte boven de afdichting met carifalt ingegoten (zie figuur 265.1). Ook het carifalt dient niet aan het afdichtingsprofiel te hechten, daartoe wordt een laagje (zilver)zand op de afdichting geplaatst alvorens het in te gieten.

 

Scheuren in het asfalt boven dilatatievoegen kunnen beperkt worden door het aanbrengen van een strook glasvezelweefsel over de voeg (figuur 265.2) die de uitzetting of inkrimping over een grotere afstand verspreid.

Figuur 265.1 - Voorbeeld afdichting ten behoeve van calamiteitendichting (gevaarlijke stoffen)

Figuur 265.2 - Voegovergang voor asfalt

 

 

 

 

Voegafdichting onder spoor in ballast

Artikel nr. 266

De voeg wordt bij toepassing van spoor in ballast op de vloer of het dek van een gesloten tunnel beschermd tegen ballaststenen door een staalplaat over de voegovergang toe te passen. Indien hemelwater op het dek kan voorkomen wordt een voeg als in figuur 266.1 toegepast. Als dit niet het geval is, is de voeg uit figuur 266.2 toereikend.

Figuur 266.1 - Voegovergang voor spoor in ballast bij aanwezigheid van hemelwater

Figuur 266.2 - Voegovergang voor spoor in ballast zonder aanwezigheid van hemelwater

 

In veel gevallen dienen om andere redenen (zie Ballastmatten) ballastmatten onder de ballast te worden toegepast. In dat geval kan worden volstaan met het detail als aangegeven in figuur 266.3.

Figuur 266.3 - Dilatatievoeg tunnelvloer onder ballastmat

 

 

 

Brandbescherming voeg

Artikel nr. 267

Nagegaan moet worden of de voeg onderworpen kan zijn aan brandbelasting en zo ja, hoe de voegprofielen te beschermen. De temperatuur op de, in de betonconstructie opgenomen, rubbermetalen dilatatievoegprofielen mag maximaal tot 80 °C oplopen. Het eventueel vervangen van beschadigde dilatatievoegprofielen is extreem kostbaar, het is daarom verstandig om deze profielen te beschermen. Een mogelijke oplossing kan het toepassen van een brandwerend koord zijn als weergegeven in figuur 267.1. Dit koord dient over de gehele lengte van de te beschermen voeg te worden aangebracht.

Alternatieven zijn de toepassing van een strook Promaseal die goed wordt vastgezet in de voeg, of brandwerende isolatieplaat (steenwol), waarmee zowel het voegprofiel beschermd is, als de dilatatie bekist wordt. Hierbij wordt opgemerkt dat Promaseal opschuimend is. Afhankelijk van de diepteligging t.o.v. de binnenzijde van de tunnelbuis en de voegbreedte moet er rekening mee worden gehouden dat er een bepaalde tijd nodig is voordat de Promaseal de voeg daadwerkelijk afsluit. De temperaturen op het voegenband kunnen dan al te hoog zijn opgelopen met als gevolg lekkage.

Figuur 267.1 - Brandwerend koord ter bescherming van het rubbermetalen dilatatievoegprofiel. Het aangegeven merk is slechts een voorbeeld. Ook de diepteligging van het koord kan minder zijn dan hier aangegeven.

Hittewerende bekleding

Artikel nr. 268

Functie

Tegengaan van vlamdoorslag in de voeg/dilatatie hittewerende bekleding.

Detailontwerp

Zie figuur 268.1 en figuur 268.2.

In de eerst te storten moot wordt een lat opgenomen, die na het verharden van het beton eenvoudig kan worden verwijderd. In de erna te storten moot wordt een strook hittewerende bekleding opgenomen, die d.m.v. snelbouwschroeven wordt vastgemaakt aan de ervoor liggende hittewerende bekledingsplaten. T.p.v. de eerst te storten moot worden de strook en de ervoor liggende platen niet aan elkaar vastgemaakt (methode A). Bij renovatie kan methode B als alternatief gebruikt worden.

Figuur 268.1 - Detailontwerp hittewerende bekleding methode A;

 

Het aangegeven merk en type zijn slechts een voorbeeld. Opgemerkt wordt dat het weergegeven detail een voeg zonder voegbreedte betreft (bv. als in geval van een afgezonken tunnel), echter het principe wijkt hiervan niet af.

Figuur 268.2 - Detailontwerp hittewerende bekleding methode B

 

Opgemerkt wordt dat het weergegeven detail een voeg zonder voegbreedte betreft (bv. als in geval van een afgezonken tunnel), echter het principe wijkt hiervan niet af.

Motivering

De oplossing volgens methode B wordt meestal toegepast bij later aan te brengen platen, maar heeft het nadeel dat er een sprong in de voeglijn zit (t.o.v. het voegprofiel).

Conservering

Snelbouwschroeven dienen uitgevoerd te worden in RVS.

 

 

Rubbermetalen voegstrook

Artikel nr. 269

Functie

Verzorgen van een permanente waterdichting van de voeg.

Detailontwerp

Zie figuur 269.1.

Er wordt een rubbermetalen voegstrook van bijvoorbeeld het type W9U ingestort. Indien sprake is van een profiel met injectie (dan is het type bijvoorbeeld W9UI), dienen de pennen die in de injectiebuizen (h.o.h. 3-5 m) zitten, d.m.v. dop­moeren aan de voeg­strook te worden bevestigd.

In geval van een horizontaal verlopend voegprofiel, bijvoorbeeld bij aansluiting van een vloer of dak, worden de beide uiteinden, voorafgaand aan de stort, ca. 20 mm opge­haald (omhoog gebogen). Na verharding van het beton worden de pennen uit de injectiebui­zen ge­schroefd. Via de injectiebui­zen­ en een aan de onderzijde van de plaat aangebracht sponsje (waterzijde) wordt vervolgens het beton geïnjecteerd met een epoxy-polyurethaan. Het polystyreenschuim wordt verwij­derd en de buizen worden met een afdekdop afgedicht. De over­gebleven sparingen worden tenslotte gevuld met epoxy-mortel of krimparme cementgebonden mortel.

Figuur 269.1 - Detailontwerp rubbermetalen voegstrook zonder tand

 

Een goed ontworpen en uitgevoerde constructie zou feitelijk in praktische zin waterdicht moeten zijn en blijven. Bij ondergrondse constructies die (grond)waterkerend zijn, is de praktijk helaas dat deze gedurende de levensduur vaak lekkages vertonen. Tijdens de bouwfase gebeurt dit ook frequent, maar voor de oplevering wordt dit gedicht door soms uitgebreide injectiewerkzaamheden. Deze lekkages zijn vooral problematisch in verband met de verkeersveiligheid (gladheid). Vooral gedurende vorstperioden wordt dit vaak onaanvaardbaar, zie bijvoorbeeld figuur 269.2. Het achterwege laten van rubber-metalen voegstroken boven de (maximale) grondwaterstand is in het algemeen geen goed idee (verkeerde bezuiniging). Ook hemelwater dient gekeerd te worden.

Veel informatie is te vinden in de RWS publicatie Lekkage in tunnels – Dilatatievoegen en beton [17].

Figuur 269.2 - IJsoverlast in de Drechttunnel

 

Motivering keuze al dan niet injecteerbaar profiel

Conform ROK dient, bij een waterdruk van 60 kPa (0,6 bar) of hoger, altijd een injecteerbaar rubbermetalen dilatatievoegprofiel te worden toegepast, dat preventief wordt geïnjecteerd (13.14 van ROK [27]).

Opgemerkt wordt dat deze regel bij recente projecten niet altijd meer is toegepast. Bijvoorbeeld bij de A2 tunnel te Maastricht is een niet-injecteerbaar W9u profiel toegepast. Hierbij is de afweging gemaakt dat indien de waterdichtheid onvoldoende zou zijn, na afloop middels boorgaten tegen de waterdruk in kan worden geïnjecteerd om alsnog de geëiste waterdichtheid te bereiken. Anderzijds is er bij de eveneens recente 2e Coentunnel te Amsterdam, wél voor gekozen de eerder beschreven werkwijze met preventieve injectie uit te voeren.

Bij zeer extreme ver­vor­mingen en/of waterdrukken dient de toe­pas­baarheid van dit type profiel gecontro­leerd te worden (zie documentatie).

Het afdekvoetje voorkomt dat het injectie­sponsje ingeknepen wordt, waardoor niet meer geïnjecteerd zou kunnen worden. Om te voorkomen dat lucht ingesloten wordt, worden de uiteinden van het profiel in dak en vloer opgetrokken.

Conservering

Niet van toepassing.

De rubbermetalen voegstrook (figuur 269.3) kan in het vlak en loodrecht op het vlak bewegingen ondergaan. Een combinatie van deze bewegingen zou ook kunnen.

Figuur 269.3 - Rubbermetalen voegstrook

 

Voor bewegingen in de X-richting worden door de leverancier ontwerpgrafieken gegeven waarin de toelaatbare waterdruk als functie van de verlenging in X-richting wordt gegeven. De toelaatbare waterdruk neemt hierbij af bij toenemende initiële voegbreedte. De leverancier van dergelijke voegprofielen kan deze informatie verstrekken.

Dilatatievoegen vertonen volgens praktijkervaringen soms grotere bewegingen dan verwacht en groter dan volgens de ontwerpgrafieken van de leverancier toelaatbaar is. De rubbermetalen voegstroken dienen de voegbewegingen mee te maken zonder dat het rubber scheurt, omdat anders de waterdichtende functie van de constructie in gevaar komt. Momenteel (begin 2012) bestaat geen goed overzicht van de totale omvang van deze problematiek. Hieronder zijn ter informatie drie probleemgevallen beschreven.

  1. Bij de 1e Coentunnel is de noordelijke toerit van de 1e Coentunnel aan het uiteinde meer dan 10 cm richting Den Helder verplaatst. De rubbermetalen voegstroken doorstaan deze verplaatsing, verdeeld over aantal voegen, nog steeds zonder scheurvorming (de vraag is echter: hoe lang nog?). De hypothese is dat het ‘kruipen’ van de Coentunnel-afritten veroorzaakt wordt doordat vuil en grond tijdens een koude periode, wanneer de voegen meer open staan, naar binnen dringt en tijdens een warme periode verhindert dat de voegbreedte weer minder wordt (hysteresis). Gezien het voorgaande is het van groot belang ook aan de grondzijde een flexibel rubberen profiel aan te brengen die de voegbewegingen, als gevolg van temperatuurverschillen over de seizoenen, kan volgen en tegelijk een afdichtende functie heeft opdat geen grond en vuil in de voeg kan dringen.
  2.  De onderdoorgang Kortendijkpoort (1973) onder de A58 bij Roosendaal lekte al jaren. In 2006 is door de gemeente Roosendaal besloten om de lekkages te gaan dichten. Na een inspectie is gekozen om naast het standaard injecteren van watervoerende scheuren in de betonvloeren bij twee lekke dilatatievoegen van de hoogst gelegen niet onderheide betonmoten 1 en 8, die circa 78 mm open staan, een nieuw rubber voegprofiel in het wegdek aan te brengen. Dit ter vervanging van de bestaande rubberprofielen type W3A. In de jaren 1983 was dit eerder door Directie Bruggen van RWS uitgevoerd op de betonmoten 3 en 6.De grote vervorming van de dunne W3A profiel zou bij verdere toename van de voegbreedte verder kunnen inscheuren en bij hoge grondwaterstanden veel wateroverlast op de weg kunnen veroorzaken. In de uitvoeringsfase werd opnieuw bevestigd dat beide voegen inderdaad waren ingescheurd. Voor zover bekend is dit tot op heden de eerste keer dat een bestaande rubber-metalen voegstrook door een nieuw rubberprofiel moest worden vervangen. Voor meer achtergrondinformatie zie Dilatatievoegen en beton [17]. Deze casus geeft aan dat een gescheurde rubber-metalen voegstrook in principe te vervangen is door een nieuw aan te brengen profiel (wel relatief kostbaar). Wellicht zijn er op de in Roosendaal gekozen oplossing goedkopere varianten denkbaar.
  3.  Botlektunnel: door zettingen is het omegaprofiel behoorlijk vervormd in Z-richting (zie figuur 269.3). Dit kwam aan het licht tijdens inspectie van het voegprofiel. De profielen functioneren echter nog steeds perfect. Er zit dus nogal wat reserve in.

 

In voorgaande gevallen worden de rubbermetalen voegstroken op trek in het vlak van het voegprofiel belast. Nadere informatie over dit onderwerp is gegeven in 12.7 van de RWS-publicatie [17].

Voor de beweging evenwijdig aan de voeg, dus in y en z-richting zijn voor zover bekend geen ontwerpgrafieken beschikbaar. Aannemelijk is dat de opneembare beweging in deze richtingen afhangt van de grootte van de initiële voegbreedte. Het is echter praktijk deze bewegingen vanuit het ontwerp zoveel mogelijk te beperken. Bij op palen gefundeerde constructies zullen geen grote verplaatsingsverschillen over een voeg optreden. In geval van op staal gefundeerde constructies worden verschilvervormingen in het algemeen voorkomen door deuvels in de voeg op te nemen, tenzij de grondslag zeer stijf en sterk is. Dit laatste is het geval bij de A2 tunnel te Maastricht waar de ondergrond bestaat uit kalksteen.

Dit neemt niet weg dat er ook enkele positieve voorbeelden zijn van opgetreden deformaties evenwijdig aan de voeg, die niet tot lekkage hebben geleid. Bij het opdrijven van een moot in de toerit van de Vlaketunnel heeft, bij een voegbreedte van ca. 20 mm, de aanwezige rubbermetalen voegstrook een verschilverplaatsing van ca. 150 mm over de voeg doorstaan zonder lek te raken. Breuk van het rubber trad in een uitgevoerde liftproef pas bij 280 mm verschilverplaatsing op, bij dezelfde initiële voegbreedte van 20 mm. Een ander voorbeeld is de Willemspoortunnel, waar op één locatie een verschilvervorming is opgetreden van 35 mm. Ook dat heeft niet geleid tot lekkage. Aannemelijk is dat de grootte van de initiële voeg in beide gevallen een positieve rol heeft gespeeld. Onbekend is bij welke verschildeformatie het profiel zou zijn gescheurd indien de voegbreedte geringer zou zijn geweest. Ook is onbekend of de verschilvervorming de levensduur zal beperken.

Leidingen

Artikel nr. 270

Functies:

Toepassingen

Bij leidingen t.p.v. dilatatievoegen zowel in constructiebeton als in ballastbeton.

Detailontwerp

Zie figuur 270.1, figuur 270.2 en figuur 270.3.

 

Aan het uiteinde van de eerst te storten moot wordt een met 20 mm airex omwikkelde U2-koppeling (P.V.C.) of komeetkoppeling (vezelcement) ingestort.

Bij doorvoer van leidingen ø 63/55 wordt veelal een ‘verlengde’ U2 koppeling toege­past. Door de grotere lengte van de koppeling ten opzichte van een normale U2-koppeling zijn grotere veranderingen op te vangen zonder dat de afdichting in gevaar komt.

Figuur 270.1 - Detailontwerp buis met U2-koppeling

 

Figuur 270.2 - Detailontwerp buis met komeetkoppeling Opgemerkt wordt dat het weergegeven detail een voeg zonder voegbreedte betreft (bv als in geval van een afgezonken tunnel), echter het principe wijkt hiervan niet af.

 

Figuur 270.3 - Verlengde U2-koppeling

 

 

Naast bovengenoemde oplossingen wordt bij kleine mantelbuizen (tot 19 mm) over een lengte van 1 m een extra buis met een diameter van 32 mm aangebracht. De uiteinden van deze buis worden afgekit om te voorkomen dat (cement)water in de buis stroomt.

 

Motivering

Om enige zetting te kunnen opnemen wordt de koppeling omwikkeld met airex of een ruimere extra omhullingsbuis toegepast.

 

Conservering

Niet van toepassing.

 

 

 

 

Stortnaden best practice

Artikel nr. 271

Onderstaand wordt ingegaan op de toepassing van zwelbanden. Een uitgebreide beschrijving van stortnaden en de uitvoeringswijze daarvan is te vinden in Stortnaden.

 

Toepassing van zwelbanden

Artikel nr. 272

Toepassing van zwelbanden voor stortnaden van tunnels is nog niet gebruikelijk. Een speciaal voor de aansluiting beton/damwand ontwikkelde zwelband heeft in de praktijk bewezen dat dit bij ondergrondse parkeergarages goed functioneert.

 

In de tunnel A4 bij Leiden is 17000 meter Monorub zwelband toegepast met de afmeting 20×10 mm tussen de damwanden en de constructievloer. Deze Monorub is te verlijmen met in het compartimenten systeem. Het compartimenten systeem bestaat uit twee zwelbanden boven elkaar met een tussen ruimte van ca.15 cm die onderling om de ca. 2 meter met een stukje zwelband wordt gekoppeld zodat er ‘compartimenten’ ontstaan. Indien nodig (weersomstandigheden) kan hier ook de vertrager toegepast worden. Het zwelband is zeer flexibel en kneedbaar zodat het goed rondom de sloten van de damwand geplaatst kan worden.

 

Figuur 272.1 - Voorbeeld van het compartimenten-systeem

 

 

 

 

Sparingen en in te storten onderdelen (ITSO’s) best practice

Artikel nr. 273

Voor onder andere de hieronder genoemde onderdelen zijn sparingen of inkassingen nodig in de wanden, het dak of de vloer van de tunnel:

 

Onderstaand worden de ITSO’s per tunnelonderdeel behandeld. Opgemerkt wordt dat vloeistofafvoersystemen uitgebreid worden behandeld in Vloeistofafvoersystemen.

 

Vloer

Artikel nr. 274

Functie

Ten behoeve van afvoer van hemelwater

Doel

Het hoofddoel van een afvoerbuis is het vanaf de diverse inlaatpunten (goten) afvoeren van (hemel-) water naar één of meer verzamelpunten. Daarnaast worden eventueel vrijgekomen gevaarlijke stoffen afgevoerd, zodat het verdampingsoppervlak kleiner wordt en het explosiegevaar beperkt wordt.

Detailontwerp

In de betonnen vloer van het gesloten deel van een tunnel worden afvoerbuizen ingestort van PVC-SDR 34 om de inlaatputten rechtstreeks te verbinden met de verzamelpunten. De buis bevindt zich ten minste 150 mm onder het betonoppervlak in verband met de wapening en het beton tussen buis en wapening.

 

Ondanks dat de PVC-buizen kwetsbaarder zijn dan HDPE-buizen worden deze toch toegepast omdat ze minder gevoelig zijn voor warmte (HDPE is een thermoplast). Daarnaast is PVC goedkoper dan HDPE. Vanwege de kwetsbaarheid worden dikwandige buizen met een lage Standard Dimension Ratio (SDR-waarde) van 34 toegepast. Het SDR-getal geeft de verhouding weer tussen de diameter en de wanddikte (SDR = diameter / wanddikte). Het minimale afschot waarbij het water voldoende doorstroomt is in het algemeen ca. 1:100. Dit is echter afhankelijk van de diameter van de leiding en het verwachte aanbod van water.

 

De buizen dienen bestand te zijn tegen chemische stoffen.

De capaciteit van de leidingen (diameter en aantallen) moet bepaald worden volgens de neerslagcurven van de 21e eeuw.

Chemische, brandbare of anderszins gevaarlijke stoffen zo snel en direct mogelijk afvoeren naar een opvangkelder.

 

Ter plaatse van de dilatatievoegen dienen voorzieningen aanwezig te zijn die geringe bewegingen loodrecht op en evenwijdig aan het voegvlak en rotaties kunnen opnemen, zie Leidingen.

 

 

Sparing toegang pompkelder

Artikel nr. 275

In de tunnelvloer dient een toegang gemaakt te worden naar de pompkamer. De sparing hiervoor mag zich niet in het weg- of spoorprofiel bevinden. Daarom bevinden deze sparingen zich meestal ofwel in in de vloer van het middenkanaal of vluchttunnel, ofwel aan de buitenzijde van de tunnel.

 

De afmetingen van de sparingen zijn afgestemd op het in te bouwen toegangsluik. De toegangsluiken dienen personen toegang te verlenen tot de pompkamer. De pompkamer is een afgesloten ruimte die twee onafhankelijke vluchtwegen dient te hebben (ARBO wetgeving). Er dienen daarom minimaal twee sparingen aanwezig te zijn in de tunnelvloer ter plaatse van de pompkamer.

 

Tevens dient er een sparing te zijn die voldoende groot is om de aanwezige pompen te kunnen vervangen. Ook dient deze sparing voorzien te zijn van een toegangsluik om de ruimte van de pompkamer af te sluiten.

 

 

Wanden

Artikel nr. 276 (bevat geen inhoud, zie onderliggende artikelen)

Sparing afspansysteem bovenleiding in de wand (spoortunnel)

Artikel nr. 277

Indien een wielafspansysteem voor de bovenleiding wordt toegepast zijn inkassingen in de wand noodzakelijk. De dimensies van de inkassing zijn afhankelijk van de benodigde ruimte voor de afspangewichten en eventueel het bovenleidingportaal. De inkassing dient verticaal te zijn zodat de gewichten van de afspaninstallatie vrij kunnen hangen en bewegen zonder de tunnelwand te raken. De hoogte van de inkassing bedraagt de volledige inwendige hoogte van de tunnelwand, omdat het afspansysteem begint op het niveau van de bovenleiding.

Inkassingen in de wanden van een spoortunnel dienen zoveel mogelijk vermeden te worden. In deze ruimten kan zich gemakkelijk vuil ophopen, waardoor de brandveiligheid afneemt. Daarom wordt de afspaninrichting zoveel mogelijk buiten de tunnel geplaatst. Tevens worden in tunnels zoveel mogelijk veerafspansystemen toegepast, waarbij geen inkassingen benodigd zijn.

Sparing hulpposten in de wand (verkeerstunnel)

Artikel nr. 278

Een verkeerstunnel bevat hulpposten die geplaatst worden in inkassingen in de tunnelwand. De hulpposten bestaan, afhankelijk van de situatie, uit een kast met deur met daarin een intercom, brandblusvoorzieningen voor weggebruikers en brandweer, een wandcontactdoos en verlichting.

 

De afmeting van de inkassing ten behoeve van hulpposten is per situatie verschillend, aangezien er verschillende varianten hulpposten zijn met ieder verschillende afmetingen. De afmetingen van de inkassing zijn:

 

Belangrijk is de positionering van de inkassing ten opzichte van het wegniveau. In figuur 278.1 zijn twee typen hulpposten weergegeven. De positie van de inkassingen zullen op deze maatvoering afgestemd moeten zijn. Voor de hart-op-hart-afstand van de hulpposten wordt verwezen naar Basisspecificatie TTI [80].

Figuur 278.1 - Voorbeelden van hulpposten

 

 

Er kan gekozen worden om het kozijn en de deuren apart in de sponning te monteren los van de kast, of de kast inclusief deuren als geheel te monteren.

 

De specificaties van hulppostkasten zijn voor Rijkswegtunnels vastgelegd in de LTS [90] / BSTTI [80].

 

 

Sparing droge blusleiding in de wand (spoortunnel)

Artikel nr. 279

In spoortunnels worden droge blusleidingen toegepast, zie figuur 279.1. In het geval van brand dient de brandweer brandslangen aan te sluiten op aansluitpunten van de droge blusleiding. De aansluitpunten bevinden zich op een hart op hart afstand van 60 m in een inkassing die voldoende ruim is zodat een brandslang erop aangesloten kan worden. Afhankelijk van de situatie kan de aansluiting op de droge blusleiding zich bevinden in een kast met meerdere objecten. In dit geval is de inkassing op de afmetingen voor de kast aangepast.

Figuur 279.1 - Voorbeeld inkassing ten behoeve van droge blusleiding

 

 

 

Sparing ten behoeve van een hulppost (type A)

Artikel nr. 280

Functie

Voorzieningen voor bestrijding calamiteit beschikbaar stellen.

Doel

Hulppost integreren in wand.

Detailontwerp

Zie figuur 280.1 en figuur 280.2.

Per hulppost worden twee PE-HD- buizen Ø 63×55,8 mm ingestort. Na het doorvoeren van kabels en leidingen de buizen over circa 50 mm dichtzetten met PUR-schuim.

 

Bijbehorende details en gegevens (zie Hulpposten):

De brandbestendigheid komt aan de orde in Brandwerendheid.

 

Tabel 280.1 - RAMS aspecten hulppost (type A)

RAMS Score Toelichting
R goed
A goed kortstondige rijstrookafsluiting nodig bij reparatie / vervanging
M goed
S
goed

Figuur 280.1 - Doorsnede middenkanaal hulppost type A

Figuur 280.2 - Aanzicht hulppost type A

 

 

 

 

 

 

Specifieke sparingen in buitenwanden

Artikel nr. 281

Ten behoeve van een hulppost (type C)

Functie

Mantelbuis ten behoeve van het doorvoeren van bekabeling.

Doel

De hulppost voorzien van bekabeling.

Detailontwerp

Zie figuur 281.1, figuur 281.2 en figuur 281.3.

Per hulppost worden mantelpijpen (PE-HD- buizen Ø 63×55,8 mm) ingestort.

Bijbehorende details en gegevens:

Zie ‘Kozijn en deur hulppost’ ’ in Hulpposten.

Figuur 281.1 - Doorsnede tunnel ter plaatse van hulppost type C; de mantelbuis voor het pictogram moet 3,2 m boven bk asfalt uitkomen

 

Figuur 281.2 - Aanzicht buitenwand van 4-46

 

Figuur 281.3 - Aanzicht hulppost type C

 

 

 

Sparing ten behoeve van een vluchtdeur (schuifdeur)

Artikel nr. 282

Functie

Toegang bieden tot veilige ruimte.

Doel

Vluchtdeur opnemen in wand.

Detailontwerp

Zie figuur 282.1 en figuur 282.2.

De vluchtdeur schuift naar het diepste punt van de tunnel. Aan de bovenzijde van de vluchtdeur is een inkassing voorzien ten behoeve van het inbouwen van een verlichtingsarmatuur.

Per vluchtdeur worden drie PE-HD- buizen Ø 63×55,8 mm ingestort.

Na het doorvoeren van kabels en leidingen de buizen over circa 50 mm dichtzetten met PUR-schuim.

 

Bijbehorende details en gegevens:

Zie ‘Kozijn en deur vluchtdeur’ in Hulpposten.

 

 

 

 

Figuur 282.1 - Doorsnede middenkanaal vluchtdeur (schuifdeur)

Figuur 282.2 - Aanzicht A van 4-49

 

Tabel 282.1 - RAMS aspecten vluchtdeur (schuifdeur)

RAMS Score Toelichting
R goed
A goed kortstondige rijstrookafsluiting nodig bij reparatie / vervanging
M goed
S
goed

 

 

 

Ten behoeve van het CO-meetsysteem

Artikel nr. 283

Functie

Mantelbuis ten behoeve van het doorvoeren van bekabeling.

Doel

Het CO-meetsysteem voorzien van bekabeling.

Detailontwerp

Zie figuur 283.1 en figuur 283.2.

De PE-HD-buis Ø63×55,8 mm ten behoeve van het CO-meetsysteem wordt op 3 plaatsen per tunnelbuis ingestort. Eén op het diepste punt van de tunnel en de andere twee op circa 100 m voor het begin respectievelijk het einde van het gesloten gedeelte van de tunnel.

Daar waar de buis in de tunnelbuis uitkomt wordt een inkassing 350 mm x 300 mm x 100 mm gemaakt.

Na het doorvoeren van kabels en leidingen de buizen over circa 50 mm dichtzetten met PUR-schuim.

 

Bijbehorende details en gegevens

Het meten van de concentratie koolmonoxide (CO) in beide tunnelbuizen. Aan de hand van de gemeten CO-waarden kan het tunnelventilatiesysteem al dan niet in werking treden.

 

Figuur 283.1 - Doorsnede middenkanaal met mantelbuis voor CO-meetsysteem

Figuur 283.2 - Aanzicht middenwand van 4-51

 

 

 

 

 

Ten behoeve van detectielussen

Artikel nr. 284

Functie

Mantelbuis ten behoeve van het doorvoeren van bekabeling.

Doel

De verkeershoeveelheidsteller, het snelheidsonderschrijdings-syteem (S.O.S) en de verkeerssyteemlussen (MTM) voorzien van bekabeling.

Detailontwerp

Zie figuur 284.1 en figuur 284.2.

Voor het aanbrengen van de bekabeling naar de detectielussen in het wegdek wordt een sparing 100x150x500 mm aangebracht. Van hier af wordt een PE-HD- buis Ø 63×55,8 mm ingestort door de middenwand naar het middentunnelkanaal. De plaatsing van de buizen relateren aan plaatsing van de lussen in het wegdek.

Na het doorvoeren van kabels en leidingen de buizen over circa 50 mm dichtzetten met PUR-schuim.

 

Bijbehorende details en gegevens

Figuur 284.1 - Doorsnede middenkanaal met mantelbuis voor detectielussen wegdek

Figuur 284.2 - Aanzicht middenwand van 4-53

 

 

 

 

 

 

Ten behoeve van de CCTV camera

Artikel nr. 285

Functie

Mantelbuis ten behoeve van het doorvoeren van bekabeling.

Doel

De CCTV-installatie voorzien van bekabeling.

Detailontwerp

Zie figuur 285.1.

Voordat met de montage van het CCTV-installatie wordt begonnen, moet men tijdens het detailleren met behulp van kwaliteits- en zichtmetingen, de juiste locaties van de camera’s bepalen. De TV-camera in de tunnel wordt niet draaibaar gemonteerd.

Afhankelijk van het alignement (een eventuele bocht) van de tunnel kan het noodzakelijk zijn om aan de tegenoverliggende buitenwand camera’s te plaatsen. De positie voor de camera in de buitenwand is gelijk aan die van de binnenwand.

De hart-op-hart afstand van de camera’s wordt bepaald door het alignement van de tunnel.

De doorvoeren worden gemaakt met PE-HD- buizen Ø 63×55,8 mm.

Na het doorvoeren van kabels en leidingen de buizen over circa 50 mm dichtzetten met PUR-schuim.

 

Bijbehorende details en gegevens

De CCTV-installatie wordt aangebracht voor het observeren van het verkeer in de tunnel. Bij bijzondere situaties zoals het aanspreken van de hoogtedetectie, de melding van een stilstaand voertuig, een geopende hulppost wordt de CCTV-installatie automatisch ingeschakeld op het punt van de actie.

Figuur 285.1 - Doorsnede middenkanaal met mantelbuis voor CCTV camera

 

 

 

Ten behoeve van de referentiemicrofoon

Artikel nr. 286

Functie

Mantelbuis ten behoeve van het doorvoeren van bekabeling.

Doel

De referentiemicrofoon voorzien van bekabeling.

Detailontwerp

Zie figuur 286.1.

De luidsprekerinstallatie zodanig ontwerpen en inregelen dat een persoon in de aanrijroute van de tunnel en in de tunnel, buiten of in een voertuig, een gesproken boodschap duidelijk kan verstaan. De referentiemicrofoon dient in een beschermconstructie geplaatst te worden. De hart op hart afstanden en het aantal dient nader bepaald te worden.

De doorvoeren worden gemaakt met PE-HD- buizen Ø 63×55,8 mm.

Na het doorvoeren van kabels en leidingen de buizen over circa 50 mm dichtzetten met PUR-schuim.


Bijbehorende details en gegevens

Zie ‘Luidsprekerinstallatie’ in Ten behoeve van een luidspreker.

De geluidsinstallatie wordt aangebracht om tunnelgebruikers in geval van pech of ongeval aanwijzingen te kunnen geven vanuit de centrale bedieningsruimte.

 

Figuur 286.1 - Doorsnede middenkanaal met mantelbuis voor referentiemicrofoon

 

 

Ten behoeve van de aardingsinstallatie

Artikel nr. 287

Functie

Ingestort aardingsframe met aardplaten is onderdeel van de tunnelaarding en dient voor de koppeling van de aardingsinstallatie tussen de verschillende tunnelmoten.

Doel

De aardingsinstallatie dient ter bescherming van personen tegen (door defecten) onder spanning staande onderdelen en ter beperking van zwerfstromen. Tevens dient de aardingsinstallatie als bliksemafleider om atmosferische elektrische ontladingen op veilige wijze naar de aarde te geleiden en daarbij schade aan (dienst)gebouwen en installaties te voorkomen.

Detailontwerp 

Zie figuur 288.1 t/m figuur 288.4.

Elke moot in een tunnelelement is voorzien van een aardingsframe van doorgelaste wapeningsstaven Ø12 die in dwarsrichting van de tunnel worden geplaatst. Bij mootlengtes van meer dan 50m is het noodzakelijk om meerdere van deze frames aan te brengen. In langrichting zijn de aardingsframes onderling verbonden doordat in elke middenwand een wapeningsstaaf Ø16 is opgenomen die op de uiteinde van de moot voorzien is van een aardplaat. De aardplaten t.p.v. de mootvoegen worden onderling verbonden middels een koperdraad zodat een doorgaande verbinding ontstaat. De aardplaat moet liefst zo dicht mogelijk bij de mootvoeg worden ingestort zodat de lengte van het koperdraad zo klein mogelijk is. Het ingestorte aardingsframe wordt ook nog aangesloten op een in het middenkanaal aan beide zijden geplaatste aardingsrail of draad van blank koper met een minimale doorsnede van 50 mm2.

 

Ten behoeve van de aardingsinstallatie bij spoortunnels

Artikel nr. 288

Bij spoortunnels is de aarding en het elektrisch doorverbinden van verschillende tunnelmoten nodig om stap- en aanrakingsspanningen aanvaarbaar laag te houden en om zwerfstroomproblematiek te beheersen. Hiervoor wordt verwezen naar de regelgeving van ProRail, namelijk OVS00053-9 [21] en 5.10 van OVS00201 [24]. Voorbeelden zijn gegeven op de bijlagen 1 en 2.

Figuur 288.1 - Doorsnede aardstaaf dwarsframe Ø 12 mm

Figuur 288.2 - Aanzicht middenwandkanaal

Figuur 288.3 - Bovenaanzicht middemtunnelkanaal (C = aardplaat)

Figuur 288.4 - Detail aardplaat (anker is niet getekend)

 

 

 

 

 



 

Dak

Artikel nr. 289 (bevat geen inhoud, zie onderliggende artikelen)

Mantelbuis verlichting

Artikel nr. 290

Functie

Mantelbuis ten behoeve van het doorvoeren van bekabeling.

Doel

De verlichting in het gesloten tunnelgedeelte voorzien van bekabeling.

Detailontwerp

Zie figuur 290.1 en figuur 290.2.

De verlichting wordt altijd loodrecht ten opzichte van hart streep op het plafond geplaatst. Bij drie rijstroken komen er twee verlichtingslijnen. Bij twee rijstroken komt er maar één verlichtingslijn.

In langsrichting van de tunnel is de plaats van de verlichting bepalend in verband met tegenstraalverlichting.

Voor de lijn- en tegenstraalverlichting kan dezelfde instorting gebruikt worden.

De hart-op-hartafstand moet voor beiden apart bepaald worden.

De doorvoeren worden gemaakt met PE-HD- buizen Ø 63×55,8 mm.

 

Bijbehorende details en gegevens

Zie ‘Verlichting verkeerstunnel’ in Achtergrond met betrekking tot ingestorte mantelbuizen en sparingen.


 

 

 

Figuur 290.1 - Doorsnede tunnel ter plaatse van verlichting (dak)

Figuur 290.2 - Detail van 4-61

 

Inkassing voor vandalismebestendige verlichting

Artikel nr. 291

Om verlichting vandalismebestendig te bevestigen aan het tunneldak worden inkassingen toegepast. De inkassing zorgt voor een verdiepte ligging van het armatuur waardoor dit minder kwetsbaar is voor vandalisme.

De afmeting van de inkassing dient afgestemd te worden op het verlichtingsarmatuur. Bovendien dient een ingestorte leiding aanwezig te zijn die aangesloten is op de inkassing zodat een kabel verbinding kan maken met het verlichtingsarmatuur.

Het aantal inkassingen en de onderlinge afstand ten behoeve van de verlichtingsarmaturen hangt af van het verlichtingsontwerp en het gebruiksdoeleinde van de verlichting.

Vandalismebestendige verlichtingsarmaturen worden voornamelijk toegepast bij onderdoorgangen en ondergrondse openbare ruimten op locaties die bereikbaar zijn voor (veel) publiek. In tunnels voor weg- of spoorverkeer, afgesloten voor publiek (voetgangers) worden geen inbouwarmaturen toegepast. Maatvoering van en wapening om inkassingen maken de realisatie onnodig duur. Om plaatsing flexibel te houden worden opbouwarmaturen toegepast.

Ten behoeve van een luidspreker

Artikel nr. 292

Functie

Mantelbuis ten behoeve van het doorvoeren van bekabeling.

Doel

De luidspreker in het gesloten tunnelgedeelte voorzien van bekabeling.

Detailontwerp

Zie figuur 292.1 en figuur 292.2

De luidspreker wordt altijd loodrecht ten opzichte van hart streep op het plafond geplaatst. Bij drie rijstroken komen er twee geluidslijnen. Bij twee rijstroken komt er maar één geluidslijn.

De hart-op-hartafstand moet voor beiden apart bepaald worden.

De doorvoeren worden gemaakt met PE-HD- buizen Ø 63×55,8 mm.

 

Bijbehorende details en gegevens

Zie ‘Luidsprekerinstallatie’ in Fout! Verwijzingsbron niet gevonden.

Figuur 292.1 - Doorsnede tunnel ter plaatse van luidspreker (dak)

 

Figuur 292.2 - Detail van 4-63

 

 

 

 

Ten behoeve van matrixsignaalgevers

Artikel nr. 293

Functie

Mantelbuis ten behoeve van het doorvoeren van bekabeling.

Doel

De matrixsignaalgevers in het gesloten tunnelgedeelte voorzien van bekabeling.

Detailontwerp

Zie figuur 293.1.

De matrixsignaalgever wordt altijd loodrecht boven het midden van de rijstrook of vluchtstrook op het plafond geplaatst.

In de langsrichting van de tunnel is de hart op hart afstand van de matrixsignaalgevers circa 150 meter. Afhankelijk van het alignement kan een grotere hart op hart afstand worden gekozen.

De doorvoeren worden gemaakt met PE-HD- buizen Ø 63×55,8 mm.

Figuur 293.1 - Doorsnede tunnel ter plaatse van matrixsignaalgever (dak)

 

 

 

Ten behoeve van een ventilator

Artikel nr. 294

Functie

Mantelbuis ten behoeve van het doorvoeren van bekabeling.

Doel

De ventilator voorzien van bekabeling.

Detailontwerp

Zie figuur 294.1.

De PE-HD-buizen Ø63×55,8 mm worden diep in het tunneldak geplaatst in verband met ruimte en doortrekken van voorspankabels.

Aantal buizen afhankelijk van het aantal ventilatoren, echter per ventilator een dubbele buis toepassen.

 

Bijbehorende details en gegevens

 

Figuur 294.1 - Doorsnede en bovenaanzicht tunnel ter plaatse van ventilator

 

Ten behoeve van ophangframe voor een ventilator

Artikel nr. 295

Functie

De functie van het ophangframe is ervoor zorg te dragen dat de ventilator kan worden gemonteerd aan het plafond van de tunnel.

Doel

Bevestigingsmogelijkheid voor de ventilator in het gesloten tunnelgedeelte aan het plafond.

Detailontwerp

Zie figuur 295.1.

Het ophangframe wordt in de constructiebeton opgenomen en ligt boven de hittewerende bekleding van het plafond.

Afmetingen van het ophangframe zijn afhankelijk van de te plaatsen ventilatoren.

 

Ventilatoren dienen aan het tunnelplafond bevestigd te zijn met achtersnijdingsankers, om het gevaar van lostrillen te beperken. Daarnaast dienen ventilatoren aan het plafond te worden bevestigd met veiligheidskabels, die voorkomen dat een ventilator naar beneden valt indien de achtersnijdingsankers bezwijken bijvoorbeeld door lostrillen. Zie verder de Basisspecificatie TTI RWS Tunnelsysteem, Landelijk TunnelRegisseur (LTR) [80] en deel 5 van de COB handboeken Tunnelbouw.

 

Bijbehorende details en gegevens

Zie ‘Tunnelventilatie’ in Ten behoeve van een ventilator.

 

 

Ten behoeve van hoogfrequent en radiocommunicatie installatie

Artikel nr. 296

Functie

Mantelbuis ten behoeve van het doorvoeren van bekabeling.

Doel

De hoogfrequent en radiocommunicatie installatie voorzien van bekabeling.

Detailontwerp

Zie figuur 296.1.

De hoogfrequent en radiocommunicatie installatie dient aan het begin en einde van de tunnel geplaatst te worden.

De doorvoeren worden gemaakt met PE-HD- buizen Ø 63×55,8 mm.

 

Bijbehorende details en gegevens

De hoogfrequent en radiocommunicatie installatie is bestemd voor het mobilofoon- en portofoonverkeer van mobiele posten binnen en buiten de tunnel, alsmede voor de ontvangst van radiozenders en het inspreken op de radiofrequenties binnen het gesloten tunnelgedeelte.

Figuur 296.1 - Doorsnede tunnel ter plaatse van radiocommunicatie installatie

 

 

 

Ankers bovenleiding spoortunnels

Artikel nr. 297

Functie

Dragen van het bovenleidingsysteem.

Doel

Bevestigen bovenleidingsysteem aan tunneldak.

Detailontwerp

Geen.

 

Bij iedere methode om het bovenleidingsysteem te bevestigen aan het tunneldak dienen de bevestigingspunten vrij van de wapening van het tunneldak te liggen om te voorkomen dat zwerfstromen ontstaan. In verband met de levensduur van de bevsetigingsmaterialen worden deze veelal thermisch verzinkt uitgevoerd. Voor nadere details wordt verwezen naar OVS00024 [132] van ProRail.

 

Invoegerplaat

Voor het maatvast plaatsen van schroefhulzen kan gebruik gemaakt worden van een invoegerplaat, die met de daaraan bevestigde schroefhulzen in het beton wordt gestort.

 

Busankers

Een alternatief is busankers in te storten. Deze ankers worden in de kist bevestigd, zodat deze maatvast en wapeningsvrij geplaatst kunnen worden. Vervolgens kan in de eindsituatie een bovenleidingsysteem aan de busankers bevestigd worden. Deze methode is bijvoorbeeld geschikt voor een viaductsysteem dat met standaard kolommen aan het tunneldak bevestigd kan worden.

 

 

Middenpompkamer

Artikel nr. 298 (bevat geen inhoud, zie onderliggende artikelen)

Ten behoeve van energievoorziening

Artikel nr. 299

Functie

Mantelbuis ten behoeve van het doorvoeren van bekabeling.

Doel

Elektrische bekabeling ten behoeve van de verlichting, de voeding, de communicatie, de bediening en de signalering.

Detailontwerp

Zie figuur 299.1.

 

De doorvoeren lopen van de middenpompenkamer naar de kabelgang.

De doorvoeren worden gemaakt met PE-HD- buizen Ø 63×55,8 mm.

 

Bijbehorende details en gegevens

Zie ‘Principe indeling middenpompenkamer’ in Middenpompkamer.

Figuur 299.1 - Dwars- en langsdoorsnede ter plaatse van middenpompkamer

 

 

 

Ten behoeve van pompput in de vloer

Artikel nr. 300

Functie

Mantelbuis ten behoeve van het doorvoeren van bekabeling.

Doel

Elektrische bekabeling ten behoeve van voeding voor lenspomp en bediening/signalering.

Detailontwerp

Zie figuur 300.1.

 

De doorvoeren lopen van de lenspomp naar de kabelgang.

De doorvoeren worden gemaakt met PE-HD- buizen Ø 63×55,8 mm.

 

Bijbehorende details en gegevens

Zie ‘Principe indeling middenpompenkamer’ in Middenpompkamer.

Figuur 300.1 - Dwars- en langsdoorsnede ter plaatse van middenpompkamer - pompput in de vloer

 

 

 

Ten behoeve van persleiding

Artikel nr. 301

Functie

De afvoer van water vanuit de pompkamer naar buiten de tunnel mogelijk te maken

Doel

Het afvoeren van (hemel-)water vanaf de pomp(en) in de pompkamer naar buiten de tunnel.

Detailontwerp

Zie figuur 301.1.

 

Figuur 301.1 - Muurdoorvoer persleiding

 

 

 

Vanuit de pompkamer wordt het water door middel van een persleiding afgevoerd naar buiten de tunnel. Hiertoe wordt in de wand van de pompkamer een doorvoer opgenomen.

In de wand van de pompkamer wordt een ruime sparing gemaakt van circa 400 mm x 400 mm, waardoor enige stelruimte ontstaat voor de persleiding. Door deze sparing wordt de persleiding naar buiten gevoerd. Deze doorvoer bestaat uit een stalen muurdoorvoerstuk met aan weerszijden een flens ten behoeve van de aansluiting van de persleiding en in het midden van de sparing een extra manchet, om de lekweg van grondwater langs het muurdoorvoerstuk te verlengen. Na het aanbrengen en stellen van het muurdoorvoerstuk wordt de sparing aangestort met krimparme cementgebonden gietmortel.

 

 

Ten behoeve van vlamdover en tankwagenaansluiting

Artikel nr. 302

Functie

Doorvoeren door de middenwand ter plaatse van de middenpompenkamer.

Doel

De vlamdover zorgt ervoor dat er ter plaatse van de ont-/beluchting van de middenpompenkelder geen vlamdoorslag kan plaatsvinden.

Op de tankwagenaansluiting kan een slang worden aangesloten waardoor vloeistoffen kunnen worden afgevoerd naar een tankwagen die niet naar de hoofdwaterkelder mogen worden gepompt.

Detailontwerp

Zie figuur 302.1.

 

De vlamdover wordt aangebracht op de ont-/beluchtingsbuis tussen de tunnelbuis en de middenpompenkamer.

De tankwagenaansluiting wordt aangebracht in de wand tussen de tunnelbuis en de middenpompenkamer. Het is een stalen buis AE76 met twee flenzen.

 

Bijbehorende details en gegevens

Zie ‘Principe indeling middenpompenkamer’ in Middenpompkamer.

Figuur 302.1 - Dwars- en langsdoorsnede middenpompkamer - vlamdover en tankwagenaansluiting

 

 

 

 

ITSO's bij spoortunnels

Artikel nr. 303

Een spoortunnel wordt altijd voorzien van een kabelgoot waardoor in langsrichting de voedings- en besturingskabels worden geleid. Dwarsverbindingen tussen buizen voor kabels worden of standaard ingestort in een bepaalde hart-op-hart-afstand of, indien de installaties vooraf bekend zijn, ingestort in de wanden.

Verder geldt:

 

Probleem is vaak dat bij het opstellen van het contract deze ontwerpen nog niet gereed zijn. In dat geval moet met de verschillende disciplines worden overlegd of op voorhand in een bepaald patroon voorzieningen ingestort moeten worden of dat in een later stadium voorzieningen worden aangebracht door middel van boren en lijmen. Aandachtspunt daarbij is dat vanwege de aarding sommige onderdelen met de wapening verbonden moeten worden. De insteek conform tunnelvoorschrift OVS00201 [24] is om alles met elkaar door te koppelen, behalve bij een bovenleiding met 1500V AC die moet worden geïsoleerd van de wapening.

 

Bij een ondergronds station zijn de afbouw en de stationstechnische installaties complexer. Denk daarbij aan verlichting, roltrappen en liften, omroep- en informatievoorziening en dergelijke. Daarnaast zijn er in te storten mantelleidingen vanuit de technische ruimten.

 

Achtergronden

Artikel nr. 304

In het hiernavolgende komen de achtergronden aan de orde met betrekking tot de in te storten mantelbuizen voor het voeden en aansturen van verkeers- en tunneltechnische installaties. Het gaat met name om de vraag waarop de keuze van in te storten mantelbuizen is gebaseerd.

 

Voor een totaalbeeld van de achtergronden met betrekking tot kabels en leidingen in tunnels wordt verwezen naar de Basisspecificatie TTI [80].

 

Achtergrond met betrekking tot kabelgang

Artikel nr. 305

De dwarsdoorsnede van een tunnel is bij verkeerswegen vaak zo opgebouwd dat er tussen de verkeersbuizen een apart centraal gelegen kanaal aanwezig is dat in de hoogte gezien in twee niveaus is onderverdeeld. Op het laagst gelegen niveau bevindt zich een vluchtgang die het voor weggebruikers mogelijk maakt om, in geval van calamiteit onder geconditioneerde omstandigheden, te vluchten naar een veilige ruimte. Op het niveau boven de vluchtgang bevindt zich de centraal gelegen kabelgang waarbinnen aan de wanden de doorgaande kabelrekken met kabels en diversen schakel- en verdeelkasten zijn gemonteerd. Het in de kabelgang ondergebrachte hoofdkabeltracé kan gezien worden als de zogenaamde ruggengraat van de tunnel, deze ruggengraat is van vitaal belang voor het functioneren van de installaties en is daarom als ruimte fysiek gescheiden van de verkeersruimte. Een andere achtergrond is dat vanuit het oogpunt van onderhoud en inspectie de kabelgang altijd veilig toegankelijk is zonder dat dit hinder of verkeersstremming geeft voor het wegverkeer.

 

Onder het vloerniveau van de vluchtgang is eigenlijk nog een derde niveau van beperkte hoogte (400 – 500 mm) aanwezig waarin de brandblusleiding en de pompleiding zijn ondergebracht.

 

Bij spoortunnels is geen middentunnelkanaal aanwezig maar een vluchtpad langs het spoor, waaronder de bekabeling is ondergebracht.

 

Achtergrond met betrekking tot ingestorte mantelbuizen en sparingen

Artikel nr. 306

De keuze voor in te storten mantelbuizen komt voornamelijk voort uit:

 

Gezien de kwetsbaarheid van kabels binnen de verkeersruimte dient die locatie zoveel mogelijk te worden vermeden. Dit vermindert de kwetsbaarheid van kabels en leidingen en daarmee de kwetsbaarheid van de aanhangende systemen aanzienlijk. Het is echter in praktijk altijd onvermijdelijk dat een klein gedeelte van de kabel vanuit de ingestorte mantelbuis naar de betreffende installatie onbeschermd in de verkeersruimte aanwezig is. Door beperking van de lengte van dit deel van de kabel is het risico op beschadiging of geheel verlies ook beperkt.

 

Vanuit de centrale kabelgang is het onvermijdelijk om, voor het voeden en aansturen van de verkeers- en tunneltechnische installaties die zich in de verkeersruimte bevinden, voeding- en sturingkabels in de verkeersruimte aan te brengen. Deze voedings- en sturingskabels bevinden zich in mantelbuizen die in de civiele constructie zijn ingestort. De te voeden dan aan te sturen installaties zijn onder andere: verlichtingsarmaturen, ventilatoren, CCTV-camera’s, detectiesystemen, signaalgevers, luidsprekers, intercom, HF-apparatuur en veiligheidsvoorzieningen in hulpposten. Deze systemen van installaties zijn zodanig ingericht en beveiligd dat storing of verlies van een installatiesysteem in één tunnelbuis, het bedrijf in de andere tunnelbuis niet beïnvloedt. Evenzo dient plaatselijke beschadiging en/of verlies van een kabel of leiding niet tot gevolg te hebben dat de gehele installatie, of alle functies van die installatie in één tunnelbuis buiten bedrijf gaat. Dit is te bereiken door het systeem in secties te verdelen die door middel van scheiders (schakelaars, afsluiters en/of beveiligingen) kunnen worden afgezonderd van het gemeenschappelijke hoofdaanvoerdeel van het systeem. Het gemeenschappelijke hoofdaanvoerdeel van een systeem (zoals hoofdvoedingskabels en onderverdeelkasten) is ondergebracht in de kabelgang om deze zo goed mogelijk te beschermen tegen beschadiging en/of verlies. De lengte van een sectie staat in relatie tot het minimaal handhaven van een veilig bedrijf in de verkeersruimte. Voor verlichtingssecties is dit bijvoorbeeld ongeveer 60 m.

 

De verkeersruimte is zonder uitzondering zeer corrosief. De tunnelatmosfeer is sterk verontreinigd met agressieve stoffen zoals roet, zout, zwakke zuren en vocht. De combinatie van deze stoffen veroorzaakt sterke aantasting van alle installaties, kabel- en leidingdraagsystemen in de verkeersruimte en maakt speciale beschermende maatregelen (inerte materialen en zeer goede afdichtingen) noodzakelijk. In ieder geval wordt de levensduur van installaties en de draagsystemen verkort door plaatsing in de verkeersruimte. Materiaaleigenschappen en uitvoering van de installaties en de draagsystemen dienen te worden afgestemd op de omgevingscondities. Vanwege het minder agressieve milieu buiten de verkeersruimte kunnen daar lagere eisen worden gesteld aan kabelafdichtingen en de draagsystemen dan binnen de verkeersruimte.

 

Het ontwerp van de verkeers- en tunneltechnische installaties loopt in de praktijk niet synchroon met het ontwerp van de civiele tunnelconstructie. Het definitieve ontwerp van de verkeers- en tunneltechnische installaties wordt veelal pas vastgesteld op het moment dat de civiele ruwbouw al in een ver gevorderd stadium is. Vanwege het raakvlak dienen echter de in te storten mantelbuizen al in een vroeg stadium te worden opgegeven zodat deze in de uitvoering nog tijdig kunnen worden ingestort. Uit dit oogpunt is het aan te bevelen om een hoeveelheid reserve mantelbuizen in een vast stramien in de civiele constructie in te storten.

 

Let op met lekdebiet van lucht in het middenkanaal. Alle in te storten mantelbuizen moeten worden dichtgezet. Het kan bij lange tunnels problematisch worden om het middenkanaal op (voldoende) overdruk te krijgen, gezien de grote hoeveelheid lucht die vanwege lekdebiet moet worden ingeblazen.

 

Naast mantelbuizen zijn er vele sparingen nodig, voor bv. hulpostkasten, maar ook doorvoeren voor luchtbehandeling, overdruk, water en andere leidingen, etc. Bundel en structureer dit in het begin van het project. De ontwikkelingen in het 3D tekenen maken dit tegenwoordig transparanter.

 

Tegenwoordig wordt ten gevolge van de kortere beschikbare tijd voor ontwerp en bouw al op een vroeger stadium gestart met het ontwerp van VTTI. Dat geeft meer uitdagingen, maar ook voordelen. Desondanks blijft het nuttig om het aantal mantelbuizen en sparingen ruim aan te brengen.

 

Brandwerendheid

Artikel nr. 307 (bevat geen inhoud, zie onderliggende artikelen)

Constructiematerialen

Artikel nr. 308 (bevat geen inhoud, zie onderliggende artikelen)

Betonnen constructie

Artikel nr. 309

Wat de brandbestendigheid betreft, behoort beton tot de relatief veilige bouwmaterialen. Bij extreme verhitting kan schade aan de constructie ontstaan. In geval van brand ontstaan spanningen door thermische uitzettingen. De mate waarin dit tot scheurvorming kan leiden, is sterk afhankelijk van de vorm en afmetingen van de constructie en de wijze en aard van wapenen (gewapend of voorgespannen beton, wapeningsdichtheid, dekking, etc.).

In de Europese normen staan alle bouwmaterialen gerangschikt volgens hun brandgedrag en brandweerstand. Deze rangschikking bepaalt of een materiaal dient te worden gebruikt met of zonder bijkomende brandbescherming.

Op basis van de Europese Bouwproductenrichtlijn (EN 13501-1 [133]) zijn de materialen naar brandgedrag in zeven klassen ondergebracht (A1, A2, B, C, D, E en F.)
De hoogst mogelijke classificatie is A1 (onbrandbare materialen). De Europese Commissie heeft een bindende lijst van goedgekeurde materialen gepubliceerd. Hierop staan ook de verschillende types beton en de minerale bestanddelen ervan, zoals zand en grind. Beton behoort tot klasse A1, omdat de minerale bestanddelen effectief onbrandbaar zijn (niet ontvlammen bij de temperaturen die normaal gesproken optreden bij brand).

 

Brand kan bij beton leiden tot de volgende schade-mechanismen:

 

Beton heeft de volgende eigenschappen in geval van brand:

 

De brandbestendigheid van betonconstructies met betrekking tot bezwijken is onder meer afhankelijk van de afmetingen van het bouwdeel en de betondekking, c.q. de ligging van de wapening. Een hoogwaardiger staal en kleine dekking werken nadelig bij het optreden van brand. Naarmate de staalkwaliteit hoger is begint de afname van de sterkte bij een lagere temperatuur en loopt de sterkte sneller terug. Naast het vochtgehalte is ook de dichtheid van het beton een belangrijke invloedfactor.

 

Afspatten van beton

Het altijd in het beton aanwezige vocht zet zich boven 100 °C om in stoom, waarbij het volume circa 1700x toeneemt. Hoe hoger de brandtemperaturen, des te sneller dit proces verloopt. De stoom baant zich een weg naar buiten via de poriën in het beton. Hoe kleiner de poriën (bijv. bij hoge sterkte beton) des te groter de interne drukopbouw (spanningen) in de poriën en daardoor ook de trek in het beton met als uiteindelijk gevolg het destructief afspatten van beton (de buitenlaag kan worden afgedrukt). Het volume neemt sterk en heel snel toe. Hierbij kan de constructie bezwijken. De temperatuurverhoging in het beton en de wapening zorgt tevens voor afname van het oorspronkelijk draagvermogen, met name slanke constructies hebben hier last van.

 

Beton met een dichte structuur, wat enigszins samenhangt met de betondruksterkte, zoals hogesterktebeton, is hiervoor gevoeliger dan normaal beton.

 

Verder versterkt de aanwezigheid van een normaaldrukspanning het afspatten. Uiteraard heeft de aard van de gehanteerde brandkromme ook invloed, vooral de snelheid waarmee de temperatuur in het begin stijgt, is van belang. Het afspatten van beton is een continu proces.

 

Bij het afspatten van de buitenhuid vermindert de dekking op de wapening. Om die reden zijn in CUR-aanbeveling 95 [134] aanvullende richtlijnen opgenomen ter vermijding van het risico op spatten. Deze richtlijnen komen globaal neer op een beperking van het aandeel aan zeer fijne vulstoffen (zoals silica fume), grenswaarden voor de toegestane afmetingen van de constructie en een maximum aan het evenwichtsvochtgehalte in de constructie.

Indien niet aan alle voorwaarden in de aanbeveling kan worden voldaan moet ervan worden uitgegaan dat afspatten kan optreden.

 

Aangezien het uiterst complexe gedrag bij het afspatten van beton bij een brand en dit mechanisme van afspatten tot op heden niet met voldoende nauwkeurigheid voor berekeningen toegankelijk is, dienen brandproeven te worden uitgevoerd.

 

Conform de ROK [27] paragraaf 6.2 moeten, tenzij anders is voorgeschreven in de vraagspecificatie, maatregelen worden genomen tegen afspatten van beton. De maatregelen bestaan uit het beschermen van het beton of door het toepassen van een betonmengsel dat ongevoelig is voor afspatten (eventueel met polypropyleenvezels). Door het uitvoeren van brandproeven moet de gevoeligheid voor afspatten onder gebruiksomstandigheden worden aangetoond.

 

De beproevingen dienen te worden uitgevoerd volgens de werkwijze beschreven in het Efectis rapport “Fire testing procedure for concrete tunnel linings. Eventueel mag gebruik worden gemaakt van eerder uitgevoerde proeven. Daarbij moeten dezelfde uitgangspunten zijn gehanteerd voor bijvoorbeeld de mengselsamenstelling, gehanteerde brandkromme en de aanwezige drukspanningen als afgeleide van de krachtswerking in de betreffende constructie.

 

Het afnemen van de sterkte van beton en staal

Uit NEN-EN 1992 [31] figuur 4.1 volgt dat de sterkte van beton bij verhitting boven 100 °C afneemt en bij circa 800 °C is de sterkte gereduceerd tot circa 20% van de beginsterkte. Uit NEN-EN 1993-1-2:2005+C1:2006 [32] figuur 3.2 volgt dat de sterkte van staal bij verhitting boven 400 °C afneemt en bij circa 750 °C is de sterkte gereduceerd tot circa 20% van de beginsterkte.

 

Voor beton wordt een grenswaarde van 380 °C aangehouden vanwege de in de historie gehanteerde grenswaarde en omdat het gewenst is te voorkomen dat na de brand het beton zodanig is aangetast dat het gedeeltelijk moet worden vervangen. De afname van de sterkte van beton bij deze temperatuur is circa 20% en veelal niet maatgevend.

 

Voor staal wordt een grenswaarde van 250 °C aangehouden. De sterkte van staal is bij 250 °C weliswaar nog niet afgenomen, maar bij hogere temperaturen treedt wel een stijfheidsverlies en extra doorbuiging van de constructie op. Door permanente belasting op het dak is de kans groot dat deze extra doorbuiging blijvend is.

 

Volgens NEN-EN 1992 [31] figuur 5.1 dient voor voorspanstaal (staven, draden en strengen) lagere waarden te worden aangehouden. In ROK [27] 1.2 volgt in paragraaf 6.2 voor koud vervormd (cw) voorspanstaal een is van 150 °C en voor veredeld (q&t) voorspanstaal een eis van 75 °C. Boven de gestelde temperaturen neemt de elasticiteitsmodulus van staal zover af dat het de voorspanfunctie verliest.

 

Voor de betonconstructie dient rekening te worden gehouden met het na-ijl effect.

 

Het ontstaan van temperatuurgradiënten

Ten gevolge van de warmtestroom ontstaat er over de dikte van de constructie een tijdsafhankelijke temperatuurgradiënt. Als het dak aan de binnenzijde warm wordt heeft dit tot gevolg dat er een zekere extra doorbuiging optreedt en de inklemmingsmomenten toenemen. Mits er voldoende herverdelend vermogen beschikbaar is (vloeigebieden als gevolg van het taai gedrag van gescheurd gewapend beton) wordt de veiligheidsfactor door de aanwezigheid van temperatuurgradiënten niet nadelig beïnvloed. De extra optredende doorbuiging is echter als gevolg van het plastische gedrag van de constructie bij afkoelen niet volledig omkeerbaar (blijvende vervorming) en kan daarmee eventueel een niet te accepteren schade vormen. Tevens vormt het geringe verschil in uitzettingscoëfficiënt tussen de samenstellende bestanddelen bij hoge temperatuur eveneens trekspanningen.

Als op een bepaalde plaats in het beton de stijging van de temperatuur als functie van de tijd beneden een zekere waarde blijft zal er voldoende tijd zijn voor de gevormde waterdamp om te ontsnappen zonder dat grote trekspanningen ontstaan. Dit verschijnsel is echter lastig te voorspellen.

 

 

Stalen constructie

Artikel nr. 310

De sterkte van het staal is afhankelijk van de temperatuur. Omdat een toename van de temperatuur ten gevolge van brand ervoor zorgt dat de sterkte van staal afneemt kan er sprake zijn van bezwijken. Ook kan plaatselijk optredende temperatuursverandering leiden tot zodanige spanningen en vervormingen dat de damwand, als definitieve constructie, gaat doorbuigen.

Branduitbreiding heeft geen gevolgen voor de constructie wanneer de temperatuur niet hoger wordt dan bijvoorbeeld 250 °C (mogelijk specifieke eis opdrachtgever).

 

Bij de toepassing van blijvende stalen damwanden moet conform ROK 1.2 [27] aangetoond worden dat na het optreden van de brand, volgens de voorgeschreven brandkromme, de constructie als geheel repareerbaar is. Voor stalen damwanden wordt aan deze eis geacht te zijn voldaan als is aangetoond, rekenkundig of met behulp van proeven, dat de temperatuur in de damwand lager dan 250 ºC blijft. Indien aangetoond wordt dat de blijvende extra vervormingen als gevolg van temperatuurverhogingen geen nadelige invloed hebben op het esthetisch aanzicht (onder andere vlakheid), de bruikbaarheid en de veiligheid van de constructie en de omgeving na de brand, dan is een maximale temperatuur van 400 ºC toelaatbaar.

 

De invloed van een temperatuursverhoging op damwanden, stempels of onderdelen daarvan, kan volgens CUR 166 [7] deel 2 paragraaf 3.2.11 worden bepaald. Een stijging van de temperatuur leidt tot een verlenging. Door brand in de directe omgeving van een damwand of stempel zal de constructie vervormen. Rekening dient worden gehouden met actief dan wel passief worden van de grond, afhankelijk van de al dan niet verankerde/ estempelde/vrijstaande damwand.

Over het algemeen wordt hiermee geen rekening gehouden bij de beoordeling van de uiterste grenstoestand, omdat er daarbij van wordt uitgegaan dat in de damwand zich één of meerdere plastische scharnieren hebben gevormd.
Indien er ankers worden toegepast dan bieden deze weerstand tegen vervormingen van de damwand in de richting van de passieve zone. Hierdoor kan de kracht in het anker toenemen. De ankers kunnen mogelijk niet in staat zijn deze temperatuurvervorming te verhinderen. Grote vervormingen kunnen het gevolg zijn.

 

Volgens het TNO rapport “Oriënterend onderzoek naar het koelend effect van grondwater op stalen damwanden” [135] kan bij de aanwezigheid van zand en/of klei niet van een koelende werking van grondwater achter de damwand worden uitgegaan. De gevormde waterdamp kan niet vrij naar het oppervlak ontsnappen en vormt daardoor een isolerende laag.

 

Volgens NEN-EN 1992 [31] figuur 5.1 dienen voor voorspanstaal (staven, draden en strengen) lagere waarden te worden aangehouden. In ROK [27] 1.2 volgt in paragraaf 6.2 voor aanwezige voorspanning (ankers en ankerkoppen) voor koud vervormd (cw) voorspanstaal een eis van 150 °C en voor gehard en ontlaten (q&t) voorspanstaal een eis van 75 °C. Boven de gestelde temperaturen neemt de elasticiteitsmodulus van staal zover af dat het de voorspanfunctie verliest.

 

Asfalt

Artikel nr. 311

In de ROK [27] paragraaf 6.2 is vermeld dat bij de aanwezigheid van asfalt direct op de constructievloer, afhankelijk van de dikte van de asfaltlaag, hittewerend vermogen aanwezig blijft, ook nadat het bitumen verbrand is. De brandlast van het brandende asfalt wordt hierbij verondersteld in de tunnelbrandkromme te zijn opgenomen.



Folies / geokunststoffen

Artikel nr. 312

In de ROK [27] paragraaf 13.15 is vermeld dat bij toepassing van een foliekuip, ter voorkoming van aantasting van de folie door schadelijke stoffen bij calamiteiten, in de toeritten nabij maaiveldniveau een bescherming dient te worden aangebracht onder het wegdek, tot 1 m in het talud. Deze afdichting moet zodanig worden ontworpen dat bij eventuele calamiteiten schadelijke stoffen opgevangen worden en daardoor de folieconstructie niet kunnen aantasten. Bij een calamiteit dient conform de CUR-richtlijn 221 [9] direct nagegaan te worden of folieonvriendelijke stoffen zijn vrijgekomen en in welke richting de stoffen afstromen. Indien het een folieonvriendelijke stof betreft dan dient deze zo snel mogelijk geïsoleerd te worden door de dichtstbijzijnde stroomafwaartse inspectieputten van het drainagesysteem leeg te zuigen. Dit voorkomt dat de stof zich over het gehele vak verspreidt. Tevens kan er vervolgens worden gekozen om, indien van toepassing, het grondwater binnen de folieconstructie te gaan verversen.

 

Folieconstructies en geokunststoffen zijn niet bestand tegen directe hitte als gevolg van brand. In het ontwerp dient rekening gehouden te worden met beperking van de brandinvloed op de folie en geokunststoffen.

 

Een hittewerende maatregel voor folies/geokunststoffen is het aanbrengen van voldoende gronddekking. De in de grond ingebouwde folie ligt over het algemeen vrij goed beschermd tegen hoge temperaturen, zelfs tegen hitte bij brand aan het maaiveld. Voor de bepaling van de gronddekking is de vuurbalans van belang, waaruit volgt hoe lang de constructie als geheel de hitte kan weerstaan voordat het bezwijken van de folie optreedt.

 

 

 

Best practice: Passieve uitwendige hittewerende maatregelen

Artikel nr. 313 (bevat geen inhoud, zie onderliggende artikelen)

Voorzetwand

Artikel nr. 314

Met een voorzetwand van bijvoorbeeld cellenbeton of prefabbeton wordt een achterliggende stalen damwand of combiwand met buispalen beschermd tegen calamiteiten, waarbij hoge temperaturen kunnen ontstaan. De panelen kunnen op een stalen frame worden bevestigd op een bepaalde afstand voor de achterliggende wand, om een spouw te realiseren.

Voor de bouw van het Dampoort Aquaduct in de N57 bij Middelburg is cellenbeton toegepast, om de stalen damwand tegen extreem hoge temperaturen te beschermen. Cellenbeton bestaat uit zand, kalk, cement, water en aluminiumpoeder.

Een ander voorbeeld van het toepassen van prefab betonpanelen voor een damwand zijn de tunnels A73 Roermond en Swalmen en de verdiepte ligging A4 Leiderdorp.

 

Bij de toepassing van voorzetpanelen, die een hittewerende functie vervullen, moet bij eventueel aanwezige voegen aandacht geschonken worden aan de lekkage van hitte naar de blijvende stalen damwand toe.

 

Voordelen:

 

Nadelen:

 

Kritische aspecten

De voegen tussen de voorzetwanden dienen ook hittewerend te worden afgesloten.

 

Duurzaamheid

Prefabbeton, cellenbeton zijn bewezen duurzame materialen.

 

Aspecten ten aanzien van de RAMS-score

 

Tabel 314.1 - Aandachtspunten RAMS-criteria voorzetwand

Variant

Cellenbeton

R

Reliability
(Betrouwbaarheid)

Goed, geen aanvullende maatregelen benodigd

A

Availability
(Beschikbaarheid)

Gelimiteerd, i.v.m. benodigde inspecties en vervanging

M

Maintainability
(Onderhoudbaarheid)

Geen specifiek onderhoud benodigd

S

Safety
(Veiligheid)

Goed, mits deze op een correcte wijze zijn aangebracht

Figuur 314.1 - Voorzetwand A4 Leiderdorp


Figuur 314.2 - Voorzetwand N57 Middelburg

 

 

 

 

 

Plaatvormige bekleding betonconstructies

Artikel nr. 315

Vanaf 1989 zijn zowel bij de renovatie als bij de nieuw aangelegde tunnels platen toegepast, die uitermate geschikt zijn voor de hittewerende bescherming van tunnels. Bij de bestaande tunnels werden deze bevestigd met M8-bouten; dit is kostbaar vanwege de hoge arbeidskosten en de kosten van de roestvaststalen bevestigingsmiddelen. Bij nieuw te bouwen tunnels werd gekozen voor het in de bekisting leggen van de platen waarbij in de platen schroeven werden aangebracht; dit geeft ten opzichte van de bevestiging met bouten een flinke kostenbesparing.

 

De platen kunnen bijvoorbeeld zijn samengesteld uit calciumsilicaten, cement en toeslagstoffen. Dit is een steenachtig materiaal. De platen hebben bijvoorbeeld een beige-witte kleur, oppervlakte van 2500/3000×1200 mm, dikten variërend van 12 tot en met 40 mm, volumieke massa van 900 kg/m3, temperatuurbestendigheid tot 1400 graden Celsius. Voor nadere informatie zie de bijbehorende technische gegevens van de verschillende leveranciers, zoals bijvoorbeeld Promat.

 

Conform ROK [27] 1.2 paragraaf 13.14 dient bij de toepassing van hittewerende bekleding te worden aangetoond dat, zonder dat aanhechting in rekening wordt gebracht, een zuigbelasting in de vorm van een gelijkmatig statische verdeelde belasting ter grootte van 3 kN/m2 door het mechanische bevestigingssysteem gedragen kan worden. Dit is inclusief effecten als vermoeiing, dynamica en belastingfactor. Opgemerkt wordt dat bij spoortunnels hogere belastingen gelden. Het bevestigingssysteem mag niet gevoelig zijn voor corrosie, vocht en vorst.

 

Bij elk detail moet ter plaatse van de inkassing, gevuld met hittewerende bekleding, voldoende betondekking op de wapening aanwezig zijn. De hittewerende bekleding mag niet meegenomen worden in relatie tot de benodigde betondekking. Zie ook Brandbescherming voeg en Hittewerende bekleding.

 

Voordelen:

 

Nadelen:

 

Duurzaamheid

De plaatvormige bekleding is voldoende duurzaam.

 

 

Kritische aspecten (zie ook figuur 268.1 en figuur 268.2)

Voor vooraf in de bekisting aangebrachte platen levert de gelijkmatig statische verdeelde belasting 6 schroeven per m2 op (dit volgt uit onderzoek). Er dienen dan 9 stuks aangebracht te worden per m2, omdat ze nogal kwetsbaar zijn tijdens de uitvoeringsfase (in een kist met wapeningvlechters en betonstorters). Voor naderhand aangebrachte platen ligt dit natuurlijk anders (6 stuks is dan voldoende).

 

Ter plaatse van dilatatievoegen moeten de platen zodanig worden neergelegd dat de voeg wordt afgedekt, waarbij geen schade optreedt aan de beplating ten gevolge van mogelijke voegbewegingen. De naden tussen de platen mogen niet meer bedragen dan 2 mm.

 

Een bijzonder aandachtspunt is het optreden van warmtelekken via verbindingsmiddelen van tegen het beton gemonteerde voorzieningen. Enkele brandproeven ten behoeve van de Westerscheldetunnel zijn uitgevoerd met plaatmaterialen die met bouten op het beton zijn aangebracht. Bij de gebruikte korte bouten, M8 op relatief grote onderlinge afstand en nauwelijks belast, is niet gebleken dat warmtelekken via deze bouten de inleiding vormen voor afspatten. Wel is bij een andere proef gebleken dat bij een groep dicht bij elkaar aangebrachte bouten wel afspatten werd ingeleid. Bij toepassing van lange zwaar belaste bouten of een groep van dicht bij elkaar aangebrachte bouten dient daarom het inleiden van afspatten te worden onderzocht.

 

Bevestigingsmiddelen mogen niet in aanraking komen met de wapening in verband met warmteindringing en minimale dekking.

 

 

Aspecten ten aanzien van de RAMS-score

Tabel 315.1 - Aandachtspunten RAMS-criteria plaatvormige bekleding

Variant

Plaatvormige bekleding

R

Reliability
(Betrouwbaarheid)

Goed, mits deze op een correcte wijze zijn aangebracht

A

Availability
(Beschikbaarheid)

Gelimiteerd, i.v.m. benodigde inspecties en vervanging

M

Maintainability
(Onderhoudbaarheid)

Goed, mits deze op een correcte wijze zijn aangebracht

S

Safety
(Veiligheid)

Goed, mits deze op een correcte wijze zijn aangebracht

 

1. Bevestiging hittewerende bekleding aan beton

Doel

Het beschermen van de betonconstructie tegen de gevolgen van brand.

 

Toepassingen

In het gesloten gedeelte en overgangsgedeelte van tunnels.

 

Detailontwerp

 

Motivering

Het verdient de voorkeur om 9 schroeven per m2 aan te brengen vanwege de grote kans op het omtrappen van de schroeven tijdens de bouw.

 

Duurzaamheid

Snelbouwschroeven dienen uitgevoerd te worden in roestvrij staal (RVS).

 

Figuur 315.1 - Snelbouwschroeven


 

2. Beëindiging bekleding betonnen wand

Doel

Een goede overgang creëren van een doorsnede met hittewerende bekleding naar een doorsnede zonder hittewerende bekleding.

 

Toepassingen

In de gesloten gedeelten en overgangsgedeelten van tunnels.

 

Detailontwerp

De beëindiging van de hittewerende bekleding ter plaatse van de wand is afhankelijk van de wijze van aanbrengen.

Wordt hittewerende bekleding tijdens de betonstort aangebracht (in de bekisting), waarbij de rest van de bekisting wordt uitgevuld, dan worden de platen aan de onderzijde schuin afgezaagd (platen op het beton). Wordt de rest van de bekisting niet uitgevuld dan hoeven geen speciale maatregelen te worden getroffen (platen in het beton).

 

Motivering

De keuze voor de plaats van de hittewerende bekleding (op of in het beton) wordt bepaald door diverse aspecten. Het plaatsen op het beton heeft als voordeel dat de wapening gewoon door kan lopen.

 

Duurzaamheid

Conservering niet van toepassing.

Figuur 315.2 - Detaillering hittewerende bekleding


 

 

3. Beëindiging bekleding betonnen dak

Doel

Een goede overgang creëren van een doorsnede met hittewerende bekleding naar een doorsnede zonder hittewerende bekleding.

 

Toepassingen

In het gesloten gedeelte en overgangsgedeelte van tunnels.

 

Detailontwerp

Bij de beëindiging ter plaatse van de overgang van het overgangsgedeelte naar de toeritten wordt een waterhol aangebracht, zie figuur 315.3. Ter plaatse van de wanden wordt de beplating omgezet; een waterhol is hier overbodig.

 

Motivering

Een waterhol is noodzakelijk om te voorkomen dat hemelwater achter de hittewerende bekleding komt en naar binnen gaat.

 

Conservering

Niet van toepassing.

 

Een waterhol is een gleuf die ervoor zorgt dat regenwater niet lang het dak naar binnen loopt en in de hittewerende bekleding kan trekken.

 

Figuur 315.3 - Waterhol

4. Voegbescherming

Doel

Een goede overgang creëren van een doorsnede met hittewerende bekleding met een voegconstructie.

 

Toepassingen

Ter plaatse van voegconstructies in het gesloten gedeelte en overgangsgedeelte van tunnels.

 

Detailontwerp

Bij de beëindiging ter plaatse van de voegovergang kan de voeg worden afgedekt door er een hittewerende plaat erover te bevestigen, zoals op de tekening links is aangegeven. Het is ook op te lossen door een bij hitte uitzettende strip aan te brengen in de voeg. Zoals op de tekening rechts van figuur 315.4 is aangegeven.

 

Motivering

Om branddoorslag te voorkomen dienen de voegen en dilataties beschermd te worden. In onderstaande figuren zijn een aantal mogelijkheden weergegeven waarop dat kan gebeuren. Het is mogelijk door de voeg met hittewerende bekleding te overlappen of door dit in de voeg aan te brengen.

 

Conservering

Niet van toepassing.

 

Figuur 315.4 - Voegen en dilataties ter voorkoming van branddoorslag

 

 

 

 

 

 

 

 

 

Gespoten bekleding (spuitmortel)

Artikel nr. 316

Conform ROK [27] paragraaf 13.14 moet voor gespoten bekleding een mechanisch verankeringssysteem aanwezig zijn, dat de in de ROK [27] vermelde gelijkmatig statische verdeelde belasting ter grootte van 3 kN/m2 (ten gevolge van de zuigbelasting door het verkeer) moet kunnen dragen. Dit verankeringssysteem moet een bepaalde levensduur hebben conform paragraaf 4.2 van de ROK [27].

 

Uit ervaring blijkt dat het op lange termijn niet gegarandeerd is dat bij een alleen op aanhechting verbonden gespoten bekleding de aanhechtsterkte duurzaam aanwezig is of behouden blijft. Het bevestigingssysteem kan bestaan uit een in de gespoten bekleding opgenomen netje door middel van boutjes aan het beton (corrosievast) bevestigd. Het bovenstaande houdt niet in dat geen aandacht besteed hoeft te worden aan de aanhechting van de gespoten hittewerende bekleding. Het mechanische verankeringssysteem dient als vangnet voor als onverhoopt de aanhechting lokaal onvoldoende is of in de loop der tijd achteruit zou zijn gegaan.

 

Er wordt onder andere gespoten materiaal toegepast. Bij het Gouwe aquaduct is bijvoorbeeld een product aangebracht dat gebaseerd is op vermiculiet. Enkele jaren later met de uitvoering van het renovatieprogramma voor tunnels, waren er meerdere goedgekeurde materialen beschikbaar. Al deze materialen waren gebaseerd op vermiculiet.

 

In de Groene Harttunnel is een gespoten hittewerende spuitpleisterbekleding aangebracht, vergelijkbaar met de bekleding die is toegepast in de Westerscheldetunnel.

 

De toegepaste hittewerende bekleding heeft een laagdikte die meestal varieert tussen de 35 en 50 mm. De bekleding is voorzien van een wapeningsnet van roestvast staal en verankerd met roestvast stalen ankers aan het beton. De ankers zijn aan het wapeningsnet bevestigd. Om een goede aanhechting met het beton te verkrijgen werd het betonoppervlak met stoom gereinigd. De droge mortel bestond uit een gemodificeerd mengsel van vermiculiet en cement en water. Omdat het proces van het mengen tot en met spuiten volledig geautomatiseerd is de kans op uitvoeringsfouten minder groot.

 

Motivering

Voordelen:

 

Nadelen:


 


Aspecten ten aanzien van de RAMS-score


Tabel 316.1 - Aandachtspunten RAMS-criteria gespoten bekleding

Variant

Gespoten bekleding

R

Reliability
(Betrouwbaarheid)

Goed, mits deze op een correcte wijze zijn aangebracht

A

Availability
(Beschikbaarheid)

Gelimiteerd, i.v.m. benodigde inspecties en vervanging

M

Maintainability
(Onderhoudbaarheid)

Goed, mits deze op een correcte wijze zijn aangebracht

S

Safety
(Veiligheid)

Goed, mits deze op een correcte wijze zijn aangebracht

Figuur 316.1 - Passieve inwendige hittewerende maatregelen



 


 

 

 

 

 

 

Best practice: Passieve inwendige hittewerende maatregelen voor betonconstructies

Artikel nr. 317 (bevat geen inhoud, zie onderliggende artikelen)

Polypropyleenvezels

Artikel nr. 318

Uit brandproeven is gebleken dat bij toepassing van polypropyleenvezels in het beton, afhankelijk van het vezelgehalte, de mate van afspatten significant kan worden beperkt. Het principe van de werking is gebaseerd op het smelten van de vezels (bij circa 150 °C), waardoor kanaaltjes ontstaan; de ontstane waterdamp kan hierdoor ontsnappen met als gevolg dat geen te hoge trekspanningen ontstaan. De goede werking van de vezels wordt in hoge mate beïnvloed door de combinatie van de hoeveelheid, de lengte en de diameter van de toegepaste vezels. Zeer fijne vezels beperken het afspatten meer dan grove vezels. Gebleken is dat met toepassing van voldoende vezels het afspatten zelfs nagenoeg geheel te voorkomen is.

Uit onderzoek is inmiddels gebleken dat het toepassen van polypropyleenvezels de duurzaamheid van de constructie niet nadelig beïnvloedt.

 

Polypropyleenvezels zijn begin deze eeuw voor het eerst toegepast bij tunnels in Oost-Engeland, Madrid en Leipzig.

In Nederland is het onder meer toegepast in de Leidsche Rijntunnel in de A2 bij Utrecht en voor de Noord-Zuidlijn in Amsterdam. De Sluiskiltunnel is de eerste wegtunnel waar alleen polypropyleenvezels als materiaal tegen brandschade in het beton van de tunnelsegmenten van een boortunnel worden gebruikt.

Daarnaast zijn polypropyleenvezels ook toegepast in barriers, hulpposten en randafwerking waar geen hittewerende bekleding aanwezig is.

 

In Duitsland en Oostenrijk gaat toepassing van deze vezels voorgeschreven worden in de tunnelbouwrichtlijnen.

 

De werking en de hoeveelheid vezels dienen door middel van een brandproef te worden aangetoond.

 

Voordelen:

 

Nadelen:

 

 

Kritische aspecten

Een te hoge dosering maakt het lastig het betonmengsel door de dichte wapeningsnetten heen te krijgen. Een te lichte dosering biedt te weinig bescherming. Uit onderzoek (numerieke simulaties en brandproeven) bij een brandinstituut in Leipzig en uit beproevingen voor de A2 Leidsche Rijntunnel bleek een dosering van 2 kilogram vezels per m3 goed te presteren en goed verwerkbaar.

 

Duurzaamheid

Beton waarbij polypropyleenvezels is toegevoegd is net zo duurzaam als gewoon gewapend beton.

Aspecten ten aanzien van de RAMS-score

Tabel 318.1 - Aandachtspunten RAMS-criteria polypropyleenvezels in beton

Variant

Polypropyleenvezels in beton

R

Reliability
(Betrouwbaarheid)

Goed, er is voldoende ervaring met het toevoegen van polypropyleenvezels in beton

A

Availability
(Beschikbaarheid)

Goed, levensduur is net zo lang als gewoon beton

M

Maintainability
(Onderhoudbaarheid)

Voldoende, na een brand dient het beschadigde beton te worden verwijderd en te worden vervangen door nieuw beton waaraan polypropyleenvezels zijn toegevoegd. Zelfde eigenschappen zijn afhankelijk van het eerder toegepaste betonmengsel

S

Safety
(Veiligheid)

Voldoende, mits deze op een correcte wijze zijn aangebracht

 

 

 

Staalvezelbeton

Artikel nr. 319

De staalvezels houden de afgespatte betonscherven vast, die dan niet omlaag vallen maar met elkaar als een soort isolatiedeken functioneren. De (eventueel aanwezige) wapening blijft hierdoor langer beschermd tegen hoge temperatuur waardoor de constructie blijft functioneren. Bij de bouw van de Tweede Heinenoordtunnel in 1998 is in Nederland voor het eerste deel over lengte van 20 meter (16 tunnelringen) geëxperimenteerd met staalvezelbeton.

Staalvezels die aan het oppervlak liggen kunnen roestvlekken geven, echter in de praktijk lijkt dit mee te vallen. Door verzinken (galvaniseren) kan dit bijvoorbeeld worden voorkomen. Een goede consistentie en een goede verdichting voorkomt dat vezels zichtbaar zijn aan het oppervlak. Constructief is roesten overigens geen probleem.

Het is ook mogelijk om een hybride gewapend beton oplossing met een combinatie van traditioneel gewapend beton en staalvezels toe te passen.

 

Omtrent de werking van staalvezels en het afspatten van beton is niet veel bekend.

 

Kritische aspecten

Staalvezels hebben een beperkte gunstige invloed op het afspatgedrag.

 

Duurzaamheid

De duurzaamheid van beton met een toevoeging van staalbetonvezels is gelijk aan gewoon gewapend beton.

 

Aspecten ten aanzien van de RAMS-score

Tabel 319.1 - Aandachtspunten RAMS-criteria staalvezelbeton

Variant

Staalvezelbeton

R

Reliability
(Betrouwbaarheid)

Voldoende, er is voldoende ervaring met het aanbrengen van staalvezelbeton, maar niet met de exacte werking m.b.t. het afspatten

A

Availability
(Beschikbaarheid)

Goed, levensduur is net zo lang als gewoon beton

M

Maintainability
(Onderhoudbaarheid)

Voldoende, na een brand dient het beschadigde beton te worden verwijderd en te worden vervangen door nieuw staalvezelbeton

S

Safety
(Veiligheid)

Matig, er is te weinig bekend over het exacte gedrag van staalvezelbeton bij brand

 

 

Specifieke detaillering voegen afgezonken tunnels

Artikel nr. 320 (bevat geen inhoud, zie onderliggende artikelen)

Zinkvoeg vloer

Artikel nr. 321 (bevat geen inhoud, zie onderliggende artikelen)

Tunnelelement - tunnelelement t.p.v. verkeerskoker

Artikel nr. 322

Functies

Het verzorgen van een water- en gronddichting in de eindfase. Toestaan van geringe bewegingen loodrecht op het voegvlak.

Verhinderen van verschilbewegingen, translaties en rotaties evenwijdig aan het voegvlak.

Toepassingen

Zinkvoegen van afgezonken tunnels, die op staal gefundeerd zijn.

Detailontwerp

Primaire- en secundaire einde van de elementen voorzien van een stalen omranding (bv. IPE-profiel met ingelaste plaat).

Eerste afdichtingsprofiel aan primaire einde. Tweede afdichtingsprofiel (Omega-profiel). Er wordt bekisting over het Omega-profiel aangebracht ter bescherming tijdens:

 

Deze bekisting dient tevens om het Omega-profiel ruimte te bieden om vrij te kunnen vervormen bij initiële verschilzettingen.

Indien er voldoende hoogte is om de dwarskracht over te brengen dan wordt in de voeg van de vloer een dubbele gewapend betonnen tand gemaakt. Is deze hoogte te gering dan worden of in vloer en dak een betonnen tanden gemaakt, of er worden stalen deuvels toegepast (in secundaire einde).

Van belang is dat de tand- (of deuvel)werking in twee richtingen werkt en roteren voorkomt.

 

De breedte van het oplegvlak wordt bepaald d.m.v. berekening.

 

In het voegvlak wordt alveolit aangebracht. De dikte hiervan wordt ook d.m.v. een berekening bepaald.

De voeg wordt in het asfalt doorgezet door ook daar een voegprofiel toe te passen, zoals eventueel een Thorma Joint.

 

Bijbehorende details

Detail 1 Stalen omranding zinkvoeg

Detail 2 Waterafdichting

Detail 3 Krachtsoverdracht

Detail 4 Voegovergang t.p.v. asfalt

Detail 9 Stalen aanslag in de vloer

 

 

Tunnelelement-landhoofd t.p.v. verkeerskoker

Artikel nr. 323

Functies

Het verzorgen van een water- en gronddichting in de eindfase. Toestaan van geringe bewegingen loodrecht op het voegvlak. Verhinderen van verschilbewegingen evenwijdig aan het voegvlak.

Toepassingen

Zinkvoegen van afgezonken tunnels, die op staal gefundeerd zijn en waarbij landhoofd op palen is gefundeerd.

Detailontwerp

Primaire- en secundaire einde van element en landhoofd voorzien van een stalen omranding (b.v. IPE-profiel met ingelaste plaat).

Eerste afdichtingsprofiel aan primaire einde. Tweede afdichtingsprofiel (Omega-profiel). Er wordt bekisting over het Omega-profiel aangebracht ter bescherming tijdens:

 

Deze bekisting dient tevens om het Omega-profiel ruimte te bieden om vrij te kunnen vervormen bij initiële verschilzettingen.

 

Het tunnelelement wordt opgelegd op het landhoofd. De breedte van het oplegvlak wordt bepaald d.m.v. berekening.In het voegvlak wordt alveolit aangebracht. De dikte hiervan wordt ook d.m.v. een berekening bepaald.
De voeg wordt in het asfalt doorgezet door ook daar een voegprofiel toe te passen, zoals bijvoorbeeld een Thorma Joint.

Motivering

In de meeste gevallen volstaat een tand die in één richting werkt omdat het landhoofd niet (of nauwelijks) aan zetting onderhevig is.

Mocht er een tand (of deuvel) nodig zijn die in twee richtingen werkt, dan wordt verwezen naar de details in hoofdstuk ‘Tunnelelement – tunnelelement t.p.v. verkeerskoker’.

 

Figuur 323.1 - Detailontwerp tunnelelement - t.p.v. verkeerskoker: afwerking zinkvoeg vloer

 

Bijbehorende details

Detail 1 Stalen omranding zinkvoeg

Detail 2 Waterafdichting

Detail 4 Voegovergang t.p.v. asfalt

Detail 9 Stalen aanslag in de vloer

 

 

 

Tunnelelement-tunnelelement t.p.v. middenkanaal

Artikel nr. 324

Functies

Het verzorgen van een water- en gronddichting in de eindfase. Toestaan van geringe bewegingen loodrecht op het voegvlak. Verhinderen van verschilbewegingen evenwijdig aan het voegvlak.

Toepassingen

Zinkvoegen van afgezonken tunnels, die op staal gefundeerd zijn.

Detailontwerp

Primaire- en secundaire einde van de elementen voorzien van een stalen omranding

(b.v. IPE-profiel met ingelaste plaat).

Eerste afdichtingsprofiel aan primaire einde. Tweede afdichtingsprofiel (Omega-profiel). Er wordt bekisting over het Omega-profiel geplaatst ter bescherming tijdens:

Deze bekisting dient tevens om vrij vervormen van het Omega-profiel bij initiële verschilzettingen mogelijk te maken.

Wordt in de vloer van de verkeerskoker een betonnen tand toegepast, dan wordt deze in de vloer van het middenkanaal doorgezet. De breedte van het oplegvlak wordt bepaald d.m.v. berekening. Worden in de vloer stalen deuvels toegepast dan hoeft geen betonnen tand in de vloer van het middenkanaal te worden gemaakt. Wel mag een (smallere) betonrug worden gebruikt om azobé te besparen. Er moet dan een afweging worden gemaakt tussen minder azobé en een moeilijker te maken bekisting.

 

Afvoeren lekwater:

Tussen de eerste en tweede afdichting wordt t.p.v. de vloer in het middenkanaal een HDPE-buis Ø63 mm door de bekisting van het Omega-profiel gevoerd. Deze buis moet worden omgezet, of in geval van een rechte buis afgesloten. Lekwater op de vloer van het middenkanaal waarschuwt voor lekkage. Het lekwater wordt uiteindelijk via de middenpompkelder afgevoerd.

In het voegvlak wordt alveolit aangebracht. De dikte dient hiervan te worden berekend.

 

Motivering

De motivering is opgenomen in de achtergronden.

Figuur 324.1 - Detailontwerp afwerking zinkvoeg vloer

 

Bijbehorende details:

Detail 1 Stalen omranding zinkvoeg

Detail 2 Waterafdichting

 

 

 

Tunnelelement-landhoofd t.p.v. middenkanaal

Artikel nr. 325

Functies

Het verzorgen van een water- en gronddichting in de eindfase. Toestaan van bewegingen loodrecht op het voegvlak.

Verhinderen van verschilbewegingen evenwijdig aan het voegvlak.

Toepassingen

Zinkvoegen van afgezonken tunnels, die op staal gefundeerd zijn en waarbij landhoofd op palen is gefundeerd.

Detailontwerp

Primaire- en secundaire einde van de elementen voorzien van een stalen omranding (IPE-profiel met ingelaste plaat).

Eerste afdichtingsprofiel aan primaire einde. Tweede afdichtingsprofiel (Omega-profiel). Bekisting over Omega-profiel, teneinde deze te beschermen tijdens:

De bekisting biedt tevens het Omega-profiel de mogelijkheid vrij te vervormen bij initiële verschilzettingen.

De betonnen tand in de vloer van de verkeerskoker wordt doorgezet in de vloer van het middenkanaal. De breedte van het oplegvlak bepalen d.m.v. berekening.

 

Afvoeren lekwater:

Tussen de eerste en tweede afdichting wordt t.p.v. de vloer in het middenkanaal een HDPE-buis Ø63 mm door de bekisting van het Omega-profiel gevoerd. Deze buis wordt omgezet of in geval van een rechte buis afgesloten. Lekwater op de vloer van het middenkanaal waarschuwt voor lekkage. Het lekwater wordt uiteindelijk via de middenpompkelder afgevoerd.

In het voegvlak wordt alveolit aangebracht. De dikte dient hiervan te worden berekend.

Motivering

Let er op dat t.p.v. het landhoofd voldoende ruimte is onder het Dejo-rooster voor de brandblusleiding en de afvoerleiding van de middenkelder. Is deze ruimte kleiner dan ca. 400 mm dan moet t.p.v. het landhoofd de vloer van het middenkanaal worden verlaagd. Het detail ziet er dan uit als ‘Tunnelelement-tunnelelement t.p.v. middenkanaal’. Nadeel hiervan is dat er geen doorgaande vloer kan worden gemaakt.

Figuur 325.1 - Detailontwerp afwerking zinkvoeg vloer

 

Bijbehorende details

Detail 1 Stalen omranding zinkvoeg

Detail 2 Waterafdichting

 

 

Zinkvoeg wand

Artikel nr. 326 (bevat geen inhoud, zie onderliggende artikelen)

Zinkvoeg t.p.v. middenwand

Artikel nr. 327

Functies

Het verzorgen van een doorlopende, vlakke, gasdichte wand.

Toepassingen

Zinkvoegen van afgezonken tunnels, die op staal gefundeerd zijn.

Detailontwerp

Voor het verlengen van de wapening worden ankers toegepast. Hoeveelheid en maat volgt uit berekening.

Als voegafdichting wordt gebruik gemaakt van een voegprofiel voor zowel de tunnel- als de middenkanaalzijde.

Eventuele neuzen en kinnen volledig verwijderen. Het kopschot loopt voor de middenwand langs.

De breedte van de zinkvoeg is 1000 of 1150 mm; afhankelijk van het wel of niet toepassen van stalen deuvels.

Het voegvlak aanhelen met epoxy. In het voegvlak wordt alveolit aangebracht. De dikte dient hiervan te worden berekend.

Motivering

Om een goede vlakke voeg te kunnen maken t.b.v. de afwerking, dienen de neuzen en kinnen gesloopt te worden.

Consequentie van een doorlopend kopschot (voor de middenwand langs) is dat er een sprong in de voeglijn zit. In het middenkanaal valt dit echter niet op, omdat deze overgang onder het stalen rooster zit. In de verkeerskoker valt de sprong niet op door de brede Thorma Joint en de geleidebarrier.

Wordt er een neus- en kinconstructie t.p.v. de middenwand toegepast, dan valt het kopschot hier plaatselijk in een sponning.

Figuur 327.1 - Detailontwerp afwerking zinkvoeg middenwand

 

Bijbehorende details

Detail 5 Voegafwerking wand zonder tegels

Detail 6 Voegafwerking wand met tegels (wordt vrijwel niet meer toegepast)

 

 

 

Tunnelelement-tunnelelement t.p.v. buitenwand

Artikel nr. 328

Functies

Het verzorgen van een water- en gronddichting in de eindfase. Toestaan van bewegingen loodrecht op het voegvlak.

Verhinderen van verschilbewegingen evenwijdig aan het voegvlak.

Toepassingen

Zinkvoegen van afgezonken tunnels, die op staal gefundeerd zijn.

Detailontwerp

Primaire- en secundaire einde van de elementen voorzien van een stalen omranding

(b.v. IPE-profiel met inlasplaat).

Eerste afdichtingsprofiel aan primaire einde. Tweede afdichtingsprofiel (Omega-profiel). Bekisting over Omega-profiel ter bescherming bij:

Bekisting dient tevens voor het vrij vervormen van het Omega-profiel bij initiële verschilzettingen.

Wordt in de vloer van de verkeerskoker een betonnen tand toegepast, dan moet ook in de buitenwanden een tand worden gemaakt. De breedte van het oplegvlak bepalen d.m.v. berekening. Worden in de vloer stalen deuvels toegepast, dan hoeft geen betonnen tand in de wand te worden gemaakt.

In het voegvlak wordt alveolit aangebracht. De dikte dient hiervan te worden berekend.

Motivering

De motivering is opgenomen in de achtergronden.

Figuur 328.1 - Detailontwerp afwerking zinkvoeg buitenwand

 

Opmerkingen bij de afbeelding:

Bijbehorende details

Detail 1 Stalen omranding zinkvoeg

Detail 2 Waterafdichting

Detail 5 Voegafwerking wand zonder tegels

Detail 6 Voegafwerking wand met tegels (wordt vrijwel niet meer toegepast)

 

 

 

Tunnelelement-landhoofd t.p.v. buitenwand

Artikel nr. 329

Functies

Het verzorgen van een water- en gronddichting in de eindfase;

Toestaan van bewegingen loodrecht op het voegvlak;

Verhinderen van verschilbewegingen evenwijdig aan het voegvlak.

Toepassingen

Zinkvoegen van afgezonken tunnels, die op staal gefundeerd zijn.

Detailontwerp

Primaire- en secundaire einde van de elementen voorzien van een stalen omranding

(b.v. IPE-profiel met inlasplaat);

Eerste afdichtingsprofiel aan primaire einde; Tweede afdichtingsprofiel (Omega-profiel). Bekisting over Omega-profiel ter bescherming bij:

Bekisting dient tevens voor het vrij vervormen van het Omega-profiel bij initiële verschilzettingen.

In de buitenwanden wordt een betonnen tand gemaakt (behalve als in de vloer van de verkeerskoker een stalen deuvel wordt toegepast). Bij voorkeur geen stalen deuvels toepassen.

De breedte van het oplegvlak bepalen d.m.v. berekening.

In het voegvlak wordt alveolit aangebracht. De dikte dient hiervan te worden berekend.

Motivering

De motivering is opgenomen in de achtergronden.

Figuur 329.1 - Detailontwerp afwerking zinkvoeg buitenwand

 

 

Opmerkingen bij de afbeelding:

Bijbehorende details

Detail 1 Stalen omranding zinkvoeg

Detail 2 Waterafdichting

Detail 5 Voegafwerking wand zonder tegels

Detail 6 Voegafwerking wand met tegels (wordt vrijwel niet meer toegepast)

 

 

Zinkvoeg dak

Artikel nr. 330 (bevat geen inhoud, zie onderliggende artikelen)

Tunnelelement-tunnelelement t.p.v. verkeerskoker

Artikel nr. 331

Functies

Het verzorgen van een water- en gronddichting in de eindfase.

Toestaan van verschilbewegingen loodrecht op het voegvlak.

Toepassingen

Zinkvoegen van afgezonken tunnels, die op staal gefundeerd zijn.

Detailontwerp

Primaire- en secundaire einde van de elementen voorzien van een stalen omranding (IPE-profiel met inlasplaat).

Eerste afdichtingsprofiel aan primaire einde. Tweede afdichtingsprofiel (Omega-profiel).

De verkregen sparing uitvullen met steenwolplaten tot een ruimte overblijft van 200 mm. Deze laatste 200 mm voorzien van krimpwapening en uitvullen met spuitbeton. De steenwolplaten vastzetten met bekistingsplaten.

In het voegvlak wordt alveolit aangebracht. De dikte dient hiervan te worden berekend.

 

Motivering

De motivering is opgenomen in de achtergronden.

 

Figuur 331.1 - Detailontwerp afwerking zinkvoeg dak

Opmerkingen bij de afbeelding:

Bijbehorende details

Detail 1 Stalen omranding zinkvoeg

Detail 2 Waterafdichting

Detail 7 Afwerking zinkvoeg dak

Detail 10 In te storten aanslag in het dak

 

 

 

Tunnelelement-landhoofd t.p.v. verkeerskoker

Artikel nr. 332

Functies

Het verzorgen van een water- en gronddichting in de eindfase.

Toestaan van verschilbewegingen loodrecht op het voegvlak.

Toepassingen

Zinkvoegen van afgezonken tunnels, die op staal gefundeerd zijn.

Detailontwerp

Primaire- en secundaire einde van de elementen voorzien van een stalen omranding (IPE-profiel met inlasplaat).

Eerste afdichtingsprofiel aan primaire einde. Tweede afdichtingsprofiel (Omega-profiel).

De verkregen sparing uitvullen met steenwolplaten tot een ruimte overblijft van 200 mm. Deze laatste 200 mm voorzien van krimpwapening en uitvullen met spuitbeton. De steenwolplaten vastzetten met bekistingsplaten.

In het voegvlak wordt alveolit aangebracht. De dikte dient hiervan te worden berekend.

Motivering

De motivering is opgenomen in de achtergronden.

Figuur 332.1 - Detailontwerp afwerking zinkvoeg dak

 

 

Opmerkingen bij de afbeelding:

Bijbehorende details

Detail 1 Stalen omranding zinkvoeg

Detail 2 Waterafdichting

Detail 7 Afwerking zinkvoeg dak

Detail 10 In te storten aanslag in het dak

 

 

 

 

Tunnelelement-tunnelelement t.p.v. middenkanaal

Artikel nr. 333

Functies

Het verzorgen van een water- en gronddichting in de eindfase.

Toestaan van verschilbewegingen loodrecht op het voegvlak.

Toepassingen

Zinkvoegen van afgezonken tunnels, die op staal gefundeerd zijn.

Detailontwerp

Primaire- en secundaire einde van de elementen voorzien van een stalen omranding (IPE-profiel met inlasplaat).

Eerste afdichtingsprofiel aan primaire einde. Tweede afdichtingsprofiel (Omega-profiel).

De verkregen sparing uitvullen met steenwolplaten tot een ruimte overblijft van 200 mm. Deze laatste 200 mm voorzien van krimpwapening en uitvullen met spuitbeton. De steenwolplaten vastzetten met bekistingsplaten.

In het voegvlak wordt alveolit aangebracht. De dikte dient hiervan te worden berekend.

 

Motivering

De motivering is opgenomen in de achtergronden.

 

Figuur 333.1 - Detailontwerp afwerking zinkvoeg dak middenkanaal

Opmerkingen bij de afbeelding:

Bijbehorende details

Detail 1 Stalen omranding zinkvoeg

Detail 2 Waterafdichting

 

 

 

 

 

Tunnelelement-landhoofd t.p.v. middenkanaal

Artikel nr. 334

Functies

Het verzorgen van een water- en gronddichting in de eindfase.

Toestaan van verschilbewegingen loodrecht op het voegvlak.

Toepassingen

Zinkvoegen van afgezonken tunnels, die op staal gefundeerd zijn.

Detailontwerp

Primaire- en secundaire einde van de elementen voorzien van een stalen omranding (IPE-profiel met inlasplaat).

Eerste afdichtingsprofiel aan primaire einde. Tweede afdichtingsprofiel (Omega-profiel).

De verkregen sparing uitvullen met steenwolplaten tot een ruimte overblijft van 200 mm. Deze laatste 200 mm voorzien van krimpwapening en uitvullen met spuitbeton. De steenwolplaten vastzetten met bekistingsplaten.

In het voegvlak wordt alveolit aangebracht.De dikte dient hiervan te worden berekend.

Motivering

De motivering is opgenomen in de achtergronden.

 

Figuur 334.1 - Detailontwerp afwerking zinkvoeg dak middenkanaal landhoofd

Opmerkingen bij de afbeelding:

 

Bijbehorende details

Detail 1 Stalen omranding zinkvoeg

Detail 2 Waterafdichting

 

 

 

Achtergronden zinkvoegen

Artikel nr. 335

De einden van de tunnelelementen worden ter plaatse van de zinkvoegen voorzien van een stalen omranding bestaande uit IPE500-profielen. In de profielen worden platen gelast waarop de Gina aan de primaire zijde (vaareind) van het tunnelelement wordt bevestigd. De secundaire zijde (moereind) wordt eveneens voorzien van ingelaste platen, zo mogelijk gecontramald aan de aan te sluiten beplating van het aan te sluiten tunnelelement. De ingelaste platen dienen om bouw- en meettoleranties op te vangen.

Het grootste voordeel van het toepassen van ingelaste platen is dat het aanbrengen van de correcties buiten het kritieke pad van de bouw van de tunnelelementen kan worden gebracht. In notitie GT-9004, d.d. 18 maart 1990 werden verschillende alternatieven besproken. Het vaak voorgestelde alternatief is om tenminste aan de secundaire zijde van het tunnelelement een gezette U-vormige profiel toe te passen, in plaats van een IPE-profiel met ingelaste platen. De bezwaren vanuit de buitendienst tegen een U-vormige profiel waren dat:

 

Figuur 335.1 - Zinkvoeg met gezet profiel

In de binnenhoeken van de IPE-profielen zijn aan de betonzijde sponsstrippen aangebracht om later te kunnen injecteren. De reden hiervoor is dat door temperatuursinvloeden, het beton van het IPE-profiel los kan krimpen waardoor na afzinken achterloopsheid en dus lekkage ontstaat. Vóór het aanbrengen van de inlasplaten worden de sponsjes vanuit het lijf van de IPE-profielen aangeboord en geïnjecteerd met epoxyhars. Tussen het IPE-profiel en de ingelaste beplating wordt een krimparme cementgebonden mortel aangebracht.

De zinkvoeg wordt voorzien van een Omega-profiel, de tweede, ofwel de permanente, afdichting genoemd. Met behulp van klemstrippen wordt het Omega-profiel op de flenzen van de IPE-profielen vastgeklemd. Hiertoe worden hoge dopmoeren vlak op de flensen van de IPE-profielen waterdicht vastgelast. De klemstrippen klemmen met behulp van, in de dopmoeren ingedraaide, draadeinden en moer. Het nadeel van het toepassen van een draadeind kan zijn dat zij onvoldoende diep wordt ingedraaid, waardoor zij mogelijk slechts op een beperkt aantal schroefdraden aanligt. Door de bovenzijde van de draadeinden (thermisch verzinkt) te voorzien van een spleet kunnen zij als schroeven worden ingedraaid. Het is niet raadzaam, zelfs onverstandig, om bouten toe te passen, omdat ondanks toepassen van hoge dopmoeren deze toch een beperkte indraaidiepte hebben (materiaal dikte heeft invloed op de draadlengte), waardoor de kans bestaat dat de Omega niet voldoende wordt afgeklemd.

De zinkvoegen worden voorzien van een afpersvoorziening om de Omega te controleren op lekkage. Er wordt t.p.v. de wand van het middenkanaal een buis in de vloer ingestort en door de bekisting boven de Omega gevoerd. De afpersvoorziening dient in een sparing in de wand van het middenkanaal uit te komen en te worden voorzien van een afschroefbare dop. Eventuele lekkage door de Gina kan dan door het buisje worden weggepompt.

Het water afvoeren is alleen noodzakelijk als dit tussen de Gina en Omega kan bevriezen. (Bij zinkvoeg die in ondiep water ligt zoals de noordzijde Zeeburgertunnel)

In het verleden werden alleen de vloer en ca. 1,5 m hoogte van de buitenwanden van de sluitvoeg en de totale hoogte van de buitenwanden van de zinkvoeg volledig gestort. De betonwanden dienen als geleiding van een uit de koers geraakt voertuig. De overige ruimten in de wanden en in het dak werden afgedicht met Nobrandaplaten die het Omega-profiel tegen eventuele brand moest beschermen. Daar tegenwoordig gevaarlijke stoffen door de tunnels worden vervoerd, moeten de Omega-profielen beter worden beschermd en worden de wanden en dak gebetonneerd.

Sinds de Zeeburgertunnel worden de betonwanden over de volledige hoogte gestort. Daar de ruimte in het dak zeer beperkt is, wordt tegen de Omega in het dak steenwol aangebracht en het geheel afgedekt met gewapend spuitbeton. Het betondak (spuitbeton) is onvoldoende sterk om de waterdruk bij een calamiteit, het falen van de Omega profiel, te kunnen opnemen. Daarom dient de Omega zodanig te worden beschermd dat na 2 uur brand, de temperatuur van het rubber niet hoger wordt dan 60 oC.

 

De tunnelelementen worden in het algemeen op een zandbed gefundeerd door het zand met behulp van de onderstroommethode aan te brengen. Bij de onderstroommethode ontstaan aaneen gesloten zand pannenkoeken als fundering onder de tunnelelementen. Het zand bereikt echter niet alle hoeken, waardoor er gaten in de bedding onder de tunnelelementen aanwezig zijn. Bovendien is het aangebrachte zand in het algemeen losgepakt. Beiden veroorzaken zettingen van het tunnelelement.

Om ongelijke zetting van twee naastliggende tunnelelementen te voorkomen, wordt in de vloer een tand- of deuvelconstructie aangebracht die op dwarskracht moet worden gedimensioneerd. Door de beperkte ruimte in het dak, kan daar geen tand- of deuvelconstructie worden gemaakt en moet de tand- of deuvelconstructie in de vloer worden aangebracht en dwarskracht in twee richtingen kunnen overbrengen. In het verleden wordt uitsluitend de stalen deuvelconstructie aangebracht binnen de hoogte van de constructiebeton. Sinds de Wijkertunnel worden hoofdzakelijk betonnen tandconstructie gemaakt waarbij de ballastbeton ter plaatse van de voeg als constructiebeton wordt uitgevoerd. De reden dat men is overgegaan op de dubbele tand ipv een deuvelconstructie was dat er;

 

Om een verticale verplaatsing te voorkomen dient het oplegvlak van de tand niet schuin maar horizontaal te worden uitgevoerd. De breedte van het oplegvlak mag niet meer dan 0,30 m zijn om rotatie van de moten nog mogelijk te maken.

In het middenkanaal is geen ballastbeton aanwezig en kan de betonnen tandconstructie ook niet volledig worden gemaakt.

Het overgangsgedeelte of het landhoofd worden op ongeroerde grond of op palen gefundeerd en zullen daardoor weinig of in het geheel niet zetten. Daarom worden de zinkvoegen hier niet voorzien van een tand- of deuvelconstructie die in twee richtingen dwarskracht moet kunnen overbrengen. De vloer van het tunnelelement wordt eenvoudig op het landhoofd opgelegd.

Wanneer de tunnelelementen op palen worden gefundeerd (Zeeburgertunnel), is een tand- of deuvelconstructie niet gewenst. Door verschil in zetting van de palen zouden grote krachten in de tand worden geïntroduceerd. Dit geldt ook voor de voeg tussen een onderheid tunnelelement en een onderheid overgangsgedeelte.

In de voegvlakken van de zinkvoeg worden busankers ingestort ten behoeve van de wapening van de later te storten tunneldoorsnede. Het aantal, plaats en diameter dient zo vroeg mogelijk, in de ontwerpfase, door de constructeur globaal te worden bepaald om deze aan de uitvoerbaarheid te kunnen toetsen.

In de periode van de Zeeburgertunnel tot en met de Wijkertunnel werden Lentonankers toegepast met tapse toelopende draadeinden. In verband met de vereiste verankeringslengte moeten de ankers in de zinkvoeg vaak worden omgebogen. Vaak kunnen de ankers pas na het indraaien worden omgebogen. Door het ombuigen en wrikken ontstaat zoveel ruimte, dat de draadeinden los komen te zitten in de bussen waardoor de toelaatbare trekkracht op deze ankers drastisch afneemt. Sinds de tweede beneluxtunnel worden ECS ankers toegepast met rechte draadeinden. Tegenwoordig bestaan voor Lenton ankers koppelmoffen, waardoor reeds omgebogen ankers kunnen worden aangesloten.

 

In de zinkvoegen dienen de buitenzijde van de voegen tussen de tunnelelementen te worden voorzien van een blijvend elastisch materiaal om eventuele vervorming van de tunnel te kunnen opvangen en ter voorkoming van het afzetten van vuil. De dikte van de voegvulling dient door de constructeur te worden bepaald. Verder worden de voegen in de vloer en wanden afgewerkt met rubber voegprofielen en het dak en de bovenste meter van de wanden in de verkeerskoker voorzien van een hittewerende bekleding.

Voor de aanslag van de kopschotstijlen worden in de vloer constructies opgenomen. Tot voorheen werden uitgevoerd in gewapend betonnen opstorten, minimaal 0,15 m hoog, welke zijn voorzien van een verdeelplaat. Deze plaat moet er voor zorgen dat de bovenrand van de opstorten niet door de kopschotstijlen worden verbrijzeld. In het verleden werd voor dit doel een kraanrail ingestort. Verdeelplaat of kraanrail na het slopen van het kopschot verwijderen. De opstort tenminste 150 mm hoog maken om stelruimte voor de kopschotstijlen te creëren en de breedte bepalen op circa vier maal de hoogte (1:4). De constructie dient door de constructeur te worden bepaald, waarbij met de uitvoerbaarheid van een kleine opstort, de wapening moet worden aangepast. Door het toepassen van busankers kan in de uitvoering een hoop narigheid worden voorkomen. Wel dient rekening te worden gehouden met de wielbasis van de vaak toe te passen rijdende tunnelbekisting.

In het dak is het, vanwege de tunnelbekisting, niet mogelijk om een betonnen opstort te maken. Hiervoor worden stalen aanslagen in het dak ingestort waarop later stalen aanslagblokken worden gebout. De aanslagblokken worden na het slopen van de kopschotten verwijderd en het dak voorzien van een hittewerende bescherming.

 

 

Sluitvoeg vloer

Artikel nr. 336 (bevat geen inhoud, zie onderliggende artikelen)

Tunnelelement-tunnelelement t.p.v. verkeerskoker

Artikel nr. 337

Functies

Het verzorgen van een water- en gronddichting in de eindfase.

Verhinderen van verschil bewegingen evenwijdig aan het voegvlak.

Toepassingen

Sluitvoeg van afgezonken tunnels, die op staal gefundeerd zijn.

Detailontwerp

In de vloer wordt een betonnen tand gemaakt die in één richting werkt. Dit gaat dan in combinatie met een constructieve tand in het dak die in de andere richting werkt. De sluitvoeg wordt in 2 fasen gemaakt. Eerst wordt het onderste deel gestort. Daarna wordt het kopschot gesloopt en wordt het bovenste deel gestort.

  1. de stortnaad en de voeg zijn rubbermetalen voegstroken opgenomen. De maat van 1200 mm is enigszins afhankelijk van de situatie.

De breedte van het oplegvlak bepalen d.m.v. berekening.

  1. afstand van de ankers en de diameter volgt uit berekening.

Als de wiggen gesloopt worden dan alveolit op het kopvlak toepassen om uitzetten van het tunnelelement toe te staan. De dikte dient hiervan te worden berekend. Anders het voegvlak glad afwerken en bestrijken met bitumen (horizontale en verticale vlakken).

Motivering

Als de wiggen niet gesloopt worden maar alleen gefixeerd, dan geen Alveolit toepassen op de kopvlakken. De wiggen staan dan nl. geen uitzetting toe.

Figuur 337.1 - Afwerking sluitvoeg vloer

 

Bijbehorende details

Detail 4 Voegovergang t.p.v. asfalt

Detail 9 Stalen aanslag in de vloer

 

 

 

Tunnelelement-landhoofd t.p.v. verkeerskoker

Artikel nr. 338

Functies

Het verzorgen van een water- en gronddichting in de eindfase;

Verhinderen van verschilbewegingen evenwijdig aan het voegvlak.

Toepassingen

Sluitvoeg van afgezonken tunnels, die op staal gefundeerd zijn.

Detailontwerp

De sluitvoeg wordt met een betonnen tand gemaakt die in één richting werkt, zodat het tunnelelement op het landhoofd ligt.

De sluitvoeg wordt in 2 fasen gemaakt. Eerst wordt het onderste deel gestort. Daarna wordt het kopschot gesloopt en vervolgens het bovenste deel gestort.

  1. de stortnaad en de voeg zijn een rubbermetalen voegstroken opgenomen. De maat van 1200 mm is enigszins afhankelijk van de situatie.

De breedte van het oplegvlak bepalen d.m.v. berekening.

  1. afstand van de ankers en de diameter volgt uit berekening.

Als de wiggen gesloopt worden dan alveolit op het kopvlak toepassen om uitzetten van het tunnelelement toe te staan. De dikte dient hiervan te worden berekend. Anders het voegvlak glad afwerken en bestrijken met bitumen (horizontale en verticale vlakken).

Motivering

In de meeste gevallen volstaat een tand die in één richting werkt omdat het landhoofd niet (of nauwelijks) aan zetting onderhevig is.

Mocht er een tand nodig zijn die in twee richtingen werkt, dan wordt verwezen naar het detail ‘Tunnelelement – tunnelelement t.p.v. verkeerskoker‘. Of een enkelzijdig werkende tand toepassen in combinatie met een tand in het dak.

Als de wiggen niet gesloopt worden maar alleen gefixeerd, dan geen Alveolit toepassen op de kopvlakken. De wiggen staan dan nl. geen uitzetting toe.

Figuur 338.1 - Detailontwerp afwerking sluitvoeg vloer

 

Bijbehorende details

Detail 4 Voegovergang t.p.v. asfalt

Detail 9 Stalen aanslag in de vloer

 

 

 

 

Tunnelelement-tunnelelment t.p.v. middenkanaal

Artikel nr. 339

Functies

Het verzorgen van een water- en gronddichting in de eindfase;

Verhinderen van verschilbewegingen evenwijdig aan het voegvlak.

Toepassingen

Sluitvoeg van afgezonken tunnels, die op staal gefundeerd zijn.

Detailontwerp

  1. De stortnaad en de voeg zijn een rubbermetalen voegstroken opgenomen. De maat van 1200 mm is enigszins afhankelijk van de situatie.
  2. Afstand van de ankers en de diameter volgen uit berekening. De breedte van het oplegvlak bepalen d.m.v. berekening.

Als de wiggen gesloopt worden dan alveolit op het kopvlak toepassen om uitzetten van het tunnelelement toe te staan. De dikte dient hiervan te worden berekend. Anders het voegvlak glad afwerken en bestrijken met bitumen (horizontale en verticale vlakken).

Motivering

Als de wiggen niet gesloopt worden maar alleen gefixeerd, dan geen Alveolit toepassen op de kopvlakken. De wiggen staan dan nl. geen uitzetting toe.

Figuur 339.1 - Detailontwerp afwerking sluitvoeg vloer

 

Bijbehorende details

Geen

 

 

 

Tunnelelement-landhoofd t.p.v. middenkanaal

Artikel nr. 340

Functies

Het verzorgen van een water- en gronddichting in de eindfase;

Verhinderen van verschilbewegingen evenwijdig aan het voegvlak.

Toepassingen

Sluitvoeg van afgezonken tunnels, die op staal gefundeerd zijn.

Detailontwerp

  1. In de stortnaad en de voeg zijn rubbermetalen voegstroken opgenomen. De maat van 1200 mm is enigszins afhankelijk van de situatie.
  2. Afstand van de ankers en de diameter volgt uit berekening. De breedte van het oplegvlak bepalen d.m.v. berekening.

Als de wiggen gesloopt worden, dan alveolit op het kopvlak toepassen om uitzetten van het tunnelelement toe te staan. De dikte dient hiervan te worden berekend. Anders het voegvlak glad afwerken en bestrijken met bitumen (horizontale en verticale vlakken).

Motivering

Let er op dat t.p.v. het landhoofd voldoende ruimte is onder het Dejo-rooster voor de brandblusleiding en de afvoerleiding van de middenkelder. Is deze ruimte kleiner dan ca. 400 mm, dan moet de vloer van het middenkanaal worden verlaagd. Het detail ziet er dan uit als ‘Tunnelelement – tunnelelment t.p.v. middenkanaal’. Nadeel hiervan is dat er geen doorgaande vloer kan worden gemaakt.

Als de wiggen niet gesloopt worden maar alleen gefixeerd, dan geen Alveolit toepassen op de kopvlakken. De wiggen staan dan nl. geen uitzetting toe.

Figuur 340.1 - Detailontwerp afwerking sluitvoeg vloer

 

Bijbehorende details

Geen

 

 

Sluitvoeg wand

Artikel nr. 341 (bevat geen inhoud, zie onderliggende artikelen)

Sluitvoeg t.p.v. middenwand

Artikel nr. 342

Functie

Het verzorgen van een doorlopende, vlakke, gasdichte wand.

Toepassingen

Sluitvoeg van afgezonken tunnels, die op staal gefundeerd zijn.

Detailontwerp

Voor het verlengen van de wapening worden ankers toegepast.

Een voegprofiel wordt gebruikt als voegafdichting voor zowel de tunnel- als de middenkanaalzijde.

Het kopschot loopt voor de middenwand langs. De breedte van de sluitvoeg is 1800 mm.

Eventuele wigconstructies dienen eerst gesloopt te worden. Het voegvlak aanhelen met epoxy.

Als de wiggen gesloopt worden, dan alveolit op het kopvlak toepassen om uitzetten van het tunnelelement toe te staan. De dikte dient hiervan te worden berekend. Anders het voegvlak glad afwerken en bestrijken met bitumen (horizontale en verticale vlakken).

Motivering

Gezien de grote lengte van de sluitvoeg moet de te maken middenwand het dak ondersteunen.

Consequentie van een doorlopend kopschot (voor de middenwand langs) is dat er een sprong in de voeglijn zit. In het middenkanaal valt dit echter niet op, omdat deze overgang onder het stalen rooster zit. In de verkeerskoker valt de sprong niet op door de brede Thorma Joint en de geleidebarrier.

Als de wiggen niet gesloopt worden maar alleen gefixeerd, dan geen Alveolit toepassen op de kopvlakken. De wiggen staan dan nl. geen uitzetting toe.

Figuur 342.1 - Detailontwerp afwerking sluitvoeg middenwand

 

Bijbehorende details

Detail 5 Voegafwerking wand zonder tegels

Detail 6 Voegafwerking wand met tegels (wordt vrijwel niet meer toegepast)

 

 

 

 

Tunnelelement-tunnelelement t.p.v. buitenwand

Artikel nr. 343

Functies

Het verzorgen van een water- en gronddichting in de eindfase.

Verhinderen van verschilbewegingen evenwijdig aan het voegvlak.

Toepassingen

Sluitvoeg van afgezonken tunnels die op staal gefundeerd zijn.

Detailontwerp

Door de wanden van een verdikking te voorzien kan de volledige betondoorsnede worden doorgezet en blijven de wiggen daar buiten. De wiggen behoeven niet gesloopt te worden, maar dienen wel gefixeerd te worden.

  1. In de stortnaad en de dilatatievoeg zijn rubbermetalen voegstroken opgenomen.
  2. Afstand van de ankers en de diameter volgt uit berekening. De breedte van het oplegvlak bepalen d.m.v. berekening.

De wigconstructie kan eventueel in de tussenwanden worden toegepast wanneer het een tunnel betreft met meerdere kokers en tussenwanden.

Deze wiggen dienen dan na het maken van de vloer wel gesloopt te worden.

Als de wiggen gesloopt worden dan alveolit op het kopvlak toepassen om uitzetten van het tunnelelement toe te staan. De dikte dient hiervan te worden berekend. Anders het voegvlak glad afwerken en bestrijken met bitumen (horizontale en verticale vlakken).

Motivering

Als de wiggen niet gesloopt worden maar alleen gefixeerd, dan geen Alveolit toepassen op de kopvlakken. De wiggen staan dan nl. geen uitzetting toe.

Figuur 343.1 - Detailontwerp afwerking sluitvoeg buitenwand

 

Bijbehorende details

Detail 5 Voegafwerking wand zonder tegels

Detail 6 Voegafwerking wand met tegels (wordt vrijwel niet meer toegepast)

 

 

 

 

 

Tunnelelement-landhoofd t.p.v. buitenwand

Artikel nr. 344

Functies

Het verzorgen van een water- en gronddichting in de eindfase.

Verhinderen van verschilbewegingen evenwijdig aan het voegvlak.

Toepassingen

Sluitvoeg van afgezonken tunnels, die op staal gefundeerd zijn.

Detailontwerp

Door de wanden van een verdikking te voorzien kan de volledige betondoorsnede worden doorgezet en zitten de wiggen daar buiten. De wiggen behoeven niet gesloopt te worden, maar dienen wel gefixeerd te worden.

  1. In de stortnaad en de dilatatievoeg zijn rubbermetalen voegstroken opgenomen.
  2. Afstand van de ankers en de diameter volgt uit berekening. De breedte van het oplegvlak bepalen d.m.v. berekening.

Wigconstructie kan eventueel in de tussenwanden worden toegepast wanneer het een tunnel betreft met meerdere kokers en tussenwanden.

Deze wiggen dienen dan na het maken van de vloer wel gesloopt te worden.

Motivering

Als de wiggen niet gesloopt worden maar alleen gefixeerd, dan geen Alveolit toepassen op de kopvlakken. De wiggen staan dan nl. geen uitzetting toe.

Figuur 344.1 - Detailontwerp afwerking sluitvoeg buitenwand

 

Bijbehorende details

Detail 5 Voegafwerking wand zonder tegels

Detail 6 Voegafwerking wand met tegels (wordt vrijwel niet meer toegepast)

 

 

Sluitvoeg dak

Artikel nr. 345 (bevat geen inhoud, zie onderliggende artikelen)

Tunnelelement-tunnelelement t.p.v. verkeerskoker

Artikel nr. 346

Functies

Het verzorgen van een water- en gronddichting in de eindfase;

Verhinderen van verschilbewegingen evenwijdig aan het voegvlak.

Toepassingen

Sluitvoeg van afgezonken tunnels, die op staal gefundeerd zijn.

Detailontwerp

Het dak wordt voorzien van een tand. Hierbij wordt een verdikking in het dak gemaakt die nodig is voor het storten van de sluitvoeg en de rubbermetalen voegstrook enige bescherming biedt.

De breedte van het oplegvlak bepalen d.m.v. berekening.

De rubbermetalen voegstrook zo hoog mogelijk plaatsen i.v.m. spankrachten t.g.v. voorspanning.

De laag zandasfaltbitumen wordt aangebracht om indringing van vuil in de voeg tegen te gaan.

  1. De stortnaaden de dilatatievoeg zijn rubbermetalen voegstroken opgenomen.
  2. Afstand van de ankers en de diameter volgt uit berekening.

Motivering

De sluitvoeg tussen 2 tunnelelementen kan i.v.m. scheepvaart (meestal) niet m.b.v. een stortkoker gemaakt worden. Daarom moet de beton van binnenuit worden gestort (verdichtingsvrije beton) en dient er een verdikking op het dak te worden gemaakt.

Als de wiggen niet gesloopt worden maar alleen gefixeerd, dan geen Alveolit toepassen op de kopvlakken. De wiggen staan dan nl. geen uitzetting toe.

Figuur 346.1 - Detailontwerp afwerking sluitvoeg dak

 

Bijbehorende details

Detail 8 Afwerking sluitvoeg dak

Detail 10 In te storten aanslag in het dak

 

 

 

 

Tunnelelement-landhoofd t.p.v. verkeerskoker

Artikel nr. 347

Functies

Het verzorgen van een water- en gronddichting in de eindfase.

Toestaan van bewegingen loodrecht op het voegvlak.

Verhinderen van verschilbewegingen evenwijdig aan het voegvlak (geldt alleen bij tandconstructie).

Toepassingen

Sluitvoeg van afgezonken tunnels, die op staal gefundeerd zijn.

Detailontwerp

In principe hoeft in het dak geen (constructieve) tand gemaakt te worden en kan er een “plat” dak gemaakt worden.

Kan i.v.m. scheepvaart niet met een stortkoker worden gewerkt, dan een verdikking met een (niet constructieve) tand toepassen. In ieder geval de volledige betondoorsnede doorzetten.

De rubbermetalen voegstrook zo hoog mogelijk plaatsen i.v.m. spankrachten t.g.v. voorspanning.

De laag zandasfaltbitumen wordt aangebracht om indringing van vuil in de voeg tegen te gaan.

  1. In de stortnaad en dilatatievoeg zijn rubbermetalen voegstroken opgenomen.
  2. Afstand en de diameter van de ankers volgt uit berekening.

Motivering

De sluitvoeg tussen tunnelelement en landhoofd kan (meestal) m.b.v. een stortkoker worden gemaakt. Er hoeft daarom geen verdikking op het dak te worden aangebracht. Ter bescherming van de rubbermetalen voegstrook bij het transporteren van de tunnelelementen, kan worden overwogen een verdikking met een (niet constructieve) tand te maken.

Als de wiggen niet gesloopt worden maar alleen gefixeerd, dan geen Alveolit toepassen op de kopvlakken. De wiggen staan dan nl. geen uitzetting toe.

Figuur 347.1 - Detailontwerp afwerking sluitvoeg dak

 

Bijbehorende details

Detail 8 Afwerking sluitvoeg dak

Detail 10 In te storten aanslag in het dak

 

 

 

 

Tunnelelement-tunnelelement t.p.v. middenkanaal

Artikel nr. 348

Functies

Het verzorgen van een water- en gronddichting in de eindfase.

Toestaan van bewegingen loodrecht op het voegvlak.

Verhinderen van verschilbewegingen evenwijdig aan het voegvlak (geldt alleen bij tandconstructie).

Toepassingen

Sluitvoeg van afgezonken tunnels, die op staal gefundeerd zijn.

Detailontwerp

De sluitvoeg kan op 2 manieren worden gemaakt.

Als de vloer t.p.v de verkeerskokers is voorzien van een tweezijdig werkende tand, dan hoeft in het dak geen tand gemaakt te worden. Wel wordt een verdikking met een (niet constructieve) tand in het dak gemaakt t.b.v. het storten van de sluitvoeg. Deze verdikking werkt tevens ter bescherming van de rubbermetalen voegstrook.

Is de vloer t.p.v. de verkeerskokers voorzien van een éénzijdig werkende tand, dan moet in het dak een tand worden gemaakt die in de andere richting werkt. Ook dan wordt een verdikking in het dak gemaakt. De breedte van het oplegvlak bepalen.

De laag zandasfaltbitumen wordt aangebracht om indringing van vuil in de voeg tegen te gaan.

Voor zowel de stortnaad als de dilatatievoeg is een rubbermetalen voegstrook opgenomen. Afstand en de diameter van de ankers volgt uit berekening.

Motivering

Voor achtergronden en motivering zie AGTO [52].

De sluitvoeg tussen 2 tunnelelementen kan i.v.m. scheepvaart (meestal) niet m.b.v. een stortkoker gemaakt worden. Daarom moet de beton van binnenuit worden gestort en dient er een verdikking op het dak te worden gemaakt.

Als de wiggen niet gesloopt worden maar alleen gefixeerd, dan geen Alveolit toepassen op de kopvlakken. De wiggen staan dan nl. geen uitzetting toe.

Figuur 348.1 - Detailontwerp afwerking sluitvoeg dak

 

Bijbehorende details

Detail 8 Afwerking sluitvoeg dak

Detail 10 In te storten aanslag in het dak

 

 

 

 

Tunnelelement-landhoofd t.p.v. middenkanaal

Artikel nr. 349

Functies

Het verzorgen van een water- en gronddichting in de eindfase.

Toestaan van bewegingen loodrecht op het voegvlak.

Toepassingen

Sluitvoeg van afgezonken tunnels, die op staal gefundeerd zijn.

Detailontwerp

In principe hoeft in het dak geen (constructieve) tand gemaakt te worden en kan er een “plat” dak gemaakt worden.

Kan i.v.m. scheepvaart niet met een stortkoker worden gewerkt, dan een verdikking met een (niet constructieve) tand toepassen.

In ieder geval de volledige betondoorsnede doorzetten.

De laag zandasfaltbitumen wordt aangebracht om indringing van vuil in de voeg tegen te gaan.

Voor zowel de stortnaad als de dilatatievoeg is een rubbermetalen voegstrook opgenomen.

  1. Afstand van de ankers en de diameter volgt uit berekening.

Motivering

De sluitvoeg tussen tunnelelement en landhoofd kan meestal m.b.v. een stortkoker worden gemaakt. Er hoeft daarom geen verdikking op het dak te worden aangebracht. Ter bescherming van de rubbermetalen voegstrook bij het transporteren van de tunnelelementen kan worden overwogen een verdikking met een (niet constructieve) tand te maken.

Als de wiggen niet gesloopt worden maar alleen gefixeerd, dan geen Alveolit toepassen op de kopvlakken. De wiggen staan dan nl. geen uitzetting toe.

Figuur 349.1 - Detailontwerp afwerking sluitvoeg dak

 

Bijbehorende details

Detail 8 Afwerking sluitvoeg dak

Detail 10 In te storten aanslag in het dak

 

 

 

Achtergronden sluitvoegen

Artikel nr. 350

De einden van de tunnelelementen ter plaatse van de sluitvoeg worden niet voorzien van een stalen omranding. In beide voegvlakken worden rubbermetalen voegstroken ingestort. Aan één zijde wordt een dilatatievoeg gemaakt. Aan de andere zijde wordt het beton momentvast aan het aangrenzende tunnelelement gestort en is de voegstrook bedoeld als veiligheid voor het geval dat het verse beton loskrimpt van het oude beton.

 

In het verleden werd na het droogpompen van de sluitvoeg een dubbel-Omegaprofiel aangebracht als een tweede waterdichting tijdens de bouwfase. Om te voorkomen dat slepende ankers aan het sluitvoegschot in het dak konden blijven haken, werd in de eindfase het dakschot verwijderd. Daardoor vormde het dubbele-Omegaprofiel ter plaatse, de enige waterdichting van de tunnel. De sluitvoeg werd voorzien van een U-vormige stalen omranding waartussen de wiggen werden geplaatst en waartegen de sluitvoegschotten werden aangeklemd. Aan de binnenflens van het U-profiel werden dopmoeren gelast voor de bevestiging van het Dubbele-Omega-profiel.

 

Figuur 350.1 - Sluitvoeg met dubbele omega profiel

Door het toelaten van vervoer van gevaarlijke stoffen door tunnels en de kwetsbaarheid van het Dubbele-Omega-profiel, werd deze bij de Noordtunnel vervangen door een enkelvoudig Omega-profiel. Daardoor moest de tunneldoorsnede in de sluitvoeg in twee fasen worden gestort om de bevestiging van de Omega te kunnen maken. De kopschotten mochten niet worden gesloopt voordat het Omega-profiel, dat tijdens de bouwfase een dubbele dichting moest garanderen, was geplaatst. Behalve dat het veel tijd vergde, kon de waterdichtheid van de Omega niet worden gecontroleerd omdat de sluitvoegschotten niet waren berekend op waterdruk van binnenuit. Voor de Wijkertunnel is daarom gekozen voor de huidige oplossing, van het type dilatatievoeg.

 

Opgemerkt wordt dat het beleid is dat altijd een dubbele waterdichting aanwezig dient te zijn. Dit betekent dat de kopschotten pas gesloopt mogen worden als zowel de Gina als de Omega aanwezig is

 

Om aan de eis van een dubbele dichting tijdens de bouwfase te voldoen, werden de kopschotten pas gesloopt nadat het eerste deel van de vloer, de buitenwanden en het dak waren gestort. Het tweede deel van de vloer, niet in het middenkanaal, kan pas worden gestort nadat de kopschotten zijn verwijderd.

 

Figuur 350.2 - Sluitvoeg vloer, dubbele omega profiel

 

De vloer van de sluitvoeg tussen twee tunnelelementen wordt, evenals bij de zinkvoegen, voorzien van een tand- of deuvelconstructie om zettingsverschillen tussen de elementen te voorkomen en dwarskracht in twee richtingen over te kunnen brengen. Indien het dak van de sluitvoeg van een tand- of deuvelconstructie is voorzien of de sluitvoeg ter plaatse van het landhoofd is gesitueerd, dan is het niet nodig om een tand- of deuvelconstructie, die in twee richtingen dwarskracht moet overbrengen, aan te brengen. De vloer van het tunnelelement wordt eenvoudig op het landhoofd opgelegd.

 

In de voegvlakken van de sluitvoeg worden busankers ingestort ten behoeve van de wapening van de later te storten tunneldoorsnede. Het aantal, plaats en diameter dient zo vroeg mogelijk, in de ontwerpfase, door de constructeur globaal te worden bepaald om aan de uitvoerbaarheid te kunnen toetsen. Voor wat betreft de busankers, zie hoofdstuk zinkvoegen.

In tegenstelling tot de wand in de zinkvoeg wordt de tunneldoorsnede in de sluitvoeg even zwaar belast als de normale tunneldoorsnede. De buitenwanden moeten daardoor dezelfde dikte hebben als die van de normale tunneldoorsnede. Om dat te kunnen realiseren moeten de buitenwanden en het dak worden voorzien van een kraag.

 

De kraag is tevens nodig om de wiggen te kunnen plaatsen en de stalen sluitvoegschotten tegen te plaatsen. De wiggen worden ook wel tegen de middenwanden geplaatst. Het nadeel hiervan is dat de wiggen later gesloopt moeten worden om, in verband met de betegeling, een vlakke wand ter plaatse van de voeg te kunnen maken.

Zoals de wanden van de sluitvoeg wordt het dak in de sluitvoeg even zwaar belast als het dak van de normale tunneldoorsnede. Het dak moet daardoor dezelfde dikte hebben als dat van de normale tunneldoorsnede. Om dat te kunnen realiseren moet het dak worden voorzien van een kraag. In het dak kan een, in één richting werkende, tand- of deuvelconstructie worden gemaakt.

 

Door de beperkte ruimte in het dak moet het beton vanuit de tunnelbuizen, via door de bekisting gevoerde stortpijpen, worden gepompt. De kraag in het dak is nodig om de stortpijpen voldoende hoog te kunnen doorvoeren en waardoor de zekerheid wordt verkregen dat de volledige dikte van het dak aanwezig is.

Het is begrijpelijk dat het erg moeilijk is om het dak in die smalle ruimte van de sluitvoeg te storten. Juist daarom moet veel aandacht worden besteed om te voorkomen dat er geen grindnesten onder de rubbermetalen voegstroken ontstaan die later moeilijk te injecteren zijn. Een betere oplossing is om, zoals bij de Maastunnel, op het dak een verhoogd dakschot aan te brengen waar mensen in kunnen staan en waardoor het beton op normale wijze kan worden gestort en verdicht. Dit kan echter alleen als de sluitvoeg buiten de vaargeul is gesitueerd. Een bijkomende voordeel van deze oplossing is, dat het dak niet van een kraag hoeft te worden voorzien.

 

Zowel de sluitvoeg van de 2de Benelux- als de Calandtunnel zijn zonder verhoogd dakschot gemaakt. Hier is gebruik gemaakt van zelfverdichtend beton wat door stortopeningen in de kist werd gepompt. Een goede controle is nodig om er voor te zorgen dat het beton overal komt. (bv camera’s)

 

Door het hoge cementgehalte van zelfverdichtend beton kan koeling van het beton noodzakelijk zijn.

 

Door de aanwezigheid van de wiggen t.p.v. de wanden wordt de voeg in de sluitvoeg niet voorzien van een blijvend elastisch materiaal. Het voegvlak wordt bestreken met bitumen. Verder worden de voegen in de vloer en wanden afgewerkt met rubber voegprofielen en het dak en het bovenste meter van de wanden in de verkeerskoker voorzien van een hittewerende bekleding.

 

Voor de aanslag van de kopschotstijlen worden, zoals in de zinkvoegen, gewapend betonnen opstorten in de vloer gemaakt en stalen aanslagen in het dak ingestort.

 

 

Speciale sluitvoeg

Artikel nr. 351 (bevat geen inhoud, zie onderliggende artikelen)

Voeg met pneumatisch profiel

Artikel nr. 352

Functies

Het verzorgen van een water- en gronddichting in de eindfase.

Toestaan van bewegingen loodrecht op het voegvlak.

Toestaan van verschilbewegingen evenwijdig aan het voegvlak.

Toepassingen

Voeg tussen tunnelelement en landhoofd bij afgezonken tunnels.

Detailontwerp

Het element en het landhoofd worden voorzien van een stalen aanslag. Krachtsoverdracht vindt plaats d.m.v. glij-opleggingen.

Een gedeelte van het element en van het landhoofd worden later gestort i.v.m. het invaren van het element.

Eerste afdichting: pneumatisch profiel aan landhoofd.

Tweede afdichting: Omega profiel.

Omega profiel beschermen tegen mechanische invloeden en brand.

 

Motivering

Een dergelijke oplossing kan worden toegepast wanneer een tunnelelement in de toerit gebouwd wordt.

Het voordeel is dat er geen dure sluitvoegconstructie gemaakt hoeft te worden. Dit betekent overigens wel dat er achteraf geen correctie mogelijk is op de maatvoering. Er moet dus van te voren rekening worden gehouden met toleranties.

Figuur 352.1 - Detailontwerp voegafwerking vloer t.p.v. landhoofd

 

Bijbehorende details

Detail 2 Waterafdichting

 

 

 

Voeg met wigconstructie (vloer)

Artikel nr. 353

Functies

Het verzorgen van een water- en gronddichting in de eindfase.

Toestaan van bewegingen loodrecht op het voegvlak.

Verhinderen van verschilbewegingen evenwijdig aan het voegvlak.

Toepassingen

Voeg tussen tunnelelement en landhoofd bij afgezonken tunnels.

Detailontwerp

Het (laatste) element wordt uit de toerit verhaald en op zijn plaats afgezonken. Dan worden de damwanden op het dak geplaatst en de lange sluitvoegplanken langs de wanden geheid (zie 5.2.8.3). Daarna wordt het element door een wigconstructie van onderwaterbeton gefixeerd tegen de onderwaterbetonvloer van de naastliggende bouwkuip. Deze bouwkuip kan nu worden drooggezet en de naastliggende moten kunnen worden gemaakt. De sluitvoeg wordt verder in den droge afgemaakt.

Bij het funderen op staal van zowel tunnelelement als landhoofd wordt een dubbele tandconstructie toegepast.

De dikte van het onderwaterbeton(wigconstructie) berekenen (moet de waterdruk kunnen keren).

Motivering

Een dergelijke oplossing kan worden toegepast wanneer een tunnelelement in de toerit gebouwd wordt.

Het voordeel is dat de sluitvoegconstructie in den droge gemaakt kan worden.

Figuur 353.1 - Detailontwerp afwerking vloer

 

Bijbehorende details

Geen

 

 

 

Voeg met wigconstructie (wand en dak)

Artikel nr. 354

Functies

Het verzorgen van een water- en gronddichting in de eindfase.

Toestaan van bewegingen loodrecht op het voegvlak.

Verhinderen van verschilbewegingen evenwijdig aan het voegvlak.

Toepassingen

Voeg tussen tunnelelement en landhoofd bij afgezonken tunnels.

Detailontwerp

Het (laatste) element wordt uit de toerit verhaald en op zijn plaats afgezonken. Dan worden de damwanden op het dak geplaatst en de lange sluitvoegplanken langs de wanden geheid. Om beschadiging van het beton te voorkomen worden de damwanden op het dak op een steigerpijp gezet. Gietasfalt verzekert een waterdichte afsluiting. De aansluiting van de wand met de damwand wordt gemaakt via een aangelast damwandslot. Daarna wordt het element door een wigconstructie van onderwaterbeton gefixeerd tegen de onderwaterbetonvloer van de naastliggende bouwkuip. Deze bouwkuip kan nu worden drooggezet en de naastliggende moten kunnen worden gemaakt. De sluitvoeg wordt verder in den droge afgemaakt.

Motivering

Een dergelijke oplossing kan worden toegepast wanneer een tunnelelement in de toerit gebouwd wordt.

Het voordeel is dat de sluitvoegconstructie in den droge gemaakt kan worden.

Figuur 354.1

 

Bijbehorende details

Geen

 

 

 

Achtergronden speciale sluitvoegconstructies

Artikel nr. 355

Wanneer een tunnelelement in een tijdelijke bouwdok in het tracé of de toerit wordt gemaakt, kan voor de sluitvoeg gebruik worden gemaakt van een pneumatisch profiel (Margriettunnel en aquaduct Alphen) of van een onderwaterbeton wig met een damwandkuip (Zeeburgertunnel) rondom het tunnelelement

 

Voeg met pneumatisch profiel

Het bouwdok of de toerit wordt voorzien van een U-vormige kraag. De kraag wordt voorzien van een stalen omranding waaraan het pneumatisch profiel wordt bevestigd. Aan het tunnelelement wordt een gecontramalde stalen omranding ingestort waartegen het pneumatisch profiel later, in opgeblazen toestand, aandrukt.

 

Na het afzinken wordt het pneumatisch profiel opgeblazen waarna het bouwdok of de toerit wordt drooggezet. Daarbij dient rekening te worden gehouden met de horizontale stabiliteit van het tunnelelement en de krachten die op de landhoofden aangrijpen. Na het leegpompen van het bouwdok of de toerit wordt een tweede dichting, het Omega-profiel, aangebracht.

 

In de montage (niet opgeblazen) toestand is het pneumatisch profiel inclusief de bevestiging circa 60 mm hoog. In opgeblazen toestand is het profiel 150 à 170 mm hoog. De ruimte tussen pneumatisch profiel en het tunnelelement is per zijde dus niet meer dan 90 à 110 mm. Specifieke aandacht moet worden besteed aan de geleiding van het tunnelelement om beschadiging van het pneumatisch profiel te voorkomen.

 

Het is te overwegen om beschadiging te voorkomen het profiel in een 60 mm diepe sponning in te bevestigen. Het is ook mogelijk om de zijkanten van het tunnelelement van een kraag te voorzien zodat de afstand tussen pneumatisch profiel en tunnelelement groter wordt. Een combinatie van beide maatregelen zou het mooiste zijn.

 

Wig met damwandkuip

Aan weerszijden van het tunnelelement worden damwandsloten bevestigd. De bovenzijde van het dak van het tunnelelement wordt voorzien van een sponning of opstort waartussen damwanden worden geplaatst voor de waterdichting van het bouwdok of toerit. De sponning wordt met gietasfalt gevuld om onderloopsheid te voorkomen.

 

De damwanden moeten zodanig worden geplaatst dat de randsloten precies aansluiten op de sloten, welke aan weerszijden van het tunnelelement zijn bevestigd, waarna de sloten aan elkaar worden gelast. Aan deze aan elkaar vastgelaste sloten worden damwanden geslagen en aangesloten aan het bouwdok of de toerit.

 

Op de bodem van de gevormde damwandkuip wordt een werkvloer aangebracht om het onderwaterbeton te kunnen storten. Na het afzinken van het tunnelelement wordt op de werkvloer het onderwaterbeton aangebracht. Het doel van deze wig is om te voorkomen dat het tunnelelement verplaatst wanneer het bouwdok of afrit weer wordt leeggepompt. Het onderwaterbeton naast het tunnelelement moet niet alleen de waterdichting van de bodem vormen, maar moet bovendien waterdicht aansluiten op het tunnelelement. Dit kan worden bereikt door het onderwaterbeton aan weerszijden van de tunnel tenminste even hoog als de wig te storten.

 

Het voegvlak van het tunnelelement wordt voorzien van een rubbermetalen voegstrook om later een normale dilatatievoeg te kunnen maken.

 

 

Bijbehorende details

Artikel nr. 356 (bevat geen inhoud, zie onderliggende artikelen)

Detail 1 Stalen omranding zinkvoeg

Artikel nr. 357

Functie

Het verzorgen van een zuiver vlakke en maatvaste ondergrond voor de bevestiging en aansluiting van de afdichtingsprofielen (eerste en tweede afdichtingsprofielen).

Het voorzien van een bevestiging voor deze afdichtingsprofielen.

Figuur 357.1

 

Detailontwerp

Gekozen is een standaard IPE 500 profiel. Tussen de flenzen van het IPE profiel wordt een staalplaat, dik 15 mm gelast voor bevestiging c.q. aanslag van het eerste afdichtingsprofiel.

Bevestiging rubber profiel t.b.v. eerste afdichting met een stalen U-profiel en een staalplaat. Afmetingen afhankelijk van het type rubber profiel.

 

Bevestiging rubber profiel t.b.v. tweede afdichting met een staalplaat met een stalen staaf voor de krachtverdeling. Afmetingen afhankelijk van het type rubber profiel.

Op de flenzen van het IPE profiel twee injectiesponzen, over de volledige omtrek opnemen, om te kunnen injecteren voor een waterdichte aansluiting. Het buitenste sponsrubber in de vloer injecteren voordat stalen plaat in IPE-profiel wordt gelast.

In dak en wanden erna.

 

De ruimte tussen het IPE profiel en de staalplaat moet worden geïnjecteerd met krimparme, cementgebonden mortel.

IPE-profielen voorzien van verstijvingsschotten, dik 8 mm aan de in te storten zijde t.b.v. de vormvastheid en de achterwaartse verankering in de beton. Hiertoe haarspelden door de verstijvingsschotten voeren.

 

De berekening en dimensionering voor de klemconstructie van het eerste afdichtingsprofiel zal door de aannemer gemaakt worden.

 

Alle draadeinden/moeren moeten berekend worden.

Conservering

Conservering volgens RAW.

 

Detail 2 Waterafdichting

Artikel nr. 358

Functie

Het eerste afdichtingsprofiel verzorgt de eerste waterafdichting direct na het afzinken.

Het tweede afdichtingsprofiel (Omega-profiel) verzorgt na het maken van de zinkvoeg de tweede waterafdichting.

Pneumatisch profiel: het verzorgen van de eerste waterafdichting na het afzinken.

Figuur 358.1

 

Detailontwerp

Eerste waterafdichting:

In de doorsneden is het Gina-profiel van Vredestein getekend. Dit profiel wordt niet meer geleverd. Daarom is er nu ook een voorbeeld gegeven van een eerste afdichtingsprofiel van Bakker rubber (Dit profiel heet niet Gina).

De indrukking van het profiel is afhankelijk van de samenstelling en vorm van het rubber, omtrek en waterdruk op het kopschot. De berekening van het profiel zal door de aannemer geschieden.

 

Tweede waterafdichting:

In de doorsneden is het Omega-profiel van Vredestein getekend. Dit profiel wordt niet meer geleverd. Daarom is er nu ook een voorbeeld gegeven van een tweede afdichtingsprofiel van Bakker rubber (ook Omega-profiel genaamd).

In combinatie met de IPE is een goede klemconstructie te verwezenlijken.

 

Pneumatisch profiel:

Gekozen is voor een profiel dat relatief grote vervormingen / maatafwijkingen kan ondergaan. In verband met de beschikbare ruimte tijdens het invaren van het element is het profiel in ontspannen toestand bovendien slechts 50 mm dik. Verder is het profiel bestand tegen grote waterdrukken.

Conservering

Niet van toepassing.

 

Detail 3 Krachtsoverdracht

Artikel nr. 359

Functies

Het later aanstorten van de zinkvoeg, waartegen de waterdruk komt te staan, dienen ankers ingestort te worden om het moment op te kunnen nemen.

De deuvels zorgen er voor dat er geen verschil van zetting kan optreden tussen de elementen. Ze dienen de dwarskracht op te nemen.

Figuur 359.1

 

Detailontwerp

Stalen deuvels en bussen:

Toe te passen is een stalen deuvel, diameter 229/216 mm, lang 600 mm, die in een stalen bus schuift, in het secundaire tunneleind. De stalen deuvels vullen met beton. De h.o.h. afstand volgt uit berekening.

 

In te storten ankers:

Minimaal toepassen ankers M20.

Aan de hand van de berekening zal de diameter en de h.o.h. afstand bepaald moeten worden.

Conservering

De conservering volgens RAW.

 

 

 

 

 

Detail 4 Voegovergang t.p.v. asfalt

Artikel nr. 360

Functie

Sponning:

Het creëren van een waterafvoer voor eventueel lekwater in de zink- en sluitvoeg.

 

Thorma Joint:

Het verzorgen van de vlakheid en continuïteit van het rijdek t.p.v. de voegovergang landhoofd/tunnelelement en bij tunnelelementen onderling waarbij de voorspanning niet doorgeslepen is.

Water- en vuilafdichting, overbrugging dilatatie.

Figuur 360.1

 

Detailontwerp

Voor de afwerking van de voegen tussen 2 tunnelelementen en de voegen tussen de landhoofden en de tunnelelementen wordt een Thorma Joint voegovergang toegepast. Dit omdat er in deze voegen de meeste werking verwacht wordt (voornamelijk rotatie).

De sponning dient in verbinding te staan met het middenkanaal d.m.v. een sparing in de middenwand. Het lekwater wordt uiteindelijk via de middenpompenkelder afgevoerd.

De breedte van de voeg is afhankelijk van de lengte van de tunnelelementen.

Conservering

Niet van toepassing.

 

 

 

 

 

 

 

Detail 5 Voegafwerking wand zonder tegels

Artikel nr. 361

Functie

Het verzorgen van een vlakke, gladde en stofdichte wand met voeg.

Figuur 361.1 - Detailontwerp: voegafwerking wand zonder tegels

 

Detailontwerp

  1. De stortnaad en de voeg dient eerst de sparing van het kopschot uitgevuld te worden met een cement gebonden mortel. Dit geldt voor de hele omtrek;
  2. De voeg wordt een voegprofiel in een sponning toegepast.

Indien de voegprofielen niet worden aangebracht door de leverancier, dan dienen er in het bestek voorschriften m.b.t. het aanbrengen te worden opgenomen.

Conservering

Niet van toepassing.

 

 

 

 

Detail 6 Voegafwerking wand met tegels

Artikel nr. 362

Opgemerkt wordt dat gebruik van tegels een achterhaalde oplossing is, die in de huidige tunnels niet niet langer wordt toegepast. Aanvankelijk was het idee dat via weerkaatsing van het licht de aanwezigheid van tegels als wandbekleding een significante bijdrage zouden leveren voor het noodzakelijke lichtniveau op de weg. Later is duidelijk geworden dat dit maar in beperkte mate het geval is en dat dit beperkte effect eenvoudig gecompenseerd kan worden door het lichtsysteem in de tunnel iets te intensiveren.

 

Een nadeel van tegels op tunnelwanden is dat deze met een relatief hoge frequentie periodiek schoon gemaakt dienen te worden. Dit is een significante kostenpost over de levensduur van de tunnel. Verder is de ervaring dat de betrouwbaarheid van de langdurige hechting van de tegels op de betonnen ondergrond een kritisch punt is.

Blijft over het esthetische aspect van belevingswaarde. Hier wordt verschillend over gedacht. Wil men een andere kleur dan het grijze beton, welke op den duur de neiging heeft om zwart te worden, dan kan men dit anders dan met tegels ook realiseren met een robuuste verflaag. Waarbij er in dat geval wel rekening mee gehouden dient te worden dat als de verf op een waterkerende betonnen wand wordt aangebracht, deze voldoende dampdoorlatend moet zijn om blaasvorming te voorkomen.

 

In de overkapping Leidsche Rijn, de 2e Coentunnel is geen specifieke wandafwerking meer toegepast. Bij de renovatie van de 1e Coentunnel zijn de aanwezige tegels vervangen door spuitbeton. Bij de renovatie van de Velsertunnel werd een witte coating aangebracht om redenen van belevingswaarde.

Functie

Het verzorgen van een vlakke, gladde en stofdichte wand met voeg.

Figuur 362.1 - Detailontwerp: afwerking wand met tegels

 

Detailontwerp

De voeg dient de sparing van het kopschot uitgevuld te worden met krimparme cementgebonden mortel.

Vellingkanten zijn bij dit detail niet aanwezig. Indien de voegprofielen niet worden aangebracht door de leverancier dan dienen er in het bestek voorschriften m.b.t. het aanbrengen te worden opgenomen. Omdat het voegprofiel bij inbrengen beschadigd kan raken door de scherpe randen van de tegels, worden de tegels iets teruggehouden en afgewerkt met een kunstharsmortel.

Conservering

Niet van toepassing.

 

 

 

 

Detail 7 Afwerking zinkvoeg dak

Artikel nr. 363

Functie

Het verzorgen van een hittewering t.p.v. de zinkvoeg;

Het waarborgen van een dilatatie in de hittewering;

Bescherming Omega-profiel tegen hitte.

Figuur 363.1 - Detailontwerp afwerking zinkvoeg dak

 

Detailontwerp

De sparing van de voeg wordt gevuld met steenwolplaten. Dit als isolatie voor het tweede afdichtingsprofiel.

De bekisting zorgt voor scheiding met de spuitbeton. De laag spuitbeton is 200 mm. Als hittewering wordt een dubbele Promatect-H plaat toegepast.

De dikte van de platen bedraagt 27 mm. Voor de bevestiging van de platen worden RVS clickers gebruikt, M6, h.o.h. max. 500 mm.

Als dilatatie loopt de onderste plaat ca. 50 mm door.

De sparing t.p.v. de aanslag van de kopschotstijlen kan worden opgevuld met Promatect-platen, maar kan ook worden gevuld met een krimparme cementgebonden mortel.

Conservering

Niet van toepassing.

 

 

 

Detail 8 Afwerking sluitvoeg dak

Artikel nr. 364

Functie

Het verzorgen van een hittewering t.p.v. de sluitvoeg;

Het waarborgen van een dilatatie in de hittewering;

Het beschermen van het rubber metalen voegprofiel profiel tegen hitte.

Figuur 364.1 - Detailontwerp afwerking sluitvoeg dak

 

Detailontwerp

De sparing van de voeg wordt gevuld met beton;

Als hittewering wordt een Promatect-H plaat toegepast, dik 27 mm;

Voor de bevestiging van de platen worden RVS clickers gebruikt, M6, h.o.h. max. 500 mm;

Als dilatatie loopt de onderste plaat ca. 50 mm door.

De sparing t.p.v. de aanslag van de kopschotstijlen kan worden opgevuld met Promatect-platen, maar kan ook worden gevuld met een krimparme cementgebonden mortel.

Conservering

Niet van toepassing.

 

 

 

Detail 9 Stalen aanslag in de vloer

Artikel nr. 365

Functie

Voor de krachtsoverdracht van de stalen kopschotstijlen achter het kopschot dient een stalen aanslag ingestort te worden.

Figuur 365.1 - Detailontwerp stalen aanslag kopschotstijlen

 

Detailontwerp

Voor deze aanslag zijn meerdere oplossingen mogelijk. De aannemer kan deze aandragen. Hier als voorbeeld een stalen kraanrail profiel nr. 2, die na het slopen van het kopschot verwijderd moet worden. Dit om te voorkomen dat er grindnesten en een doorsnijding in het beton komen (onder het profiel). Voordeel van het profiel is dat het een doorgaande vlakke aansluiting geeft voor de kopschotstijlen (minder maatgevoelig).

Aan de kraanrail ankers vastlassen ter keuze van de aannemer (kan minimaal in aantal).

Conservering

De conservering volgens RAW.

 

 

 

 

Detail 10 In te storten aanslag in het dak

Artikel nr. 366

Functie

Voor de krachtsoverdracht van de stalen kopschotstijlen achter het kopschot dient een stalen aanslag ingestort te worden.

Figuur 366.1 - Detailontwerp anker t.b.v. aanslagblok

 

Detailontwerp

Het ontwerp wordt door de aannemer uitgevoerd. Voor deze aanslag zijn meerdere oplossingen mogelijk. De aangegeven oplossing wordt meestal toegepast.

Uit ervaring is gebleken dat deze oplossing zeer doelmatig en goed is, maar wel duur.

Conservering

De conservering volgens RAW.

 

Tandconstructies

Artikel nr. 367

Functie

Beperken van zettingsverschillen tussen tunnelmoten of –elementen door verdeuveling.

Toepassingsgebied

Moot-, zink- en eindvoegen van afgezonken tunnels. 

Detailontwerp

Zie Best preactices tandconstructies.

 

 

Afweging tand- of kraagconstructie

Artikel nr. 368

Ten opzichte van de klassieke kraagconstructie heeft de tandconstructie een aantal voordelen, die ertoe hebben geleid dat laatstgenoemde in Nederland de laatste jaren de kraagconstructie in belangrijke mate heeft verdrongen. Genoemd worden:

 

In tegenstelling tot de kraagconstructie kan de tandconstructie zowel ter plaatse van de mootvoegen als de zinkvoegen en sluitvoeg worden toegepast.

 

 

Bewegingsvrijheid zink- en mootvoegen

Artikel nr. 369

Gebruikelijk is de tandconstructies in zinkvoegen pas vast te zetten als alle aanvulbelastingen aangebracht zijn en de daarmee gepaard gaande verplaatsingen grotendeels zijn opgetreden. Dit voorkomt dat de krachten in de tandconstructies zeer groot worden als gevolg van een éénmalig optredende zware belasting in de bouwfase. In het voorgaande is expliciet alleen sprake van het toelaten van bewegingsvrijheid in de bouwfase voor de zinkvoegen. Dit heeft als reden dat bij de zinkvoegen, door de aanwezigheid van het duo Gina- en Omegaprofiel, een grote capaciteit voor het toelaten van verschilverplaatsingen over de zinkvoeg aanwezig is.

 

Bij de mootvoegen is de capaciteit voor het toelaten van verschilverplaatsingen over de voeg veel geringer. Omdat er geen significante voegwijdte in de mootvoegen aanwezig is kan bij te grote verschilvervormingen in dwarsrichting de rubbermetalen voegstrook afgeknipt worden, waardoor de waterdichtheid verloren kan gaan.

Figuur 369.1 - Anker t.b.v. aanslagblok

Figuur 369.2 - Beschadiging waterkerend profiel als gevolg van verschilverplaatsing bij zeer geringe voegbreedte

 

 

 

Bij de Willemsspoortunnel zit in het ontwerp zo’n vrije beweging van de tandconstructies in de 3 middenwanden. Dit is gerealiseerd door een zogenoemde ‘visbekconstructie’; bij 1 mm voegwijdte is in verticale zin een verschilbeweging van 10 mm mogelijk. Door waarschijnlijk extra uitdrogingskrimp van de tussenwanden t.o.v. de omtrek was meer dan 3 maal zoveel bewegingsvrijheid beschikbaar gekomen als bedoeld (ca. 30 mm). De vraag kwam toen op of de rubbermetalen voegstroken (W9Ui) hier wel tegen bestand waren? Voor de beantwoording van die vraag is een ‘liftproef’ uitgevoerd. Uit die ‘liftproef’ volgde dat bij 37 mm verschilvervorming de voeg lekte bij de heersende waterdrukken. Het advies is om de maximale verschilverplaatsing over een mootvoeg met rubbermetalen voegstrook, zonder significatie voegwijdte (<= 1 mm), te beperken tot ca. 20 mm.

 

Op zich beperkt een vrije optredend verplaatsingsverschil over de mootvoegen van 20 mm de grootte van de uiteindelijk optredende tandkrachten significant. Het kracht-verplaatsingsdiagram is echter op voorhand echter niet goed bekend; is o.a. afhankelijk van de beddingstijfheden van het onderspoel zand en toekomstige zettingsverschillen. Ofwel wat is de grootte van de tandkracht welke zich nog kan ontwikkelen nadat de 20 mm vrije bewegingsruimte ‘verbruikt’ is? Deze ‘restkracht’ is niet nauwkeurig van te voren in de ontwerpfase te bepalen, omdat het door het toekomstige zettingsgedrag van de tunnel bepaald wordt.

 

Gezien deze onzekerheden is het advies om bij mootvoegen geen bewegingsruimte in verticale richting toe te staan; d.w.z. in het bouwdok de tanden in de mootvoegen direct en definitief te fixeren. Bij een afgezonken tunnel die is opgelegd op grindruggen ligt dit mogelijk wat genuanceerder.

 

 

 

 

 

 

Best practices tandconstructies

Artikel nr. 370

 

Figuur 370.1 - Tanden tussen de mootvoegen in de wanden van de HSL tunnel onder de Oude Maas.

Figuur 370.2 - Zijaanzicht tand tussen de zinkvoegen in de buitenwand van de HSL tunnel onder de Oude Maas

Figuur 370.3 - Horizontale doorsnede over de tand tussen de zinkvoegen in de buitenwand van de HSL tunnel onder de Oude Maas

Figuur 370.4 - Wapening in de tand tussen de zinkvoegen in de buitenwand van de HSL tunnel onder de Oude Maas

Figuur 370.5 - Aanzicht en doorsnede tandconstructie buitenwand 2e Coentunnel t.p.v. mootvoeg; ‘vrouwtje’

Figuur 370.6 - Aanzicht en doorsnede tandconstructie buitenwand 2e Coentunnel t.p.v. mootvoeg; ‘mannetje’

Figuur 370.7 - Horizontale stalen verdeuveling bij de zinkvoeg in de vloer van de HSL-tunnels

Figuur 370.8 - Tandconstructie t.p.v. een zinkvoeg (HSL tunnel Oude Maas)

Figuur 370.9 - Wapening tandconstructie t.p.v. een mootvoeg bij de 2e Coentunnel

Figuur 370.10 - Doorsnede tandconstructie t.p.v. de buitenwand bij de 2e Coentunnel

Figuur 370.11 - Aanzicht tandconstructie binnenwand bij mootvoeg 2e Coentunnel

Figuur 370.12 - Aanzicht tandconstructie binnenwand bij zinkvoeg 2e Coentunnel

 

Opgemerkt wordt dat de voegen verticaal staan in de eindsituatie. Het onder- en bovenvlak van de tand liggen onder een helling. Het gemiddelde van deze twee is gelijk aan het gemiddelde van de hellingen van de vloer aan weerszijden van de voeg, om te voorkomen dat een voegopenstand in de winter leidt tot het optillen van een element. De hellingen van onder- en bovenvlak van de tand zijn echter niet gelijk. De tand is iets taps, om er (met bouwtoleranties) voor te zorgen dat de tand altijd ‘lossend’ is. De tapsheid is in de grootte orde van millimeters.

Zie verder de detailtekeningen van de 2e Coentunnel.

Specifieke detaillering gesloten constructies

Artikel nr. 371 (bevat geen inhoud, zie onderliggende artikelen)

Brandwerendheid, best practices actieve hittewerende maatregelen

Artikel nr. 372

Voor een algemene beschrijving van passieve hittewerende maatregelen wordt verwezen naar Best practice: Passieve uitwendige hittewerende maatregelen In onderliggende artikelen wordt specifiek ingegaan op een aantal actieve hittewerende maatregelen die alleen van toepassing zijn op gesloten constructies.

Opgemerkt wordt dat de hier behandelde sprinkler- en watermistsystemen, niet zijn toegestaan bij de Landelijke Tunnelstandaard.

Sprinkler-systeem

Artikel nr. 373

Ten gevolge van werkende sprinklers wordt het zicht onmiddellijk gereduceerd tot circa 10 m. Een combinatie van rook, waterdruppels en stoom reduceert de zichtbaarheid. Voordat de sprinklers aangezet kunnen worden dient het verkeer zodoende stilgezet te worden om ongelukken te voorkomen ten gevolge van verminderd zicht. Met dit systeem kunnen nauwelijks branden in voertuigen worden geblust. Hierbij worden andere voertuigen gekoeld, waardoor het risico van het overslaan van brand verminderd. Dit systeem is duur in installatie en onderhoud. Dit systeem is uiteraard afhankelijk van eventuele aanwezigheid van wind in de tunnel. Volgens een rapport met een studie van tunnels in Japan “Sprinklers in Japanese Road Tunnels – Final report” zijn er geen gevallen bekend waar de sprinklers niet goed functioneren of gedeeltelijk functioneren gedurende een tunnelbrand. Omdat de leidingen gevuld zijn met water is de kans op beschadiging, ten gevolge van de invloed van hitte van de brand, van de kabels- en leidingen beperkt.


Bij de Betuweroute zijn de tunnels van een sprinklerinstallatie voorzien. Door middel van een proef is aangetoond dat een sprinklerinstallatie in staat is het beton zodanig te koelen dat de temperatuur op het verder onbeschermde betonoppervlak beduidend lager dan 100 °C blijft, waardoor de wapening koel blijft en geen afspatten optreedt. Veel aandacht moet worden gegeven aan de betrouwbaarheid van het sprinklersysteem. In principe kan met (automatische) blussystemen, die voorkomen dat een grote brand ontstaat, in feite hetzelfde worden bereikt. Bij toepassing dienen echter hoge eisen te worden gesteld aan de effectiviteit en betrouwbaarheid.

 

Voordelen:

 

Nadelen:



Aspecten ten aanzien van de RAMS-score


Tabel 4-9

Variant Sprinklers
R Reliability (Betrouwbaarheid) Goed, mits deze op een correcte wijze zijn aangebracht
A Availability (Beschikbaarheid) Gelimiteerd, i.v.m. benodigde inspecties
M Maintainability (Onderhoudbaarheid) Matig, er is veel onderhoud nodig om de werking van de sprinklers te kunnen garanderen
S Safety (Veiligheid) Goed, mits deze op een correcte wijze zijn aangebracht

Watermist-systeem

Artikel nr. 374

De werking van een watermist-systeem is soortgelijk aan die van sprinklers. Een watermist is het best te karakteriseren als een watervoerend blussysteem dat zich gedraagt als een gas. De waterdruppels zijn veel kleiner dan bij een sprinkler installatie wat het warmte opnemend vermogen (koeling) ten goede komt.

 

Voordelen:

 

Nadelen:

 

Aspecten ten aanzien van de RAMS-score

Tabel 374.1 - Aandachtspunten RAMS-criteria

Variant Watermistsystemen
R Reliability (Betrouwbaarheid) Goed, mits deze op een correcte wijze zijn aangebracht
A Availability (Beschikbaarheid) Gelimiteerd, i.v.m benodigde inspecties
M Maintainability (Onderhoudbaarheid) Matig, er is veel onderhoud nodig om de werking van de sprinklers te kunnen garanderen 
S Safety (Veiligheid) Goed, mits deze op een correcte wijze zijn aangebracht

 

Veiligheid gebruikers

Artikel nr. 375

Inleiding

Artikel nr. 376

Binnen een tunnel zijn er gevaren zoals verkeersongelukken al dan niet met voertuigen met gevaarlijke stoffen. De gevolgen kunnen veel groter zijn dan bij soortgelijke ongelukken in de open lucht. Naast de kans op beschadiging van voertuigen en gewonden of doden kan er ook schade ontstaan aan de installaties en elementen. De tunnels dienen voorzien te worden van installaties om de veiligheid te verhogen. Deze installaties zijn al dan niet buiten het zicht van de weggebruiker aangebracht.

 

Conform de Richtlijn 2004/54/EG [136] vereist tunnelveiligheid een aantal maatregelen, onder meer met betrekking tot:

 

Een tunnel vereist een andere benadering dan een bovengrondse constructie. De meest belangrijke invloeden op de veiligheidsaspecten zijn:

 

Ernstige ongevallen in de Mont Blanc- en Tauerntunnel in 1999 en de Gotthardtunnel in 2001 zijn voor de EU aanleiding geweest tot het formuleren van minimale veiligheidseisen voor tunnels, behorend tot het trans-Europese netwerk (conform de Beschikking nr. 1692/96/eg [137]).

 

Deze eisen zijn opgenomen in de Richtlijn 2004/54/EG [136]. De richtlijn is vervolgens door alle lidstaten naar wet- en regelgeving per lidstaat uitgewerkt; zo ook in Nederland. Deze wet- en regelgeving, is sinds 1 mei 2006 van kracht. Er bestaan zodoende Nederlandse en Europese regels en richtlijnen wat betreft de veiligheid in tunnels.

 

 

Best practices veiligheid

Artikel nr. 377

Ten aanzien van het gebied veiligheid zijn de volgende oplossingen verzameld:

 

Vrijstaande doorstapbarrier in tunnel nabij nooddeuren

Artikel nr. 378

De A2 Leidsche Rijntunnel kan in de toekomst per buis met een rijstrook worden verbreed. Bij de huidige rijbaanindeling is een stepbarrier voorzien. Deze barrier is voorzien op de onderstaande omcirkelde plaatsen in de tunnel. Opgemerkt wordt dat deze oplossing weliswaar in dit project is toegepast, maar eigenlijk geen best practice mag worden genoemd, omdat RWS geen vrijstaande barriers meer toestaat.

Figuur 378.1 - Locatie stepbarriers A2 Leidsche Rijntunnel

Figuur 378.2 - Ontwerp stepbarriers A2 Leidsche Rijntunnel

 

Om de achterliggende ruimte veilig en bereikbaar te houden zijn gaten in de barrier voorzien, waarbij de bovenkant van de doorstap van de barrier, waar de wielen de barrier schampen, gelijk is gehouden aan de schampzijde van een standaard barrier. De doorstapbarrier is getest door middel van een botsproef en is in staat om deze belasting op te nemen.

 

Tabel 378.1 - Aandachtspunten RAMS-Vrijstaande doorstapbarrier bij nooduitgang

Variant

Doorstapbarrier

R

Reliability
(Betrouwbaarheid)

Goed, is getest met botsproef

A

Availability
(Beschikbaarheid)

Goed

M

Maintainability
(Onderhoudbaarheid)

Goed, wanneer de barrier is beschadigd door een aanrijding, kan deze eenvoudig worden vervangen.

S

Safety
(Veiligheid)

Goed

 

 

 

Halve barrier tegen tunnelwand bij dwarsverbinding

Artikel nr. 379

Ter hoogte van de dwarsverbindingen van boortunnels wordt de barrier tijdelijk onderbroken. Bij een paar tunnelprojecten (Westerscheldetunnel,Sluiskiltunnel) wordt gebruik gemaakt van een soortgelijk principe dat wordt toegepast. Hierbij wordt de halve stepbarrier afgeschuind ter plaatse van de dwarsverbinding en is de bovenkant van de doorstap van de barrier gelijk aan de schampzijde van een standaard barrier. Door het afschuinen van de barrier is de impact bij een eventuele botsing met de barrier bij de nooduitgang gering.

 

 

Figuur 379.1 - Halve barrier tegen tunnelwand bij nooduitgang


Tabel 379.1 - Aandachtspunten RAMS-Halve barrier bij dwarsverbinding

Variant

Halve barrier

R

Reliability
(Betrouwbaarheid)

Goed

A

Availability
(Beschikbaarheid)

Goed

M

Maintainability
(Onderhoudbaarheid)

Goed, wanneer de barrier is beschadigd door een aanrijding, kan deze eenvoudig worden gerepareerd.

S

Safety
(Veiligheid)

Goed

 

 

 

 

 

Verhogen hittewerendheid vluchtgangen, kabels en leidingen

Artikel nr. 380

Bij de A2 Leidsche Rijntunnel is in principe een hittewerendheid nodig van 1 uur. Om ervoor te zorgen dat de systemen gedurende een brand blijven werken en de vluchtgang toegankelijk blijft is gekozen om deze 2 uur hittewerend te houden. Zie figuur 380.1 voor de indeling van de hittewerendheid van de tunnel.

Figuur 380.1 - Hittewerendheid A2 Leidsche Rijntunnel

 

 

Tabel 380.1 - Aandachtspunten RAMS – Verhogen hittewerendheid vluchtgangen en K&L

Variant

Verhogen hittewerendheid

R

Reliability
(Betrouwbaarheid)

Goed, beton met polypropyleenvezels is getest door middel van brandproeven

A

Availability
(Beschikbaarheid)

Goed.

M

Maintainability
(Onderhoudbaarheid)

Redelijk, na een brand dient het beton herstelt te worden. Er dient opgelet te worden dat hetzelfde type mengsel als in de oorspronkelijke situatie wordt toegepast.

S

Safety
(Veiligheid)

Goed.


 

 

 

Vloeistofafvoersystemen

Artikel nr. 381 (bevat geen inhoud, zie onderliggende artikelen)

Functie en opzet systeem

Artikel nr. 382

De functie van het vloeistofafvoersysteem is het verzamelen van vloeistoffen die vrijkomen in de toerit of tunnel en deze beheerst afvoeren naar een veilige ruimte. Het betreft regenwater in de toeritten, lekwater, gelekte vloeistoffen uit tankwagens, waswater, condens, inrijdwater, schoonmaakwater en bluswater. Plasvorming op het wegdek van de toeritten kan aanleiding geven tot aquaplaning. In de gesloten tunnel moet het verdampingsoppervlak van lekkende brandbare stoffen beperkt blijven om de brandlast binnen de perken te houden. Vervolgens worden de vloeistoffen afgevoerd naar de riolering, open water of tankwagens, afhankelijk van de aard van de vloeistof.

 

Bij korte tunnels, onderdoorgangen of aquaducten kan met één hoofdwaterkelder bij het diepste punt worden volstaan. Afvoerbuizen of goten voeren het water naar deze kelder. De kelder hoeft niet precies op het diepste punt te worden gepositioneerd. Met een buis onder afschot kan het water ook naar een positie op enige afstand hiervan worden gevoerd. Het kan gunstig zijn om de waterkelder naast de kruisende infrastructuur te plaatsen ten behoeve van bereikbaarheid voor onderhoud.

 

Figuur 382.1 - Korte tunnel met hoofdwaterkelder

 

 

Langere tunnels worden voorzien van hoofdwaterkelders aan het eind van elke open toeritbak. Hier wordt het regenwater opgevangen. Op het diepste punt van de tunnel wordt een middenkelder gerealiseerd voor de opvang van productvloeistof. De keuze of hoofdwaterkelders met een middenkelder worden toegepast of alleen een hoofdwaterkelder, volgt uit een technisch-economische afweging. Het realiseren van één zeer grote waterkelder, op het diepste punt van de tunnel kan kostbaarder zijn dan twee aparte kelders op een ondieper niveau en een kleine middenkelder. Bovendien wordt de afvoercapaciteit van de rioleringssysteem kritisch bij lange tunnels als de helling en daarmee de afvoercapaciteit afneemt, terwijl wel het hele neerslagdebiet moet worden afgevoerd.

Figuur 382.2 - Lange tunnel met hoofwaterkelders en middenkelder

 

Bij vlakke landtunnels kan met één grote hoofdwaterkelder worden volstaan die in staat is 2×120 m3/uur bluswater te bergen met 30m3 productvloeistof. Toestroming van regenwater is er dan nauwelijks. Bij zeer lange vlakke tunnels of open bakken kan het noodzakelijk zijn meerdere waterkelders toe te passen omdat de afvoercapactiteit van het rioleringssysteem kritisch wordt. De afvoerleiding onder afschot kan dan dusdanig diep onder de weg komen te liggen dat het economisch is om extra waterkelders toe te passen met een geringere diepte van de afvoerbuizen en kelder.

 

Figuur 382.3 - Landtunnel met hoofdwaterkelder

 

 

Opgemerkt wordt dat in dit document alleen wordt ingegaan op de Best Practices van civieltechnische voorzieningen in de constructie en niet op de tunneltechnische installaties.

 

 

Wegtunnels

Artikel nr. 383 (bevat geen inhoud, zie onderliggende artikelen)

Opbouw van het systeem en te stellen eisen

Artikel nr. 384

Het vloeistofafvoersysteem van een wegtunnel bestaat uit:

• het wegdek van de rijbanen;

• goten;

• (inlaat)putten;

• rioleringssysteem en afvoerbuizen;

• een of meerdere vloeistofkelders;

• pompen in de vloeistofkelders;

• overdrukinstallatie(s) om explosies van ontvlambare dampen uit de vloeistofkelder(s) te voorkomen.

 

De eisen aan het vloeistofafvoersysteem van een wegtunnel kunnen worden ontleend aan de LTS [90]:

• De minimale waarde voor de nuttige berging van een hoofdwaterkelder is 240m3.

• De minimale waarde voor de nuttige berging van een middenkelder is 30m3 voor opvang van productvloeistoffen.

• De capaciteit van de riolering, waarmee vloeistoffen vanuit de verkeersbuizen naar de vloeistofkelders worden afgevoerd, dient ten minste 4m3 per minuut te bedragen.

• Voor toeritten dient de riolering te worden gedimensioneerd op hemelwaterafvoer.

• Voor de maatgevende regenbui dient te worden uitgegaan van de neerslagcurve met een overschrijdingsfrequentie van eens in de 250 jaar, volgens de “extreme neerslagcurven voor de 21e eeuw” .

 

 

Achtergronden rioleringssysteem

Artikel nr. 385

Op 11 juni 2004 hebben er in de Calandtunnel proeven plaatsgevonden om de afvoercapaciteit van de riolering in tunnels te onderzoeken. De resultaten van deze proeven zijn vastgelegd in de notitie met de titel “Eindrapportage afvoercapaciteit riolering, Onderzoek in de Calandtunnel” [138].

De conclusies uit deze proeven hebben voornamelijk betrekking op de gedeeltelijke plaatsing van de inlaatroosters onder de barrier in het gesloten gedeelte van tunnels en zijn verwerkt in de detaillering. Dit heeft er toe geleid dat het detail is aangepast. Hierbij is de scharnierende straatkolkinlaat die tegen de barrier werd geplaatst vervangen door een gekneveld rooster dat gedeeltelijk onder een sparing in de barrier wordt geplaatst.

Voor die delen in de tunnel waar ZOAB wordt toegepast moeten de inlaatputten zo ver mogelijk onder de barrier worden aangebracht. Dit heeft echter niet zo zeer te maken met de afvoercapaciteit, maar met de veiligheid van de weggebruikers. Zou de inlaatput niet onder de barrier worden geplaatst dan ontstaat bij iedere put een diepe kuil in de weg die gevaar oplevert voor de verkeersveiligheid. Is er sprake van een vluchtstrook (die niet in een later stadium wordt gebruikt als rijstrook) dan is de noodzaak voor een plaatsing onder de barrier niet aanwezig. Er kan dan gekozen worden voor dezelfde oplossing als bij die delen waar DAB wordt toegepast. Echter, een aanwezige vluchtstrook kan natuurlijk altijd een rijstrook worden. Bij de Zeeburgertunnel is recent een geknevelde putdeksel boven de middenkelder los gereden t.p.v. de voormalige vluchtstrook (hierdoor hebben 3 voertuigen schade opgelopen). De functie van het putdeksel was om de middenkelder schoon te kunnen maken. Het leerpunt is dat dus nooit verstandig een putdeksel in de rijstrook/vluchtstrook op te nemen (ook niet als ze dubbel gekneveld zijn). De beide putdeksels zijn nu verwijderd en de gaten dicht gezet. De toegang voor het schoon houden van de middenkelder in het middenkanaal blijkt bij nader inzien ook voldoende te zijn. Zie ter illustratie onderstaande 2 foto’s.

 

Figuur 385.1 - Losgereden putdeksel boven de middenkelder van de Zeeburgertunnel

 

Figuur 385.2 - Beschadiging van het beton onder het frame van de put

Bovengenoemde wijziging is in juli 2005 voorgelegd aan de beheerder van de Wijkertunnel. Hierbij werd een aantal zaken besproken dat te maken had met het onderhoud van het rioleringssysteem.

 

Een andere wijziging die is doorgevoerd is het materiaal van de riolering. In het verleden werden veelal vezelcementbuizen toegepast als riolering in tunnels. Deze buizen waren bestand tegen een groot aantal chemicaliën. Dit type buis is echter niet meer leverbaar. Daarom is nu gekozen voor PVC. In verband met de milieubelasting van PVC kan ook overwogen worden om PE toe te passen. Dit materiaal is ook beter bestand tegen chemische aantasting. Nadeel is echter dat de bochtstukken in dat geval aanzienlijk duurder zijn.

 

 

 

Inlaatputten

Artikel nr. 386 (bevat geen inhoud, zie onderliggende artikelen)

Bij toepassing DAB

Artikel nr. 387

Doel

Het naar één of meer verzamelpunten afvoeren van hemel- en wandenwaswater en het afvoeren van eventueel vrijgekomen gevaarlijke stoffen van de weg zodat het verdampingsoppervlak geminimaliseerd wordt en het explosiegevaar beperkt wordt.

Toepassingen

In het gesloten gedeelte en in het gedeelte van de overgangsgedeelten waar DAB wordt toegepast.

Detailontwerp

Op de rioleringsbuis wordt een bekisting aangebracht t.b.v. de sparing van het inlaatrooster. Na het storten van het beton wordt het inlaatrooster geplaatst en aangestort met krimparme cementgebonden mortel. De barrier wordt ter plaatse van de inlaatroosters voorzien van een sparing. Het inlaatrooster wordt in dwarsrichting ten minste 100 mm onder de barrier geplaatst. De bovenkant van het inlaatrooster wordt 20 mm onder bovenkant asfalt gesteld. De roosters zijn van het type TBS STR 890 (belastingklasse volgens EN124 en BRL 9203) gekneveld; zwaar verkeer. Om te voorkomen dat water onder de barriers komt moeten de kopse kanten onder de barriers worden dichtgezet met bijvoorbeeld thormaseal.

De afstand tussen de inlaatroosters bedraagt maximaal 20 m en op opgaande hellingen maximaal 10 m. Bij de positionering van de buis rekening houden met krachtswerking in de constructie. De hoogte van de betondrukzone dient gecontroleerd te worden. Zo nodig de buis dieper leggen. Bij ballastbeton moet er minimaal 60 mm beton onder de buis aanwezig zijn om de mortel voldoende onder te buis te laten stromen.

Als kantstreep dient een ribbelstreep te worden toegepast. Dit is akoestisch effectief en laat veel vloeistof door. Dit, om de waterfilm op het wegdek niet te blokkeren en naar de inlaatroosters te leiden.

Figuur 387.1 - Inlaatput 2e Coentunnel met ribbelstreep 50-50 mm

Figuur 387.2 - Inlaatputten (bij toepassing DAB)

Figuur 387.3 - Inlaatputten (bij toepassing DAB), deel 2

 

 

 

Motivering

Bij praktijkproeven (Eindrapportage afvoercapaciteit riolering, Onderzoek in de Calandtunnel [138]) is gebleken dat uitsparingen onder in de barriers en het gedeeltelijk onder de barriers plaatsen van de inlaatroosters positief werken op de afvoer van water en dus het plasoppervlak beperken.

Voor het toepassen van een scharnierend deksel is vanwege de gedeeltelijke plaatsing onder de barrier geen ruimte, daarom wordt een gekneveld inlaatrooster toegepast. De sparing in de barrier moet voldoende hoog zijn om de achterste knevel los te kunnen draaien. Berekening van de afvoer volgens de landelijke tunnelstandaard.

Conservering

Alkydhars Primer met zinkfosfaat

Aspecten ten aanzien van de RAMS-score

Aandachtspunten RAMS-criteria Inlaatputten (bij toepassing DAB).

Tabel

Variant

Inlaatputten onder barrier

R

Reliability
(Betrouwbaarheid)

Goed, geen aanvullende maatregelen benodigd.

A

Availability
(Beschikbaarheid)

Goed, mits schoongehouden.

M

Maintainability
(Onderhoudbaarheid)

Goed, de inlaatrooster kunnen goed bereikt worden.

S

Safety
(Veiligheid)

Goed, geen bijzonderheden.

 

Bij toepassing ZOAB

Artikel nr. 388

Doel

Het naar één of meer verzamelpunten afvoeren van hemel- en wandenwaswater.

Toepassingen

In de toeritten en in een gedeelte van de overgangsgedeelten van tunnels waar ZOAB wordt toegepast.

Detailontwerp

Op de rioleringsbuis wordt een bekisting aangebracht t.b.v. de sparing van het inlaatstuk. Na het storten van het beton wordt het inlaatstuk geplaatst en aangestort met krimparme cementgebonden mortel. De inlaatput wordt 20 mm onder bovenkant DAB gesteld; 1 per stortmoot, echter max. h.o.h. afstand 20 m en op opgaande hellingen niet groter dan 10 m conform de landelijke tunnelstandaard.

Aangezien de put voor het grootste gedeelte onder de geleidebarrier zit wordt de geleidebarrier voorzien van een R.V.S. klepje (zie hoofdstuk Prefabconstructies). Vanwege de bereikbaarheid wordt het scharnier van de put aan de wandzijde geplaatst.

Bij de positionering van de buis rekening houden met krachtswerking in de constructie. De hoogte van de betondrukzone dient gecontroleerd te worden alsook de dwarskrachtcapaciteit. Zo nodig de buis dieper leggen.

Figuur 388.1 - Inlaatputten bij toepassing ZOAB

 

Motivering

Het type straatkolkinlaat (TBS STR 838/839) wordt toegepast vanwege de afmetingen en de vlakscharnierendheid.

Berekening van de afvoer volgens de Landelijke Tunnel Standaard [90].

Conservering

Alkydhars Primer met zinkfosfaat

Aspecten ten aanzien van de RAMS-score

Tabel 388.1 - Aandachtspunten RAMS-criteria Inlaatputten (bij toepassing ZOAB).

Variant

Inlaatputten onder barrier

R

Reliability
(Betrouwbaarheid)

Goed, geen aanvullende maatregelen benodigd.

A

Availability
(Beschikbaarheid)

Goed, mits schoongehouden.

M

Maintainability
(Onderhoudbaarheid)

Goed, de inlaatrooster kunnen goed bereikt worden.

S

Safety
(Veiligheid)

Goed, geen bijzonderheden.



 

Inspectieputten

Artikel nr. 389 (bevat geen inhoud, zie onderliggende artikelen)

Algemeen

Artikel nr. 390

 

Figuur 390.1 - Inspectieput met afdekplaat

Functies

Het creëren van een inspectiemogelijkheid in een riolerings- of drainagesysteem. Tevens wordt het d.m.v. deze putten mogelijk buizen vanuit diverse richtingen te laten samenkomen.

Toepassingen

In riolerings- en drainagesystemen.

Detailontwerp

De gewapend betonnen put wordt op de gewenste plaatsen voorzien van P.V.C.- inlaatmoffen. Afmetingen van de put en de aansluitende riolerings- en drainagebuizen dimensioneren op maatgevende regenbui en in relatie met het vangoppervlak. De afmetingen van de put zijn bovendien afhankelijk van de hoeveelheid aan te sluiten buizen en de diameter ervan. De put wordt afgedekt met een bovenplaat. Hierop kan een rand worden gemetseld, die tevens een stelmogelijkheid biedt. Hierop wordt tenslotte een putrand met betonvoet en deksel aangebracht. Ook de zgn. opzetstukken kunnen voor een juiste hoogte zorgdragen. Deze zijn nl. verkrijgbaar in een groot aantal hoogtematen.

Riolerings- en drainagesysteem altijd gescheiden houden. De bovenkant van het putdeksel t.o.v. het maaiveld wordt in overleg met de beheerder vastgesteld. Mogelijkheden zijn: gelijk met het maaiveld i.v.m. maaien van het gras; iets boven het maaiveld met bestrating er omheen; iets verdiept in taluds. Eveneens in overleg met de beheerder is het aan te bevelen de putdeksels te merken (riolering of drainage).

Motivering

Als alternatief kunnen bv. polyester putten toegepast worden. Gewapend betonnen putten hebben echter het voordeel dat ze minder kwetsbaar zijn en dat de prijs t.o.v. polyester wat gunstiger ligt. Verder moeten polyester putten gefixeerd worden tegen opdrijven.

Aspecten ten aanzien van de RAMS-score

Tabel 390.1 - Aandachtspunten RAMS-criteria Inspectieput bij folieconstructies.

Variant

betonnen inspectieput

R

Reliability
(Betrouwbaarheid)

Goed, geen aanvullende maatregelen benodigd.

A

Availability
(Beschikbaarheid)

Goed, mits schoongehouden.

M

Maintainability
(Onderhoudbaarheid)

Goed, vanaf maaiveld is de put bereikbaar. Vervangen is lastig als de put dicht op de folie wordt gesteld in verband met opbarsten van de folie

S

Safety
(Veiligheid)

Goed, geen bijzonderheden.



 

Aansluiting inspectieput op betonconstructies

Artikel nr. 391

Functies

Het opvangen van ongelijkmatige zettingen tussen de put en de betonconstructie.

Toepassingen

In rioleringssystemen bij de aansluiting van de buis op de betonconstructie.

Detailontwerp

In de betonconstructie wordt een met 10 mm airex omwikkelde U2-koppeling ingestort, waarop de buis wordt aangesloten. Tussen put en betonconstructie wordt altijd een zgn. pendelstuk toegepast. Dit is een buis met een lengte van ca. 1 m. die tussen 2 koppelingen wordt aangebracht. Het niveau van de aansluiting van de inspectieputten op de betonconstructie ligt veel lager dan van het normale niveau van de vloeistofafvoer in de betonnen vloer van de toerit. De vloer van de toerit zal derhalve lokaal verdikt moeten worden om de buis te herbergen.

Motivering

Er is uitgegaan van een P.V.C. aansluiting omdat dit materiaal eenvoudig te verwerken is en omdat het vroeger veel gebruikte asbest-cement niet meer toegepast mag worden. Het pendelstuk laat een grotere hoekverdraaiing toe.

Figuur 391.1 - Aansluiting inspectieput-betonconstructie

 

Aspecten ten aanzien van de RAMS-score

Tabel 391.1 - Aandachtspunten RAMS-criteria aansluiting inspectieput op betonconstructie

Variant

betonnen inspectieput

R

Reliability
(Betrouwbaarheid)

Redelijk, vervormingscapaciteit van de verbinding is beperkt.

A

Availability
(Beschikbaarheid)

Goed, mits schoongehouden.

M

Maintainability
(Onderhoudbaarheid)

Goed, vanaf maaiveld is de put bereikbaar.

S

Safety
(Veiligheid)

Goed, geen bijzonderheden.

 

 

 

Riolering en drainage binnen folie- of polderconstructies

Artikel nr. 392 (bevat geen inhoud, zie onderliggende artikelen)

Achtergrond

Artikel nr. 393

Op de aanleg van het drainage- en rioleringssysteem dient niet te worden bezuinigd. T.o.v. een gewapend betonnen bakconstructie is een folieconstructie op een aardebaan relatief goedkoop en duurzaam. De functionele zekerheid van deze constructie, voldoende droge wegligging in de verdiepte ligging van het wegtracé dient groot te zijn. Bij calamiteiten dient er voldoende reserve te zijn in de opvang/verwerking van het waterbezwaar. Maatgevende bui minimaal 1×250 jaar. Enige geprognotiseerde lek in de folieconstructie in de hoeveelheid waterbezwaar wordt aanbevolen, afhankelijk van het ontwerp.

Ook dient er bij het toe te passen drainagesysteem reserve worden ingebouwd in geval van calamiteiten. Een goed drainagesysteem kan eventueel gebruikt worden bij zowel het bergen van extra water als het zo nodig verversen van water binnen de folieconstructie.

Drainage met omhulling en grindkoffers

Artikel nr. 394

Functies

Het afvoeren van overtollig water.

Toepassingen

Drainagesystemen.

Detailontwerp

De drainagebuis is een geprofileerde flexibele geperforeerde buis uit hard P.V.C. van het type drainflex met een uitwendige diameter van 200 mm. Bij toepassing zonder grindkoffer wordt een omhulling toegepast van 7 mm polypropyleenvezels van het type 450. Alleen bij grote hoeveelheden ijzerhoudend water wordt het duurdere type 750 toegepast (alleen in kwelgebieden). Ook kunnen 1 of 2 buizen in een grindkoffer van betongrind N 31.5 gelegd. De grindkoffer wordt omhuld met filterdoek 66212 nicolon nylondoek, waarbij een overlap van minimaal 250 mm gemaakt wordt.

 

Figuur 394.1 - Drains met grindkoffer


Motivering

De keuze voor het toepassen van een buis met omhulling of een grindkoffer met 1 of 2 buizen is afhankelijk van de waterafvoer en de grondsoort. Eén en ander zal aan de hand van berekeningen per project moeten worden bepaald. In het algemeen zal een grindkoffer met 1 buis worden toegepast in het hoger gelegen gedeelte van de totale folieconstructie. Daar is de afvoer nog niet zo heel groot en ligt het polderpeil onder de drainage. Een grindkoffer met 2 buizen wordt toegepast in het dieper gelegen gedeelte van de folieconstructie. Daar is de afvoer het grootst en ligt het polderpeil op gelijke hoogte met de drainage. Bij andere toepassingen dan folieconstructies (bijvoorbeeld in kwelgebieden met een natuurlijke waterremmende laag) wordt geen nicolon doek aan de onderkant en aan de zijkanten van de grindkoffer toegepast. De kans op dichtvlokken van het nicolon doek door ijzerhoudend water is dan namelijk zeer groot. Om zandindringing te voorkomen moet de grindkoffer dan wel zorgvuldig worden opgebouwd.


Aspecten ten aanzien van de RAMS-score

Tabel 394.1 - Aandachtspunten RAMS-criteria Drainage met omhulling en grindkoffers

Variant

Drainage met grondkoffer

R

Reliability
(Betrouwbaarheid)

Goed, de grindkoffer zorgt voor een grote afvoercapaciteit.

A

Availability
(Beschikbaarheid)

Goed, mits schoongehouden.

M

Maintainability
(Onderhoudbaarheid)

Goed, vanaf de doorspuitputten bereikbaar.

S

Safety
(Veiligheid)

Goed, geen bijzonderheden.



 

Railtunnels

Artikel nr. 395 (bevat geen inhoud, zie onderliggende artikelen)

Opbouw van het systeem en eisen

Artikel nr. 396

Bij spoortunnels is geen sprake van afvoer over wegdek, maar wordt de vloeistof opgenomen in het ballastbed en in dwarsrichting afgevoerd naar een goot onder de kabelkoker/voetpad die de vloeistof verder afvoert naar een waterkelder.

 

De eisen qua benodigde afvoercapaciteit zijn voor spoortunnels conform de OVS gelijkluidend aan die voor wegtunnels, zie Opbouw van het systeem en te stellen eisen, zij het dat er tevens gerekend moet worden met vrijkomende productvloeistof uit een tankwagon met een maximum van 80 m3.

 

De hoeveelheid af te voeren water in volledig gesloten metrotunnels is zeer beperkt en bestaat vooral uit lekwater. Nabij de overgang van het gesloten naar een onoverdekt deel, is de situatie uiteraard in ongunstige zin afwijkend. Bij toepassing van direct bevestigd spoor loopt het lekwater in een open goot naar een pompput op een lager gelegen punt. Van daaruit wordt het water afgepompt.

 

 

Rioleringssysteem Railtunnels

Artikel nr. 397 (bevat geen inhoud, zie onderliggende artikelen)

Spoortunnels met open goot

Artikel nr. 398

Doel

Het beheerst afvoeren van het verwachte aanbod aan vloeistoffen tijdens alle bedrijfstoestanden en het beperken van de plasgrootte bij uitstroming uit een vloeistoftank.

Toepassingen

In het gesloten deel van de tunnel en in de open toeritten.

Detailontwerp

In het spoor moet ballast worden toegepast om als passieve veiligheid te functioneren tegen plasbranden, conform OVS00201 v001 [24]. Naast het spoor bevindt zich een ontsporingsgeleiding in de vorm van een betonnen muur, en een vluchtpad. Onder het vluchtpad wordt een afvoergoot geprojecteerd en de kabelkoker. De goot wordt afgedekt met prefab betonplaten. In de wand worden sparingen opgenomen 300×150 mm, afgedekt met een rooster. De dimensionering van de openingen en hart-op-hartafstanden hangen af van het vloeistof aanbod. In dat kader zijn proefnemingen gedaan v.w.b. vloeistof afvoer door ballast naar vloeistof afvoer goot en is bepaald welk doorstroomoppervlak tussen de wand van de vloeistofafvoergoot en de ballast aanwezig dient te zijn (in m2/m). Zie ook [84].

 

In de ballastkeringen worden mantelbuizen 75 mm met een maximale tussenafstand van 40 meter opgenomen voor het doorspuiten van de goot. I.v.m. de afvoer van water naar de afvoergoot wordt de vloer voorzien van een afschot van tenminste 1:100.

Motivering

Een open goot onder de ontsporingsgeleiding en met een vlakke vloer is de goedkoopste oplossing om een vloeistofafvoer te creëren. Volgens de OVS is het toegestaan dat regenwater tot 250 mm onder de onderzijde van de dwarsliggers staat. Bij toepassing van voldoende ballastdikte kan dan een dusdanige afvoercapaciteit in de goot worden verkregen dat geen verdieping in de vloer nodig is. ProRail geeft de voorkeur aan open goten in verband met het risico op explosies in ingestorte leidingen en verstoppingen door lekkende warme lading, bijvoorbeeld cacaoboter. Als gevolg van het relatief kleine oppervlak van een ingestorte leiding is de explosiebelasting in principe op te nemen door bij te leggen wapening. De doorspuitleidingen worden opgenomen om te voorkomen dat voor het reinigen van het vloeistofafvoersysteem de kabel- en leidingkokers moeten worden geopend. Door deze kokers op regelmatige afstand te voorzien van mantelbuizen voor doorspuiten kan de benodigde reinigingstijd beperkt blijven.

Figuur 398.1 - Afvoergoot onder vlucht/inspectiepad

Figuur 398.2 - Rooster voor doorvoeropening in ballastbed

Figuur 398.3 - Afvoergoot met doorspuitleiding

 

 

 

 

 

 

 

Aspecten ten aanzien van de RAMS-score

Tabel 398.1 - Aandachtspunten RAMS-criteria rioleringssysteem spoortunnels

Variant

Open goot onder inspectiepad

R

Reliability
(Betrouwbaarheid)

Goed, geen aanvullende maatregelen benodigd. Een nadeel is dat vloeistoffen vanuit de goot weer terug de ballast in kunnen lopen.

A

Availability
(Beschikbaarheid)

Goed, mits schoongehouden.

M

Maintainability
(Onderhoudbaarheid)

Goed, het systeem is met de voorziene doorspuitpunten goed te reinigen.

S

Safety
(Veiligheid)

Goed, ontploffingen in het gotenstelsel leiden niet tot verdere schade aan de constructie.

 

 

Spoortunnels met gesloten leiding

Artikel nr. 399

Doel

Het beheerst afvoeren van het verwachte aanbod aan vloeistoffen tijdens alle bedrijfstoestanden en het beperken van de plasgrootte bij uitstroming uit een vloeistoftank.

Toepassingen

In het gesloten deel van de tunnel en in de open toeritten waar de open goot onvoldoende afvoercapaciteit heeft.

Detailontwerp

In het spoor moet ballast worden toegepast om als passieve veiligheid te functioneren tegen plasbranden, conform OVS00201 [24]. Naast het spoor bevindt zich een ontsporingsgeleiding in de vorm van een betonnen muur, en een vluchtpad. Onder het vluchtpad wordt een leiding in de vloer ingestort met verticale aansluitingen op de afvoergoot.

In de wand worden sparingen opgenomen. De dimensionering van de openingen, hart-op-hartafstanden en buisdiameter hangt af van het vloeistof aanbod. I.v.m. de afvoer van water naar de afvoergoot wordt de vloer voorzien van een afschot van tenminste 1:100.

 

Figuur 399.1 - Drempel in ballastbed


Aspecten ten aanzien van de RAMS-score

Tabel 399.1 - Aandachtspunten RAMS-criteria rioleringssysteem spoortunnels

Variant

Gesloten leiding

R

Reliability
(Betrouwbaarheid)

Goed, geen aanvullende maatregelen benodigd.

A

Availability
(Beschikbaarheid)

Goed, mits schoongehouden.

M

Maintainability
(Onderhoudbaarheid)

Matig, het systeem is met doorspuitpunten goed te reinigen maar verstoppingen door lekkende warme lading is zeer moeilijk te verwijderen.

S

Safety
(Veiligheid)

Goed, de vloer dient wel ontworpen te worden op ontploffingen in de leiding.

 

 

 

Metrotunnels

Artikel nr. 400

Doel

Het beheerst afvoeren van lek- en waswater.

Toepassingen

In het gesloten deel van de tunnel.

Detailontwerp

De hoeveelheid lekwater in tunnels is zeer beperkt. Bij toepassing van direct bevestigd spoor loopt het lekwater in een open goot naar een pompput op een lager gelegen punt. Van daaruit wordt het water afgepompt.

Motivering

Een open goot naast de spoorconstructie is de goedkoopste oplossing om een vloeistofafvoer te creëren. Het lekdebiet is normaalgesproken dusdanig laag dat een kleine pompput voldoet.

 

Voor de Noord-Zuidlijn in Amsterdam is het voorstel om de pompen achterweg te laten en de opvangputten op te nemen in de schoonmaakronde en leeg te maken middels een mobiele onderhoudsinstallatie. Dit is mogelijk omdat de hoeveelheid lekwater zeer beperkt is.

Figuur 400.1 - Pompput Boortunnel Statenweg Rotterdam

 

Aspecten ten aanzien van de RAMS-score

Tabel 400.1 - Aandachtspunten RAMS-criteria rioleringssysteem metrotunnels.

Variant

Open goot naast spoorconstructie

R

Reliability
(Betrouwbaarheid)

Matig, de pomp behoeft zelden tot nooit te werken.

A

Availability
(Beschikbaarheid)

Goed, de open goot functioneert altijd.

M

Maintainability
(Onderhoudbaarheid)

Goed, de goot en de pomp zijn eenvoudig te bereiken vanuit de tunnelbuis.

S

Safety
(Veiligheid)

Matig, bluswater blijft in de tunnel staan.

 

 

Figuur 400.2 - Pompput Boortunnel Noordzijdlijn Amsterdam

 

Waterkelders

Artikel nr. 401 (bevat geen inhoud, zie onderliggende artikelen)

Achtergronden waterkelders

Artikel nr. 402

In dit artikel worden achtereenvolgens de achtergronden toegelicht van waterkelders, middenpompenkamers en inlaatroosters bij waterkelders. In de daarop volgende artikelen wordt ingegaan op Best Practices van de diverse onderdelen.

 

Waterkelders

In dit artikel is een aantal voorbeelden gegeven van waterkelders met of zonder zuiveringstechnische voorziening. Of er binnen een bepaald project een zuiveringstechnische voorziening moet worden toegepast is afhankelijk van de eisen die gesteld worden door het bevoegd gezag. Op landelijk niveau zijn er aanbevelingen opgesteld voor het omgaan met afstromend wegwater. Deze aanbevelingen zijn vastgelegd in het rapport “Afstromend wegwater” [139].

Het rapport handelt behalve over autosnelwegen ook over wegen van lagere orde. Daarnaast wordt ook speciaal stilgestaan bij de situaties in tunnels. In vrijwel alle gevallen zal er echter bij tunnels sprake zijn van een waterkelder, waar het water in eerste instantie wordt verzameld. Hoe deze waterkelder eruit ziet wordt voor een belangrijk deel bepaald door hoe het water verder wordt afgevoerd. In dit artikel zijn enkele voorbeelden gegeven van hoe zo’n kelder eruit zou kunnen zien.

 

In de eerst beschreven waterkelder is behalve een zandvang geen zuiveringstechnische voorziening opgenomen. Dit type waterkelder is in het verleden bij veel tunnels gebouwd. De laatste jaren wordt echter meer en meer een zuiveringstechnische voorziening verlangd.

 

De waterkelder met bezinkbassin is toegepast in de Vlaketunnel. Bij deze waterkelder is de zuiveringstechnische voorziening in de vorm van een overloopschot en een drijvende balk in 2005 ingebouwd. Door intensivering van het weggebruik bleek het water dat uit de kelder moest worden afgevoerd teveel verontreinigde stoffen te bevatten. Er is toen gekeken naar een voorziening buiten de tunnel. Deze voorzieningen bleken echter allemaal erg duur te zijn. Daarom is gekozen voor de hier beschreven oplossing. Omdat de waterkelders een overcapaciteit hadden kon er ruimte gemaakt worden voor een bezinkbassin. Deze oplossing is dan ook met name interessant voor toepassing in bestaande waterkelders, aangezien dit principe bij nieuwbouw een ca. 0,50 meter grotere aanlegdiepte van de waterkelder tot gevolg heeft.

Het droogzetten en schoonmaken van het bezinkbassin kan m.b.v. een simpele klokpomp gebeuren. Bij de Vlaketunnel is echter gebleken dat de vervuiling van het bezinkbassin erg meevalt. Het schoonmaken zal dan ook slechts om de ca. 2 jaar gaan plaatsvinden. Voor meer achtergronden over deze oplossing wordt verwezen naar de documenten “Eenvoudige voorziening lozing run-off water Vlaketunnel” [140] en “Aanvraag voor een vergunning ingevolge de Wvo voor het lozen van wegwater afkomstig van de Vlaketunnel in het oppervlaktewater van de Oosterschelde” [141].

 

Een nadeel van het vrijwel direct lozen op het oppervlaktewater is dat er vervuiling mee kan komen. Met name aan het begin van een bui wordt vuil van de straten het HWA-systeem (en daarmee uiteindelijk het oppervlaktewater) ingespoeld (first flush). Om dit te voorkomen lozen de pompen in de waterkelder op de riolering. Met behulp van een klep wordt zo het regenwater dat aan het begin van een bui het systeem instroomt naar de zuivering gevoerd, waardoor de meeste vervuiling weggezuiverd wordt en er alleen nog relatief schoon regenwater direct op het oppervlaktewater wordt geloosd. Een dergelijk stelsel heet een verbeterd gescheiden stelsel. Met dit stelsel wordt nog steeds veel neerslag naar de zuivering afgevoerd (ruwweg 60 tot 70% van de jaarlijkse neerslag). Voordeel van dit systeem is dat bij grote buien de piek van de afvoer niet in het riolering terecht komt waardoor de piekbelasting van de rioolwaterzuivering aanzienlijk lager wordt.

De indeling van de waterkelder met verbeterd gescheiden systeem geeft de principes van dit systeem weer. Kenmerken van het systeem zijn de ontvangstput, de gescheiden waterbergingen en de afsluiters. Zoals het systeem hier is beschreven wordt bij een goed functioneren van de afsluiters een nagenoeg volledige scheiding bewerkstelligd. Voorwaarde is wel dat de inhoud van de ontvangstput zo klein mogelijk wordt gehouden. Dit kan gerealiseerd worden door deze put op te vullen met beton tot het niveau van de doorstroomopening naar de vuilwaterberging.

Het is ook mogelijk een systeem te bedenken zonder afsluiters. Voordeel van zo’n systeem is dat er zich geen onderhoudsgevoelige bewegende delen in bevinden. Het nadeel is dat de scheiding tussen vuil en schoon water niet volledig is. Voor de principes van het laatstgenoemde systeem wordt verwezen naar het document “Principe gescheiden systeem voor de opvang van afvalwater in waterkelders”.

Hellingkelders

Bij aanleg van de toeritten in een polder binnen (kantel)dijken of folieconstructie bestaat de mogelijkheid van het toepassen van zogenaamde hellingkelders, waarin het hemelwater van het maaiveld binnen de dijken en het binnentalud van de kanteldijken wordt opgevangen en afgepompt. Voordeel is dat het hemelwater niet eerst afgevoerd moet worden naar een lager niveau en daarna weer (extra hoog) moet worden opgepompt. Nadeel is dat er extra voorzieningen moeten worden gemaakt. Het verbeterd gescheiden systeem zou al het water dat op het wegdek valt, dus ook boven het maaiveld binnen de kanteldijken wel naar de hoofdwaterkelder en niet naar de hellingkelder moeten worden afgevoerd.

Middenpompenkamers

In de landelijke tunnelstandaard is de eis opgenomen dat de vluchtgang in het middentunnelkanaal niet mag worden onderbroken en aan beide zijden een uitgang dient te hebben. In de meeste zinktunnels is de middenpompenkamer geplaatst in de vluchtgang en wordt de vluchtgang dus in tweeën verdeeld. Dit is dus niet meer toegestaan. Er moet dus gezocht worden naar een alternatief voor de positie van de middenpompenkamer.

Een geschikt alternatief is een positie naast de tunnelbuizen zoals dat ook bij hoofdwaterkelders het geval is. Bij de Roertunnel is voor deze positie gekozen. Het voordeel van deze plaatsing is dat de pompenkamer relatief eenvoudig bereikbaar is. Toch is een plaatsing naast de tunnelbuizen niet altijd mogelijk of wenselijk. Dit kan bijvoorbeeld problemen opleveren bij diepe afgezonken tunnels.

Inlaatroosters bij waterkelders

Bij de situatie met DAB als wegverhardingsconstructie bevindt zich t.p.v. hoofdkelders één rooster gedeeltelijk onder de barrier. Dit sluit aan bij de wens om inlaatputten minimaal 0,10 meter onder de barrier te plaatsen i.v.m. een betere opvang van vloeistoffen (zie paragraaf achtergronden inlaatputten). De overige roosters worden tegen de barrier geplaatst en dienen behalve voor het opvangen van vloeistoffen ook voor een extra ontluchting bij een eventuele explosie in de riolering zodat de kans op het doorschieten van de vlam naar de waterkelder wordt verkleind. Zie landelijke tunnelstandaard [90].

Bij de situatie met ZOAB als wegverhardingsconstructie worden t.p.v. hoofdkelders alle inlaatroosters onder de barrier geplaatst. Dit heeft echter vooral te maken met de verkeersveiligheid (zie paragraaf achtergronden inlaatputten).

Ter plaatse van middenkelders worden de roosters tegen de barrier geplaatst. Er is hier geen noodzaak de roosters (gedeeltelijk) onder de barrier te plaatsen, aangezien de wegverhardingsconstructie bestaat uit DAB. Bovendien is er in deze situatie geen gevaar dat vloeistoffen de roosters zullen passeren, omdat we ons hier op het diepste punt van de tunnel bevinden.

 

 

 

 

Principe-indeling

Artikel nr. 403 (bevat geen inhoud, zie onderliggende artikelen)

Hoofdwaterkelder zonder bezinkbasin

Artikel nr. 404

Doel

Het verzamelen en afvoeren van hemel- en wandenwaswater en eventueel lekwater en vrijgekomen gevaarlijke stoffen en het voorkomen van dampvorming in de afvoerbuis.

Toepassingen

In het overgangsgedeelte t.p.v. de overgang naar de toeritten in tunnels, waarbij vanuit de vergunningsvoorwaarden geen (verbeterd) gescheiden systeem wordt geëist.

Detailontwerp

De tekening geeft een voorbeeld van de indeling van een hoofdwaterkelder. De onderdelen die in een dergelijke kelder aanwezig dienen te zijn, zijn:

 

De af te voeren vloeistoffen komen via roosters in de redresseerstrook in de zandvang terecht. Deze roosters dienen tevens voor de toegankelijkheid van de zandvang. De rest van de kelder is toegankelijk via de pompenkamer en via een luik in de redresseerstrook. De diverse hellingen waarborgen een goede afvoer naar de pompen. Er moeten in de pompkelders 3 buizen aangebracht worden, welke voorzien zijn van een Storzkoppeling. Twee buizen beginnen boven de geleidebarrier en eindigen zo laag mogelijk in de watersloten. De andere buis begint boven de geleidebarrier en eindigt zo laag mogelijk in de pompkelder. Indien er een vluchtstrook aanwezig is, dan bij voorkeur de buizen hier laten beginnen. Er moet een ontluchtingsbuis zitten tussen de waterkelder en de buitenlucht als dit mogelijk is (niet de tunnelbuis of het middenkanaal). Deze buis begint zo hoog mogelijk in de waterkelder en eindigt boven het dienstengebouw. Als dit niet mogelijk is eindigt de buis in de tunnelbuis met een vlamdover waarbij de uitgang van de buis zo hoog mogelijk in een verkeersbuis dient te worden aangebracht. Bij de doorvoer van buizen door wanden moeten de buizen zodanig worden aangebracht dat er geen vonkdoorslag op kan treden.

Figuur 404.1 - Principe-indeling hoofdwaterkelder

 

Motivering

De effectieve berging van de kelder wordt enerzijds bepaald door de hoeveelheid toestromend water (maatgevende bui volgens de ‘Extreme-neerslagcurven voor de 21e eeuw’) en anderzijds door de eisen die gesteld worden in de landelijke tunnelstandaard.

De inlaatroosters worden zo laag mogelijk in het alignement geplaatst zodat zoveel mogelijk regenwater kan worden afgevoerd via de hoofdwaterkelders.

De buizen met Stortzkoppeling zijn bedoeld om de waterkelder en het waterslot na een calamiteit leeg te pompen om gevaarlijke stoffen af te voeren. De buizen naar de watersloten kunnen gebruikt worden om het waterslot weer te vullen met water. Drainagewater hoeft niet via de zandvang afgevoerd te worden, behalve wanneer er kans is op ijzerhoudend water.

Conservering

Alle stalen buizen thermisch verzinkt uitvoeren.

Het milieu in de waterkelders kan zeer agressief zijn. Voor het beton in de waterkelders moet dan ook een passende milieuklasse worden bepaald met bijbehorende betondekking ten behoeve van de levensduur van 100jaar. Mogelijk is ook een extra coating te overwegen.

 

 

Hoofdwaterkelder met bezinkbassin

Artikel nr. 405

Doel

Het verzamelen en afvoeren van hemel- en wandenwaswater en eventueel lekwater en vrijgekomen gevaarlijke stoffen en het voorkomen van dampvorming in de afvoerbuis.

Toepassingen

In het overgangsgedeelte t.p.v. de overgang naar de toeritten in tunnels, waarbij vanuit de vergunningsvoorwaarden een zuiveringstechnische voorziening wordt geëist.

Detailontwerp

Het detailontwerp is in grote lijnen gelijk aan dat van de in het vorige hoofdstuk beschreven principe-indeling van de hoofdwaterkelder. De extra voorzieningen zijn een overloopschot en een drijvend schot voor de toegang naar de opstelplaats voor de pompen. Daarnaast moet er in de berging ruimte gereserveerd worden die fungeert als bezinkbassin. Het overloopschot zorgt ervoor dat er een bassin ontstaat waarin microverontreinigingen naar de bodem bezinken. De drijvende balk zorgt ervoor dat drijvende delen en olie tegen worden gehouden. De hoogte van het schot bepaalt de diepte van het bezinkbassin. Deze diepte is onder meer afhankelijk van de snelheid waarmee de af te voeren vloeistoffen de kelder binnen stromen. Een andere belangrijke factor is de afstand van het instroompunt van de af te voeren vloeistoffen tot het overlooppunt. Deze afstand wordt bepaald door de benodigde bezinktijd. Eén en ander is weer afhankelijk van de samenstelling van het afvalwater en zal moeten worden bepaald in overleg met de vergunningverlener.

Figuur 405.1 - Principe-indeling hoofdwaterkelder met bezinkbassin

 

Motivering

Voordeel van dit principe is dat met eenvoudige middelen een zuiveringstechnische voorziening in de waterkelder kan worden gecreëerd. Het grote nadeel is echter dat de waterkelder dieper moet worden gemaakt dan op basis van de benodigde bergingscapaciteit noodzakelijk is. Deze voorziening is ingebouwd in de Vlaketunnel. Er werd daar door de vergunningverlener een zuiveringstechnische voorziening geëist en de waterkelders bleken een overcapaciteit te hebben. De hier beschreven oplossing bleek een eenvoudige en vooral goedkope oplossing voor dit probleem te zijn. De vraag hierbij is hoe effectief dit systeem is t.o.v. andere zuiverings- en scheidingssystemen.

Conservering

Alle stalen buizen thermisch verzinkt uitvoeren.

Het milieu in de waterkelders kan zeer agressief zijn. Voor het beton in de waterkelders moet dan ook een passende milieuklasse worden bepaald met bijbehorende betondekking ten behoeve van de levensduur van 100jaar. Mogelijk is ook een extra coating te overwegen.

 

 

 

Hoofdwaterkelder met verbeterd gescheiden systeem

Artikel nr. 406

Doel

Het verzamelen en afvoeren van hemel- en wandenwaswater en eventueel lekwater en vrijgekomen gevaarlijke stoffen en het voorkomen van dampvorming in de afvoerbuis.

Toepassingen

In het overgangsgedeelte t.p.v. de overgang naar de toeritten in tunnels, waarbij vanuit de vergunningsvoorwaarden een zuiveringstechnische voorziening wordt geëist. Overigens kan het verbeterd gescheiden systeem alleen toegepast worden als het (ongezuiverde) water van de vuilwateropslag geloosd kan worden op het openbaar rioleringsnet.

Dit moet dus wel binnen een bepaalde straal aanwezig zijn.

Detailontwerp

Bij dit systeem wordt de eerste 4 mm van een regenbui opgevangen in een vuilwaterberging en de rest in een schoonwaterberging. Om het vervuilde en het (relatief) schone water gescheiden te kunnen opvangen en afvoeren, wordt de waterkelder verdeeld in twee delen, te weten een vuilwaterberging en een schoonwaterberging. Daarnaast is de waterkelder voorzien van een ontvangstput die de functie heeft om het af te voeren water door te geven aan de vuilwaterberging en vervolgens de schoonwaterberging. Het doorstroomniveau naar de vuilwaterberging is lager gelegen dan het overloopniveau naar de schoonwaterberging. Het af te voeren water komt binnen in de ontvangstput. Deze put wordt tot het niveau van de doorstroomopening opgevuld met beton. Hiermee wordt voorkomen dat er vuil water in de put achterblijft na het afsluiten van de doorvoer naar de vuilwaterberging en er vermenging optreedt tussen schoon en vuil water. De doorstroomopening wordt voorzien van niveaugeregelde afsluiters, die ervoor zorgen dat de doorvoer naar de vuilwaterberging wordt afgesloten na de opvang van de eerste 4 mm.

Figuur 406.1 - Principe-indeling hoofdwaterkelder met verbeterd gescheiden systeem

 

Motivering

Uitgangspunt van dit systeem is dat het wegdek door de eerste 4 mm van een bui schoon wordt gespoeld. Het hemelwater dat hierna op het wegdek valt en via de riolering naar de waterkelder stroomt is relatief schoon. Het vuile water uit de vuilwaterberging wordt geloosd op het riool en het relatief schone water uit de schoonwaterberging wordt geloosd op het oppervlaktewater. Er zijn vele varianten mogelijk op dit systeem. Van belang is dat voorkomen moet worden dat er in de ontvangstput vermenging optreedt tussen vuil en schoon water. Hiertoe moet de inhoud van deze ontvangstput zo klein mogelijk worden gemaakt.

De eerste 4 mm is nogal arbitrair bepaald en zegt niet zoveel en zeker niets absoluuts over het verschil in kwaliteit van het afgevangen water in de vuilwater- en schoonwateropslag immers:

Conservering

Alle stalen buizen thermisch verzinkt uitvoeren.

Het milieu in de waterkelders kan zeer agressief zijn. Voor het beton in de waterkelders moet dan ook een passende milieuklasse worden bepaald met bijbehorende betondekking ten behoeve van de levensduur van 100jaar. Mogelijk is ook een extra coating te overwegen.

 

 

 

Inlaatroosters t.p.v. hoofdwaterkelder

Artikel nr. 407 (bevat geen inhoud, zie onderliggende artikelen)

In geval van toepassing DAB

Artikel nr. 408

Doel

Het opvangen van hemel- en wandenwaswater en eventueel vrijgekomen gevaarlijke stoffen en het bieden van een ontluchtingsmogelijkheid bij een eventuele explosie van deze gevaarlijke stoffen.

Toepassingen

Hoofdwaterkelders boven de zandvangen in tunnels bij toepassing van DAB als wegverharding.

Detailontwerp

Na het storten van het beton wordt in de gecreëerde sparing het frame op hoogte gesteld. Vervolgens wordt de rand om het frame aangestort met krimparme cementgebonden mortel. De inlaatroosters worden 20 mm onder bovenkant asfalt gesteld. De roosters (gekneveld; zwaar verkeer) zijn van het type TBS 320/700 en TBS 600/650 (t.b.v. mangat). Het totale minimale doorstroomoppervlak van de roosters bedraagt 0,25 m2, conform de landelijke tunnelstandaard BSTTI#3298 [80]. De richting van de spleten van de roosters is loodrecht op de stroomrichting van het water.

 

Figuur 408.1 - Inlaatroosters t.p.v. hoofdwaterkelder bij toepassing DAB

Motivering

Bij een ontsteking in de toeleidende rioleringsbuizen van eventueel vrijgekomen gevaarlijke stoffen dient te worden voorkomen dat grote schade aan de kelder ontstaat. De extra inlaatroosters zorgen dan voor een extra ontluchting. De voorziening wordt aangebracht t.b.v. het voorkomen van zgn. ‘pressure piling’; de omstandigheid waarbij een (mogelijk) explosief mengsel in de waterkelder wordt ontstoken door een explosie in de HWA-leiding. Hierdoor zou een explosie kunnen optreden in de waterkelder waardoor de tunnel zwaar beschadigd raakt en mogelijk lange tijd niet bruikbaar is. Bij tunnels met 2 niveaus (bijvoorbeeld A2 tunnel te Maastricht) is het niet mogelijk om deze voorziening als zodanig uit te voeren indien de waterkelders voor beide niveaus niet gescheiden zijn. Bij deze tunnel is ervoor gekozen om een afblaasvoorziening te maken naar de open lucht door de rioleringsleidingen over de volle lengte van de tunnel door te koppelen t.b.v. de ontluchting. In de doorkoppeling t.p.v. de waterkelders is een vervangbare breekplaat ingebouwd, die in het geval van een explosie breekt en er zo voor zorgt dat er in de waterkelder geen ontsteking kan plaatsvinden (het waterslot wordt niet leeggeblazen).

Voor de bereikbaarheid van de zandvang dient minimaal 1 van de roosters als mangat te worden uitgevoerd. De plaats van de roosters wordt zo gekozen dat al het hemelwater kan worden afgevangen. Dit komt er op neer dat ze aangebracht worden in het overgangsgedeelte t.p.v. de overgang naar de toeritten. Het totale minimale doorstroomoppervlak van de roosters bedraagt 0,25 m2, conform de landelijke tunnelstandaard BSTTI#3298 [80].

Conservering

Alkydhars Primer met zinkfosfaat.

 

Aspecten ten aanzien van de RAMS-score

Tabel 408.1 - Aandachtspunten RAMS-criteria inlaatroosters t.p.v. hoofdwaterkelder (bij toepassing DAB).

Variant

Roosters voor barrier

R

Reliability
(Betrouwbaarheid)

Goed, geen aanvullende maatregelen benodigd. De betrouwbaarheid met betrekking tot het voorkomen van explosies is onbekend.

A

Availability
(Beschikbaarheid)

Goed, mits schoongehouden.

M

Maintainability
(Onderhoudbaarheid)

Goed, de inlaatrooster kunnen goed bereikt worden.

S

Safety
(Veiligheid)

Goed, geen bijzonderheden.



 

 

In geval van toepassing ZOAB

Artikel nr. 409

Doel

Het opvangen van hemel- en wandenwaswater en eventueel vrijgekomen gevaarlijke stoffen en het bieden van een ontluchtingsmogelijkheid bij een eventuele explosie van deze gevaarlijke stoffen.

Toepassingen

Hoofdwaterkelders boven de zandvangen in tunnels bij toepassing van ZOAB als wegverharding.

Opmerking: Toepassing van ZOAB in tunnels is bij RWS niet toegestaan; te groot explosierisico.

Detailontwerp

Na het storten van het beton wordt in de gecreëerde sparing het frame op hoogte gesteld. Vervolgens wordt de rand om het frame aangestort met krimparme cementgebonden mortel. De inlaatroosters worden 20 mm onder bovenkant DAB gesteld en worden zo dicht mogelijk tegen de wand aangezet. De speciale geleidebarriers worden boven de roosters opgehangen. De roosters (gekneveld; zwaar verkeer) zijn van het type TBS 320/700 en TBS 450/700 (t.b.v. mangat). Het totale minimale doorstroomoppervlak van de roosters bedraagt 0,25 m2, gelijk aan de roosters t.p.v. het waterslot. De richting van de spleten van de roosters is loodrecht op de stroomrichting van het water.

 

 

Figuur 409.1 - Inlaatrooster hoofdwaterkelder bij toepassing ZOAB

Motivering

De plaats van de roosters onder de geleidebarrier heeft te maken met de verdiepte ligging t.g.v. het ZOAB. Bij een ontsteking in de toeleidende rioleringsbuizen van eventueel vrijgekomen gevaarlijke stoffen dient te worden voorkomen dat grote schade aan de kelder ontstaat. De extra inlaatroosters zorgen dan voor een extra ontluchting. De voorziening wordt aangebracht t.b.v. het voorkomen van zgn. ‘pressure piling’. Voor de bereikbaarheid van de zandvang dient minimaal 1 van de roosters als mangat te worden uitgevoerd. De plaats van de roosters wordt zo gekozen dat al het hemelwater kan worden afgevangen. Dit komt erop neer dat ze aangebracht worden in het overgangsgedeelte t.p.v. de overgang naar de toeritten. Het totale minimale doorstroomoppervlak van de roosters bedraagt 0,25 m2, conform de landelijke tunnelstandaard BSTTI#3298 [80]. De geleidebarrier is aangepast zodat de inlaatroosters beter zijn schoon te maken.

Conservering

Alkydhars Primer met zinkfosfaat.

Aspecten ten aanzien van de RAMS-score

Tabel 409.1 - Inlaatroosters t.p.v. hoofdwaterkelder (bij toepassing ZOAB).

Variant

Roosters half onder barrier

R

Reliability
(Betrouwbaarheid)

Goed, geen aanvullende maatregelen benodigd. De betrouwbaarheid met betrekking tot het voorkomen van explosies is onbekend.

A

Availability
(Beschikbaarheid)

Goed, mits schoongehouden.

M

Maintainability
(Onderhoudbaarheid)

Goed, de inlaatrooster kunnen goed bereikt worden.

S

Safety
(Veiligheid)

Goed, geen bijzonderheden.



 

Waterslot

Artikel nr. 410

Doel

Een dampdichte scheiding aanbrengen tussen hoofdwaterkelder en rijbuizen en het laten bezinken van zware delen in het water.

Toepassingen

Hoofdwaterkelders in tunnels.

Detailontwerp

De hoogte van het waterslot dient minimaal 0.2 m en maximaal 1.0 m te zijn. Bij voorkeur dient het waterslot een hoogte te hebben van 0.5 m. De grootte van het doorstroomoppervlak is afhankelijk van het type kelder. Hoofdwaterkelders moeten een minimaal doorstroomoppervlak van 1 m2 hebben. Er moet per waterslot een buis worden aangebracht, welke voorzien is van een Storzkoppeling. Deze buis begint boven de geleidebarrier en eindigt zo laag mogelijk in het waterslot om het slib te kunnen afzuigen.

Figuur 410.1 - Zandvang

 

 

Motivering

Door het waterslot wordt verspreiding van gassen in de koker en vlaminslag in de kelder voorkomen. Zware delen in de vloeistof zullen bezinken in het waterslot. Door de ontluchtingssparing wordt een overdruk in de kelder voorkomen bij een snel stijgend vloeistofniveau. Bij het ontwerp moet er rekening mee worden gehouden dat na schoonmaken van de zandvang het waterslot weer moet kunnen worden gevuld (met dezelfde leiding die wordt gebruikt om de zandvang leeg te zuigen).

Conservering

Niet van toepassing.

Aspecten ten aanzien van de RAMS-score

Tabel 410.1 - Waterslot

Variant

Waterslot

R

Reliability
(Betrouwbaarheid)

Goed, geen aanvullende maatregelen benodigd.

A

Availability
(Beschikbaarheid)

Goed, mits schoongehouden.

M

Maintainability
(Onderhoudbaarheid)

Matig, de afzettingen in de zandvang kunnen zo hard zijn dat deze niet zijn weg te pompen.

S

Safety
(Veiligheid)

Matig, als de zandvang alsnog moet worden betreden.

 

 

 

Praktijkvoorbeelden

Artikel nr. 411 (bevat geen inhoud, zie onderliggende artikelen)

Wegtunnel

Artikel nr. 412

Naast de bestaande Coentunnel in de rondweg van Amsterdam, die het Noordzeekanaal kruist, is de 2e Coentunnel gebouwd. Onder het kanaal is de tunnel als afgezonken tunnel gerealiseerd. De toeritten zijn in een bouwkuip van stalen damwanden en een onderwaterbetonvloer gebouwd met een betonnen constructievloer en voorzetwanden voor de damwanden. Bij de ondiepe delen van de toerit kon de onderwaterbetonvloer achterwege blijven. Het cut & cover deel van de tunnel is binnen de bouwkuip als een monoliete betonnen koker gebouwd. Het vloeistofafvoersysteem is gerealiseerd met ingestorte leidingen en inlaatputten. Het water wordt verzameld in hoofdkelders voor de toeritten en een middenkelder op het diepste punt.

 

HWA-leidingen en inlaatkolken

 

Figuur 412.1 - Aansluiting straatkolk op afvoerleiding

 

De kolken zijn in de toerit met een zijaansluiting aangesloten op de afvoerleiding die in het beton is gestort op enige afstand van de wand. Dit is gedaan om de krachtswerking in de vloer bij de aansluiting met de wand niet te verstoren. In de toeritten is ZOAB toegepast. Het inlaatrooster zit dan diep ten opzichte van het wegdek. Om te voorkomen dat een wiel deze verdieping inrijdt wordt het inlaatrooster verholen onder de barrier geplaatst. Voor het openen van het inlaatrooster is de barrier voorzien van een stalen klep die scharnierend kan worden geopend.

Figuur 412.2 - Inlaatput

 

 

Ten behoeve van de opvang en afvoer van lekwater door- of langs de damwand is elke 20 meter een afvoerbuis Ø80 mm voorzien naar de inlaatput vanuit de goot die is gerealiseerd in de koppelbalk met de damwand.

 

HWA-leiding in dilatatievoeg

Om enige beweging in de dilatatievoeg mogelijk te maken wordt een mofverbinding toegepast om de langsbeweging te accommoderen. Om verticale vervorming door verkeersbelasting of zettingsverschillen op te vangen wordt de HWA-buis over een meter omwikkeld met Airex, 20 mm dik. Aan de andere zijde van de voeg wordt de HWA-buis vast ingestort. De toerit is op palen gefundeerd waardoor verschilvervormingen over de voeg beperkt zullen zijn, kleiner dan 10 mm, waardoor de vervormingscapaciteit van de Airex omwikkeling voldoende is.

Figuur 412.3 - HWA-leiding bij dilatatievoeg

 

 

Waterkelders

Bij beide tunnelportalen zijn hoofdkelders gepositioneerd onder de dienstgebouwen. Via het kelderniveau is een schacht bereikbaar naar de pompenruimte, die naast de verkeerskoker gelegen is. De kelders zijn uitgevoerd conform het verbeterd gescheiden stelsel. De kelder is voorzien van een scheiding van het schone water (schoonwaterberging) en het vuile water (vuilwaterberging). Het volume is gebaseerd op de hoeveelheid neerslag op de verharde weg van de toerit volgens de Extreme-neerslagcurven voor de 21e eeuw van Meteoconsult met een herhalingsfrequentie van 1/250 jaar. De capaciteit van de vuilwaterberging is groter dan 30 m³, het volume vloeistof dat bij een calamiteit kan vrijkomen. Er is dan ook geen risico dat het vlottersysteem, dat het verbeterd gescheiden systeem stuurt, in actie komt en aldus vervuilde vloeistoffen in de schoonwaterberging leidt.

Figuur 412.4 - Dwarsdoorsnede waterkelder

 

 

Onderstaand in schema de werking van het afvoersysteem. Het water dat afgevoerd wordt van de open toerit van de westbuis en de middenkelder loost op de zandvang van de westbuis en stroom vervolgens uit in de vuilwaterkelder. Het water van de oostbuis komt uit in een aparte zandvang en waterslot. Dit om te voorkomen dat er kortsluiting ontstaat tussen de tunnelbuizen. Vanuit de vuilwaterkelder wordt met een tweetal pompen het vuile water afgevoerd naar de gemeentelijke riolering. Nadat de vuilwaterkelder gevuld sluiten de vlotterkleppen en stroomt het water via een zandvang en waterslot naar de schoonwaterkelder. Vanuit de schoonwaterkelder pompen drie alternerend geschakelde pompen het water naar het Noordzeekanaal. De pompenruimte is aan de oostzijde van de tunnel gesitueerd en is via een trappenhuis bereikbaar vanuit de benedenverdieping van het dienstgebouw. Vanaf maaiveld kunnen via een waterdicht luik op dezelfde schacht zware materialen naar beneden worden gehesen.

Figuur 412.5 - Schematische opzet hoofdwaterkelder

Figuur 412.6 - Plattegrond vloer waterkelder en langsdoorsnede

 

Figuur 412.7 - Verzamelruimte, zandvangen en watersloten

 

 

De zandvangen zijn gesitueerd naast het middentunnelkanaal. Deze zijn bereikbaar via een toegangsluik van 800 mm en kunnen worden leeggepompt met zuigleidingen DN65 van verzinkt staal. De HWA-leidingen steken in de waterkelder over van hun positie bij de buitenwand naar de zandvangen. In de verzamelruimte zijn per tunnelbuis twee vlotterkleppen voorzien met een diameter van 450 mm. Als de vuilwaterkelder gevuld is, sluiten deze vlotterkleppen en stroom het overige water in de schoonwaterkelder.

 

 

 

Spoortunnel

Artikel nr. 413

Bij station Utrecht Lunetten is een tweetal dive-unders gerealiseerd ten behoeve van kruisingsvrije passage van de sporen richting Den Bosch en Arnhem. De dive-unders zijn enkelspoor, waarbij aan één zijde een inspectie/vluchtpad is gesitueerd met aan de andere zijde een kabelkoker. Onder het vluchtpad is een kabelkoker, gecombineerd met een afvoergoot aanwezig. In de ballastkering langs het vluchtpad zijn openingen 300×150 mm opgenomen met een tussenafstand van 1,0 m, afgedekt met een rooster. Door de afvoergoot stroomt het water via een zandvang de waterkelder in. Vanuit de pompzonk wordt het water met een tweetal dompelpompen opgepompt en op open water geloosd. De waterkelder is deels naast tunnel geprojecteerd. Met een trap vanaf maaiveld kan de pompruimte en waterkelder worden bereikt. De waterkelder heeft een stahoogte van tenminste 2,0 m en afschot richting pompzonk.

Figuur 413.1 - Doorsnede toerit dive-under Vleugel

Figuur 413.2 - Bovenaanzicht vloer waterkelder

 

Figuur 413.3 - Dwarsdoorsnede waterkelder

 

 

Figuur 413.4 - Langsdoorsnede waterkelder

 

 

 

 

 

 

Dienstgebouwen

Artikel nr. 414 (bevat geen inhoud, zie onderliggende artikelen)

Korte beschrijving dienstgebouwen voor weg- en spoortunnels

Artikel nr. 415

Een dienstgebouw maakt onderdeel uit van een Tunnelsysteem. Hierbij worden in een tunnel diverse installaties geplaatst die bediend, bestuurd of gevoed worden vanuit één of meerdere technische ruimten die voor het merendeel in dienstgebouwen worden ondergebracht.

Er worden ruimtes ingericht binnen een dienstgebouw die zorg dragen voor een werkend tunnelsysteem tijdens “Normaal bedrijf” of “Calamiteiten bedrijf”. Tevens biedt het gebouw bescherming tegen ongewenste, externe natuurlijke en menselijke invloeden.

 

Of er meerdere dienstgebouwen gerealiseerd moeten worden hangt in hoofdzaak af van de fysieke afstand tussen de gebouwen. Met name energieverlies in voedingskabels is hiervoor van belang. In de praktijk is gebleken dat een maximale tussenafstand van dienstgebouwen van circa 1.5 à 2.5 km nog economisch is. Bij grotere tussenafstand worden tussenliggend dienstruimten gecreëerd met transformatoren. Ook van belang is de configuratie van het elektriciteitsnet. Bij een rivierkruising kan dan een dienstgebouw met een elektriciteitsaansluiting worden gecreëerd op beide oevers als redundante voeding.

Dienstgebouwen worden veelal op de tunnelmonden gepositioneerd omdat van daaruit eenvoudig het middentunnelkanaal kan worden bereikt met daarin de vluchtweg en de technische ruimte erboven. Tevens kunnen de hoofdwaterkelders worden bereikt vanuit de dienstgebouwen. De ruimtelijke inpassing van de tunnelmond en het dienstgebouw kan dan worden gecombineerd. Het is voor onbemande dienstgebouwen ook mogelijk deze ondergronds te realiseren.

 

Bovengrondse dienstgebouwen dienen goed ingepast te worden. Voor projecten van Rijkswaterstaat geldt het Kader ruimtelijke kwaliteit en vormgeving en de Handreiking ruimtelijke kwaliteit en vormgeving. In deze documenten worden de procedurele stappen gegeven die doorlopen moeten worden voor de ruimtelijke kwaliteit van infrastructurele werken. Voor de gedetailleerde uitwerking van een dienstgebouw worden per project eisen en randvoorwaarden geformuleerd. Een goed overzicht hiervan worden gegeven in de Basisspecificatie

Gebouw van Rijkswaterstaat.

 

 

Hieronder worden twee figuren getoond, die het elektrisch vermogen aangeven naar de behoefte van een werkend verkeerstunnelsysteem bij de verschillende bedrijfstoestanden.

Figuur 415.1 - Aandeel van geïnstalleerd vermogen per installatie [%] van het totaal geïnstalleerd vermogen

Figuur 415.2 - Aandeel van energieverbruik [%] bij normaal operationeel gebruik

 

 

Bron: Zero Energy Tunnel: renewable Energy Generation and Reduction of Energy Consumption van Rimma Dzuhusupova

 

In normaal gebruik is de verlichting de grootste energieverbruiker. In calamiteitenbedrijf is de ventilatie de grootste verbruiker.


Doel

Ruimte bieden voor de lokale (nood)bedienings-, besturings- en elektrotechnische installaties van een tunnel en bescherming bieden tegen ongewenste, externe natuurlijke en menselijke invloeden.

 

Toepassingen

Op of naast de tunnel kunnen één of meerdere dienstgebouwen worden gerealiseerd.

 

 

Overzicht van ruimtes

Artikel nr. 416

Afhankelijk van de in een dienstgebouw op te nemen installaties en het beheers- en bewakingsregime worden verschillende ruimten gerealiseerd in de dienstgebouwen. In de nu volgende tabel wordt een overzicht gegeven van ruimtes die gerealiseerd zijn in recente dienstgebouwen. Niet alle ruimtes komen voor in ieder dienstgebouw.

 

Tabel 27.1 - Toegestane breedte van landbouwvoertuigen en aanhangwagens

Ruimte

Verklaring/functionaliteit

Inkooppunt Aansluiting op het elektriciteitsnet
Meterkast
HS-ruimte
Aansluiting op waterleidingnet

Opstelruimte voor Hoogspanningsverdeelinrichting

MS-ruimte Middenspanningsruimte
Trafo-ruimte Opstelruimte voor transformatoren
LS-ruimte Laagspannings-ruimte
PLC-ruimte Opstelruimte voor PLC’s van de tunnelinstallaties
UPS/No-breakruimte Opstelruimte voor statische- of dynamische no-break
NSA-ruimte/Dieselopslag Opstelruimte voor noodstroom aggregaat en dieselopslag
HVAC Klimaatinstallatie-ruimte
Gang Veilige en overdekte toegang tot ruimten
Trap
Lift
Overbrugging van hoogte voor personen

Verticaal transport van personen en goederen.

Schachten Verticaal transport van kabels en leidingen
Opslag Opslagruimte voor reserveonderdelen
Archief Opslagruimte voor documenten
Werkplaats Ruimte om klein onderhoud aan installaties te verrichten
Bediening/serviceruimte Ruimte voor bedieningspanelen van de tunnelinstallaties
Commandoruimte

 

Pantry

Ruimte waarin bij calamiteiten de OHD, cq. Brandweercommandant zijn commandopost kan ‘inrichten’

Ruimte om een keukenblokje te plaatsen

Toilet WC
Bluswaterreservoir Berging van bluswater
Pompenruimte Opstelruimte voor bluswaterpompen
Ventilatieruimte Aanvoer van lucht naar het middentunnelkanaal

 

 

Relatie tussen ruimtes

Artikel nr. 417

De oriëntatie van de ruimtes volgt uit de relaties tussen de in de ruimten ondergebrachte loop van de elektrische voeding door diverse installaties. Bij de elektrische energievoorziening volgt de oriëntatie van de ruimten bijvoorbeeld de energiestroom. De elektriciteit komt als hoogspanning binnen, dat willen zeggen met een spanning boven 1000 V. Hoogspanning lager dan enkele tientallen kV heet ook wel middenspanning. De hoogspanningsruimte wordt onderverdeeld in twee ruimtes, één voor het elektriciteitsbedrijf (het inkooppunt) en een ruimte voor energieverdeling. Via de hoogspanningsverdeelinrichting (HVI)wordt de elektrische energie verdeeld over enkele transformatoren die de hoogspanning transformeren naar laagspanning. De laagspanningshoofdverdeelinrichting (LS-HVI) verdeelt de elektrische energie over de diverse tunnelinstallaties.

Figuur 417.1 - Verloop van de elektrische energie.

 

 

Distributie

Voeding van installaties in tunnels tot ± 2500 m vindt bij voorkeur plaats vanaf één centrale laagspanningshoofdverdeling. Bij grotere lengten is het in verband met kabelverliezen niet efficiënt vanuit één punt te voeden en wordt de energie daarom in de tunnel op hoogspanningsniveau gedistribueerd. Energievoorziening naar de centrale laagspanningshoofdverdeelinrichting wordt geleverd door:

 

Vanaf de centrale laagspanningshoofdverdeelinrichting wordt energie over de tunnelinstallaties verdeeld en worden eventuele no-breakvoorzieningen gevoed. Bij tunnels met een lengte van ± 500 – 2500 m, met een aansluiting op het openbare net aan één zijde van de tunnel, wordt uit economische overwegingen (beperking van kabelverliezen/kabeldiameters) de laagspanning-stroomvoorziening verdeeld over 2 ehoofdverdeelinrichtingen:

  1. Een primaire hoofdverdeelinrichting nabij de aansluiting op het openbare net (meestal bij één van de portalen van de tunnel);
  2. Een secundaire verdeelinrichting nabij het andere portaal van de tunnel.

 

In het geval van een onderwatertunnel bevindt zich dus in elk landhoofd een hoofdverdeelinrichting. In principe wordt vanuit elke verdeelinrichting een halve tunnellengte gevoed.

In tunnels met een lengte > ± 2500m, is het noodzakelijk in de tunnel één of meer trafostations, aangesloten op een middenspanningsvoeding, te plaatsen (bijv. iedere 1000-1500m), van waaruit secties van de tunnel van laagspanning worden voorzien. Hiervoor moeten verdeeld over de lengte van de tunnel, binnen –of indien mogelijk naast- de tunnelconstructie midden- en laagspanningsruimten worden ingericht. Indien de gehele tunnel moet worden voorzien van noodstroom, kan ervoor worden gekozen eventuele noodstroomaggregaten van middenspanningsgeneratoren te voorzien en in middenspanning aan te sluiten op de centrale middenspanningsvoeding. In de meeste gevallen is het echter economisch voordeliger en minder gecompliceerd een standaard noodstroomaggregaat met laagspanningsgeneratoren te installeren en de geleverde energie d.m.v. een step-up trafo te transformeren naar middenspanning en daarin aan te sluiten op de centrale middenspanningsvoeding.

 

Afmetingen ruimtes

Artikel nr. 418

De afmetingen en specificaties van de benodigde installaties, die geplaatst worden in de technische ruimten van de dienstgebouwen, zijn in grote mate bepalend voor de minimale afmetingen van deze technische ruimten.

 

Verder moet er voldoende vrije hoogte (ongeveer 500 mm) worden gereserveerd voor verlichting en luchtkanalen aan het plafond. En moet er ook ruimte gereserveerd worden voor hijsvoorzieningen, m.n. een loopkat in de NSA ruimte. Omdat het benodigde aantal en het vermogen van de installaties projectspecifiek is, is geen algemene opgave te doen de afmetingen van de technische ruimten. De praktijkvoorbeelden in de onderliggende artikelen geven een goede indruk van de te verwachten afmetingen.

 

Beschrijving ruimtes

Artikel nr. 419 (bevat geen inhoud, zie onderliggende artikelen)

Inkooppunt

Artikel nr. 420

Doel

Het bieden van ruimte voor de aansluiting op het elektriciteitsnet, met een elektriciteitsmeter schakelinrichting en bereikbaar voor de netbeheerder.

Toepassingen

In tenminste één van de dienstgebouwen. Echter indien er sprake is van een redundante netaansluiting uit een onafhankelijk onderstation (een onderstation dat op een ander hoofdnet is aangesloten dan de primaire netaansluiting van de tunnel) moet dit op het andere dienstgebouw worden aangesloten.

Detailontwerp

Voor plaatsing van de bij de aansluiting behorende apparatuur moet een ruimte met door de netbeheerder te bepalen afmetingen ter beschikking worden gesteld aan de netbeheerder.

Het NUTS aansluit/inkoppelpunt moet door de personen in dienst van, of gemachtigd door de netbeheerder kunnen worden bereikt met behulp van een door de netbeheerder voorgeschreven voorziening. Meestal wordt voor dit doel door de netbeheerder een slot ter beschikking gesteld of wordt een sleutelkastje geleverd voorzien van een standaard door de netbeheerder te verstrekken slot.

Een mogelijke aanvullende eis die door de netbeheerder kan worden gesteld bij tunnels voorzien van een laagspanningsaansluiting is dat de kWhmeter niet in een ruimte beneden maaiveldniveau mag worden opgesteld.

Motivering

Het inkooppunt moet bereikbaar zijn voor de netbeheerder met afscherming van de andere ruimtes in het dienstgebouw.

 

 

Hoogspanningsruimte

Artikel nr. 421

Doel

Geconditioneerd verblijf voor een Hoogspanningsverdeler.

Toepassingen

In alle dienstgebouwen.

Detailontwerp

De Hoogspanningsruimte bevat de hooggspanningsverdeler die de stroom vanaf het inkooppunt verdeelt naar de transformatoren.

De locatie is bij voorkeur nabij het inkooppunt en de traforuimtes.

 

 

Trafo-ruimte

Artikel nr. 422

Doel

Het bieden van ruimte voor een transformator.

Toepassingen

In alle dienstgebouwen van lange tunnels. Bij tunnels korter dan 500 meter kan voeding vanuit één dienstgebouw plaatsvinden en hoeft ook maar één van de dienstgebouwen van een trafo-ruimte te worden voorzien.

Detailontwerp

Elke transformator krijgt een ruimte aan de straatkant van het dienstgebouw die bereikbaar is met een trafodeur. Deze trafodeur is voorzien van een ventilatierooster om warmteafvoer mogelijk te maken. De traforuimtes zijn van elkaar gescheiden door brandwerende muren. De vloer moet worden ontworpen op relatief hoge geconcentreerde belastingen.

Motivering

Situering van traforuimtes aan de straatkant is gewenst voor een goede bereikbaarheid om de zware transformatoren naar binnen te kunnen verplaatsen.

Deuren met rooster zijn nodig om de warmte te kunnen afvoeren.

 

 

NSA-ruimte en dieselopslag

Artikel nr. 423

Doel

Het bieden van ruimte voor de noodstroomaggregaat en dieseltank.

Toepassingen

In tunnels met een eigen noodstroomvoorziening.

Detailontwerp

Er wordt een ruimte voorzien voor plaatsing van een dieselaggregaat. De ruimte moet geluidgeïsoleerd worden van de overige ruimtes. De vloer moet worden ontworpen op relatief hoge geconcentreerde belastingen (en trillingen).

De dieseltank kan in een separate ruimte worden geplaatst, maar binnen de NSA-ruimte komt ook voor (bulkopslag buiten de ruimte realiseren). Voor aanvoer van zuurstof kan een roosterdeur worden toegepast. Voor afvoer van verbrandingsgassen wordt een dakdoorvoer toegepast.

 

 

Laagspannings-ruimte

Artikel nr. 424

Doel

Geconditioneerd verblijf voor een laagspanningsverdeling en motor control center (MCC).

Toepassingen

In alle dienstgebouwen.

Detailontwerp

De laagspanningsruimte bevat de laagspanningsverdeelinrichting die verbonden is met de diverse tunnelinstallaties. Veelal wordt een computervloer voorzien om gemakkelijk bij de kabels te kunnen. Ook een betonnen vloer met veel sparingen is in principe mogelijk, maar minder flexibel in verband met toekomstige wijzigingen. De locatie is bij voorkeur nabij de traforuimtes in verband met de hoge stromen die tussen de trafo’s en de laagspanningsverdeelinrichting lopen.

 

 

HVAC-ruimte

Artikel nr. 425

Doel

Het bieden van ruimte voor klimaatinstallaties in de dienstgebouwen.

 

Het doel van de HVAC-installatie is klimaatbeheersing van ruimten op basis van de functionaliteit van die ruimte:

Toepassingen

In dienstgebouwen waar beheersing van het klimaat noodzakelijk is.

Detailontwerp

De HVAC-ruimte bevat ruimte voor opstellingen voor het realiseren van:

Vaak worden de diverse ruimten voorzien van elektrische heaters met elk een eigen temperatuurregeling.

Ventilatie-unit’s regelen de in te brengen luchthoeveelheid en de retourluchthoeveelheid van het gehele dienstgebouw. De ventilator-unit is voorzien van luchtfilters, recirculatie, heaters, ventilatoren en kleppen. De luchtdebieten zijn meestal constant. Waarbij de temperatuur van de inblaaslucht met elektrische heaters naar een minimumtemperatuur wordt gebracht.

Het betreft vaak luchtgekoelde waterkoeler. Het gekoelde water hiervan gaat naar de diverse ventilatorconvectoren die opgesteld staan in de te koelen ruimten.

 

Motivering

Onderstaand voorbeeld van een overzicht van de te handhaven ruimtecondities conform de Basisspecificatie Gebouw van RWS [142]

Bij de opgegeven buitencondities voor winter en zomer dienen, gedurende de gebruikstijden, de onderstaande ontwerp binnen temperaturen in °C gehaald te worden:

 

Tabel 425.1 - Te behalen temperaturen [°C]

  Winter Zomer Naregelbaarheid
sanitaire ruimten

16

25

0

verblijfsruimten:

22

22

3

bedieningsruimte

24

22

3

technische ruimten

16

22

2

verkeersruimten

18

25

0

no-break-ruimten

18

20

2

overige besloten ruimten

5

25

0

 

In de luchtbehandelingsinstallatie dienen de nodige voorzieningen te worden opgenomen ten behoeve van het handhaven van de luchtvochtigheidsgraad in het gebouw, waarbij de relatieve vochtigheid 40 % en 65 % meet. Verder zijn er project specifieke eisen te stellen aan de minimale hoeveelheid toegevoerde verse lucht. De basisspecificatie geeft de volgende waarden:

De minimale hoeveelheid toegevoerde verse lucht (van buitenaf) per m² nuttig vloeroppervlakte dient in de volgende ruimten te zijn:

 

Per contract kunnen afwijkende waarden worden voorgeschreven. Ook de waarden in de landelijke tunnelstandaard wijken hier licht van af.

 

Om deze ruimtecondities te handhaven zijn klimaatinstallaties benodigd. Bij kleine dienstgebouwen kan soms worden volstaan met een airco-unit boven de toegangsdeur.

 

 

 

PLC-ruimte

Artikel nr. 426

Doel

Geconditioneerd verblijf voor de PLC-aansturing.

Toepassingen

Veelal worden middels PLC opstellingen deze ruimtes geïnstalleerd.

Detailontwerp

Vele installaties behoeven intelligente aansturing middels PLC’s. Het betreft hier PLC’s t.b.v. de verkeersinstallaties en ook t.b.v. de klimaat-installaties. De PLC’s zijn veelal centraal opgesteld en bevinden zich in de PLC-ruimte. Deze staat vervolgens in verbinding met de bedienpost van waaruit de tunnel, op afstand, permanent bediend, bestuurd en bewaakt wordt.

Rekening moet worden met sparingen t.b.v. de mechanische koeling.

 

 

Bedieningsruimte

Artikel nr. 427

Doel

Het bieden van ruimte voor bedienend personeel om de tunnelinstallaties te bedienen.

Toepassingen

Bij tunnels die lokaal bediend kunnen worden.

Detailontwerp

De ruimte moet voldoende ruimte bieden om de bedieningspanelen kwijt te kunnen en computer- en videobeeldschermen goed te kunnen observeren.

 

Het tunnelbesturings-, bewakings- en bedieningssysteem heeft in hoofdzaak de volgende vier taken:

  1. Tunneltechnische installaties sturen en bewaken;

  2. Alle onderdelen van de technische installaties sturen en bewaken op afstand;

  3. Communicatie verzorgen tussen de operator en de tunneltechnische installaties en tussen de tunneltechnische installaties onderling;

  4. De operator ondersteunen en adviseren bij zijn taken. De systemen faciliteren de tunnelverkeers-, tunneltechnische- en algemene installaties zodanig dat deze voldoen aan de gestelde (functionele) eisen. Bewaking en bediening van de verkeerstunnels in het hoofdwegennet vindt op een enkele uitzondering na gecentraliseerd plaats vanuit een vijftal regionale verkeerscentrales. Afhankelijk van de transmissievoorzieningen dient te worden voorzien in een sobere bewakings- en bedieningsmogelijkheid.

 

 

Overdrukventilatieruimte

Artikel nr. 428

Doel

Het doel van overdrukventilatie is het vrijhouden van de vluchtgang van rook en andere gassen uit de tunnelbuis tijdens een calamiteit. De ventilatieruimte biedt ruimte aan de overdrukventilator.

Toepassingen

Bij tunnels met een middentunnelkanaal en/of een pompenruimte die onder overdruk moet worden gebracht.

Detailontwerp

Vanuit de ventilatieruimte wordt buitenlucht aangezogen en middels een schacht naar het middentunnelkanaal gevoerd.

 

 

Bluswaterreservoir

Artikel nr. 429

Doel

Het opslaan van bluswater.

Toepassingen

Bij tunnels met een blusinstallatie.

Detailontwerp

Binnen of nabij de tunnel is een reservoir aanwezig met een nuttige inhoud, voldoende voor 1 uur volle capaciteit blussen voor wegtunnels, bij spoortunnels 2 uur á 120m3/h. Dit reservoir wordt gevuld en gevuld gehouden vanuit een (huis)aansluiting op de openbare waterleiding met een capaciteit van plm. 10m3/uur. Het reservoir wordt voorzien van een inspectieluik 800×1000 mm en een stijgbeugel trap.

 

 

Pompenruimte

Artikel nr. 430

Doel

Het bieden van ruimte voor de bluswaterpompen.

Toepassingen

In tunnels met een blusinstallatie.

Detailontwerp

Naast het bluswaterreservoir wordt een ruimte gerealiseerd voor bluswaterpompen met doorvoeren in de wand om water in te nemen.

 

Pantry

Artikel nr. 431

Doel

Het bieden van ruimte om koffie te zetten of een eenvoudige maaltijd te bereiden.

Toepassingen

In dienstgebouwen die langdurig bemand zijn.

Detailontwerp

Een ruimte voorzien van aansluiting op waterleiding en riolering. De grootte is minimaal circa 2,5 x 1,5 m. De ruimte voorzien van koelkast, magnetron, wasbak, kookplaat etc.

Motivering

Een aanrechtblad is 60 cm diep. Beweegruimte is minstens 80 cm.

 

 

Toilet

Artikel nr. 432

Doel

Het bieden van ruimte voor een WC en een fonteintje.

Toepassingen

In dienstgebouwen die langdurig bemand zijn.

Detailontwerp

Een ruimte voorzien van aansluiting op waterleiding en riolering. Een toiletruimte moet een vloeroppervlakte hebben van ten minste 1,0 m x 1,5 m met een plafondhoogte van 2,3 m. Dit is groter dan het bouwbesluit specificeert, in verband met de aanwezigheid van personen met werkkleding. Een toiletruimte moet afsluitbaar zijn.

Motivering

Afmetingen zijn conform Bouwbesluit [75].

 

 

Gang

Artikel nr. 433

Doel

Het bieden van veilige en overdekte toegang tot ruimten.

Toepassingen

In alle dienstgebouwen.

Detailontwerp

Een gang is tenminste 0,85 m breed als deze ook als vluchtroute fungeert en heeft een hoogte van ten minste 2,30 m.

Om installatiedelen door een gang te kunnen verplaatsen is een grotere breedte gewenst, bij voorkeur 2,00 m.

Motivering

De minimale afmetingen zijn conform Bouwbesluit [75]. In de praktijk is gebleken dat 2 meter brede gangen goed voldoen voor intern transport van installatiedelen.

 

 

Trap

Artikel nr. 434

Doel

Overbrugging van hoogte door personen.

Toepassingen

In dienstgebouwen met meerdere niveaus of toegang voor personen naar de ondergelegen tunnelbuis.

Detailontwerp

Trappen dienen te voldoen aan het bouwbesluit [75].

De minimum breedte van een trap is 0,80 m. De minimum vrije hoogte boven de trap is 2,10 m.

Een trap sluit bij de bovenste trede, over de breedte van de trap, aan op een trapbordes met een oppervlakte van ten minste 0,8 m x 0,8 m.

 

Een trap voor het overbruggen van een hoogteverschil van meer dan 1 m en met een helling ter plaatse van de klimlijn groter dan 2:3 heeft aan ten minste één zijkant een leuning.

 

Trappen kunnen met prefab betonnen trapelementen worden gerealiseerd of als stalen trap. In het geval van een stalen trap dient er rekening mee te worden gehouden, dat deze geaard moet zijn. Aardnokken etc. meenemen in het ontwerp om achteraf aanbrengen te voorkomen (denk aan conservering).

Motivering

De minimale afmetingen zijn conform Bouwbesluit [75].

 

 

Opslag/Archief

Artikel nr. 435

Doel

Het bieden van ruimte voor opslagruimte van reserveonderdelen of documenten.

Toepassingen

In alle dienstgebouwen waar een opslag of archief gevraagd is.

Detailontwerp

Hieraan worden geen bijzondere eisen gesteld.

Motivering

De wenselijkheid van archiefruimte is goeddeels komen te vervallen door de digitalisering. In oude tunnels is het bewaren van een fysiek archief van grote waarde gebleken.

 

 

Werkplaats

Artikel nr. 436

Doel

Het bieden van ruimte voor het verrichten van klein onderhoud aan installaties.

Toepassingen

In dienstgebouwen waar ter plaatse klein onderhoud aan installaties moet kunnen worden verricht.

Detailontwerp

Hieraan worden geen bijzondere eisen gesteld.

Motivering

Het voorzien van een werkplaats in een dienstgebouw komt niet vaak meer voor.

 

Constructie

Artikel nr. 437

De constructie van dienstgebouwen kan op verschillende manieren gerealiseerd worden. Er zijn ondergrondse dienstgebouwen in in-situ beton uitgevoerd, bovengrondse dienstgebouwen met een stalen draagconstructie en kanaalplaatvloeren, of prefab betonnen wanden met breedplaatvloeren.

Elke bouwmethode die voor een utiliteitsgebouw kan worden toegepast is geschikt om een dienstgebouw te realiseren. Hierbij moet wel bedacht worden dat bepaalde ruimtes zwaarder belast worden waardoor een relatief zware vloer benodigd kan zijn, bijvoorbeeld door zware geconcentreerde belastingen van transformatoren. Voor gebouwen bij Rijkstunnels is e.e.a. opgenomen in de Basisspecificatie Gebouw [142]. Houd bij het gebouw op de tunnel rekening met de belastingen uit het gebouw: die moeten wel door de tunnel kunnen worden opgenomen, zorg voor voldoende reserve in de constructie van de tunnel om uitbreiding van het gebouw niet onmogelijk te maken.

 

Verschillende installaties stellen stringente eisen aan het binnenklimaat. Gevels worden daarom met isolatie en een spouw uitgevoerd. De hoofddraagconstructie en de niet vervangbare delen moeten voldoen aan de levensduureis van 100 jaar. De isolatie dient bij voorkeur aan de koude buitenzijde aangebracht te worden. Dit kan echter soms niet mogelijk zijn om esthetische redenen. Vanuit de akoestiek worden eisen gesteld aan het maximum toelaatbare geluidsniveau zowel vanuit de installaties als vanuit de buitenruimte. De buitenmuren en het dak, alsmede de inwendige scheidingswanden dienen hierop te worden uitgelegd. Eisen hiervoor zijn opgenomen in de Basisspecificatie Gebouw [142] en zijn verder project specifiek.

 

Deuren dienen voldoende inbraakwerend te zijn. Dit geldt ook voor alle elementen in de gevel, zeker tot het niveau van de eerste verdieping. De buitenschil van het gebouw dient qua inbraakwerendheid te voldoen aan:

Een deel van de deuren dient van ventilatieroosters te worden voorzien. Voor de traforuimtes worden zogenaamde trafodeuren toegepast.

 

 

Details

Artikel nr. 438

In onderliggende artikelen worden voorbeelden gegeven van details zoals deze zijn toegepast in projecten. Gezien de uiteenlopende vormgeving die bij diverse dienstgebouwen is toegepast is niet één best practice te geven.

Trafodeur

Artikel nr. 439

Doel

Het bieden van toegang naar de transformatorruimte en het aanvoeren van ventilatielucht.

Toepassingen

Onderstaande deur is een voorbeeld van een in de markt verkrijgbare trafodeur die wordt toegepast in de gevel van het dienstgebouw bij de transformatorruimtes.

Detailontwerp

In de deursparing in de gevel wordt een aluminium kozijn gemonteerd met corrosievaste stalen bevestigingsmiddelen. Hierbinnen wordt de uit geëxtrudeerde aluminium profielen opgebouwde deur gemonteerd.

Figuur 439.1 - Trafodeur

 

 

Motivering

Trafodeuren zijn voorzien van ventilatieroosters om de warmteproductie van de transformatoren af te voeren.

Conservering

Oppervlaktebehandeling: systeem 6, 1 laags polyester poedercoating droge laagdikte 60 m.

 

 

 

Gevelaansluiting met vloer

Artikel nr. 440

Doel

Het creëren van voldoende isolatie van de buitenmuren en het creëren van een visueel acceptabel uiterlijk, aansluitend op het tunneldek.

Toepassing

Onderstaande detaillering is van het dienstgebouw van de overkapping van de A2 Leidsche Rijn en betreft de buitengevels van dienstgebouwen bij de aansluiting met de vloer.

Detailontwerp

De gevel wordt opgebouwd uit een prefab betonnen binnenblad, isolatie (100 Isover facade), een luchtspouw en natuursteen beplating. De isolatie van XPS loopt door tot op het tunneldek. De XPS isolatie wordt afgewerkt met een waterdichte laag.

Figuur 440.1 - Gevelaansluiting met vloer

 

Motivering

Om het klimaat in het dienstgebouw te beheersen wordt een isolerende gevel toegepast. De isolatie loopt door tot op het tunneldek, tot onder de vorstgrens.

Conservering

Verankeringen worden in RVS uitgevoerd. Hoekprofielen worden voorzien van poedercoating.

 

 

 

Gevelaansluiting met dak

Artikel nr. 441

Doel

Het creëren van voldoende isolatie van de buitenmuren en het creëren van een visueel acceptabel uiterlijk, aansluitend op het dak van het dienstgebouw.

Toepassing

Onderstaande detaillering is van het dienstgebouw van de overkapping van de A2 Leidsche Rijn en betreft de buitengevels van dienstgebouwen, bij de aansluiting met het dak.

Detailontwerp

De gevel wordt opgebouwd uit een prefab betonnen binnenblad, isolatie (100 Isover facade), een luchtspouw en natuursteen beplating. De isolatie loopt door tot boven het dak. De gevel wordt afgedekt met een thermisch verzinkte afdekplaat. Aan de bovenzijde wordt een open voeg gemaakt om ventilatie van de spouw mogelijk te maken.

Figuur 441.1 - Gevelaansluiting met dak

 

Motivering

Om het klimaat in het dienstgebouw te beheersen wordt een isolerende gevel toegepast. De gevel wordt aan de bovenzijde afgedekt om instroom van regenwater te voorkomen. Er zijn openingen voorzien aan de boven- en onderzijde van de spouw om te kunnen ventileren.

Conservering

Verankeringen worden in RVS uitgevoerd. Hoekprofielen worden voorzien van poedercoating. De afdekplaat is thermisch verzinkt.

 

 

 

Afbouw

Artikel nr. 442

Binnen de gevel worden scheidingswanden gezet die voldoende brandwerend zijn. Hiervoor komen betonwanden, kalkcementstenen, of systeemwanden in aanmerking.

Afhankelijk van het gevraagde afwerkingsniveau kunnen wanden afgewerkt worden met een stofbindende coating, bijvoorbeeld gangen, trappenhuizen, stucwerk, of tegels.

Vloerafwerking

Artikel nr. 443

Vloeren worden voorzien van een afwerking afhankelijk van de functie van de ruimte. Verschillende niveaus van afwerking komen voor. Als voorbeeld kan aan de volgende afwerking gedacht worden:

 

Praktijkvoorbeelden

Artikel nr. 444 (bevat geen inhoud, zie onderliggende artikelen)

Dienstgebouw wegtunnel

Artikel nr. 445

Dienstgebouw Noord van de overkapping van de A2 Leidsche Rijn

De Rijksweg A2 is ter hoogte van Utrecht voorzien van een overkapping met een lengte van 1500 m. Per rijrichting zijn er twee tunnelbuizen, één voor lokaal verkeer en één voor doorgaand verkeer. Tussen de tunnelbuizen voor doorgaand en lokaal verkeer zijn middentunnelkanalen gepositioneerd. Er zijn dus twee middentunnelkanalen.

 

 

Figuur 445.1 - doorsnede overkapping A2 Leidsche Rijn

Figuur 445.2 - Dienstgebouw A2 Leidsche Rijn

Figuur 445.3 - Opengewerkte tekening van Dienstgebouw Noord (bron: Rijkswaterstaat Utrecht)

 

 

 

 

Gezien de lengte van de tunnel zijn twee dienstgebouwen voorzien:

 

Dienstgebouw Noord bestaat uit twee verdiepingen en is gelegen boven de twee middelste tunnelbuizen. De volgende ruimtes zijn in Dienstgebouw Noord opgenomen:

 

Onder de begane grondvloeren is een kabelkelder aanwezig. De MS-ruimte, HVI-ruimte, Schakelruimte, No-Break ruimte en PLC-ruimte zijn voorzien van een systeemvloer. Dit biedt de mogelijkheid om gemakkelijk extra kabels aan te brengen of wijzigingen door te voeren. De overige vloeren zijn betonvloeren. Deze zijn voorzien van sparingen om leidingen naar de kabelkelder te voeren.

 

 

Figuur 445.4 - Plattegrond begane grond

Figuur 445.5 - Plattegrond 1e verdieping

Figuur 445.6 - Doorsnede Dienstgebouw Noord

Figuur 445.7 - Dwarsdoorsnede Dienstgebouw Noord t.p.v. het bluswaterreservoir

Figuur 445.8 - Dwarsdoorsnede Dienstgebouw Noord t.p.v. NSA-ruimte

 

 

 

 

De traforuimtes zijn aan de gevel gelegen waardoor deze goed bereikbaar zijn voor het inhijsen van zware transformatoren. Het inkooppunt is met een eigen toegangsdeur in de buitengevel bereikbaar voor de netbeheerder.

De draagconstructie bestaat uit een stalen frame van I-profielen met kanaalplaatvloeren. De wanden zijn opgebouwd uit natuursteenbeplating, een luchtspouw, Isover facade 100 mm en een prefab betonnen beplating. Het dak is gemaakt met een kanaalplaatvloer, isolatie afschotplaten en 1 laags APP gemodificeerde bitumen.

 

 

Dienstgebouw spoortunnel

Artikel nr. 446

De Hanzelijn kruist het Drontermeer met een 800 meter lange tunnel. Op beide tunnelportalen zijn dienstgebouwen gesitueerd. De tweesporige tunnel is voorzien van een middenwand. In geval van een calamiteit kunnen reizigers vluchten van één tunnelbuis naar de andere door de vluchtdeuren. De tunnel is onbemand.

 

 

Figuur 446.1 - Dienstgebouw Drontermeertunnel

 

De volgende ruimtes zijn in de dienstgebouwen opgenomen:

 

Onder alle vloeren is een kabelkelder aanwezig. De tunnel control-ruimte, No-Breakruimte, Besturingsruimte en telecomruimte zijn voorzien van een verhoogde systeemvloer. Dit biedt de mogelijkheid om gemakkelijk extra kabels aan te brengen of wijzigingen door te voeren. De overige vloeren zijn betonvloeren. Deze zijn voorzien van sparingen om leidingen naar de kabelkelder te voeren. In het geval van de LS-ruime zijn dit bijzonder veel sparingen.

 

 

Figuur 446.2 - Plattegrond dienstgebouw Drontermeertunnel

Figuur 446.3 - Langsdoorsnede dienstgebouw Drontermeertunnel

Figuur 446.4 - Dwarsdoorsnede dienstgebouw Drontermeertunnel

 

 

 

Vanuit de spoortunnelbuizen zijn vluchttrappenhuizen naar maaiveld aanwezig. Deze kunnen ook door de brandweer worden gebruikt voor betreding van de tunnel.

De traforuimtes zijn aan de gevel gelegen waardoor deze goed bereikbaar zijn voor het inhijsen van zware transformatoren. Het inkooppunt is met een eigen toegangsdeur in de buitengevel bereikbaar voor de netbeheerder.

De draagconstructie bestaat uit prefab betonnen wanden, aan de binnenzijde afgewerkt met isolatie en systeemwanden. Aan de buitenzijde zijn prefab betonnen gekleurde gevelplaten toegepast en corten-stalen lamellen. Het dak is gemaakt met een breedplaatvloer, PS-isolatie en EPDM-dakbedekking.

 

 

 

Afbouw

Artikel nr. 447 (bevat geen inhoud, zie onderliggende artikelen)

Specifieke aspecten wegtunnels

Artikel nr. 448 (bevat geen inhoud, zie onderliggende artikelen)

Verharding

Artikel nr. 449

Functie

De verharding in een tunnel dient voor de weggebruiker veilig en comfortabel te zijn.

Bij het gesloten deel heeft de verharding tevens de functie van de afvoer van calamiteitenvloeistof.

Toepassingen

Toe te passen in verkeerstunnels.

Detailontwerp

Met uitzondering van het overgangsgedeelte mag volgens de Basisspecificatie TTI RWS Tunnelsysteem 1.2 [80] bij tunnels met een langshelling in het gesloten deel geen ZOAB toegepast worden. Asfaltbeton heeft als voordeel t.o.v. ZOAB dat bij asfaltbeton een kleiner plasoppervlak ontstaat. Veelal wordt DAB toegepast, maar bijvoorbeeld bij de Westerscheldetunnel is SMA toegepast.

 

Voorafgaande aan het aanbrengen van de asfaltlagen wordt een hydrofobeerlaag aangebracht op de constructieve betonnen vloer.

Van gehydrofobeerd beton mag het volgende verwacht worden:

 

Het ontwerp van een asfaltverharding in tunnels wordt bepaald door:

 

De aanbevolen verhardingsopbouw is beschreven in hoofdstuk 13.14 van de ROK [27]. De ZOAB laag heeft een beperkte drainerende functie, watervoerende scheuren in vloeren dienen echter zoveel mogelijk voorkomen worden. Met name bij vloeren gestort op een onderwaterbetonvloer zijn het ontstaan van doorgaande scheuren een risico.

 

Naast het toepassen van DAB is hydrofoberen noodzakelijk om de onderliggende constructie tegen chloride indringing te beschermen.

 

In tunnels wordt geen rekening gehouden met overlaying van de asfaltconstructie, omdat:

 

Het vervangen van de verhardingsconstructie, incl. het uitfrezen van de oude laag met een globale levensduur van ca. 12 jaar heeft een impact op de beschikbaarheid van de tunnel en kan niet gecombineerd worden met het vervangen van de tunnelinstallaties met een levensduur van normaliter ca. 15 jaar.

 

In het verleden zijn afwegingen gemaakt om betonnen wegdekken in tunnels aan te brengen, naast economische overwegingen spelen de volgende aspecten hierbij een rol:

Motivering

De aan te brengen verharding dient o.a. aan de volgende eisen te voldoen:

Conservering

Niet van toepassing.

Aspecten ten aanzien van de RAMS-score

Tabel 449.1 - Aandachtspunten RAMS-criteria

Variant

Verharding

R

Reliability
(Betrouwbaarheid)

Goed, geen bijzonderheden.

A

Availability
(Beschikbaarheid)

Goed, geen bijzonderheden.

M

Maintainability
(Onderhoudbaarheid)

Goed, geen bijzonderheden.

S

Safety
(Veiligheid)

Goed, geen bijzonderheden.

 

 

 

 

Afwatering

Artikel nr. 450

Functie

Het afvoeren van hemelwater en vrijkomende vloeistoffen (benzine e.d.) van het wegverkeer. Het direct afvoeren voorkomt plasvorming op het wegdek.

Toepassingen

In verkeerstunnels.

Detailontwerp

Het wegdek wordt in verkanting aangebracht. Dit is te bereiken door de bovenkant van de betonnen vloerconstructie reeds onder verkanting aan te brengen. Daarover wordt dan de asfaltlagen aangebracht.

Een andere mogelijkheid is om de bovenkant vloer vlak te houden en de asfaltverharding onder verkanting aan te brengen.

De dwarshelling in het wegdek dient minimaal 2,5% te zijn (BSTTI [80]).

Het hemelwater wordt naar de zijkant van het wegdek afgevoerd naar een watergoot. In deze watergoot zijn putten opgenomen die het hemelwater afvoeren via afvoerbuizen naar een water- /pompkelder. Vanaf deze water-/pompkelder vindt de verdere afvoer plaats d.m.v. persleidingen.

Bij verkantingovergangen (lokaal dwarsverkanting 0%) dient rekening gehouden te worden met het toelaatbare plasoppervlak van uitstromende vloeistoffen bij een calamiteit (BSTTI [80]). Aanvullende maatregelen zijn bijvoorbeeld extra inlaatroosters.

Motivering

Het hemelwater/vloeistoffen dienen zo snel mogelijk afgevoerd te worden. De samenstelling van de verharding is hierbij van belang. Er mag geen plasvorming ontstaan en spoorvorming in het asfalt.

Conservering

Niet van toepassing.

 

 

Voertuigkering

Artikel nr. 451 (bevat geen inhoud, zie onderliggende artikelen)

Stepbarrier

Artikel nr. 452

Functie

Geleiden van het verkeer, de profielen worden zodanig vormgegeven dat bij een aanrijding van het profiel de gevolgen voor voertuigen en de inzittenden daarvan relatief beperkt blijven. Daarnaast is de functie van de stepbarrier het beschermen van de wanden bij ongelukken.

Toepassingen

In verkeerstunnels, onderdoorgangen en aquaducten.

Detailontwerp

De functionele opbouw van de geleidebarrier (Stepbarrier) is als volgt:

De hellingshoek van de Stepbarrier is gesteld op 9 gon. De staphoogte bedraagt 250 mm. Bij een aanrijding onder een flauwe hoek (tot 20°) zal het voertuig (als bij een trottoirband) worden teruggeleid. Het schuin lopende gedeelte heeft een hoogte van 50 mm. Bij een aanrijhoek groter dan 20° kan het voertuig op dit vlak komen en wordt dan teruggeleid (dit gaat des te beter naarmate het oppervlak gladder is). Bij een grotere hellingshoek van het schuine gedeelte (zoals bij een NJ-barrier) is de kans op een “roll-over” groter.

Indien een barrier tegen een wand geplaatst wordt is het bovenste deel van de barrier 500 mm. Staat de barrier vrij (b.v. bij de as van de weg en t.p.v. een aardenbaan) dan is deze maat 600 mm.

 

Het bovenste gedeelte van de barrier is standaard 600 mm. De motivatie voor de lagere hoogte dan de standaardhoogte, is dat in een tunnel de barrier er niet voor hoeft te zorgen dat voertuigen niet over de barrier geraken. De overgang van een standaard profiel naar een laag profiel vindt plaats aan het begin van het gesloten deel. Het afwaterend bovenvlak bedraagt 10 mm. Daarnaast kan bij een lagere barrier de hulppostkast type 1 lager geplaatst worden.

Dit gedeelte dient ter bescherming van de tunnelwand, de helling dient om schade aan voertuigen te beperken.

De geleidebarrier werd voorheen hoofdzakelijk uitgevoerd in gewapend prefab beton en in lengten van max. 6000 mm i.v.m. de hanteerbaarheid.

De geleidebarrier wordt gesteld op de vloer en tegen de wand d.m.v. stelbouten en vervolgens ondersabelt met chloridevrije krimparme cementgebonden gietmortel laagdikte min. 20 mm.

De ruimte tussen de geleidebarrier en de wand achtervullen met een mengsel van zand/cement specie dik min. 25 mm.

Bij toepassing van ZOAB als wegverharding is de geleidebarrier hoger dan bij DAB. De maat van bovenkant barrier tot bovenkant verharding is wel onafhankelijk van het type verharding.

 

De tendens is, zeker bij lange tunnels, om de barriers niet als prefab uit te voeren, maar te realiseren middels een slip-form paver. In het rapport “Stepbarrier, een stap nader” [143] wordt nader ingegaan op de voor- en nadelen.

 

Afmetingen en belastingen

De standaard afmetingen van de barrier zijn:

 

Het kerend vermogen van de barrier is loodrecht op de barrier dient te voldoen aan de belastingen uit de ROK [27]. De werking van de barrier mag hierdoor niet worden aangetast.

 

De keuze voor de hellingshoek van 9 gon is afhankelijk van de negatieve of positieve verkanting (2,5%) van autosnelwegen. Om redenen van eenvoud en esthetica is de hellingshoek van 9 gon vastgesteld.

 

De hoogte van de barriers is 900 mm. De keuze voor 900 mm is gebaseerd op:

 

De keuze van 200 mm voor de bovenbreedte is:

 

In een tunnel is de toepassing van een “half profiel” mogelijk. Wel dient de geometrie van het aanrijdingsvlak hierdoor niet te worden gewijzigd.

 

 

Figuur 452.1 - Doorsnede Stepbarrier bij toepassing DAB

Figuur 452.2 - Doorsnede Stepbarrier bij toepassing ZOAB

Figuur 452.3 - Doorsnede stepbarrier bij toepassing vrijstaande stepbarrier

 

 

 


Motivering

De standaardhoogte van de barrier is 900 mm. Alleen indien er niet voldoende (bijvoorbeeld bij hulpposten) ruimte is mag van de standaardhoogte worden afgeweken. Indien de barrier tegen de wand geplaatst wordt, is een totale hoogte van 800 mm acceptabel.

 

Om de breedte en daarmee de bouwkosten te beperken wordt in verkeerstunnels en eventueel in onderdoor­gangen en aquaducten gekozen voor een geleidebarrier i.p.v. een geleiderail. Daarnaast is de toegankelijkheid van vluchtdeuren en bereikbaarheid van hulpposten beter bij een barrier dan bij een stalen geleiderail.

 

Onderbouwing van de Stepbarrier is terug te vinden in:

 

Aspecten ten aanzien van de RAMS-score

Tabel 452.1 - Aandachtspunten RAMS criteria (bij toepassing stepbarrier)

Variant

Stepbarrier

R

Reliability
(Betrouwbaarheid)

Goed, geen bijzonderheden.

A

Availability
(Beschikbaarheid)

Goed, geen bijzonderheden.

M

Maintainability
(Onderhoudbaarheid)

Goed, geen bijzonderheden.

S

Safety
(Veiligheid)

Goed, geen bijzonderheden.

 

Tabel 452.2 - Aandachtspunten RAMS criteria (bij toepassing geleiderail)

Variant

Geleiderail

R

Reliability
(Betrouwbaarheid)

Goed, geen bijzonderheden.

A

Availability
(Beschikbaarheid)

Matig, levensduur beperkt i.v.m. omgevingsmilieu.

M

Maintainability
(Onderhoudbaarheid)

Matig, voor onderhoud moeten rijstro(o)k(en) afgezet worden

S

Safety
(Veiligheid)

Goed, mits op voldoende afstand van de wand geplaatst.

 

Conservering

Toevoegingen toepassen aan de betonmortel t.b.v. het verhogen van de vorst- en dooizoutbestendigheid (zie BetonTech BT99.007).

 

Slipformpaver

Indien de stepbarrier gemaakt wordt met de slipformpaver zijn met betrekking daartoe de eisen opgenomen in hoofdstuk 6.3 van het document “Stepbarrier, een stap nader”.

 

 

Detaillering stepbarrier t.p.v. voeg (onderling)

Artikel nr. 453

Functie

Het opvangen van speling in de lengte van de prefab elementen.

Detailontwerp

De breedte van de voeg is 50 mm ± 15 mm. De scherpe hoeken van de geleidebarrier worden voorzien van vellingkanten 15*15 mm.

De voegen worden aan de achterzijde van de geleidebarrier dichtgezet met Airex.

De voegen aan de onderzijde tussen de geleidebarriers (behalve de dilatatievoegen) worden gedeeltelijk vol gezet met gietasfalt, om zodoende te voorkomen dat opgesloten water door bevriezing tot schade kan leiden

De dilatatievoegen van de geleidebarriers worden elders beschreven.

Motivering

De rubberhoudende elastisch blijvende bitumineuze voegvulling voorkomt het binnendringen van water in de zand/cement specie (voorkomen van vorstschade).

Conservering

Niet van toepassing


 

Figuur 453.1 - Doorsnede t.p.v. voeg bij toepassing DAB

 

Detail geleidebarrier/wand

Artikel nr. 454

Functies

Het opvangen van speling in de lengte van de prefab elementen.

Detailontwerp

De geleidebarrier aan de achterzijde bovenin voorzien van een sponning.

Bij de productie van de geleidebarriers wordt er een lat 5*15 mm opgenomen in de bekisting. Deze lat blijft tot ná het achtervullen aanwezig en voorkomt zodoende vervuiling van de sponning. Zie figuur 454.1.

De voegvulling aanbrengen nadat de lat verwijderd is en de aanhechtingsoppervlakken zijn vrijgemaakt van stof, vocht, vet, olie en eventuele specieresten.

Bij het detail geleidebarrier/wand met tegels ervoor zorgen dat de rubberhoudende elastisch blijvende bitumineuze voegvulling ruim voldoende wordt opgezet tegen de tegelwand. Zie figuur 454.2.

Motivering

De rubberhoudende elastisch blijvende bitumineuze voegvulling voorkomt het binnendringen van water in de zand/cement specie (voorkomen van vorstschade).

Conservering

Niet van toepassing.

Figuur 454.1 - Detail geleidebarrier/wand

Figuur 454.2 - Detail geleidebarrier/wand met tegels

 

 

 

 

Geleidebarrier t.p.v. vluchtdeur

Artikel nr. 455

Functies

Onderbreking in de geleidebarrier t.b.v. de toegang naar het middenkanaal. De onderbreking zodanig uitvoeren dat de geleidende functie zo goed mogelijk wordt gewaarborgd en dient in de eindsituatie minimaal 250 mm hoog te zijn.

Toepassingen

De vluchtdeuren en deuren in verkeerstunnels, onderdoorgangen en aquaducten.

Detailontwerp

De onderbreking moet altijd beginnen boven het onderste schuine vlak. Voor de werking van de geleidebarrier is het onderste schuine vlak van essentieel be­lang.

De onderbreking niet onnodig groot maken, maar dient wel minimaal 1600 mm te zijn om ruimte te geven ten behoeve van omstanderhulp.

Om in de rijrichting geen haaks aanrijpunt te krijgen dient het bovenste gedeelte van de geleidebarrier aan de rijrichtingszijde te worden voorzien van een afschuining. Bij tidal-flow dus aan weerszijden.

Het bovenvlak van de horizontale opstap afwaterend maken. De voeg tussen de geleidebarrier en de wand van de horizontale opstap waterdicht afsluiten met een rubberhoudende elastisch blijvende bitumineuze voegvulling (zie detailontwerp figuur 455.2).

De scherpe hoeken van de geleidebarrier voorzien van vellingkanten 10*10 mm.

Motivering

Een goede bereikbaarheid van het middenkanaal en pompenkamers, met behoud van een zo goed mogelijke verkeersgeleiding.

Conservering

Niet van toepassing.

Figuur 455.1 - Vooraanzicht geleidebarrier t.p.v. vluchtdeur (plaatje voldoet niet aan Rarvw)

 

 

Figuur 455.2 - Doorsnede geleidebarrier t.p.v. vluchtdeur

 

Geleidebarrier t.p.v. middenkelder / hoofdwaterkelder

Artikel nr. 456

Functies

Onderbreking in de geleidebarrier t.b.v. de toegang naar de middenkelder/hoofdwaterkelder.

Toepassingen

De toegang naar de zandvang van de middenkelder/hoofdwaterkelder in verkeerstunnels, onderdoorgangen en aquaducten.

Detailontwerp

De lengte van de onderbreking wordt bepaald door de afmeting van het inlaatrooster/afdekplaat.

De onderbreking tussen de geleidebarriers wordt overbrugd met een 10 mm dikke RVS plaat in de buitenvorm van de geleidebarrier.

De roestvast stalen plaat wordt m.b.v. knevels bevestigd aan de ingestorte roestvast stalen omranding van de geleidebarrier.

Motivering

Een goede bereikbaarheid van de zandvang van de kelders met behoud van de verkeersgeleiding.

Conservering

De plaat, knevelconstructie en omranding uitvoeren in roestvast staal.

 

Figuur 456.1 - Aanzicht en details geleidebarrier middenkelder/hoofdwaterkelder

Figuur 456.2 - Details geleidebarrier middenkelder/hoofdwaterkelder

 

 

Geleidebarrier t.p.v. inlaatputten (bij toepassing ZOAB)

Artikel nr. 457

Functies

Onderbreking in de geleidebarrier t.b.v. de bereikbaarheid van de inlaatputten.

Toepassingen

De inlaatputten onder de Stepbarriers bij toepassing van ZOAB in verkeerstunnels, onderdoorgangen en aquaducten.

Detailontwerp

Er wordt een sparing in de onderzijde van de Stepbarrier gemaakt. Deze sparing wordt afgedekt met een scharnierende roestvast stalen klep met een dikte van 10 mm.

De roestvast stalen klep wordt m.b.v. een knevelconstructie geborgd aan de ingestorte roestvast stalen omranding van de geleidebarrier.

Motivering

Een goede bereikbaarheid van de inlaatputten met behoud van de verkeersgeleiding.

Conservering

De klep, knevelconstructie en omranding uitvoeren in roestvast staal.

 

Figuur 457.1 - Aanzicht en details geleidebarrier t.p.v. inlaatput

 

 

Overgang t.p.v. buitenwand

Artikel nr. 458

Functies

Een geleidelijke overgang maken van een flexibele/verstijfde geleiderail naar een starre geleidebarrier.

Toepassingen

Aan het begin en einde van de betonnen buitenwandconstructie van de toeritten van verkeerstunnels, onderdoorgangen en aquaducten.

Detailontwerp

Buiten de betonnen bakconstructie de voorgeschreven ROA [54] overgang maken van een flexibele geleiderail naar een verstijfde geleiderail. De laatste achterplank van de geleiderail verankeren tegen de kopzijde (of achterzijde) van de betonnen buitenwand. Aan de voorzijde een getordeerde (12°) geleideplank met behulp van plooibare afstandhouders bevestigen aan de betonnen buitenwand.

De geleidebarrier zowel verticaal als horizontaal afschuinen (horizontale hoek max. ca. 3° resp. 1:20 t.o.v. kantstreep) en beginnen buiten de voorplank van de geleiderail.

 

Als in de aansluitende berm geen geleiderail vereist is, dan dient de barrier of een geleiderail over een bepaalde afstand door te lopen overeenkomstig het handboek bermbeveiligingsvoorzieningen. Hierbij verloopt het profiel in hoogte geleidelijk tot voorbij de gevarenzone.

Motivering

Deze overgang is een principeoplossing en wordt toegepast indien de geleidebarrier deel uitmaakt van een betonnen buitenwandconstructie in verkeerstunnels, onderdoorgangen en aquaducten.

De onderbouwing hiervan is terug te vinden in de,

Conservering

Alle stalen onderdelen thermisch verzinken volgens NEN-EN-ISO 1461.

Figuur 458.1 - Aanzichten en details overgang geleidebarrier t.p.v. buitenwand

 

Overgang t.p.v. middenberm

Artikel nr. 459

Functies

Een geleidelijke overgang maken van een flexibele/verstijfde geleiderail naar een starre geleidebarrier.

Toepassingen

Aan het begin en einde van de betonnen bakconstructie van de inrit en de uitrit in de middenberm van verkeerstunnels, onderdoorgangen en aquaducten.

Detailontwerp

Buiten de betonnen bakconstructie de in ROA [54] voorgeschreven overgang maken van een flexibele geleiderail naar een verstijfde geleiderail. De laatste achterplank van de geleiderail verankeren tegen de achterzijde van de betonnen wand. Aan de voorzijde een getordeerde (12°) geleideplank met behulp van plooibare afstandhouders bevestigen aan de betonnen wand.

Het overgangsprofiel van de geleidebarrier zowel verticaal als horizontaal afschuinen (horizontale hoek max. ca. 3° resp. 1:20 t.o.v. de kantstreep) en beginnen buiten de voorplank van de geleiderail.

Het betonnen overgangsprofiel wordt geplaatst op en tegen een betonnen plaat/wand.

Motivering

Deze overgang is een principe-oplossing en wordt voornamelijk toegepast indien de geleidebarrier deel uitmaakt van een betonnen wandconstructie in verkeerstunnels, onderdoorgangen en aquaducten.

De onderbouwing hiervan is terug te vinden in de:

Conservering

Alle stalen onderdelen thermisch verzinken volgens NEN-EN-ISO 1461.

Figuur 459.1 - Aanzichten en details overgang geleidebarrier t.p.v. middenberm

 

 

 

Hulpposten

Artikel nr. 460

In wegtunnels worden hulpposten opgenomen, met voorzieningen voor zowel weggebruikers als overheidshulpdiensten.

Kozijn en deuren grote hulppost (type 1)

Artikel nr. 461

Functie

Toegang bieden tot brandblusmiddelen en communicatiemiddelen voor de weggebruiker en overheidshulpdiensten. Het beschermen ervan tegen weers- en milieu-invloeden.

Toepassingen

In de middenwanden van verkeerstunnels in het gesloten gedeelte, de overgangsgedeelten en eventueel in de toeritten. De hulppostkast type C moet doorgezet worden tot het niveau waar de wandhoogte nog voldoende is om de hulppostkast in te bouwen. Voor type 1 geldt dat deze, bij voorkeur aan de inritzijde van de tunnel, doorgezet wordt als er een vanaf de weg bereikbare middenwand aanwezig is.

Voor toepassing en detailontwerp wordt verwezen naar de Landelijke Tunnelstandaard (LTS ) [90] en de Regeling aanvullende regels veiligheid wegtunnels (Rarvw) [106].

Detailontwerp

Conform de BSTTI [80] bestaat het kozijn uit een RVS profiel in kwaliteit 316L. De dubbele deuren zijn voorzien van isolerend gehard glas met een RVS kader.

De scharnieren zijn aan de binnenzijde van de hulppost aangebracht waarbij de deuren openen zoals deuren bij autobussen opengaan. De sluiting bevindt zich aan de wandzijde van de eerst openende deur en bestaat uit een verzonken RVS draaiknop. De deur met de sluiting sluit in de rijrichting.

De hulppost wordt onderverdeeld in een deel ten behoeve van de weggebruiker en een technisch deel. Het deel met voorzieningen voor de weggebruikers is aangebracht achter de eerst openende deur. Deze deur opent met de rijrichting mee. Het technische deel (voor de brandweer en ten behoeve van onderhoud) zit achter de laatst openende deur en wordt voor de weggebruiker afgeschermd door een afsluitbare scharnierende plaat. Er is voor deze lay-out gekozen om ervoor te zorgen dat de eerste deur niet dichtslaat door de winddruk van langsrijdend verkeer waardoor de gebruiker tussen de deur komt of de slanghaspel niet bruikbaar is.

In verband met lekkages van het brandblussysteem wordt de hulppost voorzien van een ontwateringsgootje.

De afmetingen van de hulppost type 1 zijn 1550 mm (b) x 1500 mm (h). Het gaat hier om de maten van de inkassing in het beton. De diepte van de inkassing van de hulppost is minimaal 470 mm. Bij dunne wanden van ca. 500 mm wordt een doorgaande sparing aangebracht, waarbij de achterzijde wordt afgedicht met hittewerende bekleding.

Het kozijn van de hulppostkast heeft een rode kleur (RAL 3000).

Motivering

Bij het ontwerp van deze hulppost wordt ernaar gestreefd de hoeveelheid metalen delen aan de buitenzijde te minimaliseren. Er wordt bij deze hulppost dan ook wel gesproken over “volglas” deuren. De scharnieren van de deuren zitten bij dit type deur aan de binnenzijde. Het voordeel hiervan is dat ze niet vervuilen en mogelijk vast komen te zitten en niet kunnen worden beschadigd door de borstels indien van wandenwaswagens gebruik wordt gemaakt.

Isolerende uitvoering: geen condens aan binnenzijde beglazing in verband met de herkenbaarheid van brandblus- en communicatiemiddelen.

Een hulppost dient zo dicht mogelijk bij de vluchtdeuren geplaatst te worden, zodat de brandweer bij een calamiteit, komende vanuit het middentunnelkanaal, snel bij de hulppost is.

De rode rand om de hulpposten wordt aangebracht vanwege de herkenbaarheid van de hulpposten. Hiervoor een materiaal gebruiken dat bestand is tegen het geweld van de borstels van de wandenwaswagen, bv poedercoating. Verf is hiertegen niet goed bestand.

Conservering

Blank geanodiseerd aluminium.

RVS kwaliteit 316L.

Tabel 461.1 - Aandachtspunten RAMS-criteria

Variant

Grote hulppost

R

Reliability
(Betrouwbaarheid)

Goed, geen bijzonderheden.

A

Availability
(Beschikbaarheid)

Goed, geen bijzonderheden.

M

Maintainability
(Onderhoudbaarheid)

Goed, geen bijzonderheden.

S
Safety
(Veiligheid)

Goed, geen bijzonderheden.

Figuur 461.1 - Kozijn en deuren grote hulppost

Figuur 461.2 - Hulppost Hubertustunnel

Figuur 461.3 - Hulppost type 1

 

 

 

 

 

 

 

 

 

Kozijn en deur kleine hulppost (type 2)

Artikel nr. 462

Functie

Toegang bieden tot brandblusmiddelen en communicatiemiddelen. Het beschermen ervan tegen weers- en milieu-invloeden.

Toepassingen

In de buitenwanden van verkeerstunnels tegenover de grote hulpposten in het gesloten gedeelte, overgangsgedeelten en eventueel in de toeritten.

Detailontwerp

Voor detailontwerp wordt verwezen naar de Landelijke Tunnelstandaard (LTS) [90] en de Regeling aanvullende regels veiligheid wegtunnels (Rarvw) [106].

In verband met lekkages van het brandblussysteem wordt de hulppost voorzien van een ontwateringsgaatje.

De afmetingen van de hulppost zijn 550 mm (b) x 850 mm (h). Het gaat hier om de maten van de inkassing in het beton. De diepte van de inkassing van de hulppost is minimaal 450 mm. Bij dunne wanden van ca. 500 mm wordt een doorgaande sparing aangebracht, waarbij de achterzijde wordt afgedicht met hittewerende bekleding.

Het kozijn van de hulppostkast heeft een rode kleur (RAL 3000).

Motivering

Bij het ontwerp van deze hulppost is ernaar gestreefd de hoeveelheid metalen delen aan de buitenzijde te minimaliseren. Er wordt bij deze hulppost dan ook wel gesproken over “volglas” deuren. De scharnieren van de deuren zitten bij dit type deur aan de binnenzijde. Het voordeel hiervan is dat ze niet vervuilen en mogelijk vast komen te zitten en niet kunnen worden beschadigd door de borstels indien van wandenwaswagens gebruik wordt gemaakt.

Isolerende uitvoering: geen condens aan binnenzijde beglazing in verband met de herkenbaarheid van brandblus- en communicatiemiddelen.

De rode rand om de hulpposten wordt aangebracht vanwege de herkenbaarheid van de hulpposten.Hiervoor een materiaal gebruiken dat bestand is tegen het geweld van de borstels van de wandenwaswagen, bv poedercoating. Verf is hiertegen niet goed bestand.

 

Afdichting achterzijde grote hulppost en nis brandblusleiding

Artikel nr. 463

Functie

Het brand- en/of hittevrij houden van het middentunnelkanaal bij brand in één der tunnelbuizen. Bescherming bieden van de brandblusleiding bij brand.

Toepassingen

In de wanden van het middentunnelkanaal van verkeerstunnels achter de hulpposten en vóór de brandblusleiding in het gesloten gedeelte, overgangsgedeelten en toeritten.

Detailontwerp

Ter plaatse van het gesloten gedeelte worden de hulppost en de nis aan de middentunnelkanaalzijde afgedicht met hittewerende bekleding. De hittewerende bekleding dient voor 2 uur branddoorslag te voorkomen. Terplaatse van de toeritten wordt de sparing van de hulppost niet helemaal doorgezet. Er is dus aan de achterzijde geen afdichting nodig. In verband met de vereiste dekking in relatie tot de levensduur en de eisen ten aanzien van brandwerendheid zal de wanddikte minimaal 600mm moeten zijn. In de landtunnel (lagere eisen) A2 tunnel te Maastricht zijn de wanden 500 mm. De plaats van de nis onder de hulppost t.b.v. de brandblusleiding is afhankelijk van de plaats van de brandblusleiding in de kabelgoot (zie doorsneden B en B’).

Motivering

De nis ten behoeve van de brandblusleiding in de toeritten is wat groter dan die in het gesloten gedeelte, omdat de compensator die tussen de brandblusleiding en de haspel zit niet in de kabelgoot past en dus gedeeltelijk in de nis wordt geplaatst.

Conservering

Niet van toepassing.

Figuur 463.1 - Afdichting achterzijde hulppost en nis brandblusleiding

 

 

Details achterzijde hulppost en nis brandblusleiding

Artikel nr. 464

Functie

Het voorkomen van branddoorslag naar het middentunnelkanaal en een veilige vluchtweg garanderen gedurende 120 minuten bij brand in één der tunnelbuizen.

Toepassingen

In de wanden van het middentunnelkanaal van verkeerstunnels achter de hulpposten en vóór de brandblusleiding in het gesloten gedeelte, overgangsgedeelten en toeritten.

Detailontwerp

Een paneel van twee Promatect-H platen wordt in een in het beton gecreëerde sponning gemonteerd met boorankers M10. Een strook compriband zorgt voor een goede afdichting. In het midden wordt de naad tussen de twee Promatect-H platen afgedekt met een Promatect-H strook, breedte 10 centimeter en bevestigd met parkers M6. De nis van de brandblusleiding wordt eveneens afgedicht met een Promatect-H plaat. De naad tussen afdichting hulppost en nis wordt afgedekt met een Promatect-H strook, breedte 10 centimeter en bevestigd met parkers M6.

Motivering

De afdichting, verzorgd door het compriband, is nodig voor het opbouwen van een overdruk in het middentunnelkanaal. Promatect-H voldoet aan de eisen met betrekking tot hittewering.

Conservering

Bevestigingsmiddelen dienen uitgevoerd te worden in RVS kwaliteit A4.

 

 

Figuur 464.1 - Details achterzijde hulppost en nis brandblusleiding

 

Achtergronden hulpposten

Artikel nr. 465

In de BSTTI [80] en Rarvw worden eisen gesteld m.b.t. locaties, toepassing en uitrusting van hulpposten. Hierin wordt ondermeer aangegeven in welke situatie welk type hulppost moet worden toegepast, en wordt tevens de h.o.h. afstand aangegeven.

Er wordt onderscheid gemaakt tussen de grote hulppost (type 1) en de kleinere types (2).

 

Voor de grote hulppost geldt dat het deel van de hulppost dat bestemd is voor gebruik door de weggebruiker moet worden afgeschermd met een doorzichtige deur om de weggebruiker te laten zien wat er achter de deur te vinden is. Het deel dat bestemd is voor (professionele) hulpverleners moet worden afgescheiden met een ondoorzichtige deur.

 

De grote hulpposten (type) moeten binnen 2 tot 10 m (gemeten in de rijrichting) vanaf de vluchtdeuren worden aangebracht. Op deze manier is de weg voor de hulpverleners, die via het middenkanaal de calamiteitenbuis bereiken, van de vluchtdeur naar de hulppost zo kort mogelijk. Indien er sprake is van tidal-flow staat men vrij in de keuze van de richting van de vluchtdeur.

Aangezien de schuifdeuren geopend worden in de richting van de rijrichting, zal bij geopende toestand de schuifdeur zich bevinden tussen de deuropening en hulppost. Bij bijvoorbeeld de A2 tunnel te Maastricht is een afstand van 4m tussen deur en hulppost aangehouden om de krachten in de middenwand over te kunnen dragen.

 

De maximale afstand tussen hulpposten is 60m. De afstand zal in de praktijk echter nooit groter zijn dan 50 m. Deze maat kan worden afgeleid uit de eisen in de BSTTI [80] ten aanzien van de hart op hartafstand van vluchtdeuren 100 m en 250 m in het geval van dwarsverbindingen.

 

De reden dat gekozen is voor dit type en materiaal hulppost heeft te maken met een aantal problemen met hulpposten die bij diverse tunnels zijn opgetreden.

Bij een groot aantal tunnels is namelijk corrosievorming op de aluminium kozijnen en deuren opgetreden.

Er zijn in de afgelopen jaren diverse onderzoeken gedaan naar deze corrosievorming, o.a. bij de Botlektunnel, Wijkertunnel, IJtunnel. Vrijwel in alle tunnels kun je corrosie constateren op de hulpposten. De oorzaken zijn velerlei, te weten:

Er zijn door diverse instanties al onderzoeken gedaan, vaak om juridisch sterk te staan voor het verhalen van de schade, maar eenvoudig is het niet omdat diverse factoren elkaar versterken en de oorzaak dus niet eenduidig is; zo is bijv. het schoonmaakmiddel (Jonclean 112) een mogelijke oorzaak omdat, indien het achterblijft op het aluminium, het indampt en daardoor agressief wordt voor aluminium.

Het schoonmaken geschiedt mechanisch d.m.v. de wandenwaswagen. Hoewel reeds is aangegeven dat schoonmaken van deze deuren en ramen anders zou moeten, blijft het (vermoedelijk omwille de kosten) veelal een verwaarloosd onderdeel.

 

Bij de Wijkertunnel is door TNO een onderzoek uitgevoerd naar de oorzaak van corrosie die is opgetreden op onderdorpels van de hulppostkasten. Hieruit bleek dat de oorzaak voornamelijk moet worden gezocht in de detaillering en conservering van de hulpposten. (TNO-rapport BU4.99/030600-1/RK [144])

 

Gevoelig onderdeel is de detaillering en uitvoering van het hang- en sluitwerk; door de aannemer wordt altijd gezocht naar de goedkoopste onderaannemer en dan is bewaking van de kwaliteit van het geleverde uitermate belangrijk.

 

Er is gezocht naar een materiaal en detaillering die minder gevoelig zijn voor de elementen. De hier aangegeven oplossing voldoet daar zoveel mogelijk aan. De grote hulppost is enige tijd geleden bij wijze van proef vervaardigd en geplaatst in de Drechttunnel. De deuren bestaan zoveel mogelijk uit glas; de kaders en de kozijnen zijn vervaardigd uit RVS 316(L) en zijn zo klein mogelijk van oppervlak gehouden; de deuren zijn voorzien van inwendige scharnieren. De hulppost is destijds (2000) door Rijkswaterstaat op bouwkundige aspecten en door de regionale brandweer op de openingsmethodiek getest en positief beoordeeld. De hulppost die bij de Drechttunnel is toegepast is nog op een aantal punten verbeterd zodat hij voldoet aan de eisen van de destijds vigerende norm VRC. Daarnaast zijn de afmetingen van de hulppost nog enigszins aangepast omdat de brandslang bij het uitrollen van de haspel onder bepaalde situaties tegen het scharnier aanliep. De hulppost is 0,10 meter breder gemaakt en is nu 1,60 meter breed en 1,50 meter hoog.

 

 

Overige

Artikel nr. 466 (bevat geen inhoud, zie onderliggende artikelen)

Afdekband

Artikel nr. 467

Functies

Een esthetisch verantwoord geheel maken.

Het indringen van het water zoveel mogelijk voorkomen.

Toepassingen

Boven op de betonwanden van de toeritten en eventueel andere plaatsen van verkeerstunnels, onderdoorgangen en aquaducten.

Detailontwerp

De vorm van de afdekband wordt in de meeste gevallen in overleg met de architect bepaald.

De elementen uitvoeren in een lengte van max. 4000 mm (i.v.m. hanteerbaarheid).

De elementen bevestigen met R.V.S. ankers en stellen op stelbouten. Vervolgens ondersabelen en injecteren met injectiemortel via PVC Æ 50 mm.

De onderlinge voegen dicht zetten met chloridevrije krimparme cementgebonden mortel.

Ter plaatse van de dilatatievoegen 20 mm tussen de profielen openhouden.

Motivering

Een totaal afwerking van de constructieve wanden.

Bij een goede vorm van de afdekband (incl. waterhol) wordt de kans op verwateringsstrepen en algengroei op de wanden t.g.v. druipend water verminderd. Bij het toepassen van prefab beton als wand, wordt dit verder voorkomen.

 

Het toepassen van een afdekband is geen vereiste. Indien er geen afdekband toegepast wordt dient de bovenzijde wand om dezelfde reden met een afschot van 20mm naar de grondzijde te worden uitgevoerd.

Conservering

De ankers zijn van roestvast staal.

Anti-graffiti bescherming kan in overleg met de opdrachtgever toegepast worden.

 

 

Figuur 467.1 - Principe doorsnede afdekband

Aspecten ten aanzien van de RAMS-score

Tabel 467.1 - Aandachtspunten RAMS-criteria

4Variant

Afdekband

R

Reliability
(Betrouwbaarheid)

Goed, geen bijzonderheden.

A

Availability
(Beschikbaarheid)

Goed, geen bijzonderheden.

M

Maintainability
(Onderhoudbaarheid)

Goed, geen bijzonderheden.

S

Safety
(Veiligheid)

Goed, geen bijzonderheden.

 

 

 

Horizontale afscheidingen in middentunnelkanaal

Artikel nr. 468

Functies

Het middenkanaal is opgesplitst in 3 verschillende ruimten. De bovenste en onderste ruimten zijn bestemd voor elektromechanische installaties (kabels, kasten, leidingen enz.). De middelste ruimte is bestemd als vluchtgang.

De plaat dient als afscheiding tussen de vluchtgang en de onder- en/of bovenliggende elektromechanische ruimte (kabels, kasten, enz.) of bovenliggende dienstgang.

De afscheiding die functioneert als looppad dient veilig beloopbaar te zijn.

Toepassingen

In het middenkanaal van het gesloten tunnelgedeelte en overgangsgedeelte van de verkeerstunnels.

Detailontwerp

De breedte van de plaat is afhankelijk van de breedte van het middenkanaal en wordt bepaald door de maatgevende breedte van de vluchtgang (minimaal 1,2 m volgens BSTTI [80]) of de technische ruimte boven de vluchtgang. In de meeste gevallen is de breedte 1350 mm, die wordt bepaald door de 2 kabelrekken (2x 300 mm) en een looppad (750 mm) in de bovenste elektromechanische ruimte.

Dus een effectieve plaatbreedte van 1310 mm, de lengte is 1000 mm, de dikte is 80 mm. Met name bij een grotere breedte van het middenkanaal moet men rekening houden met een vloerbelasting volgens de vigerende norm, dit i.v.m. het bepalen van de dikte van de plaat en de afmeting van de hoekstalen en ankers.

De plaat wordt opgelegd op hoekstalen 100*100*8, die worden bevestigd met ankers M 16 h.o.h. 1000 aan middenkanaalwand. Tussen de plaat en het hoekstaal wordt een neopreenstrip gelegd voor de drukverdeling.

 

Bij schuifdeuren worden de hoekstalen omgedraaid en opgehangen aan strippen 60*8. De 2 hoekstalen worden onderling verbonden met een afstandstrip 60×8.

De hoekprofielen 80x80x8 zijn bevestigd met veiligheidsankers M12 h.o.h.500 mm.

Bij Tunnel tracé Sijtwende zijn de hoekprofielen bevestigd met ankers M10, h.o.h. 750 mm. Deze afmetingen van de ankers en de h.o.h afstand bij Sijtwende zijn volgens de berekeningen destijds constructief voldoende.

Motivering

Het middenkanaal is opgesplitst in 2 of 3 verschillende ruimten.

De middelste ruimte is bestemd als vluchtgang.

 

Vluchtweg

In het verleden bestond de vloer van de vluchtweg uit zgn. Dejoroosters. De reden hiervan was dat de onderliggende betonconstructie inspecteerbaar moest zijn (voegen, lekkage).Roostervloeren als vluchtweg dienen zoveel mogelijk te worden vermeden Daarom is er voor gekozen de roostervloer af te dekken met een thermisch verzinkte tranenplaat.

 

Bij tunnels die onder de grondwaterstand liggen is het echter wenselijk om op een eenvoudige manier de voegen te kunnen controleren op lekkage. Een mogelijke oplossing hiervoor is om ter plaatse van de voegen aan één buitenzijde de tranenplaat te onderbreken.

 

De aangegeven minimale hoogte van de vluchtgang van 2,30 meter komt voort uit het feit dat de vluchtgang moet worden voorzien van vluchtwegaanduidingen. Deze verminderen de netto hoogte van de vluchtgang.

 

Overeenkomstig BSTTI4677 [80] dient over een afstand van 10m aan weerszijden van de vluchtdeuren de vloer dicht uitgevoerd te worden. Door een roosteropening in de plaat naast de vluchtdeur wordt lucht in de vluchtgang geblazen. In de vluchtgang heerst er dan een overdruk. Hierdoor wordt voorkomen dat bij falen van een vluchtdeur de installaties en bekabeling in de dienstgang aan hitte worden blootgesteld. De nis op het niveau kabelkanaalvloer dient om deze reden ook afdoende hittewerend afgewerkt te worden. Bijvoorbeeld overeenkomst de afdekking aan de achterzijde van de hulpposten.

 

Dienstgang

Vanuit het monteren van de electromechanische installaties in het kabelkanaal werd in het verleden de eis gesteld dat de vloer van de dienstgang dicht moest zijn. Hierdoor werd voorkomen dat materiaal en klein materieel door een open vloer kon vallen.

Voortschrijdend inzicht geeft echter aan dat deze noodzaak niet meer aanwezig is. Hier kan dus een roostervloer worden toegepast.

Voor de bouwfasering is dit een groot voordeel omdat nu niet van te voren de betonnen platen in het middenkanaal hoeven worden neergezet.

 

Bij het toepassen van Dejo-roosters dient men echter rekening te houden met de eis van gesloten vloer binnen 10 m van een vluchtdeur en dat de overdruk in de vluchtgang minder effectief gerealiseerd kan worden. Mogelijk moet een installatie met meer vermogen geïnstalleerd worden.

Conservering

De hoekstalen, ophangstrippen en ankers thermisch verzinken volgens NEN 1461.

Aspecten ten aanzien van de RAMS-score

Tabel 468.1 - Aandachtspunten RAMS-criteria

Variant

Roostervloer

R

Reliability
(Betrouwbaarheid)

Goed, geen bijzonderheden.

A

Availability
(Beschikbaarheid)

Goed, geen bijzonderheden.

M

Maintainability
(Onderhoudbaarheid)

Goed, geen bijzonderheden.

S

Safety
(Veiligheid)

Goed, mits afgedekt in geval van vluchtweg en niet toegepast nabij vluchtdeuren.

Tabel 468.2 - Aandachtspunten RAMS-criteria

Variant

Betonplaat

R

Reliability
(Betrouwbaarheid)

Goed, geen bijzonderheden.

A

Availability
(Beschikbaarheid)

Goed, geen bijzonderheden.

M

Maintainability
(Onderhoudbaarheid)

Goed, geen bijzonderheden.

S

Safety
(Veiligheid)

Goed, geen bijzonderheden.

 

 

Figuur 468.1 - Aanzicht en details plaat in middenkanaal

Figuur 468.2 - Roosters middentunnelkanaal

 

 

 

 

 

Afdekplaat in middenberm

Artikel nr. 469

Functies

De plaat is de afscheiding tussen het loop-/vluchtpad en de elektromechanische ruimte (kabels, leidingen, enz.).

Toepassingen

In de middenberm van de toeritten van verkeerstunnels, onderdoorgangen en aquaducten.

Detailontwerp

De breedte van de prefab betonnen plaat is afhankelijk van de ruimte tussen de middenwand en de geleidebarrier. De plaatlengte is over het alge­meen 1000 mm, de dikte is 80 mm.

De plaat wordt aan de zijde van de middenwand opgelegd op een hoekstaal 100*100*8 mm en aan de andere zijde wordt de plaat opgelegd op een betonnen opstort. Bij het ontbreken van een middenwand wordt de plaat ook in het midden opgelegd op een betonnen opstort.

Tussen de plaat en de opleggingen wordt er plaatselijk een neopreenstrip gelegd voor de drukverdeling. Het hoekstaal wordt aan de middenwand bevestigd met ankers M 16 h.o.h. 500. Met name bij een grotere breedte van de midden­berm moet er rekening worden gehouden met een vloerbelasting overeenkomstig de vigerende norm dit i.v.m. het bepalen van de dikte van de plaat en de afmeting van het hoekstaal en de ankers.

Na het stellen van de geleidebarrier wordt de beton­nen opstort gestort.

De minimale hoogte van de elektromechanische ruimte is 400 mm (i.v.m. de flenzen van de leidingen).

Op de geleidebarrier een leuning aanbrengen i.v.m. de veiligheid.

De geleidebarrier die in de middenberm toegepast wordt is breder dan de normale geleidebarrier, dit i.v.m. de sterkte van de geleidebarrier.

 

Als de barrier wordt uitgevoerd middels een slip-form paver moet de achterliggende wand hoger uitgevoerd worden. Dit heeft dan ook mogelijk consequenties voor de middenbermbreedte in verband met de vereiste breedte indien het fungeert als vluchtpad (min. 1,2 m).

Motivering

Door het kiezen van deze oplossing ontstaat er een looppad c.q. vluchtpad en onder de plaat een ruimte voor de elektromechanische leidingen.

Het geeft tevens een extra steun aan de geleidebarrier.

Als de plaat in de middenberm fungeert als vluchtpad dan dient dit pad te leiden naar een verzamelplaats op minimaal 150 m vanaf de tunnelmond.

Conservering

De hoekstalen en de ankers thermisch verzinken volgens NEN 1461.

 

 

Figuur 469.1 - Doorsneden en detail afdekplaat in middenberm

 

Stootplaat

Artikel nr. 470

Functies

Zorgen voor een geleidelijke overgang bij hoogteverschillen die kunnen ontstaan tussen het relatief zettingsvrij gefundeerde kunstwerk en de meer zettingsgevoelige aardebaan.

Toepassingen

Overgang van de beton constructie (einde toeritten) naar de aardebaan van verkeerstunnels, onderdoorgangen, aquaducten en viaducten.

Detailontwerp

De minimale lengte van de stootplaten volgt uit het rapport NBD 00750 “Overgangsconstructies (Stootplaten)” [145].

De lengte van de stootplaat is afhankelijk van toelaatbare “knik” in het verticaal alignement en de te verwachte restzettingen van de aardebaan onder de stootplaat. De toelaatbare “knik” is afhankelijk van de ontwerpsnelheid. Voor snelheden ≥100km/uur geldt volgens het rapport NBD00750 [145] een toelaatbare “knik” van maximaal 1:100 en voor overige wegen 1:60.

Voor Rijkswegen geldt dat stootplaten van mimimaal 5 m toegepast worden, omdat altijd nog naverdichting door het verkeer plaats vindt.

De breedte is afhankelijk van de te verwachte ongelijkmatige zettingen in de dwarsrichting.

De geprefabriceerde stootplaten krijgen een breedte van 500 mm voor stootplaten tot een lengte van 6 m, bij grotere lengten worden geen prefab platen toegepast maar ter plaatse gestorte stootplaten.

De dikte in het midden van de stootplaat volgt uit een berekening als een ligger op twee steunpunten opgelegd op de beide uiteinden.

De dikte van de stootplaat moet zo dun mogelijk gekozen worden zodat na rotatie de gaping tussen de voorkant van de stootplaat en de betonnen bak­constructie minimaal blijft.

Hijsvoorzieningen in de stootplaat aanbrengen t.b.v. ophalen van de stoot­platen.

Motivering

Bij het zorgvuldig kiezen van een goed ontwerp worden de volgende problemen nagenoeg voorkomen,

Het voordeel van prefab stootplaten t.o.v. ter plaatse gestorte is, dat ze na geconstateerde zettingen (zakkingen), opgehaald kunnen worden.

De onderbouwing hiervan is terug te vinden in rapport NBD00750 [145].

Conservering

Hijsvoorzieningen thermisch verzinken volgens NEN-EN-ISO 1461.

Figuur 470.1 - Detail stootplaat

 

 

 

 

Voegafdekking t.b.v. asfaltverharding

Artikel nr. 471

Functies

Een voegafdekking bij een dilatatievoeg heeft de functie om de invloed van zettingsverschillen en horizontale vervormingen op de asfaltverharding te beperken. Deze afdekkingen dienen dusdanig flexibel te zijn zodat ze enige mate van zetting kan ondervangen.

Verder worden er in de voegen afdichtingen aangebracht die de functie hebben als grond- of waterafdichting, waarbij een grote tolerantie voor de toekomstige voegbreedte beschikbaar is.

Toepassingen

Deze voegafdekkingen worden toegepast in wegtunnels die voorzien zijn van asfalt.

Motivering

De voegafdekking dient een zekere zetting en horizontale vervorming op te vangen. Hiermee zal voorkomen kunnen worden dat het asfalt gaat scheuren.

Conservering

Niet van toepassing.

Figuur 471.1 - Detail voegafdekking

Tabel 471.1 - Aandachtspunten RAMS-criteria

Variant

Voegafdekking

R

Reliability
(Betrouwbaarheid)

Goed, te vervangen bij groot onderhoud verharding.

A

Availability
(Beschikbaarheid)

Goed, geen bijzonderheden.

M

Maintainability
(Onderhoudbaarheid)

Goed, doch enkel vervangbaar bij verwijderen asfalt.

S

Safety
(Veiligheid)

Goed, geen bijzonderheden.

 

Specifieke aspecten railtunnels

Artikel nr. 472

Onderstaande artikelen gaan met name in op spoortunnels. Specifieke informatie betreffende overige railtunnels ontbreekt vooralsnog.

 

In ontwerpvoorschrift “Spoortunnels > 250m” OVS00201-V001 [24] worden voorwaarden benoemd waaraan spoortunnels moeten voldoen. Voor “Spoortunnels < 250m” zal de OVS00030-3 [104] worden uitgebracht.

 

Bovenbouw: spoorconstructies

Artikel nr. 473

Onder de bovenbouw wordt verstaan de constructie die het dragen en geleiden van de trein verzorgt en gelegen is op de onderbouw. In geval van een tunnel gaat de onderbouw over in de bovenbouw op het niveau van de bovenkant van de tunnelvloer. De bovenbouw bestaat derhalve uit bijvoorbeeld ballastbed, ballastmat, dwarsliggers, bevestiging en spoorstaven.

In de navolgende artikelen worden het ballastbed en de ballastmat voor spoortunnels behandeld.

Ballastbed

Artikel nr. 474

Functie

Het ballastbed heeft meerdere functies:

Toepassingen

Op kunstwerken, brugdekken, tunnelvloeren e.d., wordt bij voorkeur altijd spoor in ballast toegepast. Aan de zijkanten wordt het ballast opgesloten door betonnen wanden die als ontsporingsgeleiding dienen en tevens ook vaak de wand vormen van een daarachter gelegen kabels- en leidingengoot. De spoorgeleidingswanden in een spoortunnel moeten altijd 1600 mm uit hart spoor gelegen zijn ( conform OVS00201 [24] Spoortunnels>250 m en de OVS00026 [20] Profiel van vrije ruimte). De achtergrond hiervan is dat bij een ontsporing in de tunnel hierdoor de aspot van de trein tegen de geleiding komt waardoor de wielen niet naast de dwarsdragers komen. Hierdoor zakt het wiel niet in de ballast waardoor de cabine niet in aanraking komt met de tunnelwand. Dit ter bescherming van reizigers in de trein. De geleide wanden dienen 350 mm boven bovenkant spoorstaaf (BS) te liggen (OVS00026 [20] Profiel van vrije ruimte).

De spoorstaven worden op houten of betonnen dwarsliggers bevestigd. Bij nieuwbouw worden voornamelijk betonnen dwarsliggers toegepast. De dwarsliggers zijn ingebed in de ballast, waarbij bovenkant ballastbed ongeveer gelijk is met bovenkant dwarsligger.

Detailontwerp

In OVS00056-5.1 [146] is alles te vinden waar ballastspoor aan dient te voldoen.

Op kunstwerken worden altijd ballastmatten geplaatst (conform ProRail specificatie SPC00061) alvorens de ballast aangebracht wordt. De dikte van de ballastmatten is 20-30 mm, afhankelijk van het type mat en leverancier. De primaire functie van een ballastmat is het optimaliseren van de elasticiteit van het spoor.

 

Om te voorkomen dat ter plaatse van voegovergangen ballastmateriaal in de voegen gaat zitten, waardoor de kans bestaat dat de voegen verstopt raken worden de voegen afgedekt met een RVS plaat die aan één zijde van de voeg aan de vloer bevestigd wordt, zie ook Voegafdichting onder spoor in ballast.

 

Ballastmatten

Artikel nr. 475

Functie

De functie van ballastmatten is de elasticiteit van het spoor te optimaliseren en trillingen en laagfrequent geluid te dempen.

Toepassingen

Ballastmatten dienen te worden toegepast bij alle kunstwerken met spoor in ballast, zoals spoortunnels.

Detailontwerp

Voor trillingdemping bij spoor in ballast in tunnels, kunnen z.g. trillingdempende ballastmatten worden gebruikt. Deze dienen gecertificeerd te zijn door ProRail.

Een aandachtspunt is dat vooraf goed onderzocht dient te worden welke frequenties worden gedempt en welke frequenties juist worden versterkt door het te kiezen type ballastmat. Met name het laag frequente geluid kan een probleem gaan vormen, omdat deze veelal door de toepassing van ballastmatten blijken te worden versterkt.

Dit onderzoek vooraf kan geschieden met behulp van een predictie model dat trilling invloed vanuit de tunnel naar de omgeving kan voorspellen. Dit onderzoek zal dan moeten uitwijzen welk type mat het meest geschikt is.

De toepassing van een ballastmat voor passages van goederentreinen blijkt in het algemeen minder effectief dan die voor passages van overige treintypes. De oorzaak hiervan wordt gevonden in de dominante zeer lage frequenties(0-10Hz) van het goederentreinsignaal. Toepassing van een ballastmat resulteert in het algemeen in demping vanaf circa 30 Hz.

Motivering

Ballastmatten dragen bij als trilling dempende maatregel bij sporen in ballast.

Conservering

Niet van toepassing.

 

Massa-veersysteem.

Artikel nr. 476

Als alternatief voor de toepassing van ballastmatten, kan ook een massa-veersysteem onder het spoor trillingen dempen. Nadeel is dat dit een kostbaar systeem is en het vergt extra constructiehoogte, bijgevolg heeft het invloed op de afmetingen van de tunneldoorsnede. Massaveersystemen zijn voor heavy-rail nog niet toegepast, voor light-rail zijn er wel ervaringen mee opgedaan. Ook ervaring en t.a.v. onderhoud/duurzaamheid van deze systemen voor toepassing van heavyrail ontbreken.

Overige in spoortunnels in te passen elementen

Artikel nr. 477 (bevat geen inhoud, zie onderliggende artikelen)

Voorzieningen hulpdiensten

Artikel nr. 478

In wegtunnels worden hulpposten opgenomen, in spoortunnels niet. Conform OVS00210 [147] worden alleen voorzieningen voor de hulpdiensten aangebracht, zoals afnamepunten voor bluswater en voeding 230/400 V.

 

Tractiesystemen

Artikel nr. 479

Zie ProRail Ontwerpvoorschrift 25kV/50Hz “Tractie- energievoorziening ontwerphandleiding OVS00050-4” [148].

Per ontwerp dient bij ProRail te worden nagegaan of een voorbereiding op een tractie energievoorzieng 25 kV(AC) noodzakelijk is. Met betrekking tot inbouwhoogte en eisen t.b.v. tractie energie systemen wordt verwezen naar de OVS00201 [24].

 

Aarding

Artikel nr. 480

Functie

In geval van toepassing tractie energie voorziening 1500V (DC) bestaat het risico op zwerfstroom uittreding op plaatsen waar bijvoorbeeld wapening in contact komt met grond(water). Hierdoor zullen t.g.v. grote stroomsterkten ,welke via de wapening uittreden, grote schaden ontstaan aan de wapening. Om dit te voorkomen dient de tunnel te worden geaard. In geval van een tractie energie voorziening van 25 kV AC is de aarding noodzakelijk om z.g. stap- en aanraakspanning te voorkomen. In beide gevallen is het aardingsprincipe om alle componenten elektrisch door te verbinden (zie bijgevoegde principe tekeningen v.w.b. aarding). Voor nieuwbouw hoeft in principe niet meer op een 25 kV situatie voor tractie energie te worden ontworpen (per situatie te verifiëren bij ProRail).

Uitzondering hierop zijn eventuele nieuwe kunstwerken voor de Betuwe route en de HSL waar een 25 kV (AC) tractie energie systeem is geïmplementeerd.

Figuur 480.1 - Principe aarding en maatregelen tegen zwerfstromen (Tunneldoorsnede “moot in bouwkuip”)

Figuur 480.2 - Principe aarding en maatregelen tegen zwerfstromen (Tunneldoorsnede “diepwand”)

 

 

 

Toepassingen

Toe te passen in spoortunnels.

Detailontwerp

Het aardingconcept voor tunnels op dit moment is dat alles elektrisch aan elkaar wordt verbonden, ook de palen worden elektrisch doorgekoppeld met het wapeningsnet. De afzonderlijke moten van de tunnel dienen elektrisch onafhankelijk te zijn en worden extern verbonden met het aardingsnetwerk. Hierdoor ontstaat een inspecteerbaar en onderhoudbaar aardingssysteem. Voor verdere eisen betreffende aarding wordt verwezen naar de OVS00201 [24] Spoortunnels>250 m .

Bij 25 kV AC zal aarding plaats vinden via een lineaire aardkabel. Bij 1500V DC bijvoorbeeld door het koppelen aan een stalen damwand of paal met aardelektrode. Daarnaast zal, aangezien beton toch beperkt geleid, door het grote betonoppervlak de constructie geaard zijn. Zie verder de OVS00053-9 [21].

Figuur 480.3 - Detail koppeling aarding t.p.v. palen

 

Motivering

Een tunnel dient te worden voorzien van aarding om stap- en aanraakspanningen op een aanvaardbaar laag niveau te houden en zwerfstroomproblematiek te beheersen door middel van het elektrisch doorverbinden van de verschillende tunnelmoten.

Conservering

Niet van toepassing.


Noot: De bovenbouw (spoorconstructie en daarmee elektrisch verbonden onderdelen en voorzieningen) alsmede het bovenleiding systeem (w.o. in te storten bovenleiding profielen) dienen te zijn geïsoleerd van de wapening van de tunnelconstructie conform de voorschriften van ProRail. Op de aardingsconcepten (zie bijlagen 1 en 2) is aangegeven, dat de ingestorte ankerrail bovenleiding aan het aardnet aangesloten dient te worden. De isolatie van de bovenleiding wordt bereikt doordat hier de bovenleiding draagconstructie geïsoleerd van deze ankerrail aangebracht wordt.

 

Tabel 480.1 - Aandachtspunten RAMS-criteria

Variant

Aarding

R

Reliability
(Betrouwbaarheid)

Goed, geen bijzonderheden.

A

Availability
(Beschikbaarheid)

Goed, geen bijzonderheden.

M

Maintainability
(Onderhoudbaarheid)

Goed, geen bijzonderheden.

S

Safety
(Veiligheid)

Goed, geen bijzonderheden.

 

 

 

 

Elektrische afscherming

Artikel nr. 481

Naast de wettelijke analyse conform RLN 000289-7 [149] (inpassing in omgeving) dient t.a.v. ontwerp afscherming tunneltoeritten ook de elektrische veiligheid van de afscherming van de tunneltoerit t.a.v. de spanningvoerende delen van de tractie energie voorziening beschouwd te worden. Dit geldt voor afschermingen evenwijdig aan de tunneltoerit en loodrecht op de tunneltoerit.Voor deze beschouwing dienen de RLN0008 [150] van ProRail en de NEN-EN 50122-1 [151] te worden aangehouden.

Opmerking: de pantograaf (stroomafnemer) van het spoormaterieel dient ook als spanningvoerend deel te worden beschouwd.

Beveiliging tegen derden

Artikel nr. 482

Voor het ontwerp van de beveiliging van een tunnel tegen inbreuken op de functionaliteit van de spoorweginfrastructuur en het spoorverkeer, alsmede tegen onbevoegd betreden van de tunnel en de veiligheid van de inpassing van de tunnel in de omgeving, dient wettelijk een risico analyse te worden uitgevoerd. Dit geschiedt conform de Richtlijn RLN 000289-7 “Inrichting Security Tunnels” [149]. Hiermee kan voor de betreffende tunnel een Basis Security Niveau worden vastgesteld (BSN waarde), aan de hand hiervan kan worden bepaald aan welke veiligheidseisen t.a.v. de omgeving het ontwerp dient te voldoen.

Overige technische installaties

Artikel nr. 483

Er dient in verband met het PVR spoorverkeer in samenstelling met de tunneldoorsnede rekening gehouden te worden met de inpassing van beveiligingssytemen en tunneltechnische installaties.

Voor het PVR zie OVS00026 [20] Profiel van Vrije Ruimte.

 

Ondergrondse stations

Artikel nr. 484

Zie voor voorschriften en richtlijnen:

 

 

Vluchtroute

Artikel nr. 485

Onderstaande artikelen hebben betrekking op tunnels algemeen.

Voor spoorwegtunnels geldt de aanvullende regelgeving van ProRail. Deze zijn verwoord in de OVS00201 [24] Spoortunnels > 250m (versie 001 d.d. 01-04-2010).

Dit betreft de versie die gold ten tijde van het opstellen van dit handboek.

Het is de verantwoordelijkheid van de gebruiker dat deze zich er van vergewist wat de meest actuele versie is van deze regelgeving en deze gebruikt.

Vluchtwegen

Artikel nr. 486

Functie

Het bieden van een makkelijk bereikbare en veilige weg om de tunnelbuis, waar een calamiteit heeft plaatsgevonden, zo snel mogelijk te verlaten en te leiden naar een veilig heenkomen.

Toepassingen

In de middenwanden van verkeerstunnels in het gesloten gedeelte, de overgangsgedeelten en eventueel in de toeritten.

Bij spoortunnels komt het ook voor dat deze t.p.v. de buitenwanden gesitueerd zijn, alwaar via een trappartij het veilige maaiveld bereikt kan worden.

Bij tunneltoeritten waar het vluchtpad tussen de sporen is gelegen dient tussen de paden een hekwerk te worden aangebracht waarvan de bovenkant ten minste 1 meter boven vluchtpad niveau ligt.

Detailontwerp

In de BSTTI [80] (hoofdstuk 7, §7.2) en de Rarvw 2013 (art. 20) wordt uitgebreid ingegaan op de projectering, toegankelijkheid en ontwerpaspecten van en voor vluchtwegen.

Voor spoortunnels wordt in de OVS00201 [147] nader ingegaan op deze aspecten. Bij spoortunnels worden trappen toegepast in de vluchtwegen naar maaiveld. Dit wordt bij wegtunnels afgeraden.

 

Er geldt overeenkomstig BSTTI [80] dat vluchtroutes (bijvoorbeeld in het middentunnelkanaal) zodanig afgeschermd dienen te worden van de verkeersbuis dat bij brand de vluchtweg niet geblokkeerd raakt en men gedurende 30 minuten het gehele vluchtkanaal nog veilig kan gebruiken. Daarnaast geldt volgens het Bouwbesluit dat gehele afscheiding tussen de tunnelbuis en de vluchtgang in het middentunnelkanaal gezien moet worden als brandcompartimentering voor minimaal 120 minuten e.e.a. in verband met het kabelkanaal.

 

 

Spijlendeur

Artikel nr. 487

Functie

Er voor zorg dragen dat mensen, die gebruik maken van de vluchtgang in het middentunnelkanaal, niet de pompenkamer ingaan, maar in de juiste richting gestuurd worden, waardoor een goede doorstroming in de vluchtgang gewaarborgd wordt.

Toepassingen

In het middentunnelkanaal van verkeerstunnels in het gesloten gedeelte vlakbij de eerste vluchtdeur vanaf de middenpompenkelder en ter afsluiting van het dienstengebouw.

Detailontwerp

De deur is opgebouwd uit hoekstalen 60.40.6, waaraan pijpen rond 3/4” 3,9 mm zijn vastgelast. De schoren (plaat 25.8) zorgen ervoor dat de deur niet schrankt. De deur is opgehangen door middel van drie laspaummelles, die aan hoekstaal 75.50.7 gelast zijn. Het kozijn bestaat uit stijlen L 75.50.7, die gelast zijn aan horizontale regels UNP 80.45.6. Deze zijn door middel van boorankers M16 gemonteerd aan de wand.

De deur wordt in de rijrichting geopend om de gebruiker het zicht op het eventueel passerende verkeer niet te ontnemen.

Motivering

Eenvoudige uitvoering.

Conservering

Alle stalen onderdelen en bevestigingsmiddelen moeten thermisch verzinkt worden.

Achtergronden

Indien het middentunnelkanaal geblokkeerd is door bijvoorbeeld de middenpompenkamer wordt er een spijlendeur zo dicht mogelijk (1 meter) bij de eerste vluchtdeur geplaatst. Zo wordt voorkomen dat vluchtende mensen de verkeerde (doodlopende) kant op lopen.

Het is wenselijk om één vluchtdeur zo dicht mogelijk bij de middenpompenkamer te plaatsen. Hierdoor kan er een spijlendeur vervallen.

 

Figuur 487.1 - Aanzicht spijlendeur

 

 

 

Vluchtdeuren

Artikel nr. 488

Zie voor specificaties ook de Landelijke Tunnelstandaard (LTS) [90].

Kozijn en deur vluchtdeur (draaideur)

Artikel nr. 489

Functie

Waarborgen vluchtroute en bescherming van kabels en leidingen van de tunnelinstallatie. Een kopdeur biedt bij evacuatie een veilige uitgang uit het middentunnelkanaal.

Toepassingen

In overgangsgedeelten toegang bieden tot hoofdwaterkelder. In toeritten toegang bieden van vluchtpad naar middentunnelkanaal.

Detailontwerp

Een zelfsluitende brandwerende draaideur (type BDD/4k/100), welke bij een Hydrocarboncurve aan de volgende eisen voldoet:

Het kozijn en de deuromranding zijn opgebouwd uit speciale stalen warmteïsolerende profielen. Het deurpaneel is gebouwd uit twee staalplaten, waartussen brandvertragende materialen (Promatect-T en Rockwool Conlite P) zitten.

 

Alle aan de tunnelzijde zichtbare delen van de deur poedercoaten in de kleur groen (RAL 6024). De andere kant van de deur poedercoaten in de kleur grijs (RAL 7035).

Kopdeuren in het middenkanaal zijn van binnenuit te openen door middel van een panieksluiting. Van buitenaf zijn ze te openen met een driekantsleutel. De buitenkant van de kopdeur heeft geen handgreep. Kopdeurconstructies kennen een brandwerendheidsklasse EW voor 120 minuten overeenkomstig met de NEN 6069, waarbij de Hydrocarbon kromme als bedoeld in NEN-EN 1991-1-2/NB [108] wordt gehanteerd.

Motivering

Alhoewel een draaideur in feite de preferabele oplossing is conform het Bouwbesluit wordt de hier omschreven vluchtdeur in de vluchtroute alleen toegepast als er geen ruimte is voor een schuifdeur. Dit is enkel het geval bij de uiteinde van het middentunnelkanaal. Bij de overige locaties dient een schuifdeur te worden toegepast overeenkomstig met de BSTTI [80]. De schuifdeur is in feite een toegestane uitzondering vanwege de overdruk problematiek

Conservering

Stalen onderdelen bij voorkeur uitvoeren in RVS.

Alle stalen onderdelen van de deur alzijdig voorzien van een tweelaags poedercoatsysteem met een gemiddelde laagdikte van 120 mu.

Figuur 489.1 - Kozijn en deur vluchtdeur (draaideur)

 

Aspecten ten aanzien van de RAMS-score

Tabel 489.1 - Aandachtspunten RAMS-criteria

Variant

Draaideur

R

Reliability
(Betrouwbaarheid)

Goed, geen bijzonderheden.

A

Availability
(Beschikbaarheid)

Goed, geen bijzonderheden.

M

Maintainability
(Onderhoudbaarheid)

Goed, geen bijzonderheden.

S

Safety
(Veiligheid)

Matig, enkel toepassen bij einde middentunnelkanaal

 

Kozijn en deur vluchtdeur (schuifdeur)

Artikel nr. 490

Functie

Waarborgen vluchtroute en bescherming van kabels en leidingen van de tunnelinstallatie

Toepassingen

In de wanden van het middentunnelkanaal in het gesloten gedeelte en overgangsgedeelten van verkeerstunnels.

Detailontwerp

Een zelfsluitende brandwerende draaideur (type BSD/4k/705), welke bij een Hydrocarboncurve aan de volgende eisen voldoet:

Het kozijn en de deuromranding zijn opgebouwd uit speciale stalen warmteïsolerende profielen. Het deurpaneel is gebouwd uit twee staalplaten, waartussen brandvertragende materialen (Promatect-H en Rockwool Conlite P) zitten.

 

Alle aan de tunnelzijde zichtbare delen van de deur poedercoaten in de kleur groen (RAL 6024). Ook de inkassing van de deur wordt in deze kleur uitgevoerd. De andere kant van de deur poedercoaten in de kleur grijs (RAL 7035).
Aandachtspunt is de onderkant deur aan de tunnelzijde waar de aansluiting aan kozijn ook voldoende brandwerend moet zijn..

Motivering

De hier omschreven vluchtdeur wordt in de vluchtroute toegepast.

Conservering

Stalen onderdelen uitvoering in RVS.

Alle stalen onderdelen van de deur alzijdig voorzien van een tweelaags poedercoatsysteem met een gemiddelde laagdikte van 120 mu.

Figuur 490.1 - Kozijn en deur vluchtdeur (schuifdeur)

 

 

 

 

Montage kozijn vluchtdeur (draaideur)

Artikel nr. 491

Functie

Het bevestigen van het kozijn van de draaideur.

Toepassingen

In overgangsgedeelten toegang tot hoofdwaterkelder en in toeritten van vluchtpad naar middentunnelkanaal.

Detailontwerp (principe)

In de sparing wordt rondom een hoekstaal 40x40x5 bevestigt met clickers M8, waartegen het kozijn wordt gemonteerd met parkers M6. Tegen de zijkant van het kozijn wordt een strook promaxit aangebracht. De ruimte tussen kozijn en beton wordt zowel aan de boven- als aan de onderzijde opgevuld met kunststof stelblokken. De afdichting vindt plaats door middel van een kitvoeg.

Motivering

De strook promaxit zorgt ervoor dat de naad tussen kozijn en beton, die bij brand ontstaat, wordt afgedicht.

Conservering

Bevestigingsmiddelen (clickers en parkers) dienen uitgevoerd te worden in RVS kwaliteit A4.

Figuur 491.1 - Detail montage kozijn vluchtdeur (draaideur)

 

 

 

 

Montage en kozijn vluchtdeur (schuifdeur)

Artikel nr. 492

Functie

Het bevestigen van het kozijn van de schuifdeur.

Toepassingen

In de wanden van het middentunnelkanaal van verkeerstunnels in het gesloten gedeelte en overgangsgedeelten.

Detailontwerp (principe)

Op de sparing in het middentunnelkanaal wordt aan de linker- en rechterzijde een hoekstaal 60x60x5 inclusief kunststof stelblokken bevestigt met clickers M8, waartegen het kozijn wordt gemonteerd met parkers M6. Tegen de zijkant van het kozijn wordt een strook promaxit aangebracht. Afdichting vindt plaats door middel van een kitvoeg. De deur wordt met behulp van hangrollen afgehangen tegen de betonwand aan een boven het kozijn bevestigde stalen draagrail en stalen draagconstructie met eindopvang. Verder is de deur boven en onder voorzien van gelagerde geleidingrollen. De deur en het kozijn zijn voorzien van stuurnokken en vangbeugels met kunststof glijplaten.

Motivering

De strook promaxit zorgt er voor dat de naden tussen kozijn en beton, en kozijn en deur, die bij brand ontstaan, worden afgedicht.

Conservering

Bevestigingsmiddelen (clickers en parkers) dienen uitgevoerd te worden in RVS kwaliteit A4.

 

Figuur 492.1 - Details montage kozijn vluchtdeur (schuifdeur)

 

Achtergronden vluchtdeuren

Artikel nr. 493

In de BSTTI [80] en Rarvw [106] worden eisen gesteld aan vluchtwegen en vluchtdeuren. Er wordt ingegaan op de h.o.h. afstanden van de deuren en op de minimale afmetingen.

 

De reden dat in tunnels schuifdeuren worden toegepast en geen draaideuren heeft te maken met de gevraagde overdruk in het middentunnelkanaal. Bij openstand van 3 vluchtdeuren naar het middentunnelkanaal dient bij een bepaalde winddruk nog voldoende luchtstroom aanwezig te zijn om te voorkomen dat rook in het middentunnelkanaal komt. Toepassing van deze overdruk in combinatie met draaideuren bleek niet mogelijk omdat de optredende krachten bij het sluiten van de draaideur van die aard waren dat deze niet meer beheersbaar sloot en zelfs gevaar voor personen zou kunnen opleveren. Ook het openen van de draaideuren vergde te veel kracht. Bij toepassing van een schuifdeur spelen deze krachten geen rol van betekenis.

Bij boortunnels met verbindingsbuizen moet extra aandacht besteedt worden aan de overdruk.

Er moet eventueel een overdrukklep worden toegepast of de overdruk moet pas worden ingesteld als één deur is geopend.

 

De schuifdeur zoals deze nu het Handboek Tunnels is opgenomen en vaak is toegepast in tunnels, is ontwikkeld door een bedrijf (fa. Keers) in nauw overleg met Rijkswaterstaat. In diverse bestekken wordt de deur dan ook voorgeschreven. De deuren van Keers voldoen aan de door Rijkswaterstaat gestelde eisen. Hoewel de deuren in het verleden volgens de Mobilcurve (Max. 1100 graden) zijn getest en niet volgens de RWS brandkromme (Max. 1300 graden), is door de Bouwdienst geconcludeerd dat op basis van de toegepaste materialen deze deuren voldoen aan de eisen gesteld in de BSTTI [80].

De maatvoering van de sponningen van de deur is n.a.v. problemen bij de Thomassentunnel (tijdens de bouw Calandtunnel genoemd) aangepast.

Het let de aannemers echter niet om te zoeken naar alternatieven, zoals recentelijk is gebeurd bij project Sijtwende, waar door een andere deurenfabrikant een deur is ontwikkeld en getest bij TNO. De resultaten waren tweeledig, enerzijds kwam de deur glansrijk uit de test t.a.v. de brandwerendheid, anderzijds voldeed de deur niet t.a.v. gebruiksvriendelijkheid: de kracht om de deur te openen was veel te groot. Dit laatste punt moest dus worden verbetert.

 

De vrije doorgang van vluchtdeuren dienen volgens de BSTTI [80] 1200 x 2100 mm te zijn. Deze maat komt overeen met de eisen in het Bouwbesluit. Een tunnel valt echter onder “Bouwwerk geen gebouw zijnde” en zou dus niet aan deze eis te hoeven voldoen. Omdat het echter wel zeer gewenst is deze afmetingen voor de vluchtdeuren aan te houden zijn ze wel als zodanig opgenomen in de BSTTI [80].

 

Voor wat betreft de maatvoering geldt dat per situatie moet worden bekeken of het opstapje van 140 mm er uit kan worden gehaald. Dit levert hoogtewinst op in het middentunnelkanaal. Dit kan overigens alleen indien beide tegenover elkaar liggende vluchtdeuren zich op gelijke hoogte bevinden.

De deur moet terugvallen t.o.v. de wand (gezien vanuit de tunnelbuis). De reden hiervoor is dat de ontgrendeling van de deur hoog zit t.o.v. het asfalt. Via de barrier wordt op deze manier een opstapje gecreëerd om de deur te openen.

De hoogtewinst betreft alleen het gedeelte onder de vluchtgang bestemd voor de brandblus- en persleiding. De hoogtewinst gaat wel ten koste van de beschikbare hoogte voor de vluchtgang en beloopbaar kabelkanaal inclusief tussenvloer.

 

Een andere mogelijkheid is de verhoging van de vloer in de vluchtweg tot het niveau van de opstap in barrier. De opening in de vloer die ontstaat bij het openschuiven van de deur, moet dan gedicht worden door een zogenaamde sleepdorpel. Deze oplossing is al eens toegepast en wordt ook bij A2 tunnel te Maastricht toegepast. Een andere mogelijkheid is de onderaanslag van de voorzijde deur te verplaatsen naar onderzijde deur. Bij het openen van de deur moet deze onderaanslag dan via een scharniermechanisme vrij komen. Deze oplossing is echter nog niet vrijgegeven.

 

Branddeuren dienen te voldoen aan de gestelde brandbelasting /tijd en dienen in geopende toestand altijd profielvrij te zijn (bijvoorbeeld schuifdeuren).

Zie voor eisen ook OVS00201 [24].

 

Een bijzonder aspect wat voor vlucht-branddeuren beschouwd dient te worden is de belasting door drukverschillen ten gevolge van treinverkeer.De deuren dienen berekend te zijn om de optredende drukverschillen te weerstaan waarbij de deur gedimensioneerd dient te zijn op drukverschillen die ontstaan bij het falen van de drukvereffeningsinstallatie.

 

Een bijzonder belangrijk aspect is het bestand zijn tegen vermoeiing. Door de wisselende drukbelastingen t.g.v. treinverkeer kan vermoeiing optreden in de vlucht- en branddeuren in de tunnel. De deuren dienen hierop te worden gedimensioneerd.

 

Drukveranderingen in spoortunnels dienen te worden bepaald aan de hand van OVS00201 [24].

 

Vluchtwegaanduiding

Artikel nr. 494

Functie

Het ondubbelzinnig kenbaar maken aan de weggebruiker waar de vluchtweg gesitueerd is.

Toepassingen

Aan de wanden van de verkeersbuis wordt d.m.v. bebording de weg gewezen naar de vluchtweg. Daarnaast wordt de vluchtwegroute aangegeven middels pijlen op het wegdek en wordt de vluchtrouteaanduiding ondersteund door middel van verlichting en akoestische signalen.

Detailontwerp

In de BSTTI [80] en Rarvw [106] wordt uitgebreid in gegaan op welke wijze en op welke locaties de aanduidingen van de vluchtweg aangebracht dienen te worden. In de OVS000201 [24] wordt nader ingegaan op de vluchtwegaanduidingen in spoortunnels.

Aan het einde van de vluchtroute moet een bordje verzamelplaats komen, waar mensen kunnen worden opgevangen.

 

 

Ventilatie- en drukvereffeningsvoorzieningen

Artikel nr. 495 (bevat geen inhoud, zie onderliggende artikelen)

Ventilatievoorzieningen

Artikel nr. 496

Functie

Het ventileren (of ontluchten) van de tunnel is ,zeker bij wegtunnels, van belang i.v.m. de uitstoot van uitlaatgassen. Het ventilatiesysteem zal de luchtkwaliteit terug moeten brengen tot een aanvaardbaar niveau.

Verder heeft het de functie om rook en warmte af te voeren tijdens een brand.

Bij tunnels korter dan 1 km is ventilatie van groot belang bij calamiteiten, zoals brand of lekkende giftige stoffen uit vrachtwagens.

Bij tunnels langer dan 1 km, is ventilatie buiten de reeds genoemde calamiteiten ook noodzakelijk voor beperking van schadelijke stoffen die de gezondheid van de weggebruikers kan schaden.

Buiten de weggedeelten van de tunnels dienen ook de middentunnelkanalen te worden geventileerd t.b.v. beperking van de schadelijke stoffen ten tijde van een calamiteit als de middentunnelkanalen worden gebruikt door hulpverleners.

Naast ventilatie (natuurlijk en/of mechanisch) welke nodig is om aan de criteria m.b.t. de luchtkwaliteit in spoortunnels te voldoen, heeft ventilatie een functie m.b.t. zelfredzaamheid in geval van een calamiteit (brand). O.a. dient ventilatie te voorkomen dat bij brand rook vanuit de buis waarin de brand zich bevindt, rook in de andere tunnelbuizen terecht kan komen. Zie verder voor eisen de OVS00201 [24] t.a.v. ventilatie.

Toepassingen

Toepassen van ventilatie is noodzakelijk in zowel spoor- als wegtunnels.

Detailontwerp

In principe kunnen tunnels worden geventileerd d.m.v.:

 

Dwarsventilatie

Bij dit systeem beweegt de lucht zich in de dwarsrichting t.o.v. de langsas van de tunnelbuis. De toevoer en afvoer van de lucht vinden plaats via aparte luchtkanalen.

In de Nederlandse praktijk wordt dit systeem vooral in stedelijke tunnels toegepast. Voorbeelden zijn de IJtunnel en de Maastunnel. Een ander voorbeeld is het Delftse ondergrondse treinstation. In Rijkswegen tunnels wordt dit systeem in Nederland tegenwoordig niet meer gebruikt; de laatste toepassing was de Velsertunnel. In het buitenland (Hongkong – Macau) worden overeenkomstig RABT een systeem toegepast waarbij de rook bij brand via brandkleppen en een separaat afvoersysteem wordt afgevoerd.


Bij deze manier van ventileren gelden de volgende kritische kanttekeningen:

 

Semi-dwarsventilatie

Bij dit systeem is slechts 1 luchtkanaal aanwezig. Dit systeem kan alleen lucht inblazen of alleen afzuigen. Bij normale situaties wordt de lucht aangevoerd. Bij calamiteit (brand) wordt de lucht afgevoerd.


Langsventilatie

Bij dit systeem wordt de tunnelbuis gebruikt als ventilatiekanaal. De lucht wordt, m.b.v. aanjagers, aan het ingangsportaal in beweging gebracht. Via het uitgangsportaal wordt de lucht weer afgevoerd.

Langsventilatie ondersteunt of vervangt de ventilerende werking van het rijdend verkeer.

 

Natuurlijke ventilatie

Bij relatief korte tunnels is ventileren niet noodzakelijk. Gassen en rook kunnen verdwijnen via de natuurlijke weg. Om de natuurlijke ventilatie te kunnen ondersteunen kunnen langssleuven in het dak of rookluiken worden aangebracht.

Bepaald moet worden bij welke lengte van de tunnel overgegaan moet worden naar een mechanische ventilatie.

 

Algemeen

Bij het ventilatieontwerp en de ventilatieberekeningen dient rekening te worden gehouden met:

Motivering

Afhankelijk van het ontwerp van de tunnel zal een keuze worden gemaakt in de ventilatiesystemen. Bij calamiteiten dienen de rook en de schadelijke stoffen afgevoerd te worden, dit voor de veiligheid van de hulpverleners en de weggebruikers.

Conservering

Niet van toepassing.

Aspecten ten aanzien van de RAMS-score

Tabel 496.1 - Aandachtspunten RAMS-criteria

Variant

Langs ventilatie

R

Reliability
(Betrouwbaarheid)

Goed, geen bijzonderheden.

A

Availability
(Beschikbaarheid)

Goed, geen bijzonderheden.

M

Maintainability
(Onderhoudbaarheid)

Goed, geen bijzonderheden.

S
Safety
(Veiligheid)

Goed, geen bijzonderheden.

Tabel 496.2 - Aandachtspunten RAMS-criteria

Variant

Natuurlijke ventilatie

R

Reliability
(Betrouwbaarheid)

Goed, tot een bepaalde tunnellengte

A

Availability
(Beschikbaarheid)

Goed, geen bijzonderheden.

M

Maintainability
(Onderhoudbaarheid)

Goed, geen bijzonderheden.

S
Safety
(Veiligheid)

Goed, geen bijzonderheden.

Tabel 496.3 - Aandachtspunten RAMS-criteria

Variant

Dwars ventilatie

R

Reliability
(Betrouwbaarheid)

Matig, zie beschrijving dwarsventilatie

A

Availability
(Beschikbaarheid)

Matig, zie beschrijving dwarsventilatie

M

Maintainability
(Onderhoudbaarheid)

Goed, geen bijzonderheden.

S

Safety
(Veiligheid)

Matig, zie beschrijving dwarsventilatie

 

Drukvereffeningsvoorzieningen

Artikel nr. 497

Functie

In spoortunnels worden t.g.v. het treinverkeer drukgolven veroorzaakt. Deze drukgolven bewegen zich in lengterichting door de tunnel en worden bij het eind hiervan teruggekaatst. Hierdoor kunnen in spoortunnels grote drukverschillen optreden waarvoor het menselijke oor zeer gevoelig is. In het ontwerp van een spoortunnel dient hiermee terdege rekening te worden gehouden en dienen voorzieningen aangebracht te worden om deze drukverschillen tot een acceptabel niveau terug te brengen, zeker indien het materieel niet drukdicht is.

 

De grootte van de drukverschillen is o.a. afhankelijk van:

 

De grootte van de in de trein optredende drukverschillen is sterk afhankelijk van de drukdichtheid van het materieel.

 

Voor grenswaarden zie de OVS00201 [24] van ProRail.

Toepassingen

In de wanden en dak van spoortunnels in het gesloten gedeelte en overgangsgedeelten.

 

In het algemeen is bij normale treinsnelheden (< 200 km/uur) het vergroten van de verhouding tussen vrije tunnel doorsnede en de trein, dus het vergroten van de tunnelbuis, een mogelijke oplossing. Bij hogere treinsnelheden is dit vanwege de kosten niet de gewenste oplossing omdat dan grote tunneldiameters moeten worden gerealiseerd.

Detailontwerp

Als oplossing t.b.v. het nivelleren van de te verwachten drukverschillen kan drukvereffening in principe plaatsvinden door:

 

Figuur 497.1 - Drukvereffeningssysteem spoortunnel (gesloten systeem tussen tunnelbuizen onderling)

Voor verdere eisen wordt verwezen naar de OVS00201 [24] ( Spoortunnels > 250 m) van ProRail.

Motivering

Deze drukvereffeningsvoorzieningen komt ten goede van het reizigersconform.

Conservering

Niet van toepassing.

 

Brandbestendigheid

Artikel nr. 498

Onderstaande artikelen hebben betrekking op tunnels algemeen.

Voor spoorwegtunnels geldt de aanvullende regelgeving van ProRail. Deze zijn verwoord in de OVS00201 [24] Spoortunnels > 250m (versie 001 d.d. 01-04-2010).Dit betreft de versie die gold ten tijde van het opstellen van dit handboek.

Geadviseerd wordt zich er steeds van te vergewissen wat de meest actuele versie is van deze regelgeving en deze gebruikt.

 

Voor brandbestendigheid spoortunnels zie ook de OVS00201 [24]. Hierin  wordt voor diverse constructie onderdelen geëist dat de integriteit hiervan moet zijn gegarandeerd gedurende 120 minuten bij een brandcurve RWS. De betekenis hiervan is dat na 120 minuten brand met een intensiteit volgens de RWS curve deze constructie onderdelen nog bruikbaar dienen te zijn, d.w.z. dat de constructie nog in een dermate staat is dat deze voldoet aan gestelde eisen t.a.v. bezwijkveiligheid en bruikbaarheids grenstoestand. Verder kunnen als best practice de diverse methoden worden genoemd voor bekleding: promatect (wel een merknaam!!), pp-vezels (met genoemde probleem bij b.v. storten kolommen vanwege stroperigheid etc).

 

Detailontwerp eindafwerking bouwkuip

Voor de stalen damwand moeten afdekpanelen worden aan­gebracht. Deze panelen hebben de volgende func­ties:

 

De combinatie “akoestisch absorberend” en “bescherming van de stalen damwand tegen brand­schade” is veelal niet te combineren in een enkel bouwkundig element.

Voor de functie “akoestisch absorberend” is een zeer poreus materiaal nodig. De bescherming tegen brandschade is daarmee beperkt: de vlammen slaan er als het ware (bijna) doorheen. Als de beide functies in één element opgenomen dienen te zijn, moet dit element ook nog ongevoelig zijn voor afspatten tijdens brand.

Ook kan besloten worden tot een ontkoppeling van beide functies. Dit houdt in dat achter de akoestisch absorberende bekleding een aparte hittewerende bekleding (steenwol) op de stalen damwand aangebracht wordt.

 

Voorbeeldprojecten wandafwerking

Project A4 Leiderdorp

Bij dit project is een akoestisch absorberende bekleding in een stalen frame aangebracht, dan een luchtspouw en daarna steenwol tegen de stalen combiwand. Ter illustratie, onderstaand de tekening voor de brandproef om aan te tonen dat het geheel voldeed. Uitgangspunt hierbij was dat de akoestische platen (Quitstone) en het ondersteunende frame tijdens de brand in stand blijven. Dit houdt in dat de spanningen, wegens de beperkt isolerende functie van de Quitstone panelen, in het ondersteunende frame relatief laag dienen te zijn (t.o.v. de normale belasting zeer significant overgedimensioneerd). Een belangrijk aandachtspunt is verder dat voldoende rekening wordt gehouden met de relatief grote temperatuuruitzettingen behorende bij de brandtemperaturen. Het frame moet voldoende mogelijkheid tot uitzetting hebben.

Figuur 498.1 - Absorberende constructie project A4 Leiderdorp

Figuur 498.2 - Absorberende constructie project A4 Leiderdorp

 

 

 

Project aquaduct Walcheren N57

Bij dit project is de oplossing gezocht om de combiwanden en damwanden te beschermen met gestapelde blokken cellenbeton; zie onderstaande figuren.

 

Absorberende constructie aquaduct Walcheren N57

 

In dit geval behoefden de voorzetwanden niet akoestisch absorberend te zijn. Wel was een bijzondere visuele oppervlakte structuur vereist. De laag cellenbeton tegen de combiwand/damwand zou niet noodzakelijk zijn als de voorzetwanden, naast de architectonische functie, ook voldoende hittewerend zijn. Een belangrijk aspect van het hittewerend zijn, is dat het betreffende beton ongevoelig voor afspatten onder de maatgevende brandbelasting dient te zijn. Bij lagere betonsterktes (meer poreus) is het beton afspatongevoelig. Wegens de vereiste bijzondere architectonische functie (fijne detaillering) waren de panelen alleen uitvoerbaar in prefab-beton, met een zodanige dichtheid dat het beton wel afspatgevoelig is. Normaal zou het toevoegen van polypropyleen vezels voor voldoende afspatongevoeligheid kunnen zorgen. De fijne architectonische oppervlaktedetaillering maakte dat echter ook onmogelijk.

Brand is een calamiteitbelasting, met een relatief lage kans van optreden (de vlammen moeten dan ook nog langs de wanden lekken). Normaal gesproken anders is de temperatuurbelasting in een toerit tamelijk beperkt (alleen straling). De voorzetpanelen zijn vervangbaar gemaakt, zodat beschadigde exemplaren na een brand vervangen kunnen worden. De structurele integriteit van de combiwanden/damwanden blijft dankzij de laag cellenbeton echter altijd gegarandeerd.

 

Alles overziende zijn er de volgende mogelijkheden/opties:

1. Akoestisch absorberende voorzetwand met onvoldoende hittewerende bescherming.

Voor de achterliggende stalen damwand/combiwand is een extra hittewering noodzakelijk in de vorm van bijvoorbeeld steenwol, platen of cellenbeton. Er bestaat onderscheid tussen:

2. Voorzetwand zonder akoestisch absorberende functionaliteit.

Er bestaat onderscheid tussen:

 

 

Figuur 498.3 - Voorzetwanden in afspatongevoelig beton (toegepast bij tunnel Swalmen A73)

Figuur 498.4 - Principe doorsnede tunnel met brandwerende bekleding

 

 

 

 

 

Doorvoeren

Artikel nr. 499

Onderstaande artikelen hebben betrekking op tunnels algemeen.

Voor spoorwegtunnels geldt de aanvullende regelgeving van ProRail. Deze zijn verwoord in de OVS00201 [24] Spoortunnels > 250m (versie 001 d.d. 01-04-2010).Dit betreft de versie die gold ten tijde van het opstellen van dit handboek.

Het is de verantwoordelijkheid van de gebruiker dat deze zich er van vergewist wat de meest actuele versie is van deze regelgeving en deze gebruikt.

 

 

Kabels en leidingen in kokers

Artikel nr. 500

Functie

De functie van de kokers/ kabelgoten is om de aanwezige kabels en leidingen centraal aan te brengen.

Voor kabels en leidingen spoortunnels zie ook de OVS00201 [24], hier worden in par 5.4 ”Kabels en Leidingen” eisen gesteld aan leidingen en doorvoeren.

Toepassingen

Kabels en leidingen in spoortunnels worden in kabelgoten onder de inspectiepaden gelegd.
Bij verkeerstunnels zal de hoeveelheid kabels en leidingen mogelijk minder zijn dan bij spoortunnels omdat veelal ook de kabels voor tractieenergiesystemen in de kabelgoten liggen.

Detailontwerp

Kabels en leidingen in spoortunnels worden onder de inspectiepaden gelegd. Het is niet toegestaan om de kabels en leidingen aan de wanden te hangen, daar op deze wijze niet kan worden voldaan aan de brandweereisen ten opzichte van brandvertragendheid.

Kabels en leidingen dienen te worden uitgevoerd conform OVS00201 [24]. Hierin worden eisen gesteld aan de kabels en leidingengoot, alsmede eisen wanneer de kabels en leidingengoot wordt gecombineerd met de vloeistof afvoergoot.

Kabels en leidingen in verkeerstunnels dienen te liggen in een beloopbaar kabelkanaal.

Motivering

Door de kabels en leidingen in kabelgoten te leggen zijn deze eenvoudig te bereiken. De kabelgoten zijn afgedekt met voetpadplaten die eenvoudig te verwijderen zijn wanneer er werkzaamheden moeten worden verricht aan de kabels en leidingen. De locatie van de kabelgoten zo ontwerpen dat deze in spoortunnels buiten PVR liggen.

Conservering

Niet van toepassing.

 

Figuur 500.1 - Principe doorsnede kabelgoot spoortunnel

 

 

Mantelbuizen

Artikel nr. 501

Functie

De mantelbuizen dienen voor de doorvoer van kabels en leidingen. Deze kunnen zijn voor bijvoorbeeld verlichting of kabeldoorvoer. Eventueel kunnen de kabeldoorvoeren haaks, onder het spoor of wegdeel, door de vloer worden gevoerd.

Toepassingen

In de vloeren, wanden en dekken van een tunnel. Dit geldt voor zowel een spoortunnel als voor een verkeerstunnel.

Detailontwerp

Indien het er in het verloop van de mantelbuizen haakse hoeken voorzien zijn zullen deze samengesteld moeten worden door 2 stuks bochten van 45 toe te passen. De doorvoer van kabels wordt hierdoor vereenvoudigd.

De mantelbuizen zo situeren dat deze aan de binnenzijde van het voegprofiel ligt.

Motivering

De kabels en leidingen zijn beschermd door de ingestorte mantelbuizen. De kans op beschadiging wordt aanzienlijk verkleind.

Conservering

Niet van toepassing.

 

 

Afvoerbuizen

Artikel nr. 502

Functie

Het afvoeren van hemelwater vanaf de afvoerputten naar een pomp-/waterkelder.

Verder hebben de afvoerbuizen als functie de afvoer van gevaarlijke stoffen.

Toepassingen

In de vloeren van het gesloten deel van een tunnel. Dit geldt voor zowel een spoortunnel als voor een verkeerstunnel.

Detailontwerp

De in te storten afvoerbuizen worden omwikkeld met schuimband met een gesloten cellenstructuur. Bij voegovergangen wordt een zettingsmof toegepast (zie figuur 502.1). Het dilatatievoegprofiel dient onder de afvoerbuis te worden doorgeleid om bij lekkage van de afvoerbuis instroom van grondwater in de tunnel tegen te gaan alsmede dat bij een eventuele verstopping van de afvoerbuis deze vanuit de binnenzijde van de tunnel kan worden uitgehakt en hersteld.

Motivering

Conservering

Niet van toepassing.

Figuur 502.1 - Principe doorsnede afvoerbuis t.p.v. voegovergang

 

Figuur 502.2 - Principe aanzicht afvoerbuis t.p.v. voegovergang

 

 

 

 

Afronding

Artikel nr. 503

Onderstaande artikelen hebben betrekking op tunnels algemeen.

Voor spoorwegtunnels geldt de aanvullende regelgeving van ProRail. Deze zijn verwoord in de OVS00201 [24] Spoortunnels > 250m (versie 001 d.d. 01-04-2010). Dit betreft de versie die gold ten tijde van het opstellen van dit handboek.

Het is de verantwoordelijkheid van de gebruiker dat deze zich er van vergewist wat de meest actuele versie is van deze regelgeving en deze gebruikt.

 

 

Tegenstraalverlichting / Overgangssschermen

Artikel nr. 504

Op een aantal tunnelprojecten (de Noord) zijn in het open gedeelte schermen aangebracht, die het buitenlicht diffuser maken. Een alternatieve manier is om de overgang te verzachten door meer verlichting bij de ingang in het gesloten deel aan te brengen. Bij de uitgang speelt dit veel minder.

Functie

Het creëren van een geleidelijke overgang van daglicht naar kunstlicht. 

Toepassing

Ter plaatse van in- en uitritten van tunnels.

Een voorbeeld van de toepassing bij spoortunnels is de Spoortunnel Delft.

Motivering

Voorheen werden daglichtroosters toegepast. Sinds de toepassing van tegenstraalverlichting bij de Westerscheldetunnel en Sluiskiltunnel worden geen daglichtroosters meer toegepast.

 

Aspecten ten aanzien van de RAMS-score

Tabel 504.1 - Aandachtspunten RAMS-criteria

Variant

Tegenlichtschermen

R

Reliability
(Betrouwbaarheid)
Goed, geen bijzonderheden.

A

Availability
(Beschikbaarheid)
Goed, geen bijzonderheden.

M

Maintainability
(Onderhoudbaarheid)
Goed, geen bijzonderheden.

S

Safety
(Veiligheid)
Goed, geen bijzonderheden.

 

Tegenlichtschermen

Artikel nr. 505

Functie

Deze schermen in de vorm van roosters hebben als doel om te voorkomen dat rechtstreeks tegen het licht van (opgaande en ondergaande) zon wordt ingekeken. 

Toepassing

Omdat verblinding door de zon niet van toepassing is bij het binnenrijden van de tunnel, behoeven deze alleen bij de uitgang aangebracht te worden.

Detailontwerp

Figuur 505.1 - Tegenlichtschermen Sluiskiltunnel; Hier zijn om architectonische redenen aan de oostkant de tegenlichtschermen zowel bij de ingang als de uitgang aangebracht.


 

 

 

 

 

Wandafwerking

Artikel nr. 506

In het verleden werden de tunnelwanden geschilderd. Dit bracht echter veel onderhoud en, na verloop van tijd, vervanging met zich mee. Daarom werd gekozen voor een andere oplossing. Er zijn toen o.a. in de Drechttunnel kunststof platen toegepast. Deze platen moesten echter regelmatig worden vervangen omdat er schade aan was. Dat is de reden geweest om tegelwerk toe te passen.

De laatste jaren is ook dat niet meer gebruikelijk vanwege de kosten van het regelmatig schoonhouden.

Daarnaast is het nut van witte wanden in een tunnel niet zo groot gebleken als in het verleden werd gedacht. Witte wanden geven een te verwaarlozen bijdrage (in gunstige gevallen maximaal 5%) aan de verlichting op het wegdek.

Witte wanden dragen echter wel bij tot het bevorderen van een positieve en comfortabele (esthetische) beleving in de tunnel. Het is aan te bevelen hiervoor per geval een belevingsonderzoek uit te (laten) voeren en te bepalen of de wanden afgewerkt dienen te worden..

Tegels

Artikel nr. 507

Dit artikel geeft een aantal praktische aandachtspunten in het geval dat tegelwerk wordt aangebracht in nieuwe tunnels dan wel dat bestaande tunnels met tegelwerk worden gerenoveerd.

In het algemeen kan worden gesteld dat een keuze voor het al dan niet aanbrengen van tegelwerk afhankelijk is van een aantal aspecten, te weten:

Detailontwerp

Na het gritstralen en het met water onder hoge druk reinigen van de te betegelen oppervlakken en het injecteren van de scheuren worden de tegels (lange zijde) evenwijdig aan het alignement verlijmd.

De voegen tussen tegels dienen circa 6 mm breed zijn. Ter plaatse van aansluitingen, bovenrand en onderbrekingen de voegen glad afwerken met voegvullingsmassa. Ter plaatse van verticale beëindigingen het tegelwerk over een breedte van 10 mm glad afwerken met epoxymortel. Het tegelwerk wordt aangebracht vanaf de geleidebarrier tot ca. 100 mm onder de hittewerende bekleding.

Er moet naar gestreefd worden geen kleinere tegels toe te passen dan halve tegels.

Geen onnodige (onderhoudsgevoelige) dilatatievoegen in het tegelvlak aanbrengen.

Aan de lijmsoort moeten eisen worden gesteld. De wens is dat de lijm blijvend elastisch zou moeten zijn om, indien er scheuren in de betonwand komen, te voorkomen dat de tegels gaan scheuren. Dit is echter alleen te bereiken met zgn. pastalijmen. Deze voldoen echter niet aan de tweede eis dat de lijm een zekere trekkracht moet kunnen opnemen i.v.m. de zuigkracht van het verkeer. Daarom wordt uitgegaan van een cementgebonden tegellijm waaraan een middel wordt toegevoegd dat ervoor zorgt dat het tijdens het verwerken elastischer is. Bovendien zorgt dit middel ervoor dat er een betere hechting wordt verkregen (Ardion). Proeven hebben uitgewezen dat deze elasticiteit (helaas) niet blijvend is.

Ook aan het voegmiddel moeten eisen worden gesteld. Het moet waterdicht zijn zodat geen water achter de tegels kan komen bij het wassen van de wanden. Het moet echter wel in staat zijn damp door te laten dat vanuit het achterliggende beton naar buiten wil.

Het onderstaande detail (figuur 507.1) geeft een situatie weer waarbij hittewerende bekleding wordt toegepast en waarbij het tegelwerk vanaf de stepbarrier over de gehele (resterende) hoogte van de wand wordt aangebracht.

In figuur 507.2 en figuur 507.3 zijn aan te bevelen oplossingen weergegeven van de onderbreking van het tegelwerk ter plaatse van een dilatatievoeg, een hoekoplossing en een beëindiging aan de bovenzijde van een wand in de open toerit.

Figuur 507.1 - Principedetail wandafwerking tegels

Figuur 507.2 - Principedetails wandafwerking tegels t.p.v. dilatatievoeg

Figuur 507.3 - Principedetails wandafwerking tegels t.p.v. hoeken en beëindigingen

 

 

 

Overige details

Artikel nr. 508 (bevat geen inhoud, zie onderliggende artikelen)

Roosters middentunnelkanaal

Artikel nr. 509

Functie

Het creëren van vloeren in het middentunnelkanaal ten behoeve van de vluchtgang en het kabelkanaal.

Toepassingen

In het middentunnelkanaal van het gesloten gedeelte en overgangsgedeelten van verkeerstunnels.

Detailontwerp

De stalen DEJO-roosters (met draagstaven 30.3 mm2) worden opgelegd op hoekprofielen 80.80.8 die met veiligheidsankers M12 h.o.h. 500 mm aan de wand bevestigd worden. Indien de asfalthoogte in de rijbuizen ter plaatse van de middenwand gelijk is, dan is de hoogte van de bovenkant van de roosters ten behoeve van de vluchtgang gelijk aan de hoogte van de knik in de geleidebarrier.

De hoogte van de roosters voor het kabelkanaal wordt bepaald door de beschikbare hoogte in het middentunnelkanaal. Er moet echter naar worden gestreefd de vluchtgang minimaal 2,30 meter hoog te maken.

Ter voorkoming van trilling moet tussen de hoekprofielen en de roosters staalvilt aangebracht worden.

De roosters worden met bevestigingsklemmen (twee stuks per meter) vastgeklemd aan de hoekprofielen.

Bij de vloer van de vluchtgang wordt de roostervloer afgedekt met een thermisch verzinkte tranenplaat.

Motivering

De looppaden dienen te worden berekend op een veranderlijke belasting volgens de vigerende norm.

Bij tunnels die onder de grondwaterstand liggen is het wenselijk om op een eenvoudige wijze de voegen te kunnen controleren op lekkage. Hiertoe wordt de tranenplaat ter plaatse van de voegen aan één buitenzijde onderbroken over een breedte van 0,30 meter.

Conservering

Alle stalen onderdelen en bevestigingsmiddelen dienen thermisch verzinkt te worden.

Achtergronden

Vluchtweg

In het verleden bestond de vloer van de vluchtweg uit zgn. Dejoroosters. De reden hiervan was dat de onderliggende betonconstructie inspecteerbaar moest zijn (voegen, lekkage).

Roostervloeren als vluchtweg moeten zoveel mogelijk worden vermeden). Daarom is er voor gekozen de roostervloer af te dekken met een thermisch verzinkte tranenplaat.

Bij tunnels die onder de grondwaterstand liggen is het echter wenselijk om op een eenvoudige manier de voegen te kunnen controleren op lekkage. Een mogelijke oplossing hiervoor is om ter plaatse van de voegen aan één buitenzijde de tranenplaat te onderbreken.

De aangegeven minimale hoogte van de vluchtgang van 2,30 meter komt voort uit het feit dat de vluchtgang moet worden voorzien van vluchtwegaanduidingen. Deze verminderen de netto hoogte van de vluchtgang.

Dienstgang

Vanuit het monteren van de elektromechanische installaties in het kabelkanaal werd in het verleden de eis gesteld dat de vloer van de dienstgang dicht moest zijn.

Voortschrijdend inzicht geeft echter aan dat deze noodzaak niet meer aanwezig is. Hier kan dus een roostervloer worden toegepast.

Voor de bouwfasering is dit een groot voordeel omdat nu niet van tevoren de betonnen platen in het middenkanaal hoeven worden neergezet.

 

Figuur 509.1 - Roosters middentunnelkanaal

 

 

 

Uitvoering

Artikel nr. 510 (bevat geen inhoud, zie onderliggende artikelen)

Inleiding

Artikel nr. 511

In de tunnelbouw zijn ontwerp- en uitvoeringsaspecten nauw met elkaar verweven. Keuzes in ontwerp en realisatie kunnen niet los van elkaar worden gezien. In de onderliggende artikelen worden de afzonderlijke activiteiten beschreven die vaak voorkomen bij open bak en cut-and-cover tunnelprojecten. Tunnelbouwmethoden in het algemeen en hoofdfaseringen etc. worden elders in dit handboek beschreven. 

 

Het doel van de onderliggende artikelen is drieledig:

 

Er wordt met nadruk op gewezen, dat alle genoemde informatie (m.n. procedures, bouwsnelheden, bouwtoleranties, hoeveelheden etc.) indicatief en ter illustratie zijn en in zeer sterke mate afhankelijk van vigerende normen evenals project-specifieke aspecten.

 

Voorbereidende werkzaamheden

Artikel nr. 512 (bevat geen inhoud, zie onderliggende artikelen)

Veiligheid

Artikel nr. 513 (bevat geen inhoud, zie onderliggende artikelen)

Algemeen

Artikel nr. 514

Veiligheid dient een centrale plaats in te nemen in het ontwerp, de voorbereiding en de uitvoering van ieder tunnelproject. Er moet conform de ARBO wetgeving een V&G plan (veiligheids- en gezondheidsplan) zijn. Om dit te bewaken, moet er een V&G coördinator zijn aangesteld. Conform het Bouwbesluit 2012 [75] (art.8.7 Veiligheidsplan), moet er een (Bouw)veiligheidsplan opgesteld worden.

 

In het V&G plan moet een Overall en Basis Risico-inventarisatie Ontwerp- en Uitvoeringsfase zijn opgenomen. Daarnaast dient elk deelwerkplan een specifieke RI&E (Risico Inventarisatie en Evaluatie) te bevatten. Als onderdeel van de risicoanalyse worden beheersmaatregelen en acties geïnventariseerd. Deze dienen ook te worden gecommuniceerd met het uitvoerend personeel vóór aanvang van de werkzaamheden, tijdens de overdracht c.q. toolbox-meeting.

 

Alle medewerkers en medewerkers van onderaannemers die op de bouwplaats werken, dienen in het bezit te zijn van een VCA veiligheidscertificaat en de hierbij horende regels na te leven. Een locatie-specifieke veiligheidsinstructie is verplicht voor een ieder die de bouwplaats betreedt. De aannemer verzorgt alle noodzakelijke persoonlijke beschermingsmiddelen (PBM) voor eigen personeel en eventuele bezoekers en ziet erop toe dat elke onderaannemer dit voor zijn eigen personeel verzorgt. De volgende goedgekeurde PBM’s zijn te allen tijde verplicht:

 

Bij werkzaamheden met specifieke risico’s zijn aanvullende PBM’s vereist:

 

De werkplek moet ten allen tijde bereikbaar zijn voor openbare hulpdiensten. De hoofduitvoerder dient ervoor zorg te dragen dat communicatie (bijvoorbeeld per telefoon), alarmering en hulpverlening op de locatie duidelijk is geregeld. De uitvoerder draagt er zorg voor dat er in de keet een Alarmkaart en/of het ARBO-bord hangt op een goed zichtbare plaats met daarop de telefoonnummers van de instanties die noodzakelijk kunnen zijn bij een calamiteit. Het werkadres dient onmiddellijk voorhanden te zijn. Er moet een calamiteitenplan zijn met daarin de volgende informatie:

 

Alle bijna-ongevallen, ongevallen en milieu-incidenten dienen te worden gemeld aan de hoofduitvoerder en veiligheidsfunctionaris. De hoofduitvoerder zorgt ervoor dat de melding wordt gecommuniceerd en afgehandeld conform het V&G-plan.

 

Voor de start van de werkzaamheden wordt er een instructie gegeven waarin de belangrijkste risico’s aan de orde komen. Ook bezoekers dienen een veiligheidsintroductie te krijgen alvorens ze de bouwplaats mogen betreden. Hieronder volgt een opsomming van specifieke veiligheids- en gezondheidsrisco’s die vaak voorkomen bij cut-and-cover tunnels.

 

 

 

Specifieke veiligheidsaspecten van werken naast het spoor

Artikel nr. 515

Bijzondere aandacht verdienen gevaren samenhangend met werken in de nabijheid van een bestaande spoorlijn. Voor werkzaamheden die plaatsvinden binnen PVR en/of binnen PVR + 3m, zijn aanvullende maatregelen noodzakelijk:

 

Ook dient met de aanwezigheid van in gebruik zijnde bovenleidingen specifiek rekening te worden gehouden in de werkplannen. Zo moet bijvoorbeeld een eventueel toe te passen kraan bijvoorbeeld worden geaard.

 

De veiligheidsvoorschriften bij sporen (veiligheid langs het spoor) zijn afhankelijk van in welke zone de werkzaamheden plaatsvinden, waarbij geldt:

Figuur 515.1 - Zoneverdeling spoor

 

 

 

Specifieke veiligheidsaspecten van werken naast een verkeersweg of in een verkeerstunnel

Artikel nr. 516

Voor werken naast een verkeersweg (rijksweg of niet-rijksweg) gelden regels m.b.t. persoonlijke veiligheid en verkeersveiligheid. Er zijn richtlijnen voor rijstrookafzettingen, omleidingen, maar bijvoorbeeld ook voor het leiden van verkeer bij het afsluiten van een tunnelbuis door de niet-afgesloten tunnelbuis middels een contra-flow systeem.

 

Regels hieromtrent zijn vastgelegd in de Tunnelwet en de richtlijnen voor verkeersmaatregelen. Zo geldt op autosnelwegen de CROW-publicatie 96a, die aansluit op beleidsdocumenten; RVV, BABW, Arbowetgeving en de Nieuwe Ontwerp richtlijnen Autosnelwegen (NOA) [54]. Vanwege de Arbowetgeving gelden extra restricties voor het werken in tunnels, met name voor tunnels waarbij tijdens de wegwerkzaamheden ook door het verkeer worden gebruikt.

 

Er zijn diverse CROW publicaties die handelen over wegwerkzaamheden, waaronder de ’96 serie’ (Handleiding veilig werken aan wegen; Richtlijnen voor maatregelen bij werken in uitvoering op autosnelwegen; Maatregelen bij werken in uitvoering op niet-autosnelwegen). Hierin staat ook de belangrijke link met WegenVerkeersWet (WVW).

 

Rijkswaterstaat kent de RWS-richtlijn voor verkeersmaatregelen bij wegwerkzaamheden op rijkswegen. Ook heeft Rijksaterstaat het document “Eisen voor funderingswerken langs auto(snel)wegen en infrastructurele werken met verhoogd veiligheidsrisico voor de publieke omgeving”.

 

Organisatie

Artikel nr. 517

Bij tunnelbouwprojecten moet zowel de opdrachtgevende als de opdrachtnemende partij een projectorganisatie opzetten. Bij contracten op basis van een traditioneel bestek is er aan de kant van de opdrachtgever een directievoerder en per discipline een toezichthouder. De organisatie van de aannemer kan bij een dergelijk project bestaan uit:

 

Bij de huidige contractvormen (DC, DBFM etc.) heeft de opdrachtgever vaak alleen een toetsende rol. Deze wordt bijvoorbeeld vervuld door een projectmanager met onder hem een risicomanager, een omgevingsmanager, een technisch manager en een contractmanager. Bij grotere projecten kan elke manager een team onder zich hebben. De projectorganisatie van de opdrachtnemer moet dan voorzien in meer ondersteunende diensten: bijvoorbeeld systems engineering, vergunningen, omgevingsmanagement, VGM coördinator etc.

 

Figuur 517.1 - Voorbeeld projectorganisatie opdrachtnemer

 

 

 

 

Vergunningen en Omgevingsmanagement

Artikel nr. 518 (bevat geen inhoud, zie onderliggende artikelen)

Vergunningenmanagement

Artikel nr. 519

De te doorlopen stappen van vergunningsprocedures in de verschillende fasen van ontwerp en uitvoering zijn project-specifiek. Het wettelijke kader waarbinnen het ruimtelijke inpassingplan is vastgelegd, bepaalt de doorlooptijd van de benodigde vergunningen en toestemmingen.

 

Zo is voor gemeentelijke wegen een bestemmingsplan, voor provinciale wegen een provinciaal inpassingsplan en voor rijkswegen een Tracébesluit nodig. Bij een project waarvoor een tracébesluit geldt is een coördinatieregeling van kracht, waarbinnen eerst een ontwerpbesluit en vervolgens een definitief besluit wordt genomen door het bevoegd gezag. Tegen het ontwerpbesluit kan iedereen alternatieve zienswijzen indienen, maar tegen het definitieve besluit staat alleen beroep open bij de afdeling bestuursrechtspraak van de Raad van State. In onderstaand schema is de gecoördineerde voorbereidingsprocedure voor uitvoeringsbesluiten van een tracébesluit weergegeven.

Figuur 519.1 - Voorbereidingsprocedure voor uitvoeringsbesluiten van een tracébesluit

 

 

De vergunningen die nodig zijn voor de bouwfase, dus tijdelijke vergunningen, worden vervolgens conform de reguliere proceduretijd voor iedere vergunning doorlopen.

 

De openstellingsvergunning is voor elke tunnel noodzakelijk. Om de openstellingsvergunning op tijd te verkrijgen is het nodig om direct bij gunning van het project de stakeholders (veiligheidsbeambte, tunnelbeheerder, openbare hulpdiensten, bevoegd gezag en wegbeheerder) te betrekken bij het project. Door frequent regulier overleg met stakeholders en ontwerpers worden processen en eisen tijdig inzichtelijk gemaakt voor de scenarioanalyse, die onderdeel is van het veiligheidsbeheerplan. Hiermee worden discussies bij de openstellingsvergunning, voorkomen. Dergelijke discussies hebben in het verleden wel tot gevolg gehad dat reeds afgebouwde tunnels niet direct in gebruik konden worden genomen, .

 

Bij het plannen, bouwen en openstellen van tunnels zijn er vier fasen te onderscheiden met elk zijn benodigde plan. De inhoud van elk plan is vastgelegd in de leidraad Veiligheidsdocumentatie [92] voor wegtunnels. De plannen zijn te downloaden van de website van Rijkswaterstaat.

 

Figuur 519.2 - Fasering plannen

 

 

 

 

Vergunningen ten behoeve van uitvoering aanleg

Artikel nr. 520

Hieronder volgt een overzicht van vergunningen die naast de omgevingsvergunning voor het bouwen en de openstellingsvergunning van toepassing zijn bij een cut-and-cover of een openbak tunnel.

 

Let op: deze lijst is slechts een voorbeeld ter indicatie, niet compleet en aan wijzigingen in wet- en regelgeving onderhavig.

Tabel 520.1

Soort vergunning
Opmerking
Omgevingsvergunning voor het kappen en/of melding boswet Meestal de eerst benodigde vergunning. Vaak kritisch in de planning.
Omgevingsvergunning en/of melding voor het slopen
Omgevingsvergunning voor het bouwen van een bouwkuip In veel gevallen is het mogelijk de omgevingsvergunning voor de bouwkuip los aan te vragen van de omgevingsvergunning voor de tunnel. Hierdoor spreidt men het risico in de planning. Bespreek deze werkwijze altijd voor met het bevoegd gezag.
Ontheffing Flora- en Faunawet Vaak benodigd om bomen te mogen kappen. Daarom ook kritisch in de planning.
Omgevingsvergunning wegen Bouwfase voor o.a. aanleg uitwegen
Ontheffing provinciale wegenverordening
Onttrekkingsbesluit weg Onttrekken aan openbaarheid
Vaarwegenontheffing
Vergunning Wbr

 

Bouwfase en gebruiksfase voor werkzaamheden in, op, onder en in de nabijheid van Waterstaatsobjecten zoals rijkswegen en rijkswaterwegen
Ontgrondingenvergunning
Watervergunning Bouwfase en gebruiksfase voor diverse activiteiten zoals het lozen van bemalingswater of water uit de pompkelder in oppervlaktewater, het onttrekken van grond- en oppervlaktewater en werkzaamheden in, op, onder en in de nabijheid van waterkeringen
Watervergunning voor het aanleggen van een kanteldijk Voor de bouw van een tunnel is het vaak nodig om een kanteldijk aan te leggen. Hiervoor is een watervergunning benodigd.
Ontheffing APV (geluid) Voor de bouwfase afhankelijk van de bouwmethode en omgeving
Verkeersbesluit (Babw) Voor de bouwfase bij tijdelijke maatregelen wegen in beheer bij gemeente, provincie en/of rijksoverheid en voor de gebruiksfase.
Verkeersbesluit vaarwegen
Ontheffing RVV
Vergunning rioolaansluiting Gebruiksfase t.b.v. het bedieningsgebouw
Keurvergunning Voor werken in / doorsnijden en aanpassingen van een waterkering.

 

 

Omgeving en communicatie

Artikel nr. 521

Normaliter is de opdrachtnemer van het project verantwoordelijk voor de bouwcommunicatie en de opdrachtgever voor de publiekscommunicatie. Bij grote, langdurige bouwprojecten met grote impact op de omgeving komt het ook vaak voor (zoals bij de Noord-Zuidlijn) dat de opdrachtgever de bouwcommunicatie verzorgt. In dat geval maakt de opdrachtgever het communicatieplan en confirmeert de opdrachtnemer zich eraan.

 

Bouwcommunicatie omvat naast het tijdig informeren over de uit te voeren werkzaamheden (uiterlijk 1 week voorafgaand aan de start van werkzaamheden, doorgaans veel eerder) ook het onderhouden van relaties met stakeholders (opdrachtgever, organisaties, bewoners, bedrijven en overheden).

 

Door het effectief inzetten van bouwcommunicatie worden onderstaande doelstellingen bereikt:

 

Het is belangrijk om vooraf het doel van de communicatie vast te stellen. Deze doelstellingen worden gerealiseerd door middel van:

 

Het informeren van de doelgroepen gebeurt door de inzet van verschillende communicatiemiddelen. Communicatiemiddelen die kunnen worden ingezet, zijn onder andere:

 

Omgevingsmanagement is het meenemen van de omgeving in de realisatiefase van een bouwproject zodat hinder (beleving) wordt geminimaliseerd. Typische voorbeelden van bouwoverlast bij cut-and-cover tunnelprojecten zijn:

 

Door omgevingsrisico’s in kaart te brengen worden alle relevante belangen van diverse omgevingspartijen inzichtelijk. Op die manier is het mogelijk een werkwijze te kiezen waarin rekening wordt gehouden met deze omgevingsbelangen. Door betrokkenheid met de omgeving te tonen, vermindert de kans op bezwaren en vertragingen vanuit de omgeving. Om een goede relatie op te bouwen met de belanghebbenden is het belangrijk dat de opdrachtnemer zich opstelt als een goede en betrouwbare buur.

 

In het omgevingsmanagement zijn naast verkeersmanagement, kabels & leidingen, flora & fauna en archeologie drie belangrijke pijlers te onderscheiden:

 

Een stakeholderanalyse van de projectomgeving geeft inzicht in de belangen van de stakeholders en hun houding (zijn het voor- of tegenstanders), en wat hun invloed is op het project. Door de stakeholders te betrekken bij het project, ontstaat een dialoog die is gericht op het verkrijgen van draagvlak en samenwerking.

 

Bij tunnels zijn er een paar specifieke stakeholders die meer dan bij andere projecten een rol spelen:

 

Inrichting en ontsluiting bouwterrein

Artikel nr. 522 (bevat geen inhoud, zie onderliggende artikelen)

Bouwplaatsinrichting

Artikel nr. 523

Om de bouwplaats effectief en efficiënt te kunnen inrichten en ontsluiten, is het belangrijk om alle processen gedurende het project met bijbehorende logistiek en benodigd ruimtebeslag goed te doorgronden.

 

Normaliter moet een bouwterrein voor een cut-and-cover tunnel voorzien in:

 

Veelal is een bouwplaats minder goed bereikbaar met het openbaar vervoer. Bij het bepalen van het aantal parkeerplaatsen dient daarom rekening te zijn gehouden met de verhouding 1:1. Daarnaast zal een aantal plaatsen voor bezoekers gerekend moeten worden. Met haaks parkeren kan het grootste aantal plaatsen worden gecreëerd.

 

Voor het bepalen van de grootte en inrichting van het opslagterrein zijn 4D BIM tools beschikbaar die de fasering en hoeveelheden in de tijd zichtbaar maken. Benodigd materiaal en materieel kunnen in de tijd uitgezet worden, waardoor zichtbaar wordt wanneer de grootste piek ontstaat in het gebruik van het opslagterrein. Door slimme voorbereiding kan ook het gebruik van het parkeerterrein meegenomen worden in de planning van de benodigde oppervlakte. Er zijn ook 4D BIM tools die de fasering van alle bouwplaatsvoorzieningen integraal uitwerken.

Figuur 523.1 - Voorbeeld inrichting bouwplaats

 

 

 

 

 

Ontsluiting

Artikel nr. 524

Bij de ontsluiting van de bouwplaats is het van belang dat bij in- en uitrijden van het verkeer op de weg van waaraf ontsloten wordt zo min mogelijk hinder ondervindt. De afstand tussen de weg en afscherming van het terrein en/of de toegangspoort dient voldoende opstellengte te bieden aan de voertuigen die er gebruik van gaan maken. Door het combineren van de in- en uitrit wordt hinder op de aansluitende weg tot een minimum beperkt. Dat houdt wel in dat voertuigen op het terrein moeten kunnen keren. Voor de ontwerper zijn tools beschikbaar waarmee een rijcurve kan worden gesimuleerd, ook desgewenst in 3D. Voor een in- en uitrit naar de openbare weg is een vergunning nodig. De vergunningverlener zal willen weten wat de intensiteit van de in- en uitrit zal zijn om aan de hand daarvan ook de voorwaarden te kunnen bepalen.

 

Verharding

Artikel nr. 525

CUR Rapport 2004-1 [93] geeft richtlijnen voor de begaanbaarheid van bouwterreinen. Bij tunnelbouw vindt opslag en transport van relatief zwaar materiaal plaats. Gebruik van het beschikbare terrein zonder verharding is vrijwel uitgesloten. Door het toepassen van de juiste verhardingsconstructie zal gedurende het hele werk herstelwerk niet of nauwelijks nodig zijn. Van belang is dat op het terrein geen wateroverlast kan ontstaan. Daardoor zal tijdens vorstperioden de kans op gladheid sterk verminderd worden. Voldoende afwatering en drooglegging zijn niet alleen van belang i.v.m. wateroverlast maar ook voor de verhardingsconstructie. Bij een lange natte periode zal de ondergrond verzadigen, de draagkracht verminderen en daardoor zal de belasting van het werkverkeer en materialenopslag schade veroorzaken aan de verhardingsconstructie.

Tabel 525.1 - Toe te passen materialen met gewenste opbouw, ervan uitgaande dat de ondergrond van het terrein niet uit zand bestaat

Toplaag Puingranulaat 0,40 m Betonklinkerkei Rijplaten Industrieplaten (Stelcon) Asfalt 0,08 m
Onderliggende lagen wegendoek 0,50 m zand 0,50 m zand 0,30 m zand 0,25 m puingranulaat
maaiveld wegendoek maaiveld wegendoek 0,50 m zand
  maaiveld   maaiveld wegendoek
        maaiveld

Tabel 525.2 - Voor- en nadelen van de verschillende constructies

 

Puingranulaat

Klinkers

Rijplaten

Industrieplaten

Asfalt

Aanleg / aanlegkosten

++

+

Weerstand tegen wringing verkeer

+/-

+/-

+

++

+

Weerstand tegen puntbelasting

+

++

+/-

Waterdoorlatendheid

+/-

+

Herstelkosten

+

+/-

+

 

 

Omgevingsbeïnvloeding

Artikel nr. 526 (bevat geen inhoud, zie onderliggende artikelen)

Vormen van omgevingsbeïnvloeding

Artikel nr. 527

Tijdens het uitvoeren van een cut-and-cover tunnelbouwproject kunnen geluid en trillingen omgevingshinder veroorzaken. Daarnaast kunnen deformaties optreden, als gevolg van trillingen of als gevolg van andere effecten zoals eventuele bemaling, doorbuiging van de kerende wanden, of lekkages. Ook beïnvloeding van het grondwater (niveaus, stijghoogtes, grondwaterstroming en wateroverspanning) kan belangrijke gevolgen hebben voor de omgeving.

 

Tijdens het heien van palen of het inbrengen van combi- of damwanden kunnen geluid en trillingen omgevingshinder veroorzaken. Voor de predictie van trillingen t.g.v. het aanbrengen van damwanden en combiwanden worden richtlijnen gegeven in CUR 166 [7]. Trillingen in de bodem kunnen leiden tot een verzakking van het maaiveld of zettingen, deformaties en/of scheuren van naburige constructies. Bij losgepakt zand kunnen verdichtingen leiden tot wateroverspanning in de poriën met als gevolg afname van de korrelspanning, leidend tot het afschuiven van taluds of problemen bij kerende constructies en funderingen (vooral bij funderingen op staal, maar ook bij paalfunderingen).

 

Tijdens het ontgraven zullen de kuipwanden doorbuigen. Aan de grondzijde (buiten de kuip) wijkt de wand, waardoor de grond ontspant. Maaiveldzakkingen en verplaatsingen van constructies in de directe omgeving kunnen het gevolg zijn. Vervormingen in de bodem kunnen schadelijk zijn voor bijvoorbeeld funderingspalen en leidingen.

 

Geluidoverlast is bijvoorbeeld van belang indien gebouwd wordt in de buurt van woonwijken. Eisen kunnen aan trillingen worden gesteld vanwege functies van naburige gebouwen (bijvoorbeeld storingsgevoeligheid van belangrijke computers). Trillingen en deformaties spelen een bijzondere rol bij projecten aan of in de nabijheid van een spoorlijn. ProRail heeft hier richtlijnen voor.

 

Het voorkomen van schade aan belendingen krijgt een extra dimensie bij projecten in de omgeving van een monument of bestaand kunstwerk. Tegenwoordig worden veel tunnels gebouwd als onderdeel van een wegverbredingsproject of ter vervanging van een bestaande brug of tunnel. Dientengevolge wordt er vaak direct naast een bestaande tunnel of brug gebouwd (die in veel gevallen meer dan een halve eeuw oud is), waarvan de integriteit moet worden bewaakt.

 

Bij het bouwen naast een bestaande afzinktunnel moet men extra alert zijn op trillingen en deformaties. Trillingen kunnen wateroverspanning (en dus een afname van korrelspanningen, leidend tot schuifsterkteverlies) teweegbrengen in het fundatiebed, dat doorgaans bestaat uit slechts matig verdicht onderspoelzand. Voor de voegen tussen opeenvolgende tunnelmoten kunnen zowel trillingen als deformaties schadelijk zijn. Bij een vertande voeg zal elk te meten verplaatsingsverschil tussen de moten c.q. elementen aan weerszijden van de voeg scheurvorming in de vertanding ten gevolge hebben. Te grote verschilverplaatsingen over de voeg kunnen leiden tot lekkage t.p.v. de voegenbanden.

 

De fenomenen die leiden tot omgevingsbeïnvloeding en de bijbehorende predicties zijn uitgebreid beschreven in Invloed op de omgeving en Geotechnische risico’s. Onderstaande artikelen bevatten informatie over de monitoring en mitigatie tijdens de uitvoering.

 

 

In kaart brengen van de situatie

Artikel nr. 528

Voorafgaand aan het werk moet van de belendingen in kaart zijn gebracht of ze schade kunnen ondervinden ten gevolge van de werkzaamheden. Afhankelijk van lokale factoren en werkzaamheden kan een inschatting worden gemaakt van het gebied waarbinnen schade aan gebouwen kan worden verwacht, bijvoorbeeld binnen een straal van circa 25 m. Inzicht in de constructies is van belang om te bepalen wat nog toelaatbaar is. Zo kan informatie over gebruikte materialen of de diepte van de heipalen van belendingen mede bepalend zijn voor de keuze van de werkmethoden.

 

Veelal wordt voorafgaand aan de uitvoering een uitgebreide vooropname gedaan van de belendingen. Deze bestaat uit complete beschrijvingen van de bouwkundige staat op detailniveau, dus een beschrijving van elke zichtbare scheur en vastlegging daarvan op beeldmateriaal. In geval van schadeclaims achteraf kan hiermee worden vastgesteld of eventuele schade gedurende de uitvoering van het werk is ontstaan of daarvoor.

 

Grenzen aan trillingen zijn bijvoorbeeld vastgelegd in de Wet geluidhinder [66], het Besluit Geluidhinder en de Meet- en beoordelingsrichtlijn. Voor continu of herhaald voorkomende trillingen gedurende uitsluitend de dagperiode over kortere perioden dan drie maanden worden in bepaalde situaties hogere waarden toegelaten. Met betrekking tot geluid zijn eveneens eisen opgenomen in het bouwbesluit, zie onderstaande tabellen bij wijze van voorbeeld. Het bevoegd gezag kan ontheffing verlenen van geluid en trillingssterkte.

 

 

 

In onderstaande grafiek is voor enige specifieke bouwwerkzaamheden de geluidbelasting (dagwaarde) gegeven in relatie tot de afstand en grenswaarden uit Bouwbesluit 2012 [75].

 

Uit het bovenstaande blijkt onder meer dat op een afstand van minder dan 60 m de maximale toelaatbare geluidbelasting van 80 dB(A) wordt overschreden bij reguliere heiwerkzaamheden. Verder blijkt dat vanaf 350 m voldaan wordt aan de grenswaarde van 60 dB(A). Bij woningen op kortere afstand dan 350 mag er dus niet zonder meer worden geheid. In stedelijke omgeving is dus vaak ontheffing nodig.

 

Speciale aandacht is ook nodig voor eventueel aanwezige objecten binnen het werkterrein. Vóór aanvang van de werkzaamheden moeten eventuele kabels en leidingen in kaart zijn gebracht middels een KLIC melding en eventueel door het graven van een proefsleuf. Ook moet er worden onderzocht of er obstakels, explosieven en/of archeologische vondsten te verwachten zijn.

 

In toenemende mate nemen ook milieutechnische en ecologische aspecten een belangrijke plaats in.

Figuur 528.1 - Geluidniveau bouwwerkzaamheden in relatie tot afstand en grenswaarden Bouwbesluit

 

 

 

 

 

Mitigerende maatregelen

Artikel nr. 529

Vroeg in de ontwerpfase dient al rekening te worden gehouden met overlast tijdens uitvoering. Door bijvoorbeeld te kiezen voor een diepwand in plaats van een combiwand, voorkomt men geluids- en trillingsoverlast. Omdat een diepwand stijver is, zullen tijdens het ontgraven van de bouwkuip de maaiveldzakkingen en deformaties in de grond buiten de kuip ook minder zijn. Geboorde palen zullen bijvoorbeeld minder geluid en trillingen met zich mee brengen dan geheide palen.

 

Mitigerende maatregelen kunnen ook worden gezocht in de werkmethode of inzet van materieel. Vaak is het mogelijk om bij het intrillen van damwanden gebruik te maken van een hoogfrequent trilblok, waarmee de overlast of kans op schade tot een acceptabel niveau wordt gereduceerd. Bij zeer zware eisen t.a.v. trillingen worden er alternatieve uitvoeringsmethoden overwogen. Zo zijn bij de bouw van de Tweede Coentunnel de buispalen van een combiwand ingeboord (schroevend ingebracht). Aan de onderzijde van de buizen werden hiervoor hardstalen boortanden gelast die er voor zorgden dat er zowel aan de binnen- als aan de buitenzijde van de buis ruimte werd gecreëerd, die weer werd opgevuld met grout.

 

Heilawaai kan worden gereduceerd door een juiste keuze van het heiblok, rekening houdend met de heibaarheid, paalkopwapening en de gewenste productiesnelheid. Verdere vermindering van geluidsoverlast kan bestaan uit geluidgedempt heien of gebruik van een isolerende heimantel.

 

Monitoring

Artikel nr. 530

Deformaties, trillingen, geluid, wateroverspanningen e.d. kunnen met vooraf bepaalde regelmaat op gezette tijden worden gemeten. In kritieke gevallen kan een continu monitoringssysteem worden geïmplementeerd dat real time meetgegevens genereert en archiveert. Het is mogelijk om het systeem automatisch melding te laten maken van gelijktijdig of sequentieel optreden van trillingen, verplaatsingen en wateroverspanningen. Drempelwaarden en beheersmaatregelen moeten vooraf zijn bepaald inclusief een stappenplan voor het geval dat men de grenswaarden nadert. Een voorbeeld is de monitoring van de correcte ligging van de sporen van een spoorbaan. Indien deze wordt aangetast als gevolg van hei-/trilwerkzaamheden, dienen de werkzaamheden direct te worden gestaakt totdat de juiste ligging van de sporen is hersteld.

 

Het monitoringsysteem kan worden uitgerust met een waarschuwingssysteem waarbij bij overschrijding van bepaalde waarden een alarmtoon af gaat en/of een bericht naar betrokkenen wordt gestuurd via sms of e-mail.

 

Geruime tijd vóór de start van de werkzaamheden wordt begonnen met de nulmonitoring om de reguliere situatie (beginwaarden/landurig gemiddelde waarden inclusief achtergrondruis) te bepalen zonder invloed van werkzaamheden. Dit wordt ook wel de basiswaarden genoemd. Wanneer de werkzaamheden aanvangen, registreert het systeem de eerste significante veranderingen ten opzichte van de nulmonitoring conform verwachting. Betrokkenen kunnen hieraan zien dat er iets gebeurt. Bij overschrijding van de zgn. signaalwaarden is extra alertheid nodig. Mensen en systemen worden in paraatheid gebracht. Bij het overschrijden van de interventiewaarde moeten maatregelen worden genomen, bijvoorbeeld het reduceren van trillingen door de slagkracht omlaag te brengen. Bij het bereiken van de terugvalwaarde moet het werk worden stil gelegd en maatregelen moeten worden genomen zoals het wijzigen van de werkmethode.

 

Signaal-, interventie- en terugvalwaarden moeten vooraf zijn vastgesteld. Deze zgn. drempelwaarden, ook wel grenswaarden genoemd, worden bepaald uit nulmonitoring, constructieve analyse, geotechnische berekeningen, eisenanalyse etc. Voor het bepalen van de terugvalwaarden voor trillingen kan bijvoorbeeld de grafiek van Hergarden worden gebruikt, die een predictie geeft voor het al dan niet optreden van verdichting bij een bepaalde trillingsintensiteit [mm/s] en frequentie [Hz] voor verschillende initiële relatieve dichtheden in de grond. Onderstaand figuur geeft een voorbeeld van hoe met deze grafiek grenzen worden bepaald voor trillingen in relatie tot het onderspoelbed van een naastgelegen afzinktunnel. Tijdens de werkzaamheden kunnen op basis van monitoringgegevens predicties, werkwijzen, drempelwaarden of maatregelen worden bijgesteld (Observational method).

Figuur 530.1 - Voorbeeld gebruik van drempelwaarden met grafiek van Hergarden

 

 

 

 

Meetmethoden

Artikel nr. 531 (bevat geen inhoud, zie onderliggende artikelen)

Trillingen

Artikel nr. 532

Tijdens het werk kunnen trillingen in de grond worden gemeten met een geofoon, een apparaat dat trillingen in de grond omzet in elektrische impulsen. Het monitoring systeem registreert de trillingen in termen van frequentie [Hz] en snelheid [mm/s].

 

Figuur 532.1 - Geofoon

 

Waterspanningen

Artikel nr. 533

Waterspanningen kunnen worden gemeten met peilbuizen. Variaties kunnen nauwkeuriger worden afgelezen met digitale waterspanningsmeters. Deze bestaan uit een sonde met in de punt een kunststof filter. Het piëzoresistieve membraan van de sensor meet de waterdruk met een nauwkeurigheid van circa 3 cm. De behuizing is van RVS, waardoor het apparaat na plaatsing in de grond niet corrodeert.

 

Figuur 533.1 - Waterspanningsmeter

 

 

Deformaties

Artikel nr. 534

De uitbuiging van een combiwand of damwand tijdens ontgraving kan worden gemonitord door t.p.v. de ankers of stempels hellingmeetbuizen op verschillende dieptes op de buispalen of damwandplanken aan te brengen. In deze meetbuizen wordt meetapparatuur ingelaten om de helling van de wand als functie van de diepte in verschillende fasen af te lezen. Een dergelijke meting wordt in het algemeen op verschillende tijdstippen, telkens na het bereiken van een bepaalde bouwfase uitgevoerd. Ook kunnen continu registrerende inclinometers worden gemonteerd. Horizontale en verticale vervormingen van het maaiveld en de kop van de damwand kunnen worden gemeten door zakbaken te installeren in raaien met meetpunten op verschillende afstanden van de wand.

 

Vervormingen en verplaatsingen van constructies kunnen worden ingemeten middels een deformatiemeting, bijvoorbeeld met een tachymeter. Dit apparaat, ook wel total station genoemd, meet afstanden en hoeken in verschillende richtingen. Het nadeel hiervan is dat de meting bij mist en dauw niet mogelijk is. Een goed alternatief is een GPS meting. Na bewerking van de GPS meetgegevens is een nauwkeurigheid van 1 mm haalbaar.

 

Spanningen

Artikel nr. 535

Spanningen in nabij gelegen constructies kunnen worden bewaakt met druksensoren. In feite worden de krachten of rekken gemeten en daaruit de spanningen berekend. Temperatuurmetingen kunnen uitwijzen of bepaalde spanningen of vervormingen het gevolg zijn van de werkzaamheden of van temperatuurveranderingen. Schades en gevolgschades (scheuren, zakkingen e.d.) kunnen visueel worden geïnspecteerd. Daarbij kunnen scheurmeters worden gebruikt die eventueel permanent zijn geïnstalleerd om scheuren te monitoren.

 

Monitoring naastgelegen tunnel

Artikel nr. 536

In het voorbeeld van een naastgelegen bestaande tunnel is het belangrijk om de voegen te monitoren. Visuele inspecties kunnen uitwijzen of lekkage optreedt. Absolute en relatieve verplaatsingen over de voegen kunnen bijvoorbeeld worden gemonitord door met tachymeters in de tunnel geïnstalleerde prisma’s in te meten. 3D voegmeters zijn nog iets nauwkeuriger voor dit doel (circa 0,1 mm). Vlakbij de voegen kunnen peilbuizen of waterspanningsmeters worden geïnstalleerd. Wateroverspanning is bijvoorbeeld ook belangrijk wanneer er naast een bestaande afzinktunnel wordt gebouwd, aangezien deze in de meeste gevallen is gefundeerd op een slechts matig verdicht pakket onderspoelzand.

 

Aanbevolen literatuur

Artikel nr. 537

 

Damwanden en combiwanden

Artikel nr. 538 (bevat geen inhoud, zie onderliggende artikelen)

Uitvoeringstechnische voor- en nadelen

Artikel nr. 539

Damwanden en combiwanden worden veelvuldig toegepast bij cut-and-cover tunnels. Meestal dienen ze als tijdelijke kuipwand, maar steeds meer krijgen ze ook de functie van een permanente tunnelwand. Als permanente constructie dient in het ontwerp meer dan bij diepwanden terdege aandacht te worden besteed aan brandwerendheid en corrosie (vooral bij projecten in de nabijheid van een spoor i.v.m. zwerfstromen) en lekkage (m.n. door de sloten). Diepwanden zijn in het algemener stijver dan dam- en combiwanden.

 

De uitvoeringstechnische voordelen ten opzichte van bijvoorbeeld een diepwand zijn het uitvoeringsgemak, de terugwinbaarheid en de snelheid waarmee gebouwd kan worden (weinig activiteiten en geen verhardingstijd). Daarentegen geeft het inbrengen van dam- en combiwanden veel geluids- en trillingsoverlast. Intrillen van damwanden en combiwanden is een zware opgave in harde bodems en bodems met obstakels (zwerfkeien etc.). In voorkomende gevallen kan men overgaan op het afhangen van de damwanden in een cement-bentoniet sleuf (zie Damwanden afgehangen in cement-bentoniet wand) of het voorboren van de sloten en vullen met cement-bentoniet.

 

Voor gedeelten met een geringe kerende hoogte kan een berlinerwand een aantrekkelijk alternatief zijn voor een damwand. Daarbij worden stalen H-balken in de grond gebracht, waarna tijdens het graven van de kuip betonnen platen of houten planken tussen de flenzen van de H-profielen worden geplaatst. Vanwege de geringe weerstand en het onvermogen om water te keren, kan dit systeem in de Nederlandse tunnelbouwpraktijk alleen worden toegepast bij het meest ondiepe gedeelte van de toerit. Om te veel verschillende systemen te voorkomen, wordt er doorgaans voor gekozen om de damwanden door te zetten.

 

Met combiwanden kunnen grotere hoogtes worden gekeerd dan met damwanden. Soms worden combiwanden ook gekozen vanwege de geringere doorbuiging. Dit kan van belang zijn in verband met benodigde kuipbreedte of toegestane deformaties en zettingen direct naast de kuip. Ook de heibaarheid is een uitvoeringstechnisch voordeel van combiwanden t.o.v. damwanden. Het nadeel van combiwanden is dat deze vaak niet getrokken kunnen of mogen worden, omdat de grond te veel wordt verstoord, waardoor de pas gebouwde tunnel wordt beschadigd of het draagvermogen van de funderingspalen negatief wordt beïnvloed. Doorgaans worden ze 2,5 m onder maaiveld afgebrand. Dit probleem kan ook bij damwanden optreden, zij het in veel mindere mate. Het aanbrengen van combiwanden is bewerkelijker en de tolerantie-eisen zijn strenger omdat de damwandplanken tussen de buizen moeten passen.

 

 

Methoden aanbrengen en trekken

Artikel nr. 540 (bevat geen inhoud, zie onderliggende artikelen)

Aanbrengen van damwanden

Artikel nr. 541

Damwanden worden doorgaans ingebracht middels trillen. Soms worden damwanden nageheid wanneer deze met trillen lastig op diepte komen. Indien een slotafdichtingsmiddel wordt toegepast, dient voorzichtigheid te worden betracht bij het trillen. Door de warmteontwikkeling kan het afdichtingsmiddel bij zwaar trilwerk smelten of verbranden. Soms wordt er om die reden voor gekozen om damwanden te heien, maar dan is het gevaar groter dat een plank uit het slot loopt. Wanneer geluid en/of trillingen een probleem zijn, gaat men vaak over op drukken. Silent Piler is een drukmethode, waarbij een of meerdere reeds ingebrachte planken de reactiekracht opbrengen om de volgende damwandplank de grond in te drukken. Drukken is slechts mogelijk tot circa 8 m diep en de eerste plank is lastig op diepte te krijgen.

 

De heibaas heeft de dagelijkse leiding over de werkzaamheden van de stelling volgens de geldende richtlijnen alsmede de instructies van de uitvoerder. Zijn taken zijn:

 

Voorafgaande aan de uitvoering van de heiwerkzaamheden wordt een proefsleuf gemaakt in de nabijheid van aanwezige kabels en leidingen. Coördinaten worden uitgezet conform tekening. Hierbij worden de hoekpunten van de damwanden/bouwkuipen met behulp van piketten uitgezet. Aan de hand hiervan wordt de heigording gesteld waartussen de damplanken worden ingetrild en eventueel nageheid. Nadat de damplanken zijn aangebracht wordt de gording verplaatst naar het volgende gedeelte, waarna de juiste hoogte van bovenkant damwand op de damplanken kan worden aangegeven en deze op de juiste hoogte kan worden getrild c.q. geheid.

 

Het inbrengen gaat met behulp van een hydraulische heistelling, uitgerust met een trilblok en/of dieselblok (om na te heien). De stelling wordt op draglineschotten opgesteld. Nadat de heigordingen zijn gesteld, wordt de eerste damplank met een damwandstrop of damwandklauwen gelost en vervolgens met behulp van een damwandstrop c.q. quick-release-shackles of sluiting opgehesen. Het trilblok staat dan tijdelijk op de voorlaatste plank. Het trilblok wordt bovenop de damwand geplaatst waarna de damplank wordt ingetrild. Vervolgens wordt de volgende damplank ingehesen en ingesloten in het slot van de vorige damplank. Na het insluiten wordt het trilblok verplaatst en wordt de damplank op de juiste diepte getrild. Dit proces wordt herhaald totdat er zo veel planken zijn aangebracht, dat de heigording opnieuw moet worden verplaatst en gesteld. Na het verplaatsen en stellen van de heigording kan het proces opnieuw worden begonnen.

 

Om de bouwkuip te sluiten wordt de ruimte tussen de voorlaatste en de aansluitende damwandplank opgemeten en eventuele scheefstanden van het scherm ingemeten. Vervolgens wordt deze pasplank gefabriceerd en na levering ingebracht. In principe lopen nu de sloten waartussen de sluitplank moet worden ingebracht, parallel. Ook zou gedacht kunnen worden aan het bewust niet in het slot heien van de sluitplank, maar het toepassen van een zgn. muizenval en grondinjectie.

 

Na inbrengen van de damwanden en het aanbrengen van het stempelraam wordt de bouwkuip ingemeten. Dit wordt tevens gedaan na ontgraven van de bouwkuip.

 

Tijdens de ontgraving zullen de damwandkassen schopschoon worden gemaakt met behulp van de jets op de DOP-pomp of met een spuitlans welke is voorzien van nozzles en hoge druk (ca. 12 bar). Hierbij wordt gebruik gemaakt van het water uit de bouwkuip. Tijdens het ontgraven zal een controle op de damwanden plaatsvinden. Deze controle met duikers zal inspecteren of er geen damwanden uit het slot zijn gegaan tijdens het aanbrengen.

Figuur 541.1 - Voorbeeld aanbrengen van damwanden

 

 

 

 

 

Aanbrengen van combiwanden

Artikel nr. 542

Buizen van combiwanden worden volledig geheid of nageheid wanneer de palen met trillen lastig op diepte komen. Waterinjectie en voorboren (toegestaan tot 1 m boven puntniveau) zijn ook technieken die kunnen worden ingezet bij heibaarheidsproblemen. Trillen geeft minder geluids- en trillingshinder dan heien. Wel geeft het trillen meer verdichting en wateroverspanning in de grond. Damwandplanken in combiwanden worden doorgaans ingebracht middels trillen.

 

De buispalen van combiwanden worden bijvoorbeeld ingebracht met een mobiele heistelling met een vaste makelaar waarlangs het dieselblok met palenmuts wordt geleid. Het heiblok zit met een geleiding aan de makelaar vast. Omdat de heimuts over de paal heen gaat, worden de sloten niet tot de bovenkant van de paal doorgetrokken. Aan de ene kant stopt het slot 150 mm en aan de andere kant 200 mm vanaf de kop.

 

De posities van de buispalen worden ingemeten door een maatvoerder met een total station en gefixeerd met een heiframe. De tussenplanken worden gefixeerd tussen 2 buispalen; de loodstand wordt door de heibaas gecontroleerd met een waterpas. De afheihoogte wordt door de maatvoerder m.b.v. een waterpastoestel bepaald. Afhankelijk van het bestaande maaiveld en de afheihoogte kan ter plaatse van de combiwand een sleuf worden gegraven zodat de palen direct op diepte kunnen worden gezet. Omdat de sloten op de buispalen vaak niet tot onderaan doorlopen, moet met een passe-partout worden voorkomen dat de paal gaat draaien voordat de sloten in het frame steken. Tevens wordt met een slaglijn de lijn van het slot doorgetrokken tot de onderkant van de paal. De passe-partout wordt met een lier langs de makelaar op en neer bewogen.

 

De palen kunnen door de stelling zelf van de wagens worden gehesen en in de stelling worden getrokken. Allereerst worden de combibuizen aan de uiteinden van het heiframe geïnstalleerd, waardoor de positie van het frame is gefixeerd. De volgorde van heien van de overige palen wordt zodanig gekozen dat het verlopen van de palen door eenzijdige verdichting wordt tegengegaan, m.a.w. er dient zoveel mogelijk om en om te worden geheid.

 

Bij een combiwand is hoekverdraaiing van de buispalen ook een punt van aandacht. Een veel gebruikte maatregel is het toepassen van een slotgeleiding op het heiframe en in de makelaar. De h.o.h. afstand en scheefstand van de palen worden gezekerd door gebruik van een vaste makelaar en voldoende stijf heiframe.

 

De tussenplanken kunnen met dezelfde stelling en hetzelfde heiblok of middels trillen worden geplaatst tussen de buispalen. De sloten op de buispalen dienen over minimaal 25 cm vrij zijn van grond, zodat de p1anken goed kunnen worden ingesloten.

 

 

Verwijderen van kuipwanden

Artikel nr. 543

Tijdelijke damwanden worden na gebruik vaak weer getrokken. In polders of andere gebieden waar sprake is van een gelaagde bodem met waterremmende lagen en wisselende stijghoogtes, wordt hierbij vaak geëist dat de sleuf wordt gedicht d.m.v. bentoniet injectie om ongewenste (verticale) grondwaterstromingen na het trekken te voorkomen. Dit wordt reparerend trekken genoemd.

 

Bij het trekken van de wanden treden veelal relatief grote zakkingen en horizontale grondverplaatsingen op. Dit is een probleem als in de omgeving van de combiwand zettingsgevoelige constructies aanwezig zijn. Daarnaast moet de invloed van de grondverplaatsingen en zakkingen op de fundering van de tunnel worden onderzocht.

 

Bij de Hogesnelheidslijn Zuid was het referentieontwerp van diverse kunstwerken voorzien van combiwanden die in veel gevallen geen definitieve functie hebben. Om die reden is door de HSL organisatie een praktijkproef uitgevoerd naar de mogelijkheid van trekken van deze wanden, zie ook het artikel: Trekken van lange combiwanden [85]. Hieruit is gebleken dat de te verwachten grondverplaatsingen in dat geval zeer aanzienlijk zijn. Om deze reden is het trekken van combiwanden niet gebruikelijk.

 

 

Materieel

Artikel nr. 544

In te zetten materieel t.b.v. het aanbrengen van damwanden c.q. combiwanden:

 

Het hijsen van damwandplanken dient te geschieden met behulp van een damwandstrop c.q. quick-release-shackles of sluiting. Eén en ander om beschadiging te voorkomen.

 

 

Bouwsnelheid

Artikel nr. 545

De productiesnelheid is afhankelijk van de inheidiepte, bodemgesteldheid en andere projectspecifieke aspecten. Voor de snelheid bij een gemiddeld tunnelproject van inbrengen valt te denken aan een productie van bijvoorbeeld 10-15 m/dag, uitgaande van één stelling.

 

Bouwtoleranties

Artikel nr. 546

In de NEN-EN 12063 (Uitvoering van bijzonder geotechnisch werk – Damwanden) [46] staan de volgende toelaatbare afwijkingen voor damwanden en combiwanden:

 

In bepaalde gevallen mag van bovenstaande toleranties worden afgeweken. Zie hiervoor NEN-EN 12063.

 

Bij combiwanden zijn horizontale maattoleranties belangrijker dan bij damwanden, aangezien de damwandplanken goed tussen de buispalen moeten passen om uit het slot lopen te voorkomen. Aan de h.o.h. afstand van de buispalen en afwijking in dwarsrichting van de sloten moeten hiervoor strenge eisen worden gesteld. Voor de buispalen en damwandplanken kunnen bijvoorbeeld o.a. de volgende toleranties gelden:

 

Rijkswaterstaat heeft in de Richtlijn Toleranties t.b.v. Betonconstructies [94] uit juni 1997 van de hoofdafdelingen Droge Infrastructuur en Projectuitvoering en Diensten ook toleranties vastgelegd voor damwanden.

 

Behalve de heitoleranties dient ook rekening te worden gehouden met vervormingen die optreden tijdens ontgraven en leegpompen van de bouwkuip. Hoewel dit vanzelfsprekend lijkt, is bij het ontwerp van de bouwkuip voor de toeritten in een recent tunnelproject hiermee geen rekening gehouden, waardoor aanpassingen aan het ontwerp van de permanente constructie nodig waren.

 

 

 

Specifieke aandachtspunten

Artikel nr. 547 (bevat geen inhoud, zie onderliggende artikelen)

Heibaarheid

Artikel nr. 548

In harde bodems of bij aanwezigheid van obstakels in de grond kan de heibaarheid een probleem zijn. Wanneer men tijdens het inbrengen veel weerstand verwacht, kan men kiezen voor voorboren of gebruik van een spuitlans. Ook is het mogelijk om buispalen en/of damwandplanken na te heien of volledig heiend in te brengen in plaats van te drukken of te trillen. De keuze van het heiblok is in sterke mate bepalend voor de uiteindelijke heibaarheid.

 

In dit kader wordt ook verwezen naar Omgevingsbeïnvloeding.

 

 

 

Uit het slot lopen van wanden

Artikel nr. 549

Tijdens het ontgraven kunnen lekkages ten gevolge van gaten of uit het slot gelopen damwanden zichtbaar worden. Dit kan worden verholpen door het oplassen van staalplaten. Bij grotere openingen kunnen de lasplaten worden voorzien van injectienippels waardoorheen na het lassen wordt geïnjecteerd. Bij nog grotere lekkages kan vanaf de grondzijde worden geïnjecteerd, bijvoorbeeld met een ankerboormachine.

 

Door voor de tussenplanken van een combiwand een stelling met vaste makelaar te gebruiken, verkleint men de kans op scheef ingebrachte planken en daarmee de kans dat deze uit het slot lopen. Door de onderzijde van het vrijblijvende slot bij het aanbrengen af te dichten met een bout, voorkomt men dat dit slot verstopt raakt, waardoor de kans op uit het slot lopen ook wordt verkleind.

 

Uit het slot lopen van damwanden kan soms in een vroeg stadium worden gedetecteerd m.b.v. een slotverklikker. De praktijk is echter dat ook deze geen 100% garantie opleveren vanwege soms voorkomende foutieve waarnemingen.

 

 

 

Aanbevolen literatuur

Artikel nr. 550

Diepwanden

Artikel nr. 551

Alle ontwerp- en uitvoeringsaspecten van diepwanden zijn uitgebreid beschreven in CUR 231 Handboek Diepwanden – Ontwerp en Uitvoering [[11]. In de onderliggende artikelen wordt volstaan met een korte beschrijving van de belangrijkste aspecten voor het maken van diepwanden in de tunnelbouw.

 

 

 

Uitvoeringstechnische voor- en nadelen

Artikel nr. 552

Diepwanden zijn doorgaans duurder en bewerkelijker dan combiwanden. Een ander nadeel is dat diepwanden niet herwinbaar zijn. Duidelijk voordeel is de geluids- en trillingsvrije realisatie. Ook is de heibaarheid bij diepwanden geen probleem. Hierbij dient wel te worden opgemerkt dat de aanwezigheid van harde steenachtige lagen, zwerfkeien en andere obstakels zoals funderingsresten in de ondergrond het graven van de diepwandsleuf kunnen bemoeilijken. Ook kan de aanwezigheid van grof doorlatend materiaal (grof grind) de stabiliteit van de diepwandsleuf nadelig beïnvloeden.

 

Ontwerptechnisch zijn diepwanden beter qua duurzaamheid, hebben diepwanden een grotere stijfheid en hebben diepwanden het vermogen om grote drukbelastingen af te dragen. Dit maakt dat diepwanden het bij permanente constructies vaker winnen van combiwanden dan bij tijdelijke bouwkuipconstructies.

 

 

Methode

Artikel nr. 553 (bevat geen inhoud, zie onderliggende artikelen)

Graven van diepwandsleuf

Artikel nr. 554

Op de plaats waar de diepwanden moeten komen, wordt een sleuf gegraven van circa 1 meter diep, waarin de prefab betonnen geleidewanden worden geplaatst. De geleidewanden staan op een goed verdichte zandlaag. De tussenafstand is circa 5 cm groter dan de beoogde dikte van de diepwand. Naast de tracering van de diepwand hebben de geleidebalken de volgende functies:

 

Tussen de geleidewanden wordt de diepwandsleuf ontgraven, bijvoorbeeld met draadgrijpers. Een normale grijperschaal is circa 3 m breed. De uitgegraven grond wordt in een gronddepot gedeponeerd. De ontgravingsnauwkeurigheid van de eerste meters is uiterst belangrijk, daar deze bepalend is voor de verticaliteit van het diepwandpaneel. Tijdens het graven wordt de verticaliteit gemeten met een inclinometer die is bevestigd aan de grijper en signalen zendt naar een ontvanger op de kraan. Onacceptabele afwijkingen in verticaliteit kunnen worden gecorrigeerd met een grondschaaf. De einddiepte wordt met een peillood op drie plaatsen gecontroleerd: links, rechts en in het midden.

 

Om de sleuf stabiel te houden, wordt deze tijdens het ontgraven gevuld met een bentonietsuspensie. Daarmee wordt voorkomen dat het grondwater in de sleuf stroomt, waarbij het gronddeeltjes mee zou nemen, zodat de stabiliteit van de wand wordt verstoord en het gat instort. De steunvloeistof bestaat uit een colloïdale suspensie van water en bentoniet. Bentoniet is een kleisoort die zeer fijn is gemalen. De bentonietslurry moet ervoor zorgen dat de hydrostatische druk in het gat groter is dan die van het grondwater. Dit drukverschil is op drie manieren te bewerkstelligen:

  1. Door een volumieke massa van de bentonietslurry te gebruiken van > 1000 kg/m3.
  2. Door het niveau van de bentonietslurry boven de grondwaterstand te houden.
  3. Door de vorming van een afdichtende laag (zg. cake).

 

Het bentoniet wordt in poedervorm in een silo opgeslagen. Vandaaruit wordt het d.m.v. een cementschroef naar de menger gebracht waar het met water wordt gemengd in een verhouding van circa 35 kg bentoniet op 1000 liter water, waardoor het mengsel net iets zwaarder is dan water. In de voorraadbassins kan de suspensie enige tijd rijpen. In het laboratorium moet de suspensie worden gecontroleerd op het volumieke massa, zandgehalte, viscositeit, filtraat, cake en pH-waarde.

 

De grijper mag in de sleuf niet sneller dan circa 2 m/s zakken en bij het omhoog halen niet sneller bewegen dan circa 1 m/s om onderdrukken of turbulentie in het mengsel te voorkomen. Het bentonietpeil in de sleuf moet te allen tijde voldoende hoog zijn om te voorkomen dat grondwater de sleuf in stroomt waardoor de sleufwand instabiel kan worden. Om dit te kunnen verzekeren, moet het peil van het bentoniet, maar ook de stijghoogte in de doorsneden grondlagen, goed worden bewaakt. Ook mogen er in deze fase geen heiwerk of andere trillingsintensieve werkzaamheden worden verricht binnen een straal van 25 m vanaf de sleuf. Aan het einde van elke werkdag dienen de openstaande sleuven te worden afgedekt met afdekrekken c.q. draglineschotten.

Figuur 554.1 - Voorbeeld geleidewanden

 

 

 

 

 

Realiseren van de diepwand

Artikel nr. 555

Tijdens het graven komt ontgravingsmateriaal in de suspensie terecht. Voordat de wapening wordt aangebracht en het beton wordt gestort, zal de bentonietsuspensie daarom moeten worden ververst middels pompen. Door het verschil in dichtheid ontstaat er een duidelijke scheiding in de sleuf tussen het vervuilde bentoniet en het nieuw ingepompte bentoniet uit de werkvoorraad. Ook de grond die tussen het graven en stortklaar maken naar de bodem is gezakt, wordt verwijderd met een graafkraan. Tijdens het storten van beton wordt het uitkomende bentoniet naar de bentonietcentrale afgepompt. De vervuilde bentonietsuspensie wordt naar een ontzandingsinstallatie gepompt. Nadat het zand eruit is gehaald, wordt het mengsel gekeurd en toegevoegd aan de (schone) werkvoorraad. Afgekeurde bentoniet wordt in aparte opslagcontainers opgeslagen, van waaruit het wordt afgevoerd.

 

De wapeningskorven moeten voldoende stijf zijn en voldoende hijspunten hebben t.b.v. het hijsen. De korf wordt verticaal in de sleuf gehesen. De benodigde betondekking wordt verzorgd door permanente betonnen afstandhouders (diepwandrollen en diepwandbroodjes), eventueel in combinatie met tijdelijke stalen afstandhouders. Deze afstandhouders zorgen tevens voor de geleiding van de wapening in de sleuf tijdens het afhangen. Tijdens het storten moet erop worden gelet dat de wapeningskorf niet omhoog komt.

 

Vóór het storten dient het beton te worden gekeurd op homogeniteit en consistentie. Het storten gebeurt met tremiepijpen (stortbuizen). De buizen worden met een doorkoppelsysteem verlengd en zijn voorzien van een trechter aan de bovenzijde. Tijdens het storten moet de tremiepijp 3 tot 9 meter onder het specieoppervlak liggen. Na elke twee betonwagens wordt het betonniveau in de sleuf gemeten. Dit geeft een indicatie over de dikte van de diepwand. Aangezien het storten niet mag worden afgebroken (in ieder geval niet langer dan 2 à 3 uur), dient er altijd minimaal één betonwagen op het werk klaar te staan om bij eventuele incidenten de betonstort gaande te houden. De diepwand wordt gemaakt per paneel van bijvoorbeeld 7,50 m breed. De lengte van de uitgegraven panelen is afhankelijk van de grijperafmeting, de sleufstabiliteit, de toelaatbare zettingen en horizontale verplaatsingen tijdens het maken van het paneel en het geometrisch tracé van het werk. Gangbare dikten zijn 1,00 – 1,50 m. De exacte maten worden op de geleidewanden aangegeven.

 

Tussen opeenvolgende diepwandpanelen wordt een profielvoeg (t.b.v. dwarskrachtoverdracht tussen panelen) aangebracht. Hiervoor is in het reeds gestorte paneel een sleuf uitgespaard d.m.v. een voegmal, bestaande uit een staalprofiel waaraan een frame is gelast. Nadat de sleuf voor het volgende paneel is gegraven, wordt de mal met een grijper los getrokken. In de voegmal kunnen één of twee PVC-strippen zijn opgenomen. Na het lostrekken van de voegmal blijven de strippen verankerd in het verharde beton van het aansluitende paneel. Zodoende wordt de aansluiting tussen de panelen extra waterremmend gemaakt. Als gevolg van de grote vervormingscapaciteit van deze strippen kunnen de bewegingen tussen naburige panelen worden gevolgd, waarbij het waterdichte karakter van de voeg behouden blijft.

Figuur 555.1 - Methode diepwand

 

 

 

 

 

Materieel

Artikel nr. 556

Voor het maken van diepwanden wordt doorgaans het volgende hoofdmaterieel ingezet:

 

Bouwsnelheid

Artikel nr. 557

Het graven van de sleuf gaat met een snelheid van ongeveer een diepwandpaneel per dag. Het storten van een diepwandpaneel gaat met enkele tientallen m3/uur. In één paneel zit doorgaans enkele honderden m3 beton. Doorgaans wordt één dag gepland voor het storten van een paneel.

 

De kuip mag worden ontgraven wanneer de diepwand voldoende verhard is. De ontwerpsterkte is bereikt na 28 dagen. Wanneer voor het ontgraven niet de volledige sterkte benodigd is, kan in overleg met de constructeur worden bepaald of c.q. hoeveel eerder met ontgraven mag worden aangevangen.

 

Bouwtoleranties

Artikel nr. 558

Voor diepwanden zijn de volgende toleranties gegeven in de NEN-EN 1538:2010 [35]:

 

Bij aanwezigheid van keien en andere obstakels in de grond mogen in bepaalde gevallen grotere toleranties worden gehanteerd. Zie NEN-EN 1538 voor meer en volledige tolerantie-eisen aan diepwanden.

 

Indien de diepwand moet aansluiten op een waterremmende laag (in geval van een polderconstructie) of draagkrachtige laag (in geval verticale belastingen moeten worden afgedragen) in de bodem, dient voldoende overlap aanwezig te zijn. Aangezien de hoogteligging van de grondlagen over het algemeen niet exact bekend is over de gehele lengte van de diepwand, moet hier in de uitvoering tijdens het ontgraven de nodige aandacht aan besteed worden.

 

Specifieke aandachtspunten

Artikel nr. 559 (bevat geen inhoud, zie onderliggende artikelen)

Bentoniet

Artikel nr. 560

Tijdens graven en storten is het bentonietpeil van essentieel belang. Dit dient samen met de grondwaterstanden continu te worden gemonitord om instabiliteit van de sleuf te voorkomen.

Wapeningskorven en beton

Artikel nr. 561

Het ontwerp van de wapeningskorven heeft een grote invloed op de uiteindelijke kwaliteit van de diepwand. Aandachtpunten bij het ontwerp van de wapeningskorven zijn:

 

Het beton aan de bovenzijde van de sleuf is vermengd met bentoniet en heeft een gering stortgewicht en dientengevolge een matige verdichting. Derhalve is dit deel van de betonnen wand minder sterk. Bij de beschouwing van de krachtswerking in deze zone (bijvoorbeeld bij toepassing van een stempel op dit niveau) moet gerekend worden met een lagere betonsterkte. Nog beter is verwijderen van dit bovenste deel en aanstorten met constructiebeton.

 

Voegen

Artikel nr. 562

In diepwanden vormen de voegen de zwakke schakel. Enige mate van lekkage wordt doorgaans acceptabel geacht. Grote lekkages kunnen problemen met zich meebrengen zoals waterbezwaar of het uitspoelen van grond met stabiliteitsproblemen tot gevolg. Met het oog op uitspoelen van de bentonietlaag mogen de voegen niet worden gereinigd met een hogedrukreiniger.

 

Lekkages door de diepwand of de voegen kunnen worden gerepareerd middels injecteren. Voor het injecteren kunnen gaten worden geboord, bijvoorbeeld met een diameter van 20 mm. Waterstromingen kunnen daartoe tijdelijk worden gestopt door aan de kuipzijde het gat af te dichten, bijvoorbeeld met een houten plug of staalplaat. Grotere openingen ter plaatse van de voegen kunnen worden gedicht door het injecteren van een cement-bentonietsuspensie aan de grondzijde.

 

Aanbevolen literatuur

Artikel nr. 563

 

Damwanden afgehangen in cement-bentoniet wand

Artikel nr. 564

Alle ontwerp- en uitvoeringsaspecten van damwanden afgehangen in cement-betonietwanden zijn beschreven in CUR 189 Cement-bentonietschermen [8]. In de onderliggende artikelen wordt volstaan met een korte beschrijving van de belangrijkste aspecten voor de tunnelbouw.

 

Uitvoeringstechnische voor- en nadelen

Artikel nr. 565

Als wandconstructie voor de bouwkuip kan ook een damwand worden geplaatst in een sleuf die is gegraven met een diepwandgrijper en gevuld met cement-bentoniet. Wanneer intrillen van damwanden een bezwaar is, bijvoorbeeld t.g.v. harde bodems of omgevingshinder, kan hiervoor worden gekozen. Nadeel is wel dat de damwand later wellicht moeilijker te trekken is vanwege de aanhechting van cement-bentoniet.

 

Voordelen ten opzichte van een diepwand zijn dat bij dit concept de damwandplanken achteraf weer kunnen worden getrokken en dat er geen wapening hoeft te worden gevlochten en ingehesen. Het vullen van de sleuf met cement-bentoniet is minder bewerkelijk en minder kostbaar dan het vormen van een betonnen diepwand.

 

Bij toepassing in polderconstructies met een diepgelegen natuurlijke waterremmende laag is het voordeel ten opzichte van traditionele damwanden dat alleen de cement-bentoniet tot de waterremmende laag hoeft te worden doorgezet ten behoeve van de waterkerende functie. De damwand die in de cement-bentoniet sleuf wordt gehangen hoeft slechts zo lang te zijn als nodig voor de geotechnische stabiliteit.

 

Een variant op deze methode is een zandpalenwand, gerealiseerd middels verbuisde boorpalen, waarin later de damwand wordt getrild. Dit is toegepast bij de A2 tunnel te Maastricht.

 

Indien de fasering van de bouwkuip (i.v.m. ontgraving en taluds) het toelaat, kan er worden overwogen om bij dit systeem bijvoorbeeld de compartimenteringswanden van de bouwkuip enkel met cement-bentoniet (zonder damwand) uit te voeren. De cement-bentoniet heeft dan een waterkerende functie en wordt gesteund door het grondmassief met taluds. Als extra zekerheid voor de waterafdichting kan een zeer lichte (niet constructief kerende) damwand of een folie in de cement-bentoniet sleuf worden gehangen. Tijdens het graafproces worden deze compartimenteringswanden doorgegraven. Natuurlijk is het toepassingsgebied van deze variant groter dan alleen een compartimenteringswand van een bouwkuip.

 

Figuur 565.1

 

Methoden

Artikel nr. 566

Vóór aanvang van de werkzaamheden moet de bentonietcentrale zijn ingericht en een gronddepot zijn aangelegd om het bentoniet te laten uitharden alvorens te worden afgevoerd. Ook dienen eventuele leidingen te zijn verlegd. Tevens moet worden gezorgd voor bereikbaarheid van het terrein en de aanwezigheid van stroom en water. Vervolgens wordt de graaf- en servicekraan gemobiliseerd.

 

De realisatie van de cement-bentonietwand begint met het aanbrengen van de geleidewanden. Deze hebben als functie de geleiding van het graafwerktuig, stabiliteit van de bovenste meter grond en het referentievlak voor het uitzetten van maten. Door deze wanden te prefabriceren, kunnen ze na het inhangen van de damwandplanken worden hergebruikt. De geleidewanden worden in de sleuf geplaatst op een met zorg aangevuld en goed verdicht zandbed. Bij het realiseren van deze geleidewand sleuven worden hydraulische graafmachines, een dumper, een kieper en een shovel gebruikt.

 

Tussen de geleidewanden wordt de sleuf voor de wand gegraven, en tegelijkertijd gevuld met een bentonietsuspensie. Voor deze werkzaamheden is het volgende materieel benodigd: draadkraan, diepwandgrijper, valbeitel, silo’s, bentonietmengsysteem, opslag voor cement-bentonietsuspensie, leidingsysteem voor cement-bentoniet, shovel/vrachtwagen.

 

Het droge bentoniet en cement worden eerst in een silo opgeslagen en bij gebruik gemengd met water uit een watertank. Via een leidingsysteem wordt de suspensie naar de bevoorrading en vervolgens naar de sleuf toe gepompt. Het bentonietniveau mag tijdens het ontgraven niet zakken onder een vooraf vastgesteld peil. De grond kan met vloeistofdichte vrachtwagens worden afgevoerd naar het depot, waar het wordt ontwaterd. Door middel van bemonstering wordt vastgesteld of het materiaal geschikt is voor verwerking, bijvoorbeeld onder wegen.

 

De sleuf moet voldoende dik zijn (bijvoorbeeld 60 of 80 cm) om het damwandprofiel er zonder problemen in te kunnen hangen. Het bentoniet is nodig om de sleufstabiliteit te waarborgen tijdens het graven. Als de sleuf af is, wordt het damwandprofiel in de sleuf gehangen. Daarna wordt het bentoniet in de sleuf vervangen door cement-bentoniet. Ook komt het regelmatig voor dat in één keer een cement-bentonietmengsel wordt aangemaakt zodat de suspensie niet hoeft te worden uitgewisseld. Dit is voor dagproductie ook geen probleem.

 

Het cement-bentoniet werkt niet mee in de rekenkundige sterkte van de damwand. Tijdens het graven en de verharding van het cement-bentoniet (28 dagen) mogen er binnen een straal van bijvoorbeeld 25 m geen werkzaamheden plaatsvinden die trillingen veroorzaken zoals damwanden intrillen, verdichten van wegfundaties e.d.

 

Op de bouwplaats moet ruimte zijn voor het lossen en de opslag van de planken, evenals het uitvoeren van bewerkingen zoals het inmeten en aanbrengen van de lasnaden voor de pasplanken. Voordat de damwanden worden ingehangen, kunnen deze worden voorzien van bijvoorbeeld ankerstoelen, peilbuizen en inclinobuizen. De planken kunnen worden voorzien van gaten en vet in de sloten. Voor het inbrengen van de damwandplanken kan een draadkraan worden ingezet. Deze moet op een stabiele ondergrond staan. Elke damwandplank grijpt met zijn slot in de voorgaande plank. Voor het afhangen van de planken kunnen bijvoorbeeld Dywidag staven worden gebruikt, die door gaten steken die vooraf in de damwandplanken zijn gebrand.

 

Een hydraulische graafmachine uitgerust met een rippertand kan tijdens ontgraven van de kuip het cement-bentoniet van de damwand rippen. Als de tunnelconstructie gereed is en de grond aangevuld, worden de damwanden uit het verharde cement-bentoniet getrokken. Na reiniging (eventueel verwijderen van resten cement-bentoniet uit de sloten) is de plank geschikt voor hergebruik.

 

 

 

Materieel

Artikel nr. 567

Voor het maken van de bouwkuipwanden wordt doorgaans het volgende hoofdmaterieel ingezet:

 

 

 

Bouwsnelheid

Artikel nr. 568

Een voor een  cut-and-cover tunnel begrippen normale productie bij cement-bentonietwanden met damwanden is enkele tientallen meters per week.

 

Een normale cyclus is één dag per paneel, en bestaat uit de volgende stappen:

 

Bouwtoleranties

Artikel nr. 569

De maatvoering verloopt in stappen. Vóór aanvang van het werk wordt de hoofdmaatvoering uitgezet. Vervolgens wordt de detailmaatvoering van de geleidewanden uitgezet. Na plaatsing worden deze ter controle ingemeten. Bij akkoord wordt de detailmaatvoering van het graafwerk uitgezet. Na gereedkomen van de sleuf volgt de detailmaatvoering voor het afhangen van de damwand. Na afhangen wordt de hoogte gecontroleerd. Na verharden volgt een as-built meting.

De diepwandgrijper kan worden voorzien van een hellingmeter met datalogger. Als de grijper met datalogger weer uit de sleuf komt, worden de gegevens op het scherm van de machinist getoond. De graafmachine is ook uitgerust met een dieptemeter. Daarnaast wordt de dieptemeting gecontroleerd met een peillood.

 

Uitgangspunten voor toleranties zijn vermeld in de NEN-EN-1538 [5]. Ter illustratie worden onderstaand enkele regelmatig gehanteerde waarden voor bouwtoleranties vermeld:

 

Indien er stekkenbakken of koppelingen in de wapeningskorf worden opgenomen om na ontgraving een vloer aan te kunnen sluiten, dient er rekening te worden gehouden met een verticale tolerantie. De grootte van deze verticale tolerantie is afhankelijk van de nauwkeurigheid waarmee de korf in de sleuf kan worden gepositioneerd en de verwachte zakking van de geleidewanden. Een tolerantie op de koppelingen van +70/-70 mm is een redelijk gebruikelijke waarde in een diepwandontwerp. Bij dekken en vloeren van circa 1 m dik heeft deze tolerantie grote invloed op de hefboomsarm die in rekening kan worden gebracht. Bij de spoortunnel in Delft is de tolerantie op de koppelingen in het ontwerp daarom terug gebracht tot +40/-40 mm. In de meeste gevallen werd na de uitvoering geen grotere afwijking geconstateerd.

 

 

 

Specifieke aandachtspunten

Artikel nr. 570

Het bentoniet mag tijdens ontgraving en verharding niet lager zakken dan een vooraf bepaald niveau. Dit moet 24 uur per dag worden gemonitord. Onverwachte grondwatervariaties kunnen ook de sleufstabiliteit bedreigen. Dit moet ook worden gemonitord. Hoge grondwaterstanden kunnen worden gecompenseerd door middel van bemalen of verhogen van het bentonietniveau in de sleuf. Wanneer sleufinstabiliteit onverhoopt toch optreedt, kan de sleuf met grind worden gevuld en later opnieuw worden ontgraven.

 

Bij luchttemperaturen onder het vriespunt verdient de verwerkbaarheid van de bentonietsuspensie extra aandacht. Problemen doen zich voor bij strenge vorst.

 

Aanbevolen literatuur

Artikel nr. 571

Stempelramen en ankers

Artikel nr. 572 (bevat geen inhoud, zie onderliggende artikelen)

Uitvoeringstechnische voor- en nadelen

Artikel nr. 573

Stempelramen zijn aantrekkelijk bij bouwkuipen vanwege de eenvoudige toepassing. Daarnaast kunnen stempels en gordingen worden teruggewonnen en eventueel hergebruikt.

 

Een belangrijk nadeel is dat ze de bouwkuip vanaf de bovenkant minder toegankelijk maken voor het inhijsen van materiaal en materieel, zoals de bekisting. Ook vormen stempels een obstakel voor werkzaamheden als het aanbrengen van de funderingspalen. Zeker bij meervoudige stempelramen belemmeren deze ook het maken van de definitieve tunnelconstructie. Vóór het verwijderen van een stempelraam moet dan de stempelkracht overgenomen kunnen worden door deze constructie. Er is een wezenlijk gevaar dat er door één van deze raakvlakken een stempel uitvalt t.g.v. een stoot. Bij brede bouwkuipen neemt de constructieve sterkte van stempels sterk af vanwege grote kniklengtes.

 

Een goed alternatief voor stempels vormen groutankers. Bij gebruik hiervan blijft de kuip van boven volledig open en is er geen beperking wat betreft kuipbreedte of -vorm. Groutankers kennen ook nadelen. Verhardingstijd van het grout kan een belangrijke invloed hebben op de planning. Daarnaast moet er voldoende grond naast de kuip beschikbaar zijn die zich leent voor toepassing van groutankers. Belendingen kunnen fysiek een obstakel vormen of eisen stellen, bijvoorbeeld aan trillingen, bij het toepassen van groutankers. Groutankers kunnen ook trillingvrij worden aangebracht. Groutankers komen vaak ook buiten het plangebied te liggen en dus juridisch onder percelen van derden. Hierover moeten afspraken worden gemaakt c.q. zaken worden vastgelegd.

 

Groutankers kunnen worden uitgevoerd met staven of strengen. Strengen kunnen zwaarder worden belast. Staven zijn eenvoudiger aan te brengen. Daarentegen zijn ankerstaven gevoeliger voor doorbuiging, bijvoorbeeld t.g.v. bovenbelasting (tijdelijke grondopslag naast de bouwkuip tijdens ontgraving).

 

Zowel stempels als groutankers kunnen in tijdelijke en permanente constructies worden gebruikt. Permanente stempels worden vaak in beton uitgevoerd. Voor permanente groutankers is een dubbele corrosiebescherming nodig. Tijdelijke groutankers kunnen verwijderbaar worden uitgevoerd door gebruik te maken van plofankers, stangen die los gedraaid kunnen worden of strengen die één voor één kapot getrokken kunnen worden.

 

 

 

Methoden van aanbrengen

Artikel nr. 574 (bevat geen inhoud, zie onderliggende artikelen)

Stempelramen

Artikel nr. 575

Na het inbrengen van de damwandconstructie wordt de stempelraamconstructie aangebracht.

 

Hoogtemaatvoering geschiedt met een laser en/of met een waterpastoestel. Een vaste hoogte wordt verklikt aan de binnenzijde van de bouwkuip op de damwand. De h.o.h. afstand van de stempels wordt gemaatvoerd vanaf de hoekpunten van de bouwkuip, gemeten vanaf het hart van de kopschermen en langsschermen.

 

De gordingen, stempels en schoren voor de stempelramen worden doorgaans op het werk geleverd op vrachtwagens en gelost met een shovel. Na het lossen worden de profielen ter plaatse op maat gebrand (op basis van in het werk ingemeten maten) en worden de laswerkzaamheden voor de kopplaten en verstijvingsschotten uitgevoerd. Alle gordingen en stempels worden voorzien van een merk zodat ter plaatse duidelijk is welk onderdeel waar gemonteerd moet worden. De profielen worden met een shovel naar de hijskraan verplaatst.

 

Nadat de bouwkuip tot onder het niveau van de oplegconsoles is uitgegraven, worden de consoles aan de damwand gelast. De gordingenbalken bestaan doorgaans uit twee of meer gekoppelde H-profielen. Het aanbrengen gaat als volgt:

 

Voor het inhijsen van de stempels dient een kraan te worden ingezet. Zonodig worden de gordingen m.b.v. een kettingtakel strak tegen de stempelbuizen getrokken. Na het inhijsen worden de stempels en schoren vast gelast aan de gordingbalken. De machinist van de kraan communiceert met zijn hijsbegeleider middels handgebaren. Indien er geen visueel contact mogelijk is, geschiedt de communicatie middels portofoons of gelijkwaardig. Dit is niet anders dan andere hijsactiviteiten op de bouwplaats.

 

Tussen de damwand en de gordingen wordt een eventuele spleet (afhankelijk van de dikte) opgevuld met staalplaten of een groutzak. Hiermee kunnen walstoleranties en hoekverdraaiingen worden opgevangen, evenals bouwtoleranties van de kuipwanden. Voor het verwijderen van de stempels kan gebruik worden gemaakt van vijzelstempels. Hiermee wordt de stempel losgedrukt. Ook kan het grout worden weggehakt. Vijzelstempels worden niet vaak toegepast, omdat ze bewerkelijk zijn.

 

De stempelkop wordt standaard uitgevoerd met kopplaten. Het is mogelijk om deze middels een zandpot af te laten dragen op de gording. Een zandpot is een stalen ring die gevuld is met droog rondkorrelig zand. Middels een stalen plaat die nauw aansluit op deze stalen ring, kan de stempelkracht via het zand overbracht worden naar de gording. Vóór het verwijderen van de stempel wordt het zand uit de zandpot gespoeld, waardoor de kopplaat naar binnen komt en het stempel los komt te liggen. Hierbij hoeft dus geen gebruik te worden gemaakt van vijzelstempels.

 

Pas nadat het stempelraam is geïnspecteerd en de lassen zijn onderworpen aan de vereiste testen, mag de kuip verder worden ontgraven. In bijzondere gevallen, bijvoorbeeld bij de observational method, kan ervoor worden gekozen om de stempelkrachten tijdens ontgraven te monitoren d.m.v. reksensoren.

 

 

 

Groutankers

Artikel nr. 576

Vóór het boren moet middels een KLIC-melding kabels en leidingen worden gelokaliseerd, gemarkeerd en zonodig verlegd. Voor de werkzaamheden is een werkterrein nodig van circa 8 m breedte. Daarnaast moet er een opstelplaats zijn (bijvoorbeeld 6 m x 4 m) met voldoende draagkracht voor een cementsilo (bijvoorbeeld een 30 tons silo), bij voorkeur minder dan 100 m verwijderd van de ankerboormachine en bereikbaar voor 30 tons cementbulkauto’s. Leidingwater moet met voldoende capaciteit (bijvoorbeeld minimaal 10 m3/uur) aanwezig zijn in de buurt van de groutmenginstallatie (bijvoorbeeld binnen 50 m). Verdere benodigdheden zijn een groutmengpomp, een hulpkraan, een aggregaat en een materiaalcontainer.

 

Groutankers worden aangebracht met een ankerboormachine van bijvoorbeeld 15 ton. De helling van de boormakelaar wordt bepaald met een hellingwaterpas. De gaten in de damwand hebben ten opzichte van de boorkopdiameter van het anker een overmaat van circa 1 cm. Nadat de eerste ankerstang is ingeladen en de boorkop op de ankerstang is geplaatst, begint het boren onder gelijktijdige injectie van water en/of een dun groutmengsel (watercementfactor circa 0,8-1,0) met een injectiedruk van 6 tot 8 bar om het boorgat te stabiliseren en verstopping van de injectieopeningen in de boorkop te voorkomen. Nadat de eerste ankerstang bijna volledig is ingeboord, wordt deze afgekoppeld en wordt de tweede ankerstang ingeladen. Het proces herhaalt zich totdat de benodigde ankerlengte is bereikt.

 

Na het bereiken van de draagkrachtige laag wordt het groutlichaam geformeerd door over te schakelen op het injecteren van een groutmengsel met een watercementfactor van 0,50 tot 0,55. Tijdens deze handeling wordt de injectiedruk van 6 tot 8 bar in stand gehouden. Na op diepte te zijn gekomen, wordt een anker na een korte rustperiode nageperst tot bijvoorbeeld 30 bar of totdat voldoende cement is toegevoegd. Hierdoor wordt de grond rondom het groutlichaam opgespannen.

 

Na het aanbrengen van de groutinjectieankers is een verhardingstijd van circa 14 kalenderdagen nodig voordat deze mogen worden getest en vervolgens belast. Er zijn veel methoden om groutankers te testen. Een mogelijkheid is het uitoefenen van een trekkracht op het anker met een hydraulische vijzel. De hydro-unit is voorzien van een manometer waarop de vijzelkracht is af te lezen. Met de meetklok kan de ankerkopverplaatsing met een nauwkeurigheid van 0,01 mm worden afgelezen. Vanwege de gevoeligheid van de meetapparatuur mogen tijdens de beproevingen binnen een straal van 25 m geen andere werkzaamheden worden uitgevoerd.

 

Groutinjectieankers worden standaard onderworpen aan een controleproef conform CUR 166 [7]. Daarbij wordt in enkele minuten de testbelasting in een aantal stappen opgebouwd en daarna weer trapsgewijs afgelaten. Tegelijkertijd wordt gemeten of de kruipmaat de toegestane waarde niet overschrijdt. Om kruipeffecten te bepalen, wordt op een aantal ankers (bijvoorbeeld 5%) een langeduurproef uitgevoerd, eveneens volgens CUR 166. Hierbij worden de ankers langer belast, bijvoorbeeld twee uur. Deze ankers hoeven niet meer met een controleproef te worden getest. Voor meer informatie over testen van groutankers wordt verwezen naar CUR 166.

Figuur 576.1 - Testen groutanker

 

 

Materieel

Artikel nr. 577

Ten behoeve van de laswerkzaamheden en het aanbrengen van de stempelramen wordt doorgaans het volgende materieel ingezet:

 

Voor het realiseren van groutankers is benodigd:

 

 

 

Bouwsnelheid

Artikel nr. 578

Een globale planning voor het installeren van groutankers t.b.v. een bouwkuip voor een tunnel zou er ongeveer als volgt uit kunnen zien (hierbij is uitgegaan van een bouwkuip van gemiddelde omvang met een normaal aantal groutankers):

 

Bovenstaand overzicht laat zien dat de verhardingstijd een belangrijke plaats inneemt.

 

 

Bouwtoleranties

Artikel nr. 579

De verticale en horizontale posities van kuipstempels en groutankers zijn van essentieel belang voor het constructieve gedrag. Ook moet er goed voor worden gewaakt dat verschillende onderdelen goed aanliggen t.b.v. een goede afdracht van belastingen en krachten. De exacte posities van buispalen (ingeval van combiwanden) en damwandkassen zijn vooraf niet nauwkeurig te voorspellen, maar hebben wel veel raakvlak met bijvoorbeeld de positie van de groutankers of de verstijvingsschotten in de gording van een stempelraam.

 

Zowel in ontwerp als tijdens de uitvoering dient hier terdege rekening mee te worden gehouden. De afwijkingen zijn vaak veel groter dan bijvoorbeeld bij betonwerk. Een goede inspectie is onontbeerlijk. Maatregelen in het werk bestaande uit bijvoorbeeld groutzakken, vulplaten, in het werk lassen van verstijvingschotten etc., moeten de constructieve veiligheid waarborgen.

 

 

Specifieke aandachtspunten

Artikel nr. 580 (bevat geen inhoud, zie onderliggende artikelen)

Stempelramen

Artikel nr. 581

Bij stempelramen zijn de stijfheid van stempels en kopplaten etc. essentieel, een en ander in verband met de kopmomenten door excentriciteiten. Hiermee moet rekening worden gehouden i.v.m. de constructieve integriteit van de bouwkuip (robuustheid en reserve inbouwen). Lascontroles dienen door een specialistisch bureau te worden uitgevoerd. Behalve een visuele inspectie is vaak tevens NDO nodig.

 

Ook de posities van de stempels is essentieel, evenals een juiste uitvoering van de aansluitingsdetails. Met name de aansluiting tussen gording en damwand behoeft veel aandacht vanwege de toleranties van de damwand. Groutzakken worden behalve bij de stempelkoppen ook gebruikt om ruimtes tussen gording en damwand op te vullen. Ook moet bij gebruik van de groutzakken goed op voldoende uithardingstijd worden gelet.

 

Bij het realiseren van de stempels bij de kopschermen met bijbehorende schoorstempels moet men zich bewust zijn van de afwijkende krachtswerking. Hierbij wordt de kracht vanuit het kopscherm via de gordingen in de zijdelings aansluitende langsdamwanden geleid. Bij dit onderdeel is het nog belangrijker dan elders dat men de lassen en andere verbindingen juist uitvoert en zich terdege bewust is van de weg van krachtsafdracht die de ontwerper voor ogen heeft.

 

Het is ten strengste verboden om over een stempel heen te lopen. Voor het oversteken van een ontgraven bouwkuip kan een hulpbrug of gangway worden gebruikt.

 

Bij het ontwerp en de uitvoering van stempelramen moet met de volgende aspecten worden rekening gehouden:

 

 

Figuur 581.1 - Voorbeeld gangway

 

 

 

Groutankers

Artikel nr. 582

Groutankers worden bij voorkeur met de ankerkop boven de buitengrondwaterstand gemaakt. Soms is het uit constructief oogpunt noodzakelijk om de damwand lager te verankeren. In diepe kuipen zijn vaak meerdere ankerlagen nodig, waardoor de kans groot is dat één of meerdere lagen zich met de ankerkop onder grondwaterstand bevinden. Indien dit zich voordoet, moeten bij ontwerp en realisatie voorzieningen worden getroffen om te voorkomen dat het grondwater de kuip in stroomt. Dit kan in sterke mate het ontwerp en de werkwijze bepalen.

 

Tijdens het installeren kan een anker verlopen in een helling of richting, bijvoorbeeld ten gevolge van ondergrondse obstakels. Er kan dan worden besloten om de makelaar bij te stellen of het anker terug te halen en opnieuw te boren. Afwijkingen in de bodem kunnen er ook voor zorgen dat het anker vastloopt. Ook kan het voorkomen dat de bodemgesteldheid minder is dan voorzien. In deze gevallen moet met de constructeur worden overlegd en zonodig een extra anker worden bijgeplaatst. In het laatste geval kan ook worden besloten om het anker te verlengen.

 

Tijdens het boren van groutankers dienen boorstaten te zijn ingevuld door de boormeester. Tijdens de beproevingen moeten de beproevingsresultaten zijn ingevuld door de spanmeester.

 

Enkele veiligheids- en gezondheidsrisico’s die specifiek gelden bij het realiseren van groutankers:

 

Bij toepassing van ankerstaven (i.p.v. strengen) in combinatie met hoge bovenbelastingen op het maaiveld en slappe bodems kunnen de staven t.g.v. maaiveldzakkingen gaan doorhangen. Dit kan leiden tot rotatie van de ankerkop. Bij slechte detaillering kan dit leiden tot spanningscorrosie met mogelijk bezwijken van het anker tot gevolg.

 

 

 

Aanbevolen literatuur

Artikel nr. 583

Kunstmatige polderconstructie met folieconstructie

Artikel nr. 584 (bevat geen inhoud, zie onderliggende artikelen)

Uitvoeringstechnische voor- en nadelen

Artikel nr. 585

Bij een polderconstructie bestaat de horizontale waterkering uit een natuurlijke waterremmende laag in de ondergrond of een kunstmatig aangebrachte folieconstructie. Een natuurlijke waterremmende laag is gratis, maar stelt wel eisen aan de inheidiepte van de kuipwanden. Ook is er vaak onzekerheid m.b.t. de continuïteit van de aanwezige afsluitende lagen. Toepassing van zandkolommen in combinatie hiermee kan desastreus zijn.

 

De verticale waterkering wordt verzorgd door constructieve wanden (bijvoorbeeld damwanden, combiwanden of diepwanden). Bij de zogenaamde V-polder worden de damwanden onder een hoek ingeslagen, zodat de twee wanden samen een V vormen. De aansluiting onderin wordt afgedicht d.m.v. injecteren.

 

Bij toepassing van een folieconstructie wordt deze doorgaans doorgezet tot aan de benodigde kerende hoogte. Daarbij kan de folie met het talud meelopen, waardoor er boven de folie overal voldoende grond is om weerstand tegen de waterdruk onder de folie te leveren. Bij gebrekkige ruimte kan de folie ook langs de (tijdelijke) damwand omhoog worden geleid. Vóór de folie moet voldoende grond, eventueel in combinatie met een permanente keerwand, aanwezig zijn om naar binnen drukken van het verticale gedeelte van de folie door het grondwater te voorkomen. Dit principe wordt een U-polder genoemd. Een innovatieve variant hierop is de damwandpolder, waarbij de damwand een permanente functie heeft. De folieconstructie komt tussen de damwand en een betonnen voorzetwand die tevens de functie heeft van een keerwand om te voorkomen dat de folie naar binnen wordt gedrukt. De ruimte tussen folie en damwand wordt in de eindfase gevuld met cement-bentoniet.

 

Op het principe en de ontwerptechnische zaken van polderconstructies wordt in artikel Specifieke detaillering voegen afgezonken tunnels van dit handboek ingegaan. Dit artikel beschrijft de uitvoeringsaspecten bij het realiseren van een folieconstructie. De kosten van een folie zijn veelal lager dan een onderwaterbetonvloer en/of constructieve vloer met trekelementen. Naast dit voordeel zijn er ook een aantal duidelijke nadelen ten opzichte van de alternatieven:

 

 

 

Methoden van aanbrengen

Artikel nr. 586

Een folieconstructie kan bestaan uit een folie in een onder talud uitgegraven bouwput of een folie die in een bouwkuip is geplaatst. De folie kan in den droge worden gelegd of in een natte kuip/put worden afgezonken. Voordeel van het afzinken is dat de kuip niet droog gezet hoeft te worden. Nadeel is dat het moeilijker is om de bodem te behandelen en de lastige afzinkoperatie.

 

In onderstaande artikelen wordt ten eerst een beschrijving gegeven van een in een droge kuip gelegde folie. Als voorbeeld is gekozen voor een U-polder. Veel van deze aspecten gelden ook voor een afgezonken folieconstructie. Vervolgens wordt – minder uitgebreid – ingegaan op de bijkomende zaken bij het afzinken van een folie binnen een kuip die onder water staat. De meeste informatie is algemeen geldig. Enkele zaken betreffen project-specifieke keuzen, mede bepaald door het type folieconstructie. Deze zijn opgenomen ten behoeve van een volledige en doorlopende beschrijving.

 

 

Aanbrengen folie in den droge

Artikel nr. 587

Voor toepassing in den droge worden veelal LLDPE folies met een dikte van minimaal 1,5 mm toegepast. Ook worden PVC folies met een dikte van minimaal 1 mm gebruikt. Deze worden meestal geleverd in rollen van circa 2 meter breed. Bij aankomst wordt de dikte van het materiaal gekeurd. Ook wordt steekproefsgewijs de sterkte gecontroleerd op de trekbank. In de werkplaats worden hieruit de foliezeilen (= foliepakketten bestaande uit grote lappen die nog op kernen kunnen gerold van transporteerbare afmetingen en op het werk aan elkaar gelast moeten worden) samengesteld. De naden kunnen worden uitgevoerd volgens de heetelement lasmethode of HF lasmethode. De lasnaden worden visueel geïnspecteerd. Deze dienen te voldoen aan de beoordelingsrichtlijn BRL-K537 [95]. Ook kunnen de naden worden onderworpen aan een trekbankonderzoek om de trek- en pelsterkte te controleren. Bij geconstateerde gebreken wordt er door middel van vacuüm een dichtheidscontrole uitgevoerd. Hierbij wordt de las ingesmeerd met een passend schuimmiddel. Vervolgens wordt er een doorzichtige stolp overheen gezet en circa 0,2 bar vacuüm getrokken.

 

De zeilen worden op stalen kernen van bijvoorbeeld 7 m gerold en, voorzien van een beschermfolie en merknummer, naar de bouwplaats vervoerd, bijvoorbeeld per trailer. Daar dient een terrein te zijn ingericht voor de opslag van de folierollen. Het lossen van de rollen kan plaatsvinden middels een hydraulische graafmachine en/of shovel.

 

Nadat de damwanden van de foliekuip zijn geplaatst, wordt binnen de kuip ontgraven. Daarbij wordt de grondwaterstand binnen de kuip verlaagd tot 0,1 m onder het laagste ontgravingsniveau. Eventueel wordt de stijghoogte in de diepere watervoerende laag eveneens tijdelijk verlaagd. De te hanteren stijghoogtes evenals ontgravingsniveaus worden door het ontwerp bepaald met inachtneming van weerstand tegen opbarsten en eventueel slappe lagen ter hoogte van het daaruit volgende ontgravingsniveau.

 

Na ontgraven wordt aan de binnenzijde van de kuip beschermhout (bijvoorbeeld multiplex) tegen de damwanden aangebracht, zodat de folie tijdens het aanvullen niet in de damwandkassen wordt gedrukt. Een variant hierop is bijvoorbeeld de toepassing van bouwstaalnetten bekleed met geotextiel en viltdoek. De ondergrond wordt visueel geïnspecteerd op de beloopbaarheid (moet voldoende droog zijn). Verder moet deze vrij zijn van scherpe delen, puin, stukken hout, wortels en andersoortige begroeiing of materialen die de folie kunnen beschadigen. Abrupte hoogte verschillen zijn niet toegestaan. Tegen de kuipwand en op de bodem wordt een beschermdoek (bijvoorbeeld 500 grams geotextiel) gelegd ter bescherming van de folie.

 

De folie kan ter plaatse uit meerdere zeilen (= grote lappen die op kernen gerold naar de bouwlocatie worden getransporteerd) worden samengesteld, nadat deze met een kraan zijn gelegd en uitgerold. Lassen in de folie dienen loodrecht op de wegas te worden aangebracht. Hiermee wordt voorkomen dat lassen op taluds door afschuiven van aanvulzand en/of grond op trek worden belast. Leggen vindt plaats bij een buitentemperatuur tussen 5ºC en 40 ºC en een windkracht niet hoger dan 3 à 4 Bft. De afzonderlijke delen van de folie mogen alleen bij droog weer aan elkaar worden gelast bij een folietemperatuur tussen de 5 ºC en 50 ºC. In het werk worden de naden gerealiseerd en eventueel gerepareerd volgens de hetebout lasmethode of hete lucht overlap lasmethode volgens de eisen uit BRL-K537 [95]. Een visuele inspectie wordt uitgevoerd en eventuele gebreken en beschadigingen worden gerepareerd. Een dichtheidsonderzoek kan worden uitgevoerd door middel van overdruk op een in de las aangebracht doorlopend kanaal. Er mag niet gerookt worden in de nabijheid van de folie en de folie mag alleen belopen worden door bevoegd personeel met daarvoor geschikt schoeisel.

 

Vanuit een opgevouwen toestand wordt de folie tegen de damwand omhoog getrokken met handlieren. Aan de bovenzijde van de wandfolie zit een trekstrook van gewapende folie die de krachten van het omhoog lieren verdeelt. De lieren bevinden zich aan de bovenzijde (of achterzijde) van de damwand. Op de bodem kan de folie tegen beschadiging door de graafmachine worden beschermd met tempexplaten waaroverheen dunne houten planken worden gelegd. De houten planken moeten voldoende ver van het verticale deel van de folie gehouden worden om eventuele beschadiging van de folie te voorkomen. Ook kan er worden geëist, dat er pas overheen mag worden gereden nadat er tenminste 0,80 m zand op de folie is aangebracht.

 

Het aanvullen dient voorzichtig en in lagen (bijvoorbeeld van 2 m dik) te gebeuren, om te voorkomen dat de folie beschadigt. Het aanvulzand moet voldoende zwaar zijn (soortelijk gewicht voorgeschreven vanuit het ontwerp om voldoende weerstand te leveren tegen opwaartse kracht). Daarnaast moet het vrij zijn van verontreinigingen, met name scherpe onderdelen die de folie kunnen beschadigen. In de eerste aanvullaag kan een drainage worden aangebracht om de foliekuip te kunnen bemalen tijdens de bouwfase. Tijdens het aanvullen wordt hout tegen de damwanden gezet als bescherming van de folie tijdens het trekken van de damplanken in een later stadium. Er dient tevens extra aandacht te worden besteed aan het vullen van de damwandkassen met klei. Het zand moet tijdens aanbrengen goed worden verdicht.

 

Nadat de zandaanvulling langs de kuipwanden bijna op hoogte is, wordt de folie omgeslagen. Daarna kan de kuip verder worden aangevuld: eerst met zand en het bovenste deel eventueel met (gebiedseigen) grond. Eventueel worden damwandplanken getrokken, waarna het omgevouwen deel van de folie wordt vrij gegraven en weer naar buiten gevouwen.

 

Indien de folie aansluit op een betonconstructie (bijvoorbeeld cut-and-cover tunneltoerit), dient deze waterdicht te worden bevestigd middels een speciaal daarvoor ontwikkeld klemprofíel. Hiervoor is de folie ter plaatse voorzien van een gewapende strook waarin gaten kunnen worden geponst die overeenkomen met de boutgaten in het klemprofiel. Voor het in situ bouwen van de klembalk en het inklemmen van de folie is veelal een aparte bouwkuip nodig die afzonderlijk drooggezet kan worden, als een brievenbusconstructie. De kuip moet voldoende diep zijn om de folie vanaf de betonnen vloer een sprong naar een niveau te laten maken dat diep genoeg is om na aanvullen opbarsten te voorkomen. Aansluitingen kunnen ook in den natte worden gerealiseerd met een zgn. klemconstructie. Zie het handboek binnenstedelijke kademure (CUR 211) [96] en artikelen Specifieke detaillering voegen afgezonken tunnels en Folieconstructies van dit handboek voor verschillende oplossingen voor bevestiging in den droge en in den natte.

 

 

Afzinken van folie

Artikel nr. 588

Een folie kan ook in een ontgraving tussen damwanden worden afgezonken. Hieronder volgt een mogelijk stappenplan:

Een nieuwere methode betreft het samenstellen van de foliebanen aan één zijde van de ontgraving, waarna de folie over een drijvend buizenstelsel op het water wordt getrokken en wordt afgezonken door het buizenstelsel met water te vullen en een overhoogte water op de folie te brengen

 

Opgemerkt wordt dat de dichtheid van de aanvulling zonder de genoemde toepassing van diepteverdichting erg matig zal zijn door de wijze van nat aanbrengen, hetgeen grote consequenties kan hebben voor de hierboven te plaatsen constructie. Uitvoering van diepteverdichting en sonderingen dient uiterst zorgvuldig te geschieden om het risico van lek prikken van de folie te voorkomen.

 

Figuur 588.1 - Afzinken folieconstructie

 

 

 

 

Materieel

Artikel nr. 589

Ten behoeve van de aanleg is bij voorbeeld het volgende materieel benodigd:

 

Activiteit

Materieel

Lossen van de folierollen:

hydraulische graafmachine en/of shovel

Leggen en uitvouwen folie:

handlieren

Grondwerk

 graafmachine

Afzinken folie:

pontons, lieren

Grond verdichten:

trilnaald, trilwals, trilplaat

 

 

Snelheid

Artikel nr. 590

Onderstaand wordt per activiteit een indicatie gegeven van de tijd die benodigd is voor het droog aanbrengen van een folieconstructie in een kuip van gemiddelde grootte.

 

 

 

 

Ontgravingstoleranties

Artikel nr. 591

Voor het plaatsen van folies moet de bodem met voldoende nauwkeurigheid worden afgegraven. Volgens CUR publicatie 221 Folieconstructies voor verdiept aangelegde infrastructuur [96] zijn de volgende toleranties in de praktijk goed haalbaar gebleken:

 

Uitvoering in den natte:

Figuur 591.1 - Tolerantie bij aanleg in den natte

 

 

Uitvoering in den droge:

 

De genoemde afwijkingen zijn inclusief de meetnauwkeurigheid van de meting.

 

Rijkswaterstaat heeft in de Richtlijn Toleranties t.b.v. Betonconstructie [94] uit juni 1997 van de hoofdafdelingen Droge Infrastructuur en Projectuitvoering en Diensten ook toleranties vastgelegd voor folieconstructies.

Figuur 591.2 - Tolerantie bij uitvoering in den droge

 

 

 

Specifieke aandachtspunten

Artikel nr. 592

De meest kritieke factor bij toepassing van een folieconstructie is het voorkomen van beschadigingen aan de folie tijdens de uitvoering. Naast de eerder genoemde maatregelen, dienen plooien en vouwen in de folie te zijn voorkomen en moet de folie bij gebruik van lasapparatuur en snijbranders goed beschermd worden.

 

Indien de folie wordt afgezonken, dient de bodem vooraf te worden gecontroleerd op de aanwezigheid van een sliblaag. Vaak is het nodig om na het ontgraven het slib eerst te laten bezinken en de bodem vervolgens op te schonen alvorens de folie af te zinken.

 

Om opbarsten te voorkomen, dient de freatische grondwaterstand tijdens het werk te worden gemonitord, evenals de stijghoogte in de onderliggende watervoerende lagen binnen het invloedsgebied. Om dezelfde reden moet de waterstand in de put (foliepolderpeil) tijdens het graven, leggen van de folie en aanvullen nauwkeurig worden gemeten.

 

Tijdens verdichting kunnen er zettingen optreden, waarbij de folie onder spanning komt te staan. Het kielspit dient daarom op een later tijdstip te worden uitgevoerd.

  

 

Aanbevolen literatuur

Artikel nr. 593

Droog en nat ontgraven

Artikel nr. 594 (bevat geen inhoud, zie onderliggende artikelen)

Methoden grondverzet

Artikel nr. 595 (bevat geen inhoud, zie onderliggende artikelen)

Droog ontgraven

Artikel nr. 596

Het bovenste deel wordt droog ontgraven, meestal met een hydraulische graafmachine. Eventueel wordt de grondwaterstand binnen de kuip iets verlaagd, om tot een dieper niveau droog te kunnen graven. Bij aanwezigheid van een waterremmende laag of wanneer bemaling is toegestaan kan het mogelijk zijn om de kuip grotendeels of volledig droog te ontgraven.

 

De vrijkomende grond kan d.m.v. binnenvaart, tractoren of auto’s worden afgevoerd of tijdelijk worden opgeslagen. Dumpers en een transportband worden doorgaans alleen binnen het eigen werkterrein gebruikt. Registratie vindt plaats d.m.v. telling vrachten. Het kan gewenst zijn om de zetting van de grond ten gevolge van de opslag met zakbakens te monitoren, bijvoorbeeld indien er kabels en leidingen aanwezig zijn.

Figuur 596.1 - Droog ontgraven

 

 

 

Nat ontgraven

Artikel nr. 597

Nat ontgraven kan hydraulisch of mechanisch worden uitgevoerd. Tot beperkte diepte is mechanisch ontgraven mogelijk, bijvoorbeeld met een graafmachine vanaf een ponton. Bij hydraulisch ontgraven wordt het zand losgemaakt van de bodem, waarna het zand-water mengsel door een persleiding naar een depot wordt gepompt. Eventueel aanwezige kleilagen kunnen worden ontgraven door een hydraulische graafmachine met knijperbak. Nat ontgraven van een bouwkuip gebeurt ook wel middels een soort minicutterzuiger die zelf onder stempelramen door kan baggeren.

 

Indien tijdens mechanisch graafwerk onder water palen of trekankers aanwezig zijn, dient beschadiging te worden voorkomen door van ieder trekanker de locatie aan te geven middels een touw met daaraan een boei. Ook kan ervoor worden gekozen om door middel van uitzuigen de laatste grond tussen de palen of trekankers te verwijderen. Gebruik kan worden gemaakt van een graafmachine met DOP pomp (Dompel Bagger Pomp). Daarmee kan zand worden los gespoten en met een transportleiding naar een spuitdepot worden verpompt. Tegenwoordig kan beschadiging van de palen en ankers ook worden voorkomen door de coördinaten in het GPS systeem van de graafmachine in te voeren.

 

Eventueel proceswater wordt retour gepompt naar de bouwkuip of gecompenseerd om de bouwkuip met eventueel benodigd suppletiewater op peil te houden, hetgeen van belang is voor de stabiliteit van de kuipwand.

 

Op de damwand, bij de te ontgraven bouwkuip, wordt een vaste maat aangebracht. Vandaar uit wordt de detailmaatvoering uitgezet. Zowel bij het ontgraven als bij het zuigen wordt er constant gepeild. Er kan door middel van een peillood handmatig worden gepeild in een raster van bijvoorbeeld 2 meter x 2 meter. Ook kan gebruik worden gemaakt van een 2D ontgravingsysteem met GPS. Nadat de werkzaamheden gereed zijn, worden de natte kuipen in stramienen uitgepeild. Hiervan worden de peiltekeningen vervaardigd. Voor de droge kuipen kan de controle plaats vinden met een hellinglaser.

 

Na het ontgraven wordt het slib van de bodem verwijderd, bijvoorbeeld met behulp van een DOP-pomp of met airlift. Het slib wordt naar het vuilwaterbezinkbassin gepompt. Tenslotte wordt de bouwkuipbodem geprofileerd. Tot zekere mate is het mogelijk het laatste slib te bergen door het aanbrengen van een grindlaag.

 

Het duikwerk dient te worden uitgevoerd door daartoe gecertificeerde duikers. De werkzaamheden die door duikers uitgevoerd worden, zijn:

 

De personeelsbezetting m.b.t. grondwerk ziet er bijvoorbeeld als volgt uit:

 

Figuur 597.1 DOP-pomp (links) en transportleiding (rechts)

 

 

Materieel

Artikel nr. 598

Het in te zetten materieel is zeer divers en afhankelijk van projectspecifieke mogelijkheden, beperkingen en keuzes. Hieronder volgt een opsomming van materieel dat mogelijk kan worden gebruikt.

 

Ten behoeve van droog ontgraven:

 

Ten behoeve van nat ontgraven:

Figuur 598.1 - Voorbeeld hulpbrug

 

 

 

Snelheid

Artikel nr. 599

Bij cut-and-cover tunnelprojecten van normale omvang is 1000 tot 2000 mdroog grondverzet per dag haalbaar met 5-10 personen. Bij grote hoeveelheden wordt de logistiek belangrijk (bijvoorbeeld aan- en afrijden van vrachtwagens). Ter illustratie: om 1000 m3/dag over de weg af te voeren,  zijn dagelijks circa 50 vrachtautobewegingen nodig. Het effectieve aantal benodigde vrachtauto’s is afhankelijk van laadduur, rijafstand en terrein (efficiëntie en stilstand van graafmachine vermijden).

 

Bij gebruik van een DOP-pomp is de snelheid o.a. afhankelijk van het te verwijderen zand, de toe te passen pomp en de transportafstand. Ter illustratie is onderstaande grafiek weergegeven, die afkomstig is van Damen Dredging. Deze grafiek geldt voor een baggerdiepte van 10 m en een zand-watermengsel van 30%. Normale werkdebieten met dit systeem bedragen bij gemiddelde cut-and-cover tunnelprojecten tot enkele honderden m3/uur.

Figuur 599.1 - Voorbeeld productiediagram DOP pomp

 

 

 

Ontgravingstoleranties

Artikel nr. 600

Normale toleranties bij droog ontgraven zijn circa +/-50 à 100 mm. Bij nat ontgraven is dit meestal +/-200 à 250 mm.

 

In bepaalde gevallen kan het nodig zijn om aparte toleranties te definiëren voor zand en klei. Zie bijvoorbeeld de ontgravingstoleranties die in Bouwtoleranties zijn gegeven voor ontgraving t.b.v. onderwaterbeton.

 

Rijkswaterstaat heeft in de de Richtlijn Toleranties t.b.v. Betonconstructies [94] uit juni 1997 van de hoofdafdelingen Droge Infrastructuur en Projectuitvoering en Diensten ook toleranties vastgelegd voor grondwerk.

 

 

Specifieke aandachtspunten

Artikel nr. 601 (bevat geen inhoud, zie onderliggende artikelen)

Grondbalans

Artikel nr. 602

Bij grondwerk wordt doorgaans gestreefd naar een gesloten grondbalans. Grond die bij ontgravingen vrijkomt, wordt zoveel mogelijk elders ingezet, bijvoorbeeld ten behoeve van ophogingen of aanvullingen elders binnen het project. Ook kan de vrijkomende grond gebruikt worden om bepaalde locaties voor te belasten teneinde de zetting te laten optreden voordat erop gebouwd wordt. Als de verschillende activiteiten in de tijd niet aansluiten, kan het tijdverschil worden overbrugd met een depot, waarin vrijkomende grond tijdelijk wordt opgeslagen alvorens elders gebruikt te worden.

 

In de meeste tunnelprojecten is het onvermijdelijk dat er grond moet worden aan- en afgevoerd. De reden is vaak dat de grondbehoefte in m3 of in grondsoort niet aansluit bij de vrijkomende hoeveelheden. Vaak komt er veel veen en klei vrij, terwijl de vraag naar zand binnen een project groter is. Afvoeren van grond is bijvoorbeeld ook nodig in geval van verontreinigde grond. Hieraan zijn strikte regels verbonden.

 

 

 

Vergunningen en procedures

Artikel nr. 603

Voor grondwerk moeten doorgaans veel vergunningen zijn geregeld, bijvoorbeeld een vergunning voor het onttrekken van suppletiewater uit oppervlaktewater, een ontgrondingsvergunning en een grondwater-onttrekkingsvergunning. De Wet Informatie-Uitwisseling Ondergrondse Netten (WION) verplicht informatie-uitwisseling via het Kadaster. Grondroerders zijn verplicht om hun graafmeldingen bij het Kadaster te doen (KLIC-melding) en netbeheerders zijn verplicht om hun tekeningen rechtstreeks aan de grondroerder te sturen. Indien kabels en leidingen in het traject van de graafwerkzaamheden aanwezig zijn, worden hier met de beheerder nadere afspraken over gemaakt over omleggen, markeren, (handmatig) vrij graven, opvangen, etc.

 

NGE-onderzoek moet uitwijzen of er sprake is van niet gesprongen explosieven. Milieukundig onderzoek is nodig om de aanwezigheid c.q. omvang van een verontreinigde bodem danwel grondwater in kaart te brengen.

 

Dit alles betekent dat ruim vóór aanvang van de graafwerkzaamheden reeds moet worden begonnen met het aanvragen van de benodigde vergunningen. In veel gevallen moet dit al vóór of tijdens het heien van damwanden of funderingspalen gebeuren.

 

 

 

Archeologisch onderzoek

Artikel nr. 604

Voorafgaand aan het werk dient een archeologisch vooronderzoek te worden uitgevoerd. Dit kan bestaan uit een bureauonderzoek en een inventariserend boor- en proefsleuvenonderzoek. Indien daarbij archeologische resten zijn gevonden of duidelijk is geworden of en waar die resten te verwachten zijn, worden doorgaans door opgraving de vindplaatsen onderzocht. Op die manier is de informatie gedocumenteerd en veilig gesteld en voldoet de aannemer aan de zorgplicht.

 

Tijdens het ontgraven kunnen echter altijd nog toevalsvondsten worden gedaan. Indien deze kans zich voordoet, wordt de aannemer vaak gevraagd om een Protocol Toevalvondsten op te stellen waarin staat hoe de aannemer vorm geeft aan de meldplicht. De verplichting om archeologische vondsten te melden bij de overheid en om de vondsten beschikbaar te houden voor wetenschappelijk onderzoek, is wettelijk vastgelegd. In voorkomende gevallen wordt in overleg bepaald wat er met de vondsten moet worden gedaan. De overheid heeft de wettelijke mogelijkheid om het werk stil te leggen, indien de minister dit expliciet verordonneert.

 

 

 

Geotechnische stabiliteit

Artikel nr. 605

Tijdens ontgraven moet men beducht zijn op het opbarsten van waterremmende grondlagen. Dit kan gebeuren bij ontgraven in den droge of in den natte. Wanneer dit gevaar zich voordoet, moet men de stijghoogtes in de onderliggende grondlagen, en eventueel het oppervlaktewater in de kuip, goed monitoren en vergelijken met de waarden die in het ontwerp als uitgangspunt zijn aangehouden.

 

De taluds mogen tijdens grondwerk niet te steil zijn. Bij afschuiven of uitspoeling van het talud is er sprake van valgevaar en kunnen mensen bedolven worden.

 

Ontgravingen leiden ook vaak tot deformaties in naastgelegen constructies. Dit kan bijvoorbeeld bij het bouwen direct naast een bestaande tunnel, leidingen of andere belendingen een probleem zijn. Zie hiervoor Omgevingsbeïnvloeding.

 

 

 

Graafrichting

Artikel nr. 606

De start van het graven onder water is erg belangrijk, met name bij het graven met een knijper aan de draad. Het is dan van belang om steeds tegen de damwand aan te starten met graven. Dit om te voorkomen dat de knijper omvalt en men steeds verder van de damwand afblijft met graven.

 

 

 

Veiligheid en gezondheid

Artikel nr. 607

Bij het afvoeren van grond over de weg kan in droge periodes stofhinder ontstaan. Dit kan in veel voorkomende gevallen worden verminderd door de wegen, op plaatsen waar visueel sprake is van stofverspreiding, te besproeien. Ook kunnen depots worden afgedekt.

 

Ontgraven en afvoeren van vervuilde grond (droog) en slib (nat) brengen ook gezondheids- en veiligheidsrisico’s met zich mee en vraagt om gepaste maatregelen en bijbehorende beschermingsmiddelen.

 

Een ander risico bij grondwerk is de blootstelling aan gevaarlijke stoffen in de bodem, bijvoorbeeld aromatische koolstoffen (benzine achtige dampen) of H2S. H2S is een zeer gevaarlijk gas dat ontstaat door rottingsprocessen waarbij geen zuurstof kan toetreden.

 

 

Aanbevolen literatuur

Artikel nr. 608

Handboek Ondergronds bouwen, Deel 2, Bouwen vanaf het maaiveld, COB, ISBN 90 58093131

Bemalen

Artikel nr. 609 (bevat geen inhoud, zie onderliggende artikelen)

Uitvoeringstechnische voor- en nadelen verschillende typen bemalingen

Artikel nr. 610

Er bestaat een grote diversiteit aan soorten bemaling. Hieronder volgt een (niet uitputtend) overzicht van systemen die veel worden toegepast bij cut-and-cover tunnelbouwprojecten met bijbehorende uitvoeringstechnische voor- en nadelen. Het komt vaak voor dat meerdere systemen gelijktijdig naast elkaar worden ingezet.

 

Open bemaling

Een klokpomp om de waterstand tijdelijk te verlagen of om hemelwater te verwijderen. Deze pomp wordt op het diepste gedeelte van de bouwkuip geplaatst en loost hiervandaan het water via een afvoerleiding op het open water. Voordeel van deze methode is de eenvoudige uitvoering. Er hoeven geen onderdelen in de bodem te worden ingebracht. Nadeel is dat het effect beperkt is tot de diepte van de pomp.

 

Horizontale drainbemaling

De horizontale drains worden aangebracht met een graafmachine. De geperforeerde drains komen circa 0,8 meter onder het niveau van de werkvloer. Nadat de drains zijn aangelegd, wordt zandaanvulling aangebracht en worden de drains aangesloten op een of meerdere vacuümpompen. Voordeel: relatief eenvoudige uitvoering. Nadeel: niet toepasbaar bij voortschrijdend droog graafwerk waarbij de diepte in de tijd toeneemt.

 

Bronbemaling (=filterbemaling)

Verticale filters aangesloten op horizontale zuigleidingen die vervolgens op vacuümpompen zijn aangesloten. Vaak gebruikt om neerslag in de bouwkuip en kwel en lek door de kuipwanden te verwijderen. De filters worden doorgaans geplaatst in de damwandkassen van de bouwkuip. Voordeel: effect haalbaar tot grote dieptes. Nadeel: het aanbrengen van de filters en leidingen kan alleen worden uitgevoerd door gespecialiseerde bedrijven.

 

Bemaling met deepwells

De boorgaten worden op vooraf bepaalde locaties geboord. De deepwells, diameter van bijvoorbeeld 200 mm, worden tot de benodigde diepte aangebracht. De onderwaterpompen worden vervolgens aangebracht, waarna de bemaling kan aanvangen. Voordeel: grote dieptes en waterstandsverlagingen haalbaar. Nadeel: specialistische en dure uitvoering.

 

Retourbemaling

Retourbemaling wordt soms voorgeschreven door het bevoegd gezag bij overschrijding van een bepaald debiet. De methode leent zich goed voor het beperken van verspilling van zoet grondwater, op peil te houden van grondwaterstanden in de omgeving, laag houden van zuiverings- en lozingskosten en beperken van maaiveldzakkingen in de omgeving. Ook kan een retourveld noodzakelijk zijn ter plaatse van vervuilde grond. Nadelen zijn de specialistische uitvoering en de benodigde vergunningen.

Vóór het plaatsen van de bemaling wordt de locatie van de vervuiling door de meetploeg uitgezet. Vervolgens worden aan één zijde van de vervuiling retourputten geïnstalleerd, bestaande uit PVC buizen met een diameter van bijvoorbeeld 160 mm die voldoende diep worden aangebracht en vervolgens omstort met filtergrind. Deze retourputten worden aangesloten op een ringleiding. Aan het einde van de ringleiding wordt een overstortinstallatie geplaatst waarin eventueel overtollig water wordt geloosd. Hiermee wordt bereikt dat de grondwaterstand ter plaatse van de vervuiling niet of nauwelijks wordt verlaagd waardoor de vervuiling zich niet zal gaan verspreiden. Dit wordt gemonitord met peilbuizen. Retourbemaling kan ook worden uitgevoerd door het opzetten van het water in afgedamde, opgeschoonde sloten. Afhankelijk van de slootbodem zal het in sommige gevallen nodig zijn om deze regelmatig (bijvoorbeeld wekelijks) los te frezen. In de sloot dient een overloop te worden gemaakt met daarop een watermeter.

 

 

 

Methoden

Artikel nr. 611 (bevat geen inhoud, zie onderliggende artikelen)

Hoofdfasen realisatie bemaling

Artikel nr. 612

De werkzaamheden benodigd voor een bemaling zijn sterk afhankelijk van het toe te passen systeem. Hieronder volgt ter illustratie een beschrijving van de installatie en ingebruikname van een bemaling met deepwells inclusief retourbemaling voor een willekeurige bouwkuip.

 

voorbereiding: terrein- en opslaginrichting:

 

realisatie bronputten:

 

realisatie dompelpompen:

 

realiseren afvoerleiding en pompunit:

 

realiseren retourbemaling:

 

ingebruikname:

 

 

 

Water onttrekken

Artikel nr. 613

Het uitvoeringsteam informeert zes weken vóór start bemaling de afdeling Vergunningen welke bemaling waar benodigd is. Voor het onttrekken van grondwater is bijvoorbeeld een watervergunning benodigd, te verstrekken door het Waterschap. Het komt ook vaak voor dat bemalings- c.q. grondwateronttrekkingsvergunningen moeten worden aangevraagd bij de provincie. Vergunningsvoorwaarden kunnen enigszins verschillen per waterschap/overheid.

 

De volgende informatie moet bij de afdeling Vergunningen worden aangeleverd:

 

Afdeling Vergunningen verzorgt:

 

De onttrekkingsputten kunnen bijvoorbeeld als volgt worden uitgevoerd:

 

Na het gebruik van de bemaling worden peilbuizen en filters verwijderd en waar nodig aangevuld met zand.

 

Benodigd materiaal:

 

Water lozen

Artikel nr. 614

Voor het afvoeren van water is een leiding benodigd (bijvoorbeeld een PE-leiding Ø250 mm). Onttrokken grondwater kan men lozen op oppervlaktewater of laten infiltreren via een zaksloot of een retourscherm. Ook kan worden geloosd in een rioolput via een zandvang c.q. ontluchtingsinstallatie met debietmeter en monsternamepunt. Indien nodig wordt ter plaatse van het lozingspunt het water belucht.

 

Wanneer er op het oppervlaktewater wordt geloosd, moet de uitlaatpijp dusdanig worden geplaatst dat er geen schade aan bermen of taluds optreedt door uitkomend water. Veelal volstaat het om de afvoerpijp het water in te leiden, waardoor het lozingspunt verder van de oever vandaan ligt. Tevens kan, om bezinkbare delen achter te kunnen houden, het water in tijdelijke bezinksloten worden geborgen.

 

Vergunning t.b.v. lozingen op het oppervlaktewater moet worden aangevraagd bij de beheerder van dit oppervlaktewater, veelal RWS of Waterschap. De vergunningsplicht is afhankelijk van de te verpompen hoeveelheid en het zoutgehalte van het water. Bedacht moet worden dat ook voor het leegpompen van een bouwkuip met onderwaterbeton een lozingsvergunning nodig is.

 

Monitoring

Artikel nr. 615

Verlagingen van de grondwaterstand en debieten zijn vooraf te bepalen d.m.v. berekeningen. Echter, dit kan in de praktijk sterk worden beïnvloed door zaken als regenval, lekkage door damwandsloten, afwijkende grondgesteldheid en grondwaterstanden etc. Indien twijfel bestaat over de geo-gegevens, kan eventueel een pompproef worden uitgevoerd om meer duidelijkheid te verkrijgen.

 

Bij inbedrijfname van de bemaling wordt het debiet per onttrekkingsput in het werk gecontroleerd en aangetoond. Hiertoe wordt in de peilbuis naast de bron eerst een 0-meting gedaan waarna de pomp wordt gestart. Gedurende 2 uur pompen met een constant debiet (bijvoorbeeld 100 m3/uur) wordt de waterstand op gezette tijdstippen gepeild. Ter verifiëring van de kD-waarde (doorlatendheid) wordt op één bron gedurende 24 uur gepompt en gepeild; met de gegevens van de gemeten waterstanden in de peilbuizen en het debiet wordt de in het ontwerp aangehouden k-waarde geverifieerd.

 

Om de waterstandsverlagingen en lozingen te monitoren worden in en om de bouwkuip peilbuizen geplaatst. Deze peilbuizen worden aangebracht in de watervoerende laag/lagen en voorafgaand aan de bemalingen regelmatig ingemeten, teneinde een goed beeld te krijgen van de stationaire waterstand. Tijdens de uitvoering van de bemalingen en het leegpompen van de bouwkuipen worden bijvoorbeeld de volgende meetfrequenties aangehouden: 

 

De onttrokken debieten kunnen worden gemeten op de centrale afvoerleidingen van de zuigerpompen. Het bepalen van hoeveelheden onttrokken grondwater (debiet en gecumuleerd debiet) kan ook per onttrekkingspunt met behulp van een elektronische flowmeter. De kwaliteit van het onttrokken water (bijvoorbeeld ijzergehalte en chloridegehalte) kan worden bemonsterd ter plaatse van het retourbemalings-of lozingspunt.

 

Met vlottergestuurde pompen is het mogelijk om de pompen d.m.v. een vlotterschakeling in en uit te laten schakelen bij hoog respectievelijk laag grondwater. Ook is het mogelijk om een alarmmelder te installeren die in de volgende gevallen een geluidsignaal afgeeft, en tevens een sms verstuurt, bij de volgende situties: 

 

Materieel

Artikel nr. 616

Bij de in Hoofdfasen realisatie bemaling genoemde activiteiten kan het volgende materieel worden ingezet. De lijst is niet uitputtend en in sterke mate afhankelijk van het toe te passen systeem.

 

Algemeen:

 

Installeren peilbuizen:

 

Realisatie bronputten:

 

Realisatie afvoerleidingen en pompunit:

 

Realiseren retourbemaling:

 

Monitoring:

 

De capaciteit van de pomp is afhankelijk van het type. Ter indicatie: een normale capaciteit van een klokpomp is bijvoorbeeld in een orde van grootte: 8 m3/uur. De benodigde grondwaterstandsverlaging wordt doorgaans bereikt na enkele etmalen. Dit is natuurlijk in sterke mate afhankelijk van de grondsoort en andere omstandigheden.

Snelheid

Artikel nr. 617

Met een ploeg bestaande uit circa 10 personen kan voor een ‘standaard’ bouwkuip ongeveer onderstaande tijdsduur worden ingeschat voor de in Hoofdfasen realisatie bemaling genoemde activiteiten.

 

 

Specifieke aandachtspunten

Artikel nr. 618

Met betrekking tot de werking van het systeem verdienen de volgende risico’s bijzondere aandacht:

 

Met betrekking tot het effect van bemalingen moet worden gelet op:

 

 

 

Fundering

Artikel nr. 619 (bevat geen inhoud, zie onderliggende artikelen)

Uitvoeringstechnische voor- en nadelen van veel toegepaste funderingstypen

Artikel nr. 620

Tunnels kunnen worden gefundeerd op staal of op palen. Een bekend voorbeeld van een fundering op staal vormt het onderspoelzand onder afzinktunnels. Ook cut-and-cover tunnels (veelal toeritten) kunnen in geval van een draagkrachtige bodem op staal worden gefundeerd. Deze toepassing beperkt zich meestal tot de meest ondiepe gedeelten, omdat daar ook geen trekpalen nodig zijn om weerstand te leveren tegen de opwaartse kracht van het water.

 

De diversiteit aan paaltypen is groot. De keuze wordt door ontwerptechnische en uitvoeringstechnische aspecten in samenhang met elkaar bepaald. Bij cut-and-cover tunnels in Nederland wordt doorgaans eerst gekeken of prefab betonpalen voldoen, aangezien deze goedkoop zijn, eenvoudig aan te brengen en in staat zijn om relatief hoge drukkrachten over te brengen. Wanneer hogere trekkrachten moeten worden opgenomen, wordt vaak gekozen voor GEWI palen. Vibrocompalen bieden vaak een uitkomst wanneer geluid en/of trillingen een probleem zijn. Tubexpalen hebben het voordeel dat ze een relatief kleine stelling nodig hebben, waardoor ze zich goed lenen voor bijvoorbeeld een tunnelbak onder een spoorkruising in verband met de bovenleiding.

 

Hieronder volgt een opsomming van bij cut-and-cover tunnels veel toegepaste paaltypen met bijbehorende voor- en nadelen. Ter vergelijking laat de laatste kolom ook de scores voor fundering op staal zien. Opgemerkt dient echter te worden dat een fundering op staal lang niet overal mogelijk is. Ook moet men bij een reeds gerealiseerde fundering op staal zeer voorzichtig zijn met het inbrengen van trillingen door andere werkzaamheden, bijvoorbeeld ten behoeve van de volgende tunnelmoot. Trekken van damwanden naast een op staal gefundeerde tunnelmoot kan grote schade veroorzaken aan de fundatie.

 

Voor een volledige beschrijving van bovengenoemde en andere paaltypen wordt verwezen naar het Handboek Funderingen van SBR [98].

Tabel 620.1 - Veel toegepaste paaltypen bij cut-and-cover tunnels met voor- en nadelen

 

Prefab paal

GEWI paal

Vibrocom

Tubex

Fundering op staal
Drukkracht

+

+/-

+

+

+/-

Trekkracht

+

+

– –

Complexiteit uitvoering

+

+/-

+

+/-

Heibaarheid

– –

++

++

+

++

Trillingen/lawaai

– –

++

++

+/-

Benodigde ruimte

+/-

+/-

++

++

Kosten

+

+/-

++

 

 

 

Methoden

Artikel nr. 621

De deelactiviteiten die bij het realiseren van een fundering op staal nodig zijn, zijn grotendeels elders in dit hoofdstuk behandeld. Na ontgraven wordt er een grindlaag aangebracht en verdicht. Hierop wordt de werkvloer gestort en verder gebouwd. Daarbij is het belangrijk dat het grondwaterpeil voldoende verlaagd is. De grindlaag heeft ook een drainerende functie en zorgt ervoor dat de betonconstructie op een goed verdicht pakket ligt. Op funderingen op staal wordt in dit artikel verder niet ingegaan.

 

De uitvoeringsmethoden en het benodigde materieel voor het inbrengen van funderingspalen zijn sterk afhankelijk van het paaltype en andere project-specifieke omstandigheden. Ter illustratie wordt hieronder van de prefab paal en de GEWI paal een willekeurig voorbeeld beschreven. Voor overige paaltypes wordt verwezen naar het Handboek Funderingen van SBR [98], waarin een bijna allesomvattende beschrijving te vinden is van vrijwel alle in Nederland gangbare funderingspalen.

 

 

Prefab betonpalen

Artikel nr. 622

Prefab palen kunnen vóór ontgraven worden geheid met oplanger of na ontgraven vanaf de zijkant van de kuip, vanaf een traverse over de kuip of vanaf een ponton drijvend in de kuip. Een oplanger is ook geschikt om palen onderwater weg te heien.

 

De prefab betonpalen worden per type (lengte, schacht, voorspanning, kopwapening) voorzien van een unieke kleurcode zodat op de bouwplaats onderscheid te maken is. Tevens worden de palen met een geboortekaart geleverd. Kleurcode en geboortekaart worden bij levering op bouwplaats gecontroleerd.

 

Na aankomst worden de palen vanaf de vrachtwagen gelost met een hulpkraan. Er is ruimte nodig voor het opstellen van de hulpkraan evenals het lossen en de opslag van de prefab palen met toebehoren. De aan- en afvoerroute moeten verhard zijn, bijvoorbeeld d.m.v. rijplaten. De hulpkraan moet ook langs de kuip kunnen rijden. Dat geldt ook voor de heistelling, indien deze naast de kuip staat. De heikraan kan bijvoorbeeld op dragline schotten worden opgesteld. Voor het verplaatsen van de heistelling naar verschillende werkniveaus kan een zandoprit of een oplopend plateau van schotten worden gerealiseerd met een maximale helling van circa 1:7 à 1:10. Indien de heistelling in de kuip staat, moeten de schotten voor het verplaatsen van de heistelling tussen de paalkoppen worden geplaatst.

 

Een heiploeg bestaat uit een heibaas, een machinist, een heier en een hulpkraanmachinist.

 

De paal kan met stroppen (aantal stroppen volgens fabrieksinstructie) worden gehesen en verticaal worden geplaatst. Vervolgens wordt het heiblok boven de paalkop gepositioneerd. Nadat de paal is ingesloten in de passe-partout, wordt het heiblok op paalkop geplaatst. De heistelling wordt dan in lijn met de paal gesteld en de makelaar in verticale stand. De kraan positioneert de paal dan boven de piket en laat deze zakken. Na het losmaken van de stroppen wordt het heiblok (meestal een dieselblok) gestart en wordt de paal tot de juiste diepte geheid.

 

Tijdens het heien moet er worden gekalenderd om te controleren of de paal net zo snel zakt als voorspeld. Dit geeft informatie over de weerstand in de grond. De eerste paal wordt zo dicht mogelijk bij een sondering geheid die gebruikt is voor de heianalyse. Deze paal wordt over de gehele lengte gekalenderd om de heibaarheidsanalyse te verifiëren. Nabij iedere volgende sondering kan op deze manier de betreffende heianalyse worden geverifieerd.

 

Op basis van kalendering kan er worden besloten om het kalenderbeeld bij te stellen. Ook kan men eventueel overgaan tot het wijzigen van de energieafgifte (valhoogte of zelfs type heiblok). De kalendering geeft ook informatie over de uiteindelijke draagkracht en eventuele paalbreuk.

 

Nadat de paal op diepte is gekomen, wordt als steekproef of bij vermoeden van paalbreuk akoestisch doorgemeten of er sprake is van paalbreuk. Tenslotte worden de koppen vaak gesneld of gebouchardeerd t.b.v. hechting met de constructieve tunnelvloer.

 

Figuur 622.1 - Transport en hijsen van prefab paal

 

 

GEWI palen

Artikel nr. 623

De exacte wijze van uitvoeren is afhankelijk van projectspecifieke omstandigheden en in te zetten materieel. Onderstaand is ter illustratie een mogelijke uitvoeringswijze beschreven, gebaseerd op verbuisd boren met dubbele buis vanaf een traverse over een bouwkuip.

 

De maatvoerder zet de palenrijen en –stramienen uit op de kuipwand en traverse. In bepaalde gevallen kan ook met piketjes de locatie van de te realiseren GEWI-palen worden aangegeven. De streepjes op de kuipwand en traverse, maar ook de piketjes, krijgen een kleur die overeenkomt met de kleurcode op de palenstaat.

 

Buiten de kuip is een werkterrein benodigd voor het lossen en eventueel opslaan van GEWI staven met toebehoren. Vóór aanvang van het boren worden de ankerboormachine en hulpkranen gemobiliseerd en de groutinstallatie opgesteld inclusief voorzieningen (water, elektra etc.). De groutinstallatie bevindt zich normaliter buiten de kuip. De stelling en hulpkraan kunnen tevens buiten de kuip worden opgesteld, of op een traverse over de kuip.

 

De binnenbuis en buitenbuis worden gelijktijdig ingeboord met de ankermachine. De buitenbuis zorgt voor de stabiliteit van het boorgat. De binnenbuis draait daarbij rond, waardoor de daaraan bevestigde boorkop de grond losmaakt. Via de binnenbuis wordt gelijktijdig boorvloeistof (meestal water, soms een dun groutmengsel t.b.v. boorgatstabiliteit) ingebracht. Dit spoelwater vermengt zich met de loskomende grond en komt via de ruimte tussen binnen- en buitenbuis boven uit de spoelkop van de ankermachine, alwaar het wordt opgevangen in een opvangbak, afgezogen met een vacuümpomp en verpompt naar het depot. De benodigde opslagcapaciteit van het depot verschilt per project en is bijvoorbeeld enkele honderden m3. Het is in veel gevallen nodig om de bodem van het depot af te dekken met een folie.

 

Het boorgat wordt via de binnenbuis met water gevuld tot aan bovenkant buis. Vervolgens wordt de binnenbuis (zonder toevoeging van grout of water) met de ankermachine weer naar boven gehaald en met de hulpkraan aan de traverse opgehangen.

 

De GEWI-staaf wordt met de hulpkraan gelost, gebruikmakend van een sprei, hijsmoeren en veiligheidshaken. Deze wordt aangepikt, naar de installatielocatie gezwenkt en in de boorbuis gevoerd. De GEWI-staaf is over het gedeelte dat in het (onderwater)beton wordt opgenomen, vooraf omwikkeld met plastic folie, zodat de staaf groutvrij en schoon blijft. Voor een goede positionering in de buis worden afstandhouders gebruikt.

Figuur 623.1 - GEWI staven met afstandhouders

 

 

Na inhangen van de GEWI-staaf wordt de boorbuis tot aan de rand met grout afgevuld. Het groutlichaam wordt vervolgens afgeperst. Er kan afgeperst worden tot aan een bepaalde hoogte onder de putbodem. Hierna breekt de grout uit, en lekt deze weg richting putbodem. Het afvullen van het geboorde gat moet zo bepaald worden dat er geen grout op de putbodem komt en er geen leeg gat blijft staan. Dit alles moet worden bijgestuurd aan de hand van de bevindingen van de duikers die een controle na de eerste ankers doen.

Figuur 623.2 - Inbrengen van GEWI palen vanaf traverse

 

 

Tijdens productie kan er voor worden gekozen om na elke paal de traverse óf de ankermachine te verrijden, afhankelijk van wat efficiënter is. De ankermachine heeft een gewicht van circa 20 ton en kan ook door de kraan worden verplaatst.

 

Na verharding van het grout wordt een voorgeschreven percentage van de GEWI palen beproefd. Hiervoor kan vanaf de traverse met vijzels aan de staaf worden getrokken. CUR 236 Ankerpalen [12] beschrijft overeenkomstig ISO 2477-5 drie typen proefbelastingen:

 

Proefbelastingen zijn in principe altijd vereist. Indien er bezwijkproeven vooraf en geschiktheidsproeven achteraf in combinatie met uitvoeringscontrole op alle productiepalen worden uitgevoerd, mag er worden geoptimaliseerd in de wrijvingseigenschappen tussen paalschacht en draagkrachtige zandlagen.

 

Voor een volledige beschrijving inclusief testprocedures wordt verwezen naar CUR 236.

 

Verankering van de GEWI palen aan de betonconstructie gebeurt middels zogenaamde schotels. Voor de verankering met het onderwaterbeton moeten deze schotels door duikers worden aangebracht. Voor de verankering in de constructieve tunnelvloer worden in den droge schotels aangebracht, na het droogmaken van de bouwkuip.

 

Er bestaan vele alternatieven naast de hierboven beschreven methode voor het inbrengen van een GEWI paal. Onderstaand worden er twee kort beschreven: boren met een enkele boorbuis en hoogfrequent intrillen.

 

In plaats van de dubbele boorbuis (waarbij inwendig wordt gespoeld), kan er ook worden gekozen voor een enkele boorbuis, waarbij er buitenom wordt gespoeld. Tijdens het boren wordt via het inwendige van de buis water toegevoegd, dat zich met de vrijkomende grond vermengt en via de ruimte tussen boorbuis en boorgat omhoog wordt afgevoerd. Er kan worden gekozen voor een verloren boorpunt of een open boorkroon onder de boorbuis. De ruimte tussen boorbuis en boorgat wordt gecreëerd doordat de boorbuis iets kleiner is dan de boorpunt (enkele centimeters) respectievelijk de boorkroon (enkele millimeters). De stabiliteit van het boorgat wordt verzorgd door de boorspoeling samen met de buis. Bij toepassing van een verloren punt dient het boorproces volgens een continu neergaande beweging te verlopen, om te voorkomen dat de punt los raakt. Ten opzichte van een dubbele boorbuis is het bij buitenom spoelen moelijker om goede afpersdrukken te realiseren.

 

Het vervaardigen van GEWI palen door de casing (een buispaal, bijvoorbeeld Ø220 mm, voorzien van een deksel en een verloren voetplaat) middels hoogfrequent trillen met een geleid trilblok en eventueel pull down op diepte te brengen en te trekken volgens de VAP (Voton Anker Paal) methode. De GEWI staaf wordt via een deksel in de casing gebracht. De casing wordt volledig gevuld met water, waarna het deksel wordt gesloten. Met een groutpomp wordt grout aan de onderzijde van de casing ingebracht. De waterkolom in de casing zorgt voor een voordruk op het grout, waardoor een goede vullingsgraad rondom de GEWI staaf geborgd wordt. Tijdens het trillend trekken van de casing wordt een overmaat grout in de grond gepompt. Zodra het niveau van bovenzijde groutprop (kuipbodem) is bereikt, wordt de groutleiding nagespoeld met water. Bij het realiseren van grote aantallen GEWI-palen volgens de VAP methode kunnen er t.g.v. het trillen significante zettingen in de omgeving optreden. Zie ervaringen project Spoorzone Delft.

 

 

Materieel

Artikel nr. 624

Algemeen:

 

Prefab palen:

 

GEWI ankers:

Figuur 624.1 - Voorbeeld traverse

 

 

Bouwsnelheid

Artikel nr. 625

Funderingspalen worden vrijwel altijd op maat geproduceerd en geleverd. Zo worden prefab betonpalen op bestelling gemaakt met een unieke combinatie van lengte, schachtafmeting, voorspanning, betonkwaliteit en kopwapening. In de planning dient dan ook rekening te worden gehouden met een levertijd. Voor de levertijd van prefab palen is bijvoorbeeld de verhardingstijd belangrijk. Normaliter bedraagt deze minimaal drie weken. Bij eventuele vervanging van een (tijdens het heien) gebroken paal kan dus grote vertraging optreden.

 

De snelheid waarmee funderingspalen kunnen worden geplaatst, is afhankelijk van o.a. het paaltype, de paallengte en de bodemgesteldheid. Het heien van prefab betonpalen voor cut-and-cover tunnels gaat meestal met een snelheid van circa 5 tot 15 palen per dag. Bij GEWI palen ligt deze snelheid doorgaans 20% tot 50% lager, afhankelijk van o.a. uitvoeringsmethode en bodemgesteldheid.

 

Bij GEWI palen dient rekening te worden gehouden met een verhardingstijd na inbrengen van de palen.

 

Bouwtoleranties

Artikel nr. 626

Voor het inbrengen van prefab betonpalen en andere verdringingpalen zijn in NEN-EN 12699 [37] de volgende toleranties gegeven:

 

Van bovenstaande verticale toleranties kan worden afgeweken indien ervoor is gekozen om de definitieve paalpuntniveaus te bepalen d.m.v. kalendering. Hiervoor wordt gekozen bij gelaagde bodems waar vooraf niet met zekerheid kan worden gezegd op welke hoogte de draagkrachtige laag zich exact bevindt.

 

Rijkswaterstaat heeft in de Richtlijn Toleranties t.b.v. Betonconstructies uit juni 1997 [94] van de hoofdafdelingen Droge Infrastructuur en Projectuitvoering en Diensten ook toleranties vastgelegd voor heipalen.

 

Voor GEWI ankers kunnen redelijkerwijs de volgende toleranties worden aangehouden:

 

Specifieke aandachtspunten

Artikel nr. 627 (bevat geen inhoud, zie onderliggende artikelen)

Heibaarheid

Artikel nr. 628

Met name bij het heien van prefab betonpalen is de heibaarheid een belangrijk aspect. Bij harde bodems en bodems waarin harde en zachte lagen elkaar afwisselen, moet men alert zijn op paalschade. Extra voorzichtigheid is bijvoorbeeld ook geboden bij aanwezigheid van obstakels zoals zwerfkeien in de bodem of wanneer zich bijvoorbeeld grind- en leemlagen in de grond bevinden.

 

Vooraf moet met een heianalyse zijn onderzocht of de heibaarheid een belemmering is voor het gekozen paaltype. Het toe te passen heiblok is daarbij van belang. Een groot blok is goed voor de snelheid van heien, maar geeft doorgaans een verhoogd risico op paalbreuk. De keuze wordt dan ook gemaakt in overleg met de paalleverancier en de heier. Dit heeft ook consequenties voor de toe te passen paalkopwapening en voorspanning. De heibaarheid kan tot een zekere mate worden verbeterd door middel van voorboren middels een avegaarboor. Ook kan er worden gekozen voor paaltypen waarbij de heibaarheid minder een probleem is. Op stalen palen kan harder worden geheid (hoewel ook niet onbeperkt) zonder dat ze beschadigen. Beperkt grondverdringende palen hebben minder weerstand tijdens het heien en voor grondverwijderende palen is heien niet nodig.

 

 

Trillingen en geluid

Artikel nr. 629

In de buurt van woonwijken kan geluidoverlast een bezwaar zijn. Daarnaast kunnen heitrillingen schade aan belendingen veroorzaken. Ook kunnen scheuren of andersoortige schade ontstaan aan reeds gerealiseerde permanente of tijdelijke onderdelen binnen het project zoals (bouw-) wegen, betonwerk etc. Hiermee dient in de planning rekening te worden gehouden.

 

Behalve een heianalyse is een geluids- en trillingsprognose in toenemende mate een vereiste. Ook in dit verband moet het type heiblok zorgvuldig zijn gekozen of moeten andere paaltypes worden overwogen. Voorboren of het toepassen van een hydroblok biedt ook vaak uitkomst wanneer geluid en/of trillingen moeten worden beperkt. Dit blok heeft een lagere emissiewaarde dan conventionele heiblokken. Met dit blok kan onderwater worden geheid, hetgeen leidt tot een sterke reductie van geluid en trillingen. Voor het omgaan met geluids- en trillingsoverlast wordt verder verwezen naar Omgevingsbeïnvloeding.

 

 

 

Raakvlakken met stempelraam

Artikel nr. 630

Het komt bij tunnelprojecten vaak voor, dat funderingspalen tussen de stempels van een bouwkuip moeten worden aangebracht. Hiermee dient terdege rekening te worden gehouden. De posities van de palen en kuipstempels moeten op elkaar zijn afgestemd. BIM kan hierbij zeer nuttig zijn, met name om verschillende bouwfasen op elkaar af te stemmen. Verder dient het stempelraam te zijn ontworpen op een stootbelasting en op stempeluitval.

 

 

 

Onvoorziene situaties tijdens heien

Artikel nr. 631

Bij het heien van prefab betonpalen kunnen de volgende ongewenste situaties zich voordoen:

  1. Een onjuiste positionering van de paal.

  2. De paal verloopt tot buiten de maattoleranties tijdens het heien.

  3. Kalendering loopt op, bijvoorbeeld tot boven 100 of zelfs boven de 150 slagen per 25 cm.

  4. De paal komt niet op de vereiste diepte.

  5. Eindkalendering is te laag, bijvoorbeeld 10 slagen per 25 cm of nog minder.

  6. Tijdens het heien wordt op een obstakel gestuit.

  7. Paalbreuk.

 

Deze situaties kunnen ertoe leiden dat de tunnel- of kuipvloer niet op de juiste positie wordt ondersteund (situaties 1 en 2), of dat de draagkracht onvoldoende is (situaties 3 t/m 7). Ook wanneer de palen te veel weerstand ondervinden tijdens het heien en daardoor niet op diepte kunnen komen, is het mogelijk dat de draagkracht onvoldoende is. Bij te hoge kalendering, bijvoorbeeld door een obstakel in de grond, kan een grotere valhoogte of groter heiblok uitkomst bieden, echter niet voordat met de constructeur is overlegd in verband met verhoogde kans op paalbreuk. Wanneer de paal tot buiten maattolerantie verloopt, gebeurt dat meestal ver voordat de paal op diepte is. Men kan dan proberen om deze statisch te trekken. Dit is soms ook mogelijk wanneer men op een relatief ondiep obstakel stuit. Indien door genoemde situaties of herstelmaatregelen de draagkracht of positie van het ondersteuningspunt van de tunnel in het geding is, dient altijd met de constructeur te worden overlegd of een extra paal of een andere maatregel nodig is.

 

 

Grout op de bodem bij GEWI palen

Artikel nr. 632

Door het productieproces van GEWI palen blijft er grout op de bouwkuipbodem liggen. Men kan de grout afzuigen als deze nog vloeibaar is. Ook kan men de bouwkuip dieper graven en de grout onder de onderwaterbetonvloer laten liggen. Let hierbij wel op dat er geen slibinsluitingen zijn.

 

 

Aanbevolen literatuur

Artikel nr. 633

Onderwaterbeton

Artikel nr. 634 (bevat geen inhoud, zie onderliggende artikelen)

Uitvoeringstechnische voor- en nadelen, toepassingsgebied

Artikel nr. 635

Onderwaterbetonvloeren zijn in Nederland veelvuldig toegepast als bouwkuipvloer t.b.v. cut-and-cover tunnels en kunnen worden gezien als een bewezen techniek. Dit in tegenstelling tot bijvoorbeeld een groutboog zoals die in de Haagse Tramtunnel was toegepast. Deze bestond uit korte, elkaar overlappende jetgroutkolommen en deze moest het water van onder de bouwkuip keren door de waterdruk middels boogwerking af te dragen naar de kuipwanden. Zodoende had de groutboog ook de functie van stempeling voor de kuipwanden. Met de huidige stand van de techniek zijn in injectielagen bestaande uit kolommen echter altijd gaten (grond zonder grout) aanwezig. Hierdoor ontstond welvorming. Door de hydrostatische druk van onder en door de stroming werd de grond uit de gaten naar boven gedrukt respectievelijk gespoeld. Doordat de kuip plaatselijk tot aan bovenkant groutboog werd ontgraven, was er onvoldoende gronddruk van boven om dit tegen te houden. De gelaagdheid van de grond met bijbehorende lokaal grote stijghoogtes verergerde het probleem.

 

Ten opzichte van folieconstructies heeft een onderwaterbetonvloer ondermeer het voordeel van een beperkte ontgraving. Door de vloer van trekankers of palen te voorzien, kunnen grote kuipdieptes worden gehaald. Naast de geschiktheid als horizontale kering in de bouwkuip hebben onderwaterbetonvloeren nog het voordeel dat ze als stempeling dienen voor de bouwkuipwanden. Een minpunt van onderwaterbeton is de benodigde verhardingstijd. Een ander belangrijk nadeel van onderwaterbeton toegepast als bouwkuipbegrenzing is de verhindering van opgelegde vervormingen van de daarop te storten constructieve tunnelvloer, zie Scheurvorming constructieve vloer.

 

Beperkte hellingen tot circa 1:15 à 1:10 zijn mogelijk. Dit is ruim voldoende voor tunnels in verkeerswegen en spoorwegen, waar maximale hellingen gelden van circa 1:20 respectievelijk 1:40. Er moet dan wel voldoende aandacht worden besteed aan het betonmengsel, de stortsnelheid, de werkmethode (van laag naar hoog storten, om afschuiven of slibinsluiting te voorkomen) etc. Tijdens het storten dient men regelmatig d.m.v. peilen te controleren of het talud niet onderuit schuift.

 

Ongewapende onderwaterbetonvloeren worden meestal als tijdelijke kuipvloer gebruikt. In toenemende mate worden onderwaterbetonvloeren ook gewapend. Hierdoor wordt het toepassingsgebied vergroot en ook uitgebreid naar constructieve (permanente) tunnelvloeren. Voor zover bekend is deze methode tot nu toe slechts één keer weinig succesvol is toegepast. Het onder water aanbrengen van wapeningskorven is, mede door de aanwezigheid van palen een lastige operatie. Daarnaast moet bijzondere aandacht worden besteed aan het overlappen van de wapeningskorven, positioneren t.o.v. de funderingselementen en verzekeren van voldoende dekking t.p.v. onderzijde vloer. Staalvezelversterkt beton heeft deze problemen niet en wordt ook toegepast om de taaiheid van bouwkuipvloeren te vergroten. Hierbij is verwerkbaarheid van het mengsel wel een belangrijk punt.

 

Onderwaterbetonvloeren kunnen worden gerealiseerd d.m.v. de Hopdobbermethode (genoemd naar de uitvinder Gerrit Hop), ventielmethode of contractormethode. Bij de contractormethode wordt het beton via een hangende open stalen buis (tremiepijp) op diepte gebracht. De eerste charge wordt met een schuimrubber bal gestort om te voorkomen dat bij het opstarten met uitgespoeld beton wordt gestort. Deze methode is minder geschikt voor gestempelde bouwkuipen, omdat de pijp steeds weer opnieuw over de stempels heen moet worden ingestoken. Bij de ventielmethode is de buis aan de onderkant voorzien van een ventiel (gesloten systeem), waardoor bij het opnieuw insteken in geval van kuipstempeling niet telkens met een schuimrubberbal moet worden gewerkt. Bij de Hopdobbermethode is de stalen pijp aan de onderkant voorzien van een schotel die met zijn rand enkele centimeters in de rand van de gestorte betonspecie steekt. Bovenaan de pijp is een drijflichaam bevestigd.

 

Vanwege de omvang en de vereiste nauwkeurigheid wordt bij tunnelprojecten vrijwel altijd de Hopdobbermethode gebruikt en een enkele keer de ventielmethode. De keuze is ook afhankelijk van het stempelpatroon en de hoogte van de stempels t.o.v. het water.

 

 

 

Methoden

Artikel nr. 636 (bevat geen inhoud, zie onderliggende artikelen)

Zand- of grindbed

Artikel nr. 637

lndien op de ontgravingsdiepte van de toerit geen zand wordt aangetroffen, dient er een grindlaag, gemiddeld 300 mm dik, met een minimum laagdikte van 100 mm te worden aangebracht alvorens onderwaterbeton te storten. Zeer slappe lagen moeten soms volledig worden verwijderd en vervangen worden door zand of grind. Een over het volledige oppervlak van de onderwaterbetonvloer aanwezige watervoerende laag zorgt voor een gelijkmatige waterdruk en belasting onder de onderwaterbeton (conform aanname in de berekening).

 

 

 

Werkwijze storten onderwaterbeton

Artikel nr. 638

Voor aanvang van het storten controleren duikers of de damwandkassen en trekpalen schoon zijn. Bij toepassing van stalen H-profielen als MV-palen dienen de gesloten zijden haaks op de stortrichting te worden geheid (fout bij de Zeeburgertunnel). Eventueel overtollig slib (laagdikte > 20 mm) wordt verwijderd met bijvoorbeeld een TOYO, airlift of DOP pomp. Paalkoppen worden gecontroleerd op beschadigingen van ribbels. Tevens dient een inpeiling van de bodem plaats te vinden. Voor iedere damwandkas wordt gecontroleerd of er voldoende diep is ontgraven. Indien nodig worden de damwandkassen en paalkoppen schoongespoten. In geval van GEWI-palen wordt onder water de schotel t.b.v. verankering onderwaterbeton door duikers aangebracht.

 

Het aangevoerde onderwaterbeton wordt gelost in een betonpomp. De betonpomp lost het beton in de ontvangtrechter van de Hopdobber. Aan de ontvangtrechter is een verticale stortbuis bevestigd. Aan de onderzijde hiervan zit een schotel met een diameter van bijvoorbeeld 1,2 m. De schotel drijft ca. 20 à 25 centimeter in het beton zodat ontmenging van het beton uitgesloten is. Dit is een aandachtspunt bij toepassing van gewapend onderwaterbeton.

 

Wanneer de Hop-dobber m.b.v. de stortkar de volledige lengte van de traverse, dit is in de richting dwars op de as van de tunnel, heeft afgelegd, wordt de traverse doorgereden.

 

Storten van het onderwaterbeton gebeurt met een afsluiter. Het proces wordt gecontroleerd door een bovenwater peilploeg met behulp van handpeilloden. De duiker bij de stortbuis controleert op extreme relatieve hoogteverschillen en een goede aanvulling rond de palen en in de damwandkassen.

 

Indien nodig zuigt een slibpomp, een paar meter voor de Hop-dobber uit, het opgestuwde slib weg. De slibpomp wordt door duikers bediend. Het slib wordt d.m.v. een leiding afgevoerd naar het slib/grond depot.

 

Tijdens het storten wordt de waterstand op een constant peil gehouden. Dit kan middels een pomp worden geregeld of door in de damwand een overlaat te creëren. Het uitkomend water wordt opgevangen in een container waarna het wordt afgevoerd. Om een eventuele inwaartse stroming in de bouwkuip, waarmee gronddeeltjes of slib in suspensie kan komen, te voorkomen, moet de waterstand in de kuip enigszins opgezet, minimaal 0,10 m, worden t.o.v. de grondwaterstand.

 

Ter bepaling van het tijdstip van droogpompen worden in het onderwaterbeton thermokoppels ingestort en met behulp van de gewogen rijpheidsmeting de sterkteontwikkeling bepaald. Aan de hand van de ijkgrafiek wordt bepaald op welk moment het beton de gewenste rijpheid en dus sterkte heeft bereikt. Daarna mag de kuip volledig droog gepompt worden. Na het leegpompen kan de laatste controle plaatsvinden, de visuele eindcontrole.

 

Een typische onderwaterbetonploeg bestaat uit de volgende personen:

 

Afhankelijk van de situatie kan een duikploeg meerdere taken verrichten.

 

 

Figuur 638.1 - Onderwaterbetonvloer in bouwkuip

 

Materieel

Artikel nr. 639

Voor het realiseren van onderwaterbetonvloeren kan ondermeer het volgende materieel worden ingezet:

Figuur 639.1 - Voorbeeld railbalk

 

 

 

Bouwsnelheid en verhardingstijd

Artikel nr. 640

Bij aanwezigheid van kleilagen in de bodem kan een belangrijk deel van de opwaartse belasting op onderwaterbetonvloeren worden veroorzaakt door zwel. Er wordt dan doorgaans voor gekozen om na ontgraven eerst een belangrijk deel van de zwel te laten optreden alvorens het onderwaterbeton te storten. De benodigde wachttijd kan tot zekere mate van nauwkeurigheid worden berekend. In kritische gevallen en/of bij moeilijk voorspelbare bodems kan er worden besloten om de zwel te monitoren. Voor het meten van de verticale deformatie van de verschillende lagen in de ondergrond kunnen extensometers worden gebruikt. Teneinde de gemeten zwel goed te kunnen vergelijken met de berekende waarden, worden ook waterspanningen net boven en net onder de betreffende grondlaag gemeten middels piëzometers. Zowel extensometers als piëzometers hebben doorgaans een meetnauwkeurigheid van circa 0,1% van het meetbereik.

 

De hoeveelheid te verwerken beton per uur is van diverse factoren afhankelijk, o.a. de grootte van bouwkuip, dikte betonvloer, bereikbaarheid en eventuele obstakels.

 

Ter indicatie: een gemiddelde stortsnelheid van 75 m3/uur tot 100 m3/uur is normaal. Voor een 1,0 m dikke onderwaterbetonvloer in een bouwkuip van bijvoorbeeld 100 m x 20 m moet circa 2000 m3 beton worden gestort. Inclusief andere bijhorende activiteiten duurt dit circa 1,5 etmaal.

 

De verhardingstijd wordt bepaald op basis van gewogen rijpheid d.m.v. een rijpheidscomputer. Een gebruikelijke verhardingstijd is 3 à 4 weken.

 

 

 

Bouwtoleranties

Artikel nr. 641

De CUR 77 – Rekenregels ongewapende betonvloeren [4] geeft de volgende richtlijnen voor aan te houden toleranties bij onderwaterbetonvloeren met een helling van minder dan 1:20:

 

De toleranties voor de onderzijde onderwaterbeton moeten ook in relatie worden gezien tot de in Ontgravingstoleranties gespecifieerde ontgravingstoleranties en toleranties van een eventueel aan te brengen grindlaag.

 

Rijkswaterstaat heeft in de Richtlijn Toleranties t.b.v. Betonconstructies uit juni 1997 [94] van de hoofdafdelingen Droge Infrastructuur en Projectuitvoering en Diensten ook toleranties vastgelegd voor onderwaterbeton.

 

Van groot belang voor de nauwkeurigheid van de hoogteligging is de continuïteit van de betonaanvoer. Wisselende snelheden en onderbrekingen in betonaanvoer kunnen leiden tot hobbels in de onderwaterbetonvloer t.g.v. ophoping of wegzakken van de betonspecie bij het stortfront.

 

Bij het leegpompen van de bouwkuip komt de onderwaterbetonvloer iets omhoog door de resulterende opwaartse waterdruk. Ter controle van de ontwerpstijfheden van het systeem bestaande uit onderwaterbeton met trekpalen en kuipwand kunnen er metingen worden uitgevoerd. Dit kan worden gerealiseerd door meetpunten aan te brengen en deze tijdens leegpompen van de kuip in te meten. Tijdsafhankelijke vervormingen kunnen worden geverifieerd door bijvoorbeeld zeven dagen na het droogvallen van de kuip nog eens te meten.

 

 

 

 

Specifieke aandachtspunten

Artikel nr. 642 (bevat geen inhoud, zie onderliggende artikelen)

Betonmengsel

Artikel nr. 643

Onderwaterbetonvloeren kunnen worden gerealiseerd met colloïdaal beton, met name bij storten van hoogte. Een dergelijk mengsel heeft door toevoeging van lijmachtige hulpstoffen veel samenhang, waardoor bij een vrije val geen uitspoeling optreedt. Er worden hoge eisen gesteld aan de consistentie, omdat onderwaterbeton niet kan worden verdicht in verband met ontmenging door uitspoeling en insluiting van water en slib.

 

 

 

Tijdens het storten

Artikel nr. 644

Belangrijke aandachtspunten bij het storten van een onderwaterbetonvloer zijn o.a.:

 

De stortvoorziening dient op de goede diepte in het onderwaterbeton te worden geplaatst voordat de afsluiter wordt geopend en met het verpompen van beton wordt aangevangen. Tijdens het storten moet deze permanent in het beton te worden gehouden.

 

De waterstand in de bouwkuip dient tijdens het onderwaterbetonstort gelijk aan of hoger te zijn dan de waterstand buiten de bouwkuip. Bij toepassen van compartimenteringsschermen in bouwkuipen met onderwaterbeton moet men er op bedacht zijn dat bij het leegpompen van een compartiment naast een reeds droogstaande kuip, het compartimenteringsscherm wordt ontlast en er mogelijk een watervoerende spleet tussen onderwaterbeton en scherm kan ontstaan.

 

 

 

Scheurvorming constructieve vloer

Artikel nr. 645

Onderwaterbeton toegepast als kuipbodem voor een cut-and-cover tunnel kan opgelegde vervormingen in de daarop gestorte constructieve tunnelvloer in belangrijke mate beperken met scheurvorming in de constructieve vloer tot gevolg. Hieronder volgen enkele mitigerende maatregelen die mogelijk zijn, maar wel moeten worden afgewogen tegenover andere effecten (zie Constructievloeren op onderwaterbeton; ir. W van der Waardt; Cement 1 2011 [100]).

 

 

Beperking van de scheurwijdte door het toevoegen van wapening is duur en voorkomt scheurvorming niet.

 

Wanneer scheuren ontstaan, is injectie een relatief goedkope oplossing voor het probleem. Echter, geïnjecteerde scheuren kunnen zich in de loop van de tijd weer openen doordat het eindresultaat van de injectie niet altijd goed te waarborgen is. Ook kunnen opgelegde vervormingen, veroorzaakt door temperatuurbelastingen, nieuwe scheuren veroorzaken.

 

 

 

Aanbevolen literatuur

Artikel nr. 646

Betonwerk

Artikel nr. 647 (bevat geen inhoud, zie onderliggende artikelen)

Voor- en nadelen prefab en in situ beton

Artikel nr. 648

Beton kan worden geprefabriceerd of in situ worden gestort. Vanwege het industriële productieproces en de ideale beheersing in een fabriek kan met prefab beton een hoge productiesnelheid en kwaliteit worden gehaald met optimale efficiëntie. Daartegenover staat dat de omvang en het gewicht van de pefab delen is begrensd vanwege transport en hijsoperaties. Daardoor moeten prefab onderdelen in het werk vaak alsnog aan elkaar worden verbonden, bijvoorbeeld door middel van natte voegen.

 

Om bovenstaande redenen wordt bij cut-and-cover tunnels de ruwbouw gerealiseerd uit in-situ beton. Tunnelmoten zijn te groot voor transport en samenstellen van prefab elementen tot een tunnelmoot is niet gewenst vanwege o.a. de waterdichtheid.

 

In de afbouw wordt wel veel gebruik gemaakt van prefab beton. Te denken valt aan voorzetwanden, perronplaten etc.

 

 

 

Methoden

Artikel nr. 649 (bevat geen inhoud, zie onderliggende artikelen)

Overzicht activiteiten betonwerk

Artikel nr. 650

Het betonwerk bestaat bij cut-and-cover tunnels doorgaans uit de volgende onderdelen:

 

 

 

Werkvloer

Artikel nr. 651

De werkvloer van een cut-and-cover tunnel is meestal een betonlaag aangebracht op de onderwaterbetonvloer, al dan niet met een uitvullaag van zand ertussen. Betonkwaliteit C12/15 is vaak voldoende. Er worden doorgaans geen sterkte-eisen aan gesteld, wel eisen m.b.t. verwerkbaarheid. In verband met de onvlakheid van de onderwaterbetonvloer en uitvoeringstechnische beperkingen moet een betonnen werkvloer minimaal 50 mm, meestal circa 80 mm dik en zijn. Meestal wordt deze gestort met een betonpomp. Hoogtemaatvoering gebeurt met een roterende laserwaterpas en een baak met optische opnemer. Ook kan de werkvloer worden gecreëerd door middel van vloeien om voldoende vlakheid te behalen. Het vloeien gebeurt met een celbetonpomp. De hoogte kan ook worden bepaald met behulp van maatstrepen op de kuipwand of piketten die vooraf zijn uitgezet.

 

 

Bekisting

Artikel nr. 652

In principe wordt uitgegaan van een rechte bekisting per stortmoot, ook als het horizontaal alignement van de tunnel gekromd is. Hiervoor moet de breedte van de rijkoker worden verbreed met de pijl van de boogstraal over de mootlengte. Indien dit te groot wordt bij zeer kleine boogstralen, kan worden overwogen de bekisting te knikken. Bij Traverse A2Maastricht is dit laatste voor een aantal moten toegepast. Voor het verticaal alignement speelt dit probleem in principe niet.

 

De tunnelvloer wordt doorgaans gestort met een eenvoudige randkist. Met het storten van de vloer kan er voor worden gekozen om een opstort als aanzet tot de tunnelwanden (circa 300 mm hoog) mee te nemen. Deze dient als aanslag voor de wandbekisting. In de praktijk wordt deze opstort vaak matig verdicht. Om die reden wordt er ook voor gekozen de opstort lager te houden of gebruik te maken van kimankers.

 

De wanden en het dak worden in de meeste gevallen in één keer stort gerealiseerd. Dit geldt met name voor de buitenwanden en dak, om stortnaden en mogelijke hydratatiescheuren, dus lekkage, te voorkomen. Binnenwanden worden ook wel vooraf gestort. Bij eventuele stortnaden tussen wanden en dak verdient het aanbeveling om de stortnaad circa 30 mm in het dak te laten steken.

 

Voor standaard tunneldoorsneden wordt een tunnelkist gebruikt. Deze wordt hydraulisch verstelbaar en verrijdbaar uitgevoerd, zodat opeenvolgende tunnelmoten met één kist kunnen worden gestort.

Figuur 652.1 - Voorbeeld houten tunnelkist

 

 

Bij afwijkende doorsnedes, bijvoorbeeld ter plaatse van het bedieningsgebouw, kan de tunnelkist vaak niet worden toegepast. Er kan bijvoorbeeld voor worden gekozen om voor deze delen een torensteiger te gebruiken. Bij A2 Maastricht verloopt de tunneldoorsnede in de breedte. Er is een meervoudig verstelbare bekisting ingezet. Voor de eerste bouwstroom een ‘custom built’ bekisting, voor de tweede bouwstroom een bekisting opgebouwd uit een modulair systeem.

 

De bekisting, met name de beplating, moet zo worden gekozen dat het betonoppervlak voldoet aan de gestelde beoordelingsklasse volgens NEN-EN 13670- Vervaardigen van betonconstructies [99]. Houten kisten kunnen tot circa tienmaal worden ingezet. Bij meer storten wordt vaak overgegaan tot de inzet van een stalen kist. Er kan ook voor een stalen kist worden gekozen bij schoon beton of om de warmteontwikkeling tijdens het verharden te beperken.

 

De bekistingsplaten worden ondersteund door een staalconstructie. De afstand tussen de platen wordt gezekerd d.m.v. centerpennen. Bij toepassing van niet terugwinbare centerpennen in tunnels wordt vaak geëist dat deze worden voorzien van een aangelast stalen plaatje (waterslot). In de Richtlijn Ontwerp Kunstwerken [27] staat in 5.6.2:  ‘Voor waterdicht werk moeten niet terugwinbare centerpennen worden toegepast welke voorzien zijn van een aangelast stalen plaatje (waterslot)’.

 

De bekisting dient op de juiste afstand van de wapening te worden geplaatst, om voldoende betondekking te garanderen. Hiervoor kunnen betonnen dekkingsblokjes worden gebruikt die met binddraad aan de wapening worden bevestigd en als afstandshouder voor de bekisting fungeren. De h.o.h. afstand tussen de blokjes moet voldoende klein zijn om de dekking over de gehele oppervlakte met voldoende nauwkeurigheid te kunnen garanderen. Aangezien de blokjes permanent in het beton achterblijven, is het vaak gewenst dat ze minimaal dezelfde betonkwaliteit hebben als de tunnel.

 

Een bekisting dient ook ladders en loopbordessen te hebben voor toegankelijkheid t.b.v. wapening vlechten, beton storten e.d. In te storten voorzieningen en voegenbanden worden eveneens regelmatig vastgezet aan de kist. Sparingen en inkassingen in het beton worden bijvoorbeeld gerealiseerd door houten sparingsbekistingen die aan de hoofdbekisting worden bevestigd. Hittewerende bekleding kan in de vorm van beplating in de kist worden opgenomen.

 

Figuur 652.2

 

Voor een cut-and-cover tunnel kan een tunnelkist in de bouwkuip worden opgebouwd. Ook kan ervoor worden gekozen om deze in één of meer delen in te hijsen. Daarmee moet men dan wel rekening houden bij het ontwerp, bijvoorbeeld in relatie tot de bouwkuipstempels. Een tunnelkist inclusief steunconstructie en toegangsmiddelen kan enkele honderden tot meer dan duizend ton wegen.

 

Vóór het storten van het beton moet de kist worden schoon geblazen met lucht of gespoten met water. Hiermee wordt stof, vuil en afknipsels van binddraad verwijderd. Binddraadresten kunnen anders leiden tot roestvlekken op het betonoppervlak. Als onderdeel van de keuring vóór de stort moet ook de maatvoering goed worden gecontroleerd. Zowel de interne maatvoering van de bekisting zelf als de plaatsbepaling van de bekisting in het werk moet nauwkeurig worden bepaald.

 

Een bijzondere kist die wel eens bij tunnelprojecten wordt toegepast, is een bekisting met bekistingstrillers. Deze kist kan uitkomst geven wanneer traditioneel trillen met trilnaden problematisch is, bijvoorbeeld vanwege hoge wapeningsconcentraties. Een andere bijzondere kist is de koelkist, waarbij de koelbuizen in plaats van in het beton, op de kist worden aangebracht. Tegenhanger hiervan is de knuffelkist, waarbij warm water door buizen stroomt die op de kist zijn aangebracht, om het verharden van het beton te bespoedigen.

 

 

 

 

Wapening

Artikel nr. 653

De wapening dient te worden aangebracht conform NEN-EN 13670- Vervaardigen van betonconstructies [99]. Op basis van wapeningstekeningen maakt de vlechter buigstaten. In de centrale wordt zoveel mogelijk al geknipt en gebogen.

 

De staven komen, meestal op vrachtwagens, voorzien van een merk aan op de bouwplaats. Afnamekeuring gebeurt op basis van de leveringsbon. Als indicatie kan worden gerekend op circa 25 ton wapeningsstaal per vrachtwagen. Op de bouwplaats dient voldoende ruimte te zijn voor het lossen en voor opslag van de wapening.

 

Na het stellen van de kist of vlechtsteiger wordt de wapening in het werk gevlochten. Hoewel de meeste staven reeds in de centrale al op maat zijn geknipt en gebogen, is het zeer aan te bevelen om ook op site knipgereedschap en een buigtafel te hebben. Om de activiteiten op het kritieke pad te verminderen of te bespoedigen, kan er voor worden gekozen om buiten de bouwkuip prefab wapeningskorven te vlechten. Deze worden in de kuip gehangen en aldaar afgevlochten. Voor vloeren en dekken kan er, in overleg met de wapeningsleverancier en de vlechter, voor worden gekozen om te werken met rolmatten. Hierbij wordt de standaard hoofd- en verdeelwapening als een soort tapijt uitgerold en dient alleen de bijlegwapening en de kopwapening ter plekke te worden gevlochten.

 

Na het vlechten dient controle plaats te vinden. Daarbij moet worden gelet op o.a. maatvoering, volledigheid, staafdiameters, dekking en in te storten onderdelen. Na de keuring kan men overgaan tot het storten van beton.

 

 

 

Beton storten

Artikel nr. 654

Beton komt in de meeste gevallen in truckmixers aan op het werk. Een gemiddelde vracht is circa 12 m3. Vóór de stort wordt op het werk vooral visueel gecontroleerd of de afgeleverde betonspecie voldoet aan de gestelde eisen. Ook wordt de afgeleverde betonspecie gecontroleerd aan de hand van de leveringsbon. Daarbij wordt vooral gelet op de ouderdom van de betonspecie en of het mengsel juist is (via mengselcode of de sterkteklasse, milieuklasse, cementgehalte e.d.). In geval van twijfel aan de verwerkbaarheid wordt ter controle de zetmaat en/of schudmaat bepaald. Correctie mag alleen door de centrale worden uitgevoerd omdat deze als enige alle doseringsgegevens tot in detail kent en in verband met garanties.

 

Globaal kan de werkvolgorde bij het storten van een tunnelvloer er als volgt uitzien:

 

Beton storten is mogelijk middels een kubel, betonpomp met slang (verpompen) of stortgoot (alleen bij geringe valhoogte). Bij tunnelbouw wordt een kubel nauwelijks nog gebruikt, omdat de te verwerken hoeveelheden te groot zijn, waardoor het storten lang zou duren. Beton storten vanaf grote hoogtes kan leiden tot ontmenging en luchtinsluitingen. In voorkomende gevallen kan gebruik worden gemaakt van een betonpomp met stortkoker of stortzak. Een betonpomp wordt ook vaak gebruikt omdat de arm van een betonmixer vaak te kort is voor de grote afmetingen bij tunnelbouw.

 

Het storten moet voor elk onderdeel ononderbroken doorgaan. Tijdens het storten moet het beton goed worden verdicht, meestal met trilnaalden. De hoogte wordt tijdens het storten met een laser gecontroleerd. Circa een uur na het storten wordt naverdicht met een vibrerende rei, waarbij de vloer direct op niveau wordt gebracht.

 

Bij een cut-and-cover tunnel kan ook uitvulbeton toegepast worden op de voer om het nodige profiel van het wegdek te verkrijgen. Met name bij tunnels waarbij de dwarsverkanting niet constant is en zelfs verkantingsovergangen aanwezig zijn, vergemakkelijkt dit de uitvoering van de constructieve vloer aanmerkelijk.

Figuur 654.1 - Betonstort

 

 

Het storten van de wanden en het dak kan er als volgt uitzien:

 

Voor wandkisten is het belangrijk dat de maximaal toelaatbare betonspeciedruk niet mag worden overschreden. In het algemeen kan een maximale stijgsnelheid van circa 1 m/u worden aangehouden om de mortel voldoende tijd te geven om op te stijven. Om een goede verdichtingsmogelijkheid te creëren wordt in lagen van bijvoorbeeld 0,50 m gestort. E.e.a. uiteraard afhankelijk van betonmengsel, bekisting en andere project-specifieke aspecten.

 

Tijdens en na het storten moeten de volgende zaken worden gecontroleerd:

 

Bij het ontwerpen en uitvoeren van de betonvorm alsmede de bekisting, wapening, sparingen en in te storten onderdelen dient rekening te worden gehouden met de toegankelijkheid voor de stortkoker en trilnaald. Om grindnesten, holten of luchtinslutingen onder sparingen of inkassingen te voorkomen, kunnen stortbuizen door de sparing heen of stortluiken worden opgenomen. In twijfelgevallen is een proefstort aanbevelingswaardig.

Figuur 654.2 - Onvoldoende voorziening voor toegankelijkheid beton onder sparing

 

 

Bij hoge wapeningsconcentraties en andere slecht bereikbare locaties kan er worden overwogen om in overleg met de betontechnoloog de verwerkbaarheid van het beton te vergroten. Ook kan er worden gedacht aan het toepassen van een trilkist of zelfverdichtend beton.

 

Vanuit het ontwerp kunnen veel van deze problemen al worden voorkomen. Een voorbeeld hiervan is het zoveel mogelijk voorkomen van horizontale oppervlakken (onderkant sparingen, in te storten staalplaten etc.) waaronder beton gestort moet worden. Dichte wapeningsnetten kunnen vaak worden voorkomen door bijvoorbeeld de lassen verder weg te leggen, andere staafdiameters te gebruiken of meerdere lagen toe te passen.

 

 

 

 

 

Voegen en naden

Artikel nr. 655

Stortnaden mogen uitsluitend daar worden aangebracht waar deze op tekening zijn aangegeven. De oppervlakken van het reeds gemaakte betonwerk moeten vóór de volgende stort:

 

Horizontale stortnaden moeten worden voorzien van een vertrager. Daags na het storten wordt de cementhuid verwijderd met een hogedrukspuit, waardoor er een goed hechtend oppervlak bestaat waarop de volgende fase beton kan worden gestort.

 

Haringgraatstaal is een veel gebruikt materiaal om een goed hechtend vlak te maken bij verticale stortnaden. Het haringgraatstaal moet uit de dekking worden weggehakt en bij waterdicht werk verwijderd worden over de gehele doorsnede. Indien dit niet wordt gedaan, bestaat het risico op een lekweginleiding langs het staal.

 

Bij voegen in cut-and-cover tunnels gaat het veelal om dilatatievoegen tussen opeenvolgende tunnelmoten van circa 25 m lengte. Deze voegen worden voorzien van een voegenband t.b.v. waterdichtheid. De voegenband moet helemaal rondom lopen en gesloten worden d.m.v. een gevulkaniseerde las. Tijdens uitvoering dient de voegenband netjes te zijn opgerold om beschadiging (met lekkage als mogelijk gevolg) te voorkomen. Om een voegenband in de eindfase optimaal te laten functioneren, is tijdens het storten extra aandacht nodig. Het is van essentieel belang dat het beton rondom de voeg van dezelfde homogeniteit is als elders in de constructie. Voorkomen moet worden dat er bij de voegstrook lucht ingesloten wordt. Daartoe dienen de horizontaal geplaatste stroken van de voegenband iets omhoog te worden gebonden. Nadat de betonspecie het niveau van de voegenband heeft bereikt, dient deze weer los gemaakt te worden. Door injectieslangen in te storten, is het mogelijk om nadat de voegenband geplaatst en ingestort is, lekkagekanalen in het beton rondom de voegstrook te dichten. Er zijn ook injecteerbare voegstroken op de markt. Het injecteren vraagt om een gedegen uitvoering. Zo moet bijvoorbeeld de injectiedruk worden beperkt tot 0,6 MPa om schade aan het beton te voorkomen. In het verleden zijn bij het injecteren veel fouten gemaakt.

 

Ook stortnaden kunnen worden voorzien van injectieslangen. Een goede behandeling van stortnaden, goed verdichten en zorgen voor een schone stortnaad voorafgaand aan het storten leidt over het algemeen tot het beste resultaat: een waterdichte stortnaad. Alle kunstmatige hulpmiddelen leiden tot een schijnzekerheid en nalatigheid (‘Er zit toch een voegenband/kimblik/zwelband in’). Dergelijke oplossingen kunnen ook een bron zijn van fouten, leidend tot nieuwe problemen die ten koste gaan van de waterdichtheid. Te denken valt bijvoorbeeld aan het nat worden van de zwelband voordat het beton wordt gestort of het bemoeilijken van het verdichten.

 

 

 

Afwerken en nabehandelen

Artikel nr. 656

De bovenkant van de vloeren en dekken wordt dikwijls behandeld met behulp van een vibrerende drijfrei. Ook kan ervoor worden gekozen deze oppervlakken mechanisch op te schuren/vlinderen. Voor overige constructies kan voor de afwerking doorgaans worden volstaan met afwerking met een houten of stalen spaan.

 

Direct na het storten kan het beton tegen uitdroging en (hydratatie)scheuren worden beschermd door middel van één van de volgende maatregelen:

 

In de winter moet naast het nabehandelen van het beton ook gedacht worden aan het isoleren van het gestorte beton. Bij een buitentemperatuur beneden de 4°C moet de betonspecie worden beschermd totdat de gemiddelde kubusdruksterkte tenminste 5 N/mm2 bedraagt. Vaak worden daartoe isolatiedekens gebruikt. Deze kunnen dan ook als nabehandelingsmateriaal dienen.

 

Voor meer informatie hierover wordt verwezen naar CUR-aanbeveling 31 nabehandeling en bescherming van beton [101].

 

Na het ontkisten van het beton dienen tijdelijke voorzieningen te worden afgewerkt. Hierbij kan het bijvoorbeeld gaan om het dichten van conusgaten en centerpengaten of om het injecteren van koelleidingen.

 

 

 

Betonreparaties

Artikel nr. 657

Betonreparaties zijn regelmatig nodig vanwege oppervlaktegebreken, luchtinsluitingen, scheuren, grindnesten of onvoldoende dekking (voorop gesteld dat deze gebreken in eerste instantie vermeden moeten worden). Kleine oppervlakkige onvolkomenheden zijn vaak alleen van esthetische aard. Onvolkomenheden of schades van grotere of complexere aard kunnen tot lekkage leiden of constructieve consequenties hebben, bijvoorbeeld omdat ze leiden tot een verminderde levensduur.

 

Voor betonreparaties zijn diverse producten beschikbaar. Deze materialen kunnen cementgebonden, kunststof gebonden of kunsthars gebonden zijn. De keuze voor een bepaald product wordt gemaakt op basis van eigenschappen zoals sterkte, aanbrengcondities, aanhechting, waterdichtheid, chemische bestendigheid en kleur. Reparatie geschiedt door aanbrengen van het reparatiemateriaal met een spatel of middels gieten, spuiten of injecteren. De verschillende materialen en reparatiemethodes staan uitgebreid beschreven in verschillende CUR aanbevelingen.

 

Betonreparaties dienen te worden uitgevoerd volgens aanwijzingen van de mortelleverancier. Voor de verwerkingstemperatuur geldt doorgaans een ondergrens van 5ºC. Verder dienen de reparatieplekken te worden vrijgehouden van weersinvloeden zoals directe zonbestraling of regen. De mortel dient te worden aangebracht op een schone ondergrond, ontdaan van vuil, stof en loszittende delen. Bij grotere schades dient het beton ter plaatse tot achter de wapening te worden verwijderd. Voor de meeste producten moet de ondergrond worden voorbehandeld, bijvoorbeeld door met een kwast een hechtlaag aan te brengen op het te repareren oppervlak.

 

De meeste reparatiemortels mogen alleen met schoon leidingwater worden aangemaakt. Daarnaast is goed mengen van essentieel belang. Direct na voltooiing van de reparatie dient deze afgedekt te worden met curing, om te voorkomen dat de reparatie uitdroogt en niet voldoende uithardt. Indien de reparatiemortel in meerdere fasen wordt aangebracht, dient tussen de bewerkingen de reparatie te worden afgedekt met een plastic folie.

 

Bij onvoldoende dekking op de wapening kan in bepaalde situaties nabehandeling als herstelmaatregel worden ingezet om de wapening alsnog afdoende tegen corrosie te beschermen. Men kan extra lang nabehandelen. Na ontkisting kan een curing compound worden aangebracht. Hieraan zijn wel strikte voorwaarden verbonden, zoals een dekkingsmeting over het gehele ontkiste oppervlak; voorwaarden aan de rijpheid van het beton en een raadpleging van een betontechnoloog. Ook is het mogelijk om in overleg met de betontechnoloog de dekking te corrigeren d.m.v. spuitbeton of coating. Met hydrofoberen is het soms mogelijk om de levensduur met 10-15 jaar te verlengen.

 

Scheuren moeten worden gerepareerd wanneer deze watervoerend zijn of als de scheurwijdte te groot is. De scheuren kunnen bijvoorbeeld worden geïnjecteerd met polyurethaanhars. Voor watervoerende scheuren wordt vaak epoxyhars gebruikt. Om te kunnen injecteren, wordt de scheur schuin aangeboord, zodat het gat de scheur op halverwege de betondikte kruist. Na het injecteren wordt het gat afgewerkt met betonreparatiemortel. Grotere scheuren kan men na inslijpen, uithakken en schoonblazen met gezuiverde lucht laten vollopen met een cementgebonden injectiesuspensie op basis van microcement of injectievloeistof.

 

Koelleidingen dienen te worden gevuld met grout indien er gevaar is voor corrosie, bevriezing van ingesloten water of lekkage. De leidingen worden met lucht doorgeblazen en vervolgens vanaf het laagste punt gevuld met grout d.m.v. injecteren.

 

 

 

 

Materieel

Artikel nr. 658

Hieronder volgt een opsomming van het materieel dat vaak bij betonwerk wordt ingezet:

 

 

 

Bouwsnelheid en verhardingstijd

Artikel nr. 659

In een week kan enkele honderden m2 werkvloer worden aangelegd. Van belang is de benodigde verhardingstijd.

 

Wapening vlechten gaat met enkele tientallen tonnen per dag. Per trailer wordt circa 20 ton wapening aangevoerd.

 

Beton storten gaat bij cut-and-cover tunnelprojecten van gemiddelde omvang met enkele tientallen tot circa honderd m3/uur. In een cut-and-cover tunnel kan worden gedacht aan bijvoorbeeld een weekproductie van 1000 – 1500 m3. Vanaf de betoncentrales komt het beton met bijvoorbeeld 12 m3 per wagen aan op de bouwplaats. In uitzonderlijke gevallen (bijvoorbeeld bij zeer grote hoeveelheden) kan op de bouwplaats een betoncentrale worden ingericht. Dit komt echter vrijwel niet voor in de Nederlandse praktijk, waar altijd binnen afzienbare afstand een betoncentrale aanwezig is.

 

Voor wanden geldt dat de maximaal toelaatbare betonspeciedruk niet mag worden overschreden. De maximale stijgsnelheid (aan de hand van de bekistingsberekening en het gekozen mengsel bepaald, doorgaans circa 1 meter per uur) is vaak bepalend voor de stortsnelheid.

 

Tijdens de verharding mag de constructie niet worden belast, zoals door opslag van materialen of door het daarover vervoeren van lasten. De bekistingen mogen worden verwijderd zodra dit kan geschieden zonder: 

 

Bekistingen onder dragende constructies mogen verwijderd worden als de karakteristieke kubusdruksterkte een waarde van 14 N/mm2 heeft bereikt of een waarde die op tekening is vastgelegd. De karakteristieke kubusdruksterkte kan op een van de volgende methoden worden bepaald: 

 

In de methode van gewogen rijpheid wordt de temperatuur tijdens de verharding in het beton gemeten en omgerekend naar een rijpheid. In een ijkgrafiek is de relatie tussen de rijpheid en de sterkteontwikkeling van een mengsel vastgelegd. Iedere betonsamenstelling heeft een eigen rijpheidsgrafiek. De gegevens voor de rijpheidsgrafiek worden door de leverende betoncentrale verstrekt. Voor het meten van de rijpheid wordt de temperatuur in de constructie gemeten via een thermokoppeldraad en verwerkt met een rijpheidscomputer.

 

Voor open bakconstructies en cut-and-cover tunnels geldt voor het betonwerk vaak dat eerst de vloer en vervolgens de wanden, eventueel met dak, worden gestort. E.e.a. gebeurt in een cyclus van bijvoorbeeld één of twee weken per moot met een lengte van circa 25 m. Met een wekelijkse cyclus (bekisting installeren, wapenen en betonstorten) kan bijvoorbeeld wekelijks circa 1500 m3 beton en 200 ton wapeningsstaal worden verwerkt.

 

 

Bouwtoleranties

Artikel nr. 660

NEN-EN 13670:2009 geeft geometrische toleranties voor het betonwerk. Daarbij wordt onderscheid gemaakt tussen tolerance class 1 (geldend voor standaard gevallen) en tolerance class 2 (geldend voor bijzondere omstandigheden, primair bedoeld voor situaties waarin met gereduceerde partiële factoren is gerekend conform EN 1992-1-1:2004, Annex A [31]). Enkele voorbeelden hieruit ter illustratie:

 

scheefstand wanden en kolommen:

 

hoogte betondoorsneden:

 

breedte betondoorsneden:

 

positie wapening (afwijking resulterend in meer dekking):

 

positie wapening (afwijking resulterend in minder dekking):

 

Rijkswaterstaat heeft in de Richtlijn Toleranties t.b.v. Betonconstructies [94] uit juni 1997 van de hoofdafdelingen Droge Infrastructuur en Projectuitvoering en Diensten ook toleranties vastgelegd voor betonwerk.

 

Specifieke aandachtspunten

Artikel nr. 661

Specifieke aandachtspunten bij het betonwerk zijn:

 

Ten aanzien van grindnesten, ontmengingsgevaar en beweging van de wapening is een goede manier van verdichten van essentieel belang. Met betrekking tot grindnesten en ontmengingsgevaar speelt ook de dichtheid van het wapeningsnet een belangrijke rol. Afstemming tussen ontwerp en uitvoering in een vroeg stadium van het project kan hier uitkomst bieden.

 

Een bijzondere situatie is bijvoorbeeld de toepassing van beton met polypropyleen vezels. Bij brand smelten de vezels, waardoor er kanaaltjes in het beton ontstaan waardoorheen stoom kan ontsnappen. In beton zit namelijk altijd water gevangen dat stoom wordt bij verhitting. Door het stoom via de kanaaltjes te laten ontsnappen, wordt voorkomen dat het beton bij brand afspat. Bij toepassing hiervan moet tijdig met brandproeven worden begonnen om de werking proefondervindelijk vast te stellen. Een ander aandachtspunt is dat er speciale dekkingsblokken moeten worden gebruikt die eveneens zijn voorzien van polypropyleen vezels. Aangezien bij dit brandwerend systeem de betondekking groter moet zijn dan normaal (bijvoorbeeld 75 of 100 mm) om de wapening afdoende te beschermen tegen verhitting, moeten de dekkingsblokken ook groter zijn dan normaal.

 

 

 

 

Aanbevolen literatuur

Artikel nr. 662

Betonkoeling

Artikel nr. 663

Een ‘klassiek’ probleem bij civiele constructies is het optreden van al dan niet doorgaande watervoerende scheuren als gevolg van verhinderde vervormingen tijdens het verhardingsproces. Het uitvoeren van verhardingssimulaties is echter complex en voorbehouden aan specialisten welke beschikken over specialistische computerapparatuur. Wel is het gewenst inzicht te hebben in de materie om de specialist te kunnen volgen voor de praktische uitvoering. De onderliggende artikelen gaan in op de parameters die van belang zijn voor de berekeningen en de mogelijke maatregelen in de vorm van het koelen van beton.

 

 

 

Beschrijving mechanisme

Artikel nr. 664

Het verharden van beton is het gevolg van een chemisch-fysische reactie van cement en water. Hierbij komt warmte vrij. Door de vrijkomende warmte zal het beton in het begin in temperatuur stijgen en als gevolg daarvan willen uitzetten. Na het bereiken van de maximum temperatuurpiek zal het beton weer afkoelen en als gevolg daarvan ook weer willen krimpen. Wanneer het gestorte constructiedeel niet aan een bestaande (reeds verharde constructie) wordt vast gestort zullen de vervormingen als gevolg van de temperatuur stijging en daling niet verhinderd worden en zullen er dus geen spanningen optreden als gevolg van verhindering (zie afbeelding figuur 664.1).

Wanneer het onderdeel wordt gestort aan een bestaande constructie, dan zal deze bestaande constructie de vervorming als gevolg van het opwarmen en afkoelen van de constructie verhinderen en zullen er dus wel spanningen optreden. Tijdens het opwarmen zullen dit drukspanningen zijn, echter deze spanningen zullen, ook als gevolg van de dan nog lage elasticiteitsmodulus van het verse beton, van beperkte grootte blijven. Wanneer het beton gaat afkoelen heeft het beton al een grotere elasticiteitsmodulus ontwikkeld waardoor in het afkoeltraject de (trek)spanningen aanzienlijk groot kunnen zijn. Wanneer deze (trek)spanningen groter zijn dan de op dat moment aanwezige trekcapaciteit van het beton dan zal het beton scheuren (zie figuur 664.2). De scheuren zijn in dat geval vaak door en door waardoor er dus een groot risico is op watervoerende scheuren.

Ook wanneer een constructie gestort wordt los van bestaande constructies (en dus geen externe verhindering ondervindt) is er nog een risico op scheurvorming. Dit wordt veroorzaakt door interne verhindering (zie figuur 664.1). Dit mechanisme treedt op als gevolg van het temperatuurverschil tussen de kern en de buitenzijde van de constructie. Als gevolg van het temperatuurverschil zullen er ook spanningen optreden. De buitenzijde van de constructie koelt al af terwijl de kern nog warm is. De buitenzijde van de constructie wil dus krimpen terwijl de binnenzijde dit verhindert. Hierdoor zullen er spanningen optreden die mogelijk groter zijn dan de op dat moment aanwezige treksterkte met als gevolg scheuren. De scheuren die door dit mechanisme veroorzaakt, zijn vaak niet doorgaand. De nadelige effecten beperken zich hierbij grotendeels tot de duurzaamheid van de constructie (corrosie van de wapening). Ook kan het mechanisme de mate van scheurvorming in combinatie met uitwendige verhindering versterken.

Figuur 664.1 - Principe van inwendige verhindering van hydratatievervormingen

Figuur 664.2 - Principe van uitwendige verhindering van hydratatievervormingen

Figuur 664.3 - Principe constructievloer op onderwaterbetonvloer

 

Factoren die bij het kwantificeren van de spanningsontwikkeling en kans op scheurvorming in jong beton een rol spelen, zijn:

Het temperatuurverloop in de constructie is afhankelijk van:

De mechanische eigenschappen zijn afhankelijk van de voortgang van het hydratatieproces. De ontwikkeling van de mechanische eigenschappen is daarmee een functie van de tijd en van het temperatuurverloop in de tijd.

Bij het berekenen van de spanningen in het beton, als gevolg van verhinderde vervormingen bij het hydratatieproces, is bij hoogovencementbeton het optreden van autogene krimp bij betonsterktes van C30/37 en C35/45 significant. Dit is een inzicht dat pas de laatste jaren is ontstaan en nog niet verwerkt is in NEN-EN 1992-1-1 art. 3.1.4 Kruip en krimp [31]. De in NEN-EN 1992-1-1 gegeven waarden voor de autogene krimp zijn juist voor portlandcementbeton (CEM I) maar significant te laag voor hoogovencementbeton (CEM III). Zie publicatie Autogene krimp- Wat is Autogene krimp en hoe ontstaat het?, Betoniek, september 2012 [103]. In de Richtlijn Ontwerp Kunstwerken [27] is opgenomen dat het verschijnsel autogene krimp in de koelberekeningen moet worden meegenomen en dat daartoe de grootte van de autogene krimp d.m.v. beproeving op het betreffende betonmengsel moet worden bepaald.

Mogelijke maatregelen

Artikel nr. 665

Zoals voor alle gewapend betonnen constructies dient de scheurwijdte te voldoen aan de geldende milieuklasse-eisen. Daarnaast wordt vaak voor waterkerende constructies geëist dat in principe geen doorgaande scheurvorming als gevolg van het hydratatieproces toelaatbaar is of dat de scheurwijdte zeer beperkt moet blijven, bijvoorbeeld volgens Lohmeijer. Dit wordt bereikt door een samenspel tussen constructief ontwerp, betontechnologie en uitvoering. Enkele belangrijke overwegingen: 

 

Uit het bovenstaande volgt dat zodanige maatregelen moeten worden getroffen dat het (trek)spanningsniveau, als gevolg van het hydratatieproces, voldoende laag blijft opdat de scheurwijdte en kans op doorgaande scheurvorming voldoende laag zijn.

 

 

 

Koelmethoden

Artikel nr. 666

Om te voorkomen dat de temperatuur te hoog oploopt, om de hydratatiewarmte en optredende spanningen laag te houden kan een betonconstructie op verschillende manieren worden gekoeld. Te denken valt aan:

  1. het aanbrengen van koelbuizen in de constructie;

  2. toepassen van een gekoelde stalen bekisting (koelkist);

  3. koelen van de betonspecie met behulp van bv. vloeibare stikstof of ijsschilvers.

  4. betonmengsel met uitgestelde sterkte.

 

ad 1.

Door een voldoende aantal koelbuizen in de constructie op te nemen kan voldoende hydratatiewarmte worden afgevoerd opdat het gemiddelde spanningsniveau (in relatie tot de dan aanwezige treksterkte) voldoende laag blijft, zodat grote scheuren of doorgaande scheurvorming wordt voorkomen.

 

Over de te koelen betondoorsnede moeten de koelbuizen goed verdeeld worden teneinde ervoor te zorgen dat het te koelen gebied voldoende bestreken wordt. Dit omdat het invloedsgebied van een enkele koelbuis beperkt is. Hierbij is het materiaal van de koelbuis (staal of HDPE) van belang. Een berekening vooraf is nodig om de juiste verdeling te bepalen. Door het koelwaterdebiet te variëren kan het koelvermogen geregeld worden.

 

ad 2.

Door een stalen kist te koelen kan warmte aan de betonconstructie worden onttrokken. Een beperking van zo’n koelsysteem is dat de plaats van de koeling gefixeerd is, met als gevolg dat de dikte van het te koelen constructiedeel begrensd is op ca. 1,0 m. Het voordeel van de koelkist is dat de koeling over een groot oppervlak plaatsvindt, waardoor de koeling redelijk homogeen is vergeleken met de puntvormige warmteonttrekking van een koelbuizensysteem. Nadelen zijn de kosten en beheersbaarheid van het proces.

 

ad 3.

Door het toevoegen van vloeibare stikstof of ijsschilvers wordt de storttemperatuur verlaagd, waardoor het hydratatieproces langzamer zal verlopen. Hierdoor is meer tijd aanwezig voor het weglekken naar de omgeving van de hydratatiewarmte, waardoor de gemiddelde temperatuurstijging geringer zal zijn.

Een nadeel van dit type koeling is dat niet gereageerd kan worden als de temperaturen in de constructie toch te hoog oplopen; het is een passief systeem. Dit in tegenstelling tot de methoden genoemd onder de punten a. en b., welke actieve systemen zijn.

 

Bij het inspuiten van vloeibare stikstof in de truckmixer is het gevaar van bevriezing van de betonspecie aanwezig. Bij het gebruik van ijsschilvers is het gevaar aanwezig dat losse schilfers ijs nog niet goed gesmolten zijn op het moment dat het beton wordt gestort; hierdoor kunnen holten in het beton ontstaan. Verder moet natuurlijk de hoeveelheid water in de ijsschilvers worden verdisconteerd in de water-cementfactor; dus minder aanmaakwater.

 

ad 4.

Bij het toepassen van een betonmengsel met uitgestelde sterkte wordt de warmteontwikkeling in het mengsel en daarmee de sterkte ontwikkeling gereduceerd. Te denken valt bijvoorbeeld aan CEMIII (/B met een hoog slakgehalte), of moet CEMIII/C met een nog hoger slakgehalte en/of een grovere maalfijnheid. Hierdoor zullen de maximale temperaturen lager liggen waardoor ook de optredende spanningen beperkt blijven. Nadeel is dat de reductie van de hydratatie beperkt is. Vooral bij zeer massieve constructieonderdelen kan de warmteontwikkeling alsnog groot zijn.

 

 

Benodigde gegevens t.b.v. de dimensionering

Artikel nr. 667

Onderstaand worden algemene aanbevelingen voor de Nederlandse praktijk gedaan. Specifieke omstandigheden kunnen het nodig maken af te wijken van de hier gegeven randvoorwaarden. Er dient een controle plaats te vinden of de aangenomen adiabaat in de berekening overeenkomt met de toegepaste adiabaat bij de uitvoering.

 

Omgevingscondities

De weersomstandigheden tijdens het verhardingsproces zijn niet op voorhand precies te voorspellen. Daarom wordt voor de berekening vaak uitgegaan van drie scenario’s: winter, herfst/lente en zomer. Uitgaande van een sinusvormig verloop van de buitentemperatuur over een etmaal, kunnen de waarden zoals aangegeven in de ROK worden aangehouden. Indien er geen specifieke gegevens voorhanden zijn, kunnen onderstaande waarden worden aangehouden

 

Thermische randvoorwaarden

Storttemperatuur constructievloer bedraagt:

 

Omgevingstemperatuur bedraagt:

 

Grond- en grondwatertemperatuur en owb-vloer starttemperatuur bedraagt:

 

In de temperatuur- en spanningsberekeningen moet rekening worden gehouden met de temperatuurval na ontkisten. Tevens moet rekening worden gehouden met een plotselinge buitentemperatuur van -10º C na:

 

De snelheid van daling naar -10º C bedraagt 0,5 C/uur. Wanneer (nog) niet bekend is wanneer het beton wordt gestort, moet worden uitgegaan van de zomer.

  

Materiaaleigenschappen

Als er geen specifieke gegevens voorhanden zijn, kunnen onderstaande worden aangehouden.

Tabel 667.1 - Materiaaleigenschappen beton, grond en staal

Grootheid Eenheid Beton Grond Staal
Volumieke massa Kg/m3 2400 1600 7850
Warmtecapaciteit KJ/(kg ºC) 1,1 0,87 0,53
Warmtegeleiding W/(m ºC) 2,6 1,0 52
Uitzettingscoëfficiënt 1/ºC 12·10-6 12·10-6

 

Tabel 667.2 - Warmtegeleiding hout, Promatect-H en PUR isolatie

Grootheid
Eenheid
Hout
Promatect-H
PUR isolatie
Warmtegeleiding W/(m ºC) 0,145 0,17 0,0035

Te stellen eisen

Artikel nr. 668

Een belangrijke eis bij de kunstmatige koeling van verhardend beton, betreft de te hanteren toelaatbare trekspanning. Bij de toetsing moet worden uitgegaan van een sterktecriterium van 0,5 maal de gemiddelde treksterkte (0,5 fctm). Voor lokale trekspanningen, over 10% van de doorsnede mag een verhoogd criterium tot 0,7 maal de gemiddelde treksterkte van het beton worden gehanteerd, onder voorwaarde dat over de doorsnede een ‘gemiddeld’ sterktecriterium van 0,5 maal de gemiddelde treksterkte geldt.

 

Voor de maximaal toelaatbare gemiddelde trekspanning wordt verwezen naar de Richtlijn Ontwerp Kunstwerken of andere relevante richtlijnen.

 

 

 

Praktische aspecten bij het koelen

Artikel nr. 669

Hieronder wordt alleen ingegaan op koeling d.m.v. koelbuizen, omdat dit verreweg het meest toegepaste systeem is in de Nederlandse tunnelbouw.

De koelinstallatie

In onderstaande figuur is een schematisch overzicht weergegeven van een koelsysteem. De koelinstallatie, bestaande uit een koeleenheid, een (water-) reservoir, een pomp en temperatuur- en debietmeters; kan worden geïntegreerd in een verplaatsbare container (koelunit).

Figuur 669.1 - Schematische weergave van een koelsysteem

 

Te leveren gegevens

Uit de temperatuur- en spanningsberekeningen moet volgen of al dan niet kunstmatige koeling noodzakelijk is. Als kunstmatige koeling d.m.v. koelbuizen noodzakelijk blijkt te zijn, moeten aan de hand van de berekeningsresultaten o.a. de volgende aspecten in het berekeningsrapport c.q. koelplan worden opgenomen:

  1. het materiaal van de koelbuizen, uitwendige diameter en de wanddikte van de koelbuizen;
  2. het aantal en de plaats van de benodigde koelbuizen;
  3. de inlaattemperatuur van het koelwater;
  4. het verloop van de koelbuizen in langsrichting;
  5. de plaats van de aan te brengen thermokoppels in de constructie;
  6. de maximaal benodigde koelcapaciteit [kW];
  7. het benodigde koelwaterdebiet als functie van de tijd volgens de simulatie-berekeningen;
  8. temperatuurcriteria (te meten m.b.v. de thermokoppels) waaraan het koelproces moet voldoen;
  9. temperatuurcriteria waarbij de koeling gestopt kan/moet worden.

 

ad 1. In principe zijn kunststof buizen mogelijk; de effectiviteit is echter minder dan bij het gebruik van stalen buizen, vanwege de veel slechtere warmtegeleiding. Meestal worden daarom stalen koelbuizen toegepast (bijvoorbeeld leidingen met een buitendiameter van 28 mm en wanddikte 1,5 mm, onderling doorgekoppeld middels knelkoppelingen). De buizen worden aangebracht op supports en dienen vrij van de hoofdwapening te liggen. De leidingen dienen zodanig te zijn bevestigd dat deze niet zullen verplaatsen, beschadigen of opdrijven tijdens het storten. De aansluiting van het koelsysteem aan de koelapparatuur geschiedt doorgaans door middel van flexibele kunststof spiraalslangen.

 

ad 3. Om een koelsysteem goed te laten functioneren, moet de temperatuur van het koelwater bijvoorbeeld 10°C zijn (± 5°C). Deze temperatuur wordt voorgeschreven vanuit de koelberekeningen. Om dit te realiseren kan koelequipement worden toegepast. Voor het koelwater kan bijvoorbeeld leidingwater worden gebruikt. Indien op een werk bemalingswater beschikbaar is, kan dit ook voldoen (na controle van de temperatuur). Bij de A2 Maastricht is bijvoorbeeld gekoeld met bemalingswater. Dit heeft een constante temperatuur van 12°C en een continue aanvoer. Gezien de geregeld optredende storingen met de koelmachines en bijbehorende scheurvorming is dit een goede maatregel gebleken.

Aan de temperatuur van het water in het reservoir worden vaak eisen gesteld, bijvoorbeeld niet hoger dan 23ºC, omdat het aggregaat anders het water niet tot de in voorgeschreven maximumtemperatuur van het ingaande water kan koelen. Daartoe is het belangrijk, zeker onder zomerse omstandigheden, het reservoir vlak voor het in bedrijf nemen van de installatie, te vullen met vers water.

 

ad 4. Aangegeven moet worden waar de in- en uitstroomopeningen van het koelwater liggen. Verder moet worden aangegeven hoeveel koelgroepen aanwezig zijn en welke buizen tot welke groep behoren.

 

ad 5. Om te controleren of het uit de verhardingssimulatie volgende temperatuurverloop overeenkomt met de praktijk, moeten thermokoppels in de constructie worden aangebracht. Aan de hand van de temperatuurmetingen moet zonodig het koeldebiet bijgestuurd worden. Het ligt voor de hand de in- en uitlaattemperatuur van het koelwater te meten.

 

ad 7. Het eenvoudigste qua uitvoering is het aanhouden van een constant koelwaterdebiet gedurende een bepaalde tijd. Men kan echter ook meer verfijnd koelen door het koelwater-debiet aan te passen aan de hoeveelheid vrijkomende hydratatiewarmte. Deze laatstgenoemde methode is in principe beter, doch vereist meer vakmanschap en wordt daarom tegenwoordig niet vaak meer gehanteerd.

 

ad 8 en 9. Verschillende typen criteria kunnen worden gehanteerd:

 

De eerstgenoemde methode ter limitering van het temperatuurverschil legt het meest directe verband met de kans op scheurvorming en heeft dan ook de voorkeur.

 

Uit te voeren controles

 

Overige aspecten:

 

 

Aanbevolen literatuur

Artikel nr. 670

ROK (RWS)

NEN-EN 1992-1-1 art. 3.1.4 Kruip en krimp.

Autogene krimp- Wat is Autogene krimp en hoe ontstaat het?, Betoniek, september 2012

Literatuur

Lijst van figuren

Privacyverklaring

Opslaan van gegevens

Deze website bevat (contact)formulieren, waarbij alle ingevulde velden worden opgeslagen op de server van www.handboektunnelbouw.nl. De bewaarde gegevens dienen puur als back-up van het bericht, zodat de commissie van het Handboek Tunnelbouw bij evaluatiemomenten de berichten overzichtelijk kan inzien en behandelen. De berichten en opgeslagen gegevens worden voor geen enkel ander doel gebruikt of gedeeld.

Cookies

Op deze website wordt alleen een Analytics cookie gebruikt.

Privacy wetgeving en Analytics

Zoals hieronder beschreven in de officiële verklaring die Google Analytics gebruikers op hun website moeten plaatsen maakt deze website gebruik van Google Analytics. Dit programma levert belangrijke statistieken over aantallen bezoekers, de bezochte pagina’s, de verkeersbronnen en andere essentiële informatie waarmee wij deze website voortdurend kunnen verbeteren voor de gebruikers. Deze statistieken zijn anoniem en niet te herleiden tot een bepaalde persoon of gebruiker. Er wordt geen gebruik gemaakt van ‘behavioural targeting’ waarmee u op basis van uw klikgedrag speciale inhoud krijgt te zien; uw surfgedrag blijft volledig anoniem. Gegevens uit contactformulieren worden nooit in Analytics verwerkt of opgeslagen. Google Analytics maakt gebruik van een cookie, dat is een klein bestandje dat op uw computer wordt opgeslagen. Wij hebben Google Analytics conform de privacywetgeving ingericht, zodat er geen toestemming vooraf van de gebruiker nodig is.

IP adressen worden gemaskeerd en gegevens niet gedeeld

Het cookie van Google Analytics is een ‘first party cookie’, dat wil zeggen dat het cookie officieel eigendom is van het COB en niet van Google. Dit cookie wordt niet gebruikt voor advertenties of andere commerciële doeleinden. Het COB heeft een verwerkersovereenkomst met Google. Daarnaast is Google Analytics zo ingesteld dat IP-adressen anoniem zijn gemaakt, zodat gegevens nooit naar u of uw IP adres te herleiden zijn. Verder wordt vanuit het Analytics account van het COB geen informatie gedeeld met Google of andere partijen. Daarmee is het Analytics cookie van het COB een niet-privacy gevoelig first-party cookie dat nodig is om de kwaliteit en veiligheid van COB.nl te kunnen waarborgen. Het Analytics cookie blijft 6 maanden geldig.

Opt-out

Als u het script van Analytics liever helemaal wilt blokkeren dan kunt u hier een opt-out plugin voor Google Analytics downloaden: https://tools.google.com/dlpage/gaoptout. Met deze plugin telt uw bezoek niet meer mee in de statistieken van alle websites die Google Analytics gebruiken.

Google Analytics – verklaring van Google

Deze website maakt gebruik van Google Analytics, een webanalyse-service die wordt aangeboden door Google Inc. (“Google”). Google Analytics maakt gebruik van “cookies” (tekstbestandjes die op uw computer worden geplaatst) om de website te helpen analyseren hoe bezoekers de site gebruiken. De door het cookie gegenereerde anonieme informatie over uw gebruik van de website wordt overgebracht naar en door Google opgeslagen op servers in de Verenigde Staten. Google gebruikt deze informatie om bij te houden hoe deze website wordt gebruikt, rapporten over de website-activiteit op te stellen voor de eigenaar van deze website (COB) en andere diensten aan te bieden met betrekking tot website-activiteit en internetgebruik. Google mag deze informatie alleen aan derden verschaffen indien Google hiertoe wettelijk wordt verplicht, of voor zover deze derden de informatie namens Google verwerken. Google zal Uw IP-adres niet combineren met andere gegevens waarover Google beschikt. U kunt het gebruik van cookies weigeren door in Uw browser de daarvoor geëigende instellingen te kiezen. Wij wijzen u er echter op dat u in dat geval wellicht niet alle mogelijkheden van deze website kunt benutten. Door gebruik te maken van deze website geeft u toestemming voor het verwerken van de informatie door Google op de wijze en voor de doeleinden zoals hiervoor omschreven.

Meer informatie

Als u vragen heeft over deze privacyverklaring of als u zich zorgen maakt over de manier waarop wij uw persoonsgegevens verwerken, kunt u contact opnemen met het COB via info@cob.nl.

Colofon

Colofon 

Uitgever

Het Nederlands kenniscentrum voor ondergronds bouwen en ondergronds ruimtegebruik (COB)

info@cob.nlwww.cob.nl

Het Handboek Tunnelbouw is mogelijk gemaakt door de inbreng en inzet van:

Publicatiedatum

april 2023


Downloaden

Deze publicatie is gratis te downloaden via www.handboektunnelbouw.nl