In het kader van de brandveiligheid moet rekening worden gehouden met het niet goed sluiten (openstaan) van een vluchtdeur of een aanrijding op de vluchtdeur tijdens een brand in de verkeersbuis. Een dergelijke situatie is een bedreiging voor de bescherming van de kabels en leidingen van vitale veiligheidssystemen van de TTi, hetgeen al snel zou kunnen leiden tot falen van onderdelen van het TTi systeem.
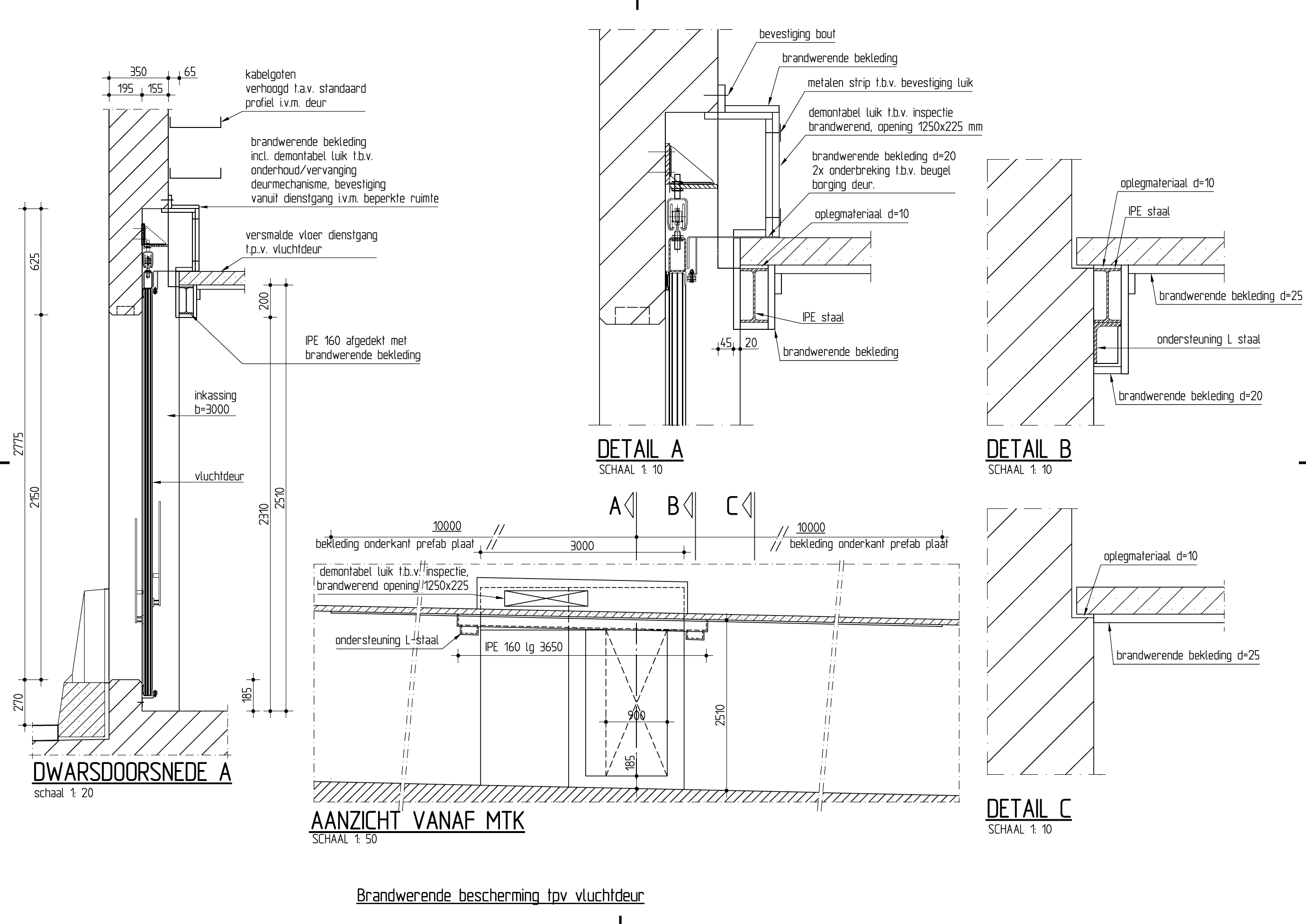
De vloer van de dienstgang bestaat veelal uit afspat gevoelige prefab beton platen. Tussen deze vloer en de wand zit meestal een sleufvormige sparing voor het ophangsysteem van de vluchtdeur. Dat betekent dat de hitte en vlammen vanuit de verkeersbuis via een niet volledig gesloten vluchtdeur eenvoudig kunnen doorslaan naar de dienstgang, waar kabels bij een temperatuur hoger dan 1000⁰C al snel zullen falen. Daarom is voor verkeerstunnels de eis opgenomen dat tot 10 meter aan weerszijden van elke vluchtdeur, gedurende 120 minuten vlamdoorslag tussen de Veilige Ruimte en de dienstgang dient te worden voorkomen bij een brandbelasting volgens de tunnelbrandkromme (de vroegere RWS-brandkromme) volgens art. 3.2.4 van NEN-EN 1991-1-2/NB [103].
Zie voor de detaillering fig. 684.1.
Bij de Gaasperdammertunnel zijn deze brandwerende voorzieningen tegen de onderzijde van de vloer van de dienstgang en t.p.v. de “brievenbus” rondom de ophanging van de vluchtschuifdeur aangebracht. Op onderstaande foto’s is de situatie vóór en na aanbrengen van deze voorzieningen in beeld gebracht.
Kennisbank


