Functie
Het voorkomen van branddoorslag naar het middentunnelkanaal en een veilige vluchtweg garanderen gedurende 120 minuten bij brand in één der tunnelbuizen.
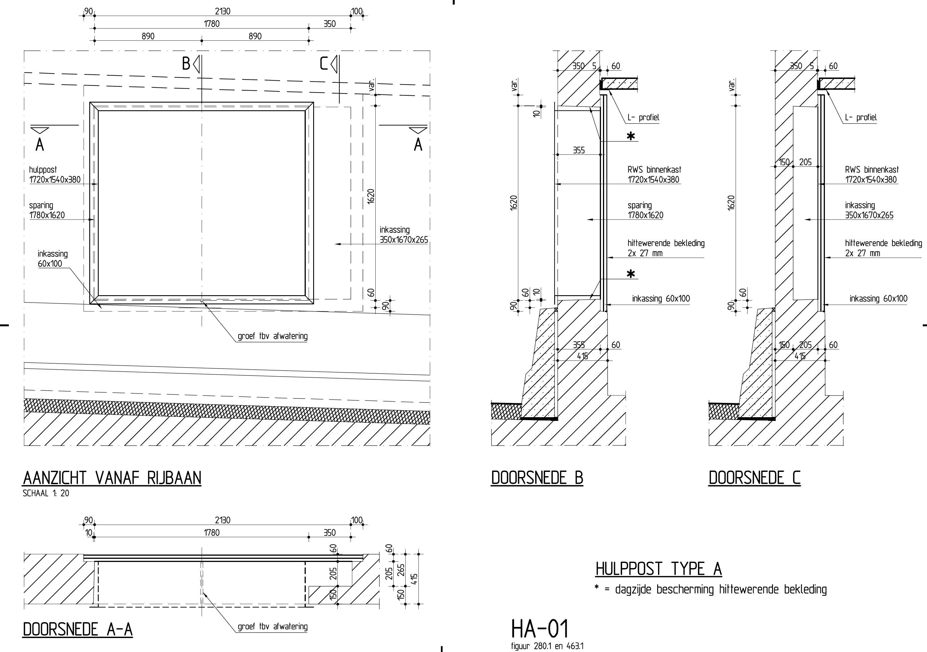
Toepassingen
In de wanden van het middentunnelkanaal van verkeerstunnels achter de hulpposten en vóór de brandblusleiding in het gesloten gedeelte, overgangsgedeelten en toeritten.
Detailontwerp
Een paneel van twee Brandwerende platen wordt in een in het beton gecreëerde sponning gemonteerd met boorankers M10. Een strook compriband zorgt voor een goede afdichting. In het midden wordt de naad tussen de twee Brandwerende platen afgedekt met een Brandwerende strook, breedte 10 centimeter en bevestigd met parkers M6. De nis van de brandblusleiding wordt eveneens afgedicht met een Brandwerende plaat. De naad tussen afdichting hulppost en nis wordt afgedekt met een Brandwerende strook, breedte 10 centimeter en bevestigd met parkers M6.
Motivering
De afdichting, verzorgd door het compriband, is nodig voor het opbouwen van een overdruk in het middentunnelkanaal. Promatect-H voldoet aan de eisen met betrekking tot hittewering.
Conservering
Bevestigingsmiddelen dienen uitgevoerd te worden in RVS kwaliteit A4.
Kennisbank
