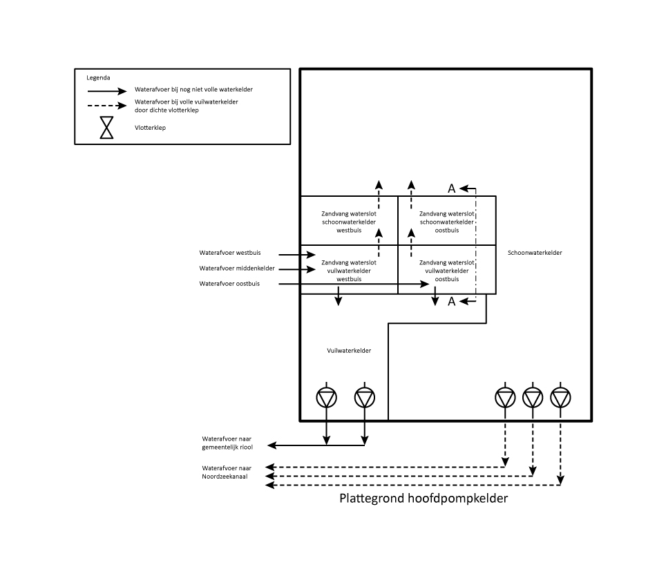
Globale opbouw
Voor het boren van een tunnel wordt gebruikgemaakt van een start- en een ontvangstschacht. Vanuit de startschacht wordt begonnen met het boren van de tunnel door middel van een tunnelboormachine (TBM). Aan de voorzijde graaft de TBM de grond weg en aan de achterzijde plaatst de TBM er gelijktijdig losse segmenten in een ring voor terug. Deze losse segmenten vormen samen de tunnellining of kortweg lining. Bij de ontvangstschacht eindigt dit proces.
De lining bestaat uit segmenten die in een ring worden opgebouwd, al zijn er internationaal ook voorbeelden van een (deels) monoliete lining. In het algemeen zijn het gewapend-betonnen segmenten en in een enkel geval betreffen dit staalvezelbetonnen segmenten. Ter plaatse van de dwarsverbindingen is voor enkele projecten gebruikgemaakt van stalen segmenten.
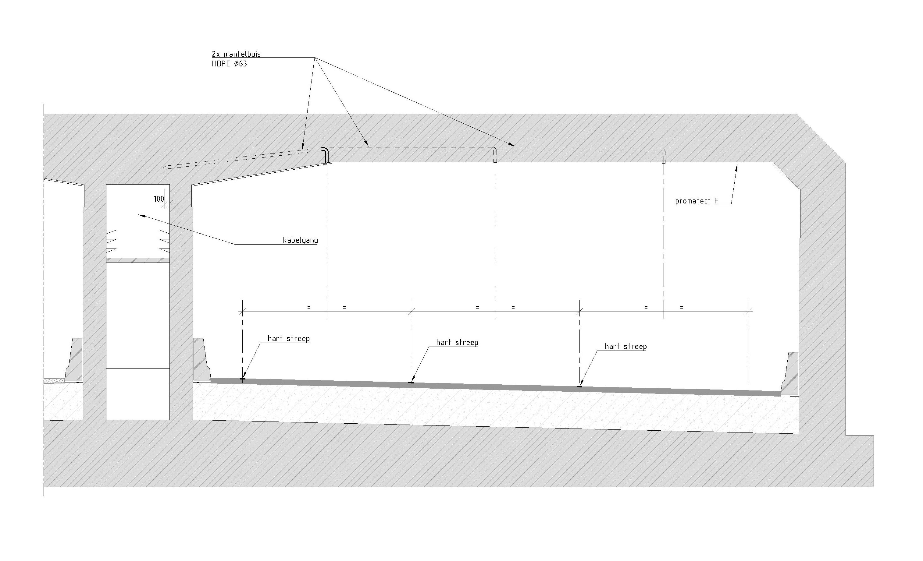
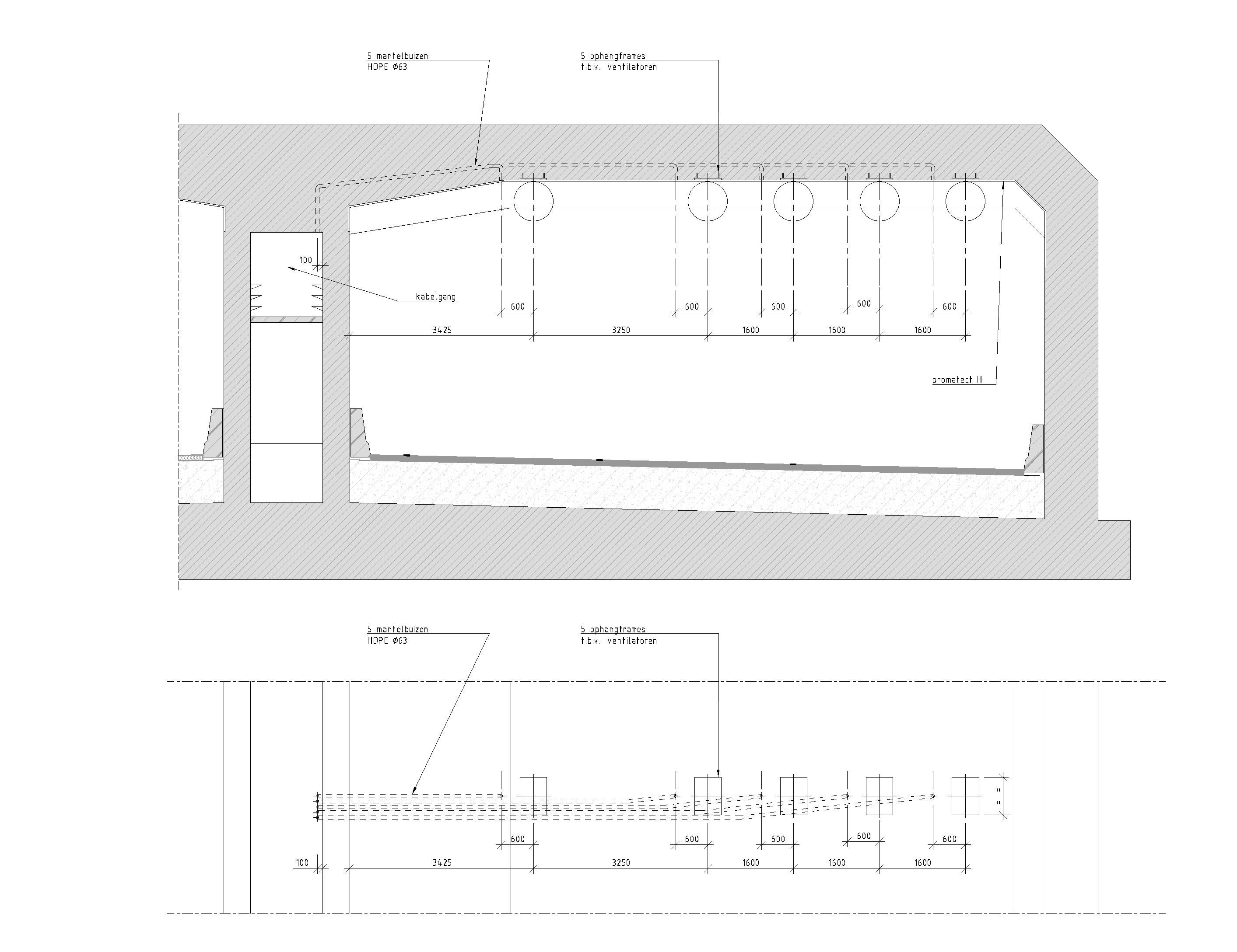
Na het boren wordt de inlay in de tunnel aangebracht ten behoeve van de functie(s) die de tunnel gaat vervullen, zoals het geleiden van het weg- of spoorverkeer, het afvoeren van water dat in de tunnel kan komen, het ruimte bieden aan kabels en leidingen en tunneltechnische installaties. Daarnaast wordt de tunnel soms aan de binnenzijde nog voorzien van een esthetische of brandwerende bekleding.
Tunnelsegmenten
Zoals aangegeven, worden de meeste geboorde tunnels opgebouwd uit segmenten. Dat kan op verschillende manieren, bijvoorbeeld met rechthoekige, getaperde, trapezoïde of hexagonale segmenten. Door de ringen ten opzichte van elkaar te verdraaien, ontstaat er een ‘halfsteensverband’ en dit vergroot de samenwerking tussen de onderliggende ringen.

Afhankelijk van de diameter van de tunnel worden meer of minder segmenten in een ring toegepast. Voor de meeste Nederlandse geboorde tunnels met een diameter van circa elf meter komt dit neer op zeven segmenten met al dan niet een sluitsteen die ongeveer half zo groot is als een segment. In Nederland hebben de ringen vaak een breedte van 1,2 tot circa 2,0 meter. Voor de bouw van de geboorde tunnels in Nederland wordt veelal het ‘Duitse’ of het ‘Franse’ ringsysteem gehanteerd.
Bij het Duitse ringsysteem worden vijf min of meer rechthoekige segmenten, een trapezoïde sluitsteen (half zo groot als een segment) en twee aansluitstenen toegepast. Bij deze methodiek bevindt de sluitsteen zich altijd vrijwel bovenin de ring. Om bochten te kunnen maken, worden de segmenten over de ring naar links of rechts getapered (van bovenaf gezien). Er zijn twee typen ringen noodzakelijk voor het maken van bochten of om rechtdoor te gaan, de zogenaamde linkse en rechtse ring.

Bij het Franse ringsysteem worden vijf afgeschuinde segmenten, een trapezoïde sluitsteen (half of net zo groot als een segment) en een trapezoïde tegensluitsteen toegepast. Bij deze methodiek kan de sluitsteen zich overal in de ring bevinden en is er maar één type ring nodig. Deze kan universeel worden toegepast.

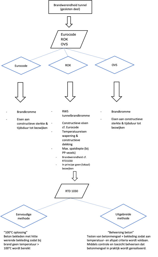
Om de segmenten te beschermen tegen een brandcalamiteit, kunnen de segmenten voorzien zijn van een inwendige bescherming, zoals polypropyleenvezels. Het is ook mogelijk dat de tunnels een externe bescherming hebben in vorm van een gespoten brandwerende bekleding op de tunnelsegmenten.
Ringvoegen en langsvoegen
De voegen betreffen de plekken waar de segmenten op elkaar aansluiten. De voegen ín de ring zijn de langsvoegen en de voegen tússen de ringen zijn ringvoegen. De langsvoegen maken vervormingen in ringrichtingen mogelijk met behoud van zowel waterdichtheid als krachtsoverdracht. De ringvoegen maken vervormingen in ringrichting mogelijk met behoud van waterdichtheid. Door aangebrachte koppelingen kunnen deze vervormingen in meer of mindere mate worden beperkt. Ook in de ringrichting (lengterichting van de tunnel) kunnen dus krachten worden overgedragen. Samen met de bouwwijze zijn de functies waterdichtheid en krachtsoverdracht bepalend voor de vormgeving van de voegen.

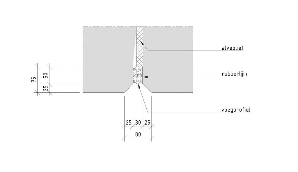
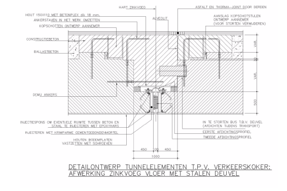
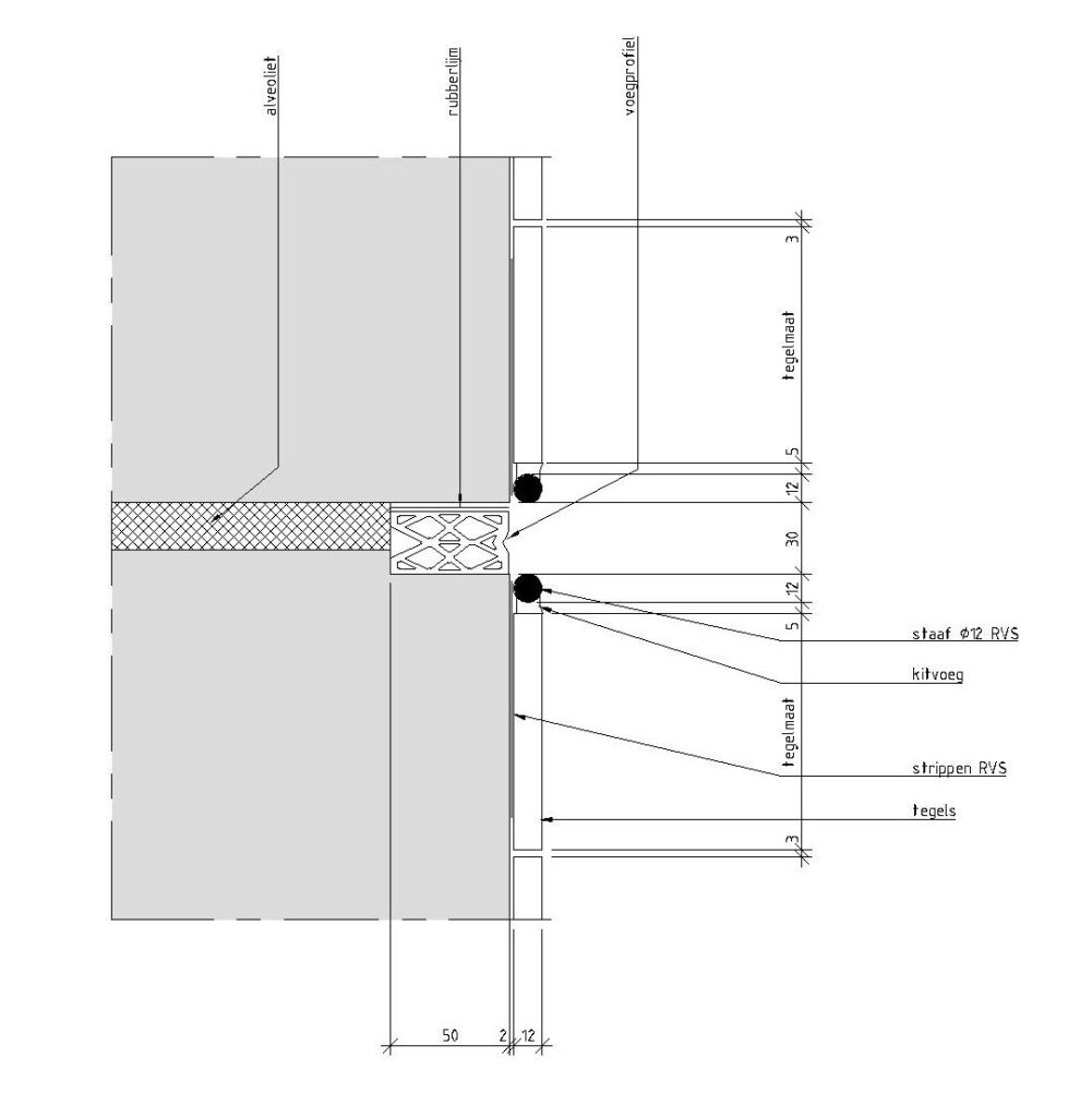
De waterdichtheid bij zowel de ring- als de langsvoegen wordt gewaarborgd door middel van waterdichtheidsprofielen alsmede door de aanwezige drukkrachten/voorspankrachten in zowel de ring- als de langsrichting. De waterdichtheidsprofielen bevinden zich meer aan de buitenzijde van het segment en lopen rondom de segmenten, zie figuur 690.6. Deze profielen kunnen op de segmenten zijn gelijmd of zijn ingestort, zoals in de figuur is te zien. De waterdichtheidsprofielen kunnen niet zomaar vervangen worden en hebben een gelijke levensduur als de segmenten.
Er zijn voorbeelden bekend van het toepassen van zwelbanden naast het waterdichtheidsprofiel, bijvoorbeeld om aantasting door vervuiling te voorkomen. De waterdichtheidsprofielen liggen, zeker bij de recente gerealiseerde tunnels, zo ver aan de buitenzijde van het segment, dat de profielen niet te warm worden in het geval van een calamiteit zoals brand.

Doordat de segmenten strak tegen elkaar worden geplaatst, worden de waterdichtheidsprofielen ingedrukt en wordt de waterdichtheid verkregen. Naarmate de waterdichtheidsprofielen verder worden ingedrukt, kan een hogere waterdruk worden weerstaan en zal de belasting door het waterdichtheidsprofiel op het segment toenemen.
Ook de correctheid van plaatsing heeft invloed op de waterdichtheid. Hoe groter de offset (verspringing) is tussen de segmenten, des te lager is de weerstand tegen de waterdruk en derhalve de waterdichtheid van de tunnel.

Boorproces
Met behulp van een tunnelboormachine (TBM) worden tegelijkertijd de tunnel gegraven én de lining gebouwd. figuur 690.8 toont de verschillende onderdelen van een TBM; de toelichting volgt na de afbeelding.

Graven van de tunnel
Bij het graven van een tunnel onder de grondwaterstand wordt veelal met een zogenaamd ‘slurryschild’ gewerkt. Hierbij gebeurt het ontgraven en afvoeren van de grond door middel van een compleet gesloten systeem. Een mengsel van water en bentoniet wordt aangevoerd van buiten de TBM en infiltreert onder druk in de grond voor het graafwiel (2). De druk van het bentoniet maakt het graaffront stabiel; hierdoor kan de TBM laagjes grond wegschrapen zonder dat er verzakkingen ontstaan. De ontgraven grond mengt zich in de graafkamer (3) met het bentoniet en water tot de zogenaamde slurry. De slurry wordt vervolgens door een lange buis naar buiten de tunnel verpompt. Daar wordt met behulp van een scheidingsinstallatie het bentoniet gescheiden van de grond. Het bentoniet kan daarna weer hergebruikt worden. Het boorschild (1) voorkomt dat de grond en slurry in de TBM komen en biedt ruimte om de tunnelringen te bouwen.
Bouwen van de tunnellining
Binnen de TBM wordt de lining gebouwd. Met losse segmenten wordt steeds een ring gebouwd (5). Als de ring klaar is, schuift de TBM via uitschuifbare cilinders (4) door naar de volgende ring. De TBM zet zich hierbij steeds af op de laatst gebouwde ring. De cirkel die ontgraven is door het graafwiel, is groter dan de cirkel van de tunnelring; deze ruimte, de zogenaamde staartspleet, wordt opgevuld met grout waarbij de druk van het grout precies zo gekozen wordt dat deze in evenwicht is met het gewicht van de grond boven de tunnel. Het hele proces van graven, ringen bouwen, afzetten en afgrouten herhaalt zich, totdat de TBM bij de ontvangstschacht aankomt.

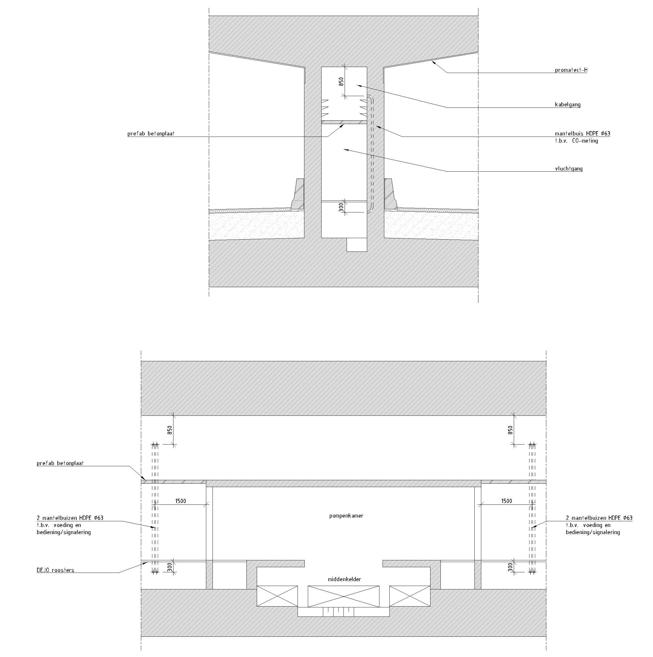
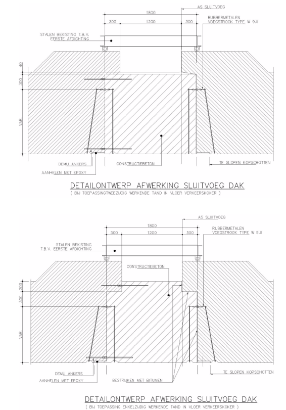
Dwarsverbindingen
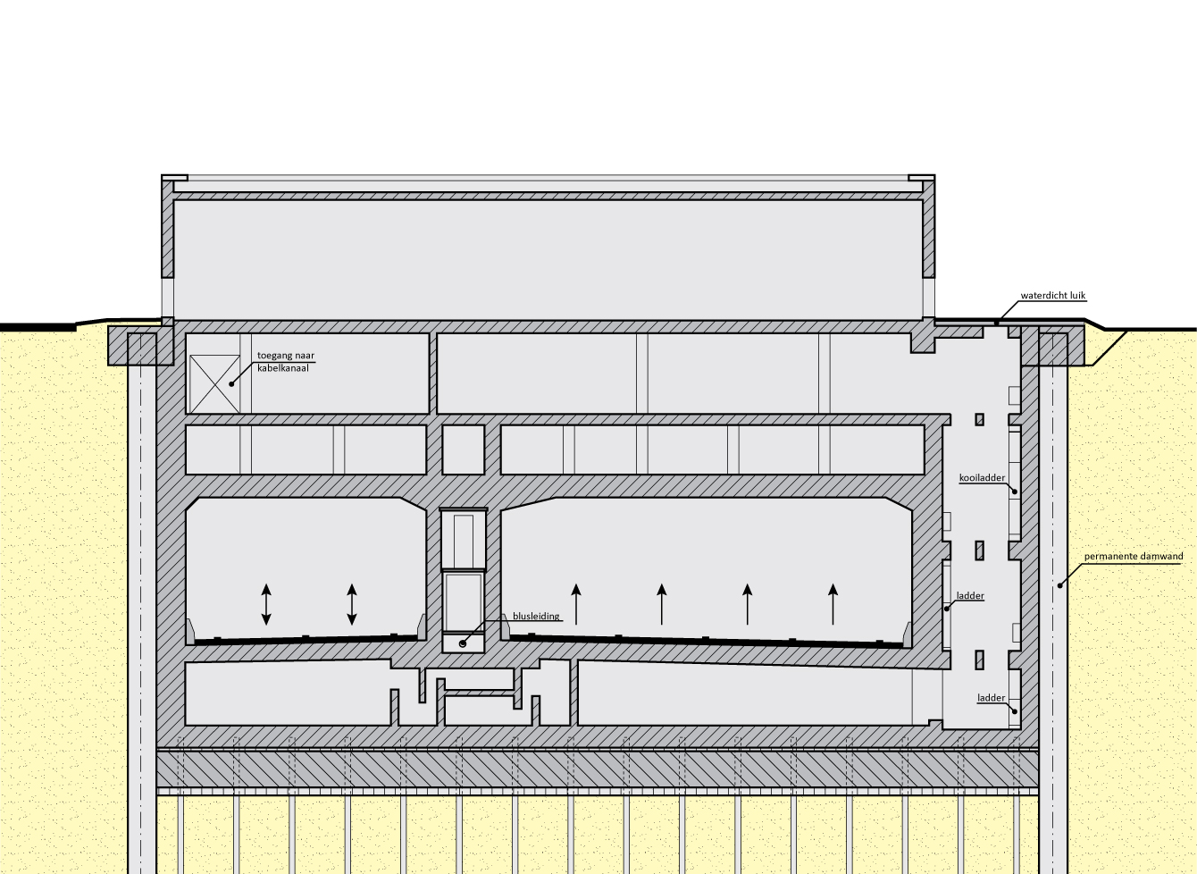
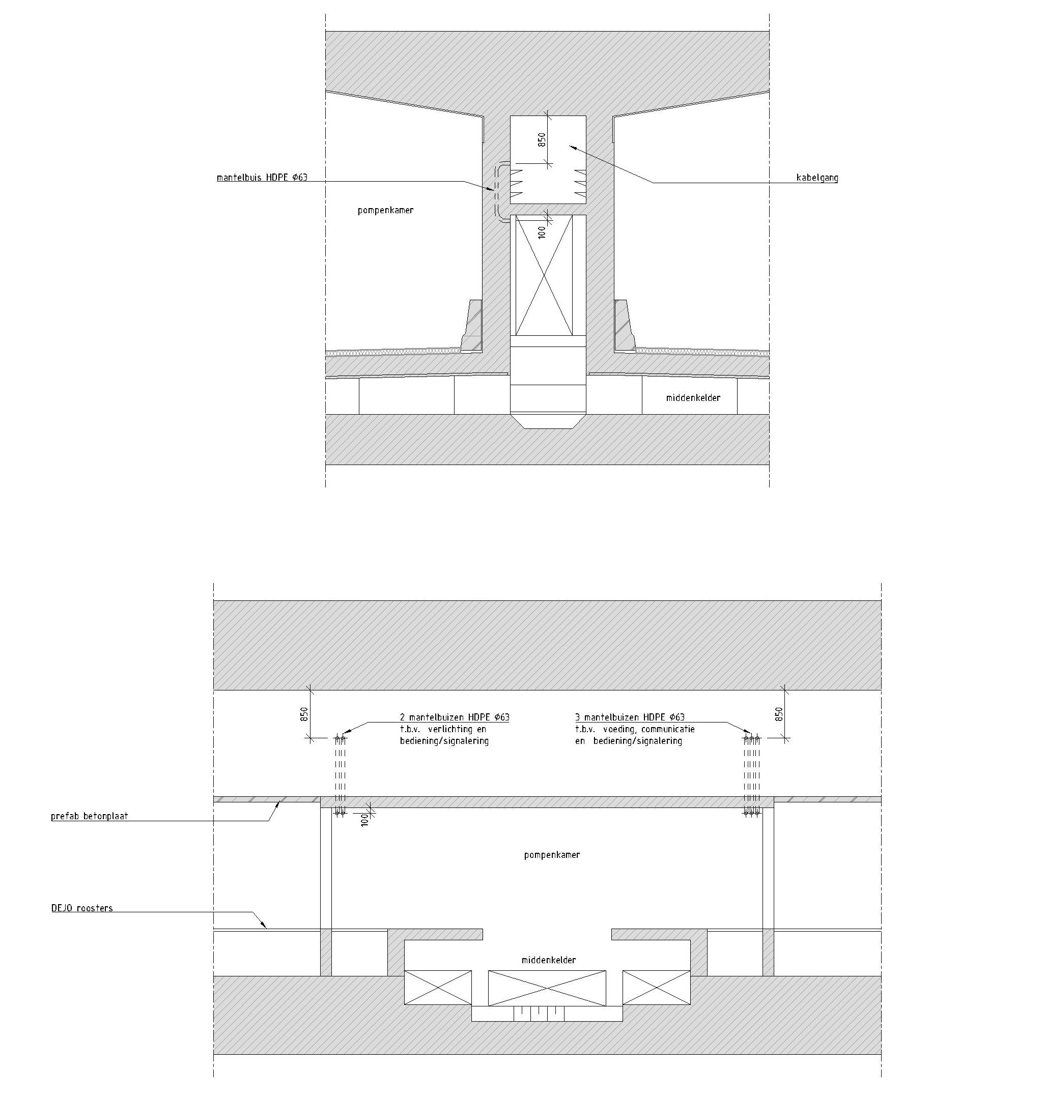
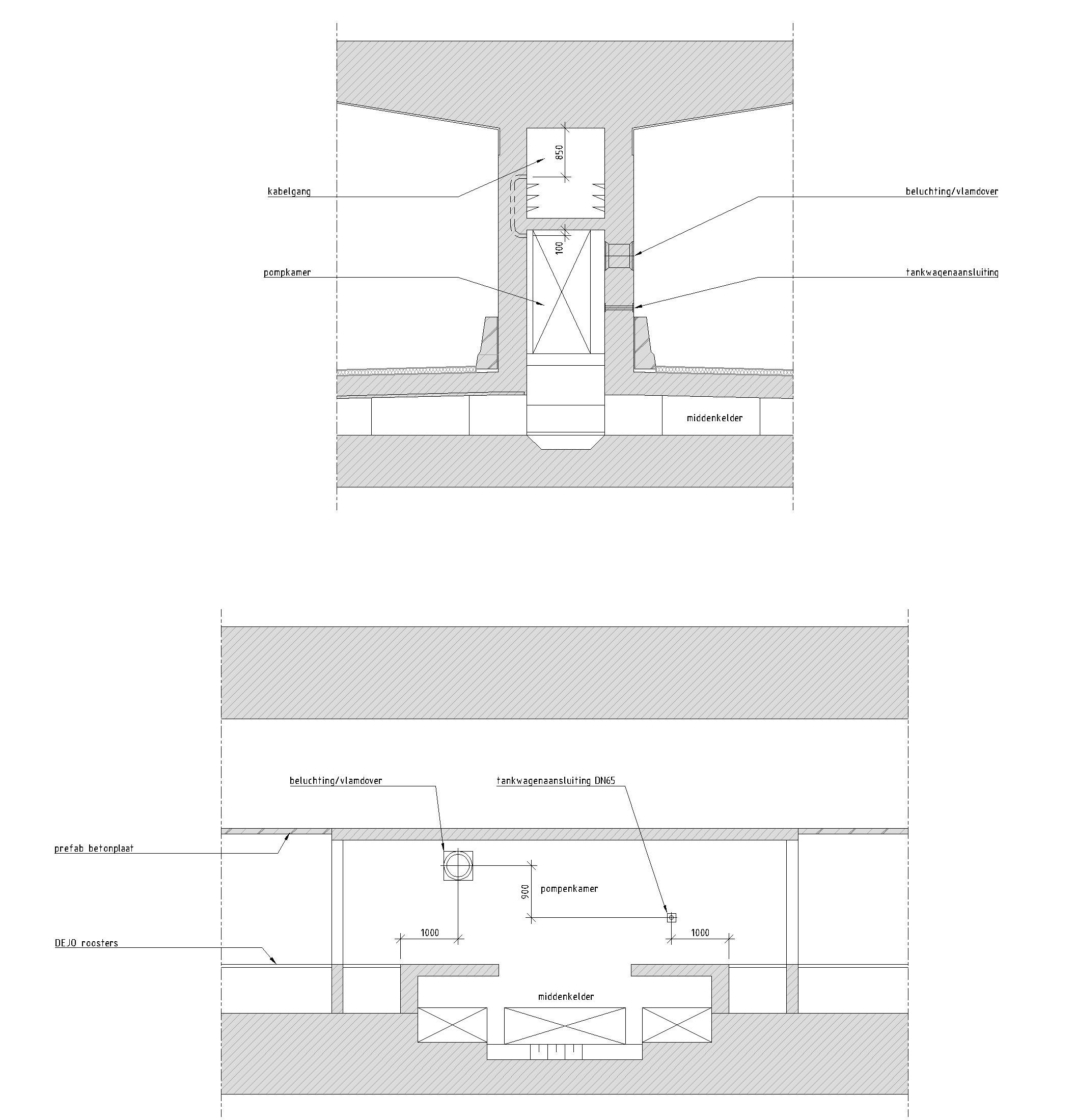
In Nederland worden vanwege de gehanteerde veiligheidsfilosofie vaak twee tunnelbuizen geboord en worden er dwarsverbindingen tussen de buizen gerealiseerd. Deze verbindingen hebben de functie om bij een calamiteit in een tunnelbuis een vluchtmogelijkheid te bieden naar de andere tunnelbuis en/of om hulpdiensten toegang te verlenen tot de buis waar de calamiteit heeft plaatsgevonden. De exacte afstand en de afmetingen van de dwarsverbindingen volgen uit veiligheidsbeschouwingen en risicoanalyses. Binnen Nederland bevinden deze verbindingen zich vaak om de 250 meter en hebben ze een ovale of ronde vorm met een minimale inwendige diameter variërend van 2,2 meter tot bijna 4 meter. Tevens is een aantal dwarsverbindingen gecombineerd met schachten die doorlopen tot op maaiveld. Deze schachten zijn bijvoorbeeld gerealiseerd door caisson(s) te laten afzinken.

In de Nederlandse ondergrond kunnen in het algemeen niet zonder meer dwarsverbindingen worden gerealiseerd en zijn er maatregelen noodzakelijk in de vorm van grondverbeteringen. Dit geldt ook voor de geringe afstand van de geboorde tunnel tot een eventuele schacht die is toegepast. De mogelijkheden zijn onder andere het bevriezen van het grondwater, het injecteren van poriën van het grondlichaam of het mixen van de ondergrond door middel van jetgrouten en te vervangen door een beter en sterker materiaal.
Om de dwarsverbindingen te realiseren vanuit de tunnelbuis, dient de lining te worden opengebroken. Daarvoor worden bijvoorbeeld (hulp)constructies toegepast zoals stalen frames of een betonnen kraag. Ook kunnen stalen segmenten worden gehanteerd of voorzieningen in de betonnen lining worden opgenomen om de krachten om te leiden.

Vanuit de tunnelbuis kan het gat ten behoeve van de dwarsverbindingen worden ontgraven met graafwerktuigen, of eventueel met mini-TBM’s. Na het graven van de opening wordt in Nederland meestal eerst een spuitbetonlaag aangebracht voor tijdelijke waterdichtheid en ondersteuning. Vervolgens komt er een waterdichte folie met injectievoorzieningen om de waterdichtheid te kunnen waarborgen. Tot slot wordt de dwarsverbinding met een constructieve lining afgewerkt voor het opnemen van de belastingen.
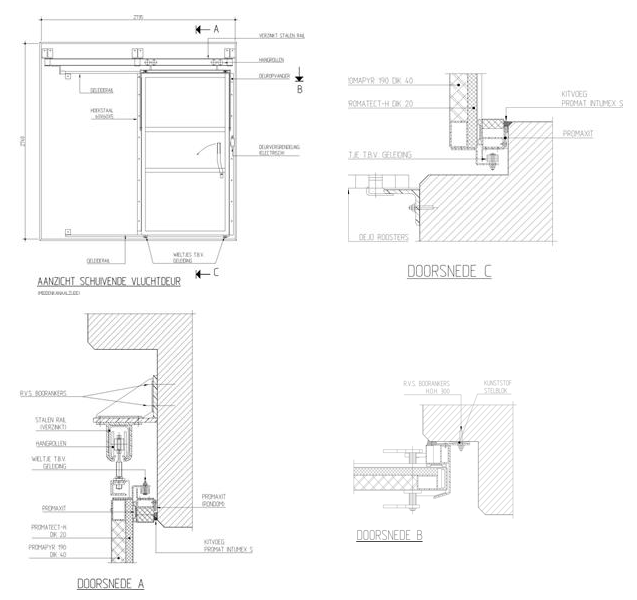
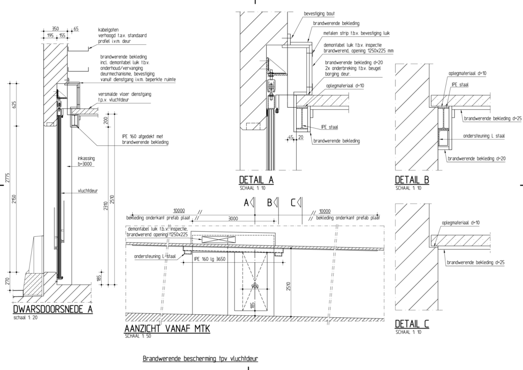
Van de buitenzijde wordt de dwarsverbinding afgewerkt met een al dan niet constructieve kraagverbinding, waarin zich ook de vluchtdeurconstructie bevindt.
Belastingen
De grootste belastingen op geboorde tunnels hebben een permanent karakter en bestaan uit de belasting van het eigen gewicht van de tunnellining (A) en de grond- en waterbelasting (B en C). Andere onderdelen die een grote invloed kunnen hebben op de geboorde tunnel zijn de belastingen van constructies of objecten die al dan niet gefundeerd boven of naast de tunnel aanwezig zijn (d). Zie figuur 690.14 voor de schematische weergave hiervan.

De inlay is ook een permanente belasting. Variabele belastingen die invloed hebben op het gedrag van de lining zijn bijvoorbeeld maaiveldbelastingen die zowel boven of naast de tunnel kunnen optreden, alsmede de temperatuurbelasting en de verkeersbelasting in de tunnel. De belastingen tijdens de realisatie van de tunnel, zoals de afzetkrachten uit de vijzels van de TBM en de groutbelasting, spelen ook een belangrijke rol, evenals de belastingen voor het realiseren van de dwarsverbindingen, zoals de vriesbelasting. Ook moet er rekening gehouden worden met belastingen die kunnen optreden in de toekomst. Hierbij kan gedacht worden aan ontgravingen die boven of naast de tunnel plaatsvinden of aan de toekomstige maaiveldophogingen of -bebouwing.
Tot slot vormen calamiteitsbelastingen een punt van aandacht, zoals inundatie (volgelopen tunnel), de belasting op de lining ten gevolge van brand, explosie- of botsbelasting, of aan de scheepvaart gerelateerde belastingen (zoals een gezonken schip). Aardbevingsbelastingen spelen vaak een minder grote rol van betekenis in Nederland.
Componenten constructief gedrag
Niet alle geboorde tunnels in Nederland zijn exact hetzelfde uitgevoerd. Wel kunnen verschillende ‘vaste’ componenten van het constructieve gedrag worden onderscheiden. In de volgende paragrafen wordt het globale constructief gedrag van geboorde tunnels beschreven.
Krachtswerking in ringrichting
De geboorde tunnel berust op een samenwerking van de lining en de omringende grond in de ringrichting van de tunnel. Indien een van beide componenten bezwijkt, dan bezwijkt de gehele constructie. In beginsel is er geen constructief verband aanwezig in de lining. Het verband tussen de losse segmenten, die samen de tunnellining vormen, ontstaat pas wanneer deze in de ringrichting belast worden door grond en water. De hierdoor veroorzaakte normaalkrachten in de ring drukken de voegen dicht en geven bij excentrisch aangrijpen ook een momentcapaciteit in de voeg. Het tweede en meestal belangrijkste constructieve verband wordt geleverd door de ondersteunde werking van grond zelf: de grondbedding.
De grondkering komt tot stand door gewelfwerking als gevolg van het samenspel van los gestapelde segmenten en de omringende grond. De ringen worden meestal aan zowel de bovenzijde als de onderzijde belast door actieve korreldrukken en aan de zijkanten gesteund door passieve korreldrukken. De waterkering komt tot stand door het aanbrengen van de flexibele waterdichtheidsprofielen tussen de betonnen segmenten. De waterdruk helpt bij het dichtdrukken van de profielen, mits de tunnel geheel onder (grond)water ligt.
Langsvoeg, vervorming en krachtsoverdracht
In de langsvoegen speelt de combinatie normaalkracht-hoekverdraaiing een dominante rol. In het ontwerp wordt hier een specifieke contactzone voor ontworpen: het gebied waarbinnen de kracht tussen de segmenten dient te worden overgedragen. Het moment-rotatiegedrag in de langsvoeg kan worden benaderd op basis van de zogenaamde Janßen-relatie theorie.

Al naar gelang de contactzone tussen de segmenten kleiner en geconcentreerder wordt, zal de voeg meer als een scharnier functioneren. Indien deze zone groter is, dan functioneert hij meer als een inklemming.
Globaal kan er worden gesteld dat bij een scharnier de vervormingen van de lining groter zullen zijn en de momenten in segmenten kleiner. Echter, de over te brengen belastingen zullen veel geconcentreerder zijn ter plaatse van de voeg en moeilijker opneembaar met de wapening in de segmenten. Ook zal de voeg verder gaan openstaan en zal het waterdichtheidsprofiel zeer sterk worden ingedrukt met hoge lokale belastingen op de buitenzijde van het segment tot gevolg. Bij een meer momentvaste verbinding is dit net andersom. Er zal in het ontwerp tot een optimum worden gekomen dat onder meer afhankelijk is van de diameter van de tunnel, de dikte van de lining, het aantal segmenten en de grondbedding die aanwezig is.

Krachtswerking in langsrichting
In de langsrichting van de tunnel kan sprake zijn van een zettingsverschil in de grondlagen rondom de tunnel over een relatief korte afstand. Afhankelijk van de grootte van de axiale buigstijfheid van de tunnelbuis zal de tunnel de zetting van de grond min of meer kunnen volgen en zal de liggerwerking van de tunnel worden aangesproken. De zettingsverschillen kunnen abrupt zijn ter plaatse van overgangen naar star-ondersteunde constructies, zoals schachten.
Bij de diverse boortunnels in Nederland zijn verschillende methodieken gehanteerd tussen de ringen. Het ‘Duitse’ principe is een vertande voeg, die ook bekend staat als de kom-nokverbinding. Bij de in Nederland bekend zijnde tunnels met dit principe zijn minstens twee kom-nokverbindingen per segment gehanteerd.

Tegenwoordig worden veelal vlakke voegen gehanteerd, omdat dit minder schadegevoelig is tijdens het realiseren van de tunnel. De vlakke voeg staat bekend als het ‘Franse’ principe.

Boutverbindingen tussen de segmenten kunnen de ringen op hun plek houden tijdens de plaatsing tot het moment dat de segmenten voldoende worden belast door de omliggende grond c.q. verankerd zijn door wrijving met de ondergrond. Na het verwijderen van de bouten staan de ringen vervolgens min of meer op zichzelf en kunnen – door de aanwezige voorspanbelasting ten gevolge van de oorspronkelijke vijzelkrachten – krachten door wrijving tussen de ringen overbrengen.
Er zijn ook andere systemen mogelijk, zoals kunststof verbindingssystemen die voornamelijk dwarskracht en een geringe trekkracht kunnen overbrengen. Deze systemen zijn permanent aanwezig. Dit leidt tot hogere momenten in de tunnellining in ringrichting in vergelijking met een ring waarbij de bouten zijn verwijderd, maar de vervormingen en hoekverdraaiingen zijn kleiner.

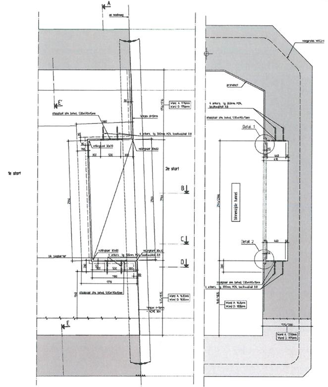
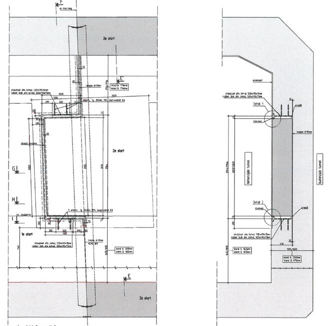
Ter plaatse van de dwarsverbindingen wordt gebruikgemaakt van verbindingen die grote dwarskrachten tussen de ringen kunnen overbrengen, zogenaamde bicones. Dit is nodig om de krachten van de ring die wordt opengebroken, over te brengen naar de naastgelegen ringen. Zie links in figuur 690.20. Een andere mogelijkheid is het toepassen van stalen segmenten die meer belasting kunnen opnemen dan betonnen segmenten en zo de belastingen in dwarsrichting en eventueel ook in ringrichting kunnen overnemen.

Ter plaatse van de start- en ontvangstschacht dienen de ringen met elkaar gekoppeld te worden. Dit kan gebeuren door middel van permanente bouten. Een andere mogelijkheid is het doorvoeren van stalen stangen door de ringen en deze met elkaar koppelen in een verbindingselement. Zie rechts in figuur 690.20. Er bestaat een wezenlijk verschil tussen beide systemen. Bij het toepassen van een boutsysteem dient het betonnen segment naast de ringkrachten ook de trekkrachten in langsrichting te kunnen opnemen. Bij het doorvoeren van gekoppelde stalen staven nemen deze staven de belastingen in langsrichting op en de segmenten de belastingen in ringrichting.
Meer informatie en onderbouwing is te vinden in het COB-rapport Werkwijzer monitoring boortunnels .